Скачать Серия 3.407.2-140 Выпуск 2. Порталы ошиновки (для северных районов). Рабочие чертежиДата актуализации: 01.01.2021
|
| Обозначение: | Серия 3.407.2-140 |
| Обозначение англ: | Series 3.407.2-140 |
| Статус: | не действует |
| Название рус.: | Выпуск 2. Порталы ошиновки (для северных районов). Рабочие чертежи |
| Дата добавления в базу: | 01.09.2013 |
| Дата актуализации: | 01.01.2021 |
| Дата окончания срока действия: | 01.02.1989 |
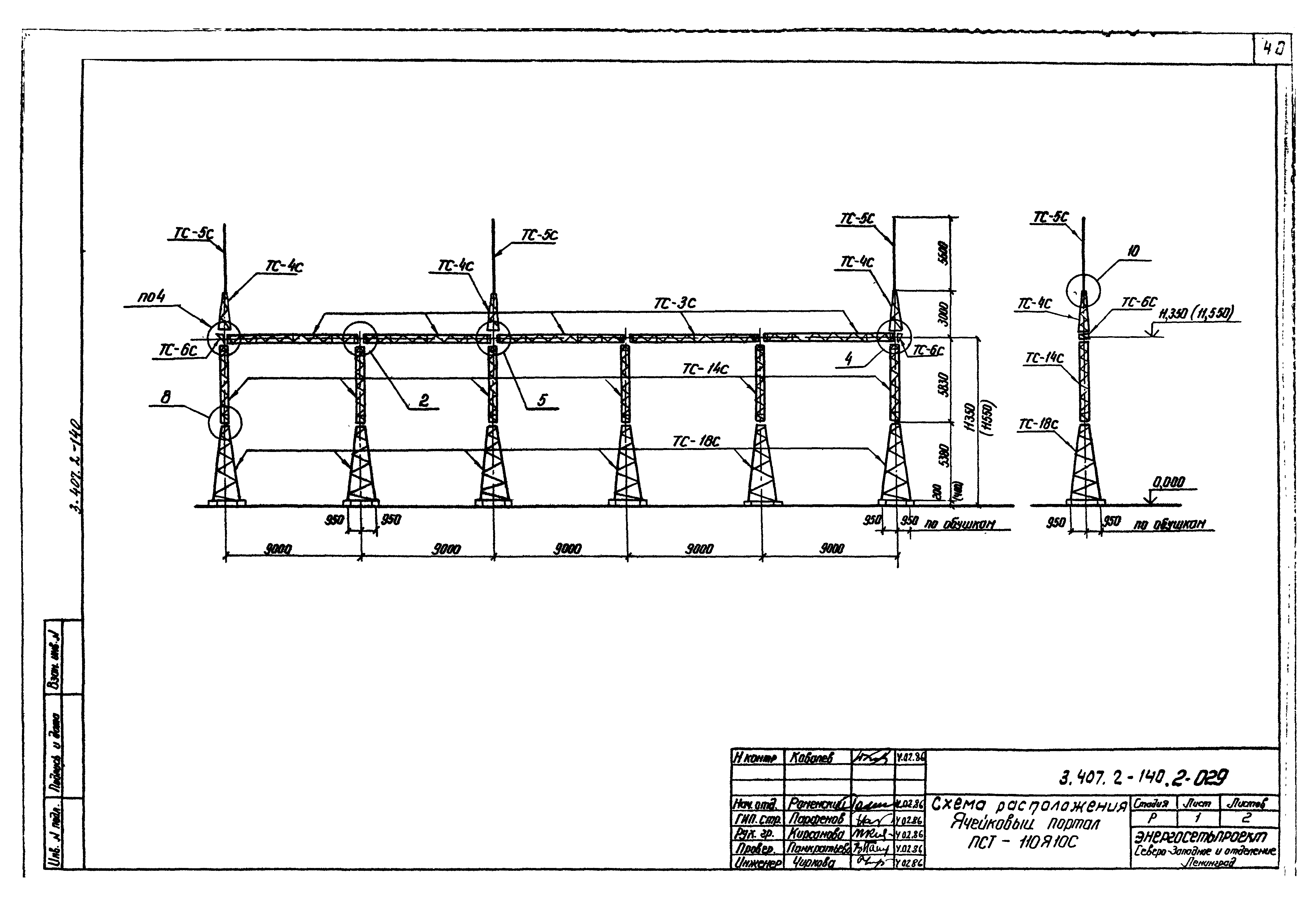
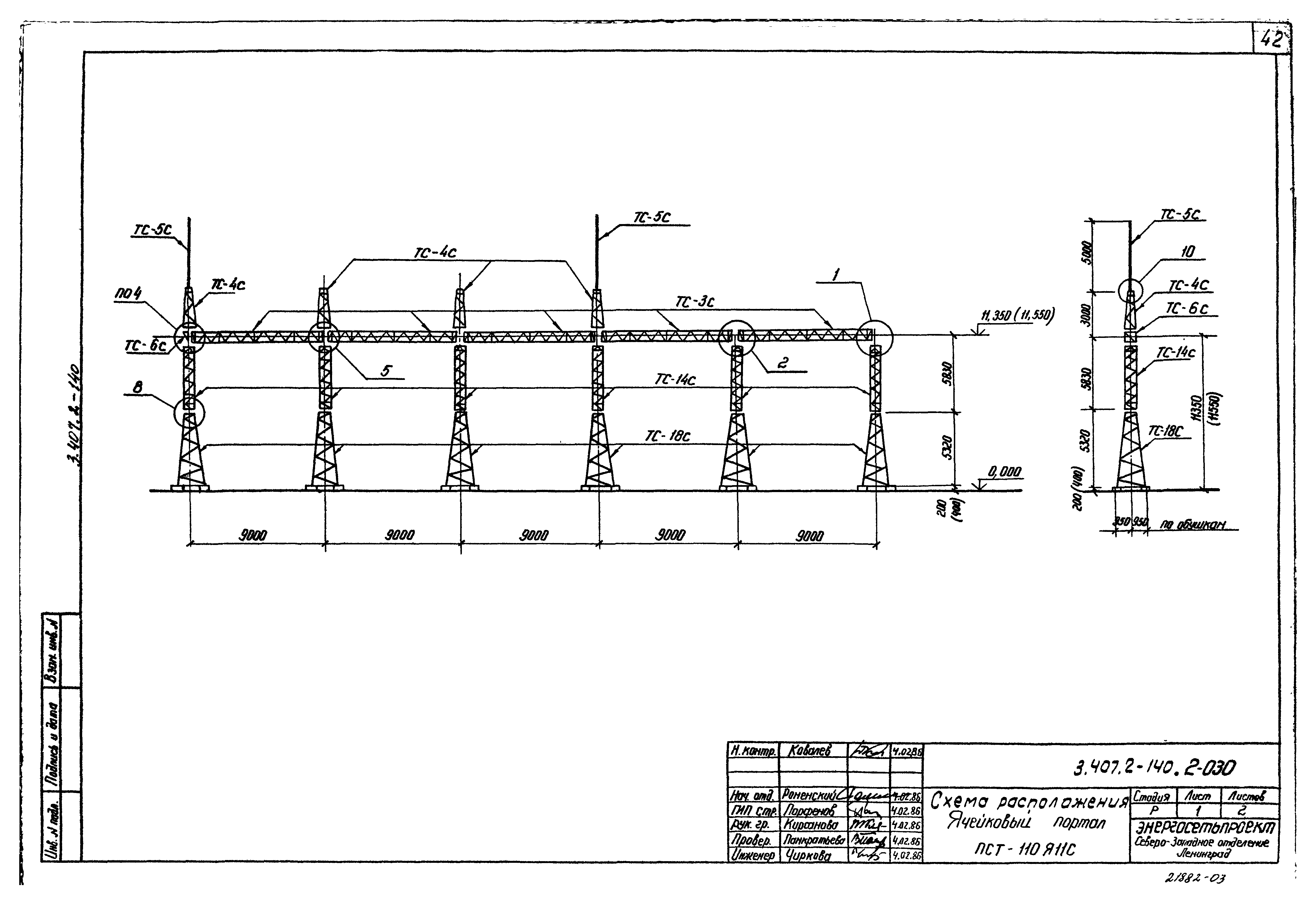
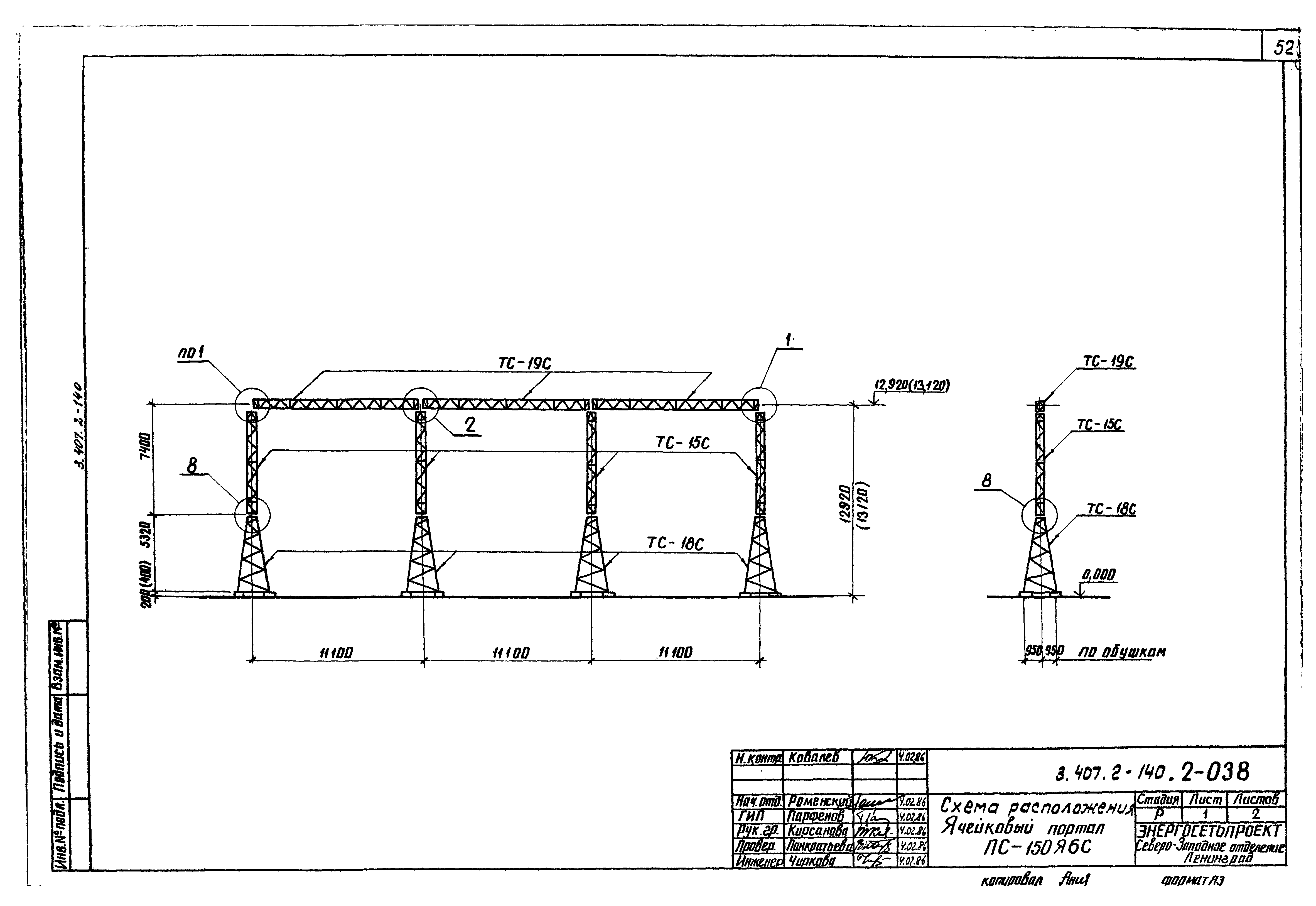
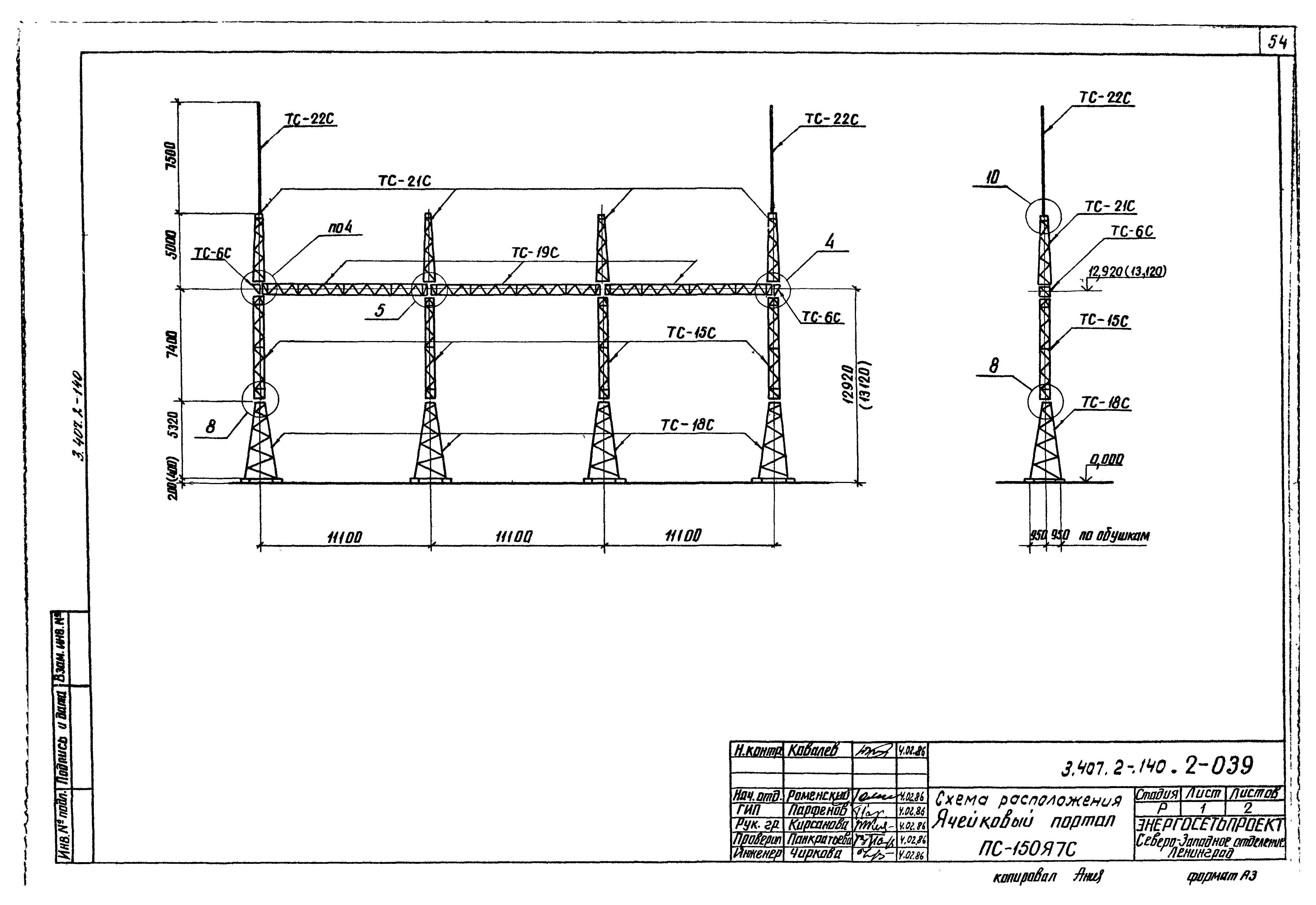
| Оглавление: | 3.407.2-140.2-00 Содержание выпуска 2 3.407.2-140.2-00ТО Техническое описание 3.407.2-140.2-001 Схема расположения. Шинный портал ПС-35ШС 3.407.2-140.2-002 Схема расположения. Ячейковый портал ПС-35Я1С 3.407.2-140.2-003 Схема расположения. Ячейковый портал ПС-35Я2С 3.407.2-140.2-004 Схема расположения. Ячейковый портал ПС-35Я3С 3.407.2-140.2-005 Схема расположения. Ячейковый портал ПС-35Я4С 3.407.2-140.2-006 Схема расположения. Ячейковый портал ПС-35Я5С 3.407.2-140.2-007 Схема расположения. Ячейковый портал ПС-35Я6С 3.407.2-140.2-008 Схема расположения. Ячейковый портал ПСЛ-110Я1С 3.407.2-140.2-009 Схема расположения. Ячейковый портал ПСЛ-110Я2С 3.407.2-140.2-010 Схема расположения. Ячейковый портал ПСЛ-110Я3С 3.407.2-140.2-011 Схема расположения. Ячейковый портал ПСЛ-110Я4С 3.407.2-140.2-012 Схема расположения. Ячейковый портал ПСЛ-110Я5С 3.407.2-140.2-013 Схема расположения. Ячейковый портал ПСЛ-110Я6С 3.407.2-140.2-014 Схема расположения. Ячейковый портал ПСЛ-110Я7С 3.407.2-140.2-015 Схема расположения. Ячейковый портал ПСЛ-110Я8С 3.407.2-140.2-016 Схема расположения. Ячейковый портал ПСЛ-110Я9С 3.407.2-140.2-017 Схема расположения. Ячейковый портал ПСЛ-110Я10С 3.407.2-140.2-018 Схема расположения. Ячейковый портал ПСЛ-110Я11С 3.407.2-140.2-019 Схема расположения. Ячейковый портал ПСЛ-110Я12С 3.407.2-140.2-020 Схема расположения. Ячейковый портал ПСТ-110Я1С 3.407.2-140.2-021 Схема расположения. Ячейковый портал ПСТ-110Я2С 3.407.2-140.2-022 Схема расположения. Ячейковый портал ПСТ-110Я3С 3.407.2-140.2-023 Схема расположения. Ячейковый портал ПСТ-110Я4С 3.407.2-140.2-024 Схема расположения. Ячейковый портал ПСТ-110Я5С 3.407.2-140.2-025 Схема расположения. Ячейковый портал ПСТ-110Я6С 3.407.2-140.2-026 Схема расположения. Ячейковый портал ПСТ-110Я7С 3.407.2-140.2-027 Схема расположения. Ячейковый портал ПСТ-110Я8С 3.407.2-140.2-028 Схема расположения. Ячейковый портал ПСТ-110Я9С 3.407.2-140.2-029 Схема расположения. Ячейковый портал ПСТ-110Я10С 3.407.2-140.2-030 Схема расположения. Ячейковый портал ПСТ-110Я11С 3.407.2-140.2-031 Схема расположения. Ячейковый портал ПСТ-110Я12С 3.407.2-140.2-032 Схема расположения. Шинный портал ПС-150ШС 3.407.2-140.2-033 Схема расположения. Ячейковый портал ПС-150Я1С 3.407.2-140.2-034 Схема расположения. Ячейковый портал ПС-150Я2С 3.407.2-140.2-035 Схема расположения. Ячейковый портал ПС-150Я3С 3.407.2-140.2-036 Схема расположения. Ячейковый портал ПС-150Я4С 3.407.2-140.2-037 Схема расположения. Ячейковый портал ПС-150Я5С 3.407.2-140.2-038 Схема расположения. Ячейковый портал ПС-150Я6С 3.407.2-140.2-039 Схема расположения. Ячейковый портал ПС-150Я7С 3.407.2-140.2-040 Порталы ошиновки. Узел 1 3.407.2-140.2-041 Порталы ошиновки. Узел 2 3.407.2-140.2-042 Порталы ошиновки. Узел 3 3.407.2-140.2-043 Порталы ошиновки. Узел 4 3.407.2-140.2-044 Порталы ошиновки. Узел 5 3.407.2-140.2-045 Порталы ошиновки. Узел 6 3.407.2-140.2-046 Порталы ошиновки. Узел (7, 8) 3.407.2-140.2-047 Порталы ошиновки. Узел 9 3.407.2-140.2-048 Порталы ошиновки. Узел (10, 11) |
| Разработан: | Северо-западное отделение института Энергосетьпроект |
| Утверждён: | 24.11.1986 Минэнерго СССР (USSR Minenergo 47) |
| Издан: | ЦИТП Госстроя СССР (CITP, Gosstroy (USSR) 1987 г. ) |
| Заменяет собой: | |
| Чем заменён: |

































































