Скачать Серия 3.407.2-140 Выпуск 4. Стальные конструкции. Чертежи КМ. Железобетонные изделия (для обычных районов). Рабочие чертежиДата актуализации: 01.01.2021
|
| Обозначение: | Серия 3.407.2-140 |
| Обозначение англ: | Series 3.407.2-140 |
| Статус: | не действует |
| Название рус.: | Выпуск 4. Стальные конструкции. Чертежи КМ. Железобетонные изделия (для обычных районов). Рабочие чертежи |
| Дата добавления в базу: | 01.09.2013 |
| Дата актуализации: | 01.01.2021 |
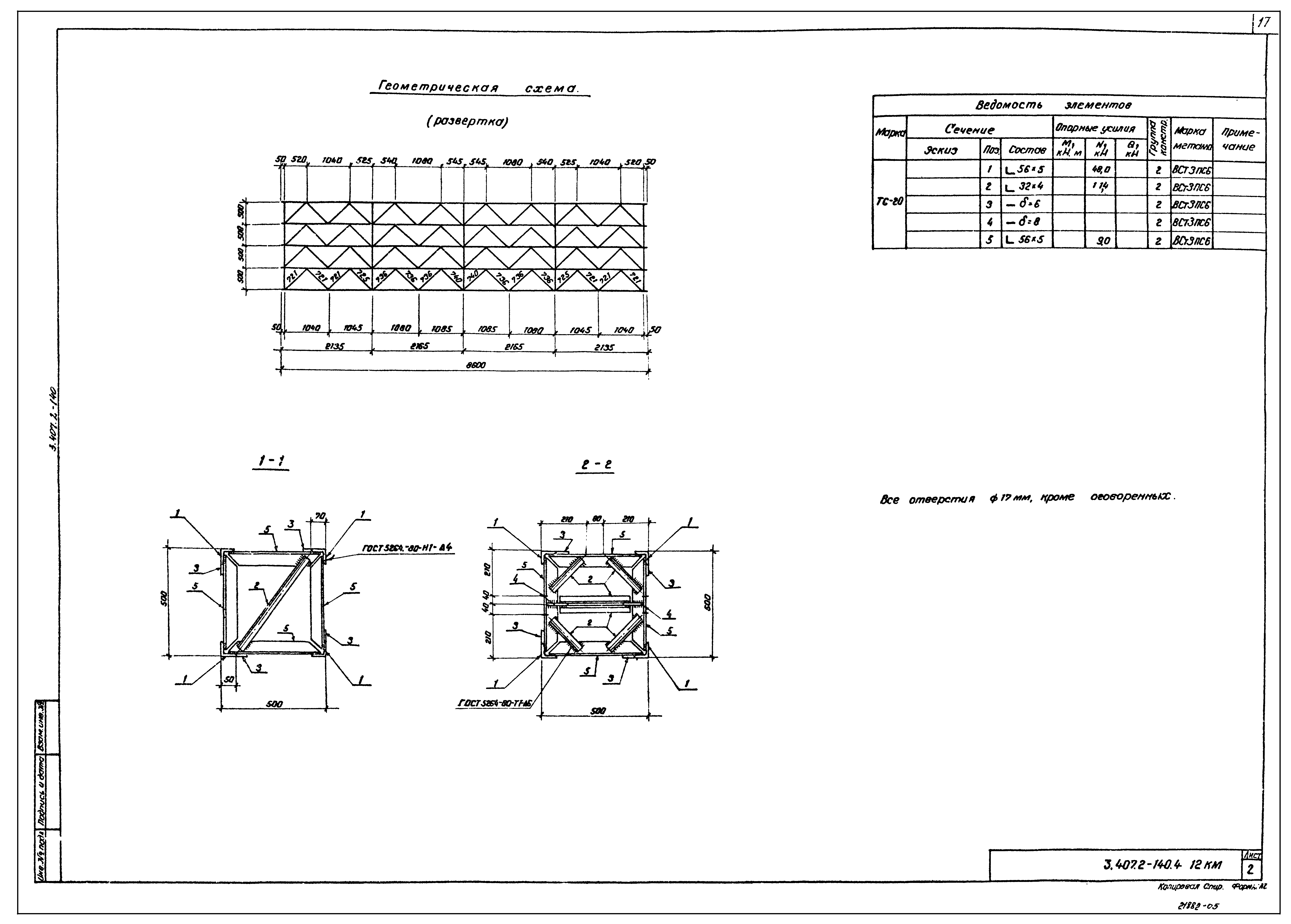
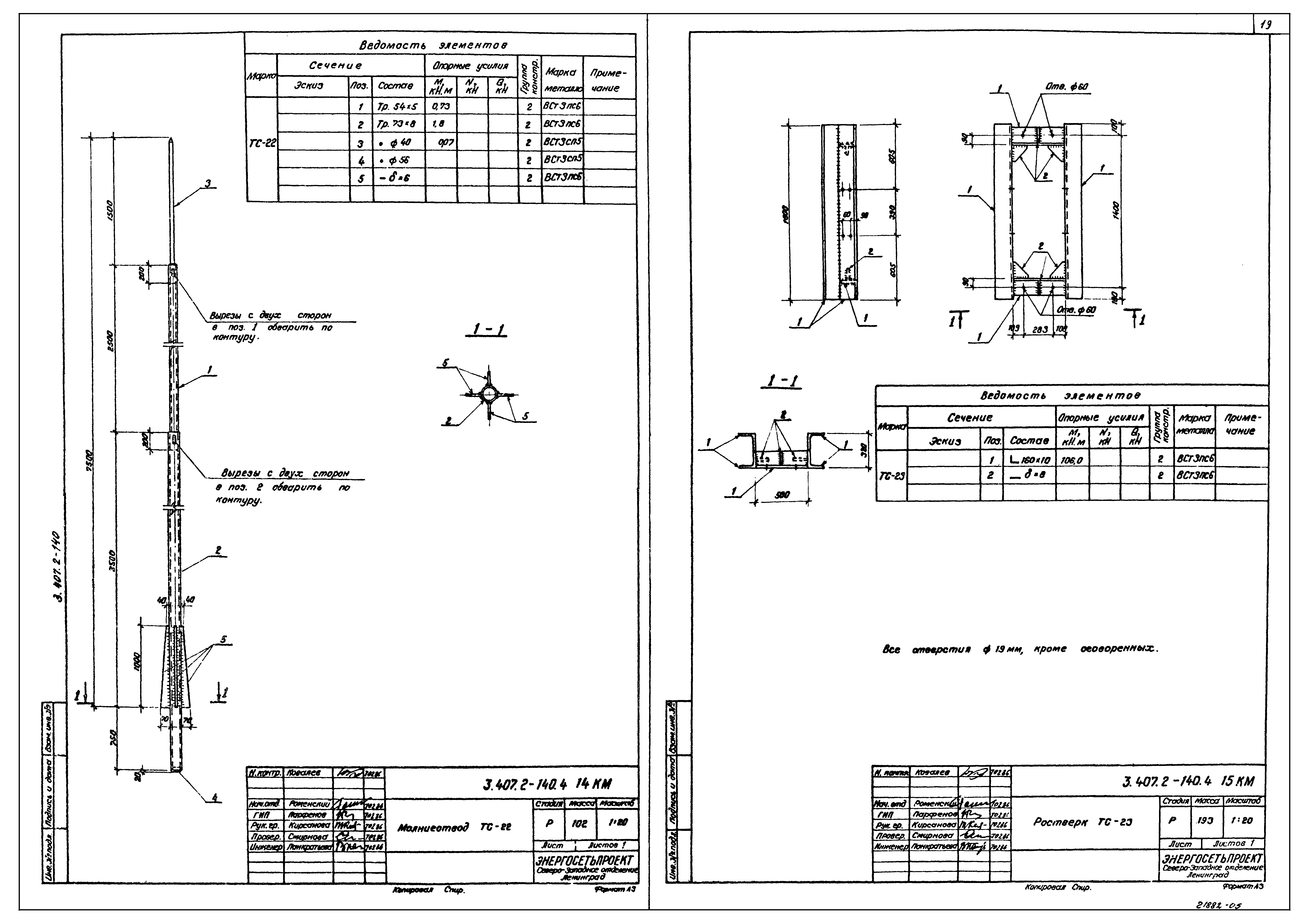
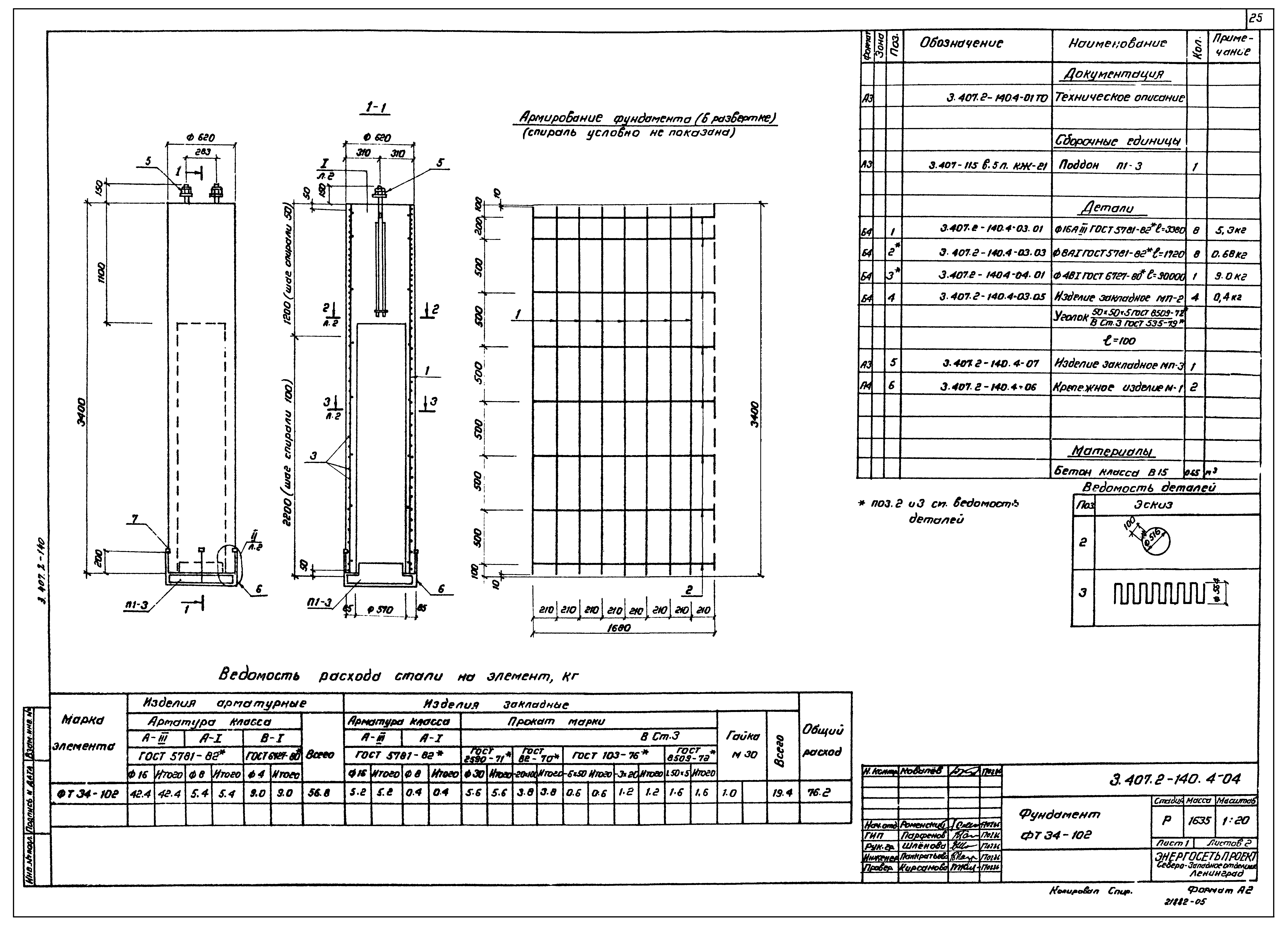
| Оглавление: | 3.407.2-140.4-00 Содержание 3.407.2-140.4-00ТО Стальные элементы порталов ОРУ 35-150 кВ. Техническое описание 3.407.2-140.4-00А1 Ведомость металлоконструкций по видам профилей 3.407.2-140.4-00А2 Ведомость расхода стали 3.407.2-140.4 01КМ Траверса ТС-1 3.407.2-140.4 02КМ Траверса ТС-2 3.407.2-140.4 03КМ Траверса ТС-3 3.407.2-140.4 04КМ Тросостойка ТС-4 3.407.2-140.4 05КМ Молниеотвод ТС-5 3.407.2-140.4 06КМ Элемент доборный ТС-6 3.407.2-140.4 07КМ Стойка ТС-14 3.407.2-140.4 08КМ Стойка ТС-15 3.407.2-140.4 09КМ Стойка ТС-16. Элемент крепежный ТС-17 3.407.2-140.4 10КМ Стойка ТС-18 3.407.2-140.4 11КМ Траверса ТС-19 3.407.2-140.4 12КМ Траверса ТС-20 3.407.2-140.4 13КМ Тросостойка ТС-21 3.407.2-140.4 14КМ Молниеотвод ТС-22 3.407.2-140.4 15КМ Ростверк ТС-23 3.407.2-140.4 16КМ Элемент крепежный ТС-24 3.407.2-140.4 17КМ Элемент крепежный ТД-1 3.407.2-140.4 18КМ Плита опорная ТД-2 3.407.2-140.4 01ТО Железобетонные фундаменты. Техническое описание 3.407.2-140.4 008М Ведомость расхода материалов 3.407.2-140.4-01Л.1 Фундамент Ф (Ф1-А-I, Ф2-А-I) 3.407.2-140.4-01Л.2 3.407.2-140.4-02 Деталь закладная УД-62 3.407.2-140.4-03Л.1 Фундамент ФТ 34-250 3.407.2-140.4-04Л.1 Фундамент ФТ 34-102 3.407.2-140.4-03Л.2 3.407.2-140.4-04Л.2 3.407.2-140.4-05 Изделия закладное МП-1 3.407.2-140.4-06 Изделия закладное М-1 3.407.2-140.4-07 Изделия закладное МП-2 |
| Разработан: | Северо-западное отделение института Энергосетьпроект |
| Утверждён: | 24.11.1986 Минэнерго СССР (USSR Minenergo 47) |
| Издан: | ЦИТП Госстроя СССР (CITP, Gosstroy (USSR) 1987 г. ) |
| Заменяет собой: | |
| Чем заменён: |




























