Скачать Серия 3.407.2-140 Выпуск 5. Стальные конструкции. Чертежи КМ. Железобетонные изделия (для северных районов). Рабочие чертежиДата актуализации: 01.01.2021
|
| Обозначение: | Серия 3.407.2-140 |
| Обозначение англ: | Series 3.407.2-140 |
| Статус: | заменен |
| Название рус.: | Выпуск 5. Стальные конструкции. Чертежи КМ. Железобетонные изделия (для северных районов). Рабочие чертежи |
| Дата добавления в базу: | 01.09.2013 |
| Дата актуализации: | 01.01.2021 |
| Дата окончания срока действия: | 01.02.1989 |
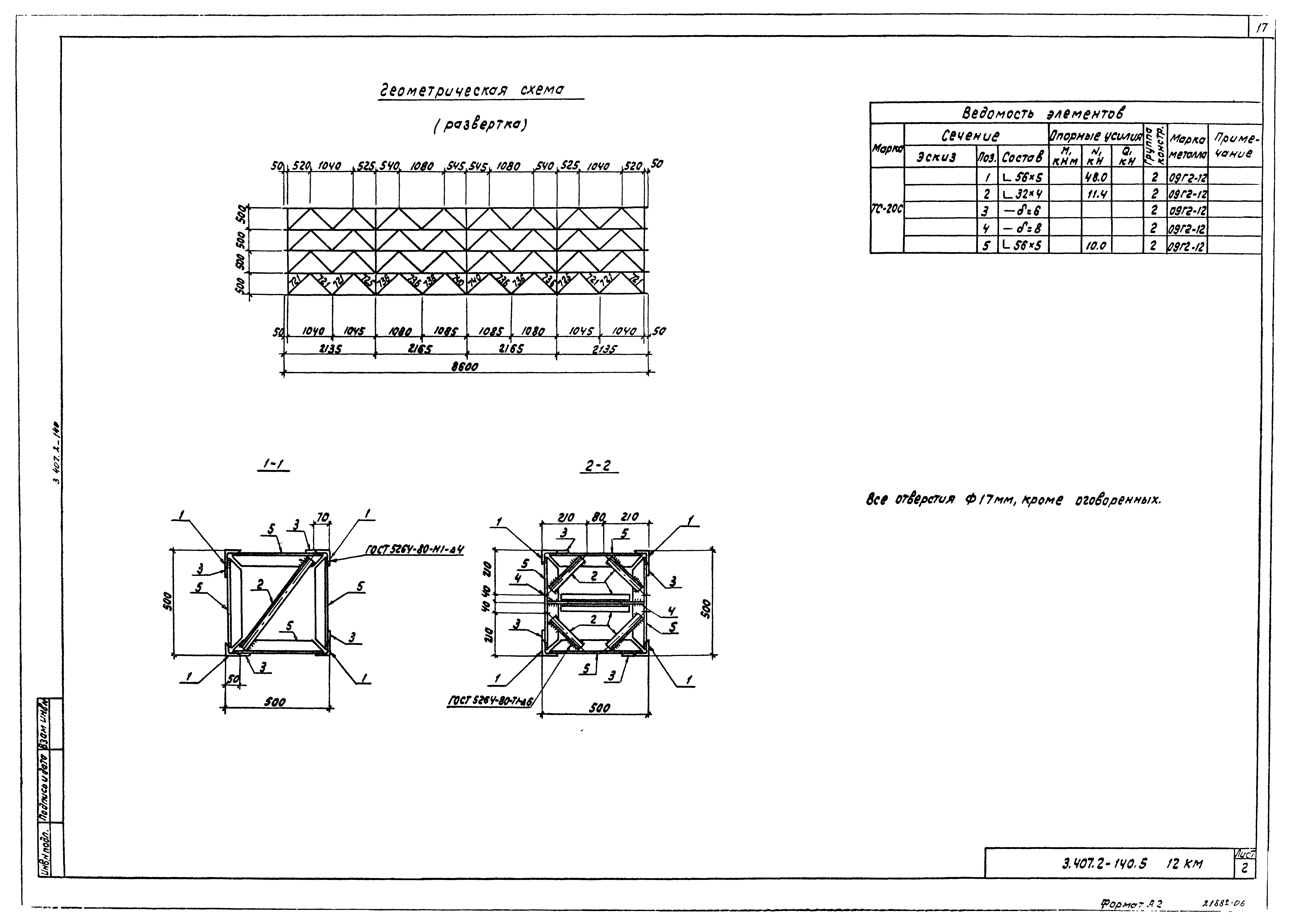
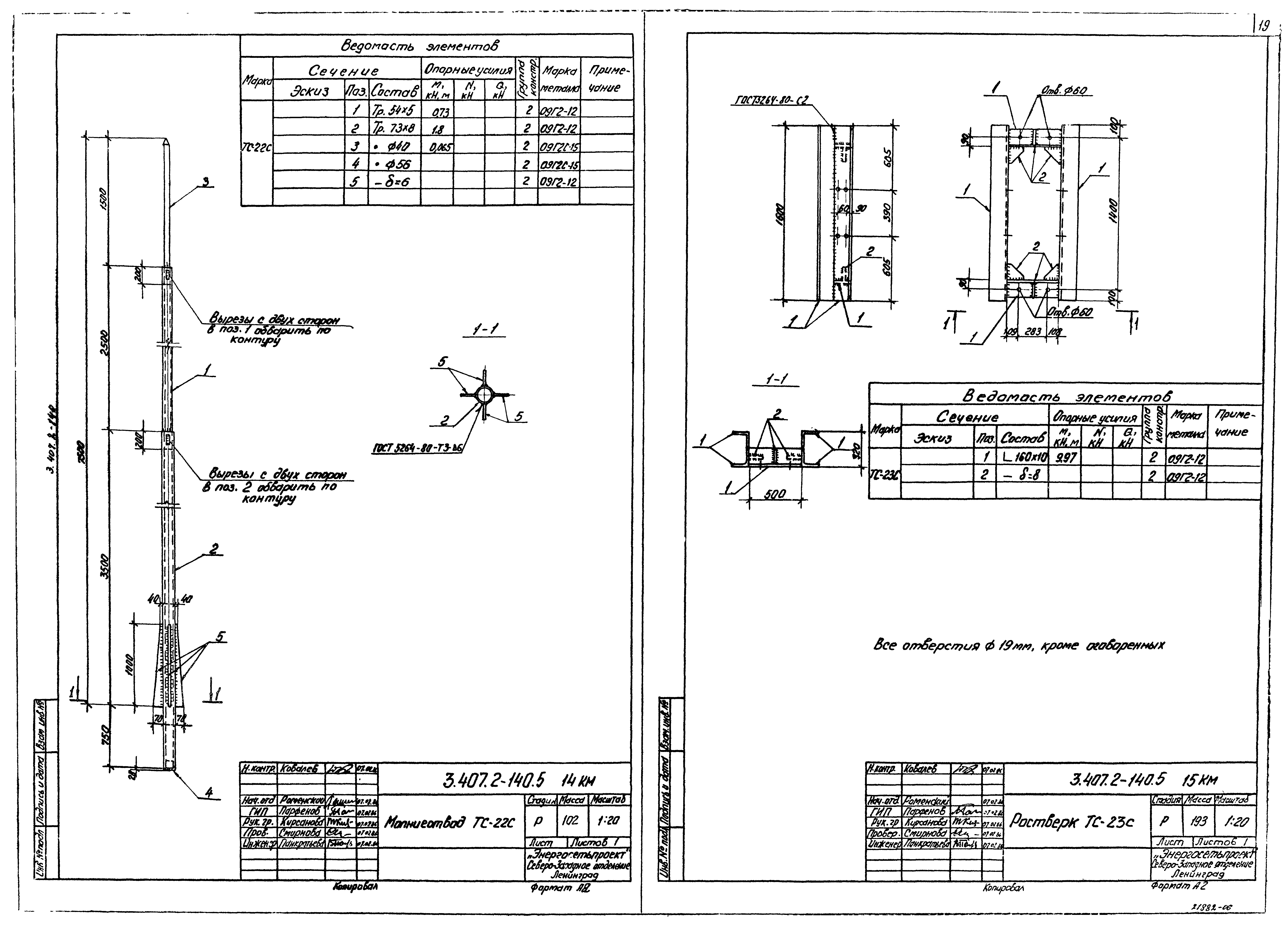
| Оглавление: | 3.407.2-140.5-00 Содержание 3.407.2-140.5-00ТО Стальные элементы порталов ОРУ 35-150 кВ. Техническое описание 3.407.2-140.5-00Д1 Ведомость металлоконструкций по видам профилей 3.407.2-140.5-00Д2 Ведомость расхода стали 3.407.2-140.5-01КМ Траверса ТС-1с 3.407.2-140.5-02КМ Траверса ТС-2с 3.407.2-140.5-03КМ Траверса ТС-3с 3.407.2-140.5-04КМ Тросостойка ТС-4с 3.407.2-140.5-05КМ Молниеотвод ТС-5с 3.407.2-140.5-06КМ Элемент доборный ТС-6с 3.407.2-140.5-07КМ Стойка ТС-14с 3.407.2-140.5-08КМ Стойка ТС-15с 3.407.2-140.5-09КМ Стойка ТС-16с. Элемент крепежный ТС-17с 3.407.2-140.5-10КМ Стойка ТС-18с 3.407.2-140.5-11КМ Траверса ТС-19с 3.407.2-140.5-12КМ Траверса ТС-20с 3.407.2-140.5-13КМ Тросостойка ТС-21с 3.407.2-140.5-14КМ Молниеотвод ТС-22с 3.407.2-140.5-15КМ Ростверк ТС-23 3.407.2-140.5-16КМ Элемент крепежный ТС-24с 3.407.2-140.5-17КМ Элемент крепежный ТД-1с 3.407.2-140.5-18КМ Плита опорная ТД-2с 3.407.2-140.5-01ТО Железобетонные фундаменты. Техническое описание 3.407.2-140.5-008М Ведомость расхода материалов 3.407.2-140.5-01Л.1 Фундамент Ф (Ф1-А-Iс, Ф2-А-Iс) 3.407.2-140.5-01Л.2 3.407.2-140.5-02 Деталь закладная УД-62с 3.407.2-140.5-03Л.1 Фундамент ФТ 34-250с 3.407.2-140.5-04Л.1 Фундамент ФТ 34-102с 3.407.2-140.5-03Л.2 3.407.2-140.5-04Л.2 3.407.2-140.5-05 Изделия закладное МП-1с 3.407.2-140.5-06 Изделия закладное М-1с 3.407.2-140.5-07 Изделия закладное МП-2с |
| Разработан: | Северо-западное отделение института Энергосетьпроект |
| Утверждён: | 24.11.1986 Минэнерго СССР (USSR Minenergo 47) |
| Издан: | ЦИТП Госстроя СССР (CITP, Gosstroy (USSR) 1987 г. ) |
| Заменяет собой: | |
| Чем заменён: |




























