Скачать ОСТ 1 11546-74 Хомуты колодочные одинарные закрепляемые. Конструкция и размеры

Дата актуализации: 01.01.2021

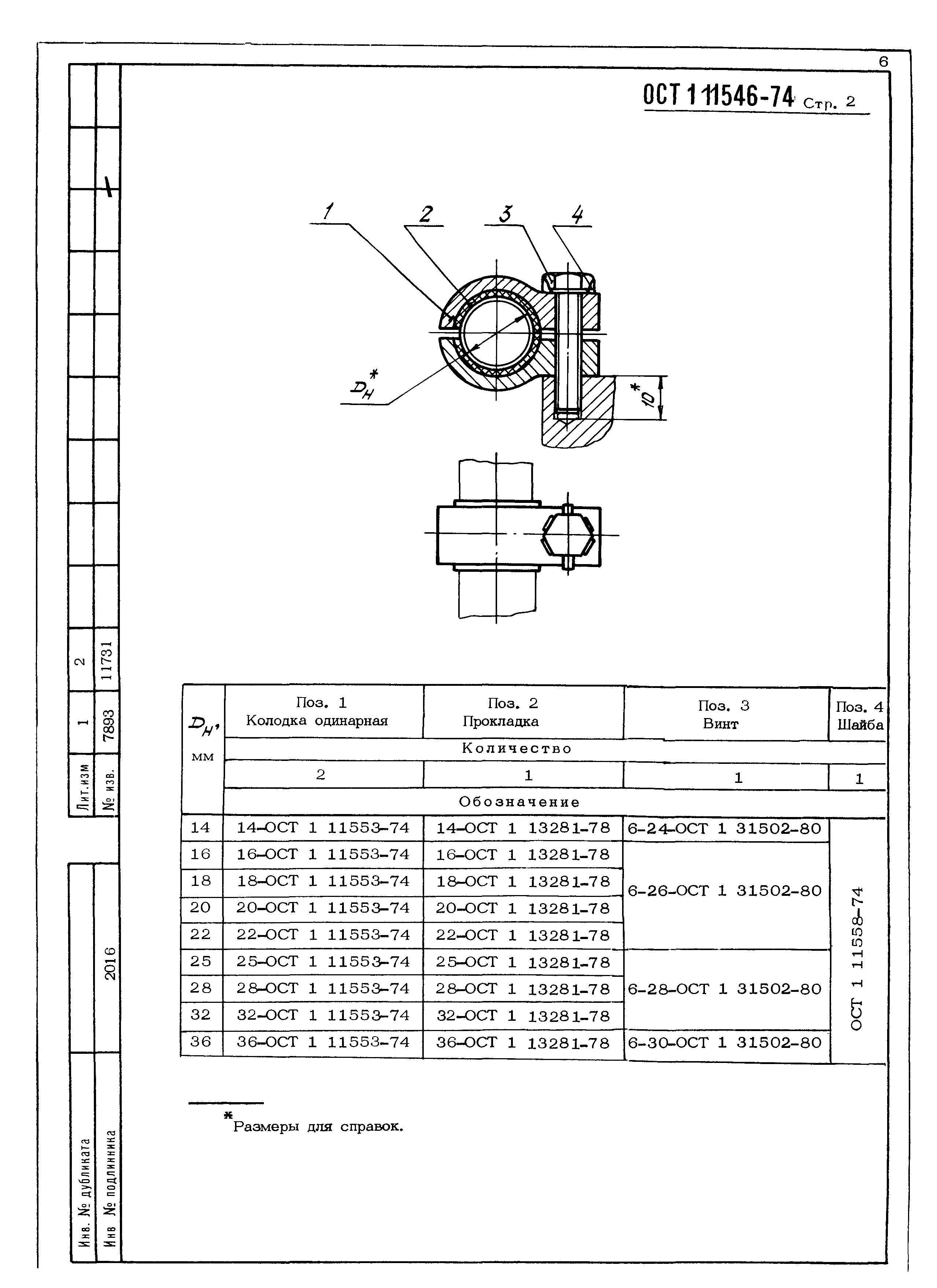
ОСТ 1 11546-74

Хомуты колодочные одинарные закрепляемые. Конструкция и размеры

Обозначение: ОСТ 1 11546-74
Обозначение англ: 11546-74
Статус:действует
Название рус.:Хомуты колодочные одинарные закрепляемые. Конструкция и размеры
Дата добавления в базу:01.09.2013
Дата актуализации:01.01.2021
Дата введения:01.01.1975
Область применения:Стандарт распространяется на одинарные закрепляемые колодочные хомуты для крепления трубопроводов с наружными диаметрами от 14 до 36 мм и экранирующих шлангов, работающих при температуре не более 250 °С.
Утверждён:23.09.1974 Министерство (Ministry 087-16)
Заменяет собой:
  • Нормаль 375ОА
Нормативные ссылки:
ОСТ 1 11546-74ОСТ 1 11546-74ОСТ 1 11546-74