Скачать Типовой проект 407-3-661.03 Альбом 4. Архитектурно-строительные изделияДата актуализации: 01.01.2021
|
| Обозначение: | Типовой проект 407-3-661.03 |
| Обозначение англ: | 407-3-661.03 |
| Статус: | не определен законодательством |
| Название рус.: | Альбом 4. Архитектурно-строительные изделия |
| Дата добавления в базу: | 01.09.2013 |
| Дата актуализации: | 01.01.2021 |
| Дата введения: | 23.07.2003 |
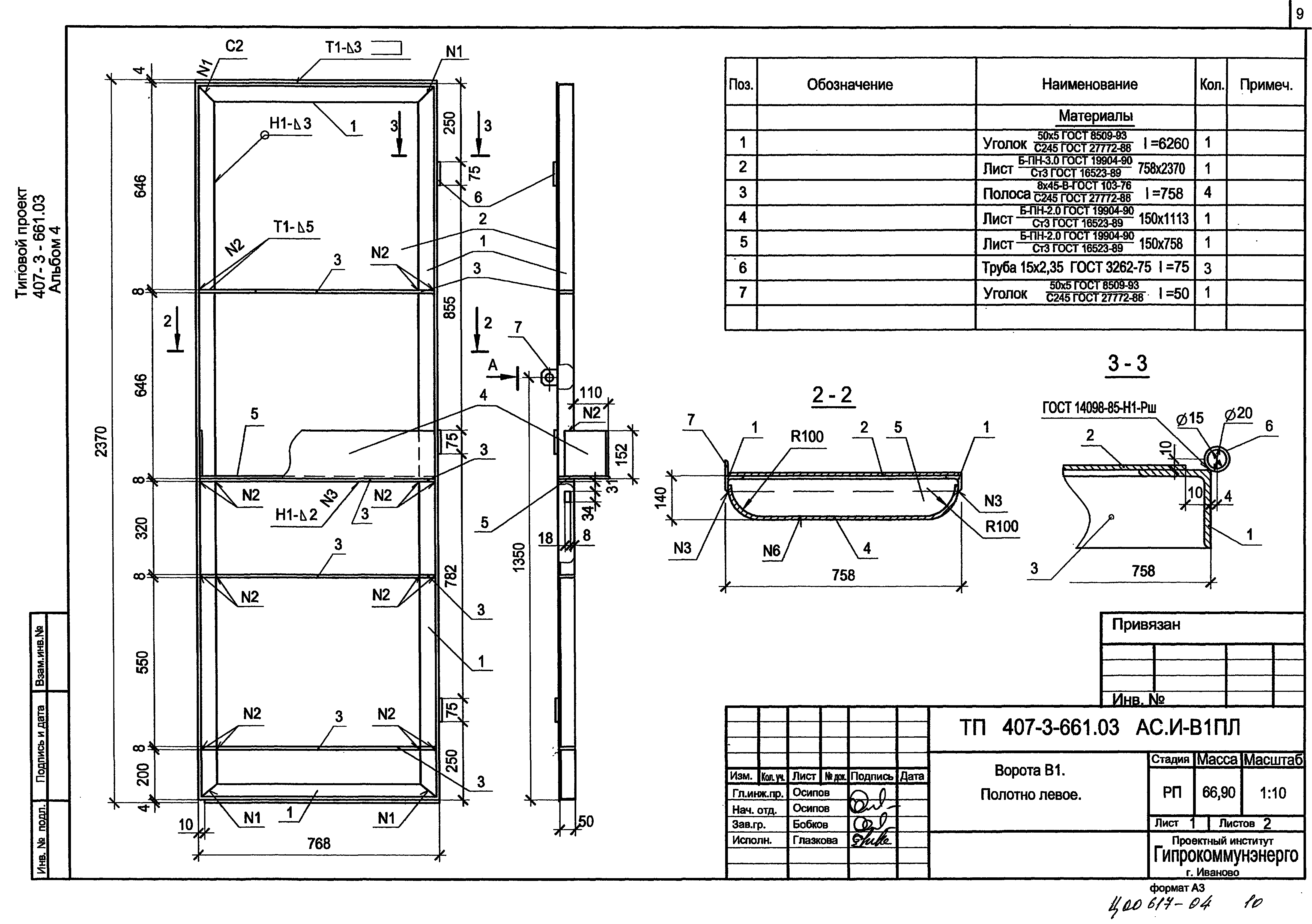
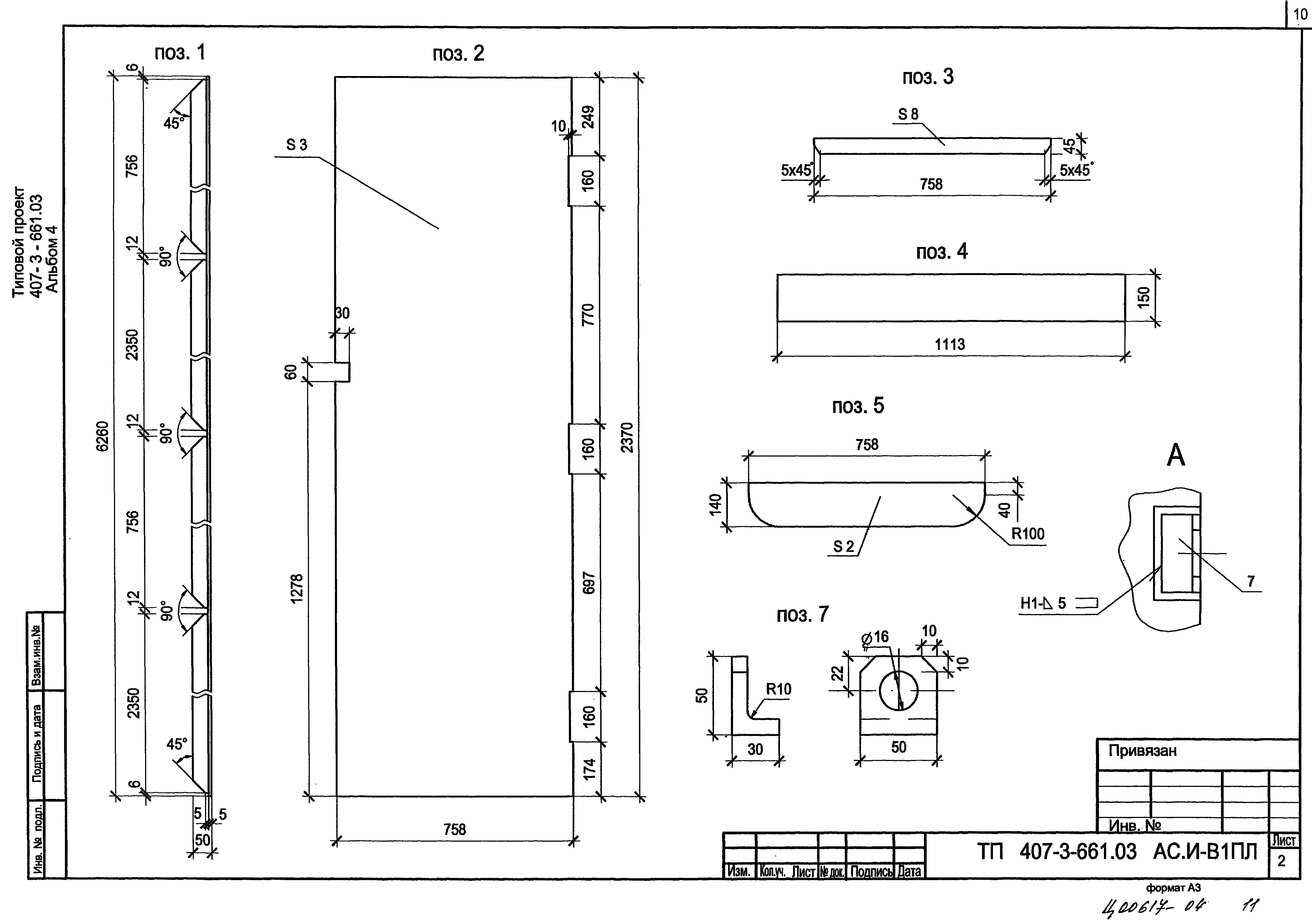
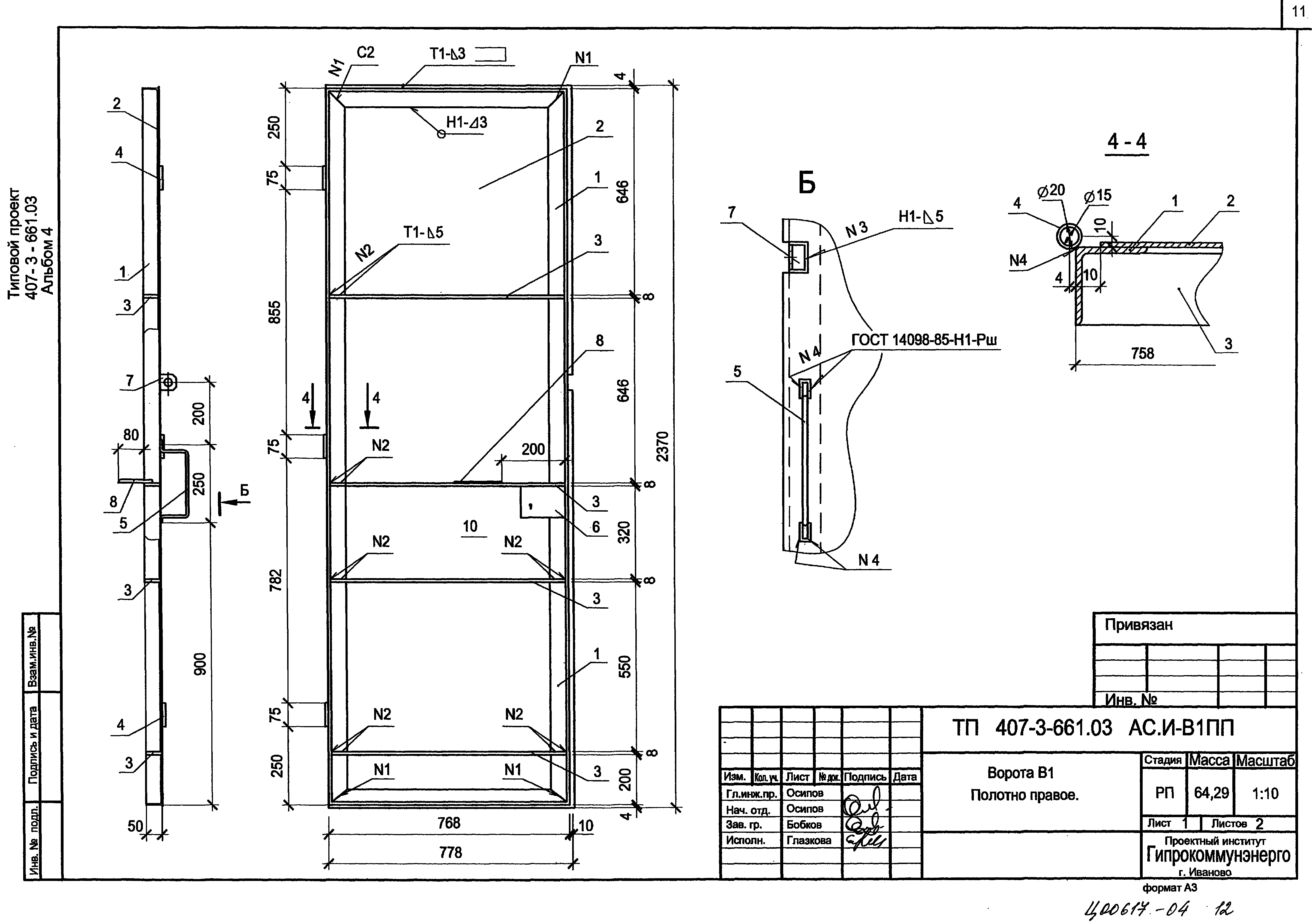
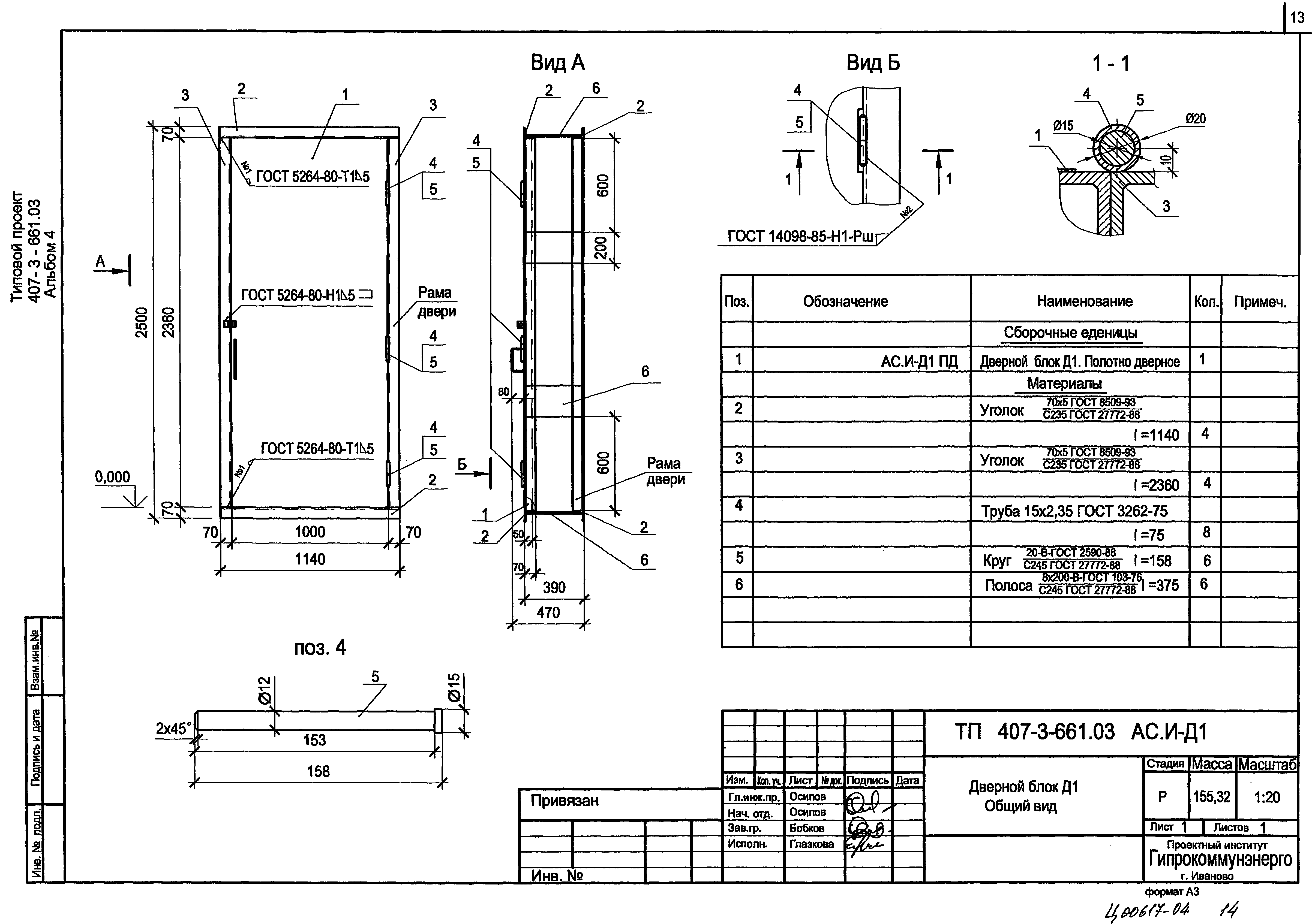
| Оглавление: | ТП 407-3-661.03 АС.И-00 Содержание альбома ТП 407-3-661.03 АС.И-ТУ Технические условия ТП 407-3-661.03 АС.И-МК1 Марка МК1 ТП 407-3-661.03 АС.И-МК2 Марка МК2 ТП 407-3-661.03 АС.И-МС1 Соединительное изделие МС1 ТП 407-3-661.03 АС.И-МС2 Соединительное изделие МС2 ТП 407-3-661.03 АС.И-МН1 Изделие закладное МН1 ТП 407-3-661.03 АС.И-МН2 Изделие закладное МН2 ТП 407-3-661.03 АС.И-ВЖ1 Вентиляционная жалюзийная решетка ВЖ1 ТП 407-3-661.03 АС.И-В1 Ворота В1. Общий вид ТП 407-3-661.03 АС.И-В1ПЛ Ворота В1. Полотно левое ТП 407-3-661.03 АС.И-В1ПП Ворота В1. Полотно правое ТП 407-3-661.03 АС.И-Д1 Дверной блок Д1. Общий вид ТП 407-3-661.03 АС.И-Д1ПД Дверной блок Д1. Полотно дверное |
| Разработан: | ОГУП ПИ Гипрокоммунэнерго |
| Утверждён: | 23.07.2003 ОАО ПО Элтехника (35) |















