Скачать Типовой проект 407-3-669.04 Альбом 5. Электросиловое оборудование. Электромонтажные конструкцииДата актуализации: 01.01.2021
|
| Обозначение: | Типовой проект 407-3-669.04 |
| Обозначение англ: | 407-3-669.04 |
| Статус: | не определен законодательством |
| Название рус.: | Альбом 5. Электросиловое оборудование. Электромонтажные конструкции |
| Дата добавления в базу: | 01.09.2013 |
| Дата актуализации: | 01.01.2021 |
| Дата введения: | 17.03.2005 |
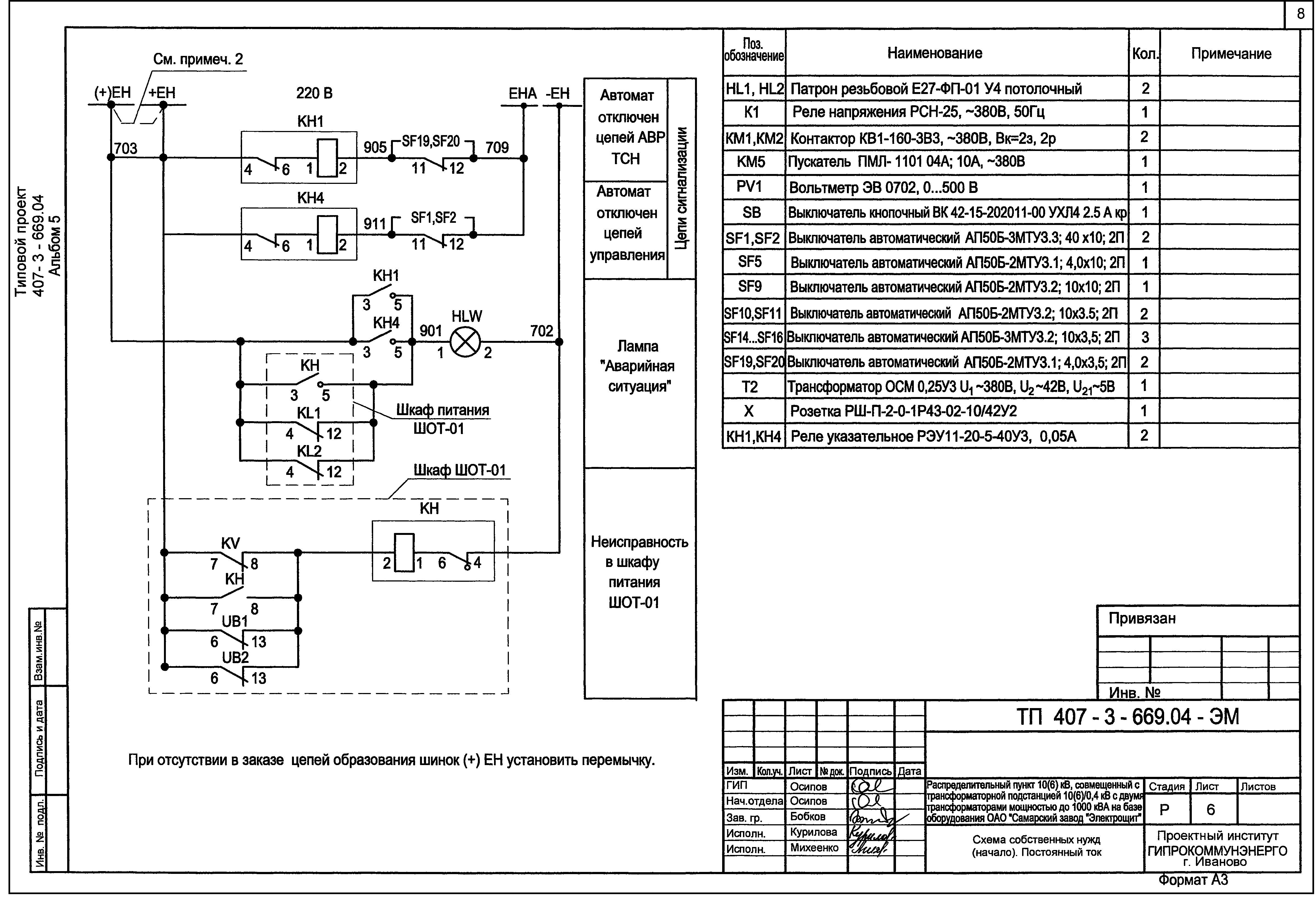
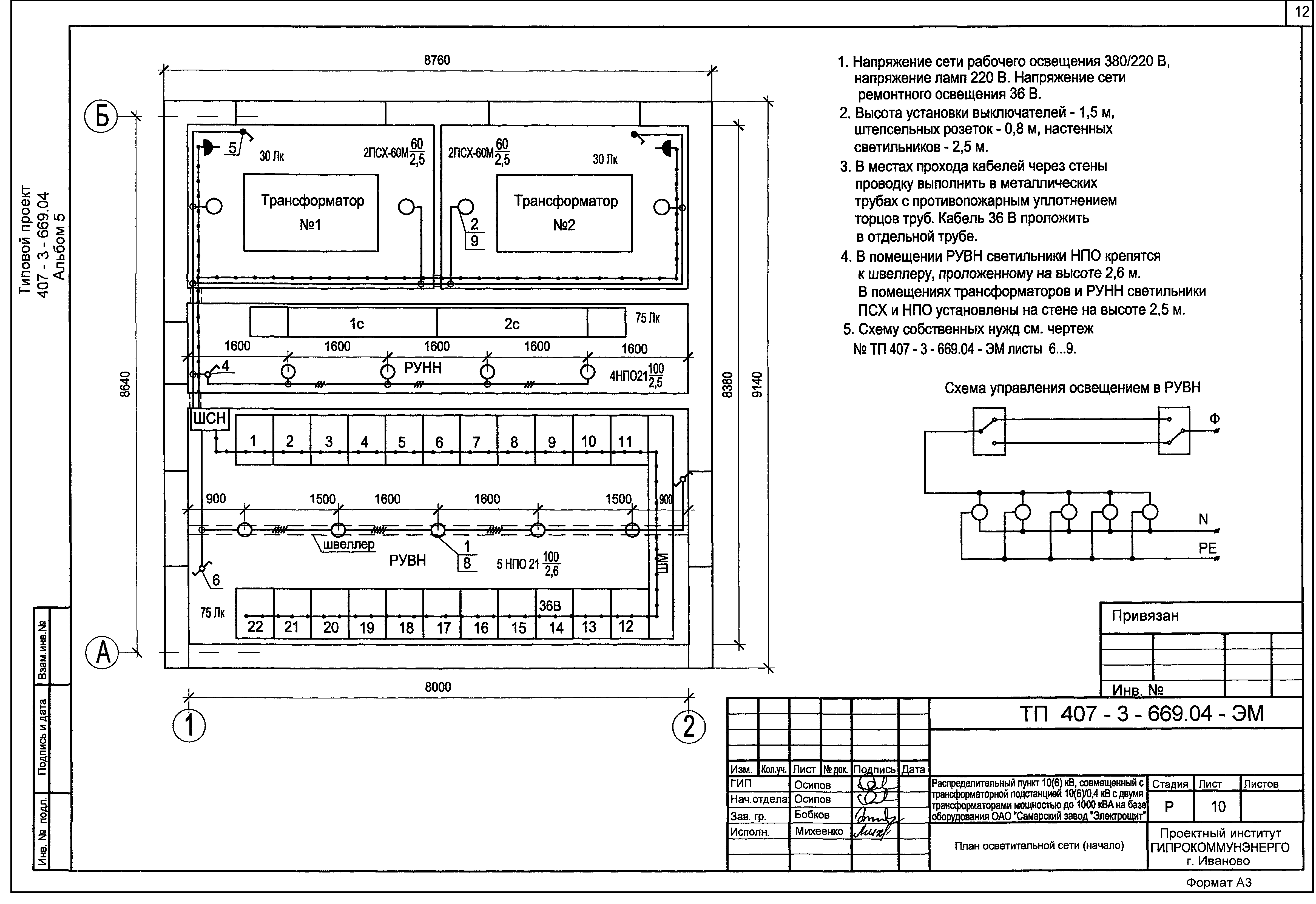
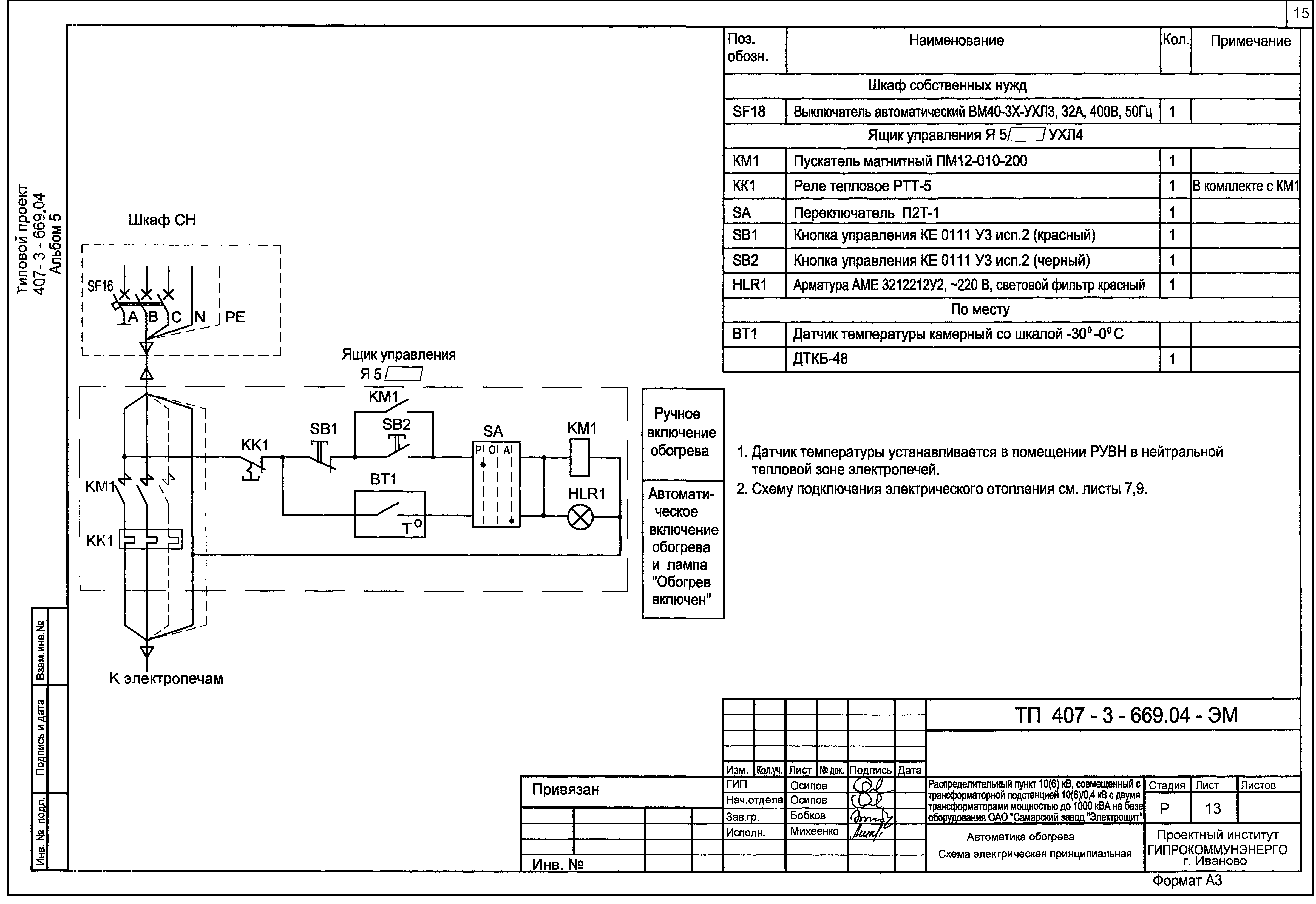
| Оглавление: | ТП 407-3-669.04-ЭМ.СА Содержание альбома - СА ТП 407-3-669.04-ЭМ Электросиловое оборудование - ЭМ ТП 407-3-669.04-ЭМ Общие данные ТП 407-3-669.04-ЭМ План-схема устройства трансформаторных вводов ТП 407-3-669.04-ЭМ Оборудование камер трансформаторов и трансформаторных вводов ТП 407-3-669.04-ЭМ Узлы силовых трансформаторов (начало) ТП 407-3-669.04-ЭМ Узлы силовых трансформаторов (окончание) ТП 407-3-669.04-ЭМ Схема собственных нужд (начало). Постоянный ток ТП 407-3-669.04-ЭМ Схема собственных нужд (окончание). Постоянный ток ТП 407-3-669.04-ЭМ Схема собственных нужд (начало). Переменный ток ТП 407-3-669.04-ЭМ Схема собственных нужд (окончание). Переменный ток ТП 407-3-669.04-ЭМ План осветительной сети (начало) ТП 407-3-669.04-ЭМ План осветительной сети (окончание) ТП 407-3-669.04-ЭМ План силовой сети ТП 407-3-669.04-ЭМ Автоматика обогрева. Схема электрическая принципиальная ТП 407-3-669.04-ЭМ Заземление и молниезащита ТП 407-3-669.04-ЭМ Расстановка кабельных конструкций ТП 407-3-669.04-ЭМК Электромонтажные конструкции - ЭМК ТП 407-3-669.04-ЭМК Детали оборудования трансформаторных вводов ТП 407-3-669.04-ЭМК Барьер в камере трансформатора ТП 407-3-669.04-ЭМК Подставка изолирующая ТП 407-3-669.04-ЭМК Ведомость изделий МЭЗ |
| Разработан: | ОГУП ПИ Гипрокоммунэнерго |
| Утверждён: | 17.03.2005 ОАО Самарский завод Электрощит (88-Пр) |





















