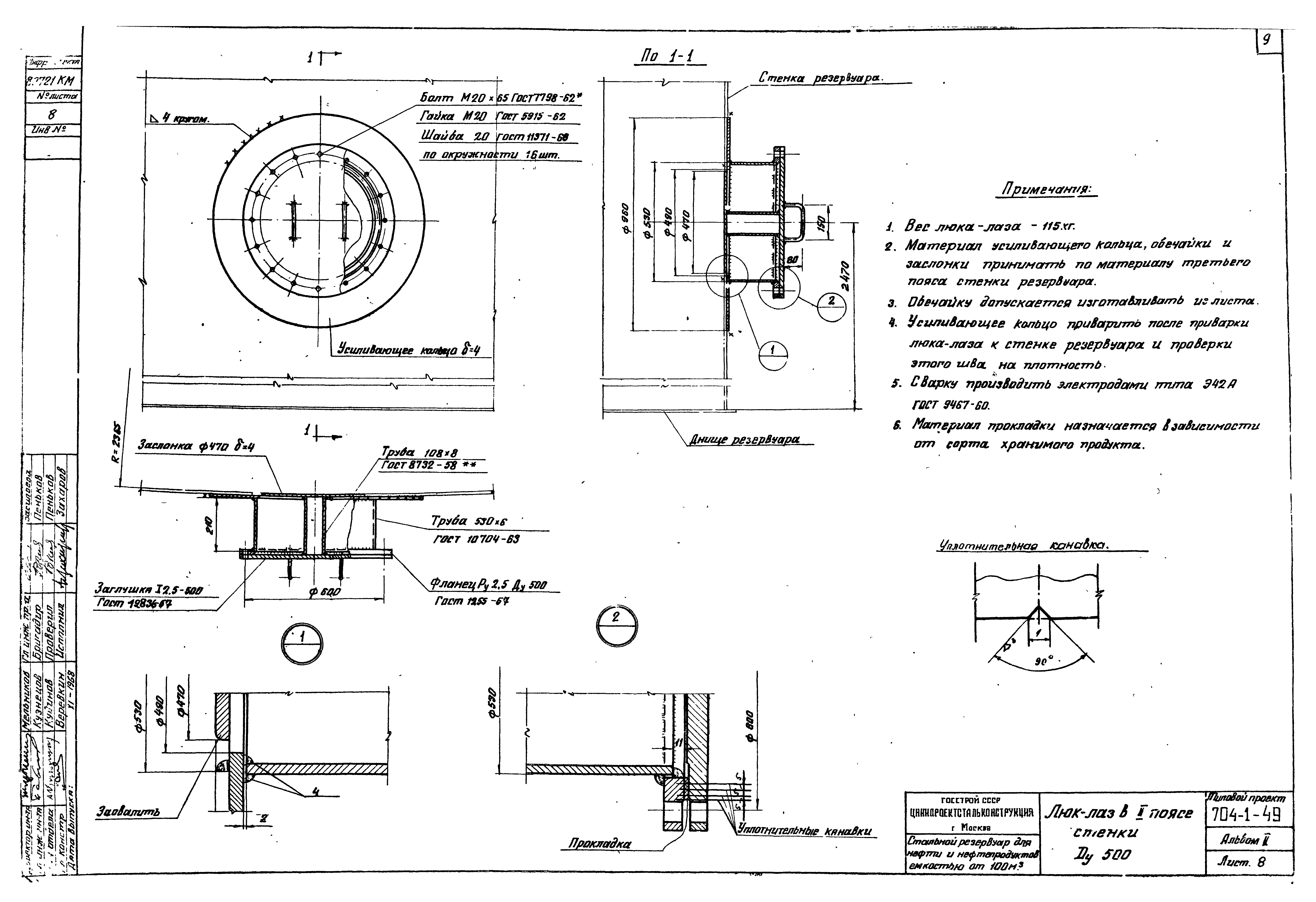
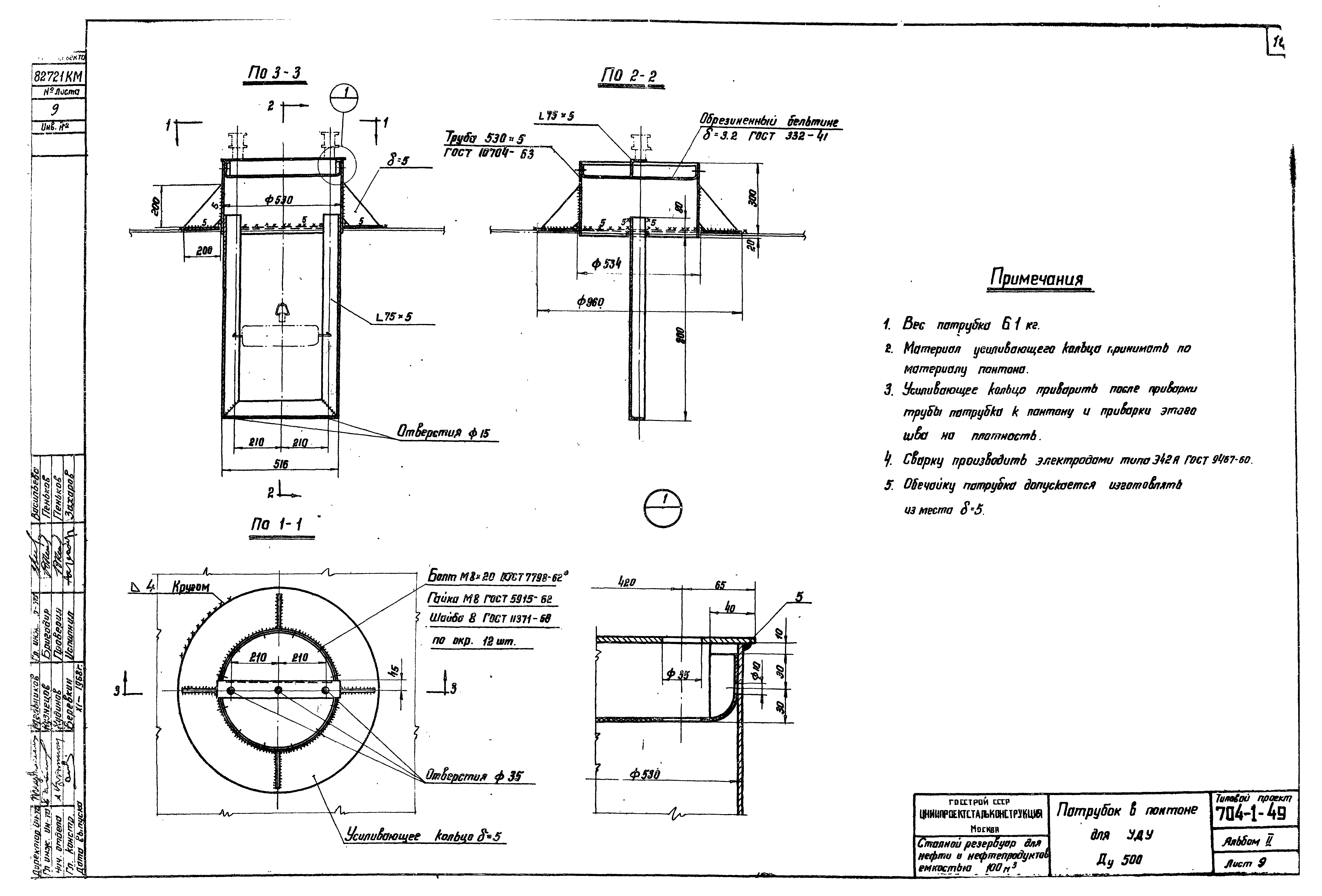
Скачать Типовой проект 704-1-49 Альбом II. Рабочие чертежи КМ понтонаДата актуализации: 01.01.2021
|
| Обозначение: | Типовой проект 704-1-49 |
| Обозначение англ: | 704-1-49 |
| Статус: | не действует |
| Название рус.: | Альбом II. Рабочие чертежи КМ понтона |
| Дата добавления в базу: | 01.09.2013 |
| Дата актуализации: | 01.01.2021 |
| Разработан: | ЦНИИпроектстальконструкция |
| Утверждён: | 29.12.1969 ЦНИИпроектстальконструкция (TsNIIprojectstalkonstruktsiya 221) |















