Скачать Типовой проект 503-3-10.85 Альбом I. Пояснительная записка. Технологические чертежи. Архитектурно-строительные чертежи. Чертежи санитарно-технических систем и устройствДата актуализации: 01.01.2021
|
| Обозначение: | Типовой проект 503-3-10.85 |
| Обозначение англ: | 503-3-10.85 |
| Статус: | не определен законодательством |
| Название рус.: | Альбом I. Пояснительная записка. Технологические чертежи. Архитектурно-строительные чертежи. Чертежи санитарно-технических систем и устройств |
| Дата добавления в базу: | 01.09.2013 |
| Дата актуализации: | 01.01.2021 |
| Дата введения: | 16.05.1984 |
| Дата окончания срока действия: | 30.06.2003 |
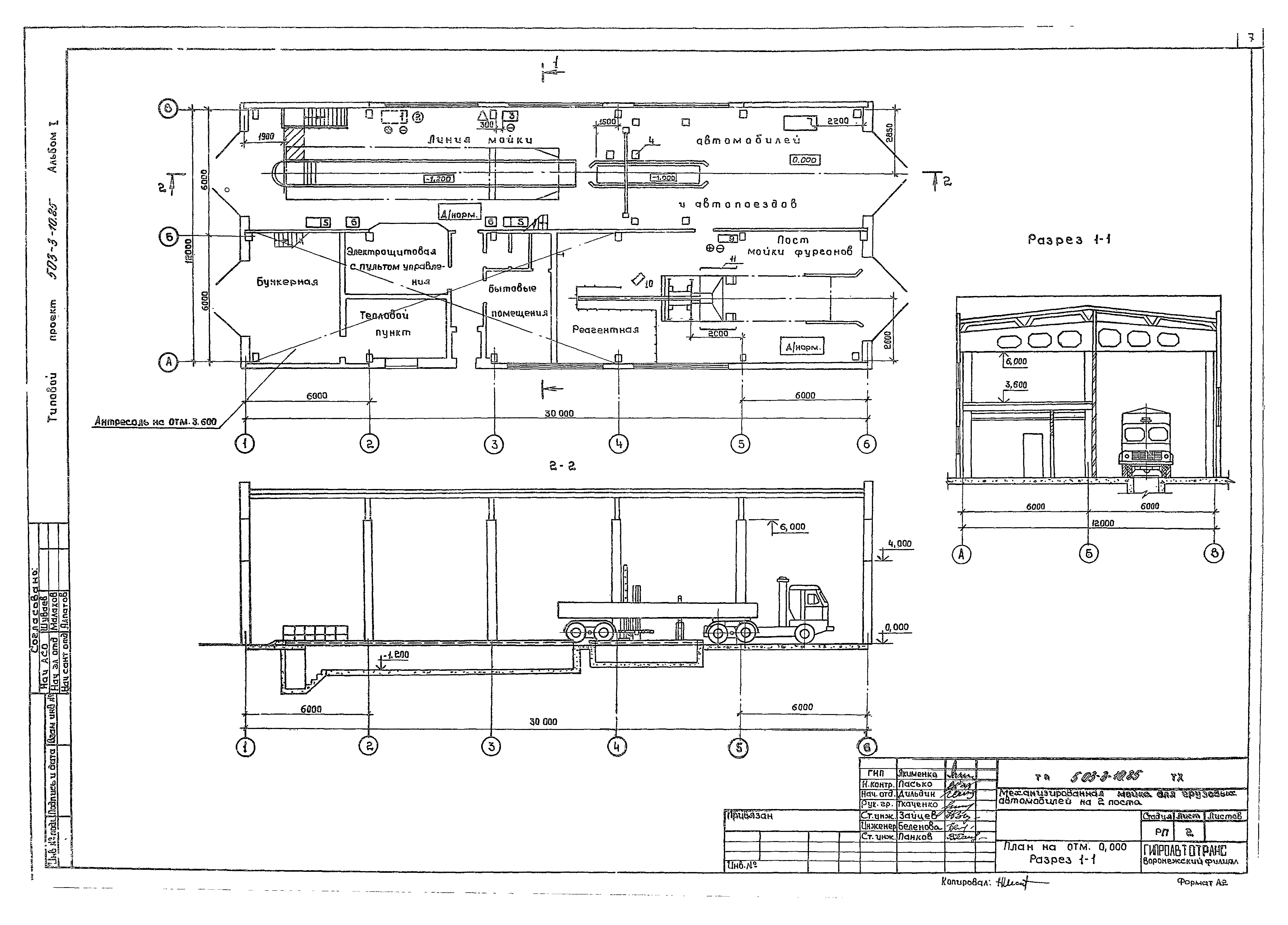
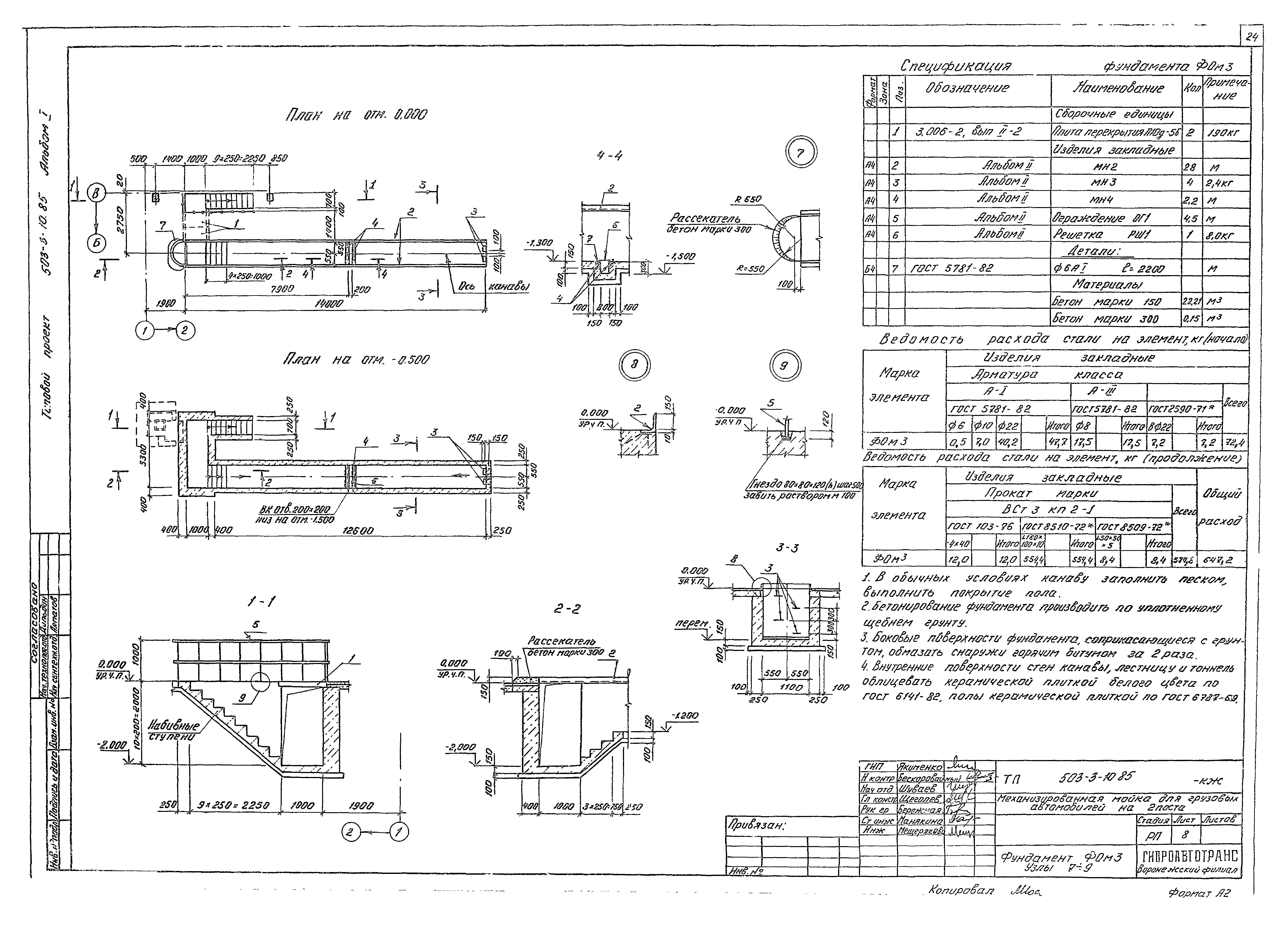
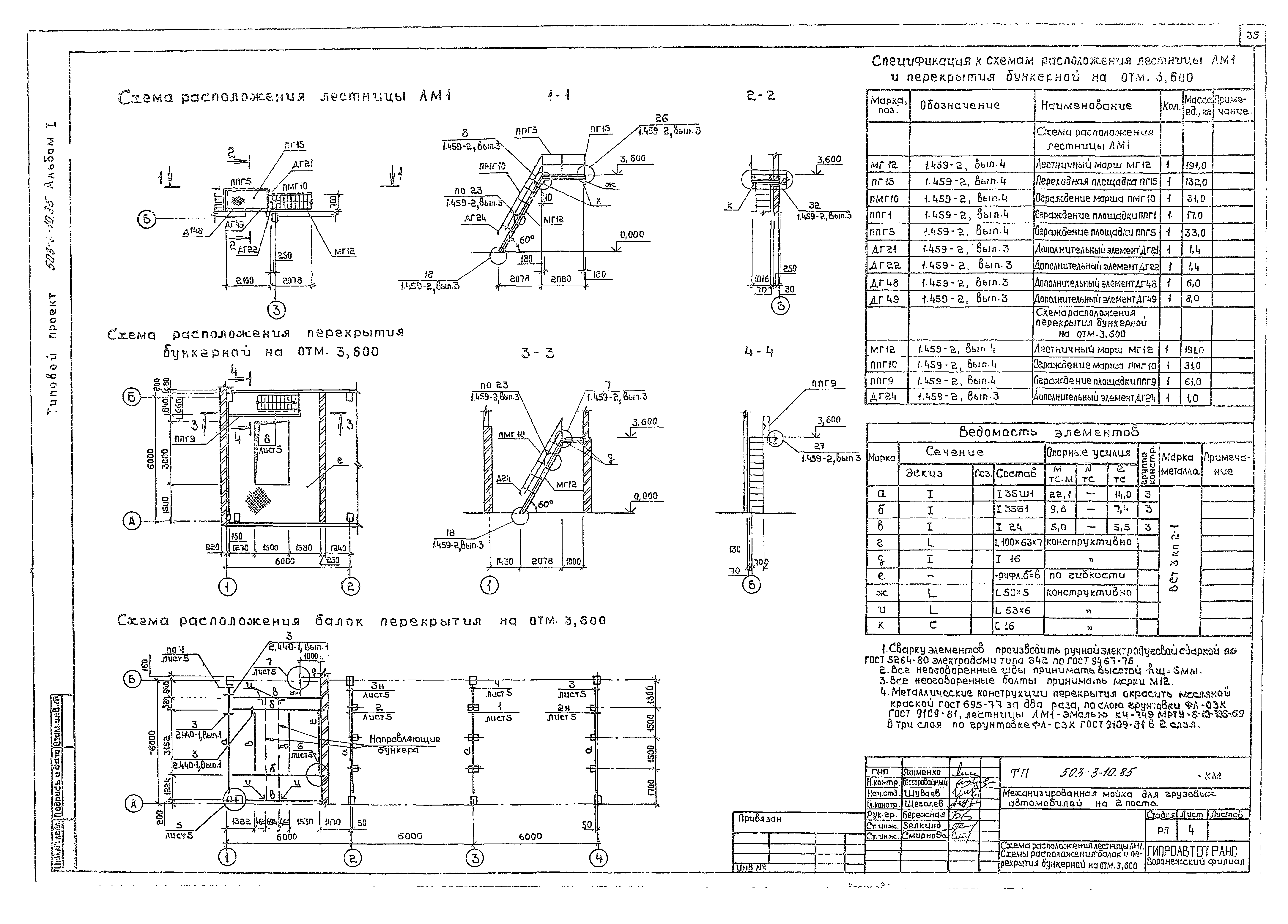
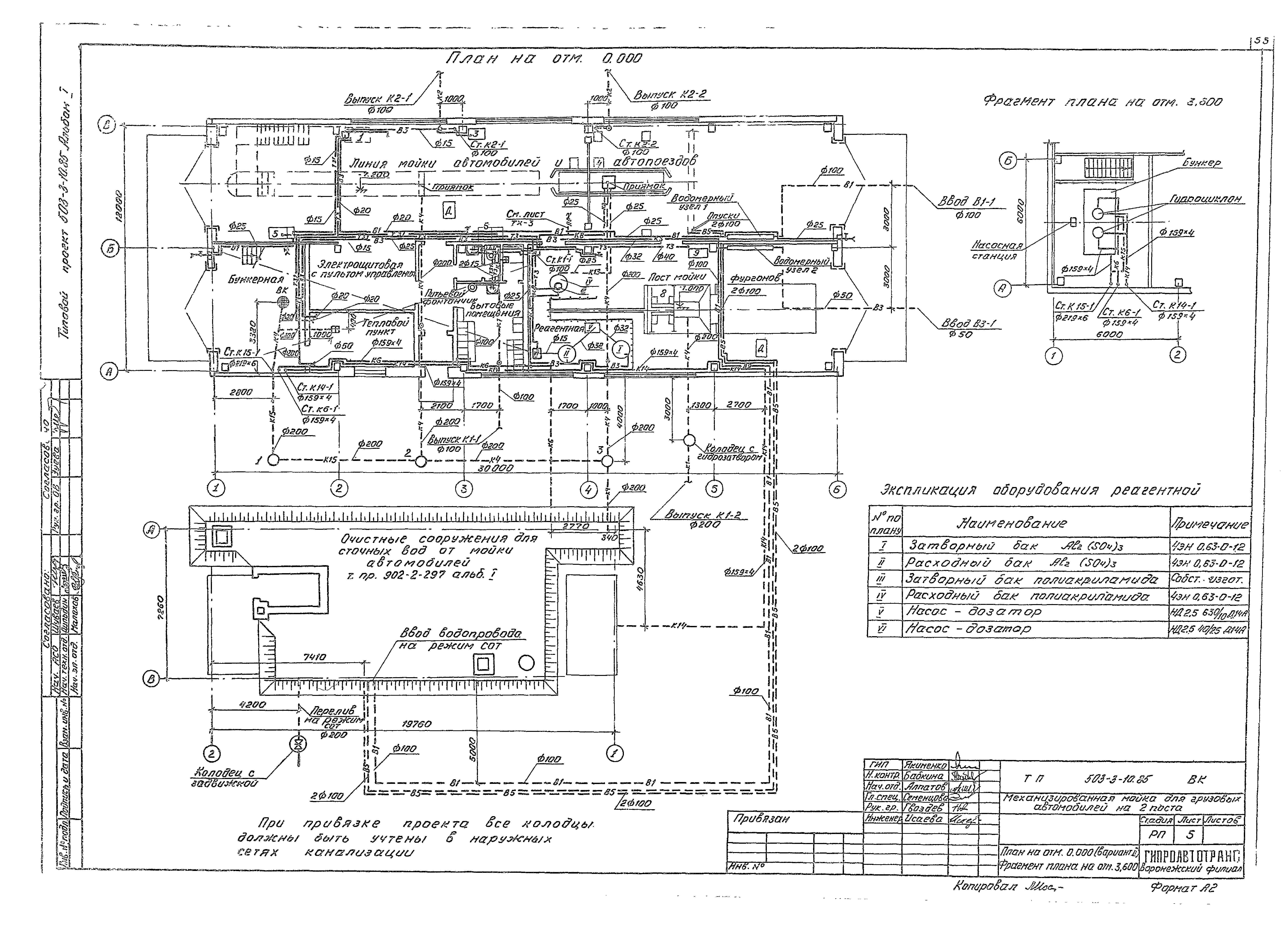
| Оглавление: | Содержание альбома Пояснительная записка Технология производства ТХ Общие данные План на отм. 0.000. Разрез 1-1 План и схема разводки трубопроводов сжатого воздуха. План и схема разводки трубопроводов ИТМ ГО Архитектурные решения АР Общие данные План на отм. 0.000 План на отм. 3.600. Узлы 1, 2 Разрезы 1-1, 2-2 Фасады. Схема расположения элементов заполнения оконных проемов План отверстий в стенах и перегородках. Узлы 3 - 6 Планы полов на отм. 0.000 и 3.600. План кровли Конструкции железобетонные Общие данные Схема расположения фундаментов и фундаментных балок. Узел 1 Узлы 2 - 6 Фундаменты Фм1 - Фм4 Схема нагрузок, спецификация Схема расположения элементов подземного хозяйства. Фундаменты ФОм1, ФОм2 Фундамент ФОм3. Узлы 7 - 9 Фундамент ФОм4 Фундамент ФОм5. Узел 10 Схема расположения колонн, балок, стоек фахверка. Узлы 11, 12 Схема расположения плит покрытия и перекрытия Спецификация к схеме расположения плит покрытия Схемы расположения стеновых панелей по осям А, В, 1, 6 Схема расположения элементов крепления и панелей перегородок по оси Б Конструкции металлические КМ Общие данные Схема 1. Ведомость металлоконструкций по видам профилей Схема расположения витража В1 Схема расположения лестницы ЛМ1. Схемы расположения балок и перекрытия бункерной на отм. 3.600 Узлы 1 - 8 Отопление и вентиляция Общие данные План на отм. 0.000. Разрез 1-1 Схемы систем П1 - П4, У1 - У6, В6, ВЕ1 - ВЕ3 Схема системы отопления. Схема системы теплоснабжения установок П1 - П4, У1 - У6 Узлы 1 - 7 Тепловой пункт. План. Разрез 1-1, 2-2, 3-3, 4-4 Тепловой пункт. Принципиальные схемы Установки систем П1 - П4, В6. План на отм. 3.600 Установки систем П1 - П4, В6. Разрез 1-1, 2-2 Спецификация отопительно-вентиляционных установок Эскизные чертежи общих видов нетиповых конструкций систем отопления и вентиляции Переход 1, 2 Переход 3, 4 Водопровод и канализация ВК Общие данные План на отм. 0.000 (вариант I) План на отм. 0.000 (вариант II). Фрагмент плана на отм. 3.600 Схемы систем В1, Т3, Т31 (вариант I) Схемы систем В1, В3, Т3, Т31 (вариант II) Схемы систем К1, К2, К6, К4. План кровли Схемы систем В5, К14, К15, К8, К13 |
| Разработан: | Гипроавтотранс |
| Утверждён: | 16.05.1984 Минавтотранс РСФСР (Russian Federation Minavtotrans 32) |



























































