Скачать Типовой проект 503-3-10.85 Альбом III. Электрооборудование. Автоматизация производства, устройства связи и сигнализацияДата актуализации: 01.01.2021
|
| Обозначение: | Типовой проект 503-3-10.85 |
| Обозначение англ: | 503-3-10.85 |
| Статус: | не определен законодательством |
| Название рус.: | Альбом III. Электрооборудование. Автоматизация производства, устройства связи и сигнализация |
| Дата добавления в базу: | 01.09.2013 |
| Дата актуализации: | 01.01.2021 |
| Дата введения: | 16.05.1984 |
| Дата окончания срока действия: | 30.06.2003 |
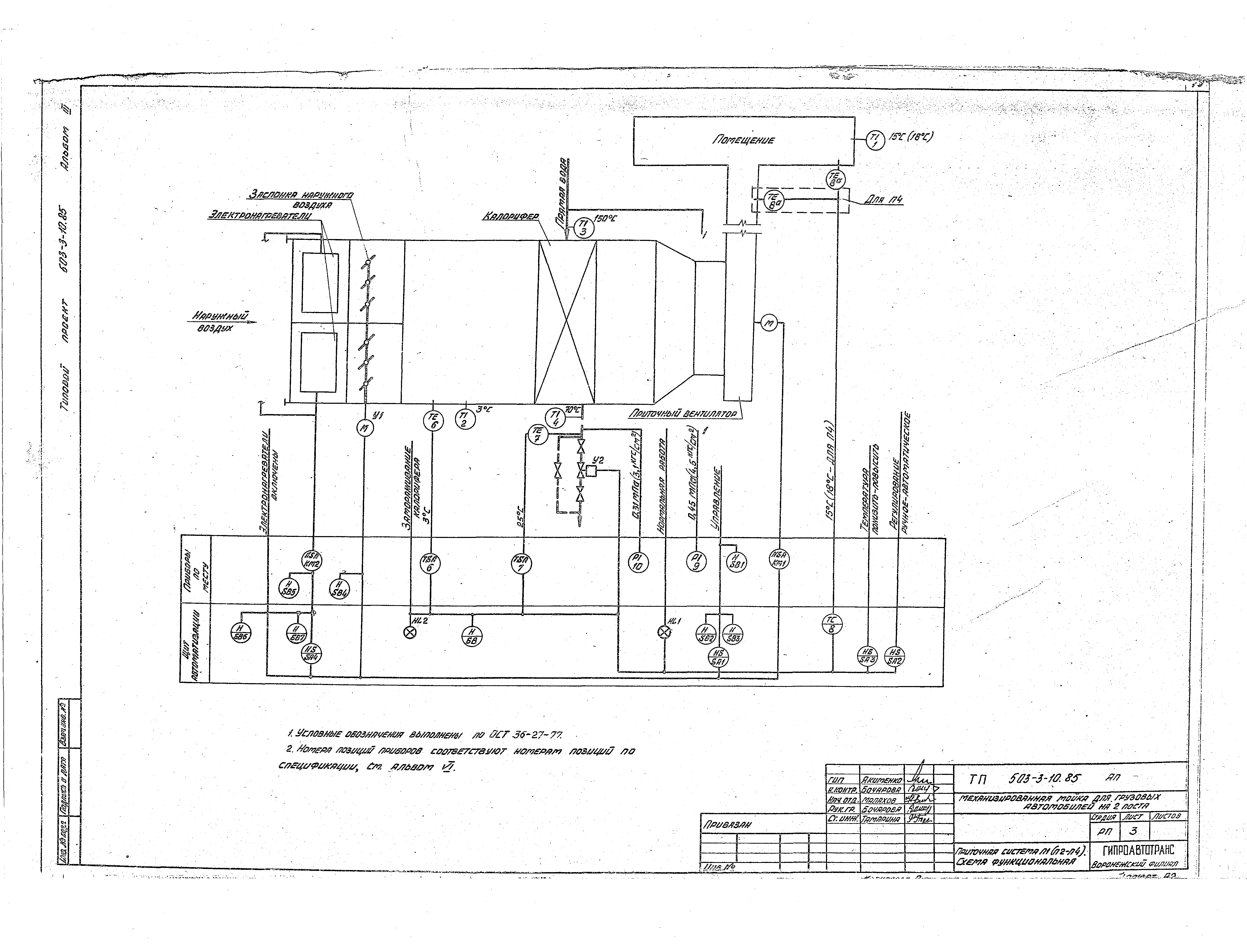
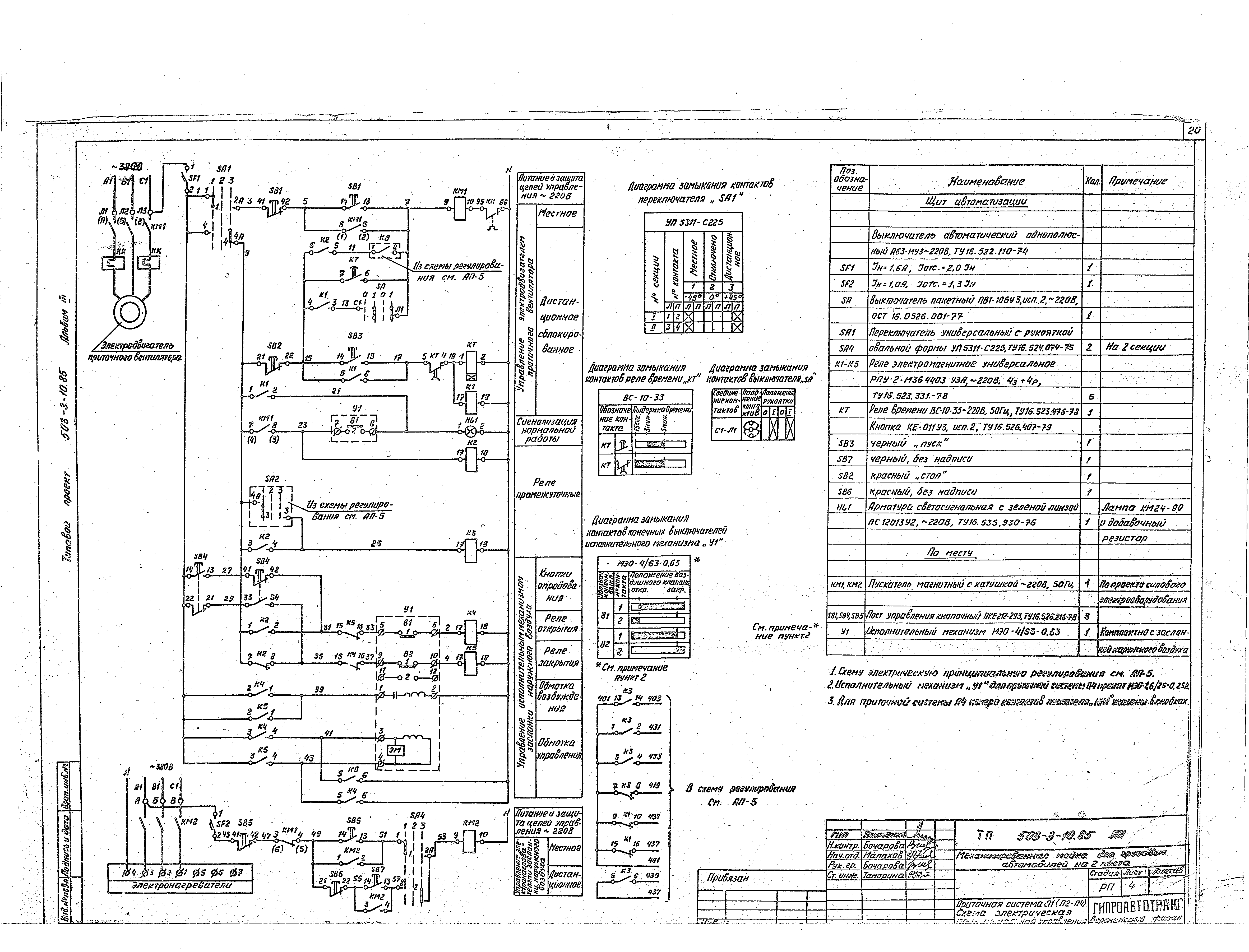
| Оглавление: | Содержание альбома Силовое электрооборудование ЭМ Общие данные Схема электрическая принципиальная 380/220 В шкафа 1ШР Схема электрическая принципиальная 380/220 В шкафов 2 ШР и 3ШР Схемы электрические принципиальные 380/220 В шкафа 4ШР и управления вентилятором поз. В1 Ворота поз. 1. Схема электрическая принципиальная и внешних проводок Планы раскладки кабелей на отм. 0.000 и 3.600 Планы раскладки лотков и труб на отм. 0.000 и 3.600 Кабельный журнал Ведомость объемов электромонтажных работ. Ведомость изделий мастерских электромонтажных заготовок Электроосвещение ЭО Общие данные Комплектные узлы. Ведомость объемов электромонтажных работ. Схема питающей сети Планы на отм. 0.000 и 3.600 Автоматизация производства АП Общие данные Приточная система П1 (П2 - П4). Схема функциональная Приточная система П1 (П2 - П4). Схема электрическая принципиальная управления Приточная система П1 (П2 - П4). Схема электрическая принципиальная регулирования Приточная система П1 (П2 - П4). Схема внешних проводок Воздушно-тепловые завесы У1, У2 (У3, У4, У5, У6). Схемы функциональная, электрическая принципиальная управления Воздушно-тепловые завесы У1, У2 (У3, У4, У5, У6). Схема внешних проводок Тепловой пункт (вариант I). Горячее водоснабжение. Схемы теплового контроля, внешних проводок Тепловой пункт (вариант II). Горячее водоснабжение. Схемы теплового контроля, внешних проводок План расположения Связь и сигнализация СС Общие данные. План сетей комплексной и распорядительно-поисковой связи |
| Разработан: | Гипроавтотранс |
| Утверждён: | 16.05.1984 Минавтотранс РСФСР (Russian Federation Minavtotrans 32) |




























