Скачать Типовой проект 901-5-47.90 Альбом 3. Конструкции металлическиеДата актуализации: 01.01.2021
|
| Обозначение: | Типовой проект 901-5-47.90 |
| Обозначение англ: | 901-5-47.90 |
| Статус: | не определен законодательством |
| Название рус.: | Альбом 3. Конструкции металлические |
| Дата добавления в базу: | 01.09.2013 |
| Дата актуализации: | 01.01.2021 |
| Дата введения: | 01.01.1991 |
| Дата окончания срока действия: | 30.06.2003 |
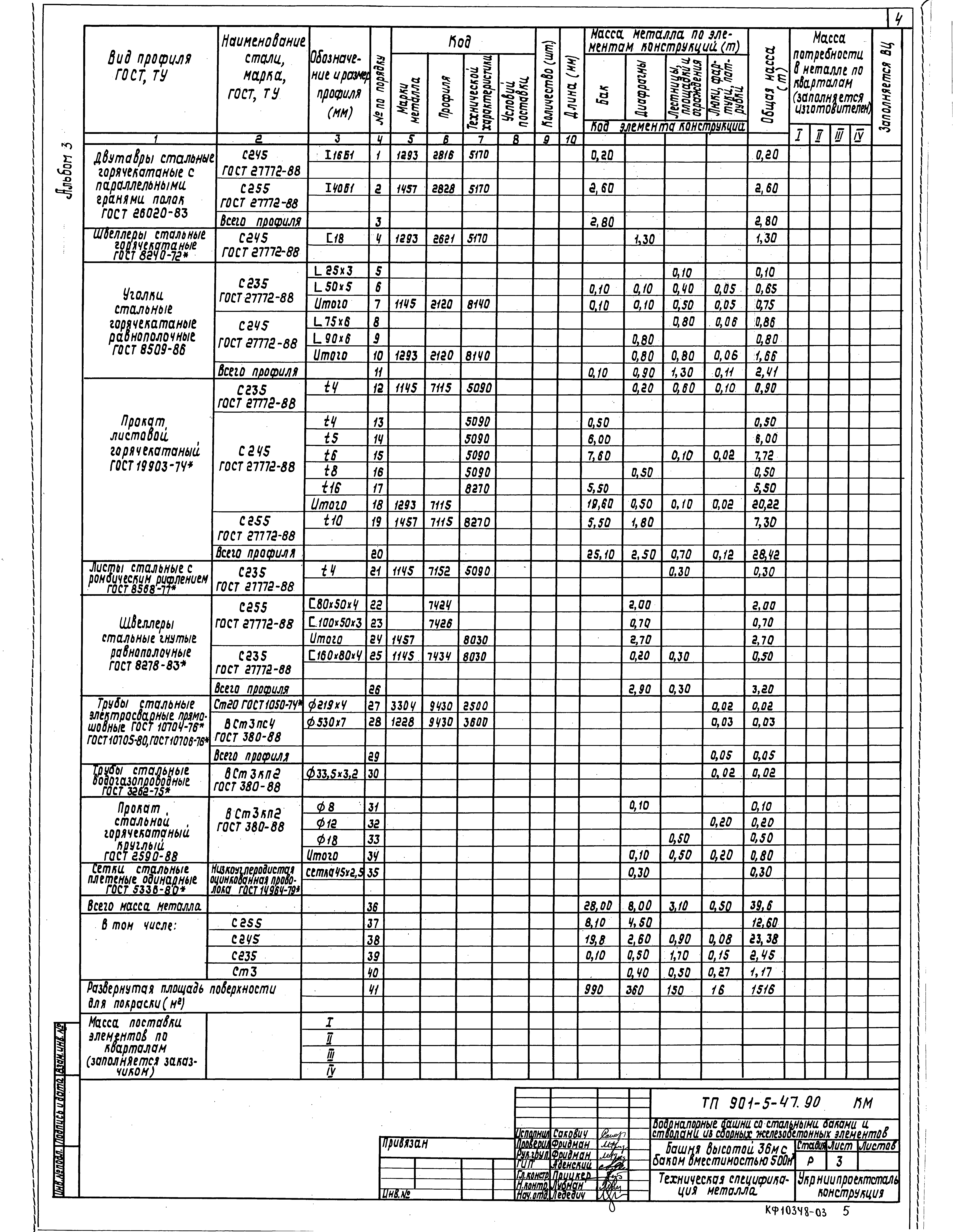
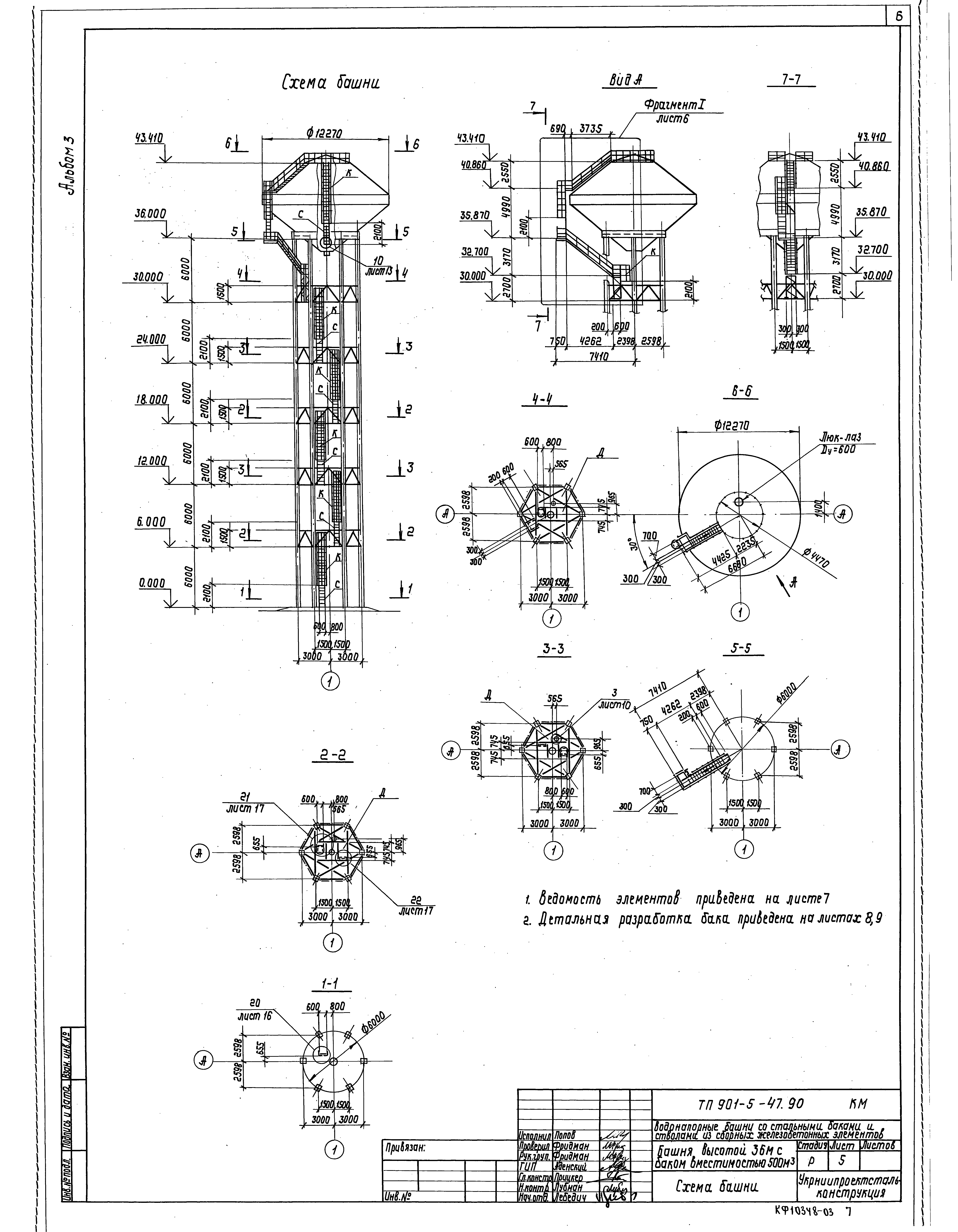
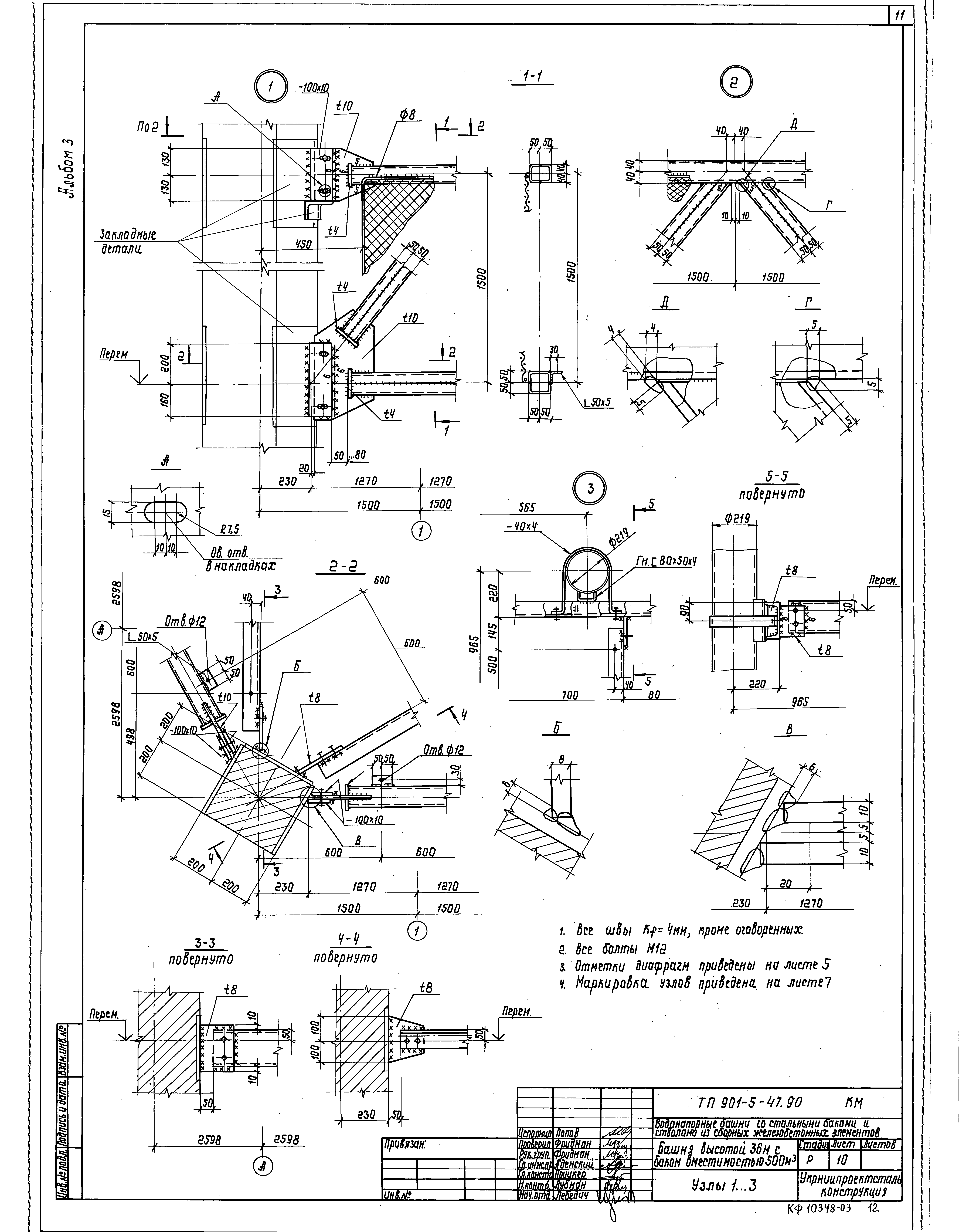
| Оглавление: | Титульный лист Общие данные (начало) Общие данные (окончание) Техническая спецификация Ведомость металлоконструкций по видам профилей Схема башни Фрагмент 1. Лестницы Л1; Л2 Диафрагма Д. Стойка Т1 Общий вид бака Схема расположения элементов оболочки бака Узла 1…3 Узла 4, 5 Узла 6…8 Узла 9, 10 Шпиль на крышке бака. Узлы 11…15 Узлы 16, 17 Узлы 18…20 Узлы 21, 22 Схема расположения льдоудержателей. Узлы 23, 24 |
| Разработан: | Укрниипроектстальконструкция |
| Утверждён: | 25.07.1990 Госстрой СССР (Государственный комитет Совета Министров СССР по делам строительства) (USSR Gosstroy 10) |



















