Скачать Типовой проект 901-5-48.90 Альбом 1. Пояснительная записка. Наружное водоснабжение. Автоматизация наружного водоснабжения. ЭлектрооборудованиеДата актуализации: 01.01.2021
|
| Обозначение: | Типовой проект 901-5-48.90 |
| Обозначение англ: | 901-5-48.90 |
| Статус: | не определен законодательством |
| Название рус.: | Альбом 1. Пояснительная записка. Наружное водоснабжение. Автоматизация наружного водоснабжения. Электрооборудование |
| Дата добавления в базу: | 01.09.2013 |
| Дата актуализации: | 01.01.2021 |
| Дата введения: | 01.01.1991 |
| Дата окончания срока действия: | 30.06.2003 |
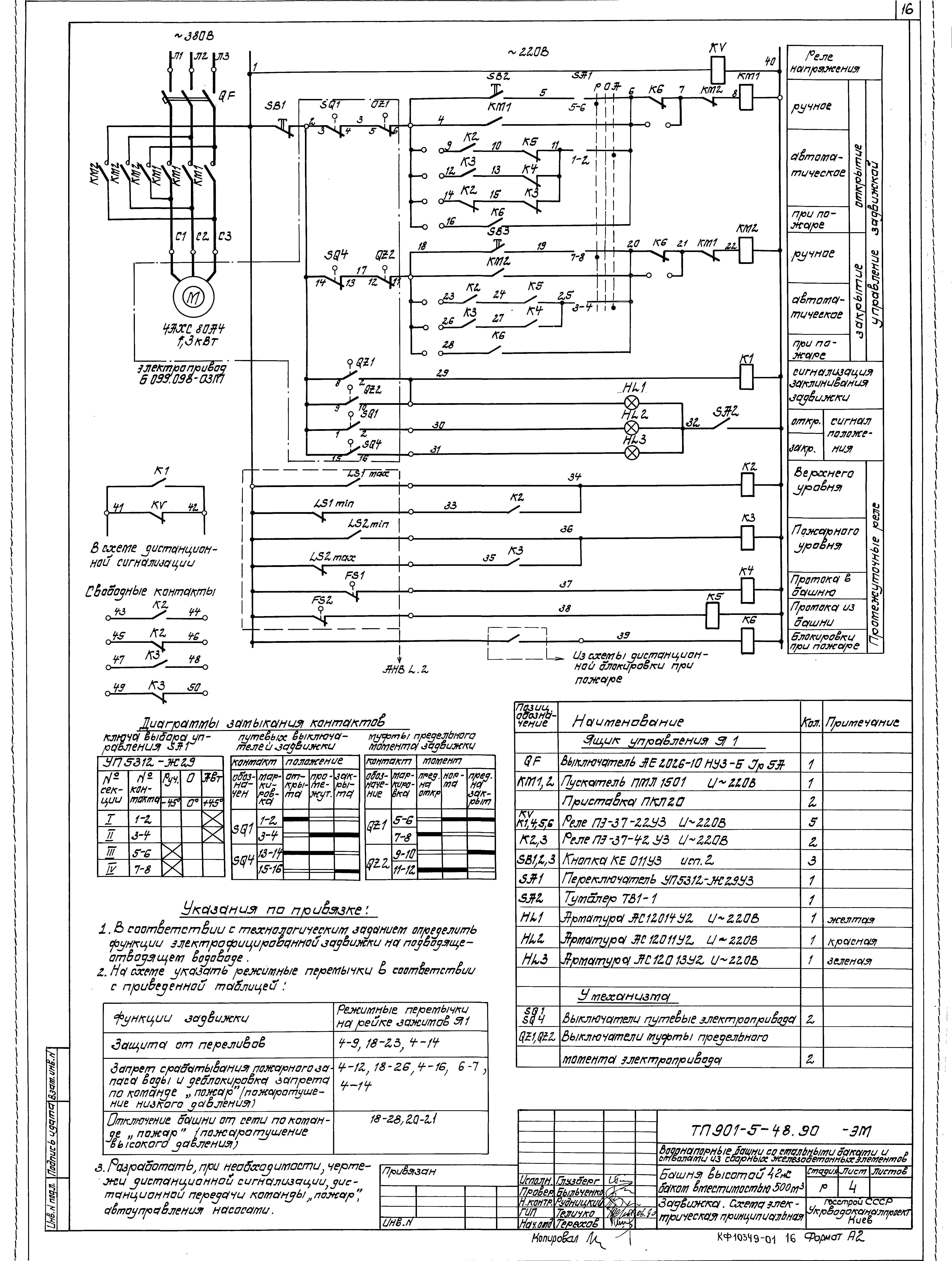
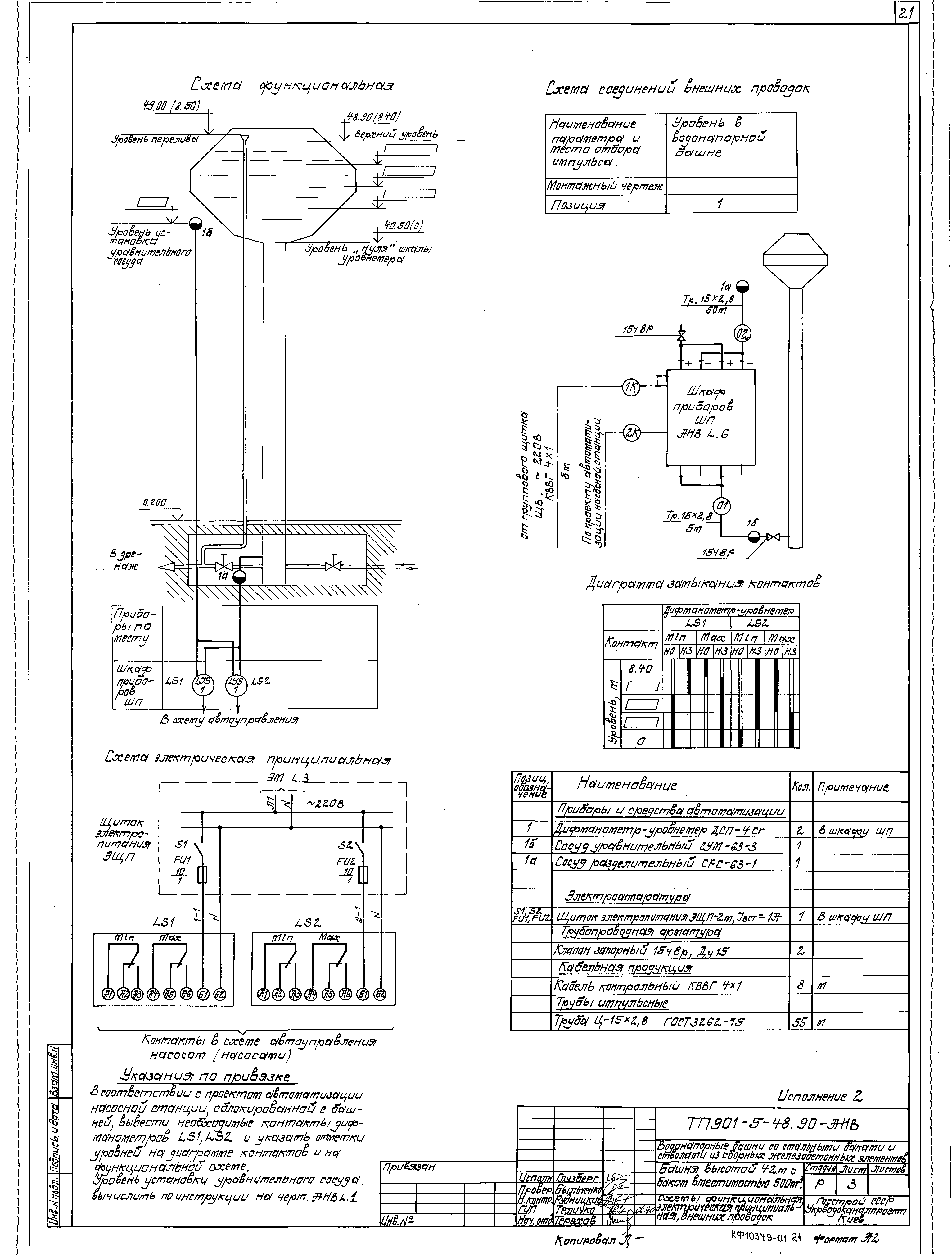
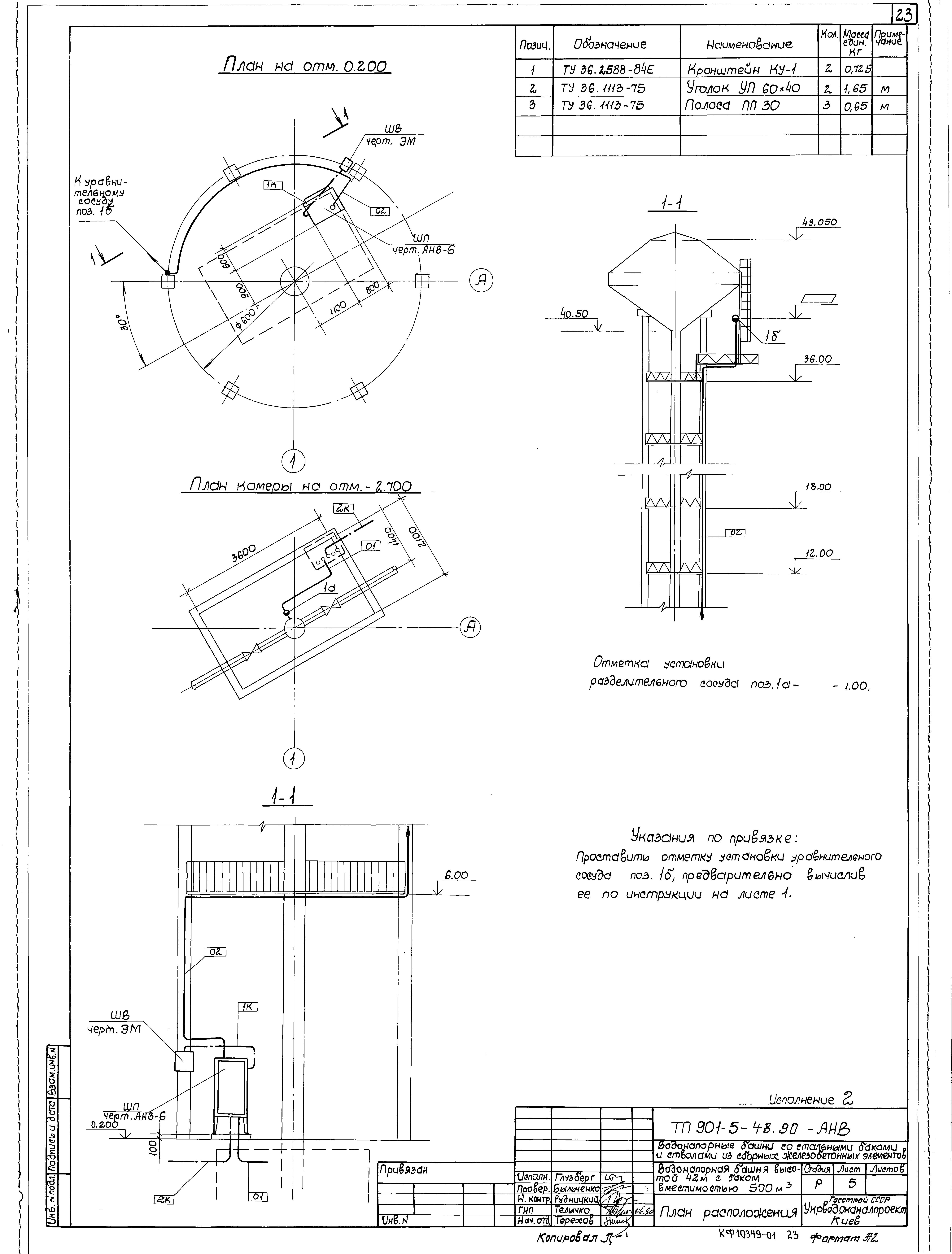
| Оглавление: | Титульный лист Содержание альбома Пояснительная записка Общие данные Планы, разрезы Монтажная и аксонометрическая схемы, детали выпусков Опорное колено Клапан-захлопка d200 Общие данные Схема принципиальная 380/220 В. План расположения электрооборудования и проводок. Исполнение 1 Схема принципиальная 380/220 В. План расположения электрооборудования и проводок. Исполнение 2 Задвижка. Схема электрическая принципиальная. Исполнение 1 Ящик управления Я1. Чертеж общего вида Ящик управления Я1. Таблица технических данных аппаратов Ящик управления Я1. Таблица перечня надписей Ящик управления Я1. Схема электрическая соединений Общие данные Схемы функциональная, электрическая, принципиальная, внешних проводок. Исполнение 1 Схемы функциональная, электрическая, принципиальная, внешних проводок. Исполнение 2 План расположения. Исполнение 1 План расположения. Исполнение 2 Шкаф приборов ШП. Задание на изготовление |
| Разработан: | Укрводоканалпроект |
| Утверждён: | 25.07.1990 Госстрой СССР (Государственный комитет Совета Министров СССР по делам строительства) (USSR Gosstroy 10) |























