Скачать Типовой проект 901-5-48.90 Альбом 2. Архитектурно-строительные решенияДата актуализации: 01.01.2021
|
| Обозначение: | Типовой проект 901-5-48.90 |
| Обозначение англ: | 901-5-48.90 |
| Статус: | не определен законодательством |
| Название рус.: | Альбом 2. Архитектурно-строительные решения |
| Дата добавления в базу: | 01.09.2013 |
| Дата актуализации: | 01.01.2021 |
| Дата введения: | 01.01.1991 |
| Дата окончания срока действия: | 30.06.2003 |
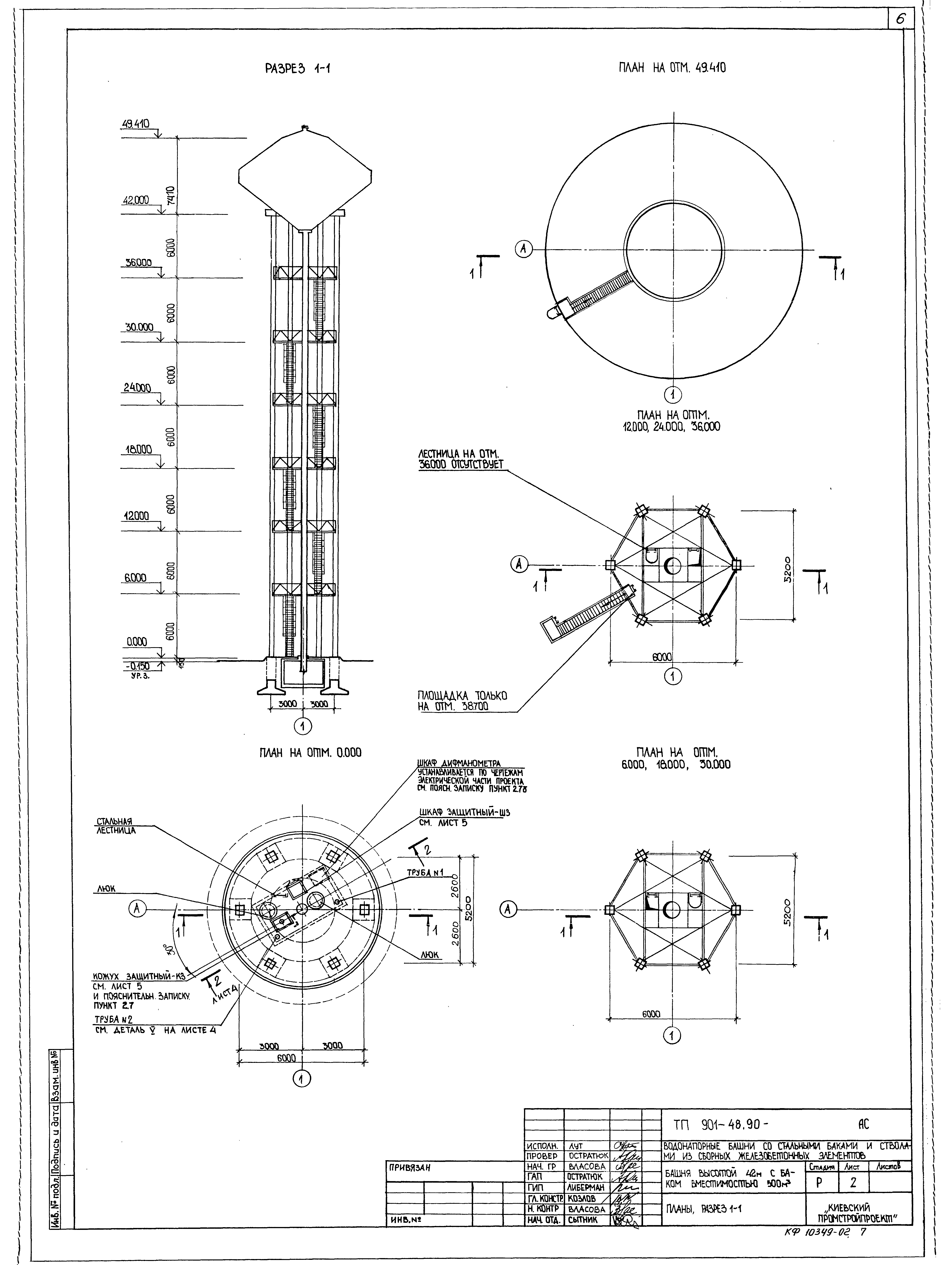
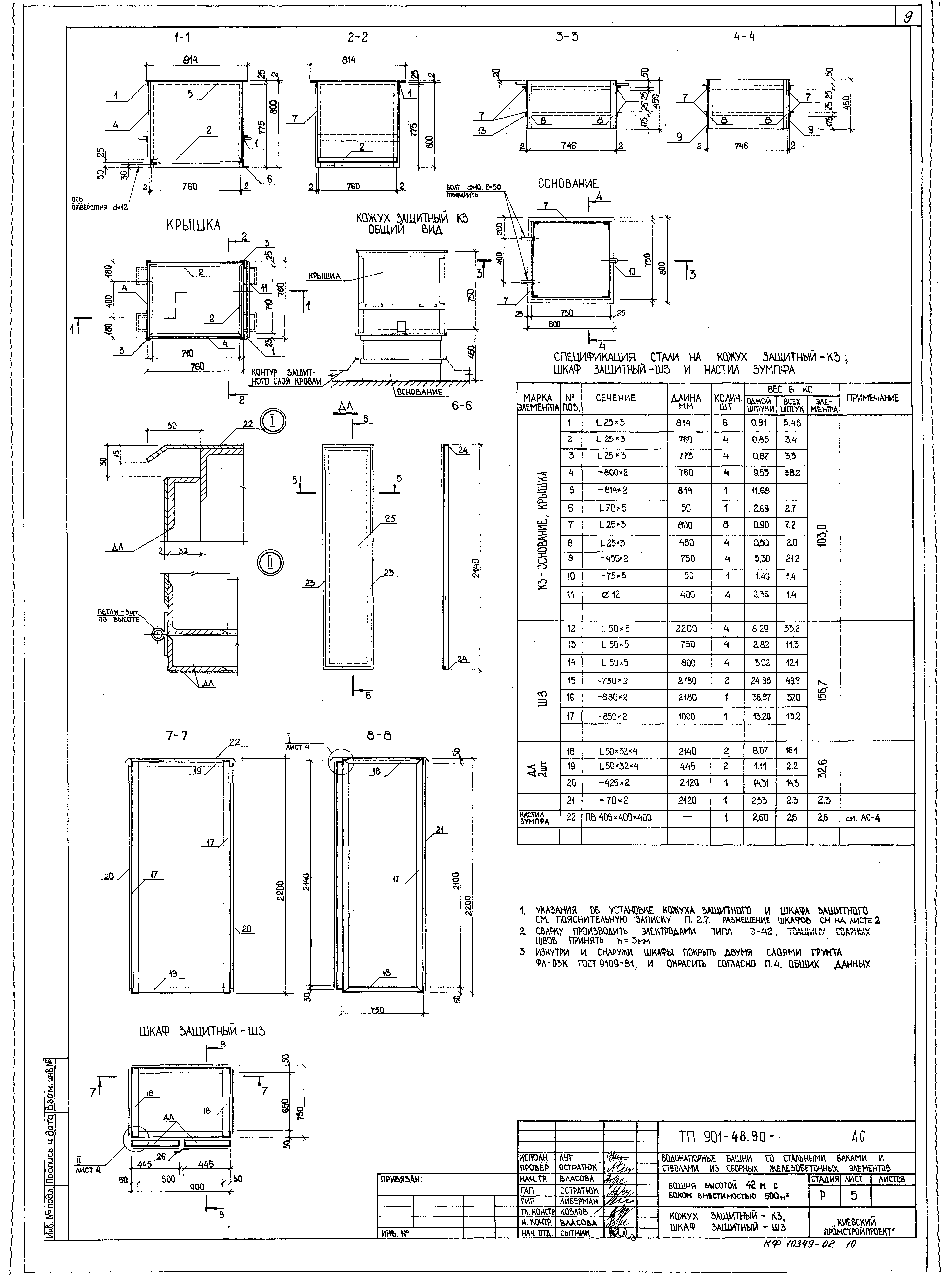
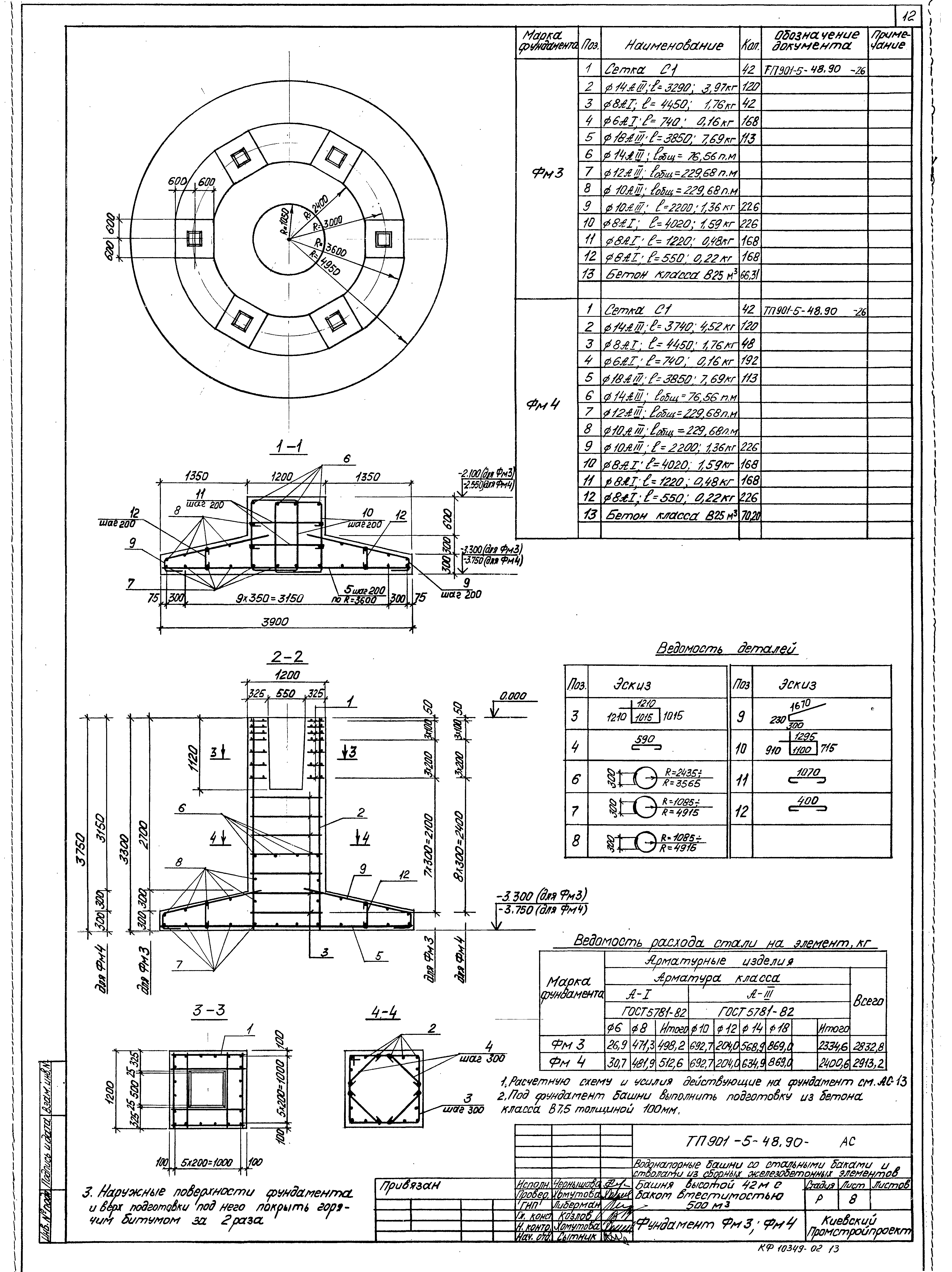
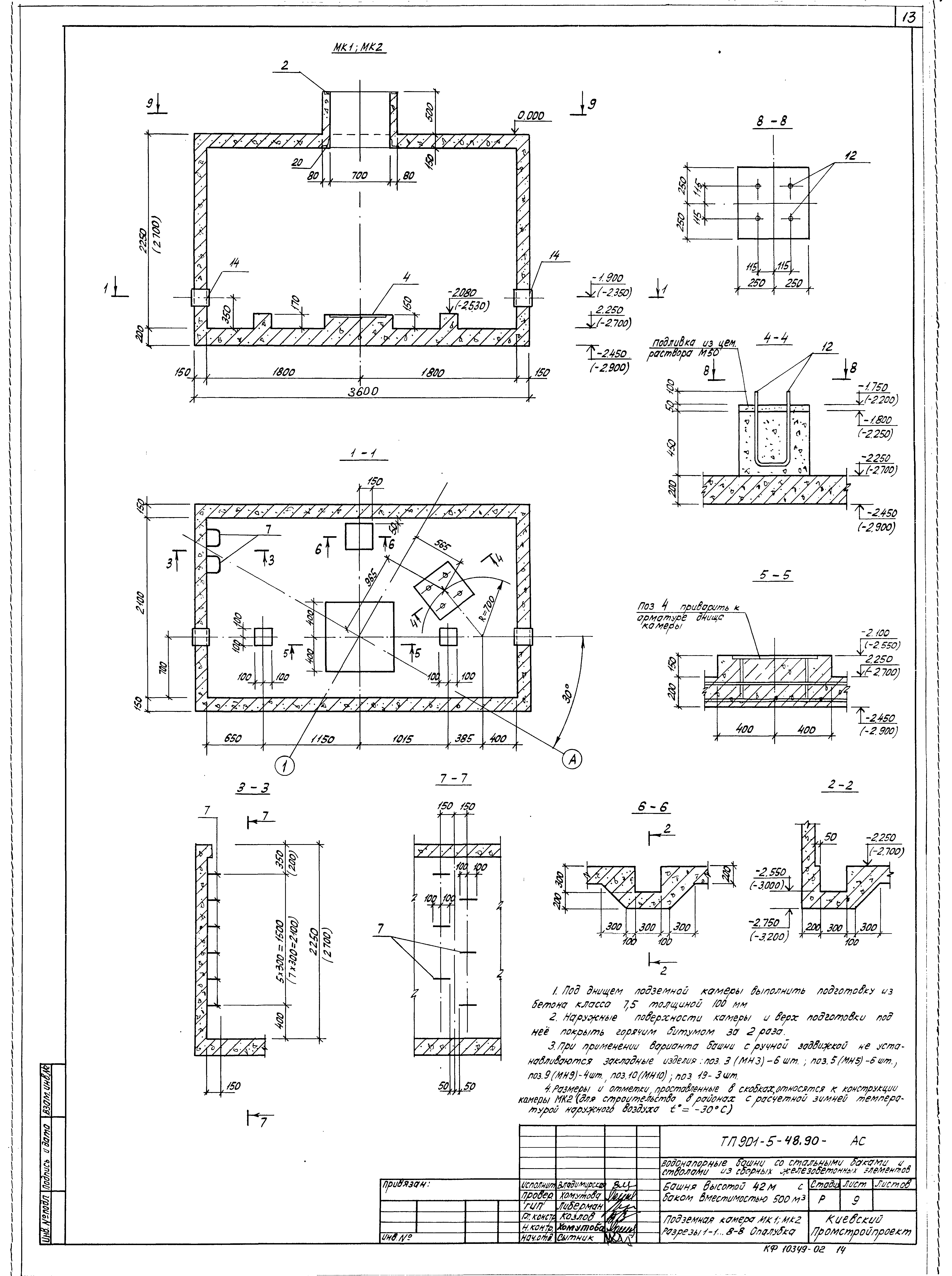
| Оглавление: | Содержание альбома Пояснительная записка Общие данные Планы. Разрез 1-1 Фасад. План настила площадки. Узлы 1…3 Разрез 2-2. Узлы 4…6 Кожух защитный КЗ. Шкаф защитный ШЗ Схема расположения элементов башни. Узлы 1…4 Фундамент ФМ1; ФМ2 Фундамент ФМ3; ФМ4 Подземная камера МК1; МК2. Разрезы 1-1…8-8. Опалубка Подземная камера МК1; МК2. Разрезы 9-9…20-20. Опалубка Подземная камера МК1; МК2. Армирование. Разрезы 1-1…5-5 Подземная камера МК1; МК2. Армирование. Спецификация Подземная камера МК1; МК2. Армирование. Ведомость расхода стали |
| Разработан: | Киевский Промстройпроект |
| Утверждён: | 25.07.1990 Госстрой СССР (Государственный комитет Совета Министров СССР по делам строительства) (USSR Gosstroy 10) |

















