Скачать Типовой проект 902-2-407с.86 Альбом 10. Резервуары размером 12х6, 6х9, 12х9, 18х9 м. Железобетонные изделияДата актуализации: 01.01.2021
|
| Обозначение: | Типовой проект 902-2-407с.86 |
| Обозначение англ: | 902-2-407с.86 |
| Статус: | не определен законодательством |
| Название рус.: | Альбом 10. Резервуары размером 12х6, 6х9, 12х9, 18х9 м. Железобетонные изделия |
| Дата добавления в базу: | 01.09.2013 |
| Дата актуализации: | 01.01.2021 |
| Дата введения: | 06.04.1985 |
| Дата окончания срока действия: | 30.06.2003 |
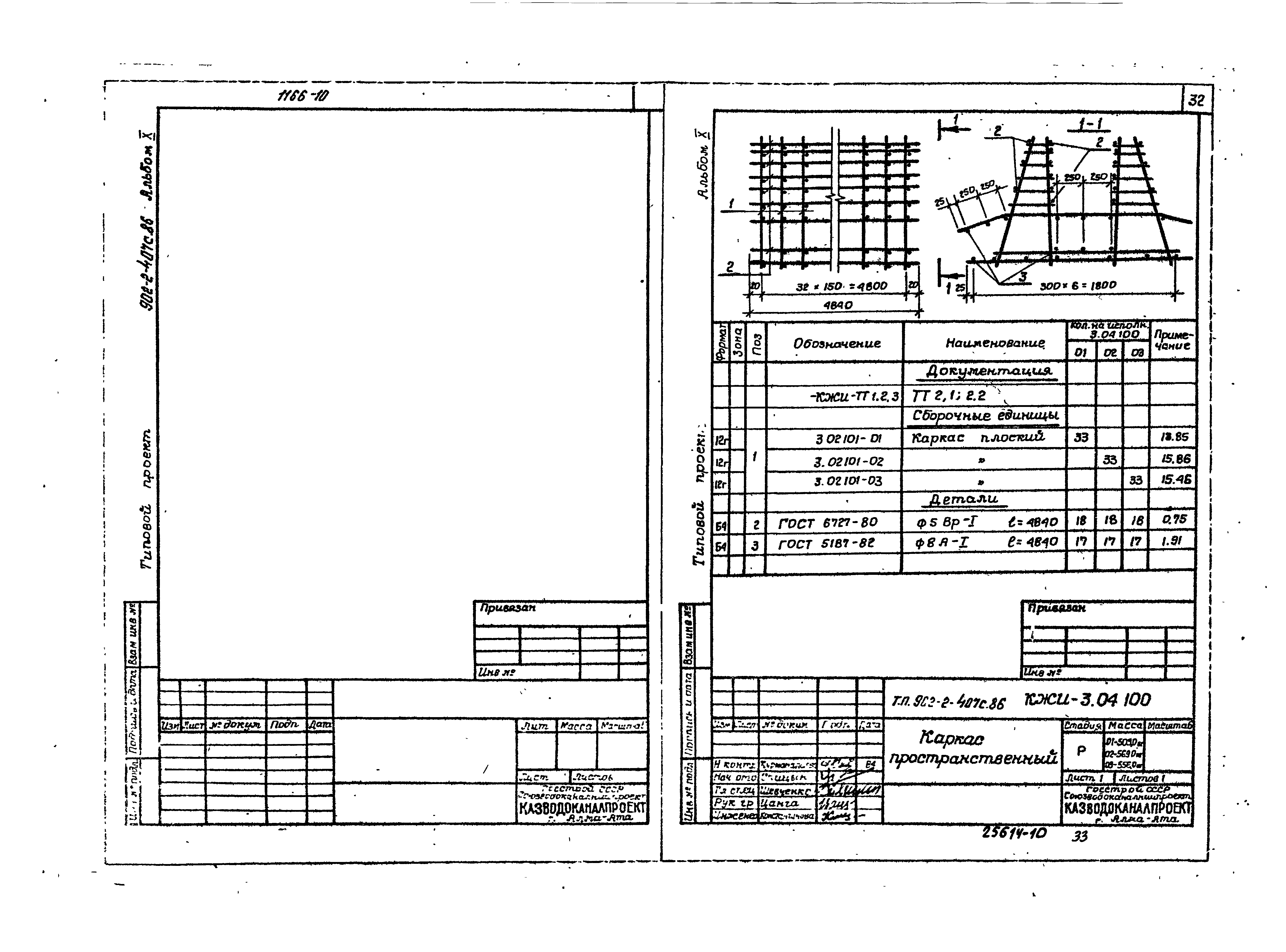
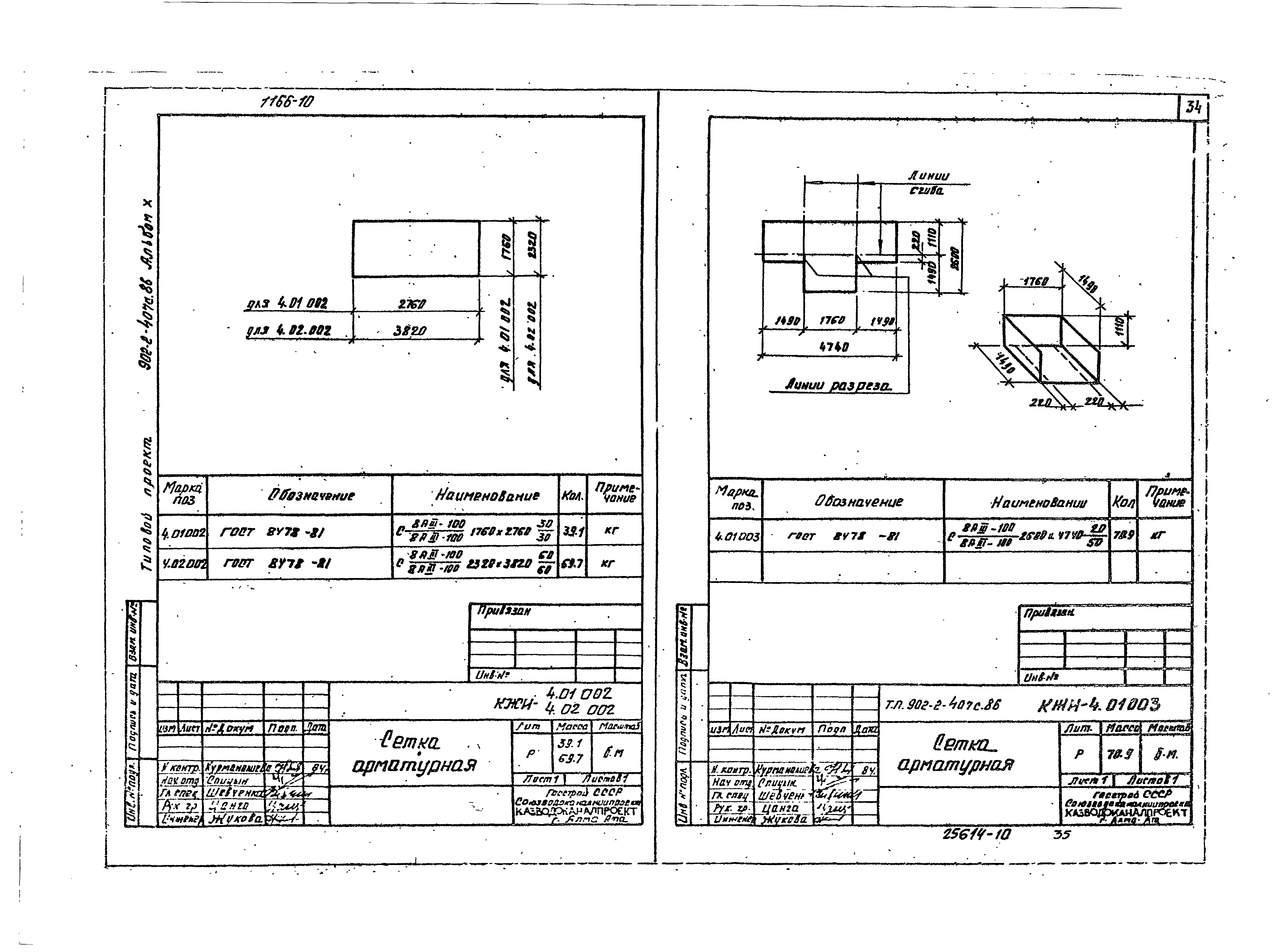
| Оглавление: | КЖИ Содержание альбома КЖИ-ТТ 1, 2, 3 Технические требования КЖИ-1.01000 Панель стеновая угловая КЖИ-1.01100 Каркас пространственный КЖИ-1.20101 Петля строповочная КЖИ-1.20102 Петля строповочная КЖИ-2.01000СБ Блок угловой КЖИ-2.01000 Блок угловой КЖИ-2.01001 Сетка КЖИ-2.01100СБ Каркас пространственный КЖИ-2.01100 Каркас пространственный КЖИ-2.01101 Сетка КЖИ-2.01200 Каркас пространственный КЖИ-2.01201 Сетка КЖИ-1.03000, КЖИ-1.04000, КЖИ-1.06000 Панель стеновая КЖИ-1.05000, КЖИ-1.02000, КЖИ-1.07000, КЖИ-1.08000 Панель стеновая КЖИ-1.09000, КЖИ-1.10000 Панель стеновая угловая КЖИ-3.01100 Каркас пространственный КЖИ-3.01200 Каркас пространственный КЖУ-А Днище. Узел сопрояжения пространственных каркасов по длине КЖИ-3.01001 Сетка КЖИ-3.01101 Каркас плоский КЖИ-3.01002 Сетка КЖИ-3.01003 Сетка КЖИ-3.01004 Каркас плоский КЖИ-3.02100 Каркас пространственный КЖИ-3.02200 Каркас пространственный КЖИ-3.02101 Каркас плоский КЖИ-3.02001 Каркас плоский КЖИ-3.02002 Сетка КЖИ-3.02003 Сетка КЖИ-3.02004 Сетка КЖИ-3.02005 Сетка КЖИ-3.02006 Сетка КЖИ-3.03001Сетка КЖИ-3.04001 Сетка КЖИ-3.04002 Сетка КЖИ-3.04100 Каркас пространственный КЖИ-3.01005 Каркас плоский КЖИ-3.01006 Каркас плоский КЖИ-4.01002, КЖИ-4.02002 Сетка арматурная КЖИ-4.01003 Сетка арматурная КЖИ-4.01001, КЖИ-4.02001 Сетка арматурная КЖИ-4.02003 Сетка арматурная МК2.00.00 Отводящий трубопровод dy 1 вариант МК2.00.00СБ Отводящий трубопровод dy 1 вариант. Сборочный чертеж МК4.00.00 Отводящий трубопровод dy 2 вариант МК4.00.00 Отводящий трубопровод dy 2 вариант. Сборочный чертеж МК6.0000 Патрубок dy МК6.0000 Патрубок dy. Сборочный чертеж МК9.0000 Решетка МК9.0000СБ Решетка. Сборочный чертеж МК10.0000 Кожух МК10.0000СБ Кожух. Сборочный чертеж МК11.0000 Бобышка. Деталь МК12.0000 Фланец. Деталь |
| Разработан: | Казводоканалпроект Госстроя СССР |
| Утверждён: | 22.11.1984 СоюзводоканалНИИпроект (SoyuzvodokanalNIIproject 70) |









































