Скачать Серия 3.503-14 Выпуск 4 (приложение). Конструкции проезжей части, тротуаров, перил, водоотводных устройств, перекрытия деформационных швов и резиновых опорных частейДата актуализации: 01.01.2021
|
| Обозначение: | Серия 3.503-14 |
| Обозначение англ: | Series 3.503-14 |
| Статус: | не действует |
| Название рус.: | Выпуск 4 (приложение). Конструкции проезжей части, тротуаров, перил, водоотводных устройств, перекрытия деформационных швов и резиновых опорных частей |
| Дата добавления в базу: | 01.09.2013 |
| Дата актуализации: | 01.01.2021 |
| Дата введения: | 01.01.1972 |
| Дата окончания срока действия: | 01.09.1987 |
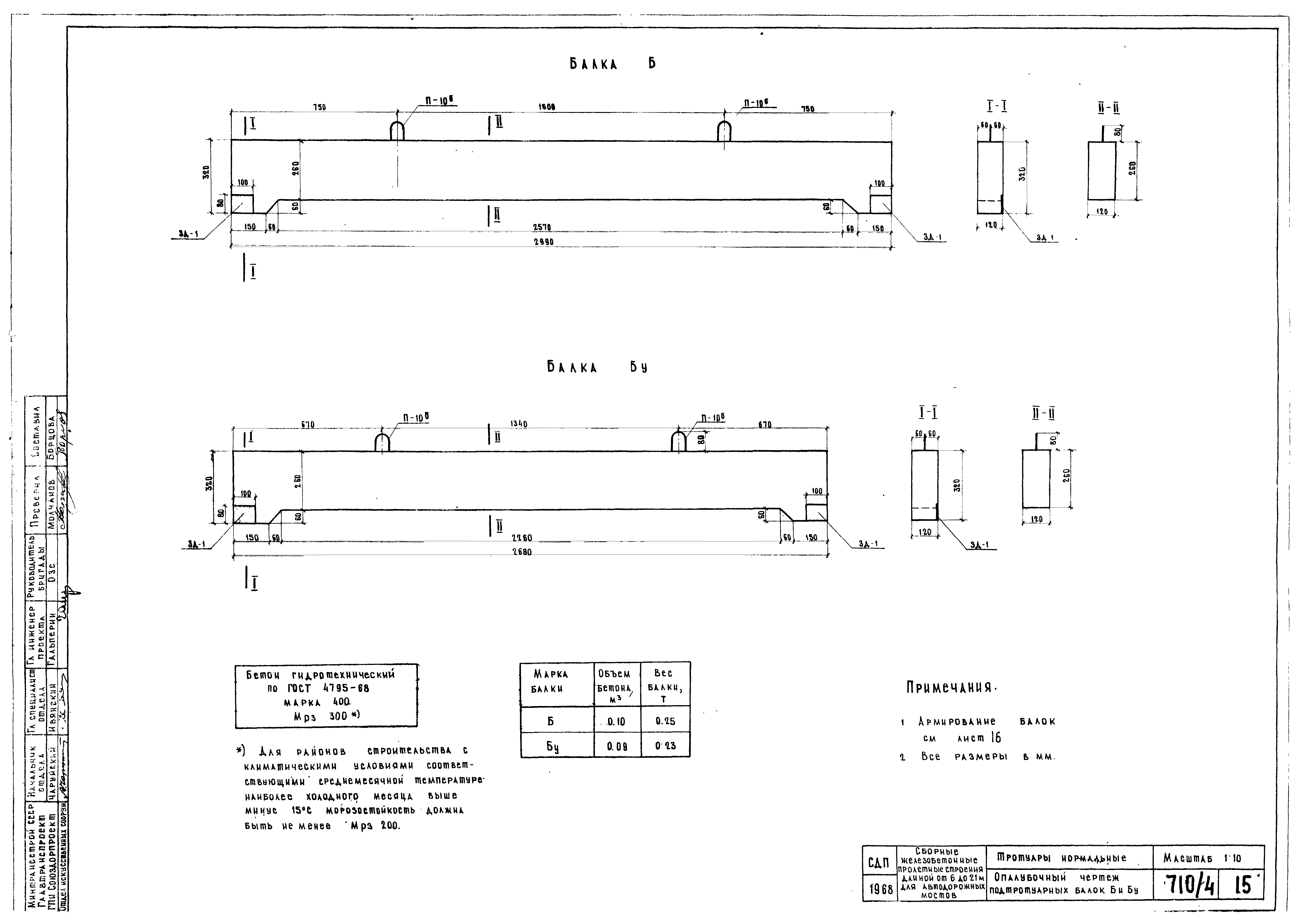
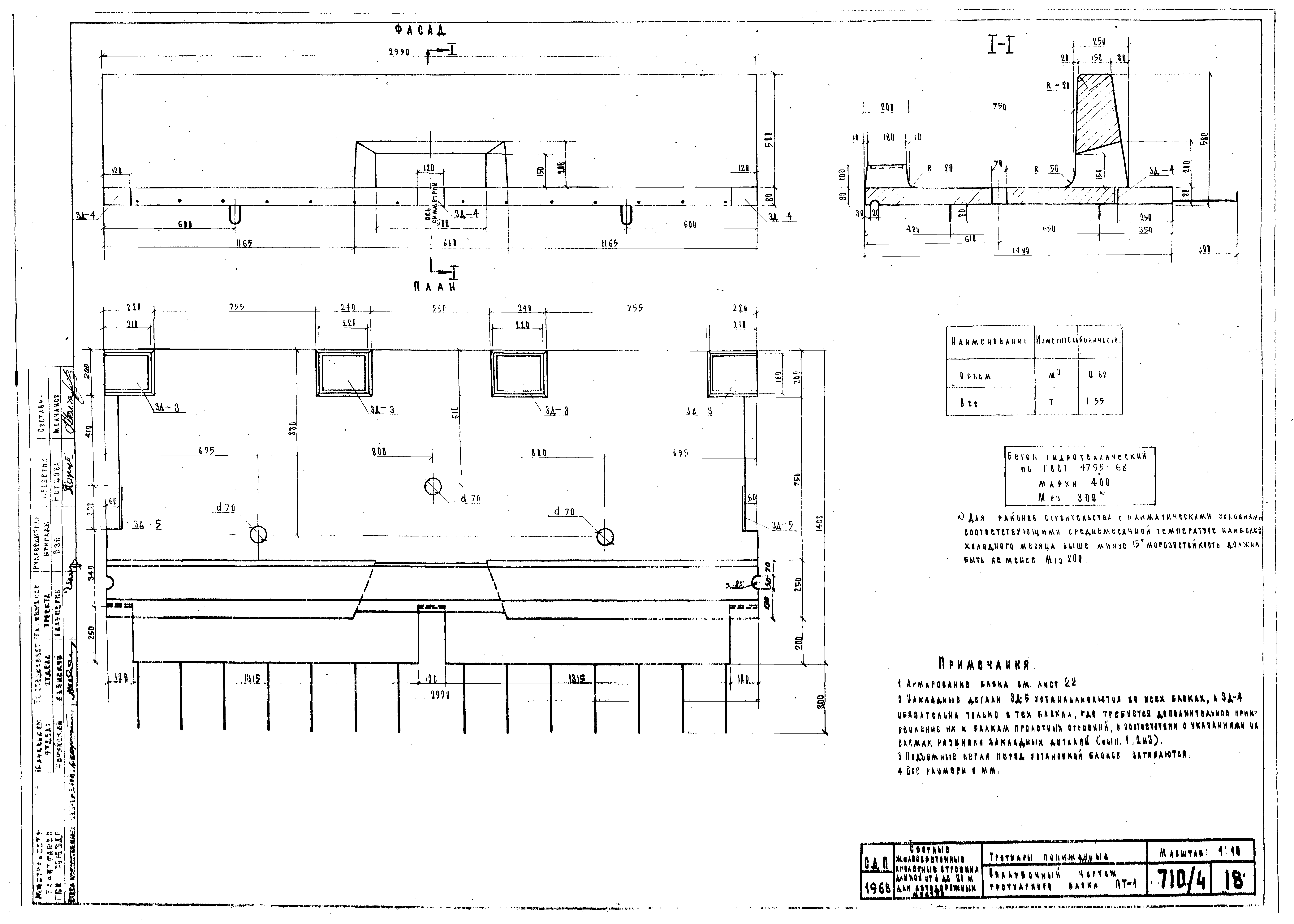
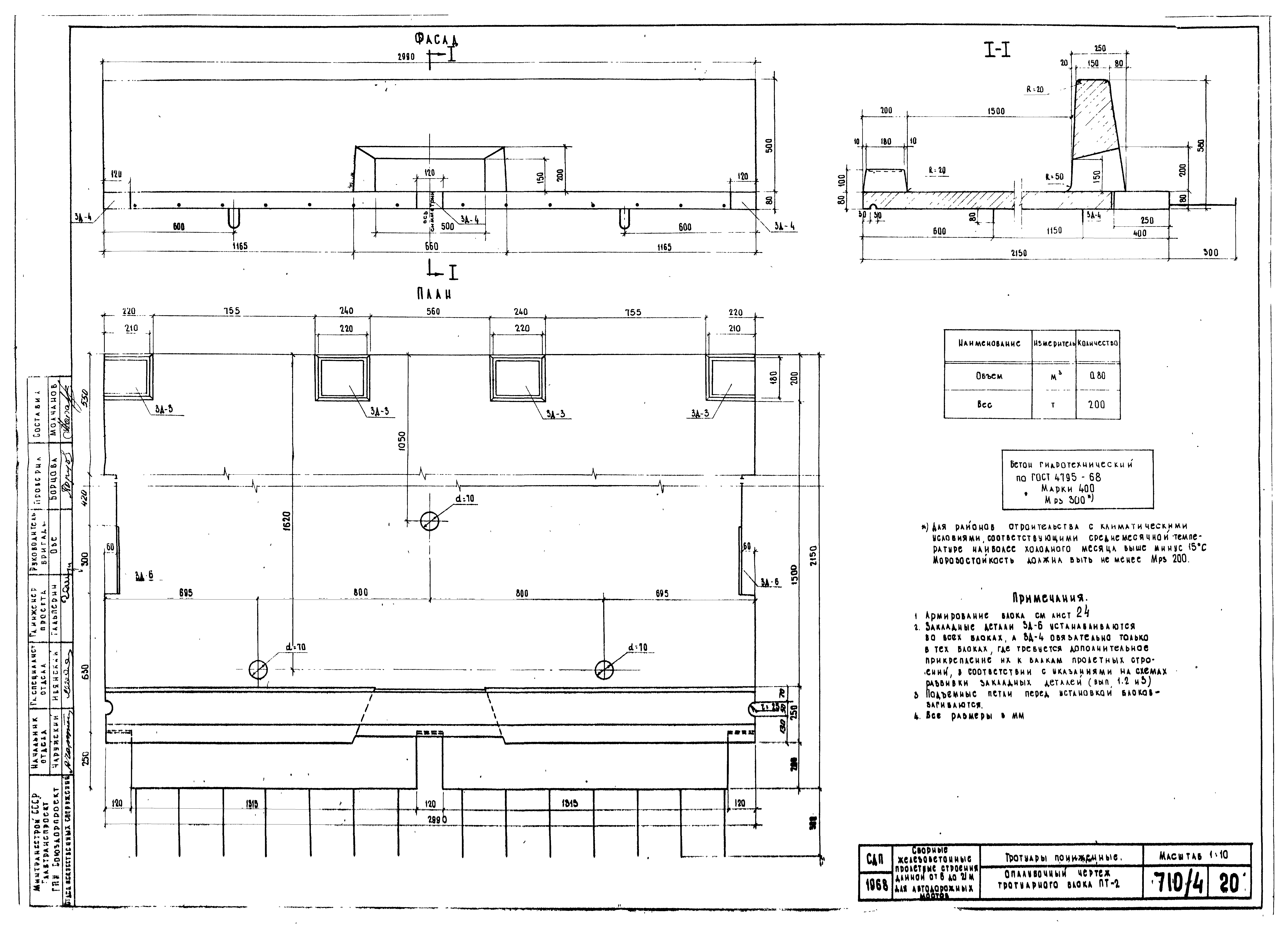
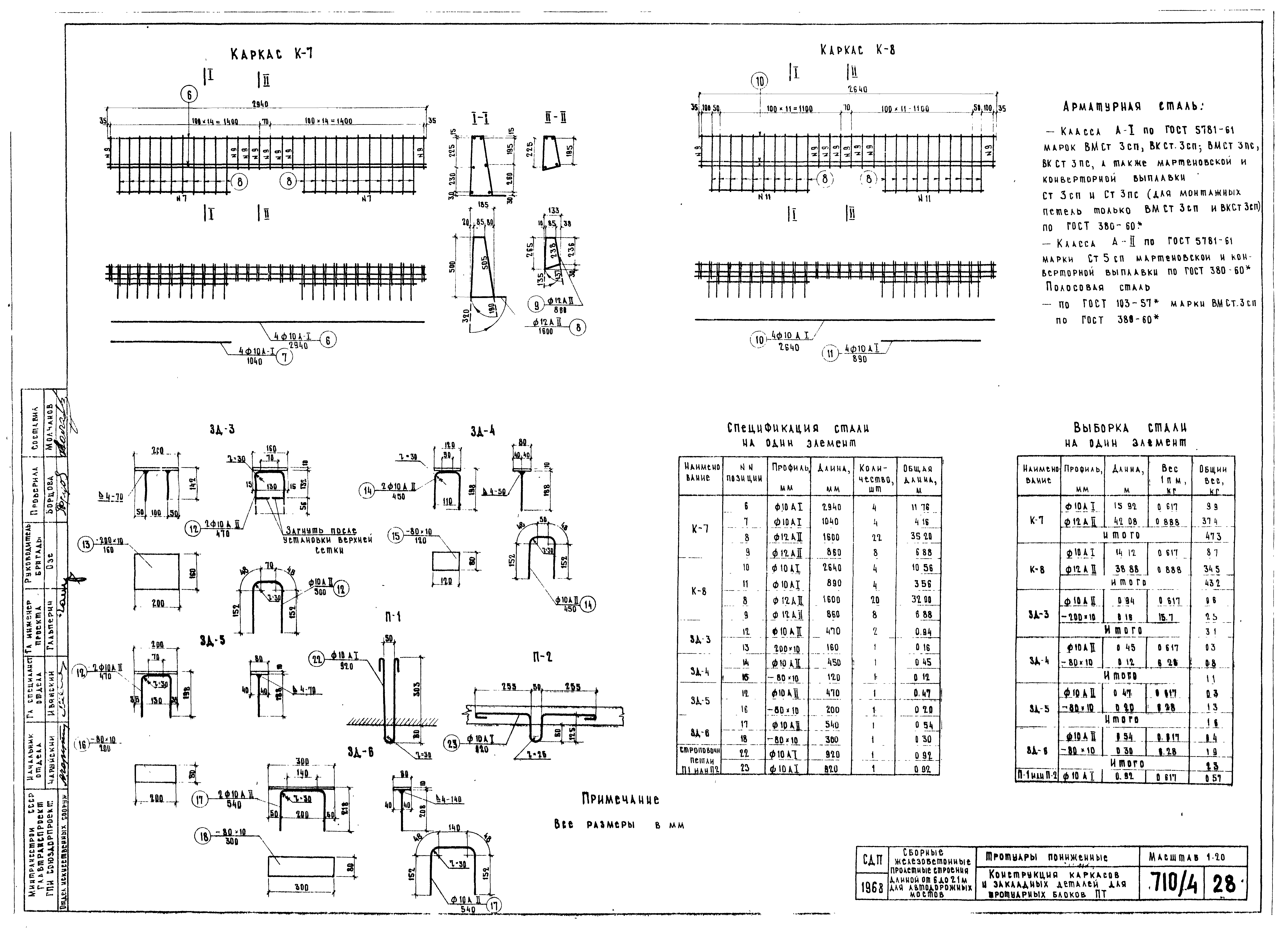
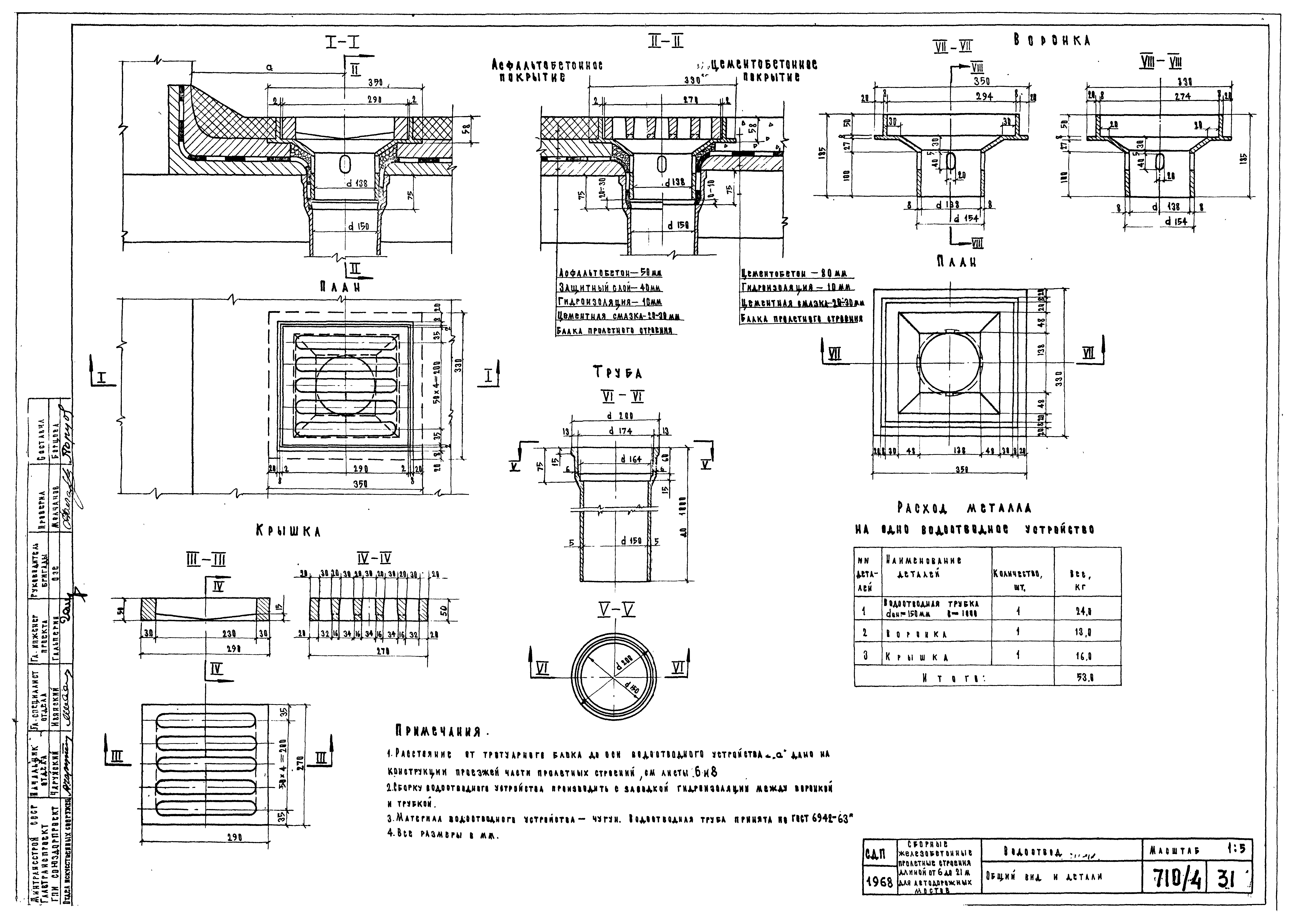
| Оглавление: | Пояснения Конструкция проезжей части Тротуары нормальные Опалубочные чертежи тротуарных блоков Т-1, Т-1у, Т-2 и Т-2у Армирование тротуарного блока Т-1 Армирование тротуарного блока Т-1у Армирование тротуарного блока Т-2 Армирование тротуарного блока Т-2у Опалубочные чертежи подтротуарных балок Б и Бу Армирование подтротуарных балок Б и Бу Закладные детали ЗД-1 и ЗД-2, петли П-10т и П-10б Тротуары пониженные Опалубочный чертеж тротуарного блока ПТ-1 Опалубочный чертеж тротуарного блока ПТ-1у Опалубочный чертеж тротуарного блока ПТ-2 Опалубочный чертеж тротуарного блока ПТ-2у Армирование тротуарного блока ПТ-1 Армирование тротуарного блока ПТ-1у Армирование тротуарного блока ПТ-2 Армирование тротуарного блока ПТ-2у Конструкция сеток ВС-1, НС-1, ВС-2, НС-2 Конструкция сеток ВС-3, НС-3, ВС-4, НС-4 Конструкция каркасов и закладных деталей для тротуарных блоков ПТ Перильное ограждение Опалубочные чертежи блоков ПО и Поу Армирование блоков ПО и Поу Водоотводные устройства Общий вид и детали Деформационные швы Конструкция перекрытия шва Резиновые опорные части Конструкция опорной части. Установка опорной части на продольном уклоне свыше 0.010 |
| Разработан: | Союздорпроект Минтрансстроя |
| Утверждён: | 19.06.1969 Министерство автомобильного транспорта и шоссейных дорог РСФСР (84) |































