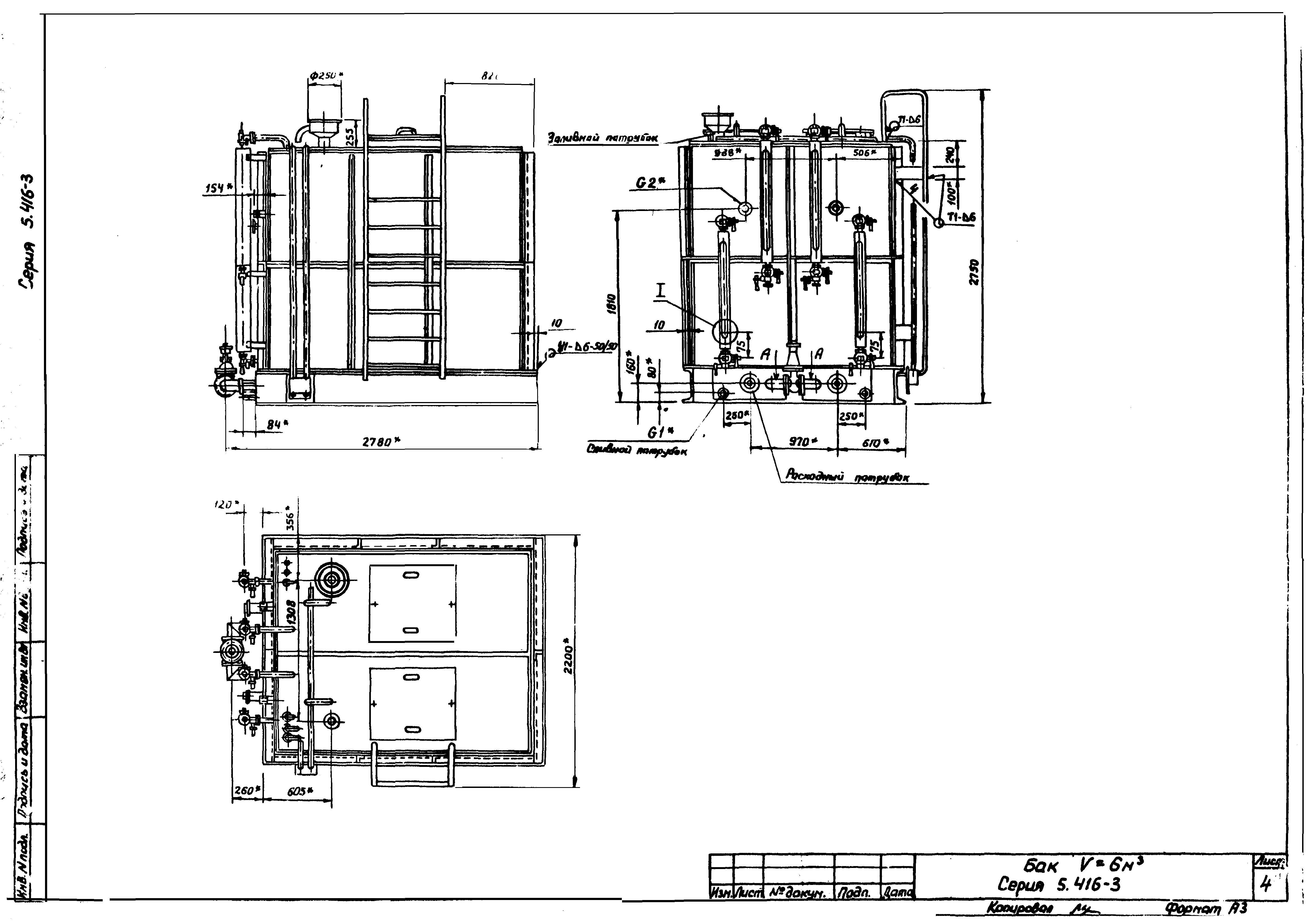
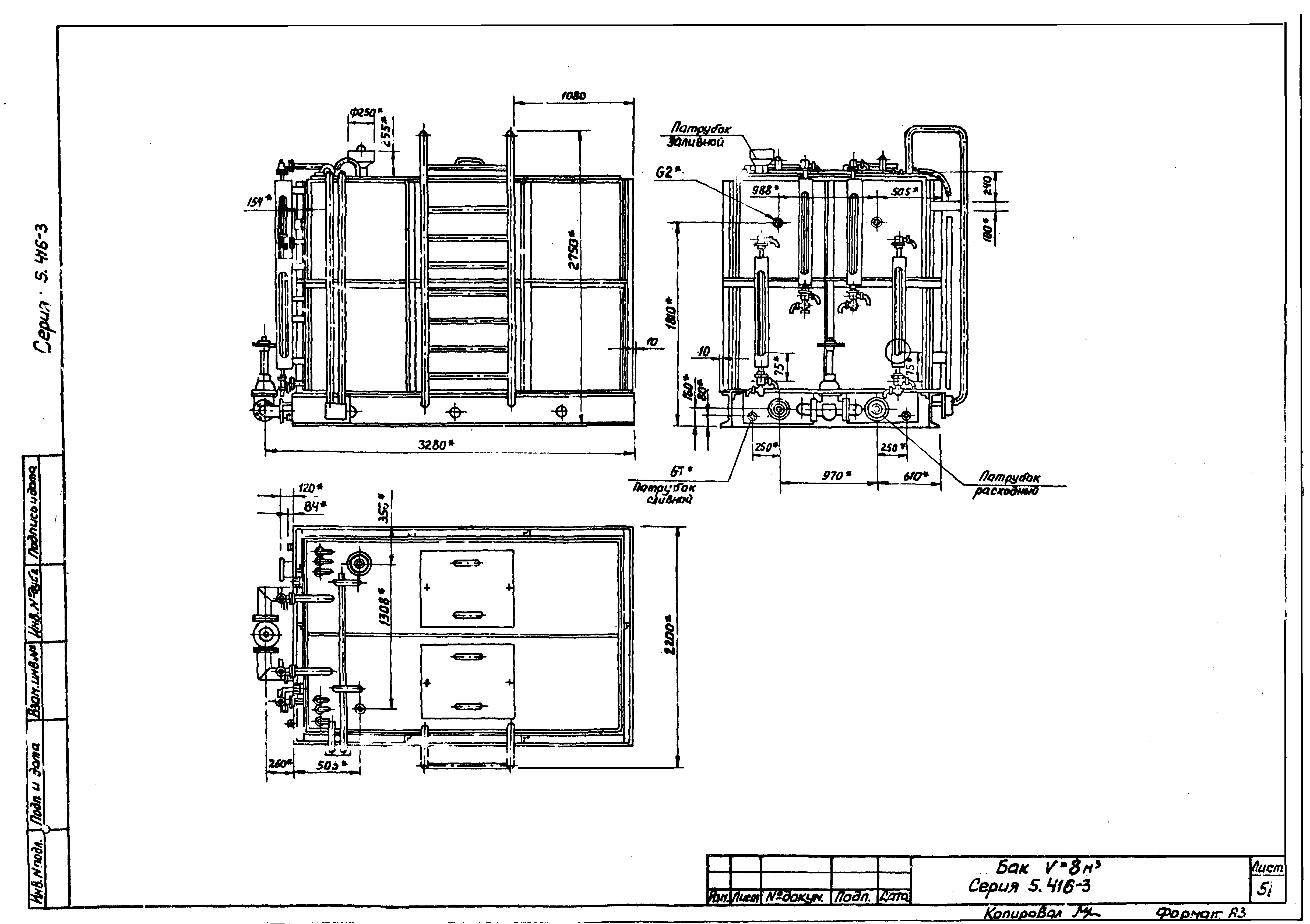
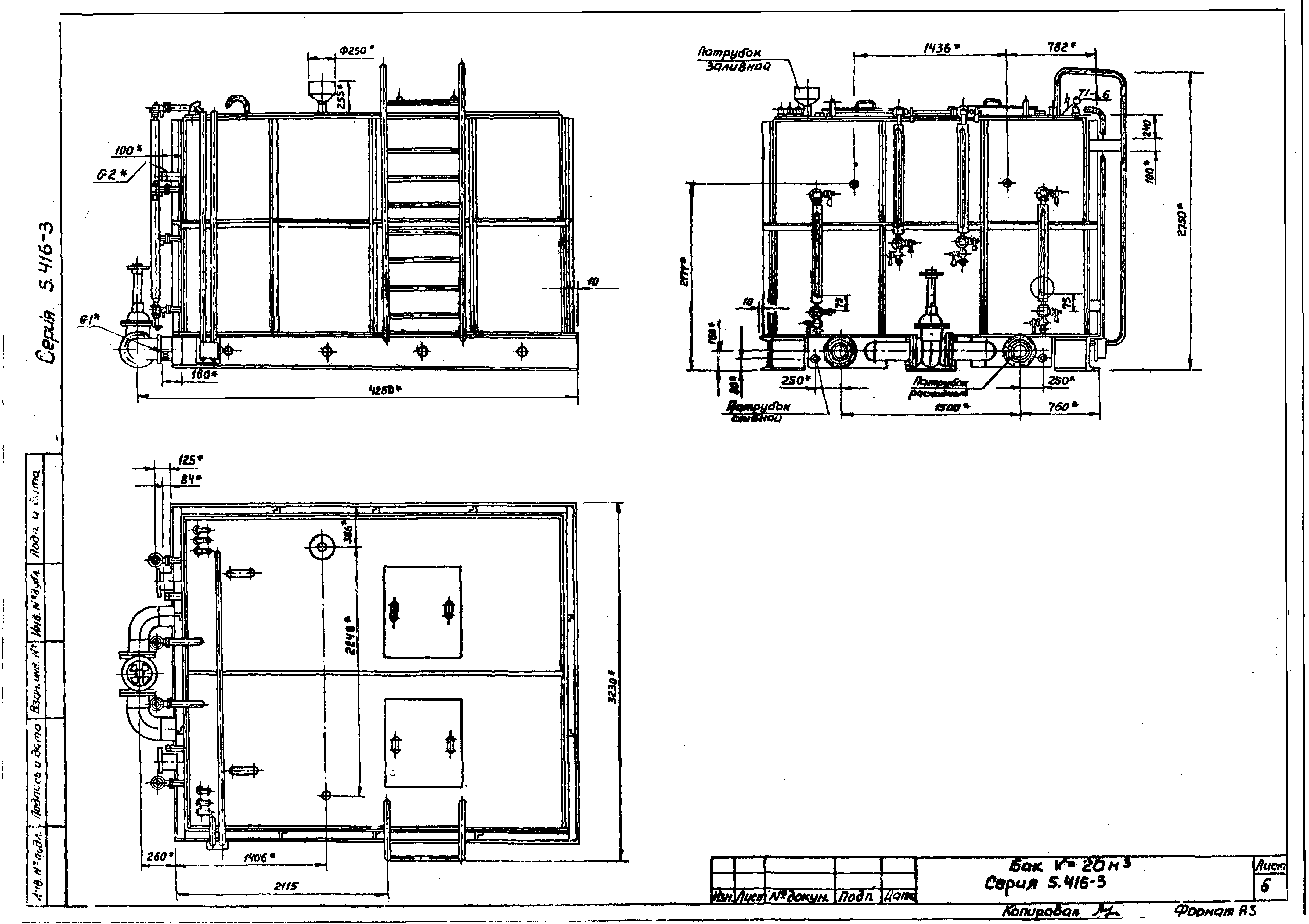
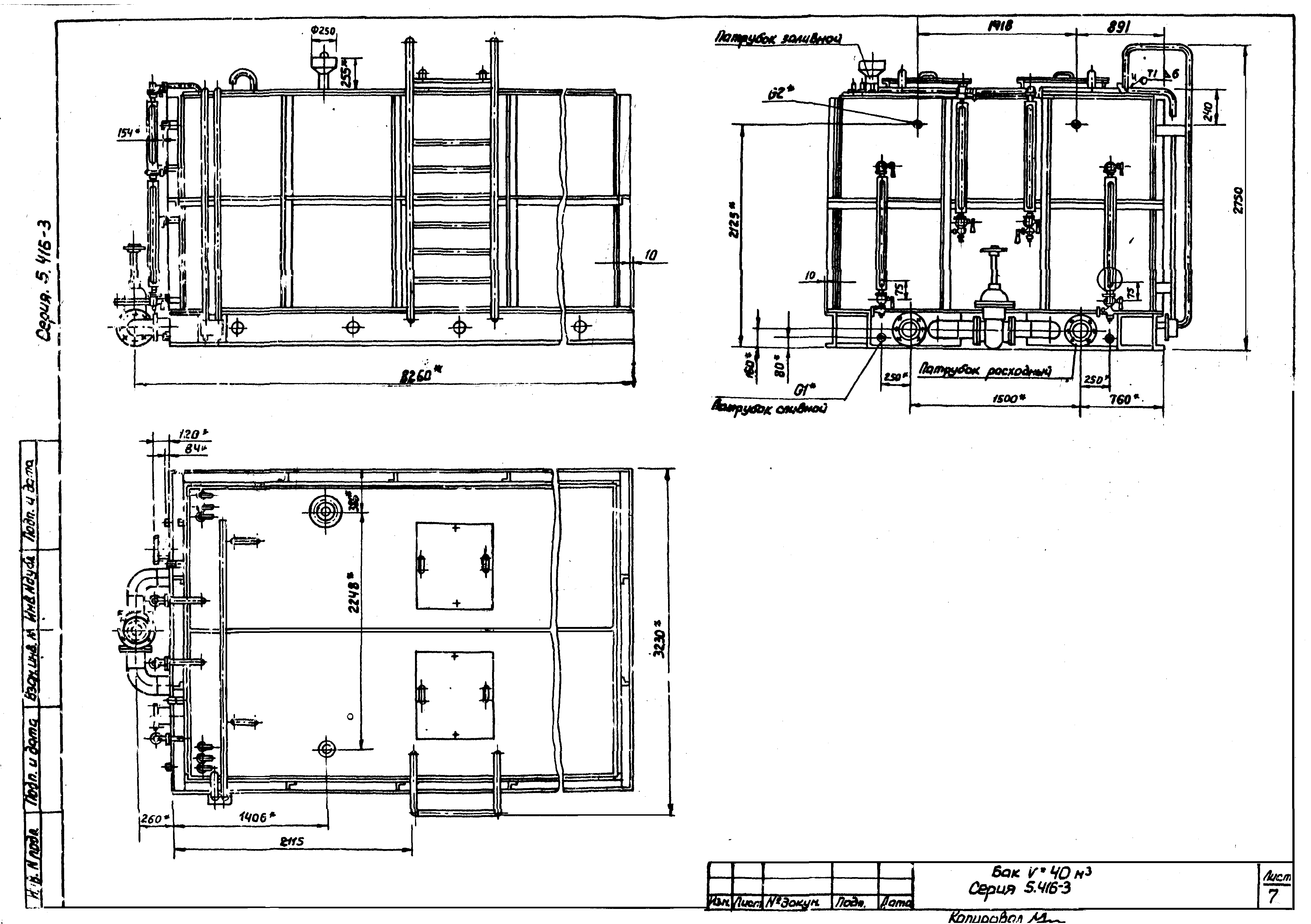
Скачать Серия 5.416-3 Технические характеристики и данные для подбораДата актуализации: 01.01.2021
|
| Обозначение: | Серия 5.416-3 |
| Обозначение англ: | Series 5.416-3 |
| Статус: | не определен законодательством |
| Название рус.: | Технические характеристики и данные для подбора |
| Дата добавления в базу: | 01.09.2013 |
| Дата актуализации: | 01.01.2021 |
| Дата введения: | 01.01.1989 |
| Дата окончания срока действия: | 30.06.2003 |
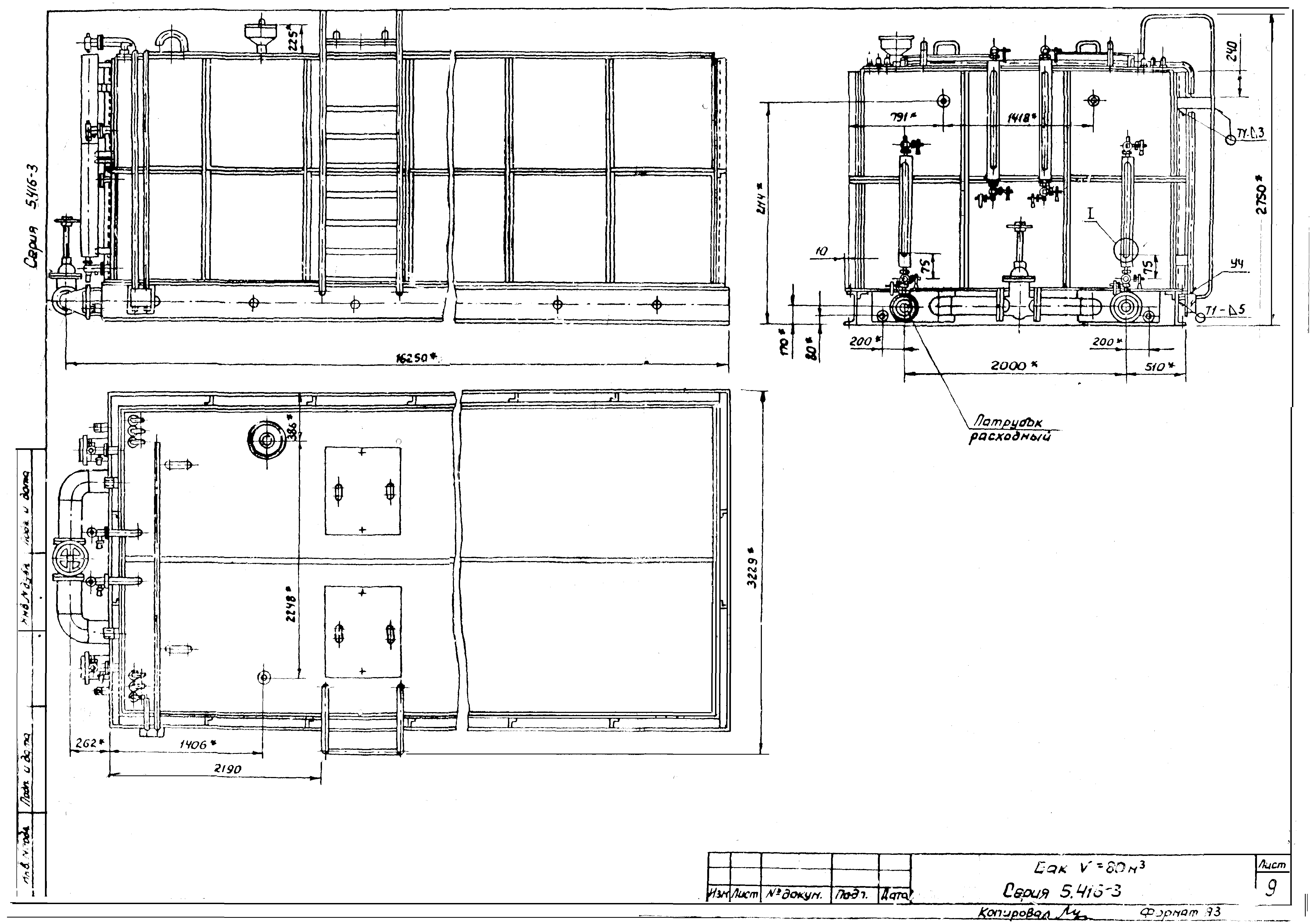
| Область применения: | Альбом является дополнительным материалом к серии 5.416-3 и содержит технические характеристики и данные для подбора |
| Оглавление: | 5.416-3 Содержание 5.416-3 Назначение 5.416-3 Технические характеристики 5.416-3 Рекомендации по подбору и применению 5.416-3 Технические требования 5.416-3 Данные для подбора |
| Разработан: | НПО Приборавтоматика |














