Скачать Серия 3.902.1-10 Выпуск 1. Панели стеновые. Рабочие чертежиДата актуализации: 01.01.2021
|
| Обозначение: | Серия 3.902.1-10 |
| Обозначение англ: | Series 3.902.1-10 |
| Статус: | не действует |
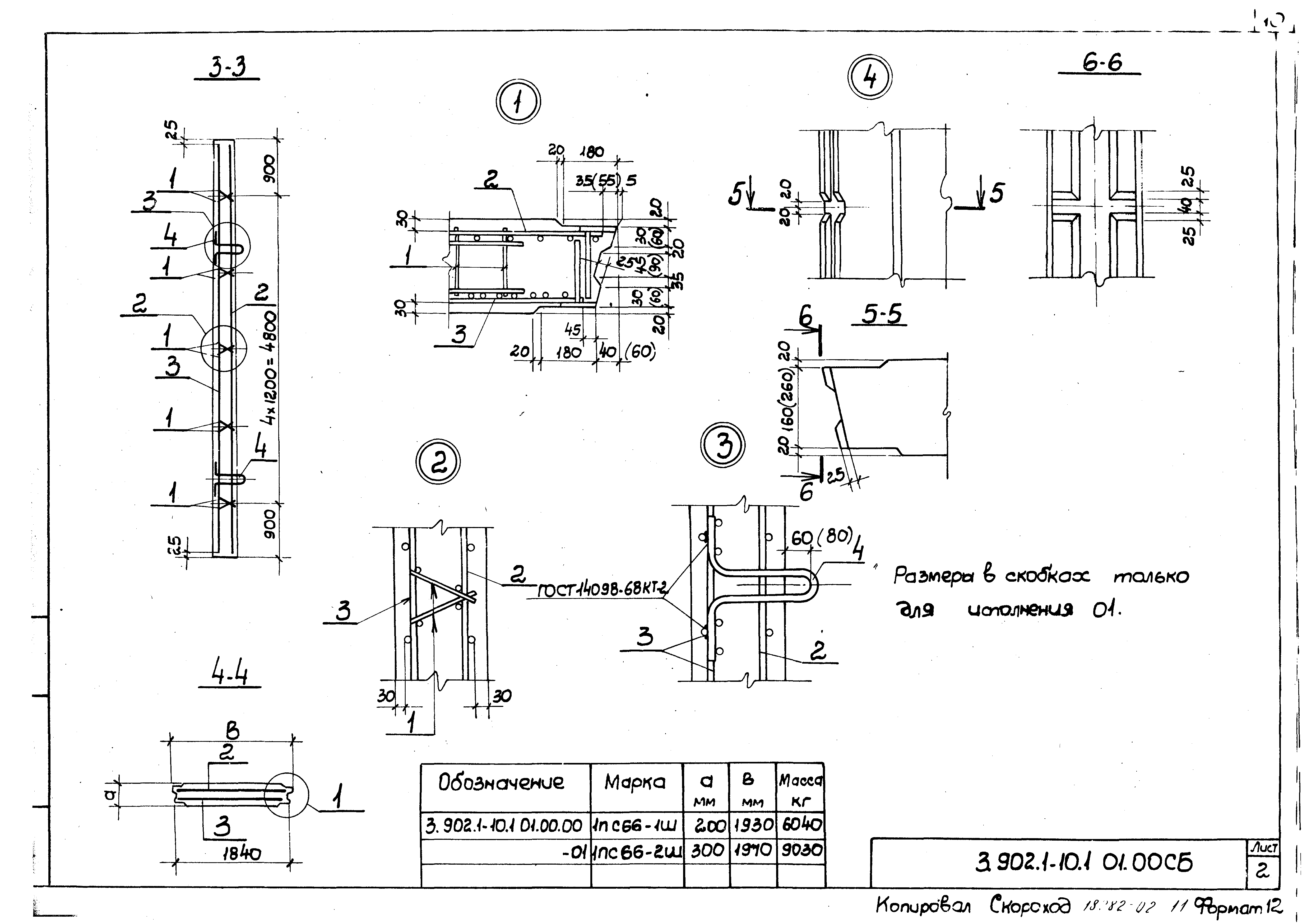
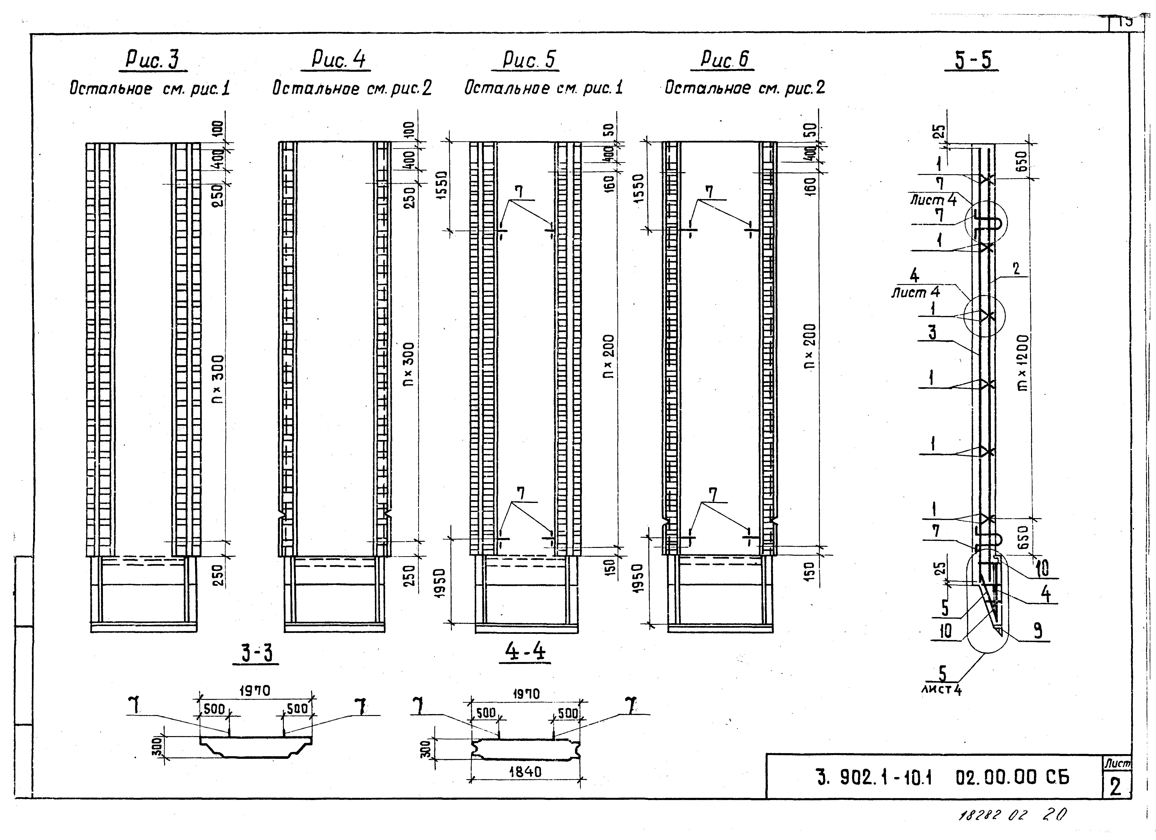
| Название рус.: | Выпуск 1. Панели стеновые. Рабочие чертежи |
| Дата добавления в базу: | 01.09.2013 |
| Дата актуализации: | 01.01.2021 |
| Дата введения: | 01.03.1983 |
| Дата окончания срока действия: | 01.12.1989 |
| Разработан: | ЦНИИпромзданий НИИЖБ ГПИ Укрводоканалпроект |
| Утверждён: | 02.11.1982 Госстрой СССР (Государственный комитет Совета Министров СССР по делам строительства) (USSR Gosstroy 267) |
| Издан: | ЦИТП Госстроя СССР (CITP, Gosstroy (USSR) 1982 г. ) |
| Чем заменён: |

































































