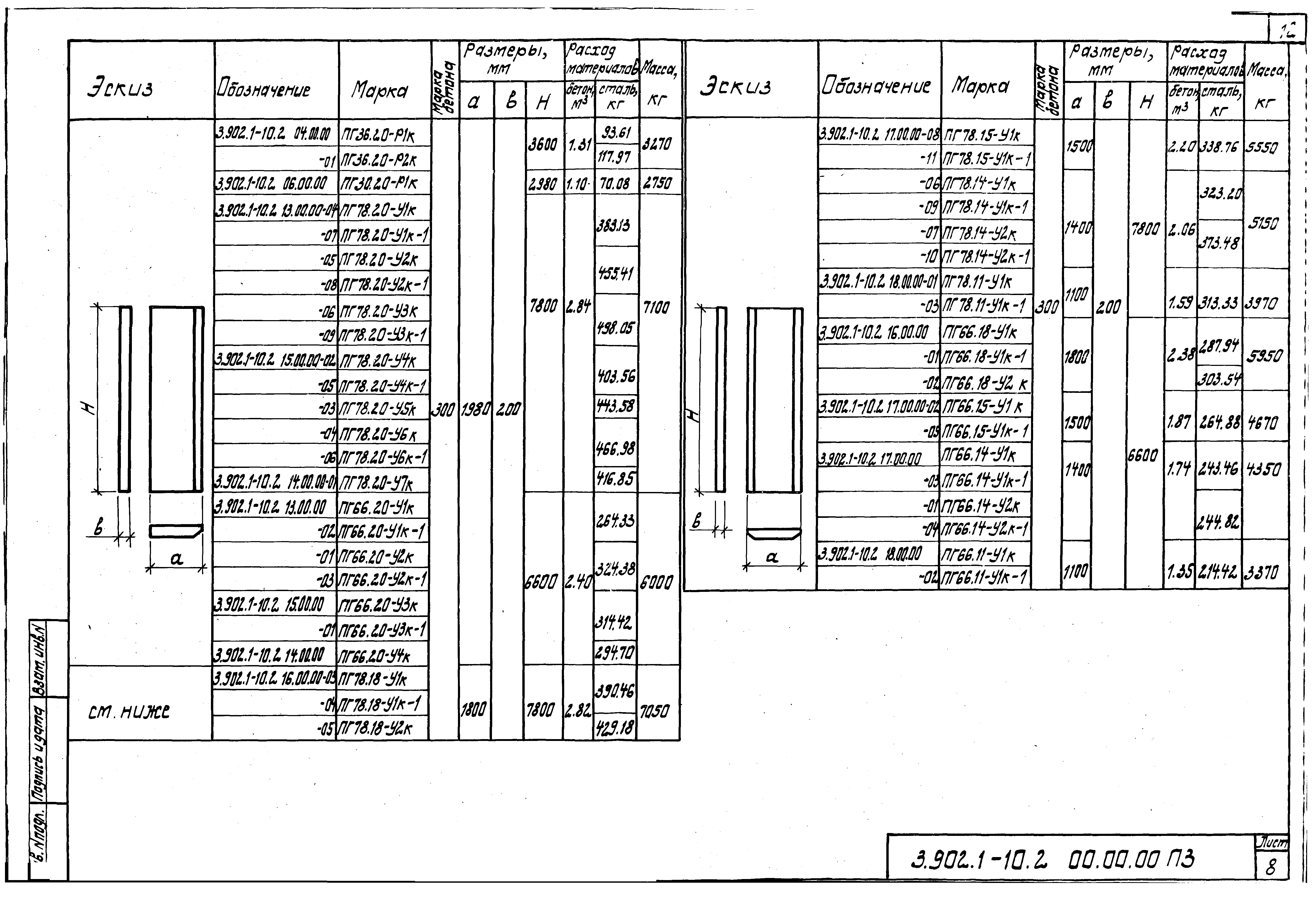
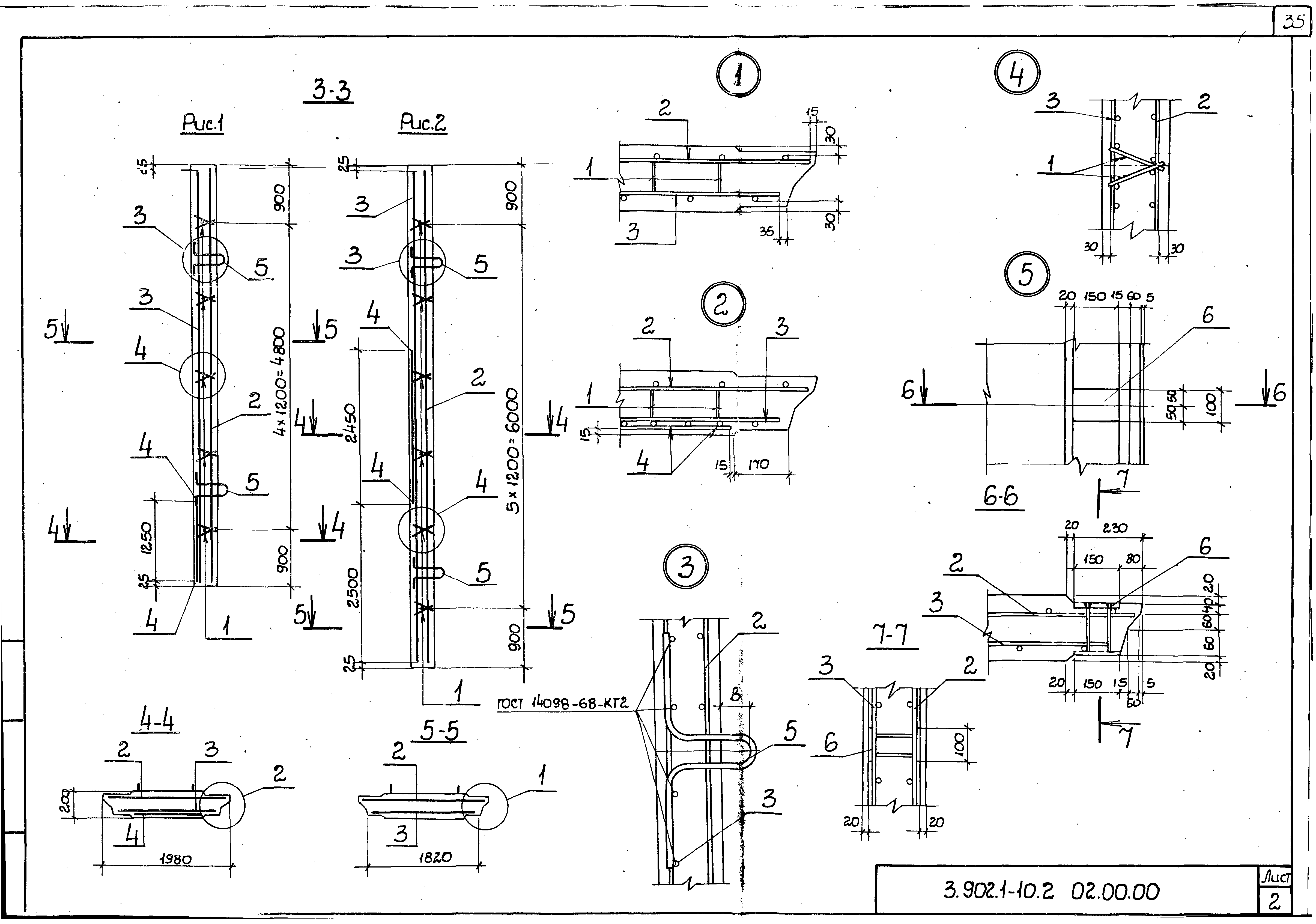
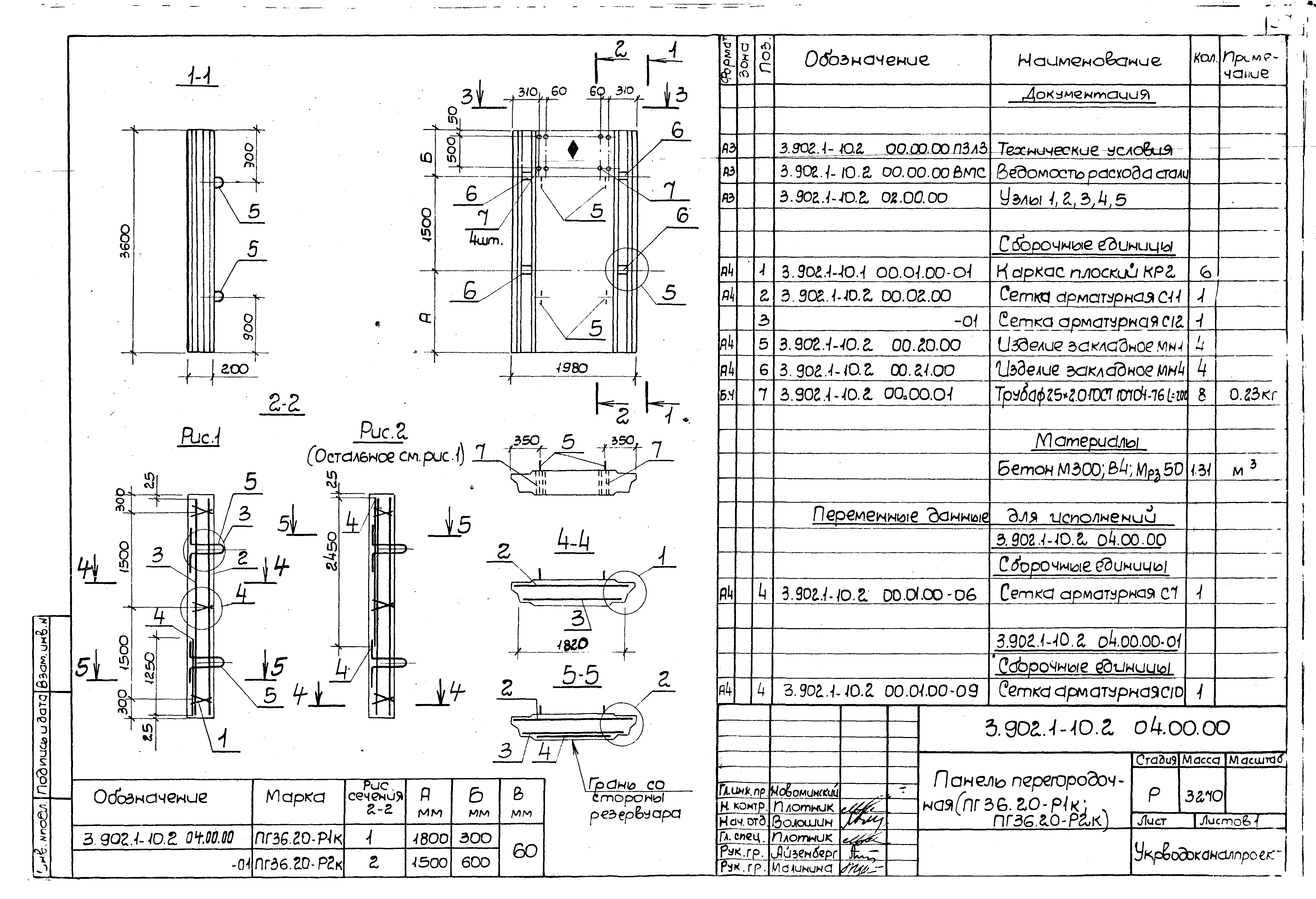
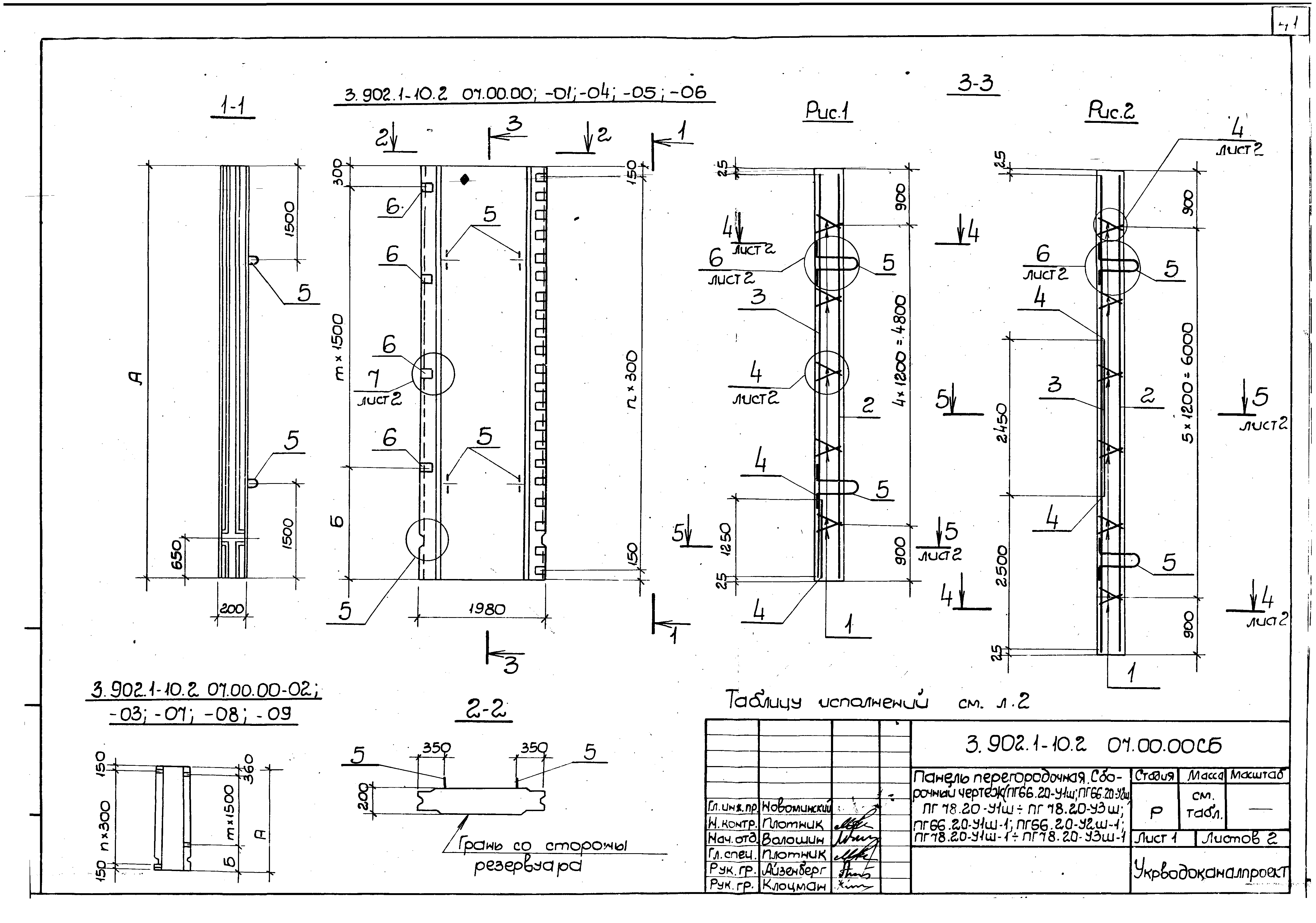
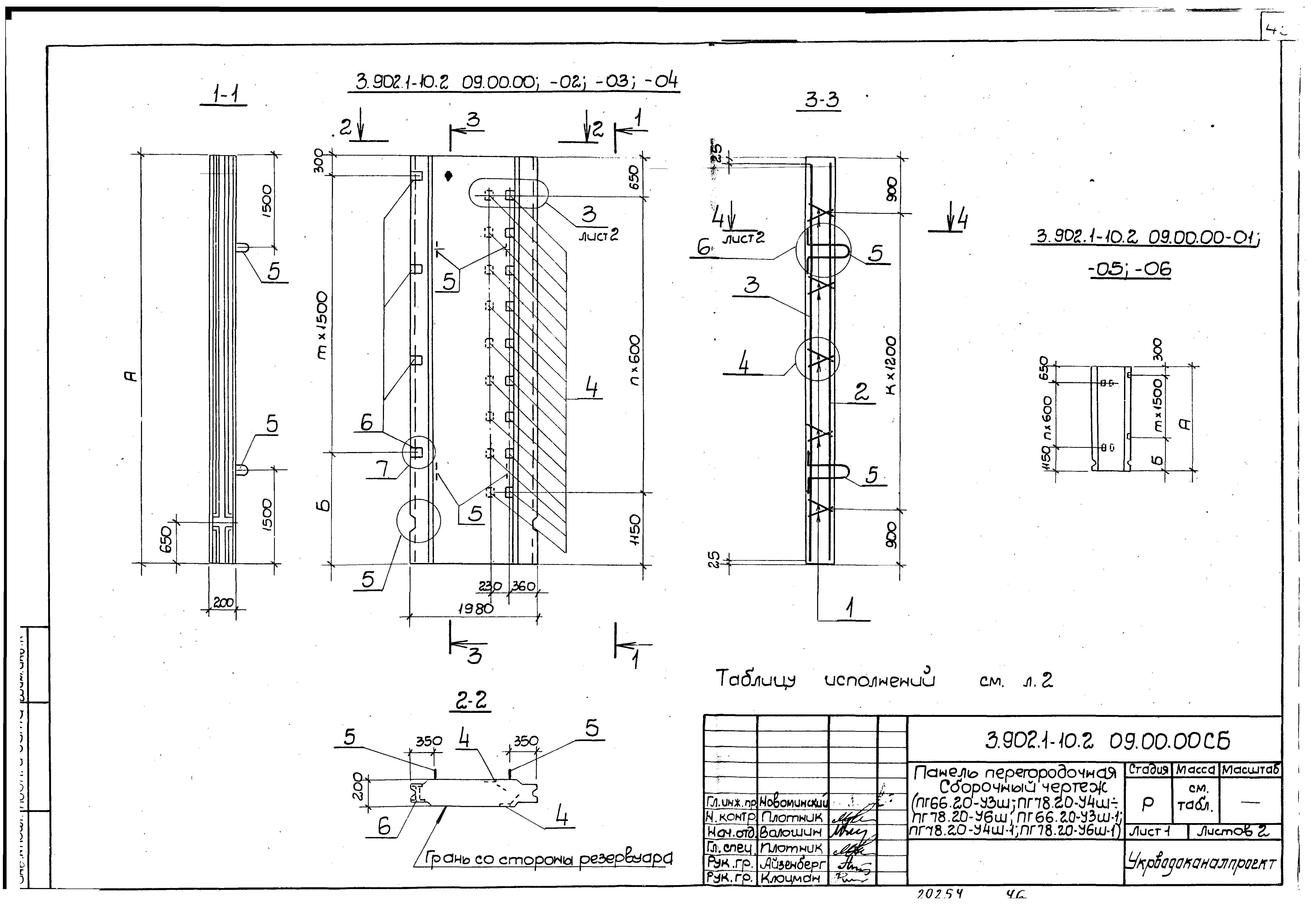
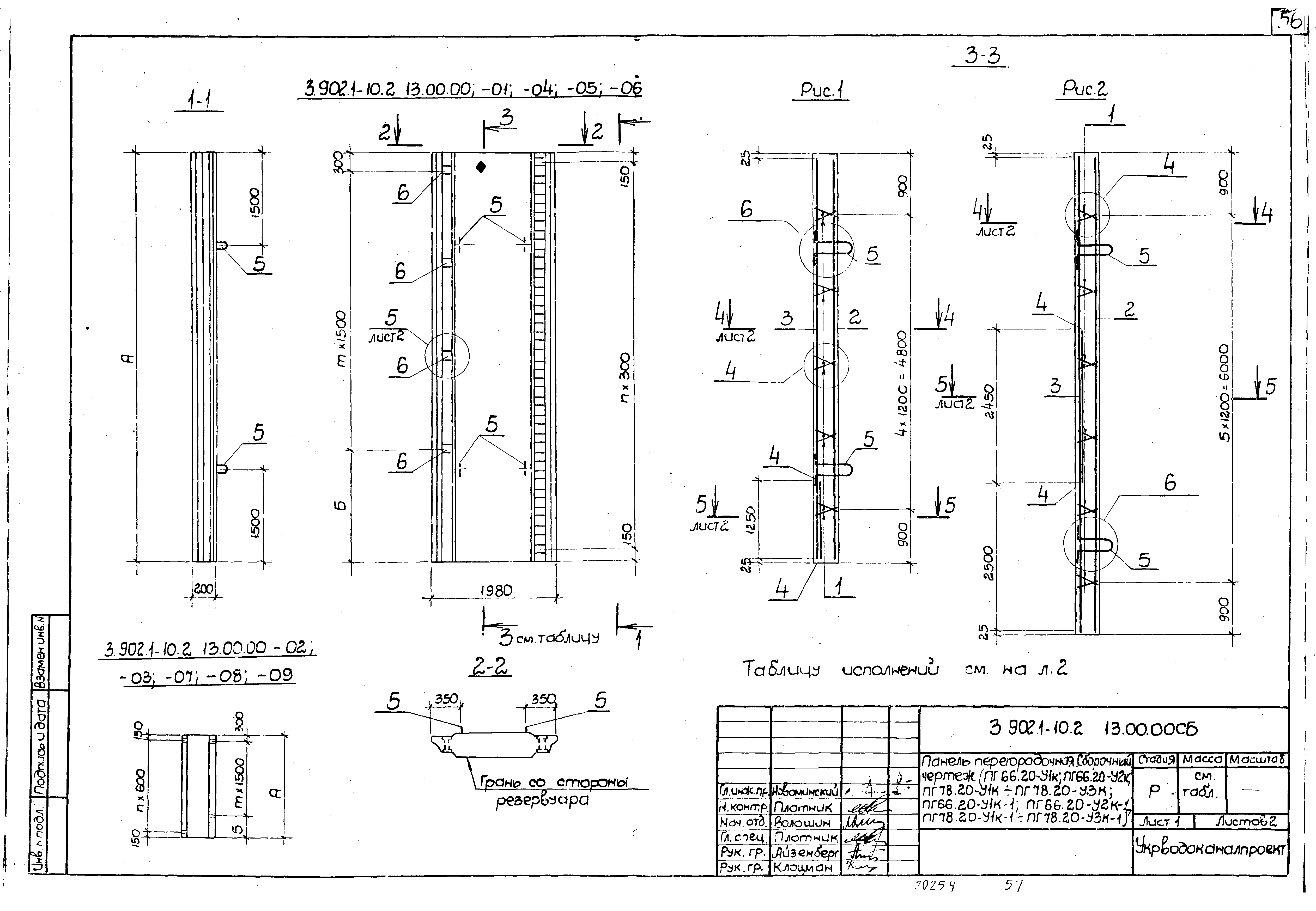
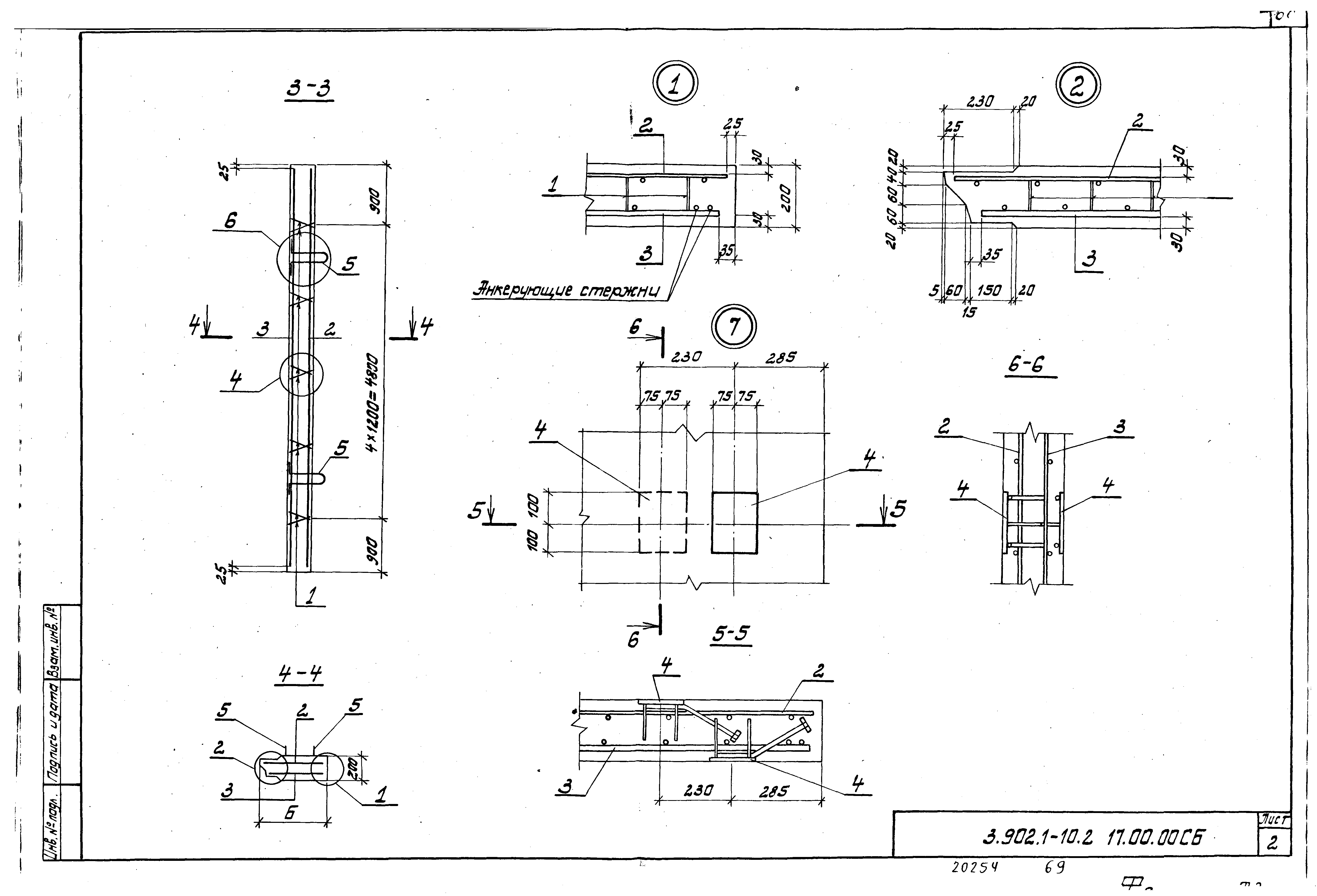
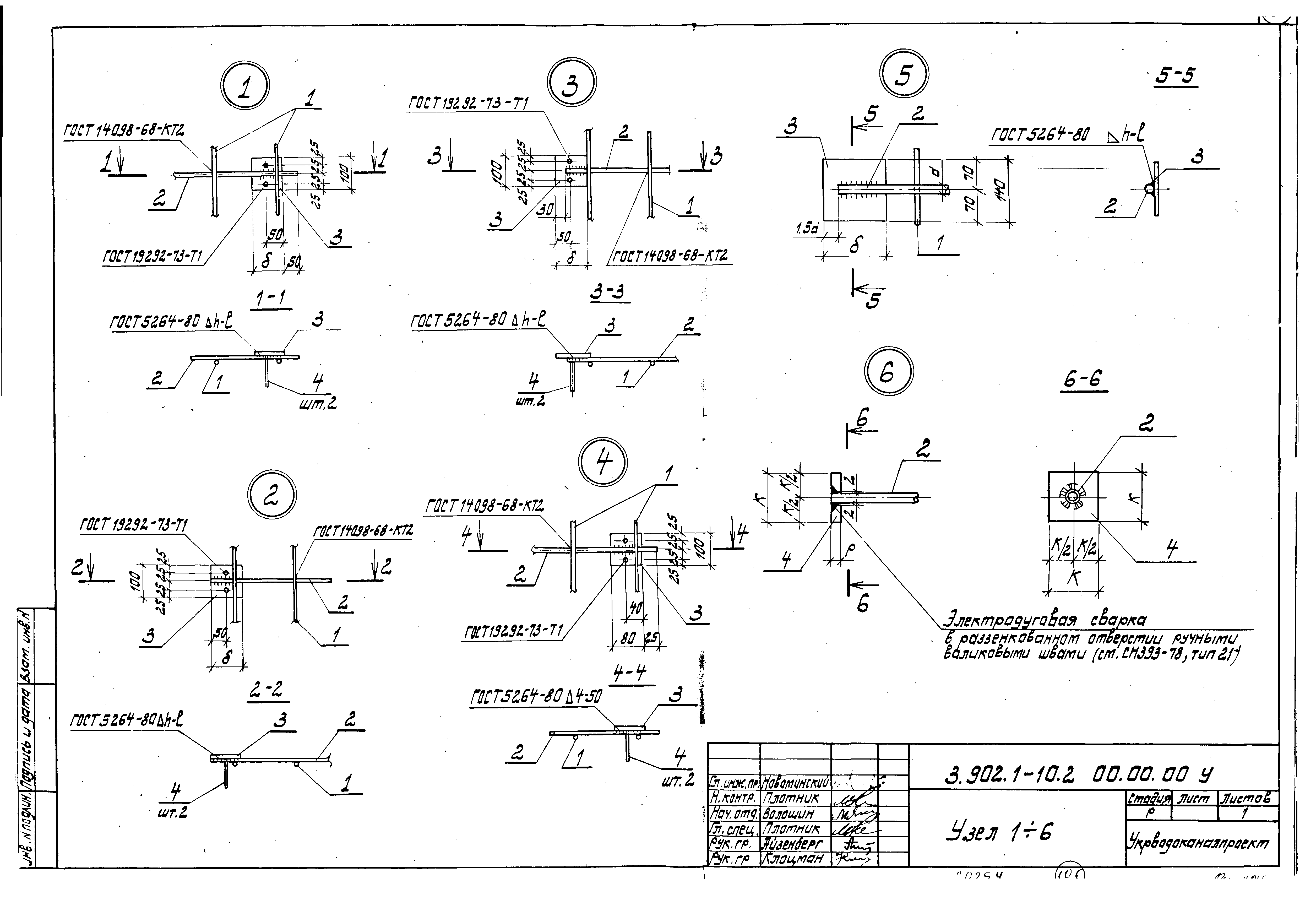
Скачать Серия 3.902.1-10 Выпуск 2. Панели перегородочные. Материалы для проектирования, монтажные узлы, рабочие чертежиДата актуализации: 01.01.2021
|
| Обозначение: | Серия 3.902.1-10 |
| Обозначение англ: | Series 3.902.1-10 |
| Статус: | не действует |
| Название рус.: | Выпуск 2. Панели перегородочные. Материалы для проектирования, монтажные узлы, рабочие чертежи |
| Дата добавления в базу: | 01.09.2013 |
| Дата актуализации: | 01.01.2021 |
| Дата введения: | 01.03.1985 |
| Дата окончания срока действия: | 01.12.1989 |
| Разработан: | ЦНИИпромзданий НИИЖБ ГПИ Укрводоканалпроект |
| Утверждён: | 24.12.1984 Госстрой СССР (Государственный комитет Совета Министров СССР по делам строительства) (USSR Gosstroy 39) |
| Издан: | ЦИТП Госстроя СССР (CITP, Gosstroy (USSR) 1985 г. ) |
| Чем заменён: |










































































































