Скачать Типовой проект 416-9-55.89 Альбом 2. Технологические решения. Силовое электрооборудование. ЭлектроосвещениеДата актуализации: 01.01.2021
|
| Обозначение: | Типовой проект 416-9-55.89 |
| Обозначение англ: | 416-9-55.89 |
| Статус: | не определен законодательством |
| Название рус.: | Альбом 2. Технологические решения. Силовое электрооборудование. Электроосвещение |
| Дата добавления в базу: | 01.09.2013 |
| Дата актуализации: | 01.01.2021 |
| Дата введения: | 14.07.1989 |
| Дата окончания срока действия: | 30.06.2003 |
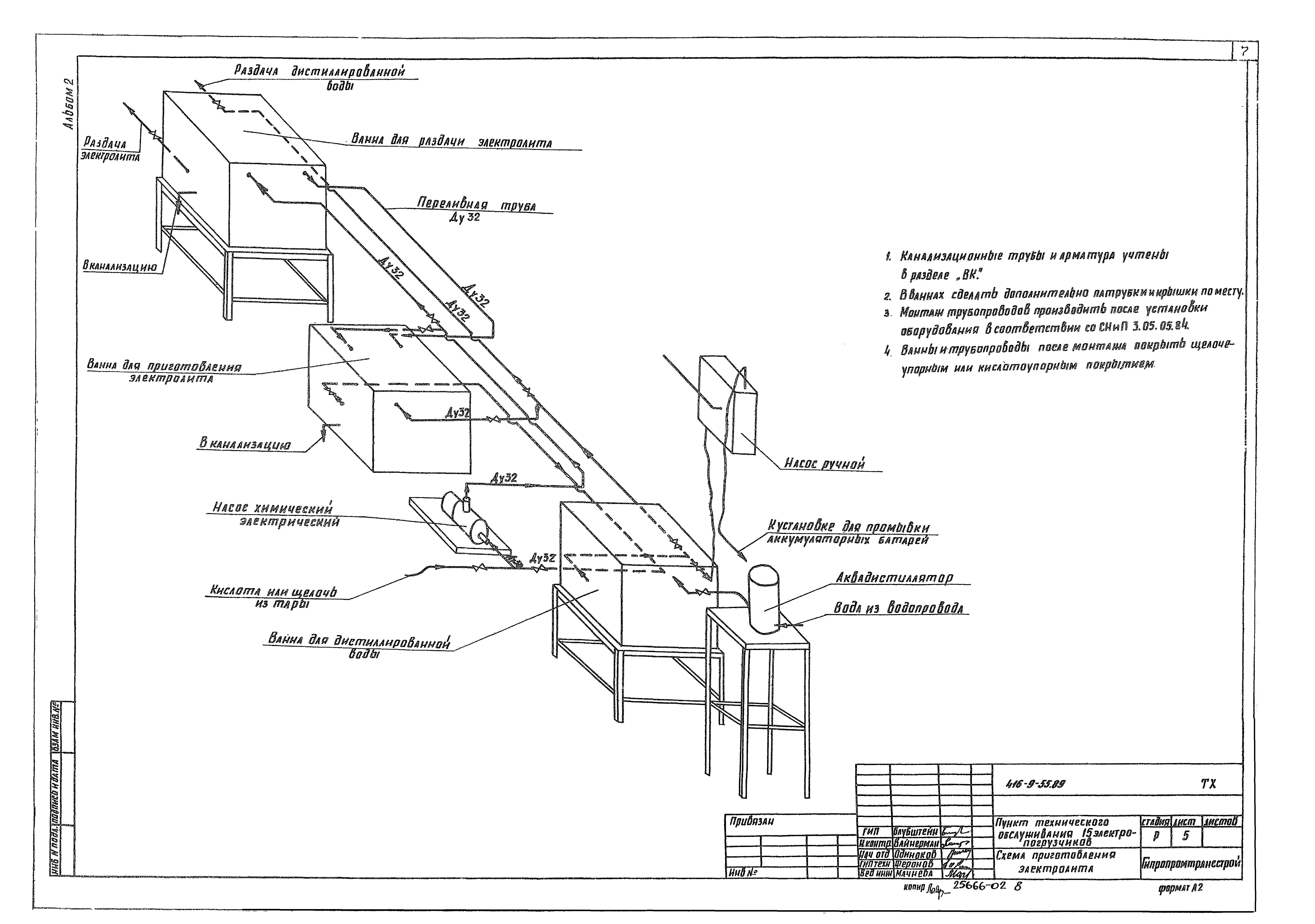
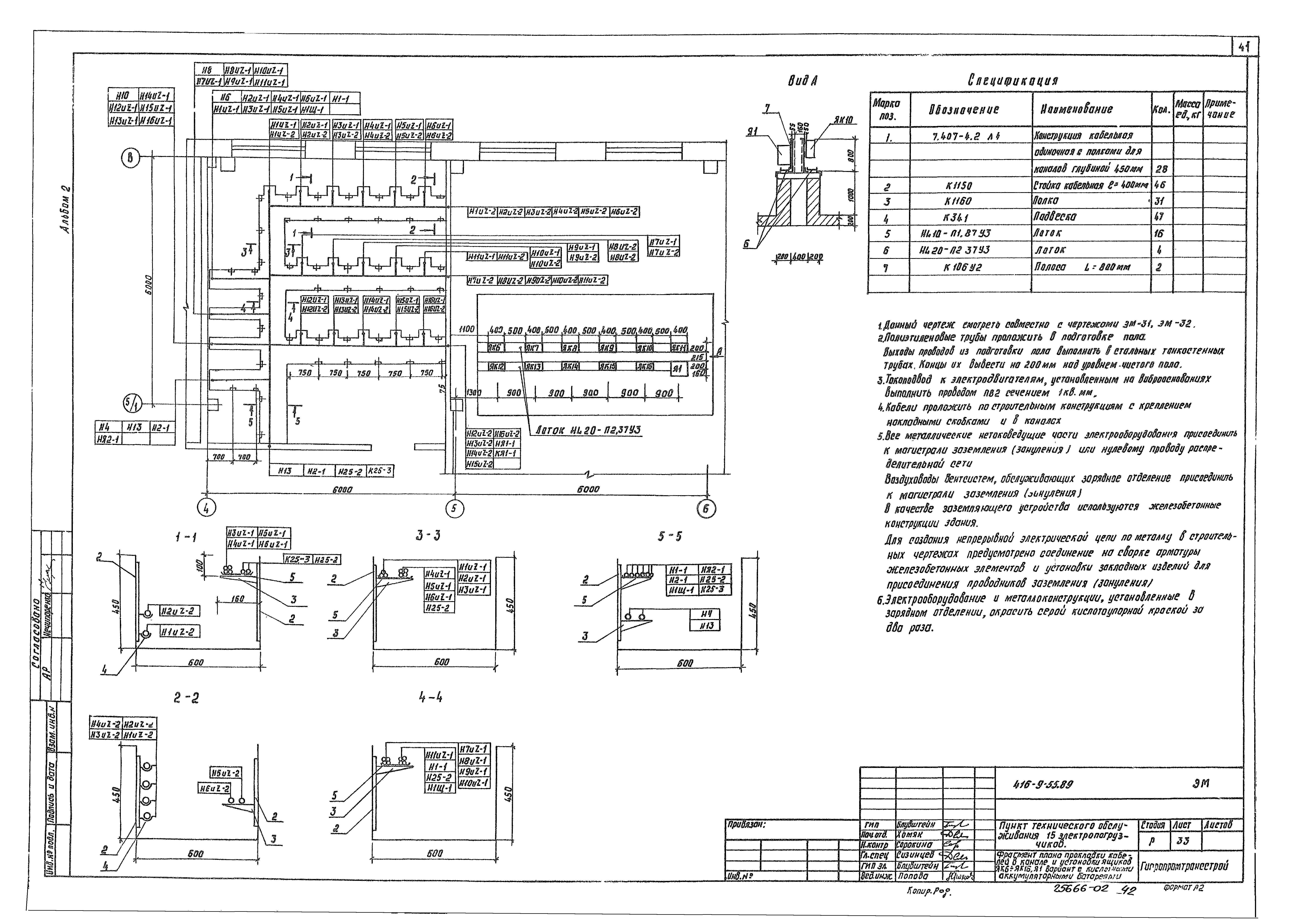
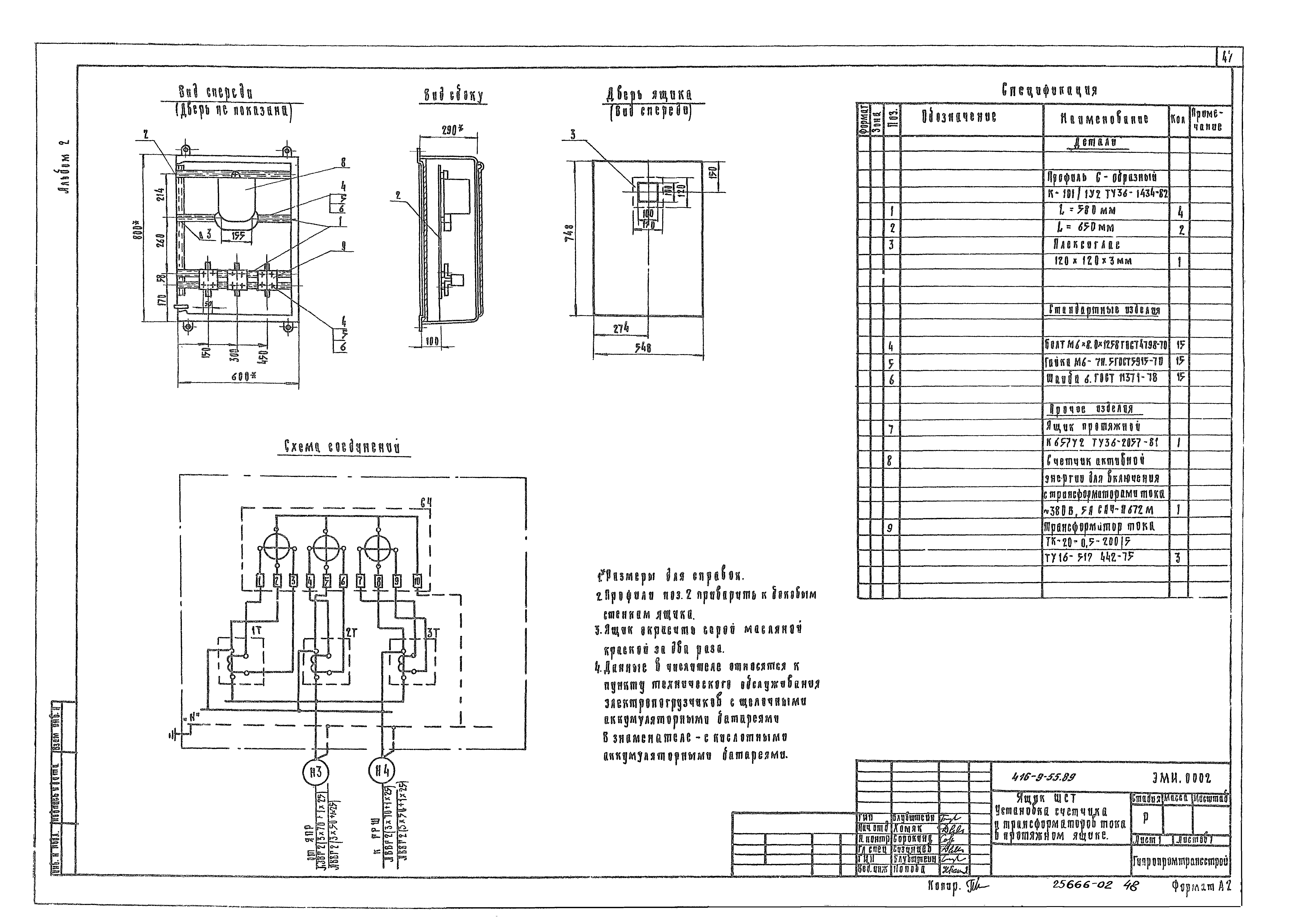
| Оглавление: | ТП 416-9-55.89 Титульный лист ТП 416-9-55.89 Содержание альбома ТП 416-9-55.89 ТХ Чертежи комплекта "ТХ" ТП 416-9-55.89 ТХ Общие данные ТП 416-9-55.89 ТХ Схемы размещения пунктов технического обслуживания ТП 416-9-55.89 ТХ План расстановки технологического оборудования. Вариант с щелочным аккумуляторными батареями ТП 416-9-55.89 ТХ План с расстановкой технологического оборудования. Вариант с кислотными аккумуляторными батареями ТП 416-9-55.89 ТХ Схема приготовления электролита ТП 416-9-55.89 ТХН-1 Подставка под электропогрузчик. Эскизный чертеж общего вида ТП 416-9-55.89 ТХН-2 Подставка под ванну для дистиллированной воды. Подставка под ванну для раздачи электролита. Подставка под дистиллятор. Эскизный чертеж общего вида ТП 416-9-55.89 ЭМ Чертежи комплекта "ЭМ" ТП 416-9-55.89 ЭМ Общие данные (начало) ТП 416-9-55.89 ЭМ Общие данные (окончание) ТП 416-9-55.89 ЭМ Питающая сеть 380,220В. Принципиальная схема. Вариант с щелочными аккумуляторными батареями ТП 416-9-55.89 ЭМ Питающая сеть 380/220В. Принципиальная схема. Вариант с кислотными аккумуляторными батареями ТП 416-9-55.89 ЭМ Распределительная сеть 380/220В. Принципиальная схема (начало). Вариант с щелочными аккумуляторными батареями ТП 416-9-55.89 ЭМ Распределительная сеть 380/220В. Принципиальная схема (продолжение). Вариант с щелочными аккумуляторными батареями ТП 416-9-55.89 ЭМ Распределительная сеть 380/220В. Принципиальная схема (окончание). Вариант с щелочными аккумуляторными батареями ТП 416-9-55.89 ЭМ Распределительная сеть 380/220В. Схема принципиальная (начало). Вариант с кислотными аккумуляторными батареями ТП 416-9-55.89 ЭМ Распределительная сеть 380/220В. Схема принципиальная (продолжение). Вариант с кислотными аккумуляторными батареями ТП 416-9-55.89 ЭМ Распределительная сеть 380/220В. Схема принципиальная (окончание). Вариант с кислотными аккумуляторными батареями ТП 416-9-55.89 ЭМ Сеть постоянного тока. Принципиальная схема (начало). Вариант с щелочными аккумуляторными батареями ТП 416-9-55.89 ЭМ Сеть постоянного тока. Принципиальная схема (окончание). Вариант с щелочными аккумуляторными батареями ТП 416-9-55.89 ЭМ Сеть постоянного тока. Принципиальная схема (начало). Вариант с кислотными аккумуляторными батареями ТП 416-9-55.89 ЭМ Сеть постоянного тока. Принципиальная схема (окончание). Вариант с кислотными аккумуляторными батареями ТП 416-9-55.89 ЭМ Разрядное устройство для щелочных аккумуляторных батарей. Схема принципиальная электрическая ТП 416-9-55.89 ЭМ Разрядное устройство для кислотных аккумуляторных батарей. Схема принципиальная электрическая ТП 416-9-55.89 ЭМ Вентсистема В1. Отопительный агрегат А1(А2). Управление. Схемы принципиальные электротехнические ТП 416-9-55.89 ЭМ Градирня №25. Насосы №№26,27. Управление. Схемы принципиальные электрические ТП 416-9-55.89 ЭМ Отключение вентсистемы при пожаре. Вентиль УА. Управление. Схема принципиальная электрическая ТП 416-9-55.89 ЭМ Щит разряда 1Щ. Ящик разряда Я1. Схемы подключения ТП 416-9-55.89 ЭМ Ящики управления 2ШУ,13ШУ. Схемы подключения ТП 416-9-55.89 ЭМ Ящики управления 25ШУ,26ШУ. Схемы подключения ТП 416-9-55.89 ЭМ Ящик Я2. Схема подключения ТП 416-9-55.89 ЭМ Ящик 12ШУ. Пускатели КМ1-КМ3, 10КМ (11КМ). Схемы подключения ТП 416-9-55.89 ЭМ Кабельный журнал ТП 416-9-55.89 ЭМ План расположения электрооборудования и прокладки кабелей. Вариант с щелочными аккумуляторными батареями ТП 416-9-55.89 ЭМ Фрагмент плана расположения электрооборудования, прокладки труб и кабелей. Вариант с щелочными аккумуляторными батареями ТП 416-9-55.89 ЭМ Фрагмент плана прокладки кабелей в канале и установка ящиков ЯК6-ЯК14,Я1. Вариант с щелочными аккумуляторными батареями ТП 416-9-55.89 ЭМ План расположения электрооборудования и прокладки кабелей. Вариант с кислотными аккумуляторными батареями ТП 416-9-55.89 ЭМ Фрагмент плана расположения электрооборудования, прокладки труб и кабелей. Вариант с кислотными аккумуляторными батареями ТП 416-9-55.89 ЭМ Фрагмент плана прокладки кабелей в канале и установки ящиков ЯК6-ЯК16,Я1. Вариант с кислотными аккумуляторными батареями ТП 416-9-55.89 ЭМ Спецификация к чертежам ЭМ28-ЭМ30. Вариант с щелочными аккумуляторными батареями ТП 416-9-55.89 ЭМ Спецификация к чертежам ЭМ31-ЭМ32. Вариант с кислотными аккумуляторными батареями ТП 416-9-55.89 ЭМ Молниезащита ТП 416-9-55.89 ЭМТВ Ведомость изделий, материалов и электромонтажных конструкций МЭЗ ТП 416-9-55.89 ЭМИ0001 Ящик ЯРП. Установка рубильников в протяжном ящике ТП 416-9-55.89 ЭМИ0002 Ящик ШСТ. Установка счетчика и трансформаторов тока в протяжном ящике ТП 416-9-55.89 ЭМИ0003 Коробка У995 с зажимами наборными ТП 416-9-55.89 ЭО Чертежи комплекта "ЭО" ТП 416-9-55.89 ЭО Общие данные ТП 416-9-55.89 ЭО План расположения |
| Разработан: | Гипропромтрансстрой |
| Утверждён: | 14.07.1989 МПС (Ministry of Railroads Д1866у) |


















































