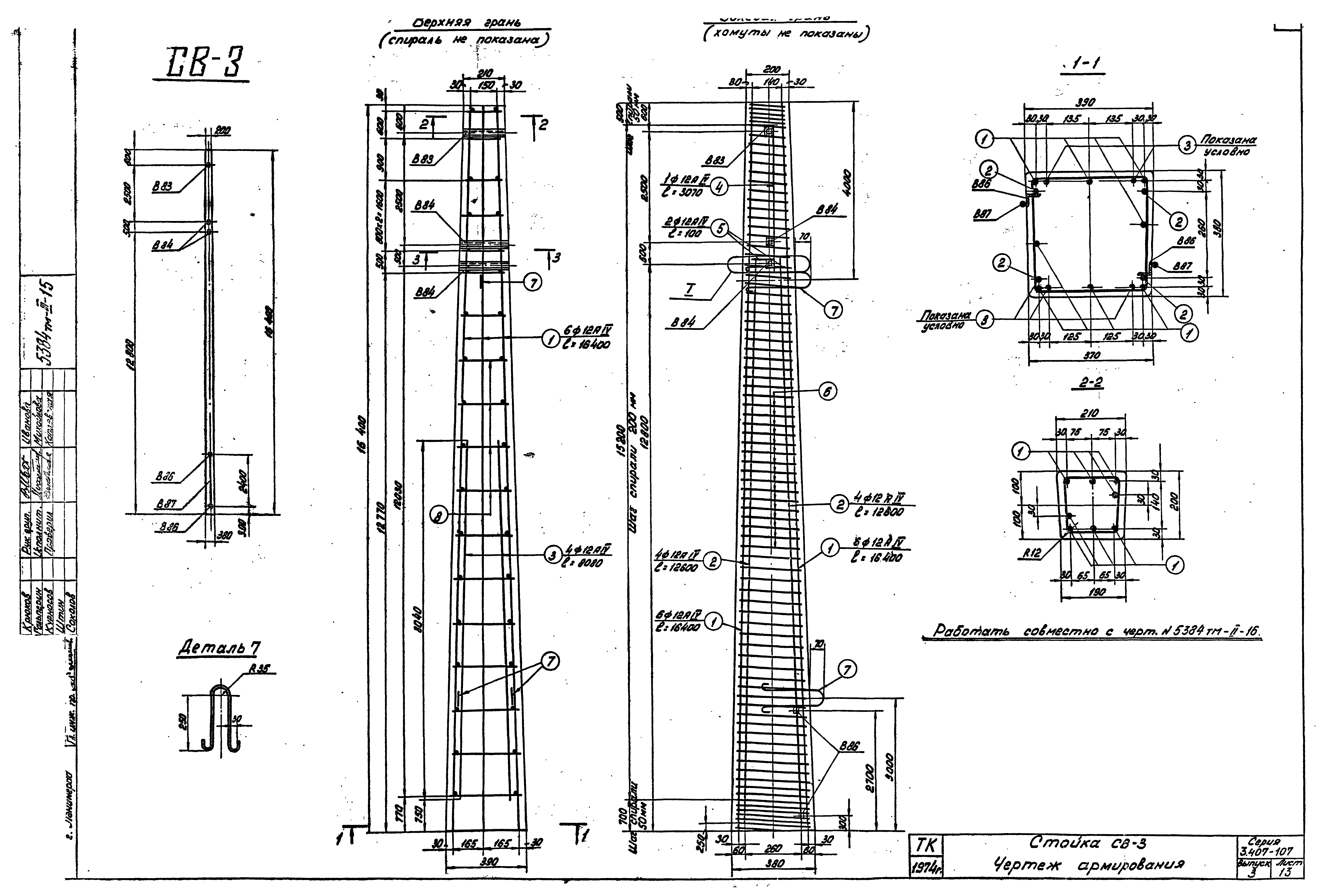
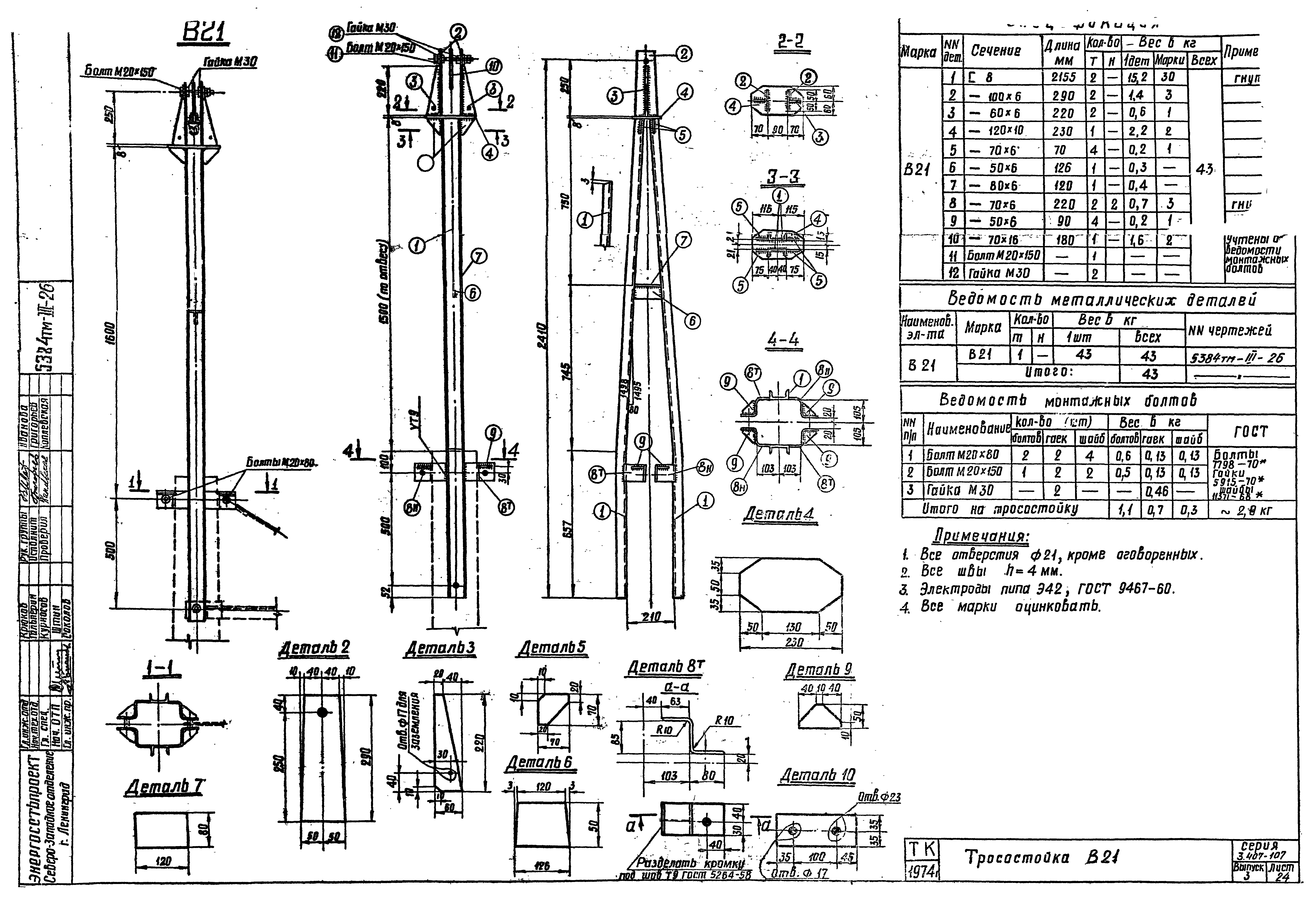
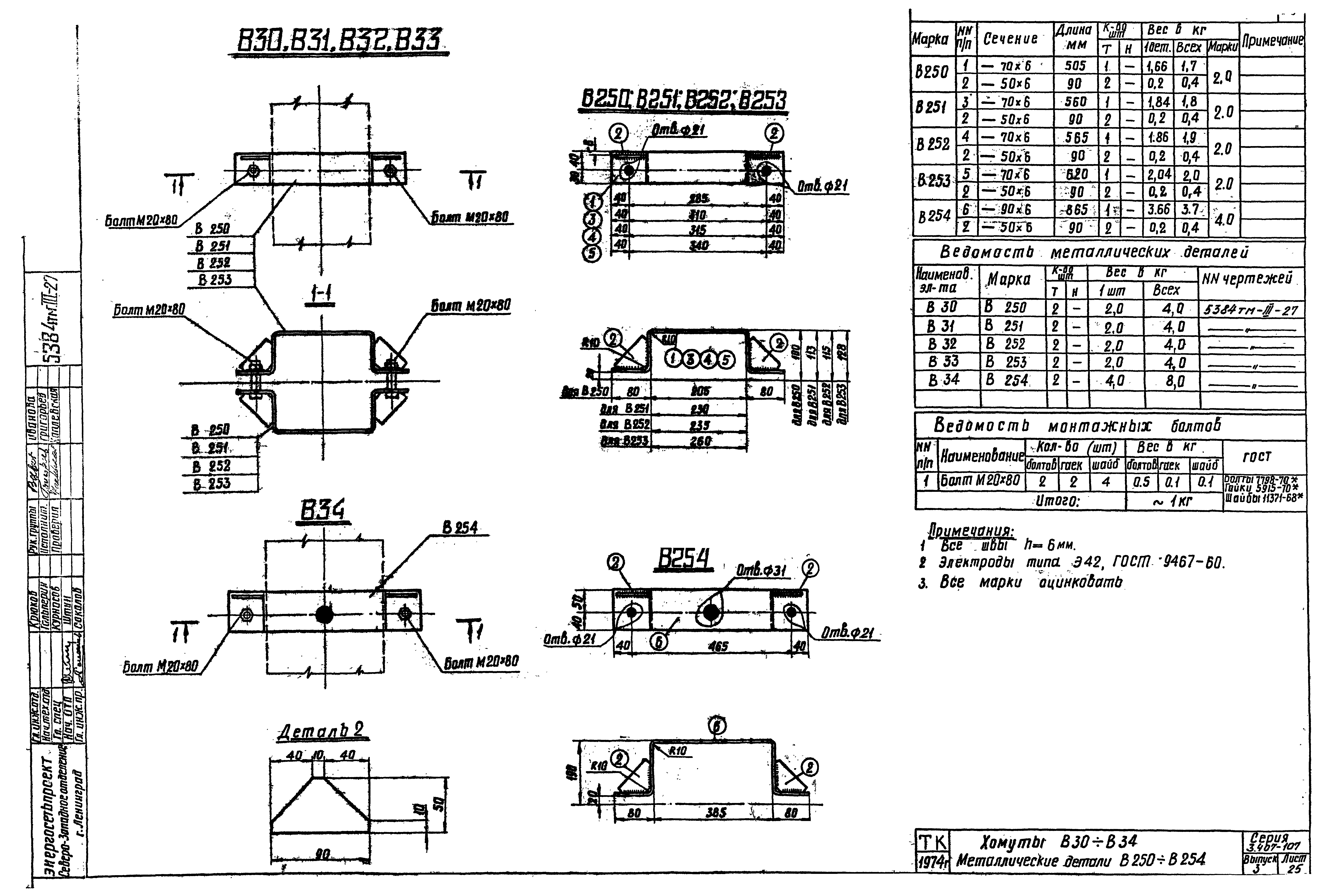
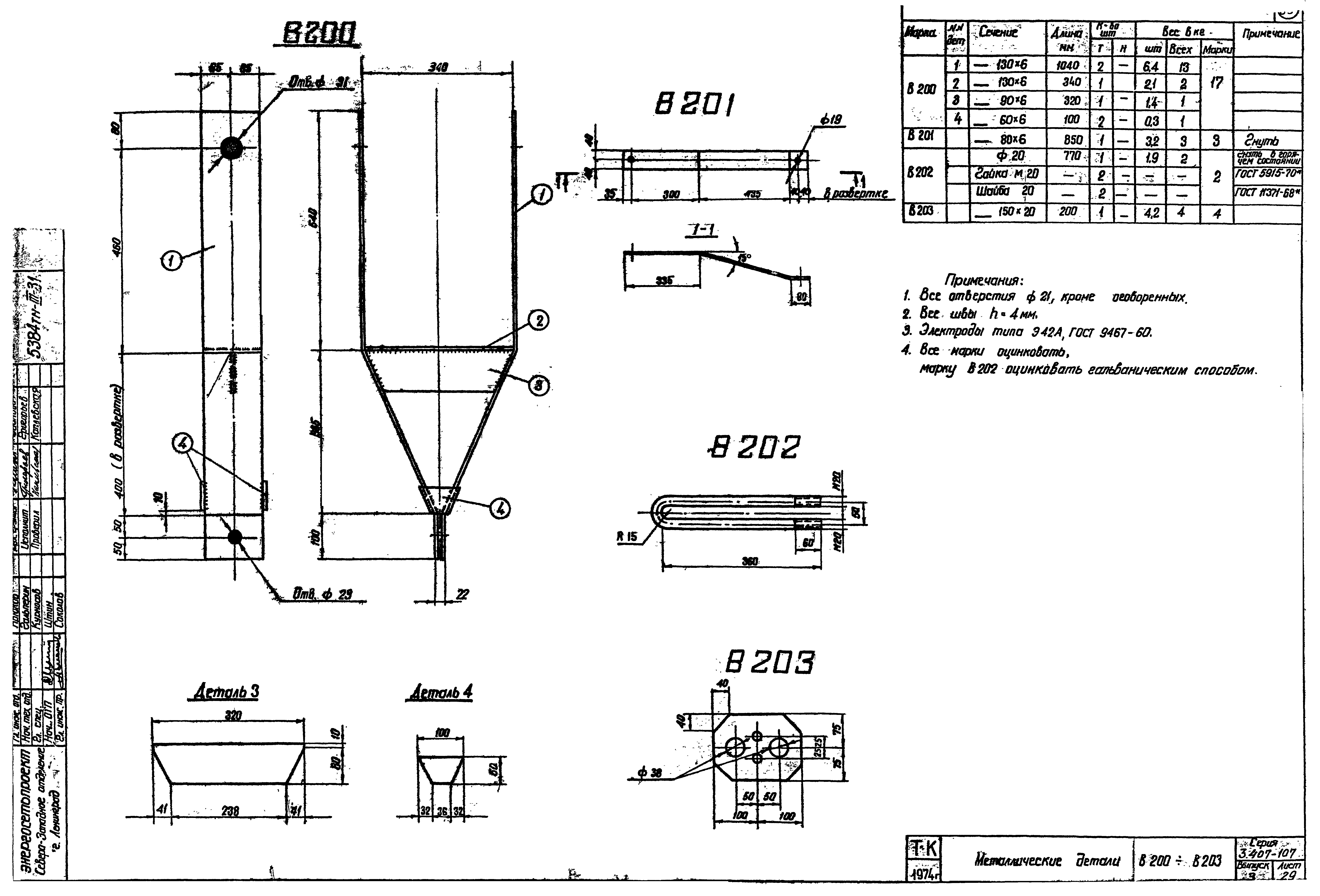
Скачать Серия 3.407-107 Выпуск 3. Рабочие чертежи нормальных и специальных опор ВЛ 35 кВ на вибрированных стойкахДата актуализации: 01.01.2021
|
| Обозначение: | Серия 3.407-107 |
| Обозначение англ: | Series 3.407-107 |
| Статус: | не действует |
| Название рус.: | Выпуск 3. Рабочие чертежи нормальных и специальных опор ВЛ 35 кВ на вибрированных стойках |
| Дата добавления в базу: | 01.09.2013 |
| Дата актуализации: | 01.01.2021 |
| Дата окончания срока действия: | 01.02.1989 |
| Разработан: | Северо-западное отделение института Энергосетьпроект |
| Утверждён: | 27.12.1974 Минэнерго СССР (USSR Minenergo 271) |
| Чем заменён: |





























