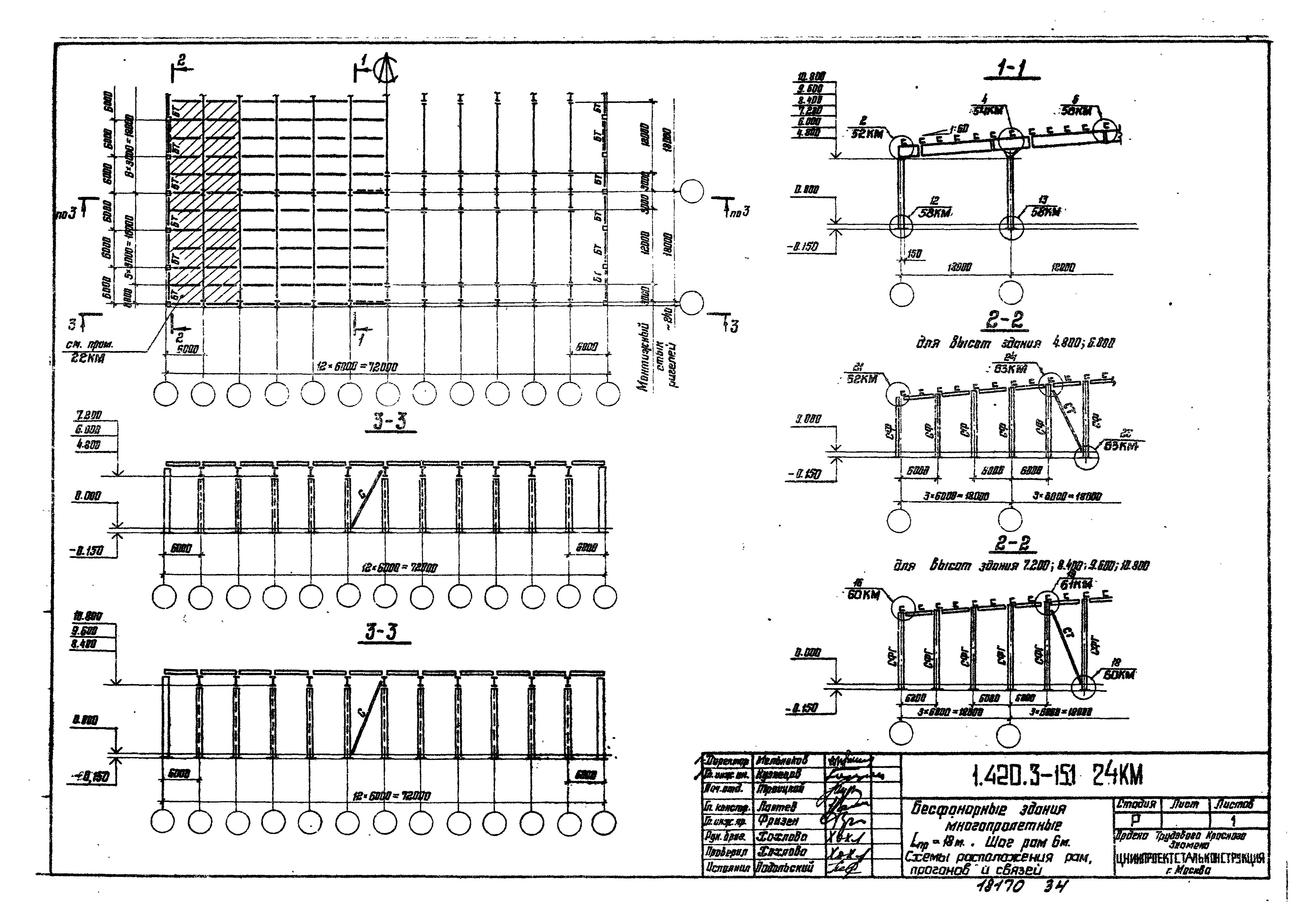
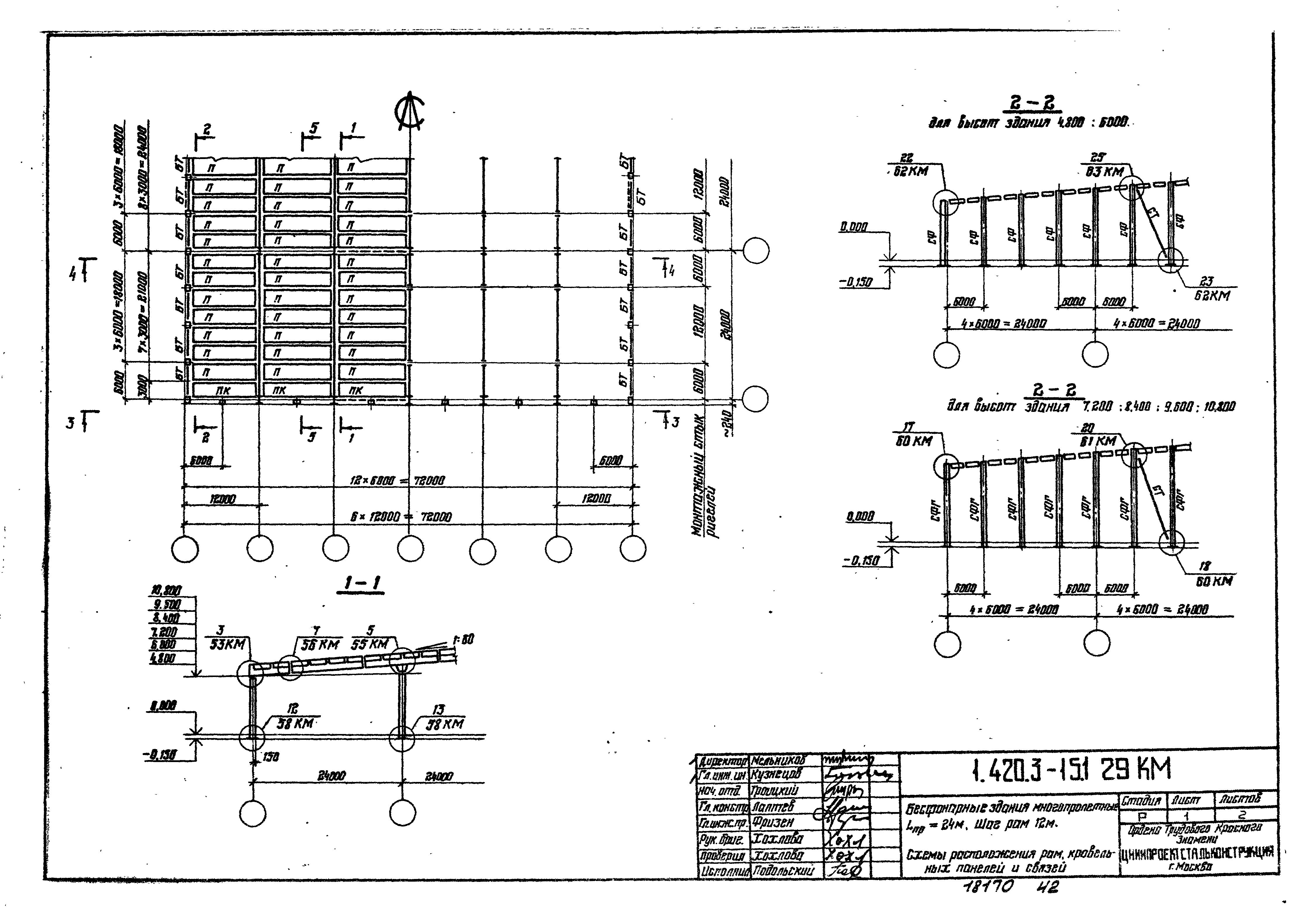
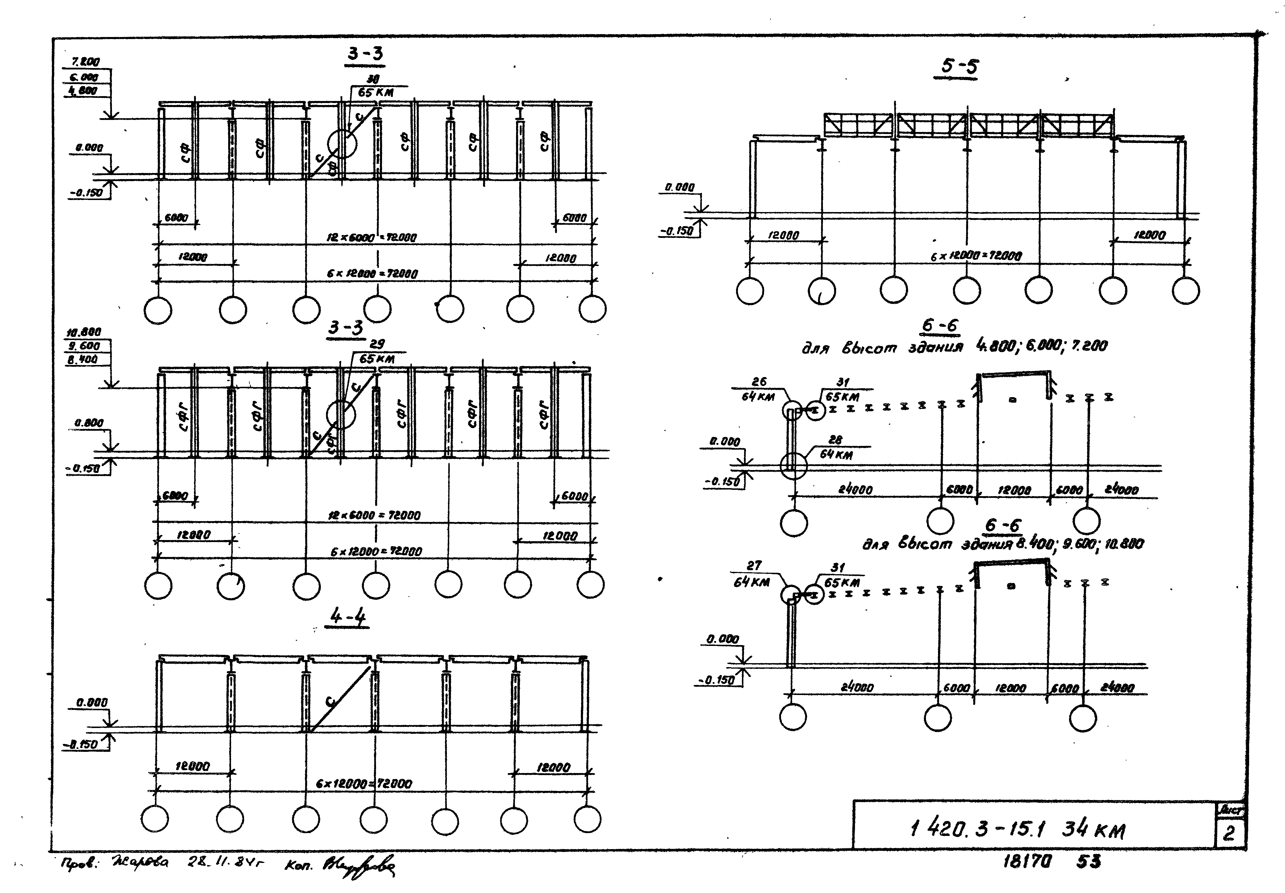
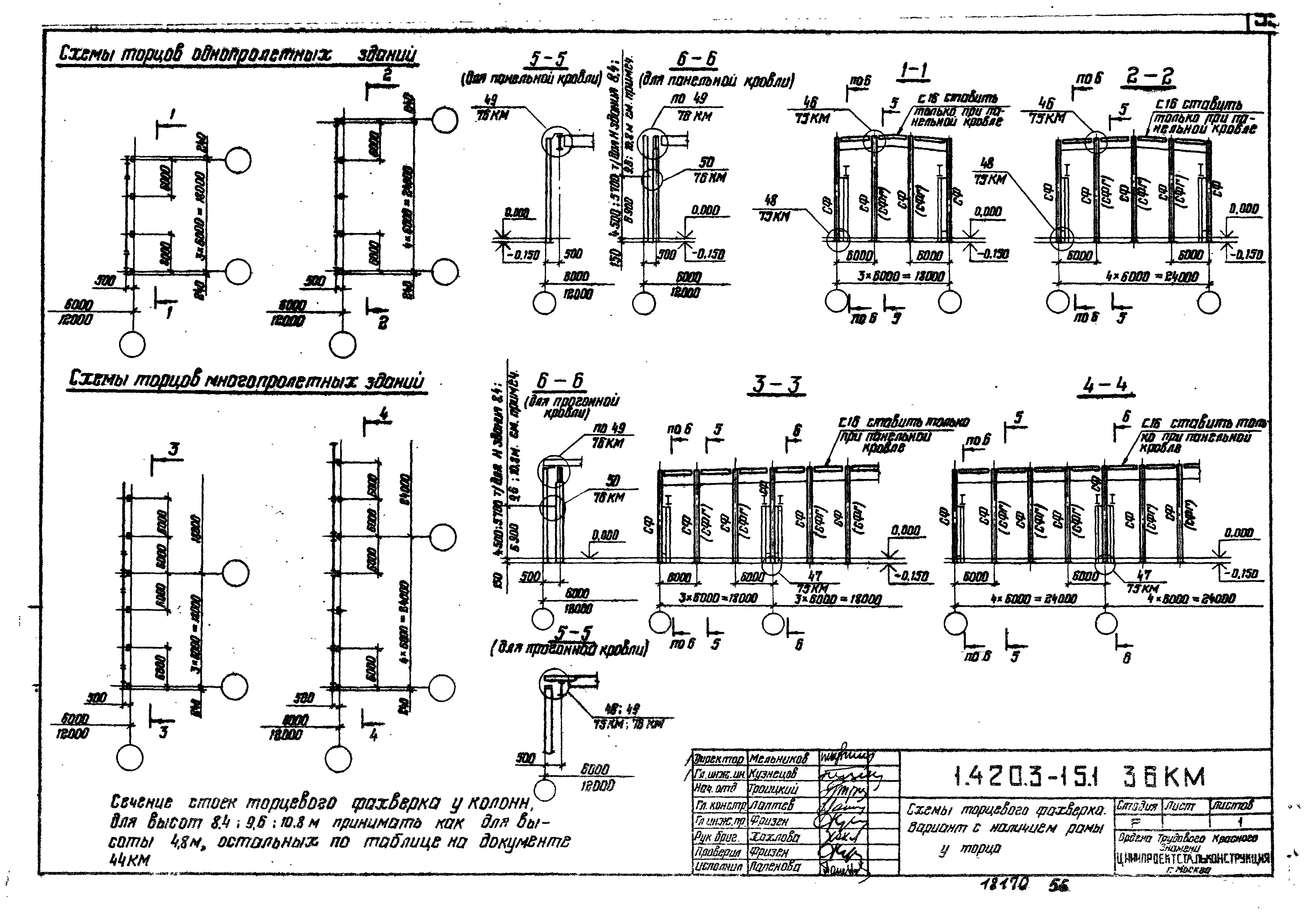
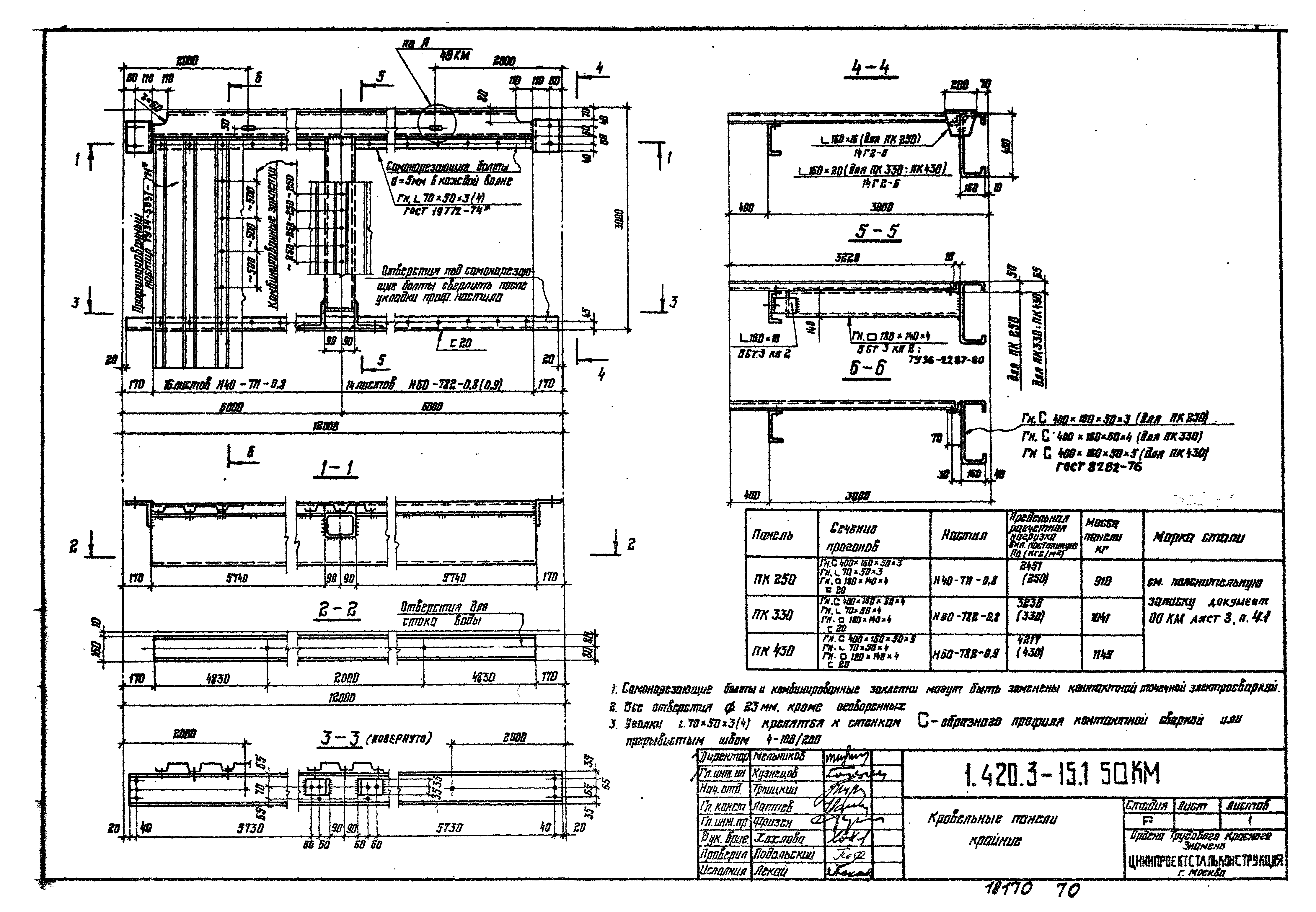
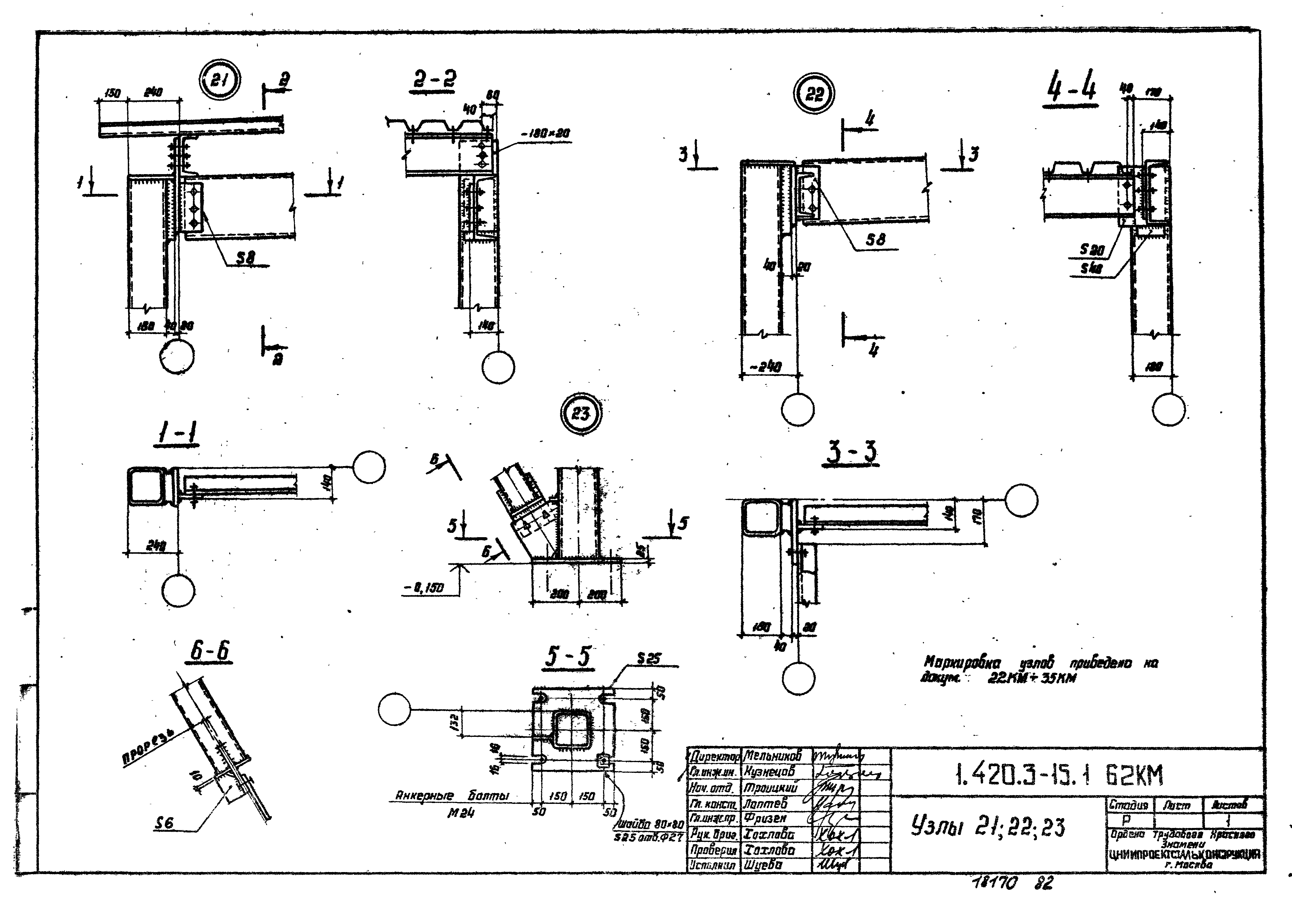
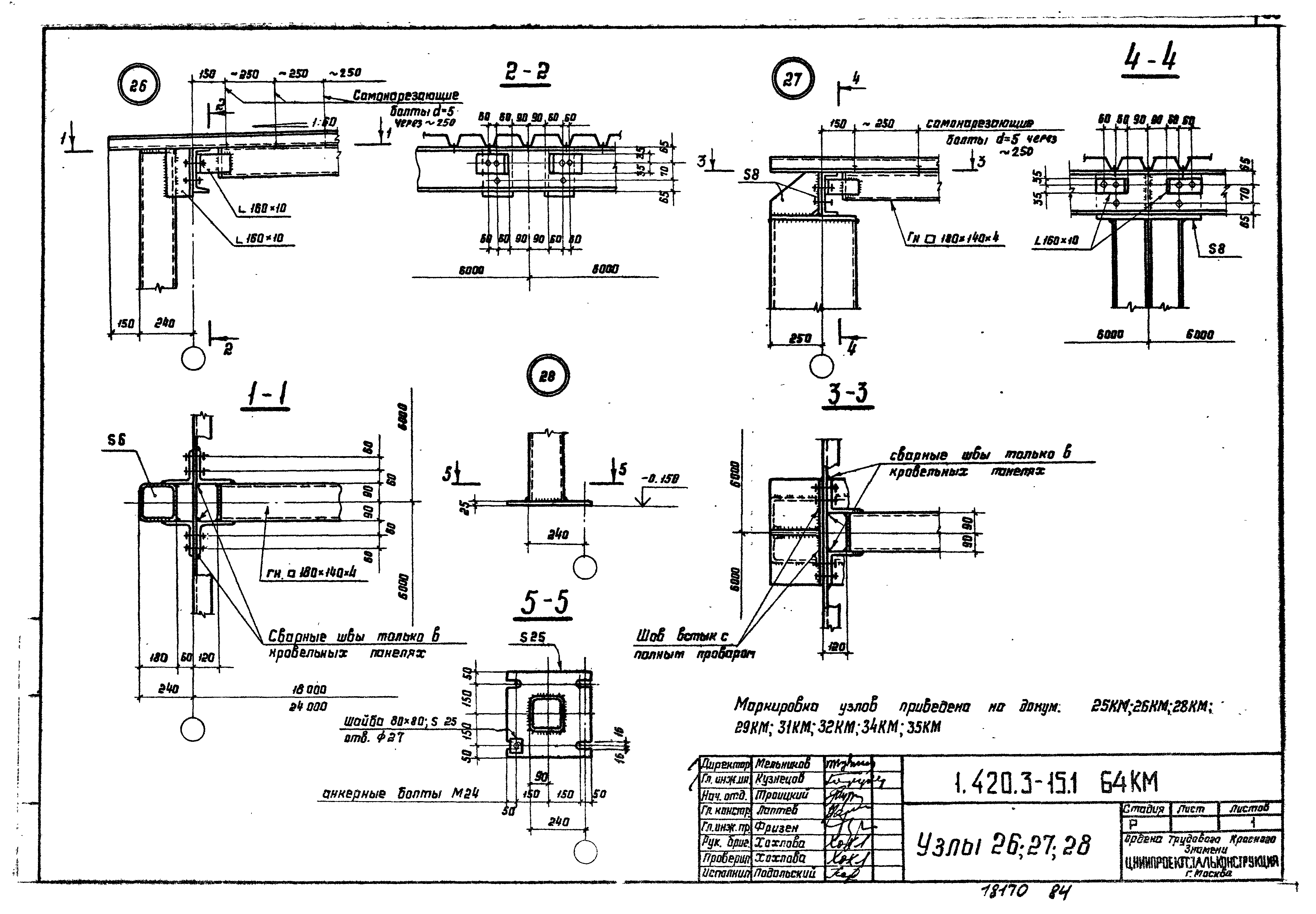
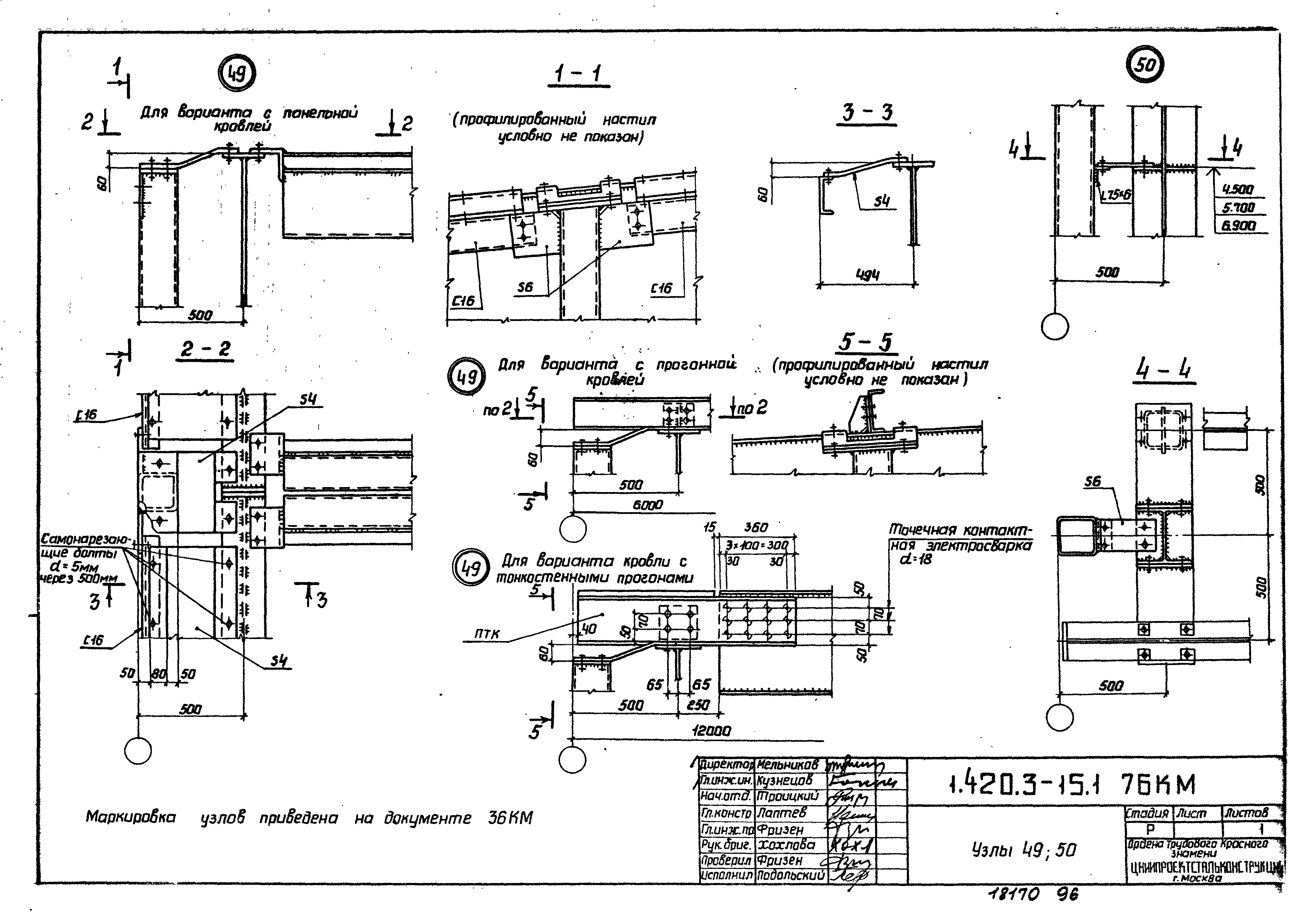
Скачать Серия 1.420.3-15 Выпуск 1. Конструкции каркасов зданий пролетами 18 и 24 м, возводимых в районах с расчетными температурами минус 65 градусов Цельсия и выше. Чертежи КМДата актуализации: 01.01.2021 Серия 1.420.3-15
Выпуск 1. Конструкции каркасов зданий пролетами 18 и 24 м, возводимых в районах с расчетными температурами минус 65 градусов Цельсия и выше. Чертежи КМ| Обозначение: | Серия 1.420.3-15 | | Обозначение англ: | Series 1.420.3-15 | | Статус: | не действует | | Название рус.: | Выпуск 1. Конструкции каркасов зданий пролетами 18 и 24 м, возводимых в районах с расчетными температурами минус 65 градусов Цельсия и выше. Чертежи КМ | | Дата добавления в базу: | 01.09.2013 | | Дата актуализации: | 01.01.2021 | | Дата введения: | 01.04.1982 | | Дата окончания срока действия: | 01.05.1989 | | Разработан: | ЦНИИпромзданий ЦНИИпроектстальконструкция
| | Утверждён: | 02.12.1981 Госстрой СССР (Государственный комитет Совета Министров СССР по делам строительства) (USSR Gosstroy 80)
| | Чем заменён: | |
                                                                                                  
|