Скачать Серия 3.006-2 Выпуск III-1. Рабочие чертежи узлов трассДата актуализации: 01.01.2021
|
| Обозначение: | Серия 3.006-2 |
| Обозначение англ: | Series 3.006-2 |
| Статус: | заменен |
| Название рус.: | Выпуск III-1. Рабочие чертежи узлов трасс |
| Дата добавления в базу: | 01.09.2013 |
| Дата актуализации: | 01.01.2021 |
| Дата введения: | 01.01.1979 |
| Дата окончания срока действия: | 01.12.1984 |
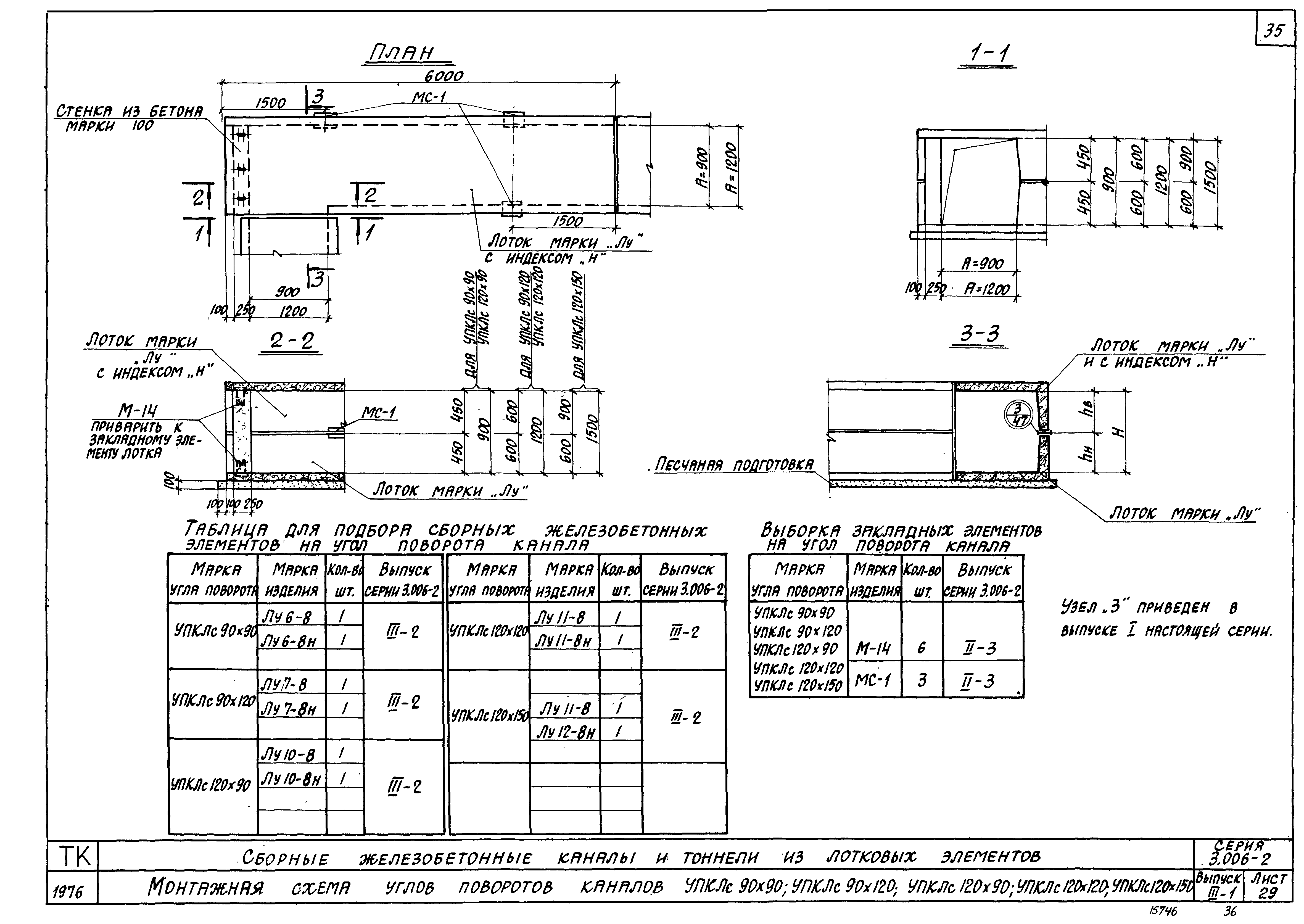
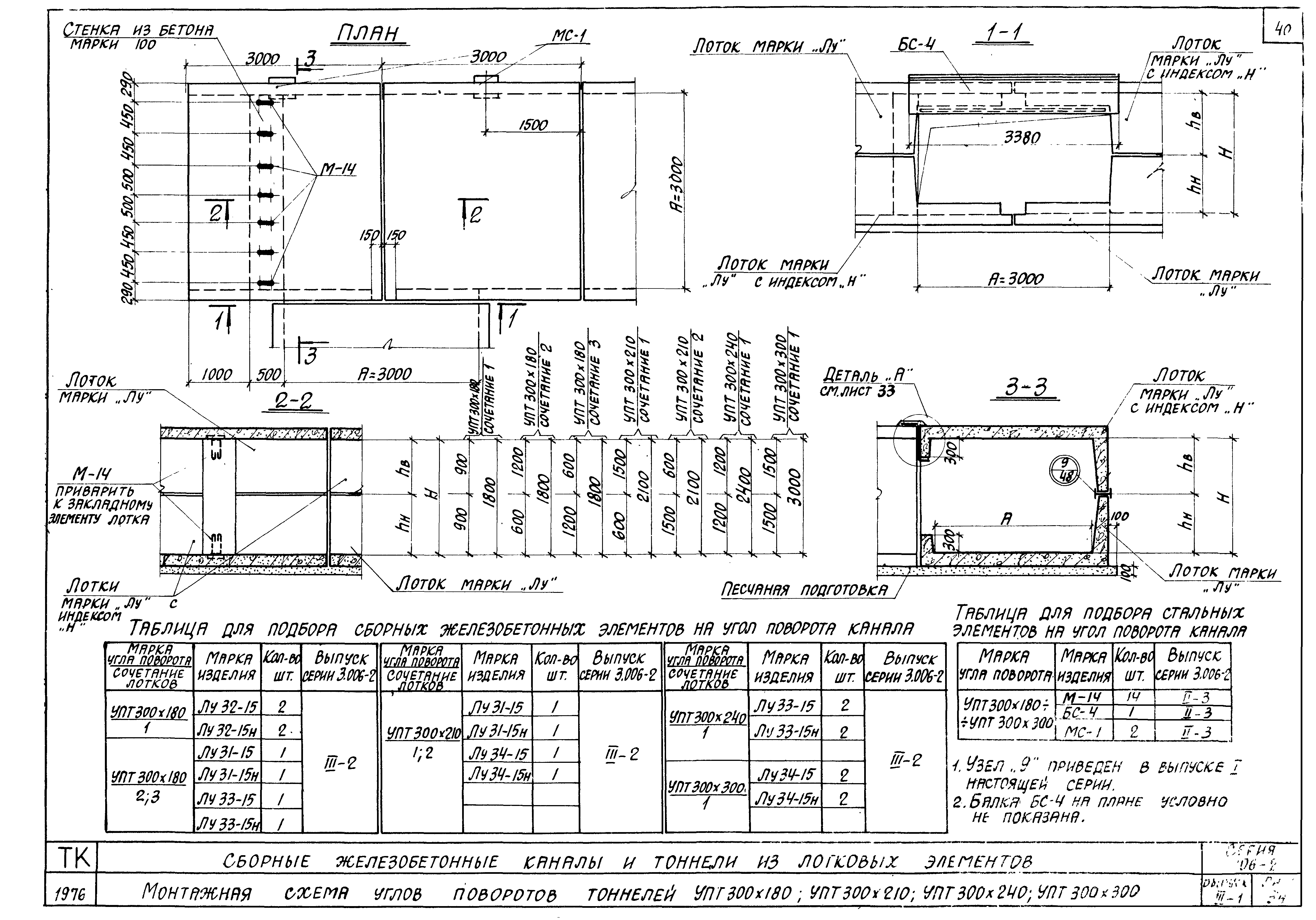
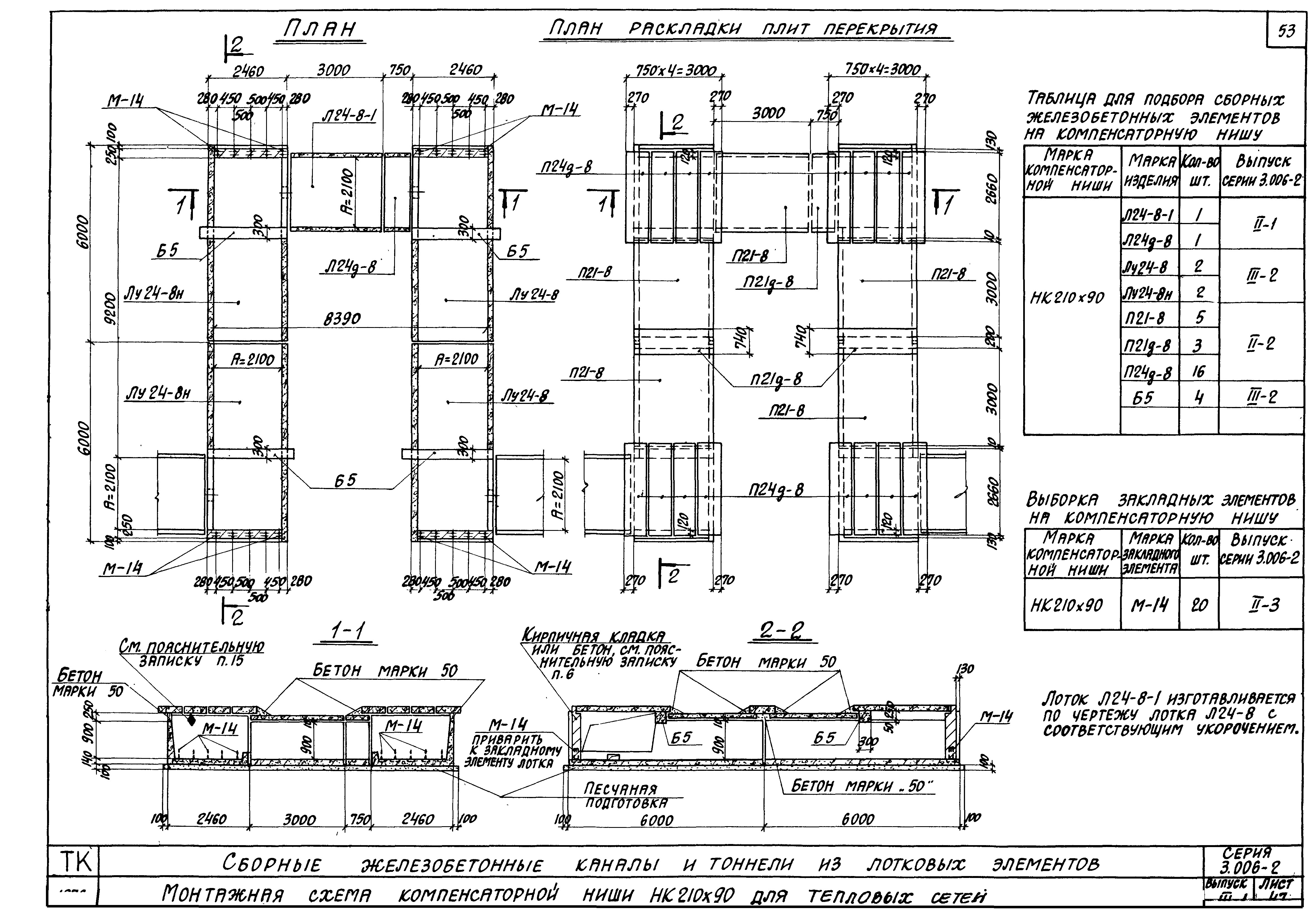
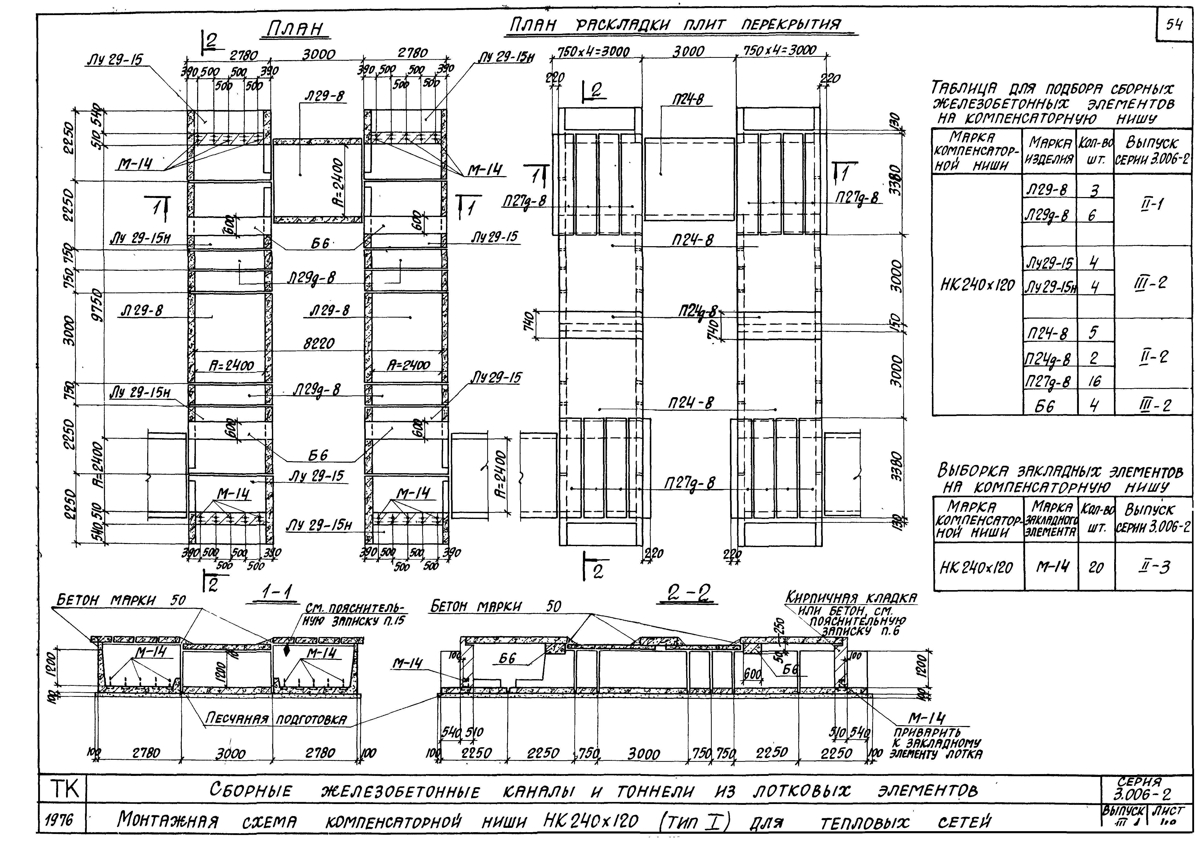
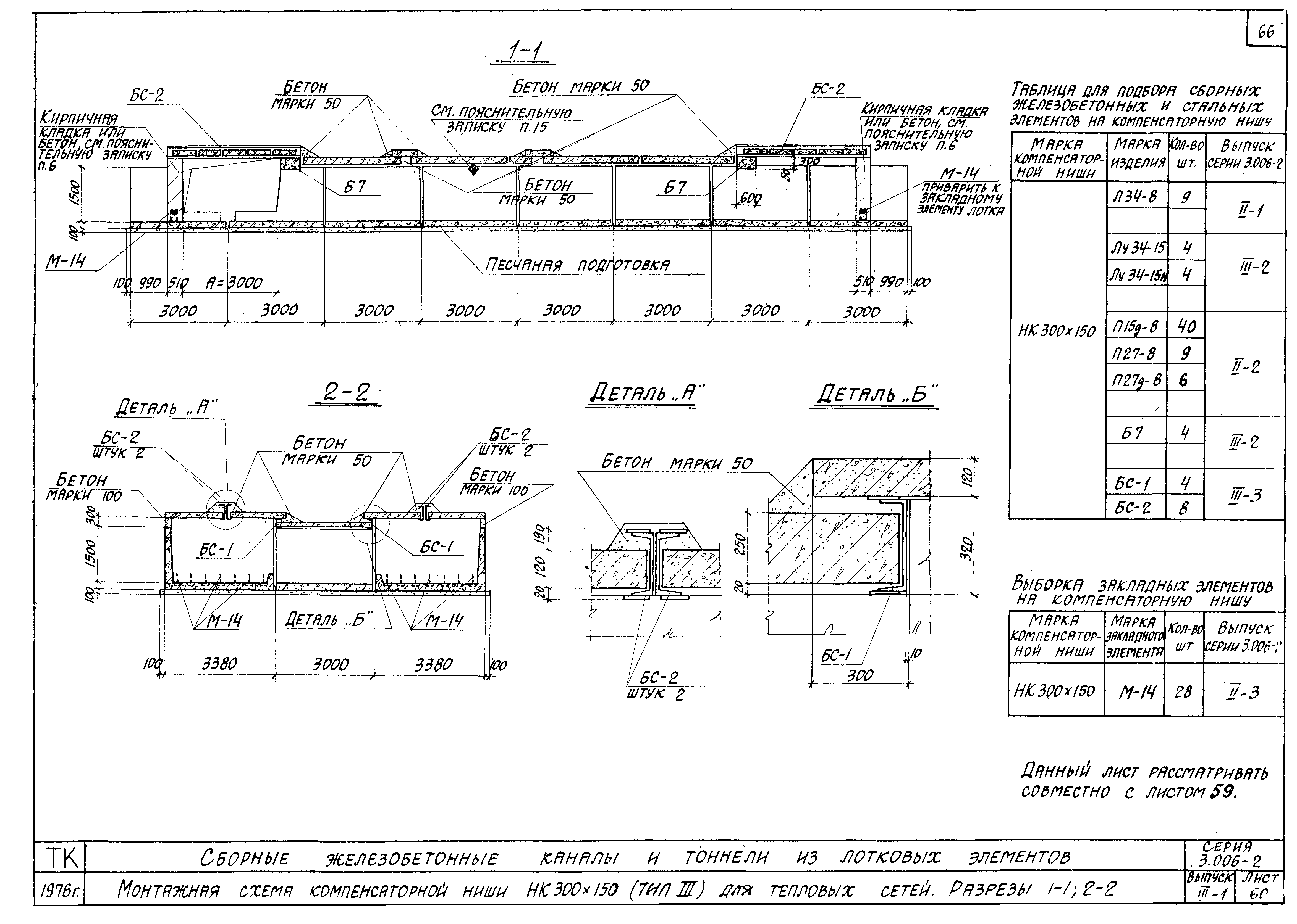
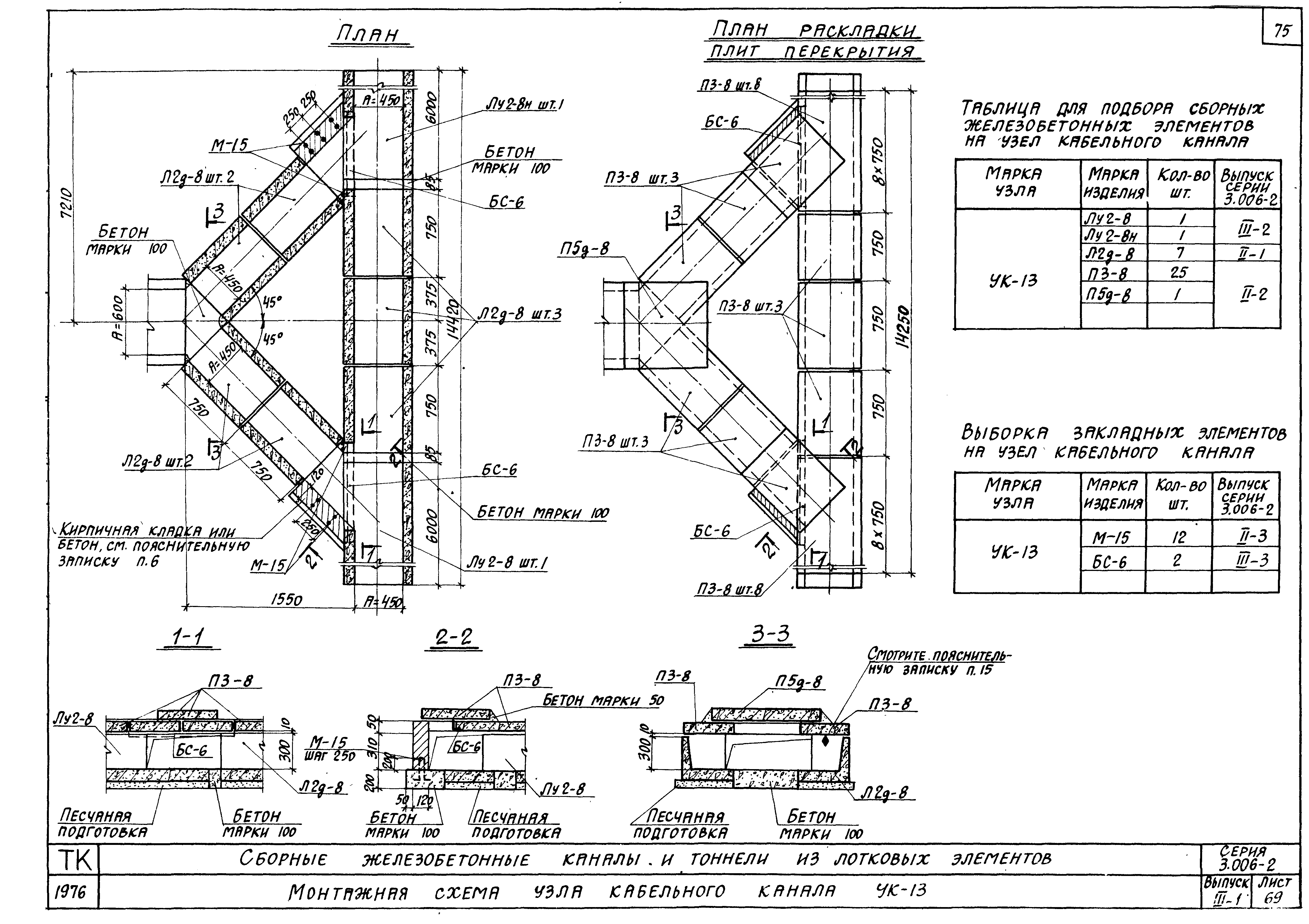
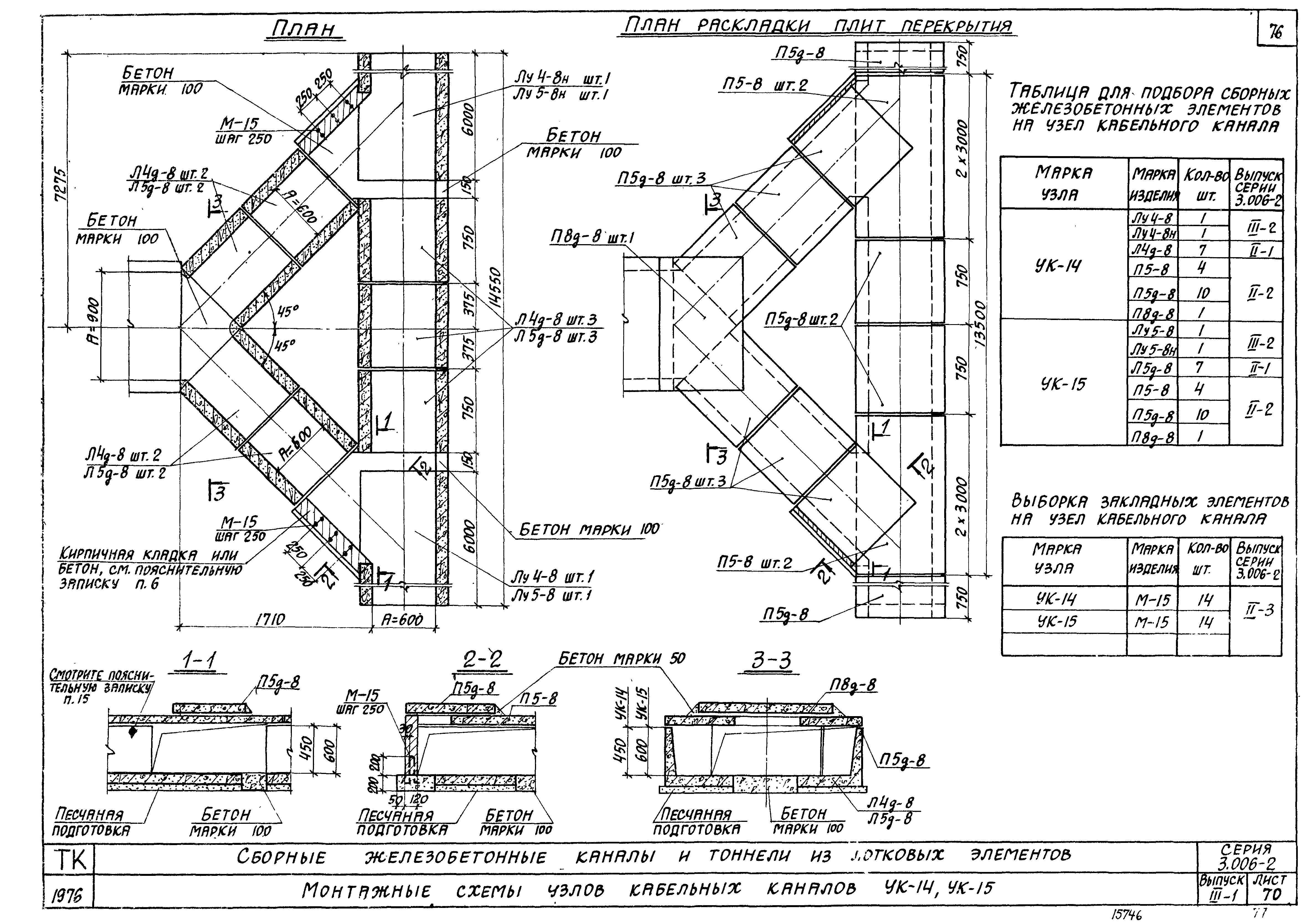
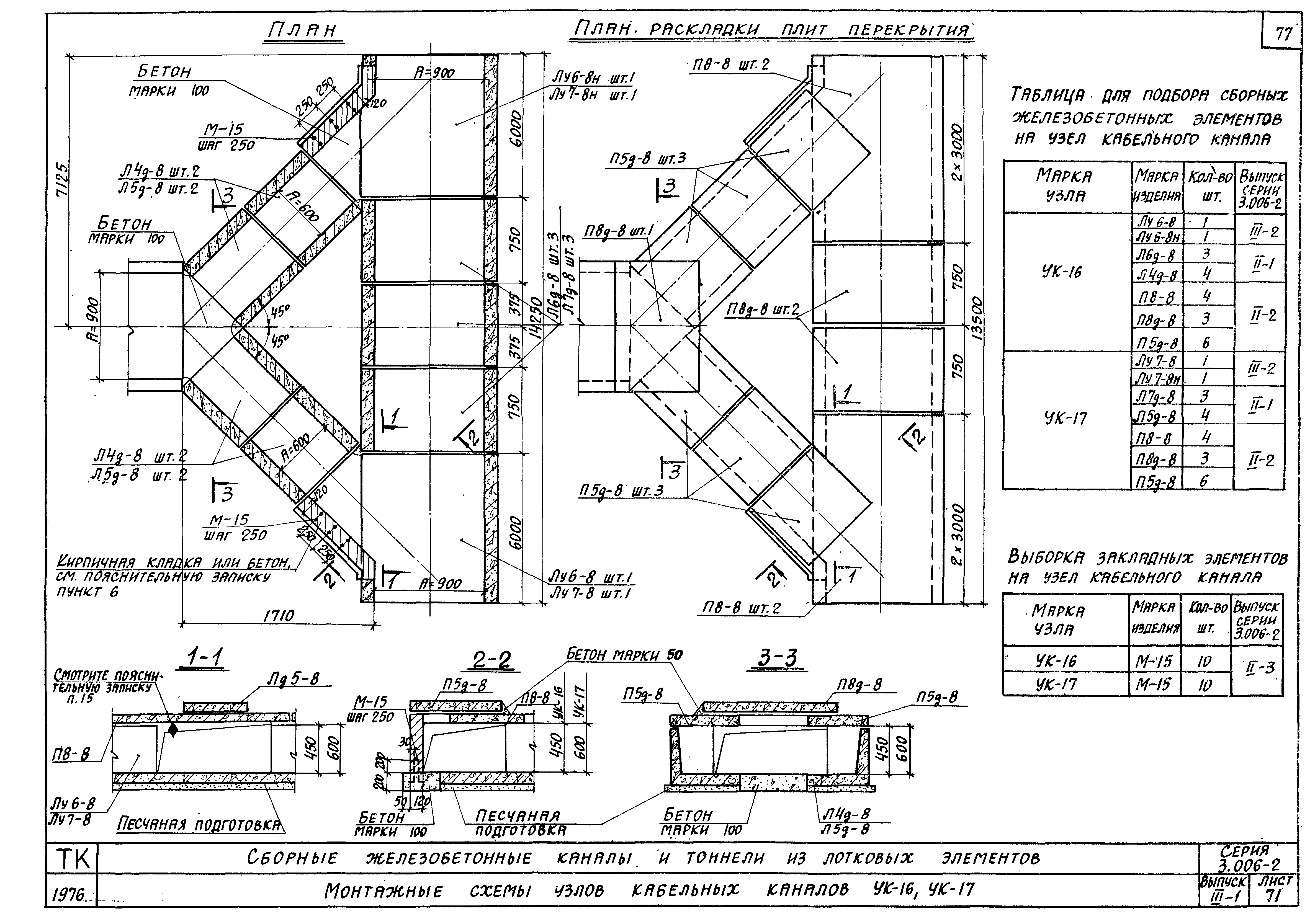
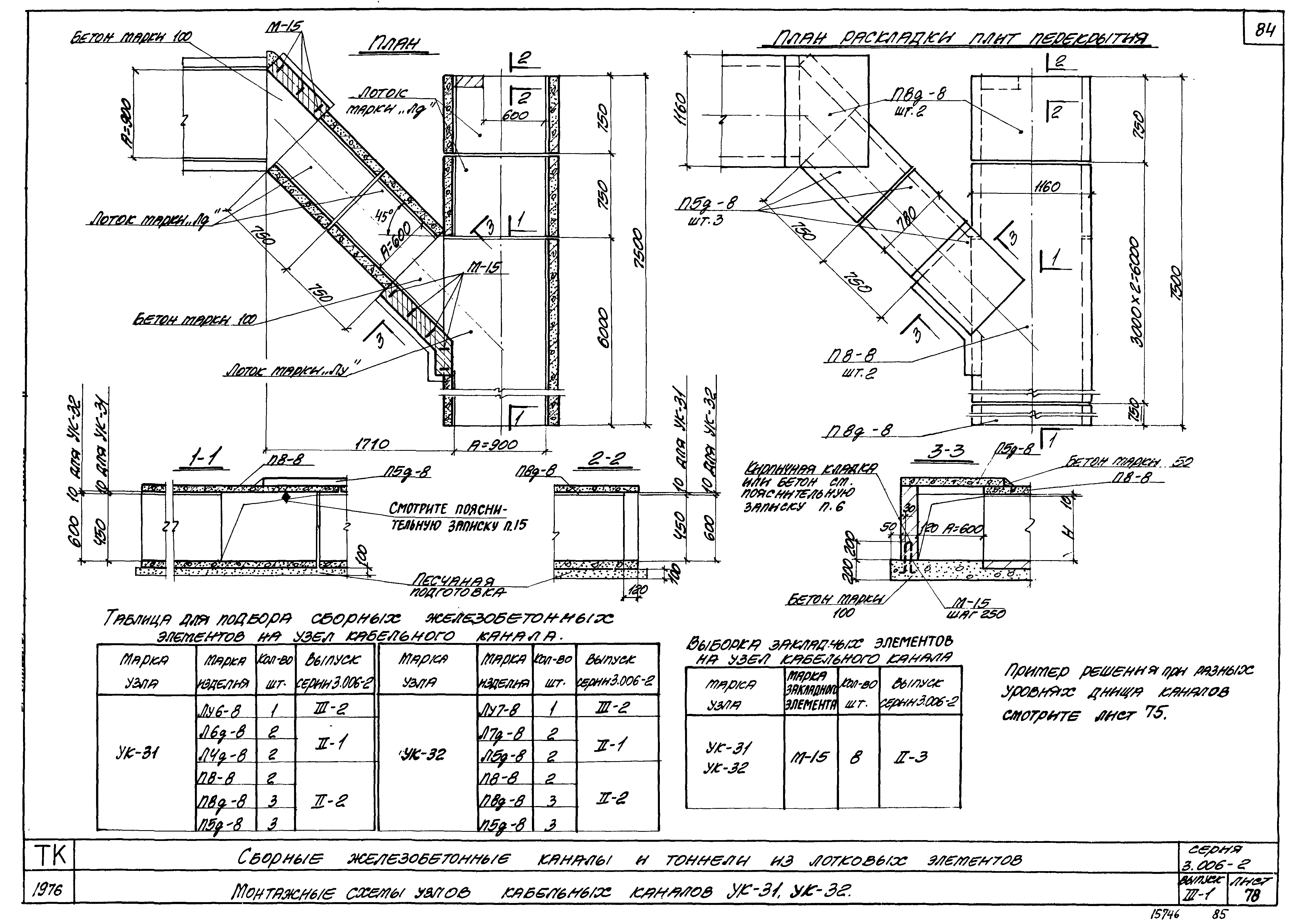
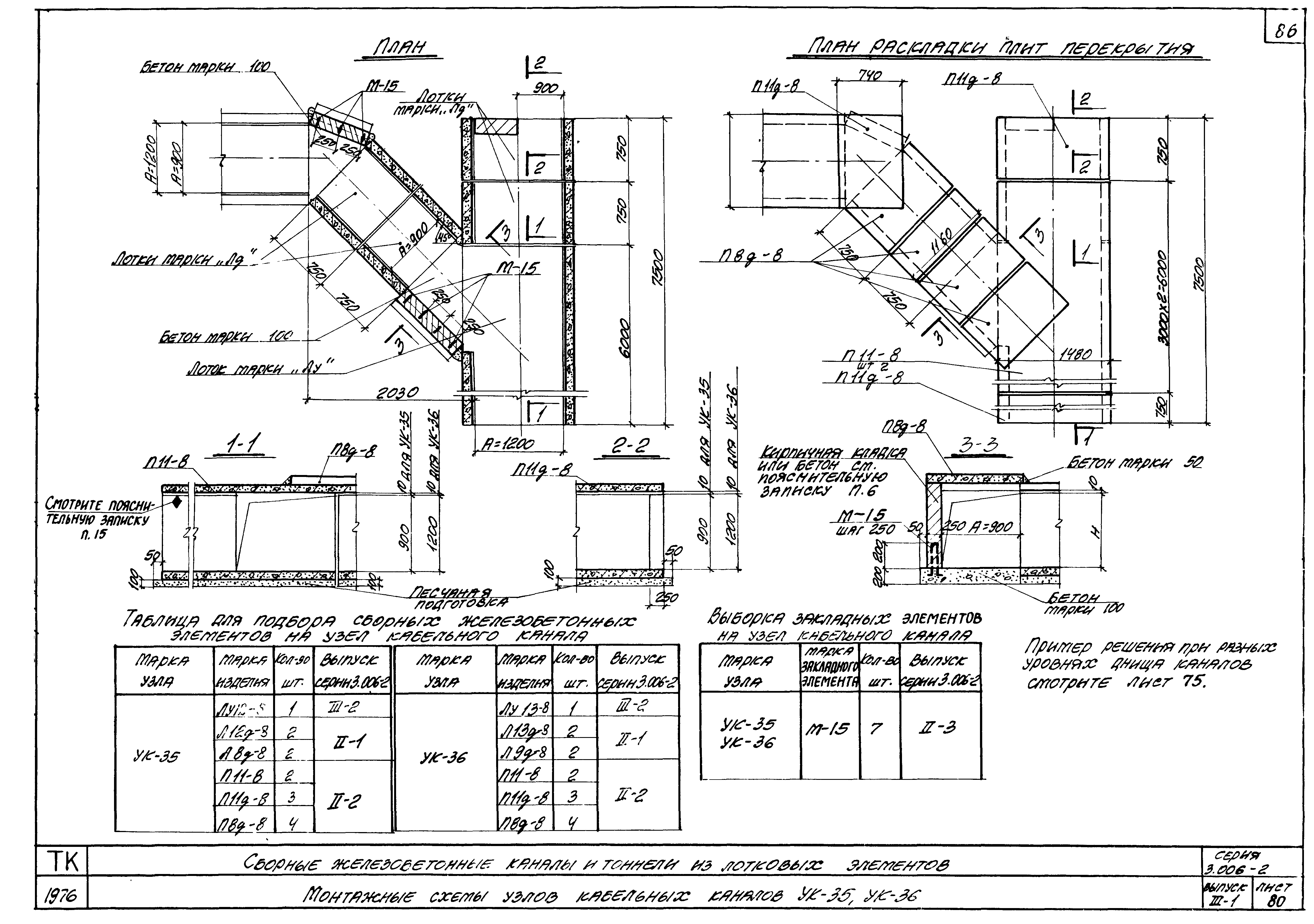
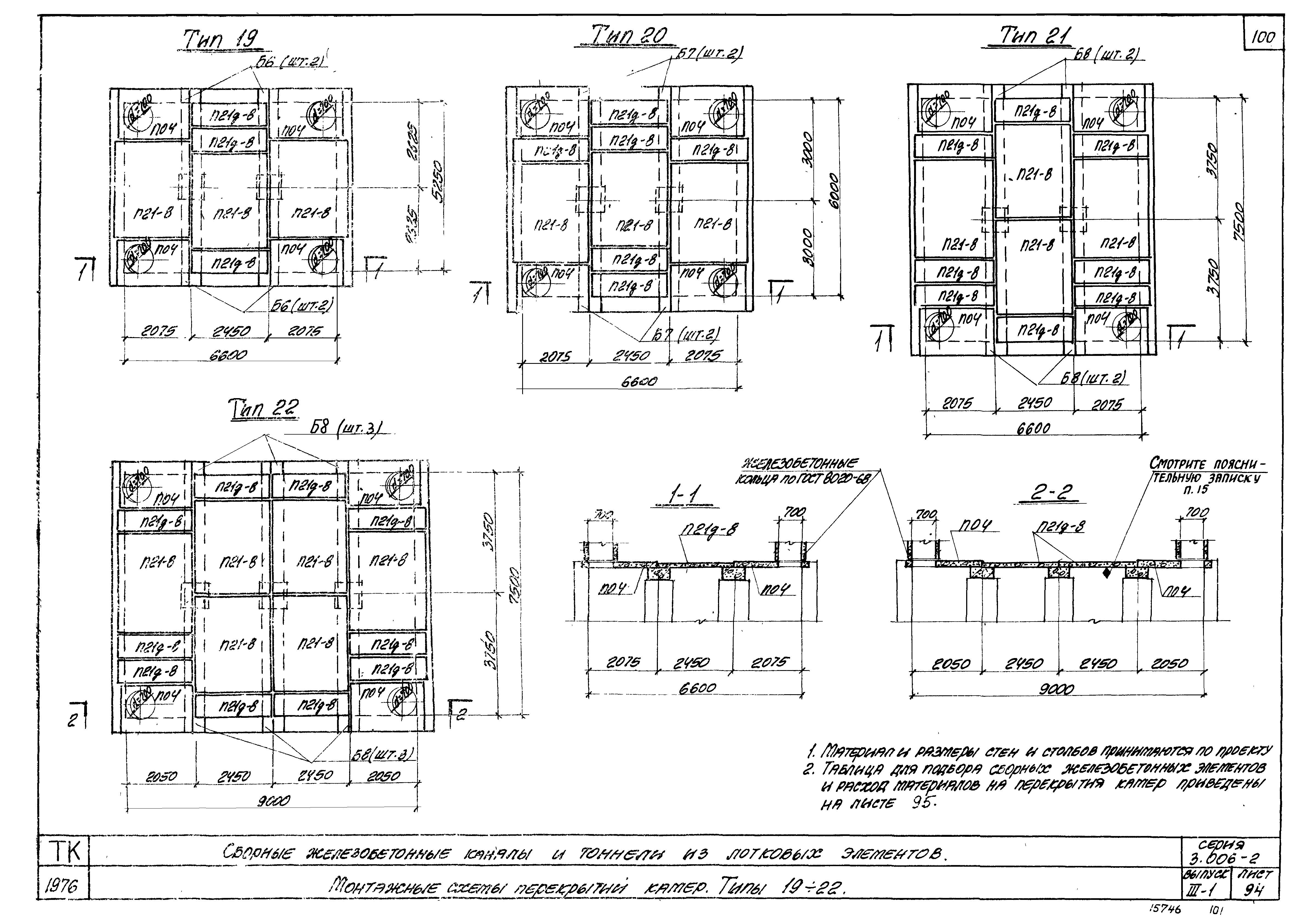
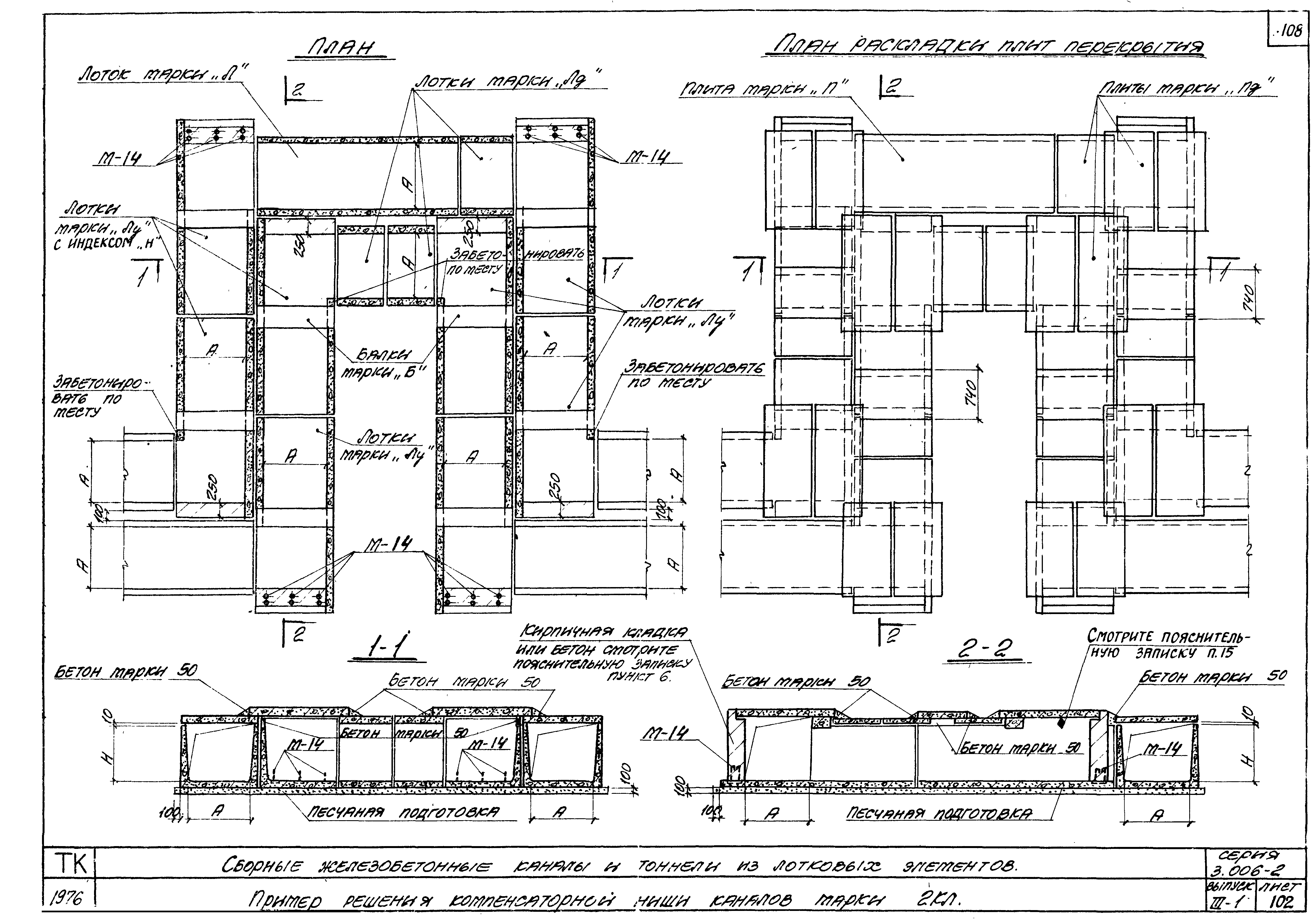
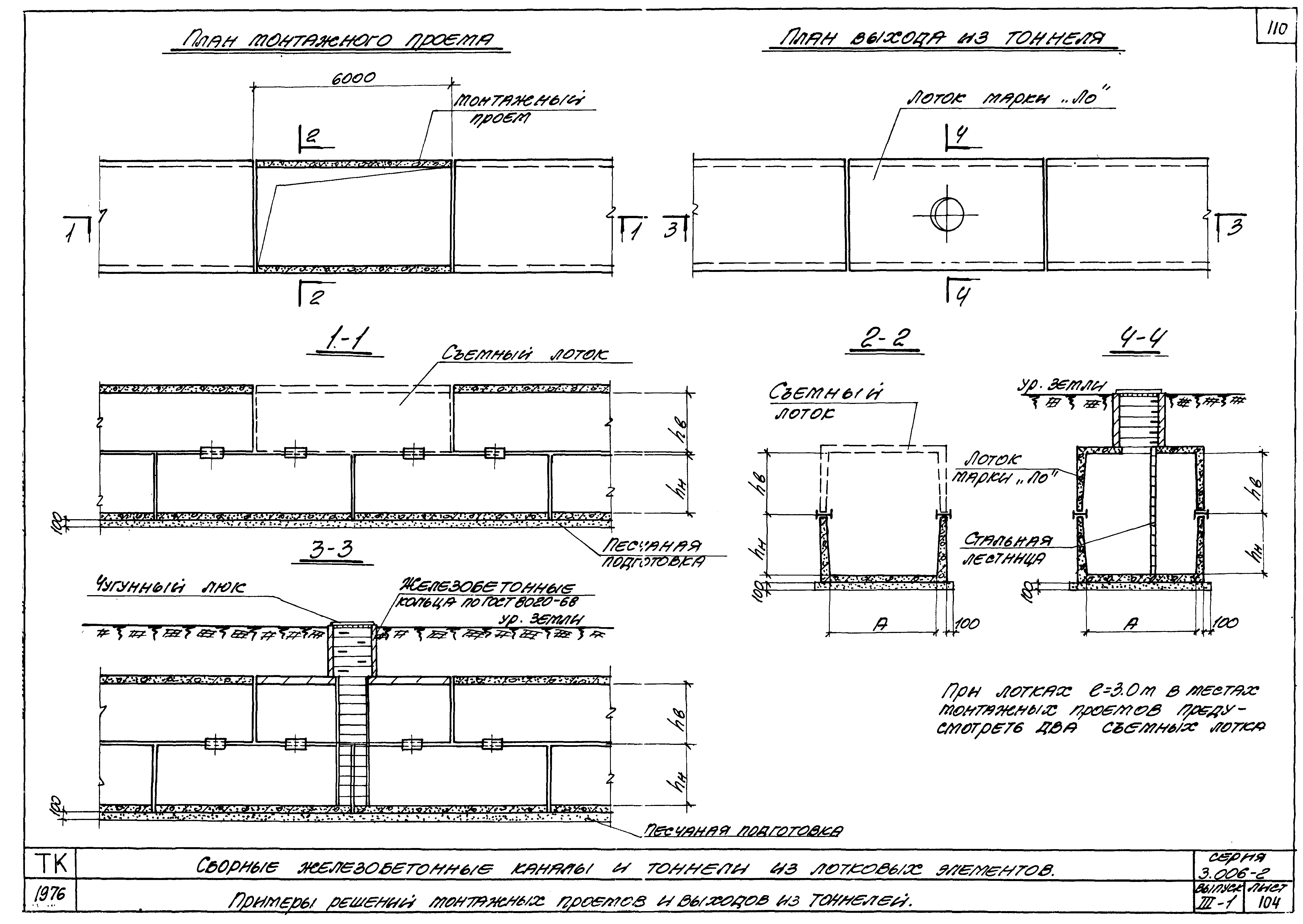
| Оглавление: | Пояснительная записка Номенклатура сборных железобетонных лотковых элементов для узлов трасс. Расход материалов на одно изделие Номенклатура сборных железобетонных балок и плит для узлов трасс. Расход материалов на одно изделие Таблица расхода материалов на углы поворотов каналов марки УПК Таблица расхода материалов на углы поворотов каналов марок УПК и УПКЛс Таблица расхода материалов на углы поворотов тоннелей марки УПТ Таблица расхода материалов на углы поворотов тоннелей марок УПТ и УПТК Таблица расхода материалов на компенсаторные ниши марки НК Таблица расхода материалов на узлы кабельных каналов марки УК Монтажная схема углов поворотов каналов УПК30х30; УПК45х30 Монтажная схема углов поворотов каналов УПК60х30; УПК60х45; УПК60х60 Монтажная схема углов поворотов каналов УПК90х45; УПК90х60; УПК90х90; УПК90х120 Монтажная схема углов поворотов каналов УПК120х45; УПК120х60; УПК120х90; УПК120х120 Монтажная схема углов поворотов каналов УПК150х45; УПК150х60; УПК150х90; УПК150х120; УПК150х150 Монтажная схема углов поворотов каналов УПК180х60; УПК180х90; УПК180х120 Монтажная схема углов поворотов канала УПК180х50 Монтажная схема углов поворотов каналов УПК210х60; УПК210х90 Монтажная схема углов поворотов каналов УПК210х120; УПК210х150 Монтажная схема углов поворотов каналов УПК240х90, УПК240х120; УПК240х150 Монтажная схема углов поворотов каналов УПК300х90; УПК300х120; УПК300х150 Монтажная схема углов поворотов каналов УПКЛс90х90; УПКЛс90х120; УПКЛс120х90; УПКЛс120х120; УПКЛс120х150 Монтажная схема углов поворотов каналов УПКЛс150х90; УПКЛс150х120; УПКЛс180х120; УПКЛс210х120 Монтажная схема углов поворотов тоннелей УПТ150х180; УПТ150х210; УПТ180х180; УПТ180х210 Монтажная схема углов поворотов тоннелей УПТ210х180; УПТ210х210; УПТ210х240 Монтажная схема углов поворотов тоннелей УПТ240х180; УПТ240х210; УПТ240х240; УПТ240х300 Монтажная схема углов поворотов тоннелей УПТ300х180; УПТ300х210; УПТ300х240; УПТ300х300 Монтажная схема углов поворотов тоннелей УПТ360х180; УПТ360х210; УПТ360х240; УПТ360х301 Монтажная схема углов поворотов кабельных тоннелей УПТК150х210; УПТК180х210 Монтажная схема компенсаторной ниши НК60х45 для тепловых сетей Монтажная схема компенсаторной ниши НК90х45 для тепловых сетей Монтажная схема компенсаторной ниши НК120х45; НК120х60 (тип 1) для тепловых сетей Монтажная схема компенсаторной ниши НК120х45 (тип 2) для тепловых сетей Монтажная схема компенсаторной ниши НК120х60 (тип 2) для тепловых сетей Монтажная схема компенсаторной ниши НК150х60 (тип 1) для тепловых сетей Монтажная схема компенсаторной ниши НК150х60 (тип 2) для тепловых сетей Монтажная схема компенсаторной ниши НК180х90 (тип 1) для тепловых сетей Монтажная схема компенсаторной ниши НК180х90 (тип 2) для тепловых сетей Монтажная схема компенсаторной ниши НК180х90 (тип 3) для тепловых сетей Монтажная схема компенсаторной ниши НК210х90 для тепловых сетей Монтажная схема компенсаторной ниши НК240х120 (тип 1) для тепловых сетей Монтажная схема компенсаторной ниши НК240х120 (тип 2) для тепловых сетей. Планы Монтажная схема компенсаторной ниши НК240х120 (тип 2) для тепловых сетей. Разрезы 1-1; 2-2 Монтажная схема компенсаторной ниши НК240х120 (тип 3) для тепловых сетей. Планы Монтажная схема компенсаторной ниши НК240х120 (тип 3) для тепловых сетей. Разрезы 1-1; 2-2 Монтажная схема компенсаторной ниши НК300х120 для тепловых сетей. Планы Монтажная схема компенсаторной ниши НК300х120 для тепловых сетей. Разрезы 1-1; 2-2 Монтажная схема компенсаторной ниши НК300х150 (тип 1) для тепловых сетей. Планы Монтажная схема компенсаторной ниши НК300х150 (тип 1) для тепловых сетей. Разрезы 1-1; 2-2 Монтажная схема компенсаторной ниши НК300х150 (тип 2) для тепловых сетей. Планы Монтажная схема компенсаторной ниши НК300х150 (тип 2) для тепловых сетей. Разрезы 1-1; 2-2 Монтажная схема компенсаторной ниши НК300х150 (тип 3) для тепловых сетей. Планы Монтажная схема компенсаторной ниши НК300х150 (тип 3) для тепловых сетей. Разрезы 1-1; 2-2 Монтажная схема узла кабельного канала УК-1 Монтажная схема узла кабельного канала УК-2 Монтажные схемы узлов кабельных каналов УК-3; УК-4 Монтажные схемы узлов кабельных каналов УК-5; УК-6 Монтажные схемы узлов кабельных каналов УК-7; УК-8 Монтажная схема узла кабельного канала УК-9 Монтажные схемы узлов кабельных каналов УК-10; УК-11 Монтажная схема узла кабельного канала УК-12 Монтажная схема узла кабельного канала УК-13 Монтажные схемы узлов кабельных каналов УК-14; УК-15 Монтажные схемы узлов кабельных каналов УК-16; УК-17 Монтажные схемы узлов кабельных каналов УК-18; УК-19 Монтажные схемы узлов кабельных каналов УК-20; УК-21, УК-22, УК-23 Монтажные схемы узлов кабельных каналов УК-24; УК-25 Монтажная схема узла кабельного канала УК-26 Монтажные схемы узлов кабельных каналов УК-27; УК-28 Монтажные схемы узлов кабельных каналов УК-29; УК-30 Монтажные схемы узлов кабельных каналов УК-31; УК-32 Монтажные схемы узлов кабельных каналов УК-33; УК-34 Монтажные схемы узлов кабельных каналов УК-35; УК-36 Монтажная схема узла кабельного канала УК-37 Монтажные схемы узлов кабельных каналов УК-38; УК-39 Монтажные схемы узлов кабельных каналов УК-40; УК-41 Монтажные схемы узлов кабельных каналов УК-42; УК-43 Монтажные схемы узлов кабельных каналов УК-44; УК-45, УК-46, УК-47 Монтажные схемы узлов кабельных каналов УК-48; УК-49 Монтажные схемы узлов кабельных каналов УК-50; УК-51, УК-52, УК-53 Монтажные схемы узлов кабельных каналов УК-54; УК-55, УК-56, УК-57 Монтажные схемы узлов кабельных каналов УК-58; УК-59, УК-60, УК-61 Монтажные схемы перекрытий камер. Типы 1 - 5 Монтажные схемы перекрытий камер. Типы 6 - 10 Монтажные схемы перекрытий камер. Типы 11 - 14 Монтажные схемы перекрытий камер. Типы 15 - 18 Монтажные схемы перекрытий камер. Типы 19 - 22 Таблица для подбора сборных железобетонных элементов и расход материалов на перекрытия камер Примеры решений уширений каналов в местах углов поворотов Примеры решений поворотов каналов и тоннелей под углом больше 90 градусов Пример решения угла поворота каналов марки 2КЛ Пример решения угла поворота каналов марки 2КЛс и тоннелей марки 2ТЛ Примеры решений ответвлений каналов Пример решения компенсаторной ниши каналов марки КЛс Пример решения компенсаторной ниши каналов марки 2КЛ Примеры решений уширений тоннелей Примеры решений монтажных проемов и выходов из тоннелей Примеры решений участков каналов в местах устройства неподвижных опор Пример решения примыкания подземных каналов к камере Пример решения приямка для отвода воды из внутрицеховых каналов и тоннелей |
| Разработан: | НИИЖБ Госстроя СССР ЦНИИпромзданий Харьковский Промстройниипроект |
| Утверждён: | 02.10.1978 Госстрой СССР (Государственный комитет Совета Министров СССР по делам строительства) (USSR Gosstroy 190) |
| Заменяет собой: | |
| Чем заменён: |
















































































































