Скачать Типовой проект 704-1-154с Альбом I. Рабочие чертежи КМ резервуараДата актуализации: 01.01.2021
|
| Обозначение: | Типовой проект 704-1-154с |
| Обозначение англ: | 704-1-154с |
| Статус: | не действует |
| Название рус.: | Альбом I. Рабочие чертежи КМ резервуара |
| Дата добавления в базу: | 01.09.2013 |
| Дата актуализации: | 01.01.2021 |
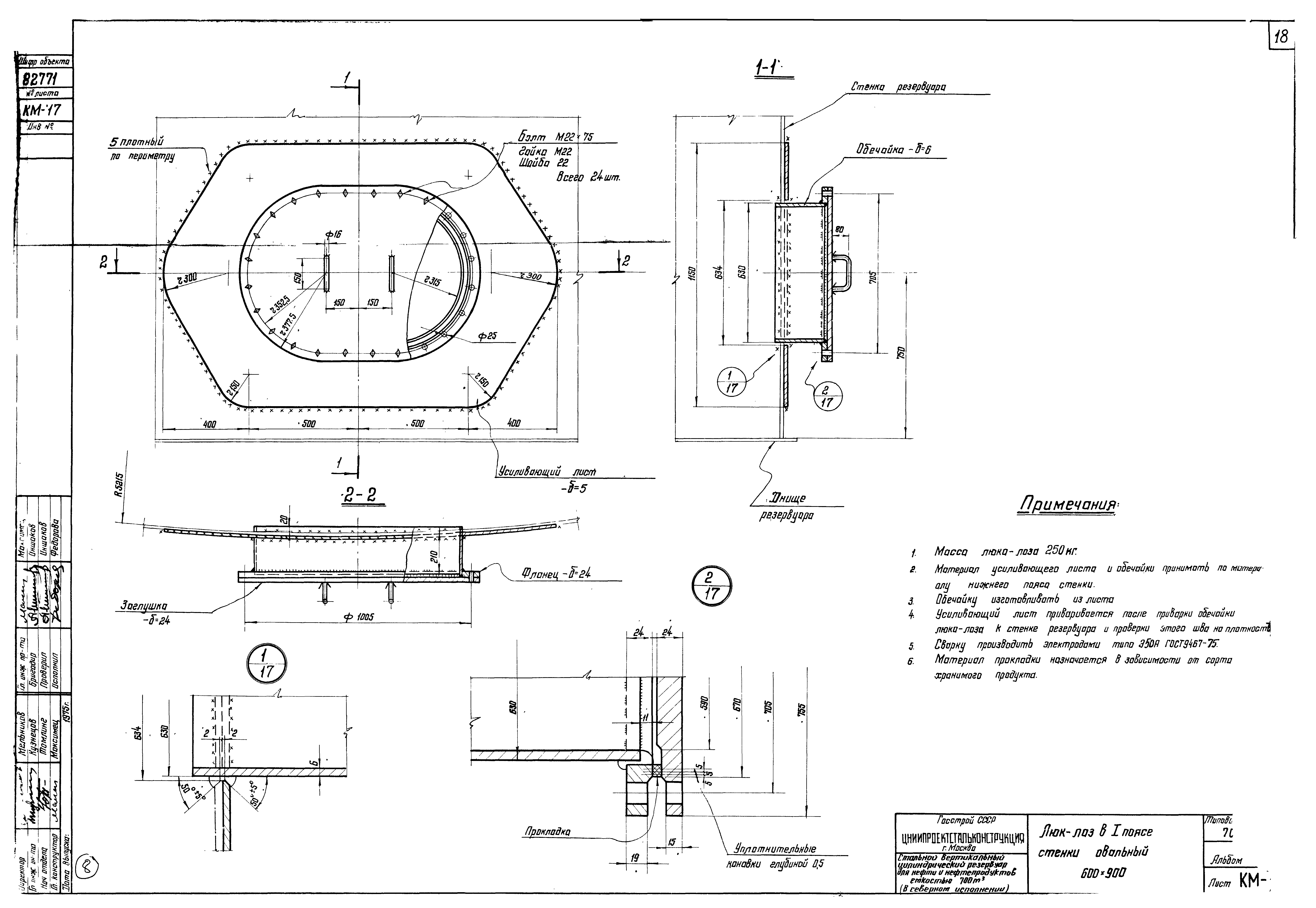
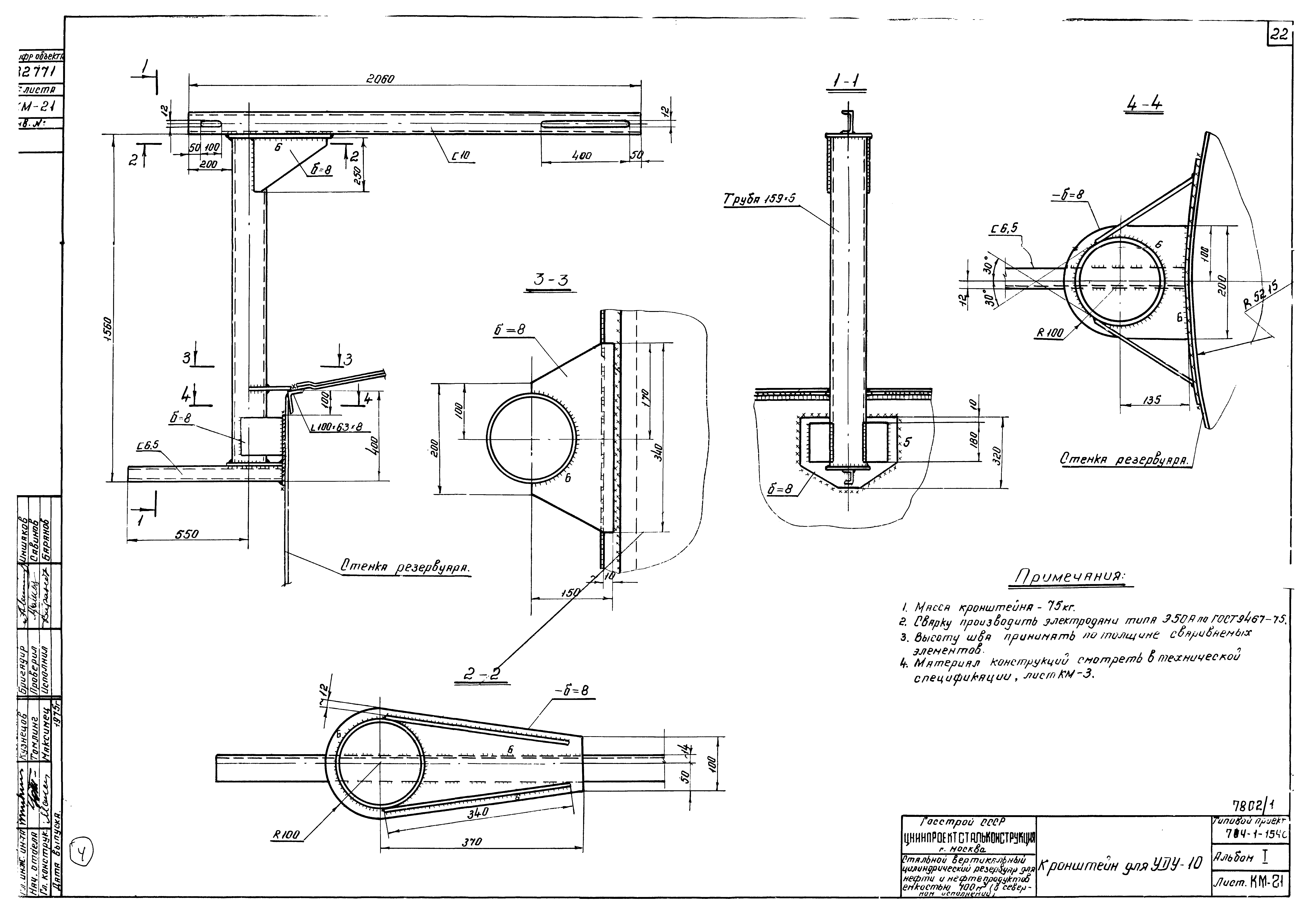
| Оглавление: | ТП 704-1-154с КМ-1 Титульный лист ТП 704-1-154с КМ-2 Содержание альбома ТП 704-1-154с КМ-3 Пояснительная записка ТП 704-1-154с КМ-4 Техническая спецификация стали на резервуар ТП 704-1-154с КМ-5 Техническая спецификация стали на площадки, оборудование и анкерные крепления ТП 704-1-154с КМ-6 Общий вид ТП 704-1-154с КМ-7 Монтажные узлы ТП 704-1-154с КМ-8 Днище ТП 704-1-154с КМ-9 Стенка ТП 704-1-154с КМ-10 Крыша. Центральное кольцо и центральный щит ТП 704-1-154с КМ-11 Крыша. Начальный щит ТП 704-1-154с КМ-12 Крыша. Промежуточный щит ТП 704-1-154с КМ-13 Крыша. Замыкающий щит ТП 704-1-154с КМ-14 Крыша. Узлы щитов ТП 704-1-154с КМ-15 Крыша. Узлы щитов ТП 704-1-154с КМ-16 Площадки и ограждения на крыше. План и разрезы ТП 704-1-154с КМ-16 Площадки и ограждения на крыше. Узлы ТП 704-1-154с КМ-17 Люк-лаз в 1 поясе стенки овальный 600х900 ТП 704-1-154с КМ-18 Люк-лаз в 1 поясе стенки Ду500 и патрубки на крыше ТП 704-1-154с КМ-19 Световой люк Ду500. Приемо-раздаточные патрубки Ду150;200;250 ТП 704-1-154с КМ-20 Патрубки для УДУ-10 и зачистки ТП 704-1-154с КМ-21 Кронштейн для УДУ-10 ТП 704-1-154с КМ-22 Труба для установки термометра и патрубок для суж ТП 704-1-154с КМ-23 Нагрузки на фундамент и анкерные болты |
| Разработан: | ЦНИИпроектстальконструкция |
| Утверждён: | 21.03.1977 Миннефтепром СССР |























