Скачать Серия 3.407-102 Выпуск 1. Пояснительная записка и рабочие чертежиДата актуализации: 01.01.2021
|
| Обозначение: | Серия 3.407-102 |
| Обозначение англ: | Series 3.407-102 |
| Статус: | заменен |
| Название рус.: | Выпуск 1. Пояснительная записка и рабочие чертежи |
| Дата добавления в базу: | 01.09.2013 |
| Дата актуализации: | 01.01.2021 |
| Дата окончания срока действия: | 01.10.1988 |
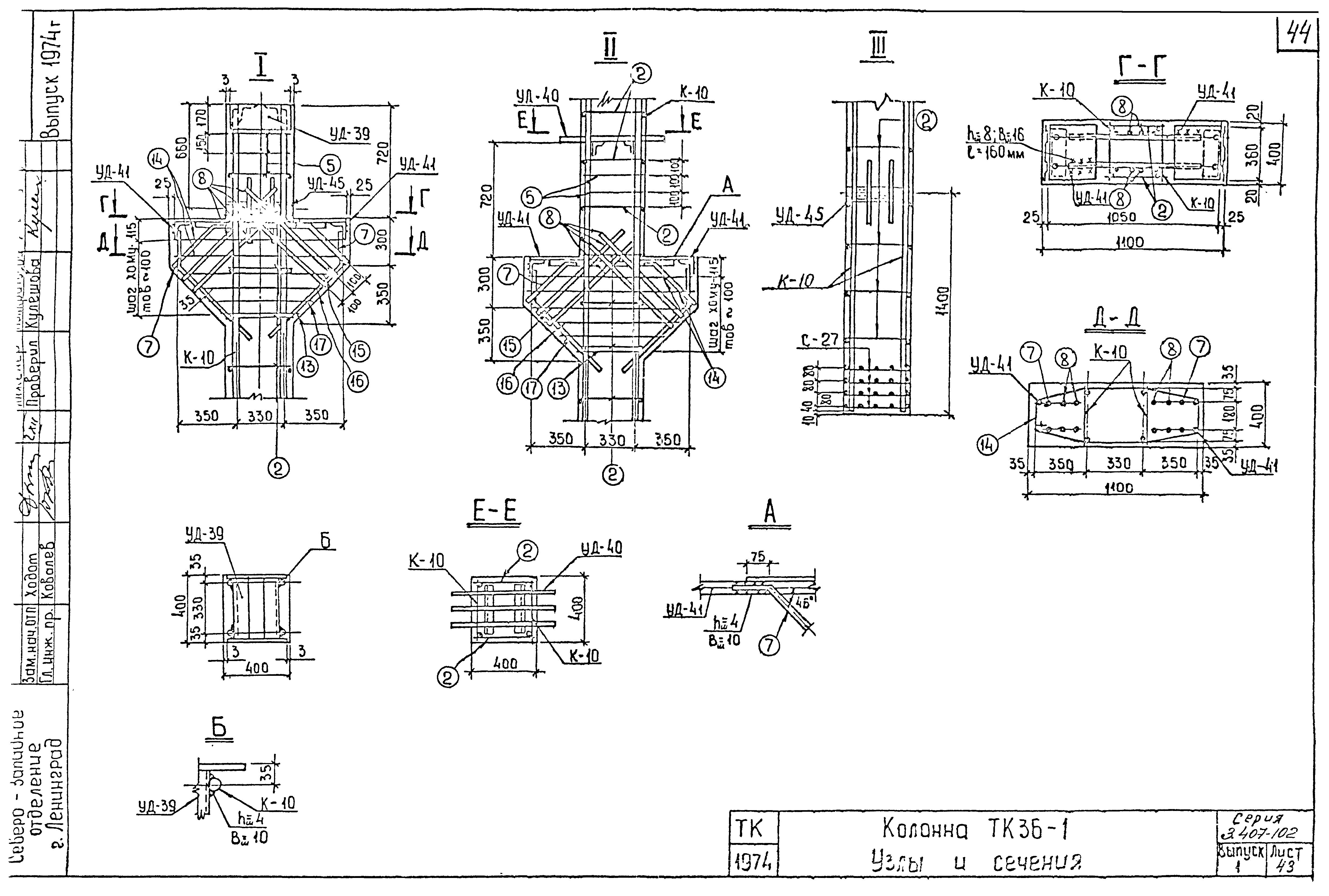
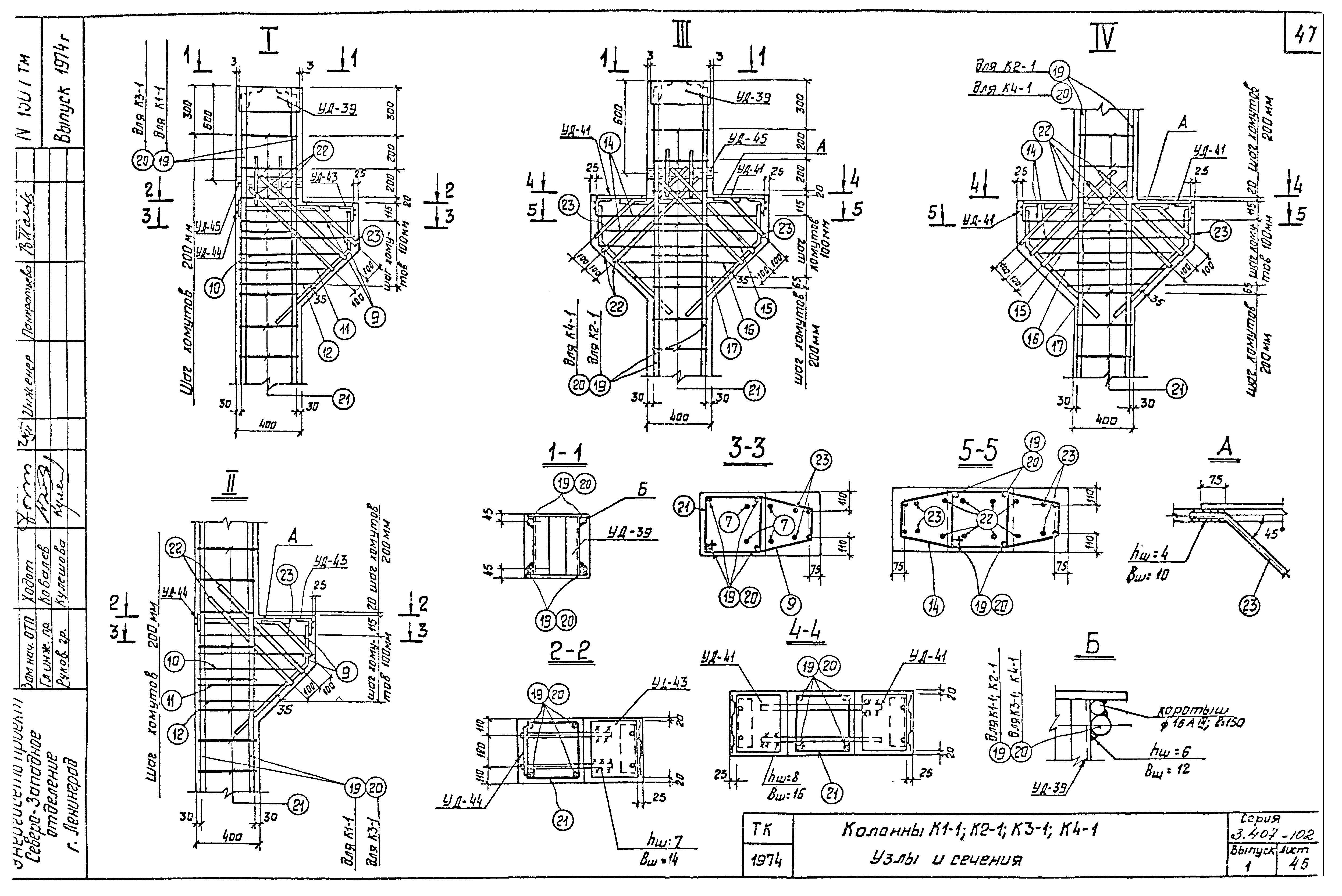
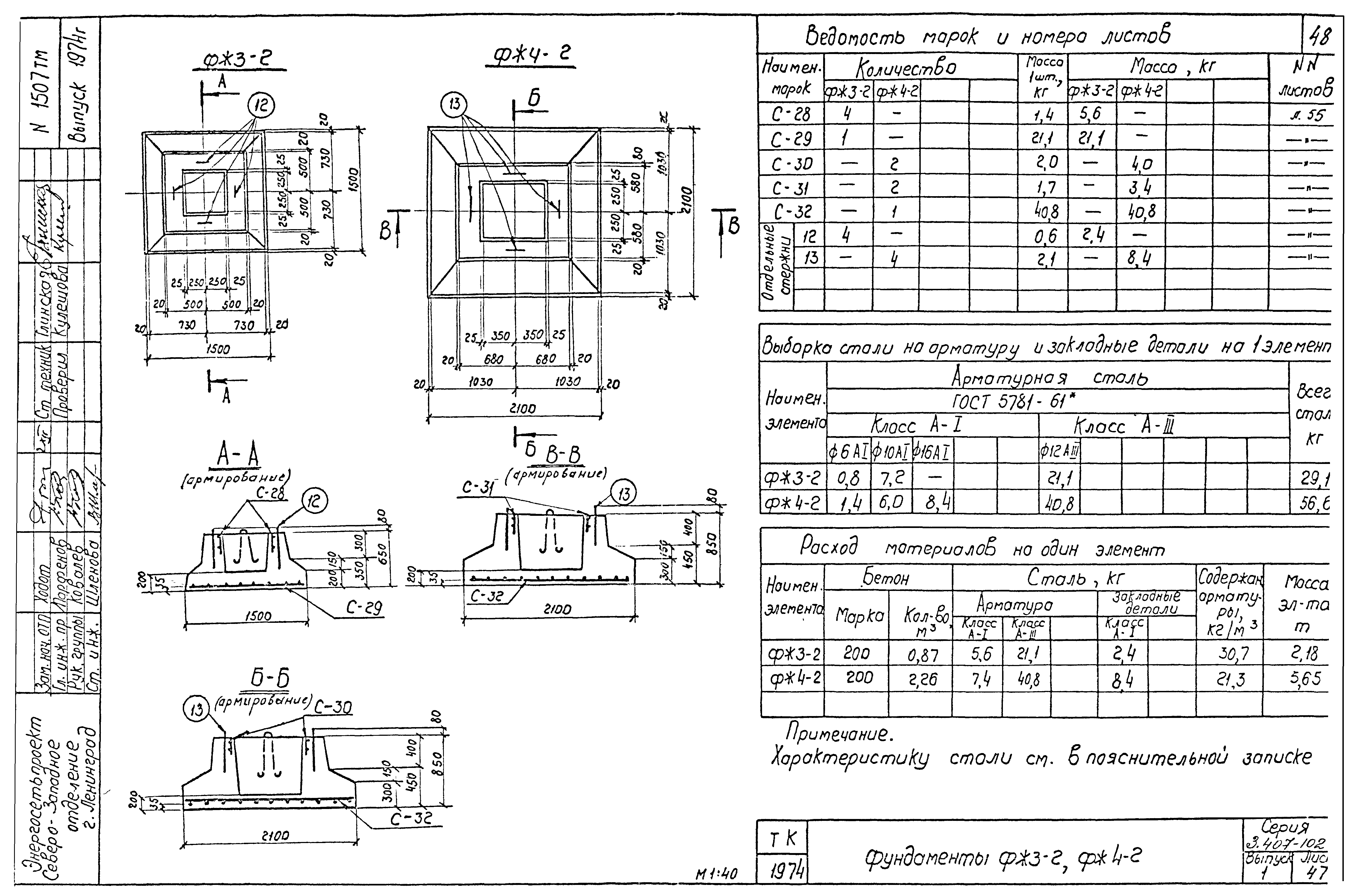
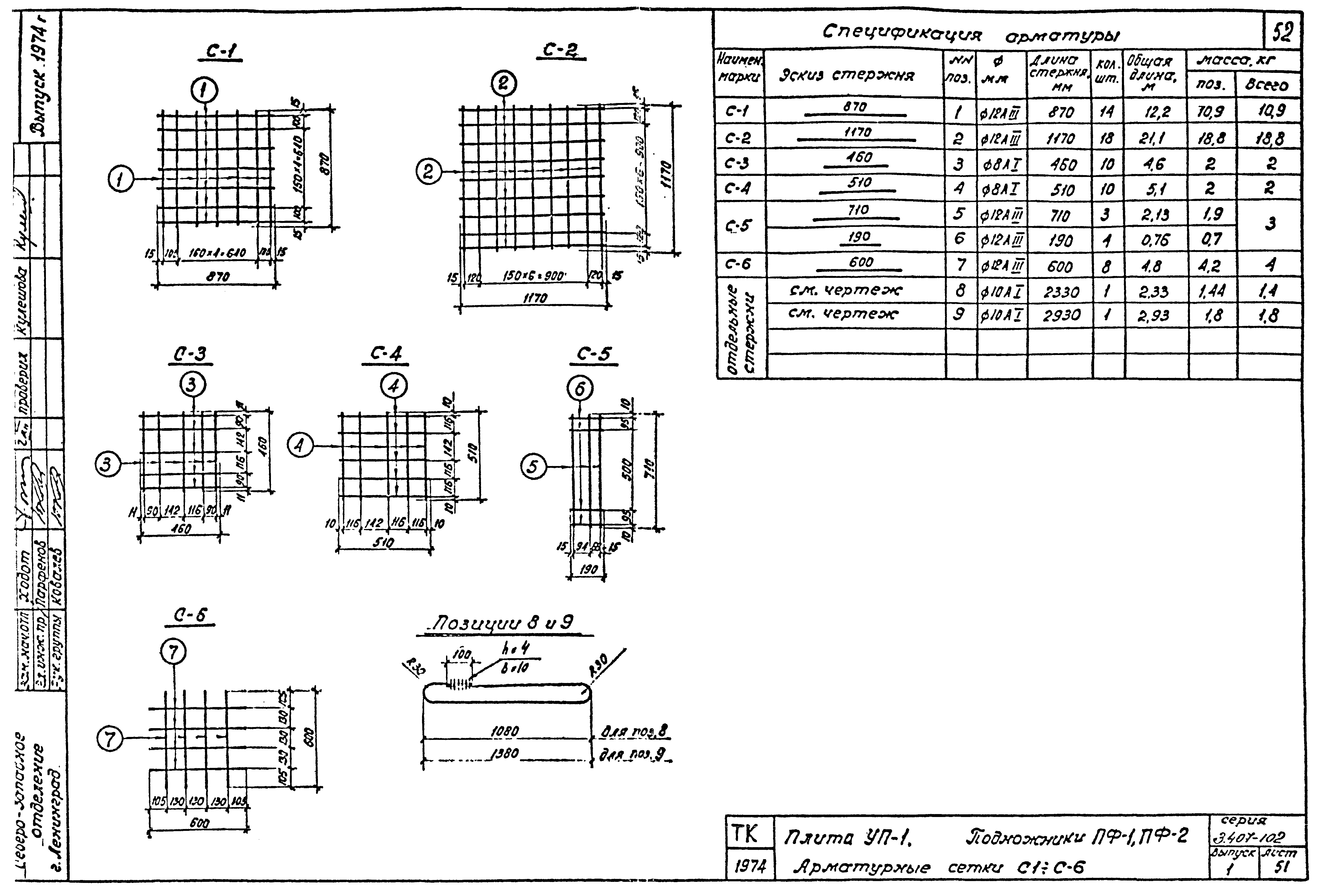
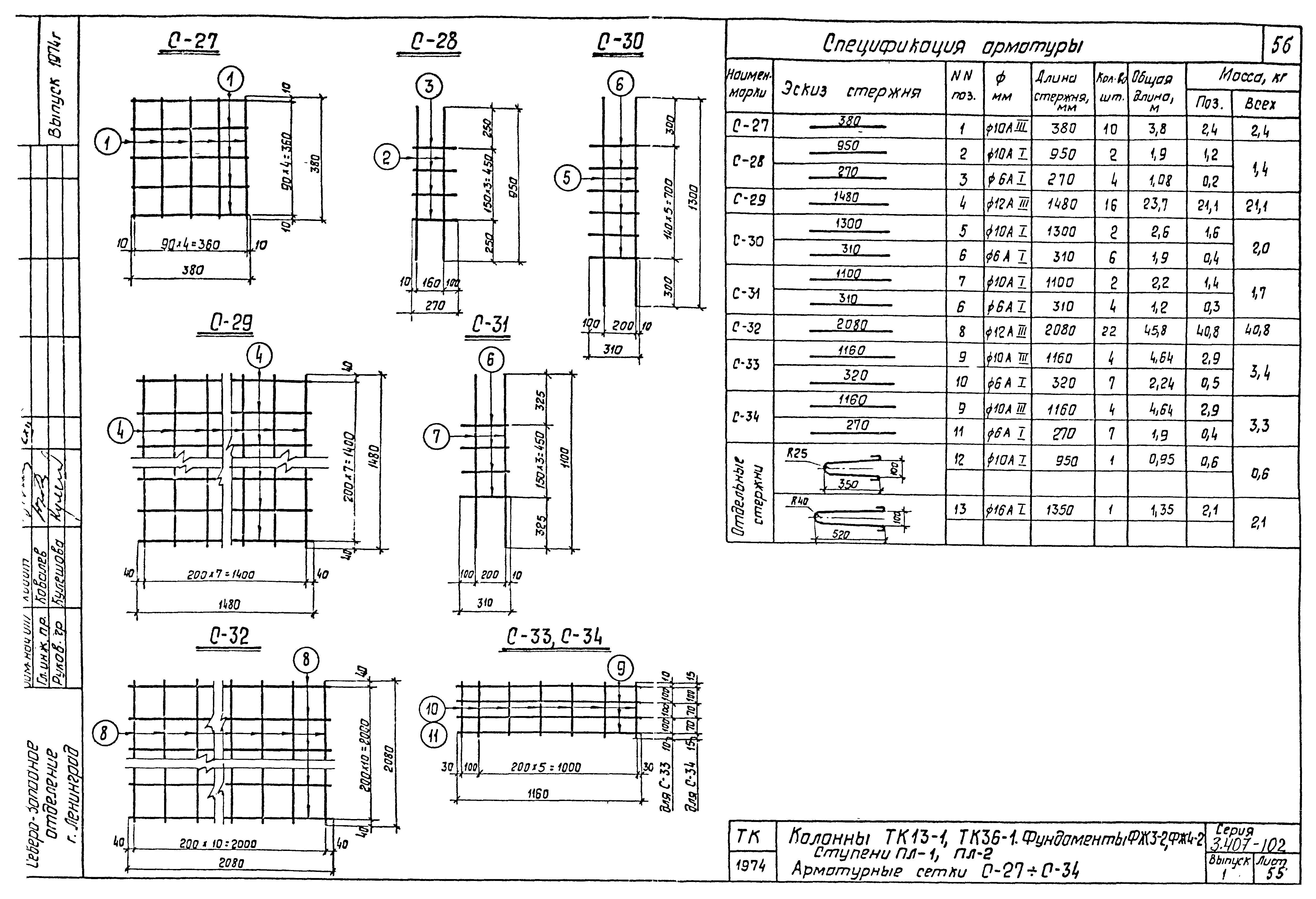
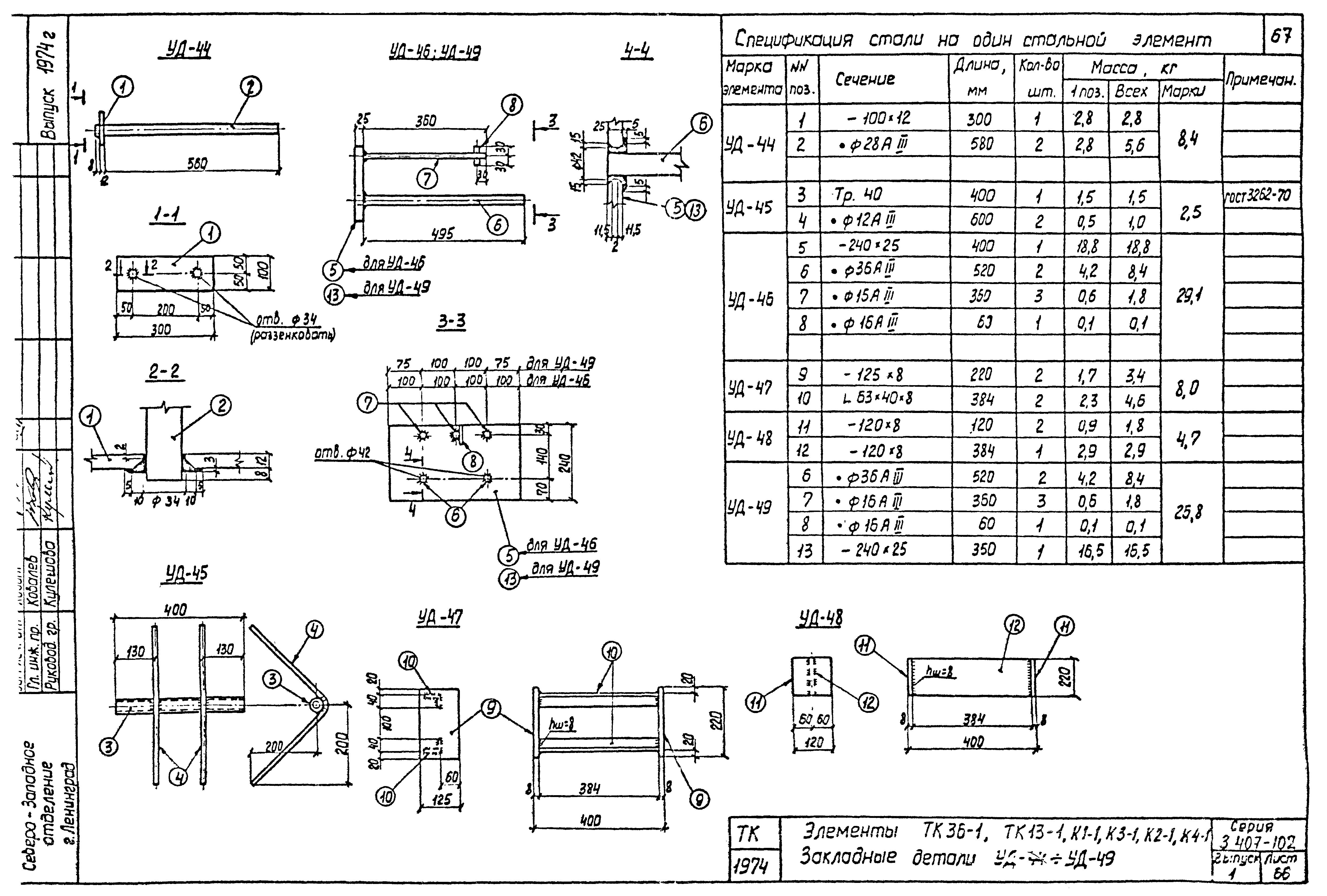
| Оглавление: | Титульный лист Перечень листов Пояснительная записка Стойки СЦП-1, СЦП-2, СЦП-3, СЦП-4 Стойки СЦП-1, СЦП-2, СЦП-3, СЦП-4. Армирование Стойки СЦП-1, СЦП-2, СЦП-3, СЦП-4. Детали. Спецификация арматуры Стойки ВС-1, ВС-2, ВС-3 Стойки ВС-1, ВС-2, ВС-3. Армирование Стойки ВС-1, ВС-2, ВС-3. Сечения. Спецификация арматуры Стойки ВСЛ-1, ВСЛ-2, ВСЛ-3 Стойки ВСЛ-1, ВСЛ-2, ВСЛ-3. Сечения. Спецификация арматуры Цилиндрические фундаменты ФЦТ-1, ФЦТ-2 Цилиндрические фундаменты ФЦТ-1, ФЦТ-2. Армирование Плита УП-1 Подножники ПФ-1, ПФ-2 Анкерная плита АП-5 Сваи УСВ-3А, УСВ-4А, УСВ-5А Сваи УСВ-3А, УСВ-4А, УСВ-5А. Армирование Стойки УСО-1А, УСО-2А Стойки УСО-3А, УСО-4А Стойки УСО-5А, УСО-5А-l Стоки УСО-1А - УСО-5А; УСО-5А-l. Армирование Подножник УБ-1 Лотки УБК-1А, УБК-2А Плиты УБК; ОПП-5 Плита УБК-9а и бруски БК-11а; БК-12а Плита НСП-1 Плита НСП-3 Шпала ЖБ-270-1 Плиты ФП-2, ФП-3 Плиты ПН-2, ПН-2-1, ПН-2-2 Колонна ТК13-1 Колонна ТК13-1. Узлы и сечения Колонна ТК36-1 Колонна ТК36-1. Узлы и сечения Колонны К1-1, К3-1 Колонна К2-1, К4-1 Колонна К2-1, К4-1. Узлы и сечения Фундаменты ФЖ3-2, ФЖ4-2 Ступени ПЛ-1, ПЛ-2 Карнизная панель ПК-5 Фундаменты Ф1-П, Ф2-П Арматурные сетки и каркасы Плита УП-1. Подножники ПФ-1, ПФ-2. Арматурные сетки С-1 - С-6 Подножники ПФ-1, ПФ-2. Анкерная плита АП-5. Арматурные сетки С-7 - С-10 Подножники УБ-1. Лотки УБКА, УБК-2А. Плиты УБК-5, ОПП-5. Плита УБК-9а и бруски БК-11а, БК-12а. Арматурные сетки С-12 - С-18 Плиты ФП-2, ФП-3, ПН-2, ПН-2-1,ПН-2-2. Арматурные сетки С-19 - С-26 Колонны ТК13-1, ТК36-1. Фундаменты ФЖ3-2, ФЖ4-2. Ступени ПЛ-1, ПЛ-2. Анкерные сетки С-27 - С-34 Карнизная панель ПК-5. Арматурные сетки С-35 - С-37 Анкерная плита АП-5. Подножник УБ-1. Арматурные каркасы К-1 - К-4 Плиты УБК-9а, НСП-1, НСП-3. Шпала ЖБ-270-1. Карнизная панель ПК-5. Арматурные каркасы К-5 - К-8 Колонны ТК13-1, ТК36-1, К1-1, К3-1, К2-1, К4-1. Арматурные каркасы К-9, К-10 Фундаменты Ф1-П, Ф2-П. Армирование. Фундаменты Ф1-П, Ф2-П. Арматурные сетки и каркасы. Закладная деталь УД-62 Закладные детали Элементы СЦП-1, СЦП-2, СЦП-3, СЦП-4, ФЦТ-1, ФЦТ-2, АП-5. Закладные детали УД-1 - УД-3, УД-20, УД-21, УД-27 Элементы УСВ-3А - УСВ-5А, УСО-1А - УСО-5А, УСО-5А-l. Закладные детали УД-28 - УД-31 Элементы ФП-2, ФП-3, ПН-2, ПН2-1, К1-1, К3-1, УП-1, К2-1, К4-1, УБК-5, ОПП-5, ТК36-1. Закладные детали УД-32 - УД-35; УД-37 - УД-39 Элементы ТК36-1, ТК13-1, К1-1, К3-1, К2-1, К4-1. Закладные детали УД-40 - УД-43 Элементы ТК36-1, ТК13-1, К1-1, К3-1, К2-1, К4-1. Закладные детали УД-44 - УД-49 Элементы ПЛ-1, ПЛ-2, ВС-1 - ВС-3, ВСЛ-1 - ВСЛ-3, ПФ-1, ПФ-2, ПК-5. Закладные детали УД-52 - УД-61 |
| Разработан: | Северо-западное отделение института Энергосетьпроект |
| Утверждён: | 22.01.1975 Минэнерго СССР (USSR Minenergo 16) |
| Чем заменён: |



































































