Скачать Типовой проект 704-1-150с Альбом IV. Оборудование резервуара с понтоном для нефти и бензинаДата актуализации: 01.01.2021
|
| Обозначение: | Типовой проект 704-1-150с |
| Обозначение англ: | 704-1-150с |
| Статус: | не действует |
| Название рус.: | Альбом IV. Оборудование резервуара с понтоном для нефти и бензина |
| Дата добавления в базу: | 01.09.2013 |
| Дата актуализации: | 01.01.2021 |
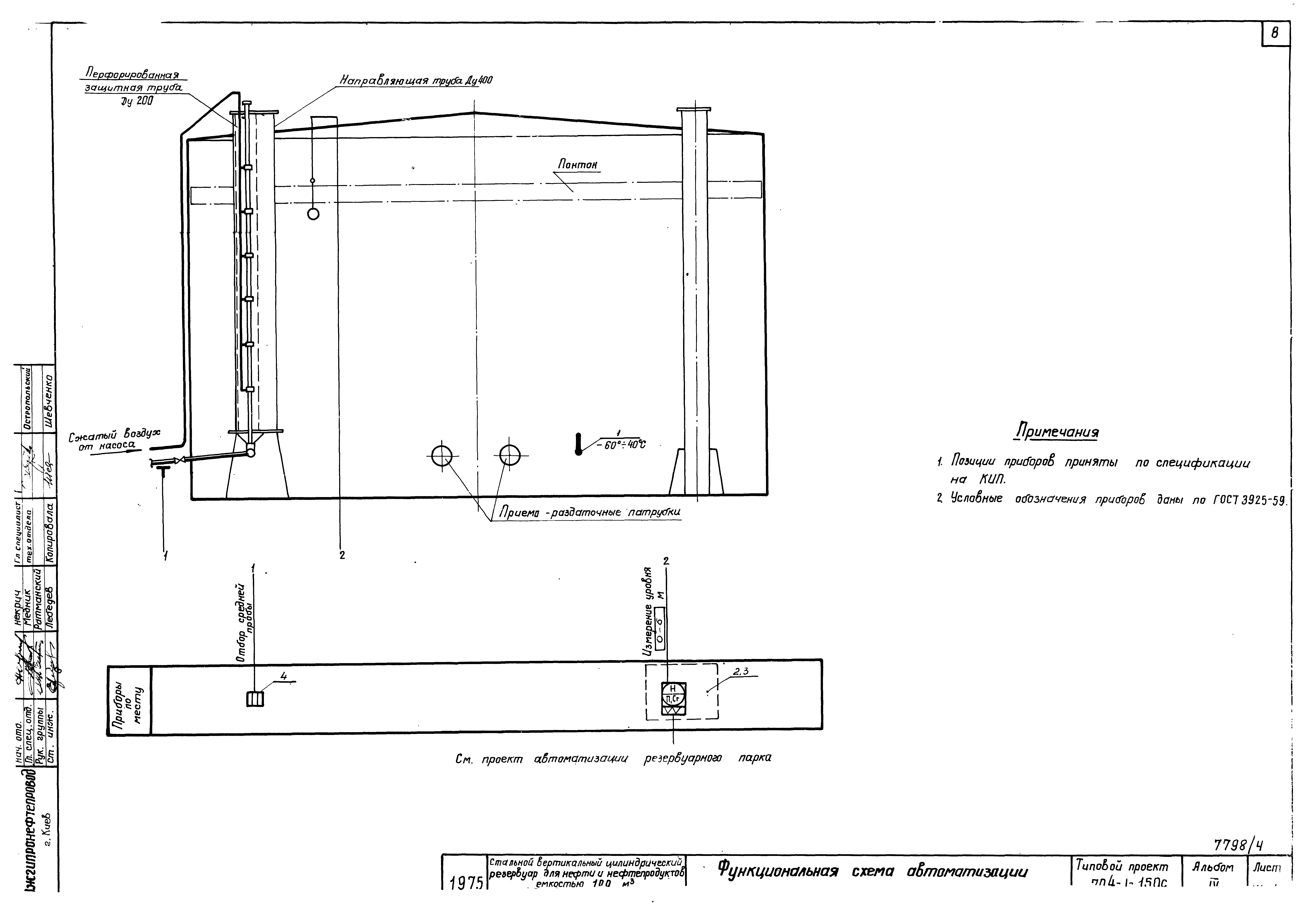
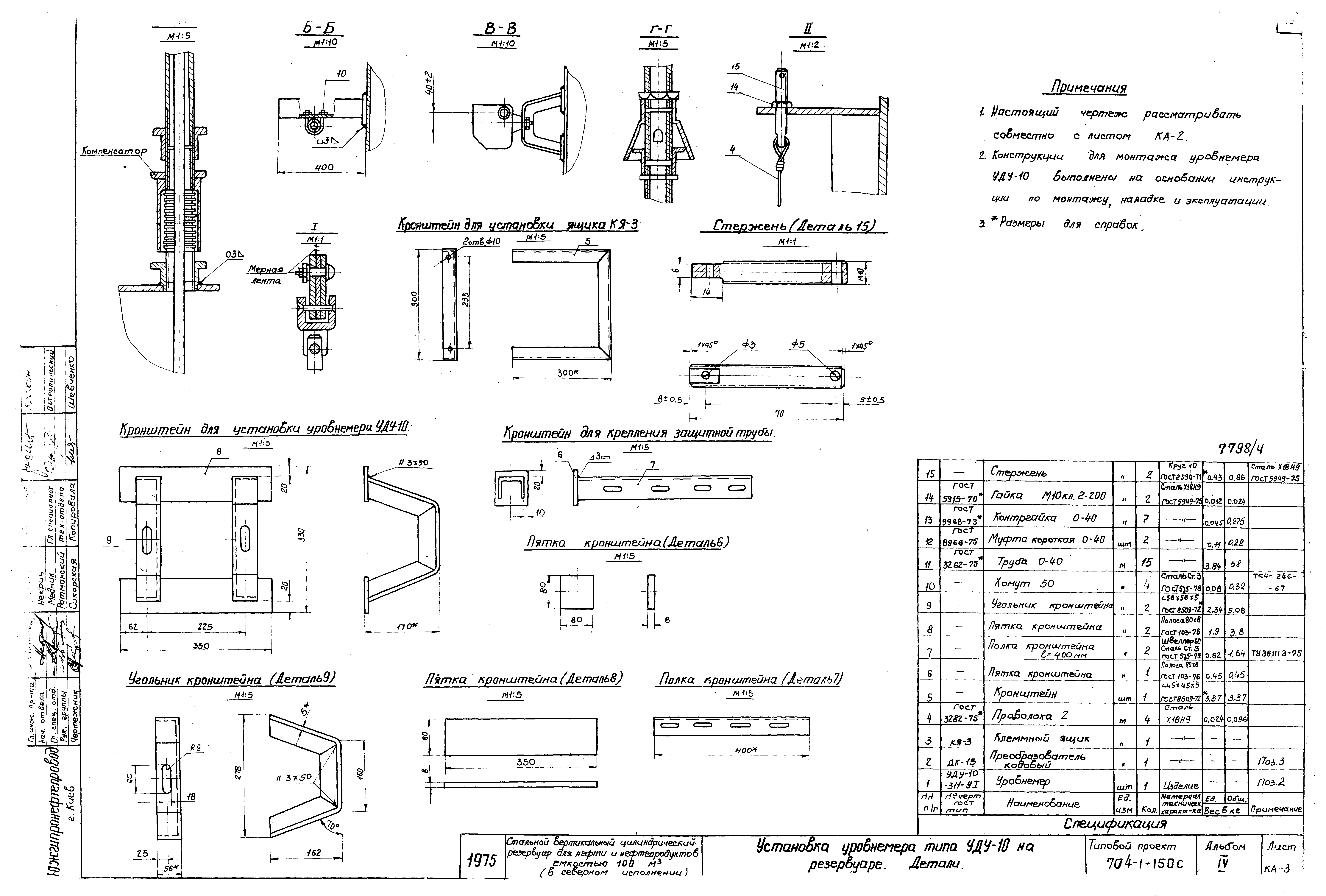
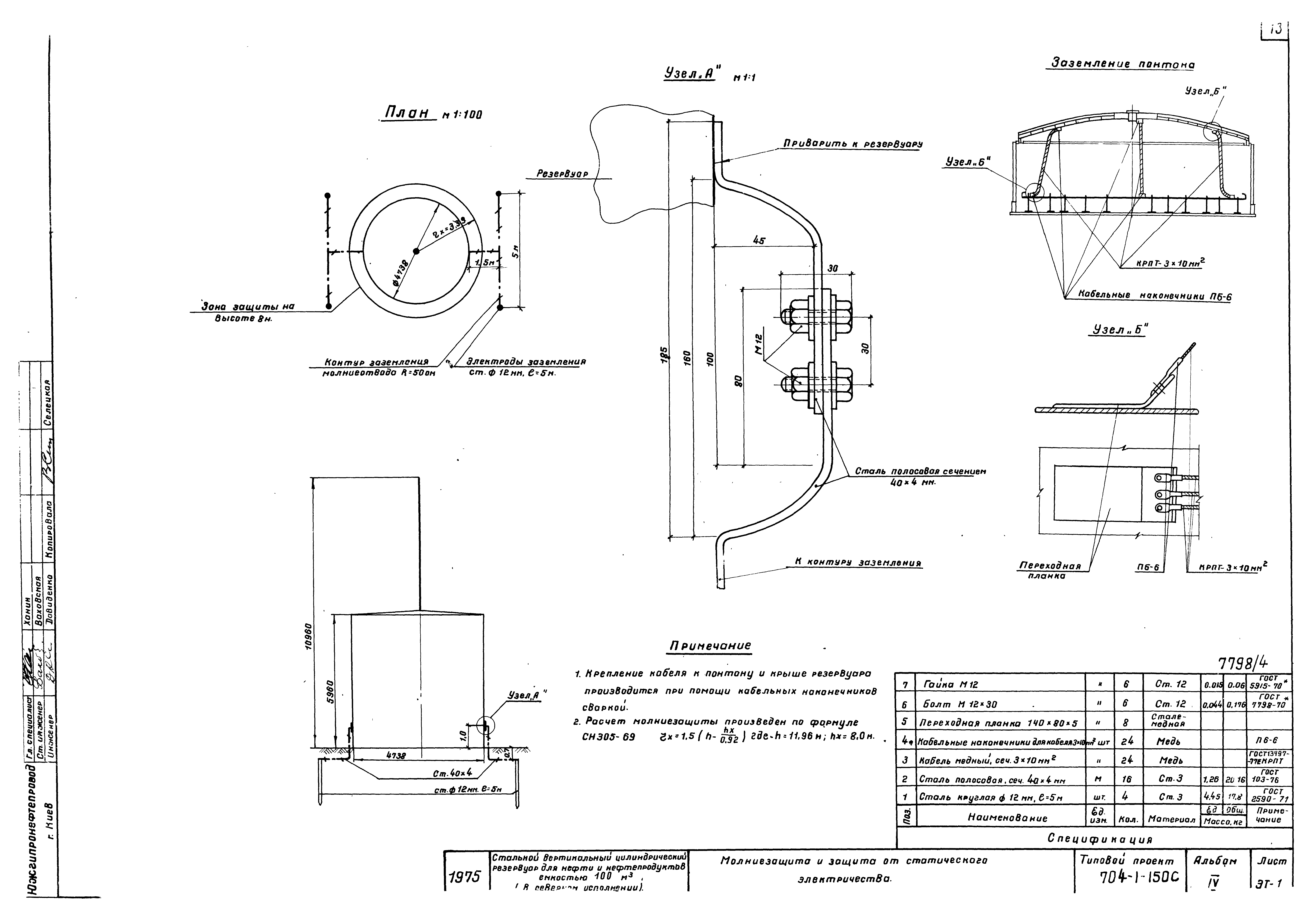
| Оглавление: | ТП 704-1-150с Обложка ТП 704-1-150с Содержание альбома ТП 704-1-150с Пояснительная записка ТП 704-1-150с ТХ Технологическая часть ТП 704-1-150с ТХ-1 Оборудование резервуара с понтоном для нефти и бензина. Общий вид ТП 704-1-150с ТХ-2 Оборудование резервуара с понтоном для нефти и бензина. Общий вид ТП 704-1-150с ТХ-3 Установка приемо-раздаточного устройства Ду=100 ТП 704-1-150с ТХ-4 Установка огнепреградителя ОПХ-150 ТП 704-1-150с КА КИП и автоматика ТП 704-1-150с КА-1 Функциональная схема автоматизации ТП 704-1-150с КА-2 Установка указателя уровня типа УДУ-10 ТП 704-1-150с КА-3 Установка указателя уровня типа УДУ-10. Детали ТП 704-1-150с КА-4 Установка пробоотборника ПСР-7 ТП 704-1-150с КА-5 Установка термометра на стенке резервуара ТП 704-1-150с ЭТ Электротехническая часть ТП 704-1-150с ЭТ-1 Молниезащита и защита от статического электричества ТП 704-1-150с АС Строительная часть ТП 704-1-150с АС-1 Молниеотвод |
| Разработан: | Южгипронефтепровод Миннефтепрома СССР |
| Утверждён: | 21.03.1977 Миннефтепром (Minnefteprom ) |














