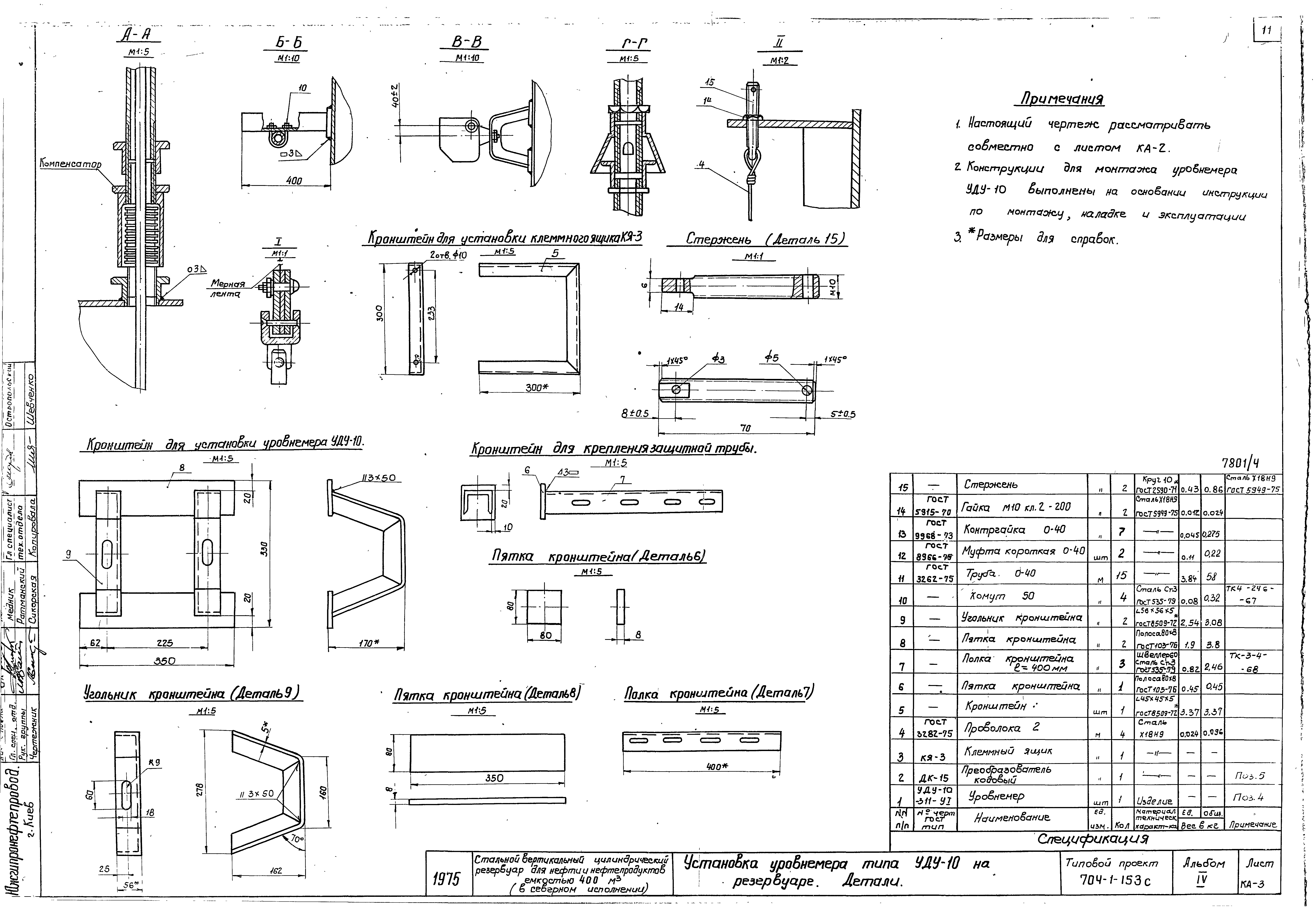
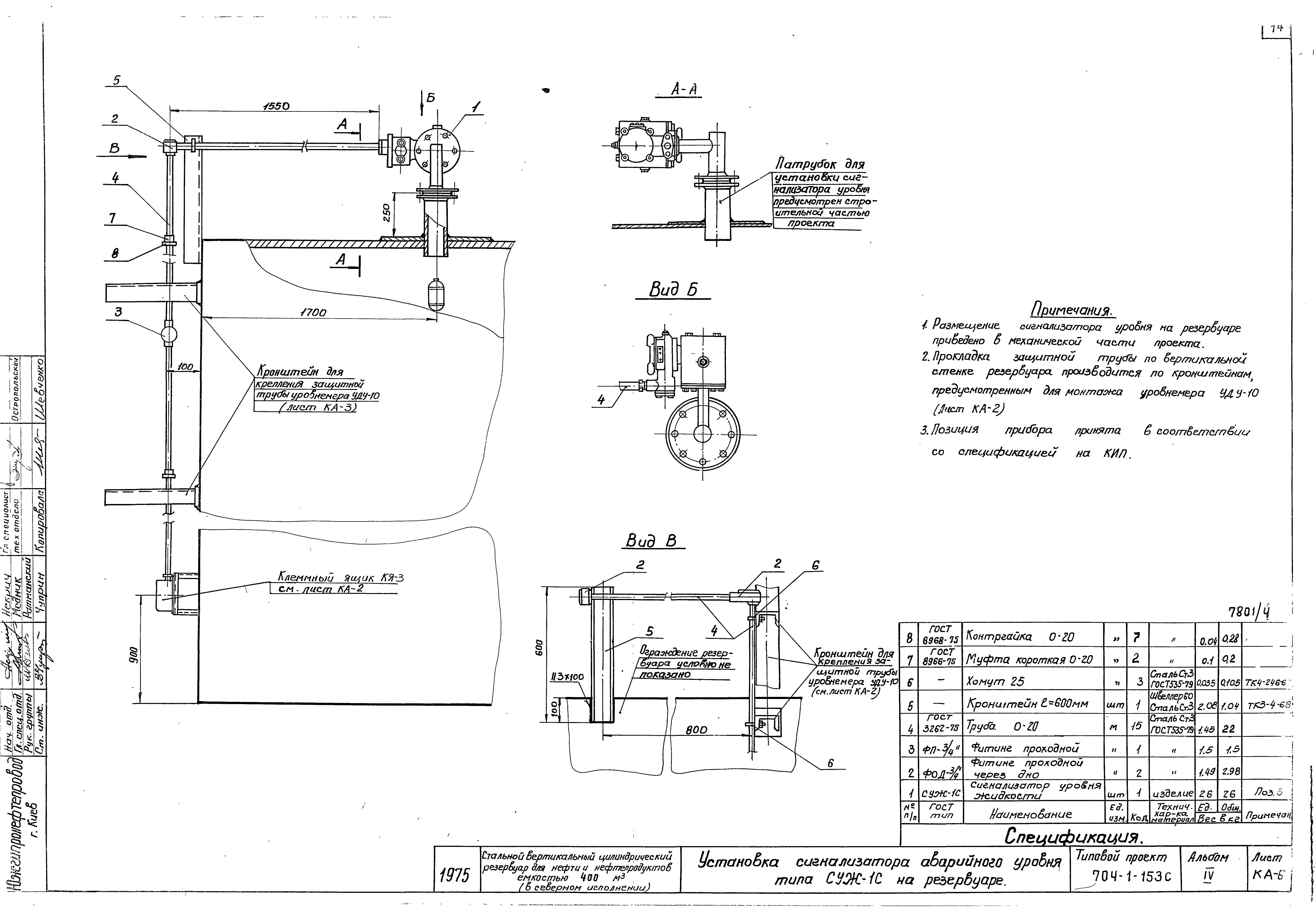
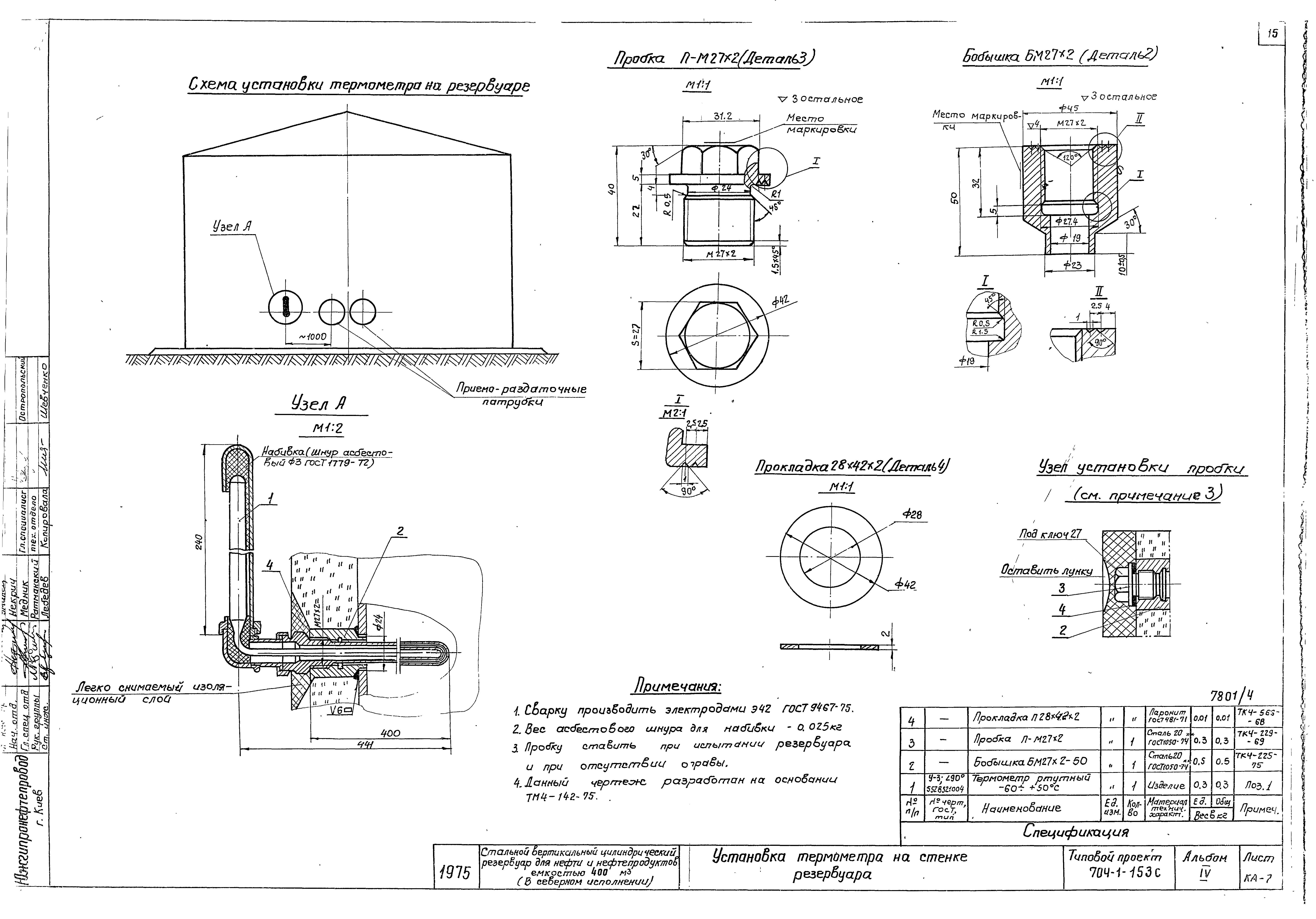
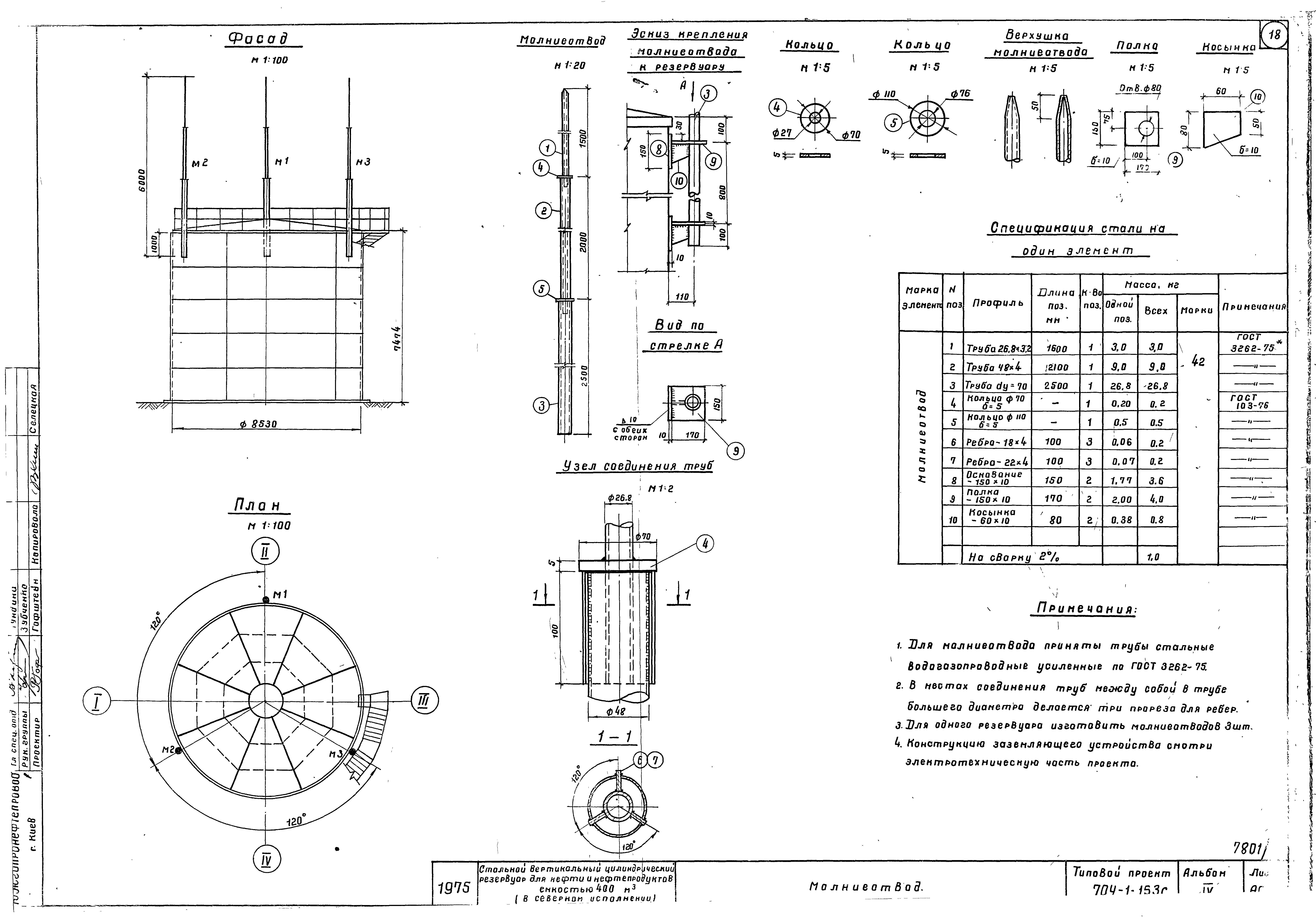
Скачать Типовой проект 704-1-153с Альбом IV. Оборудование резервуара с понтоном для нефти и бензинаДата актуализации: 01.01.2021 Типовой проект 704-1-153с
Альбом IV. Оборудование резервуара с понтоном для нефти и бензина| Обозначение: | Типовой проект 704-1-153с | | Обозначение англ: | 704-1-153с | | Статус: | не действует | | Название рус.: | Альбом IV. Оборудование резервуара с понтоном для нефти и бензина | | Дата добавления в базу: | 01.09.2013 | | Дата актуализации: | 01.01.2021 | | Разработан: | Южгипронефтепровод Миннефтепрома СССР
| | Утверждён: | 21.03.1977 Миннефтепром (Minnefteprom )
|
                
|