Скачать Типовой проект 903-9-12сп.86 Альбом VI. Тепловая изоляцияДата актуализации: 01.01.2021
|
| Обозначение: | Типовой проект 903-9-12сп.86 |
| Обозначение англ: | 903-9-12сп.86 |
| Статус: | не определен законодательством |
| Название рус.: | Альбом VI. Тепловая изоляция |
| Дата добавления в базу: | 01.09.2013 |
| Дата актуализации: | 01.01.2021 |
| Дата введения: | 18.06.1985 |
| Дата окончания срока действия: | 30.06.2003 |
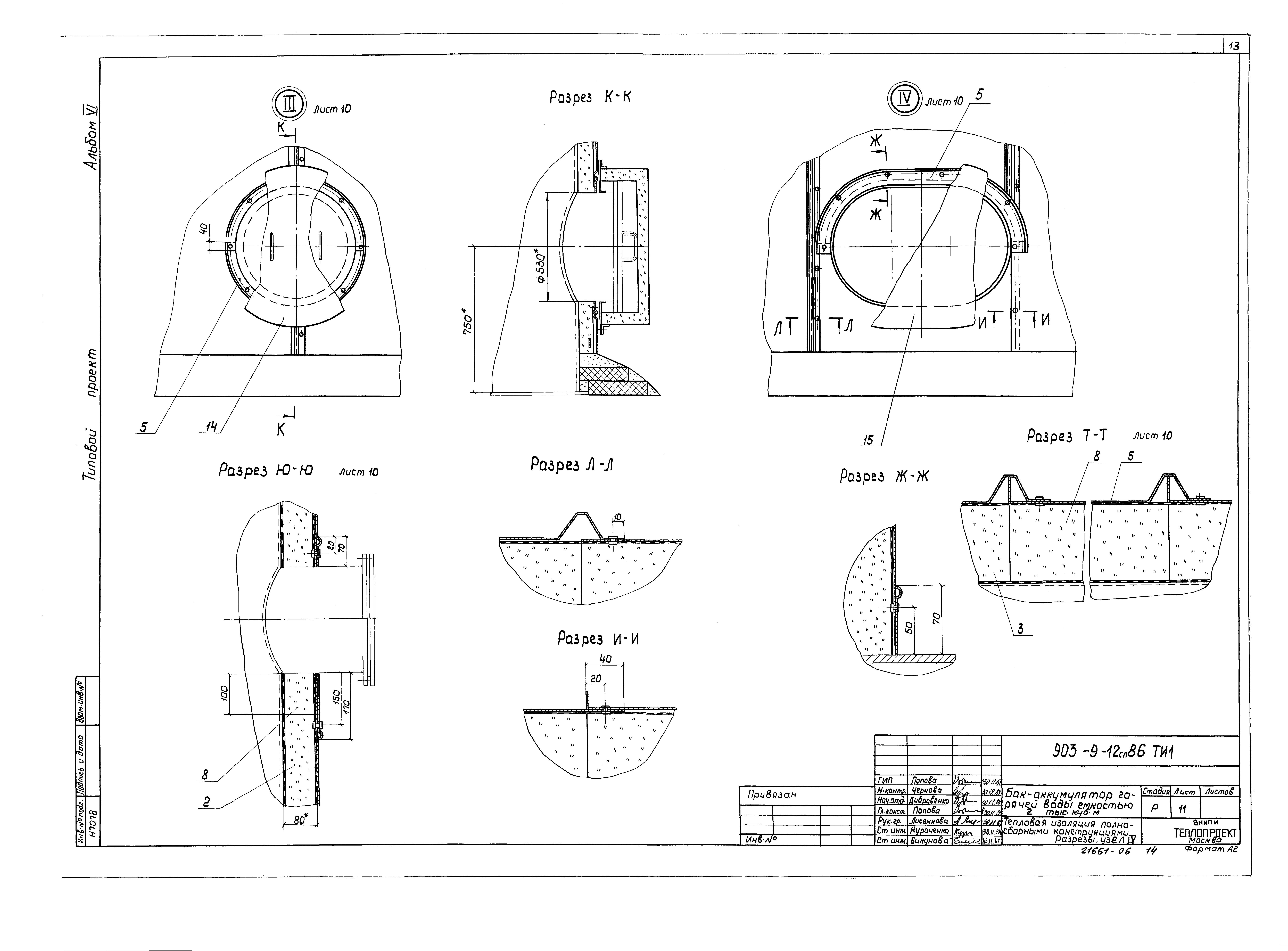
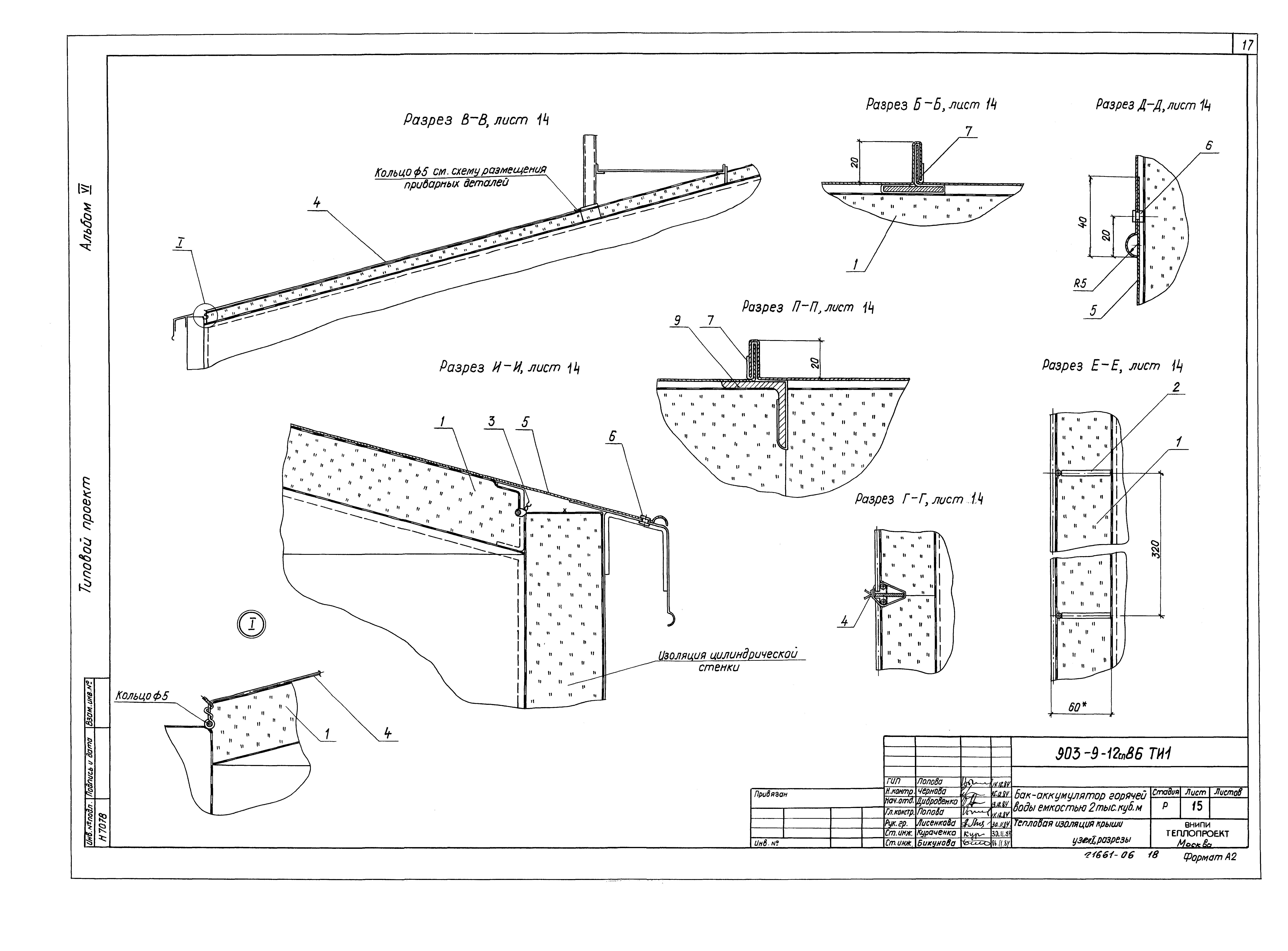
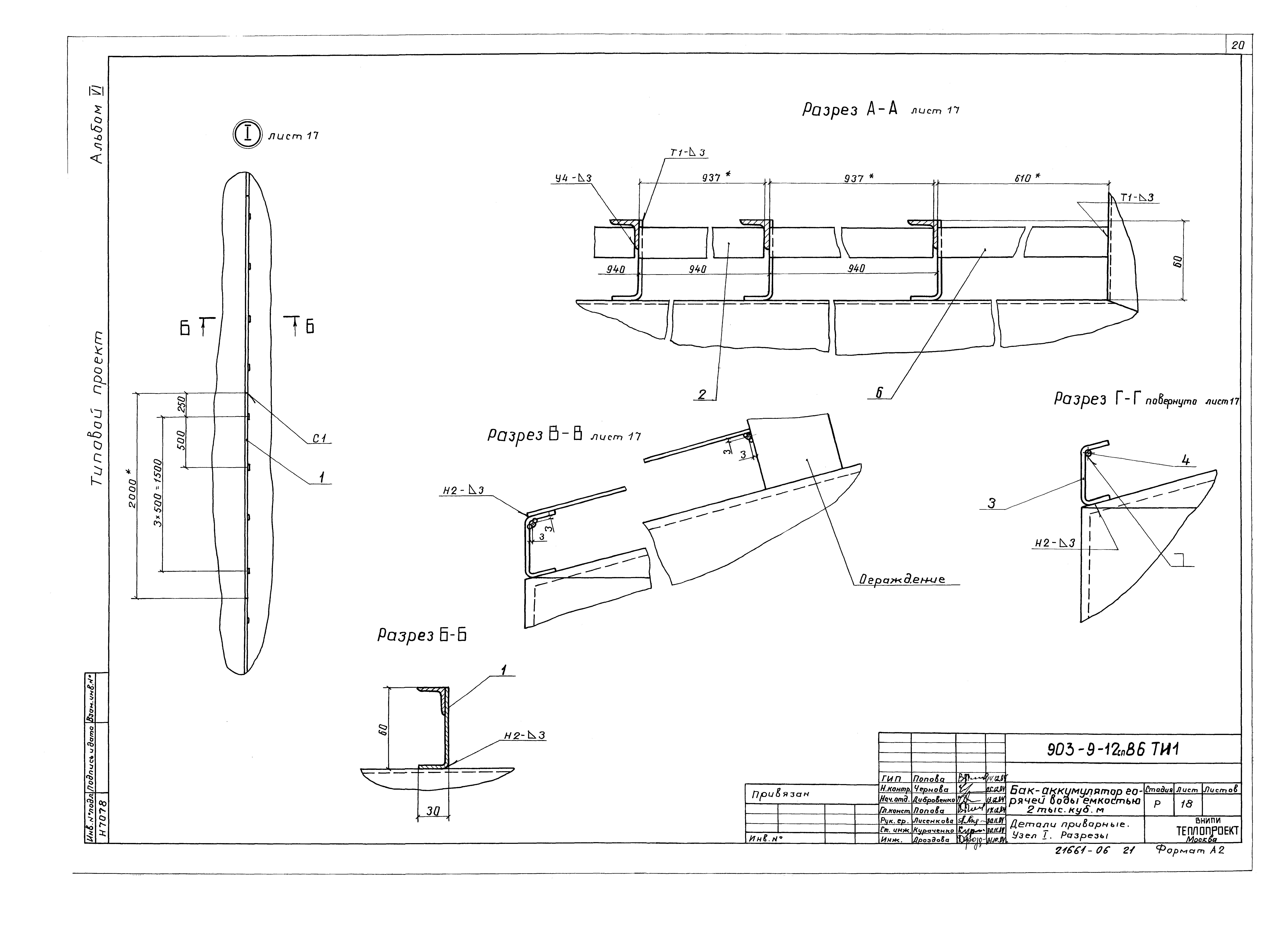
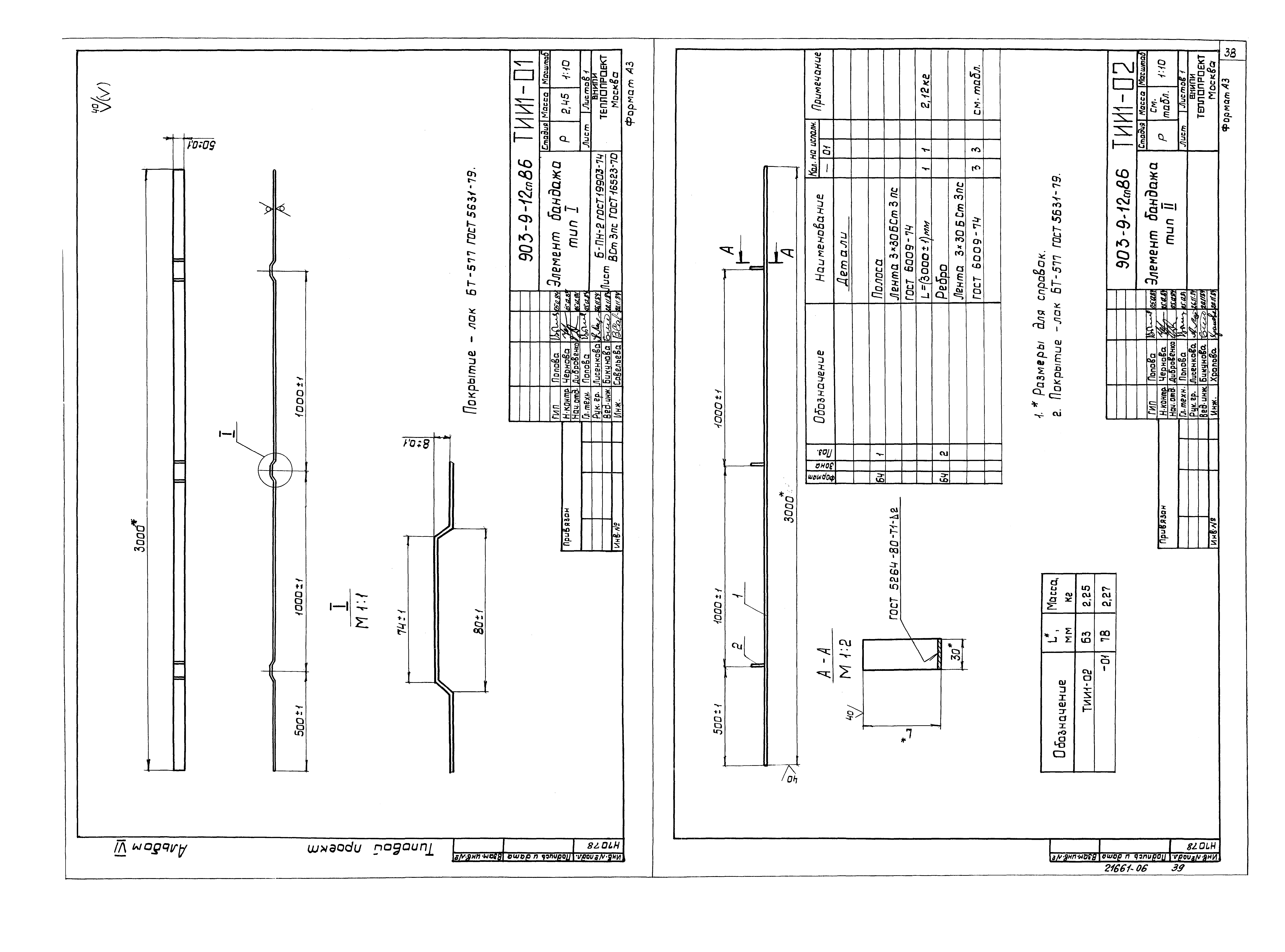
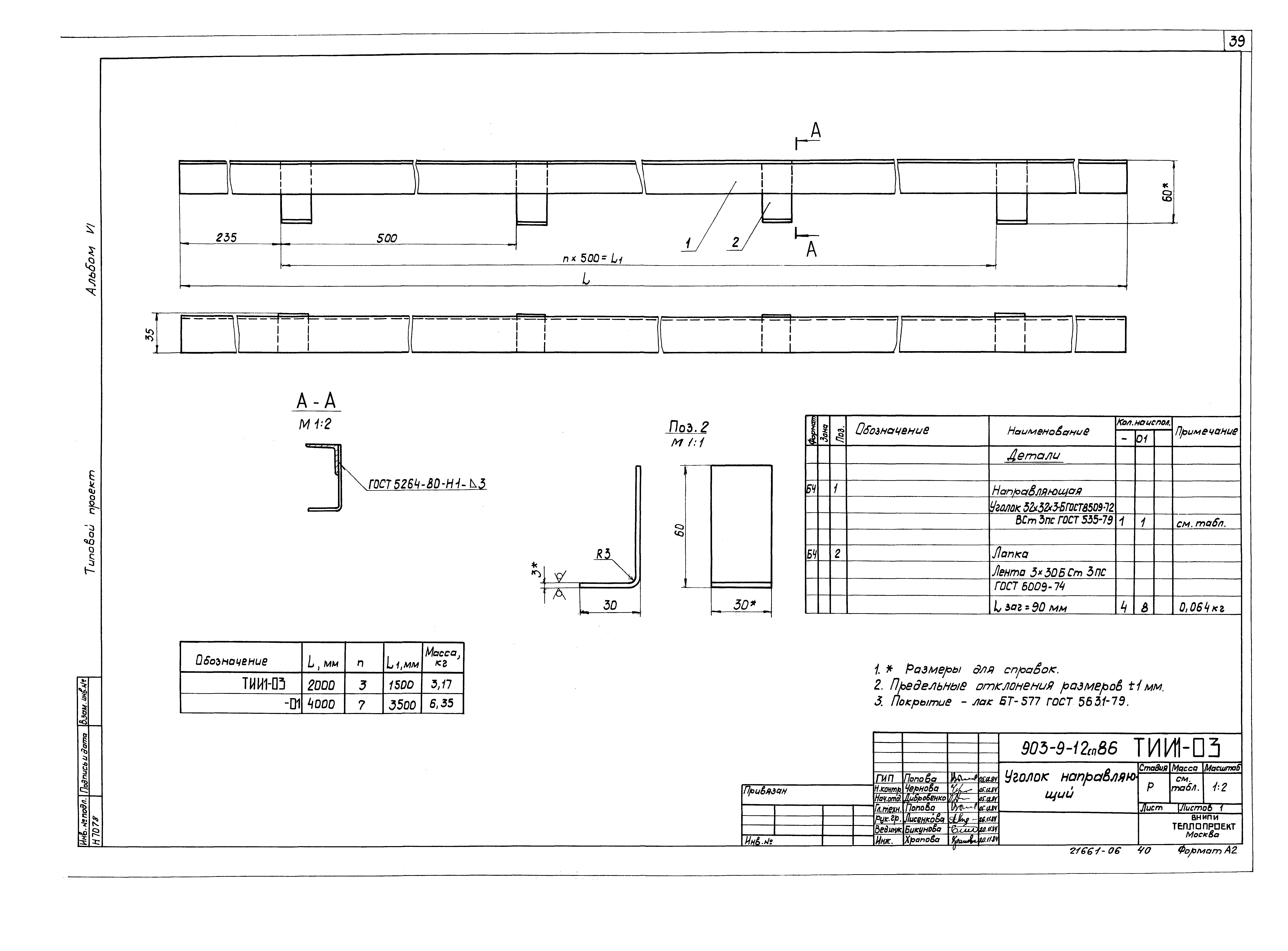
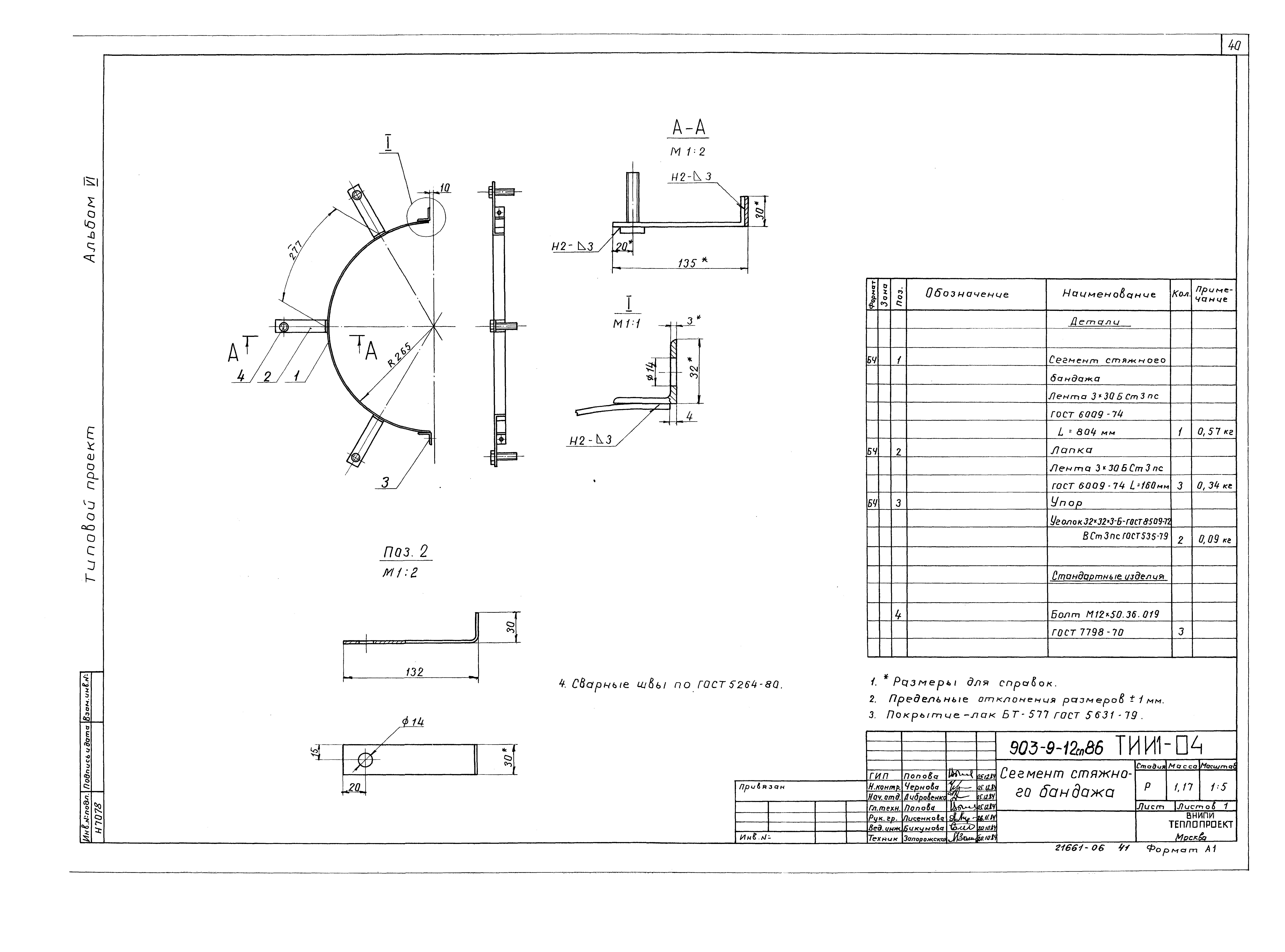
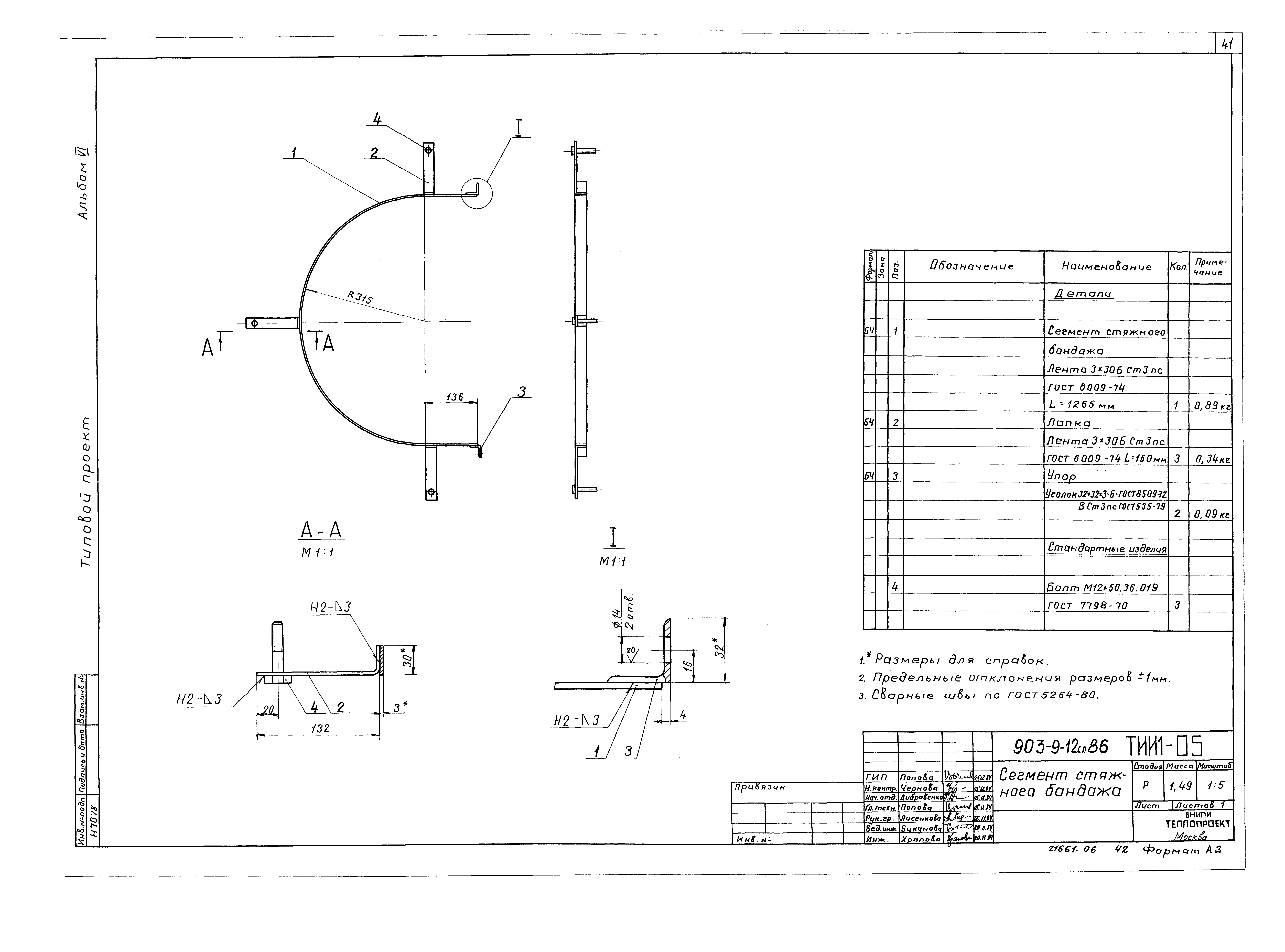
| Оглавление: | Титульный лист Содержание Чертежи основного комплекта марки ТИ1 Общие данные Тепловая изоляция полносборными конструкциями. Общий вид Тепловая изоляция полносборными конструкциями. Узлы, разрезы Тепловая изоляция полносборными конструкциями. Схема раскладки панелей, узлы, разрезы Бандажи. Схема приварки. Разрез А-А Бандажи. Узлы виды, разрез Б-Б Тепловая изоляция крыши. Общий вид Тепловая изоляция. Узлы, разрезы Детали приварные. Схема размещения на крыше Детали приварные. Узел 1, разрезы Тепловая изоляция люка-лаза Тепловая изоляция трубопровода Схема организации работ по монтажу изоляции с применением крана СМК-7 и АГП-18. План Схема организации работ по монтажу изоляции с применением крана СМК-7 и АГП-18. Вид А-А Порядок монтажа панелей на цилиндрической стенке Схема пооперационной установки одной панели на цилиндрической стенке Узел А. Вид 1-1. Узел Б. Вид 2-2 Схема погрузки полносборных конструкций на автомашину ЗИЛ-130-76 Калькуляция трудовых затрат (Цилиндрическая стенка) График производства работ (Цилиндрическая стенка) Калькуляция трудовых затрат (Крыша) График производства работ (Крыша) Чертежи основного комплекта марки ТИ2 Общие данные Тепловая изоляция резервуара для хранения герметизирующей жидкости емкостью 50 куб. м Тепловая изоляция трубопроводов и арматуры Тепловая изоляция насоса Х45/31а-Д Элемент бандажа тип 1 Элемент бандажа тип 2 Уголок направляющий Сегмент стяжного бандажа Полуфутляр Бандаж с пряжкой Скоба Уголок Решетка Элемент опорного кольца Мат в стеклоткани |
| Разработан: | ВНИПИТеплопроект |
| Утверждён: | 18.06.1985 Минэнерго СССР (USSR Minenergo 58) |
| Издан: | ГУП ЦПП (CPP GUP 1996 г. ) |














































