Скачать Типовой проект 704-1-252с.92 Альбом 3. Основания и фундаментыДата актуализации: 01.01.2021
|
| Обозначение: | Типовой проект 704-1-252с.92 |
| Обозначение англ: | 704-1-252с.92 |
| Статус: | не определен законодательством |
| Название рус.: | Альбом 3. Основания и фундаменты |
| Дата добавления в базу: | 01.09.2013 |
| Дата актуализации: | 01.01.2021 |
| Дата введения: | 13.10.1992 |
| Дата окончания срока действия: | 30.06.2003 |
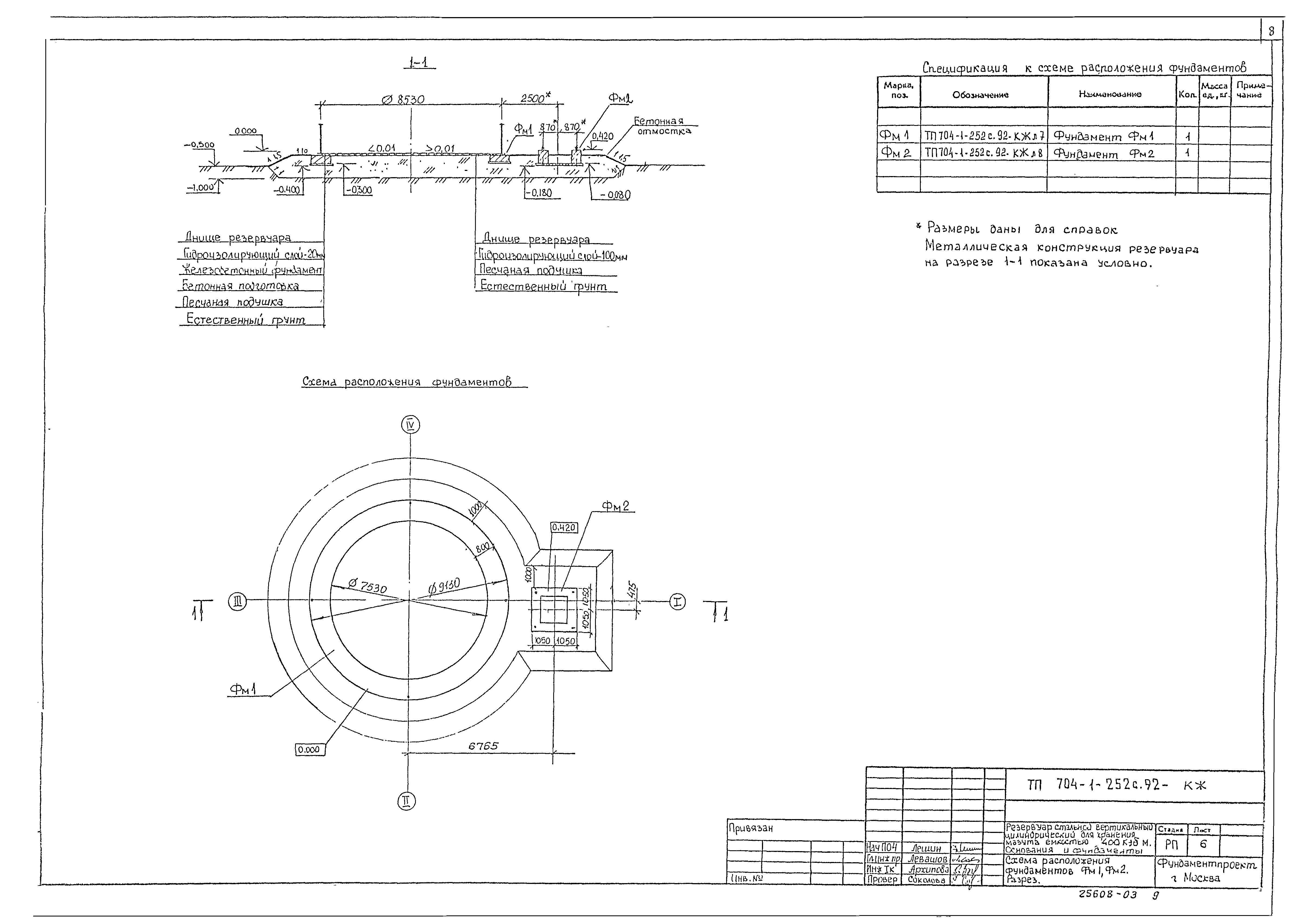
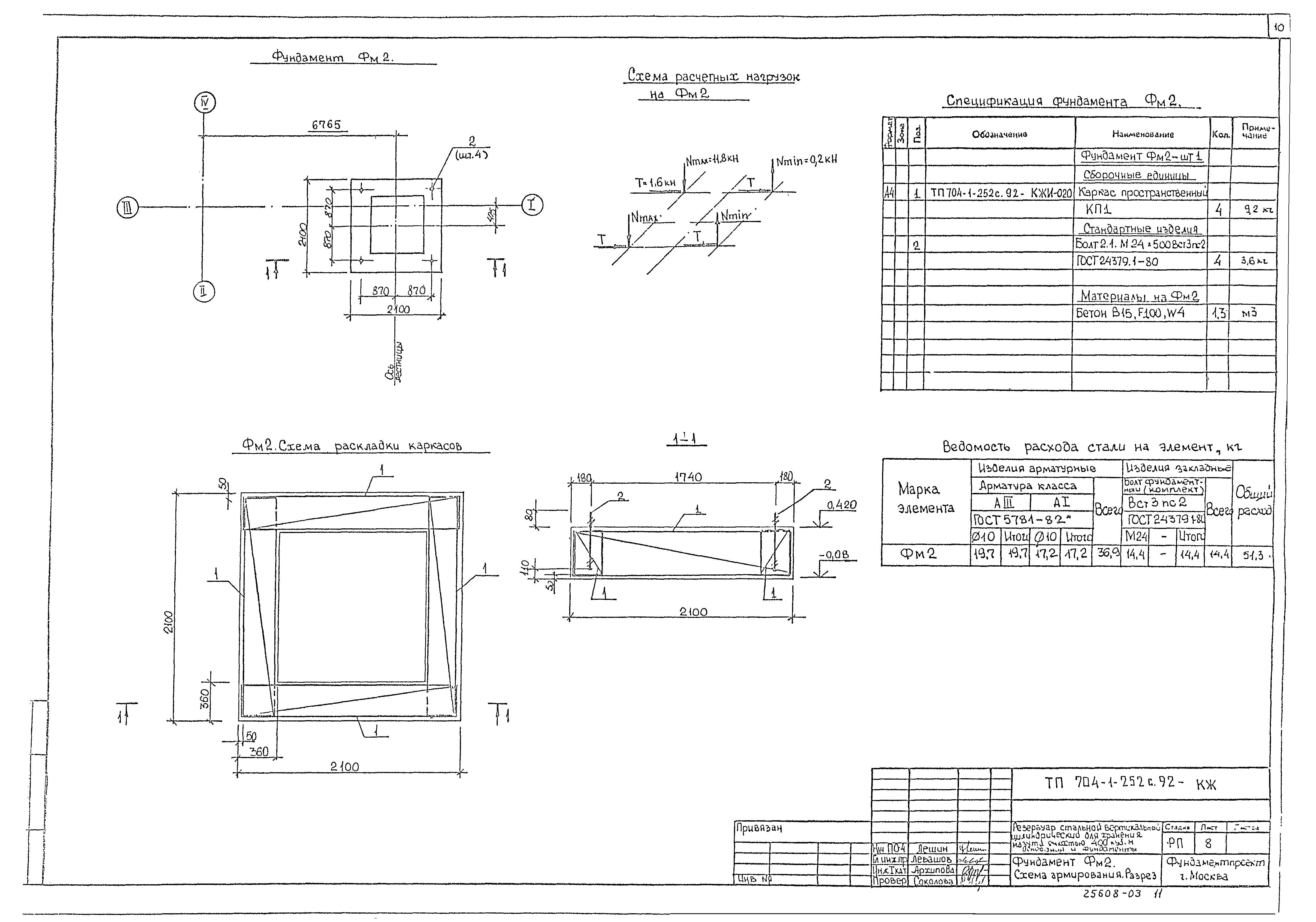
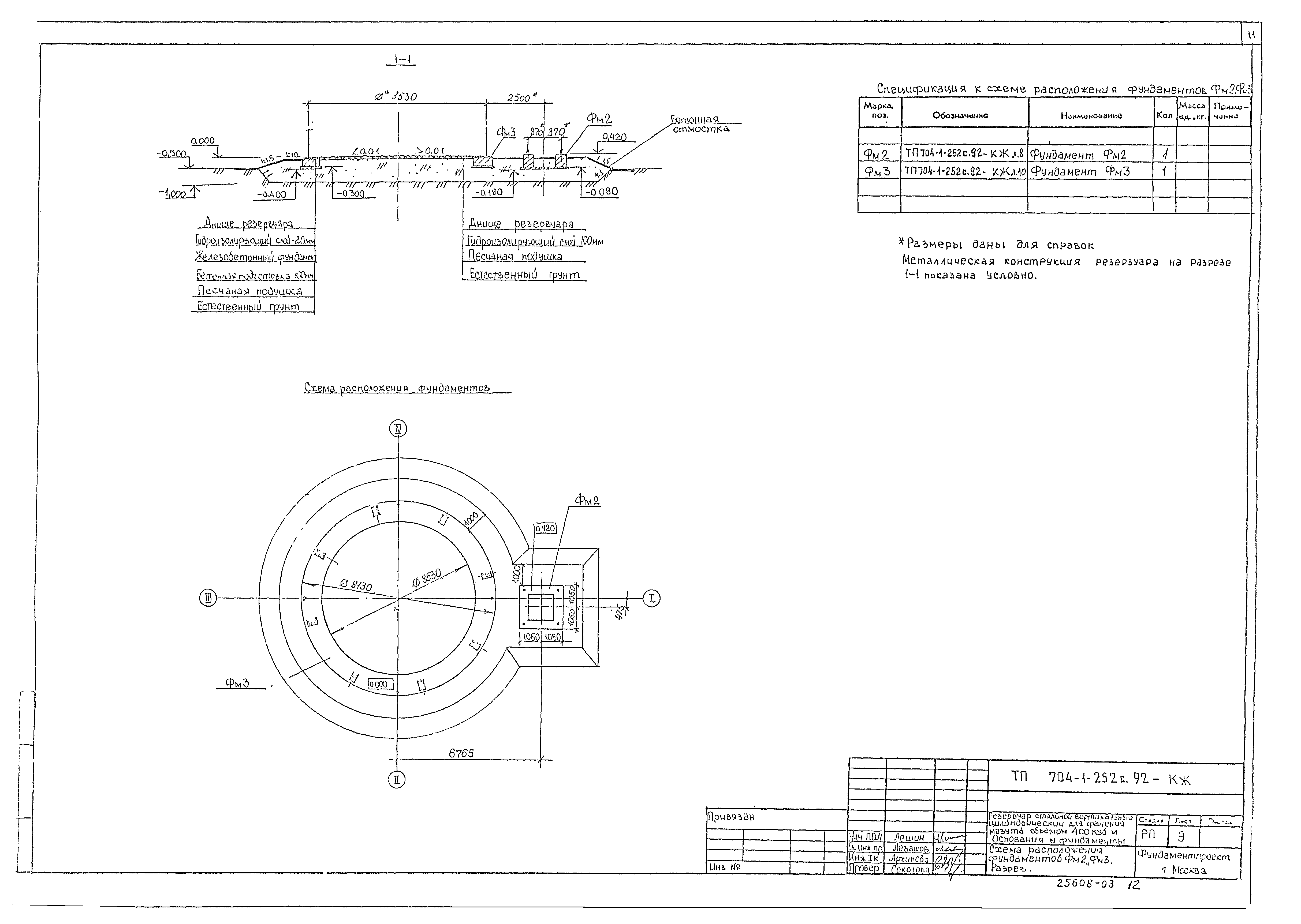
| Оглавление: | ТП 704-1-252с92-КЖ Общие данные (начало) ТП 704-1-252с92-КЖ Общие данные (продолжение) ТП 704-1-252с92-КЖ Общие данные (окончание) ТП 704-1-252с92-КЖ Схема расположения фундаментов Фм1,Фм2 ТП 704-1-252с92-КЖ Фундамент Фм1. Схема армирования ТП 704-1-252с92-КЖ Фундамент Фм2. Схема армирования ТП 704-1-252с92-КЖ Схема расположения фундаментов Фм2,Фм3 ТП 704-1-252с92-КЖ Фундамент Фм3. Схема армирования ТП 704-1-252с92-КЖИ-010 Каркас плоский КР1 ТП 704-1-252с92-КЖИ-020 Каркас пространственный КП1 ТП 704-1-252с92-КЖИ-030 Закладная деталь МН1 |
| Разработан: | Сантехниипроект Госстроя России ГПИфундаментпроект |
| Утверждён: | 13.10.1992 Сантехниипроект (35) |
| Издан: | ГП ЦПП (1996 г. ) |













