Скачать Типовой проект 704-1-252с.92 Альбом 4. Тепловая изоляцияДата актуализации: 01.01.2021
|
| Обозначение: | Типовой проект 704-1-252с.92 |
| Обозначение англ: | 704-1-252с.92 |
| Статус: | не определен законодательством |
| Название рус.: | Альбом 4. Тепловая изоляция |
| Дата добавления в базу: | 01.09.2013 |
| Дата актуализации: | 01.01.2021 |
| Дата введения: | 13.10.1992 |
| Дата окончания срока действия: | 30.06.2003 |
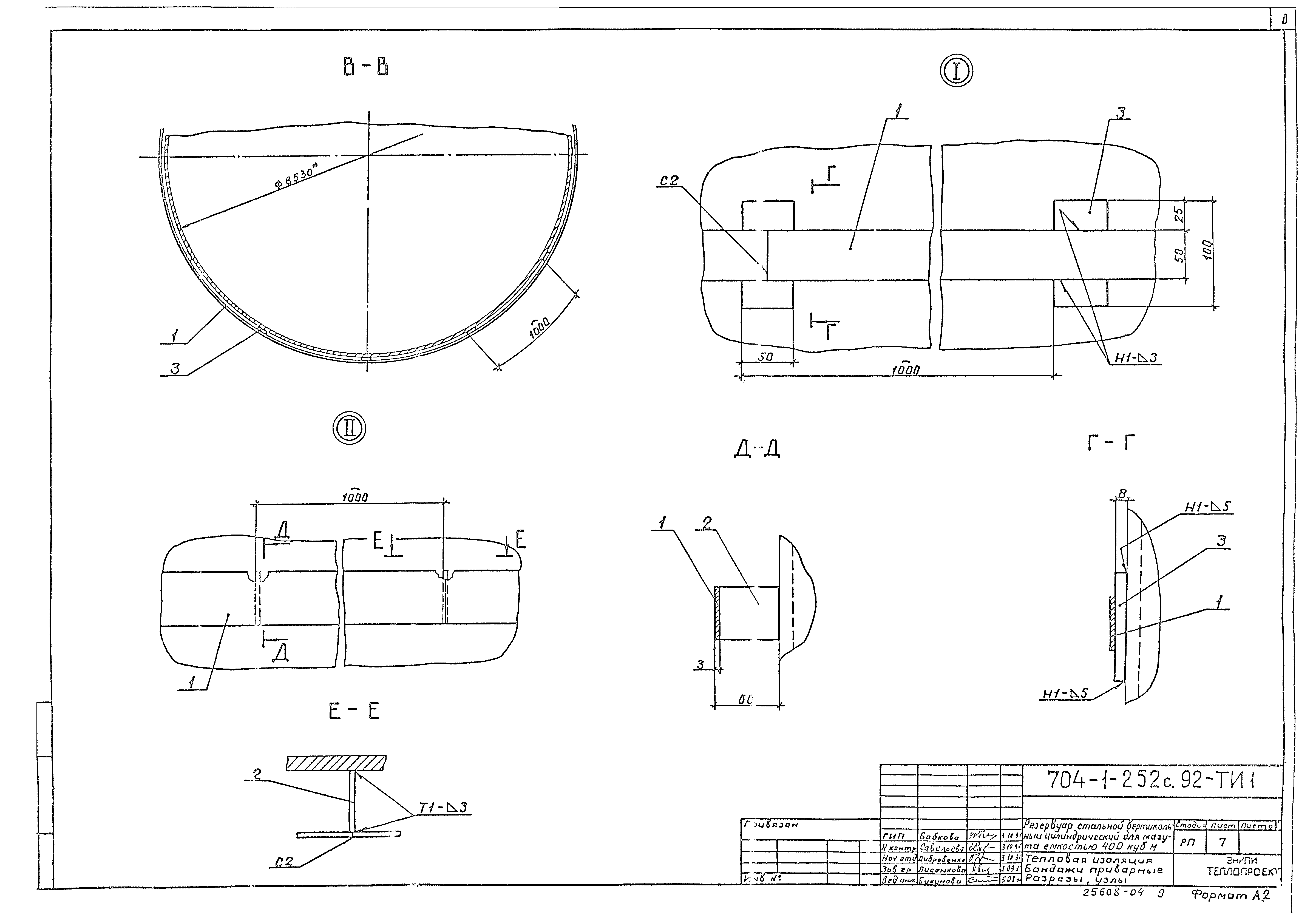
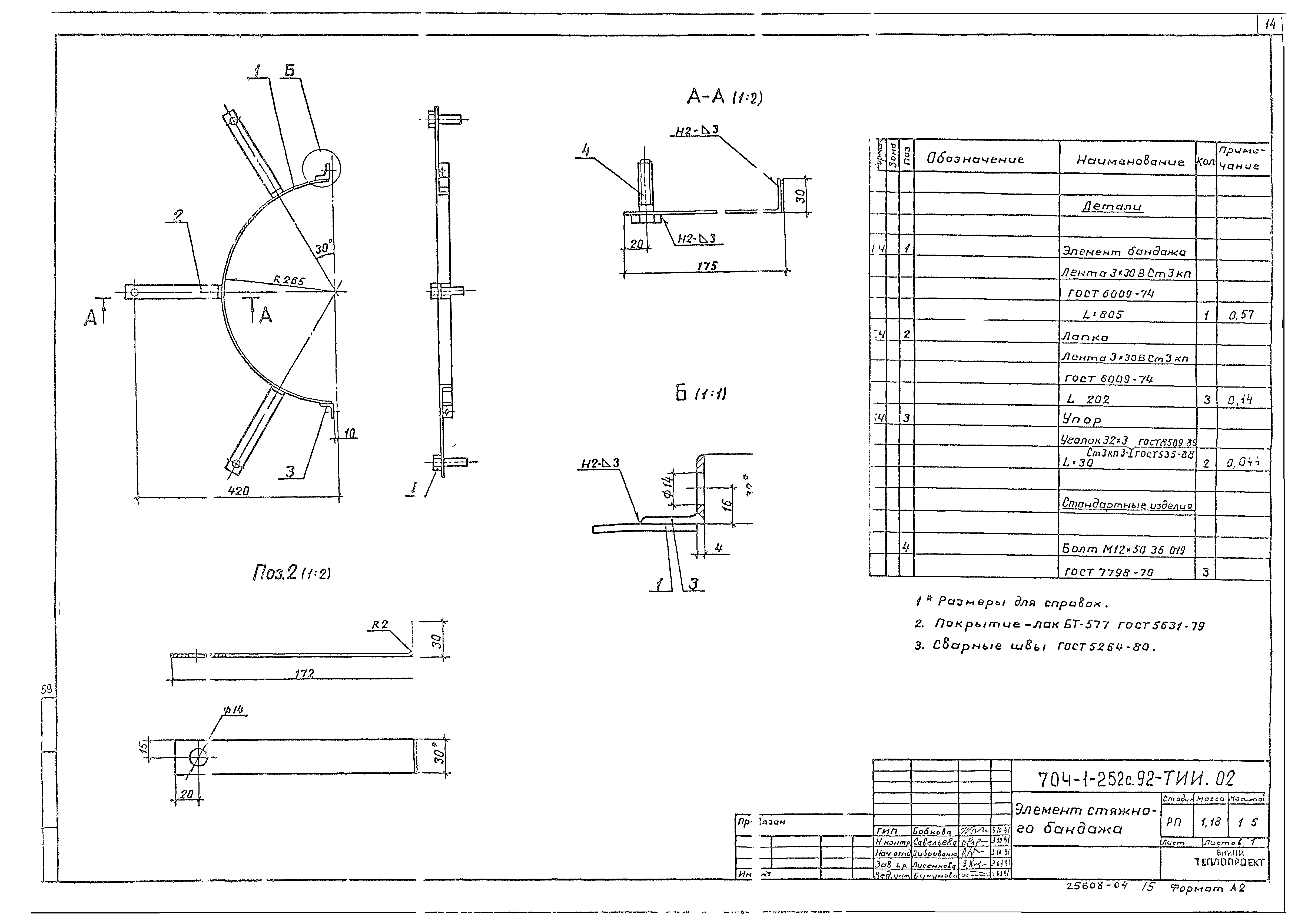
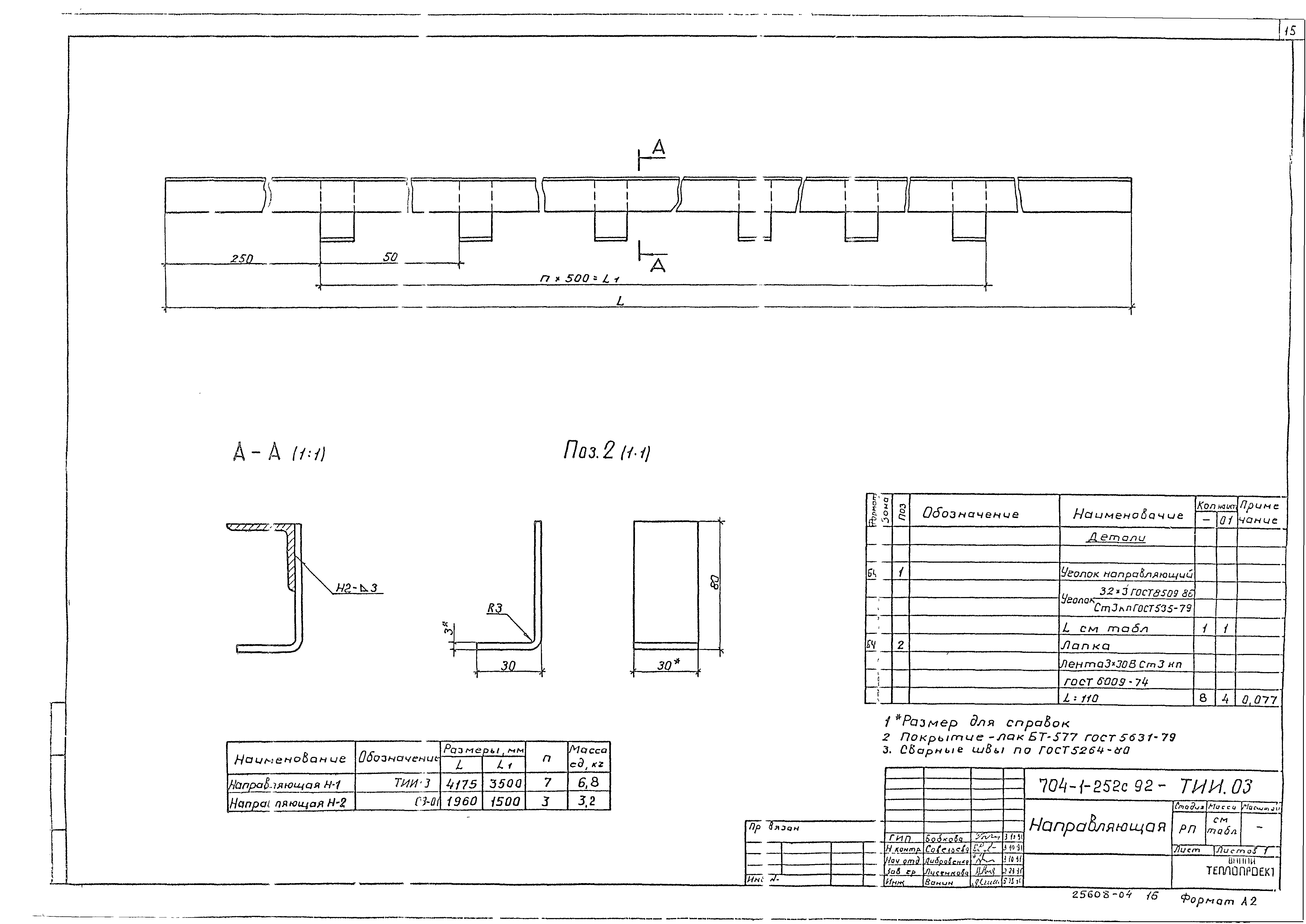
| Оглавление: | ТП 704-1-252с92-ТИ1 Общие данные (начало) ТП 704-1-252с92-ТИ1 Общие данные (окончание) ТП 704-1-252с92-ТИ1 Тепловая изоляция. Общий вид ТП 704-1-252с92-ТИ1 Тепловая изоляция ТП 704-1-252с92-ТИ1 Тепловая изоляция. Бандажи приварные. Общий вид, разрез ТП 704-1-252с92-ТИ1 Тепловая изоляция. Бандажи приварные. Разрезы, узлы ТП 704-1-252с92-ТИ1 Тепловая изоляция крыши. Общий вид, разрезы ТП 704-1-252с92-ТИ1 Тепловая изоляция крыши. Разрезы, узлы ТП 704-1-252с92-ТИ1 Приварные детали на крыше резервуара. Общий вид, разрезы ТП 704-1-252с92-ТИ1 Тепловая изоляция люка Ду500. Общий вид, разрез, узлы ТП 704-1-252с92-ТИ1 Элемент стяжного бандажа ТП 704-1-252с92-ТИ1 Направляющая ТП 704-1-252с92-ТИ1 Козырек ТП 704-1-252с92-ТИ1 Элемент покрытия ТП 704-1-252с92-ТИ1 Решетка |
| Разработан: | ВНИПИТеплопроект |
| Утверждён: | 13.10.1992 Сантехниипроект (35) |
| Издан: | ГП ЦПП (1996 г. ) |

















