Скачать Типовые проектные решения 903-9-031.89 Альбом I. Стальная конструкция защитыДата актуализации: 01.01.2021
|
| Обозначение: | Типовые проектные решения 903-9-031.89 |
| Обозначение англ: | 903-9-031.89 |
| Статус: | справочные материалы, мп, тпр |
| Название рус.: | Альбом I. Стальная конструкция защиты |
| Дата добавления в базу: | 01.09.2013 |
| Дата актуализации: | 01.01.2021 |
| Дата введения: | 28.04.1989 |
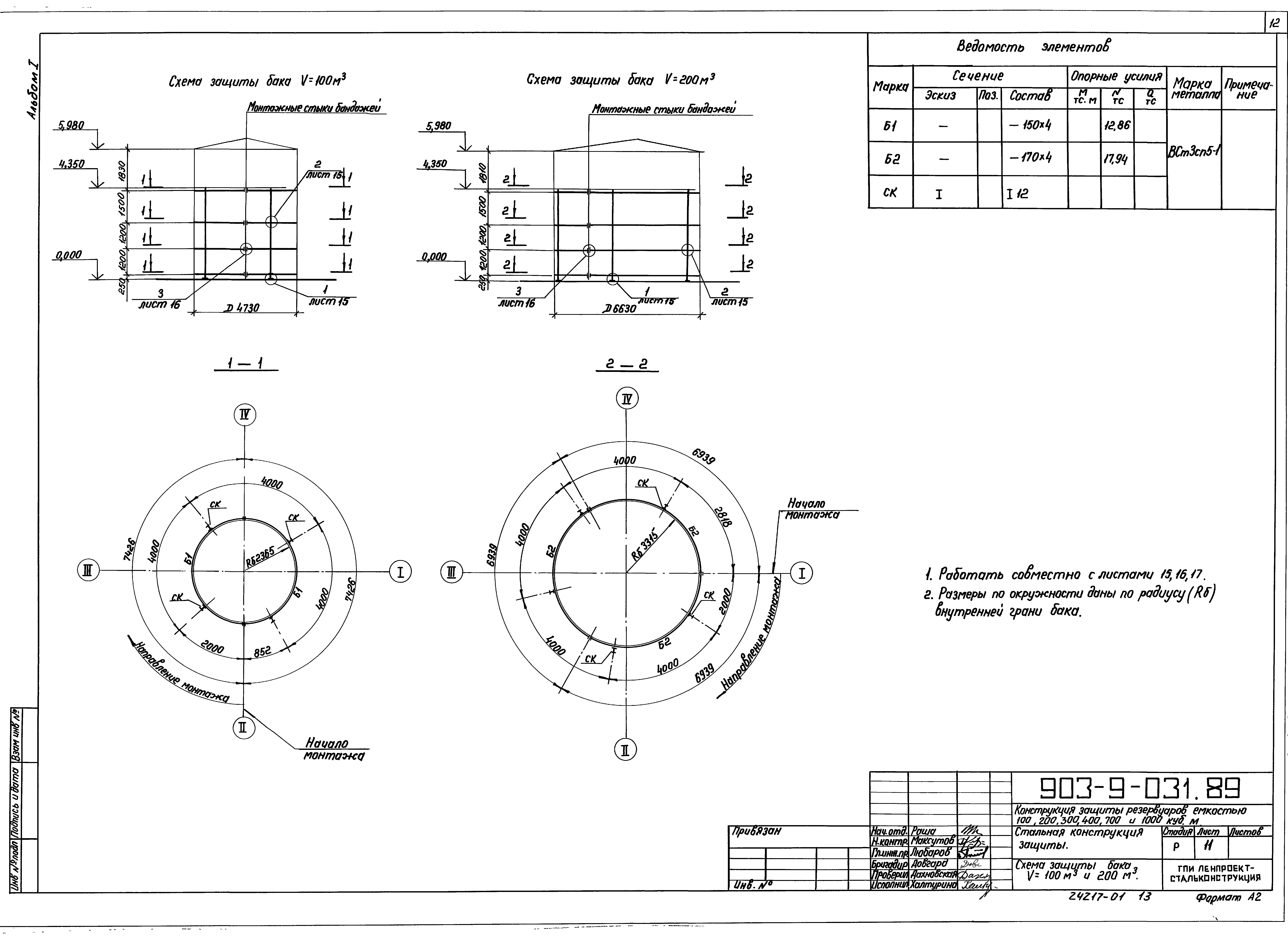
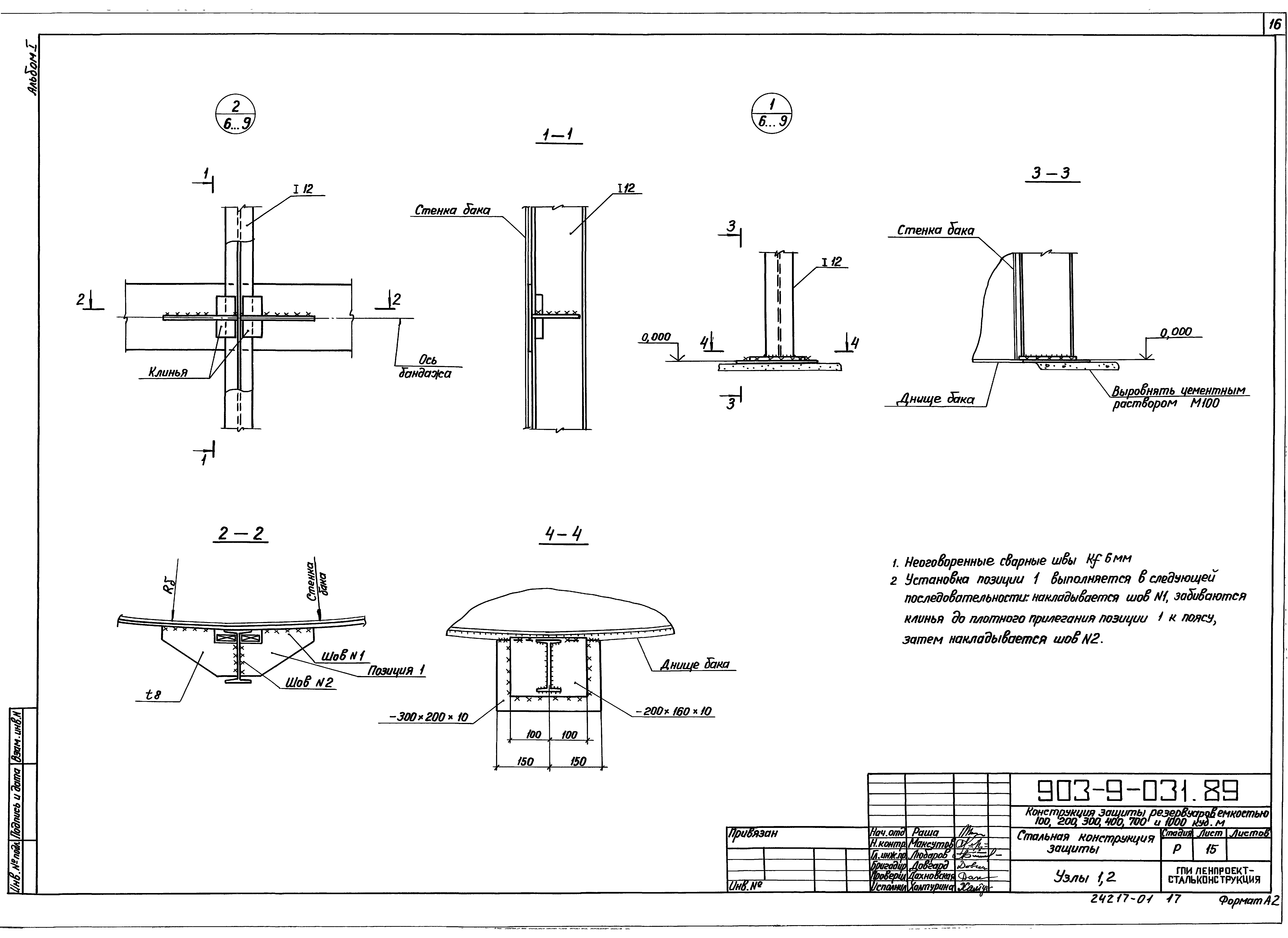
| Оглавление: | Общие данные Техническая спецификация стали Ведомость металлоконструкций по видам профилей V = 100 куб. м Ведомость металлоконструкций по видам профилей V = 200 куб. м Ведомость металлоконструкций по видам профилей V = 300 куб. м Ведомость металлоконструкций по видам профилей V = 400 куб. м Ведомость металлоконструкций по видам профилей V = 700 куб. м Ведомость металлоконструкций по видам профилей V = 10000 куб. м Схема защиты бака V = 100 куб. м и 200 куб. м Схема защиты бака V = 300 куб. м и 400 куб. м Схема защиты бака V = 700 куб. м Схема защиты бака V = 1000 куб. м Узлы 1, 2 Узлы 3, 4 Бандажи Б1, Б2, Б3, Б4, Б1-1 и Б2-1 |
| Разработан: | Ленпроектстальконструкция |
| Утверждён: | 28.04.1989 Госстрой СССР (Государственный комитет Совета Министров СССР по делам строительства) (USSR Gosstroy 4/5-643) |
| Издан: | ЦИТП Госстроя СССР (CITP, Gosstroy (USSR) 1990 г. ) |


















