Скачать Типовой проект 901-2-193.91 Альбом 1. Пояснительная записка. Технические решения. Отопление и вентиляция. Внутренние водопровод и канализация. Электротехническая часть. АвтоматизацияДата актуализации: 01.01.2021
|
| Обозначение: | Типовой проект 901-2-193.91 |
| Обозначение англ: | 901-2-193.91 |
| Статус: | не определен законодательством |
| Название рус.: | Альбом 1. Пояснительная записка. Технические решения. Отопление и вентиляция. Внутренние водопровод и канализация. Электротехническая часть. Автоматизация |
| Дата добавления в базу: | 01.09.2013 |
| Дата актуализации: | 01.01.2021 |
| Дата введения: | 03.07.1991 |
| Дата окончания срока действия: | 30.06.2003 |
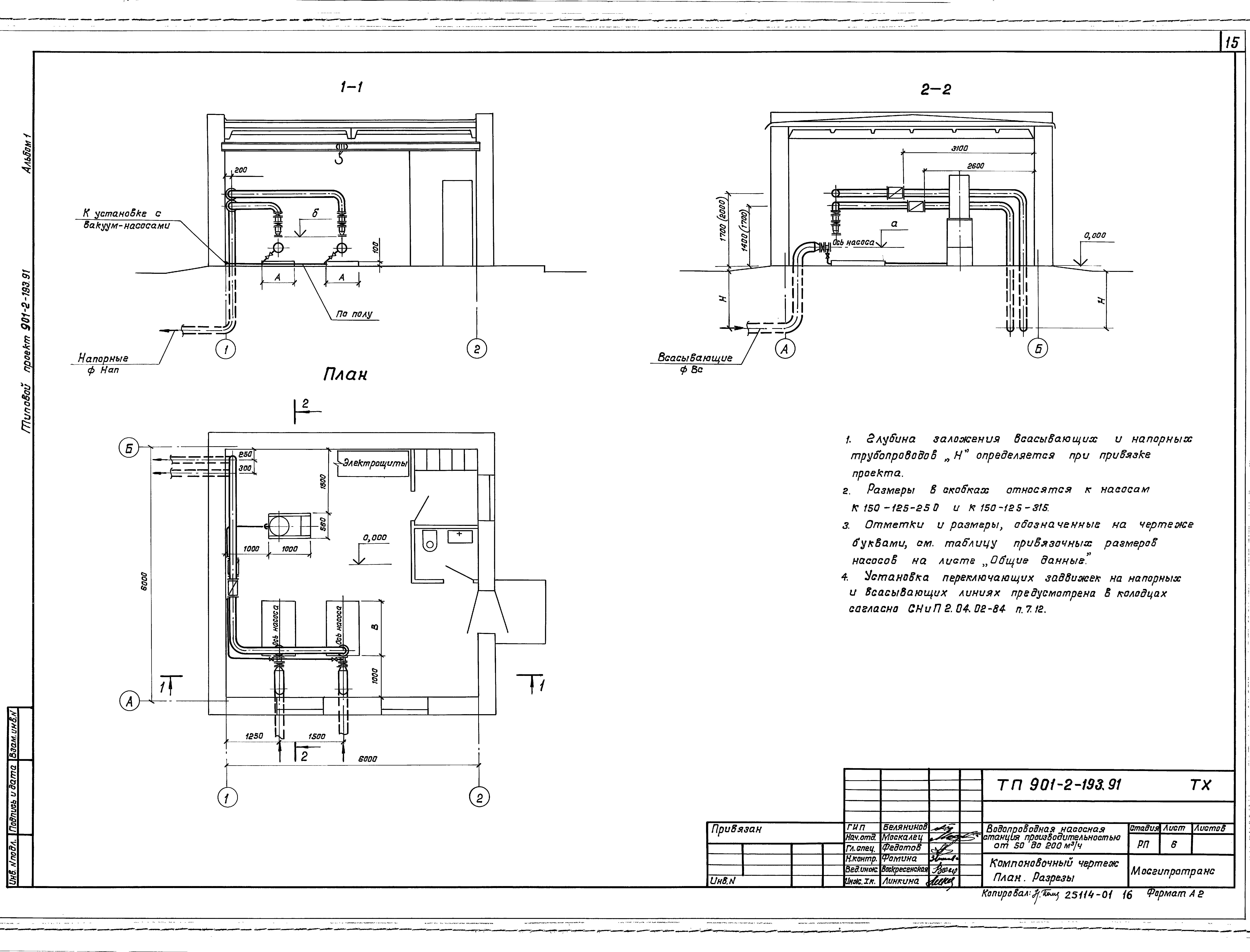
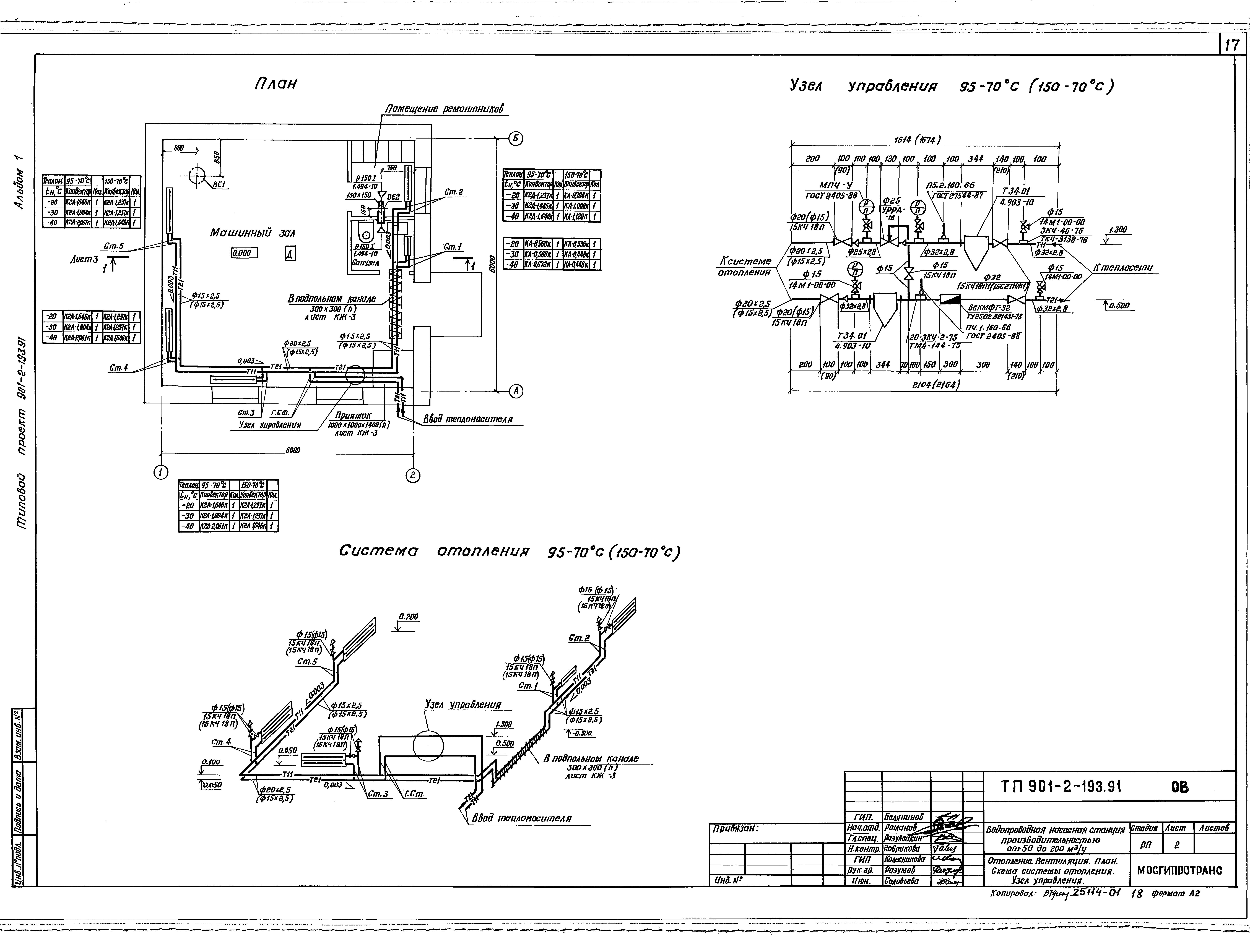
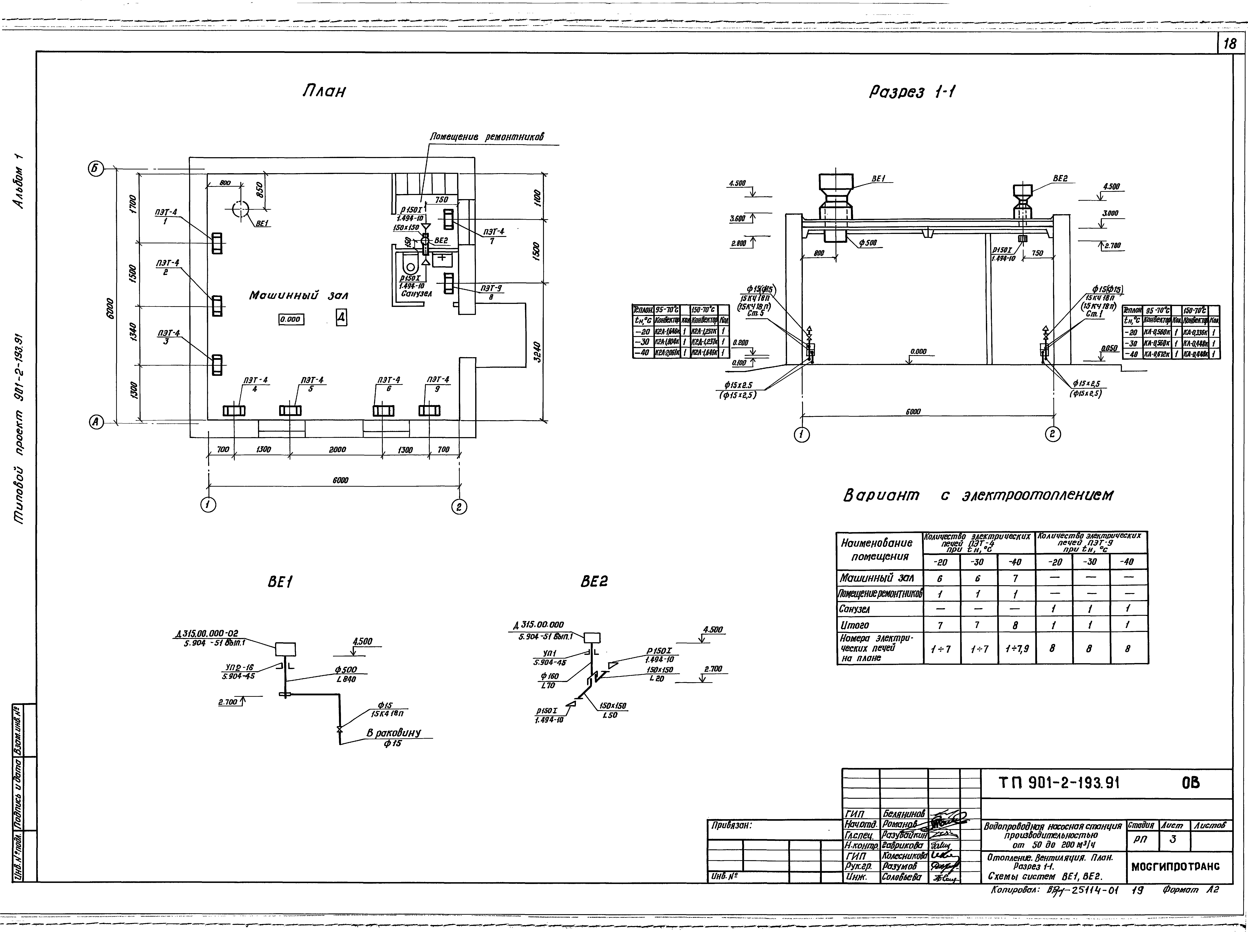
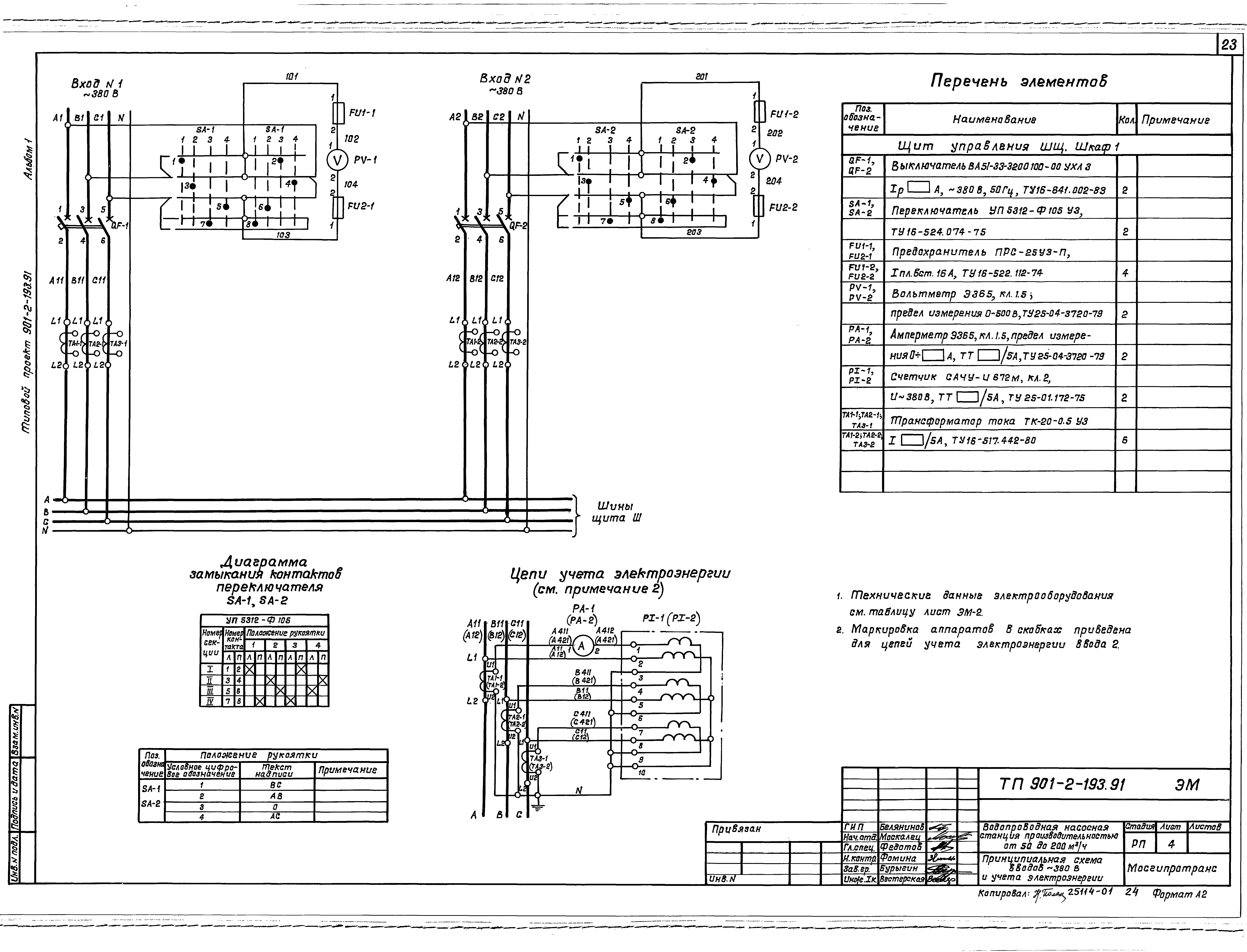
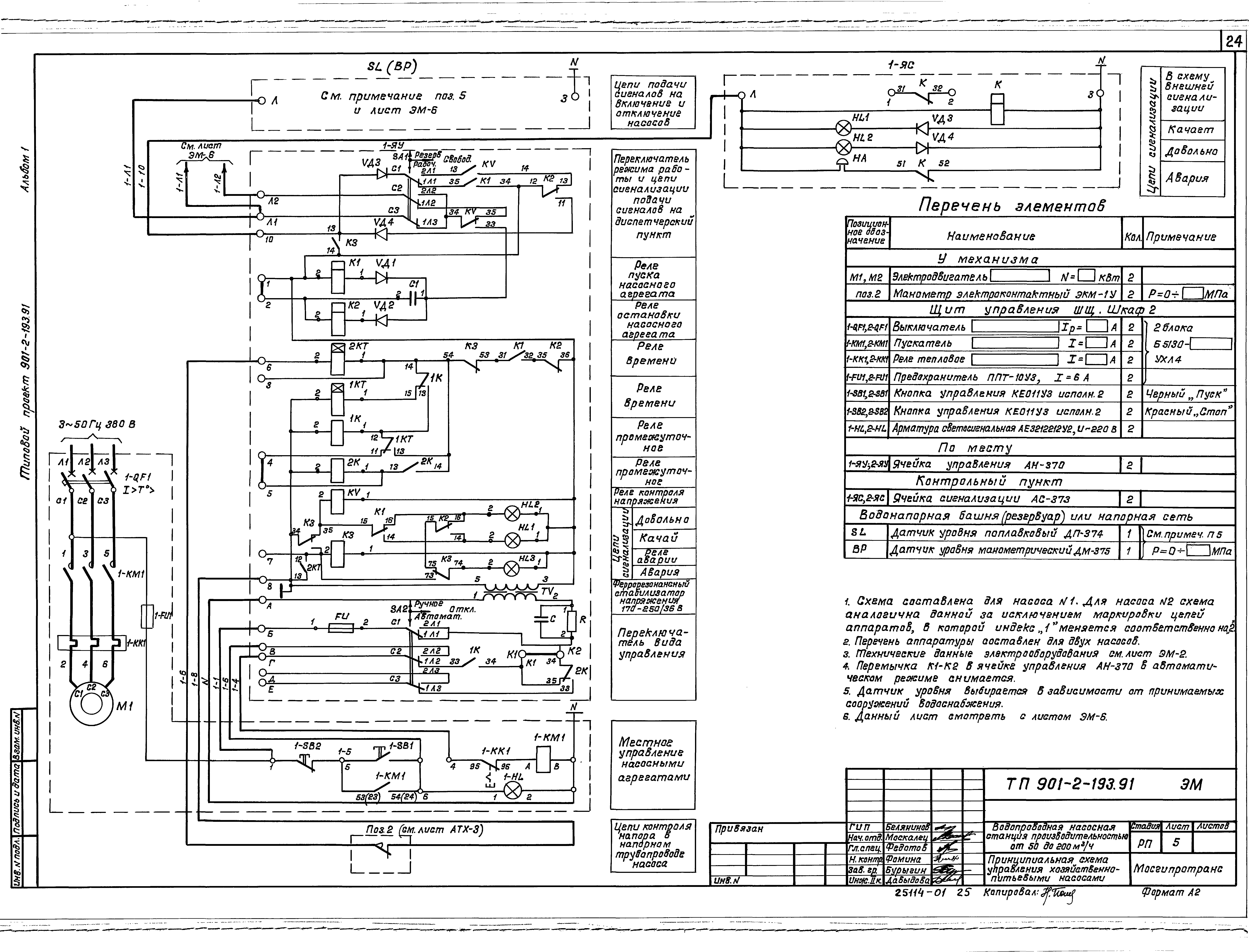
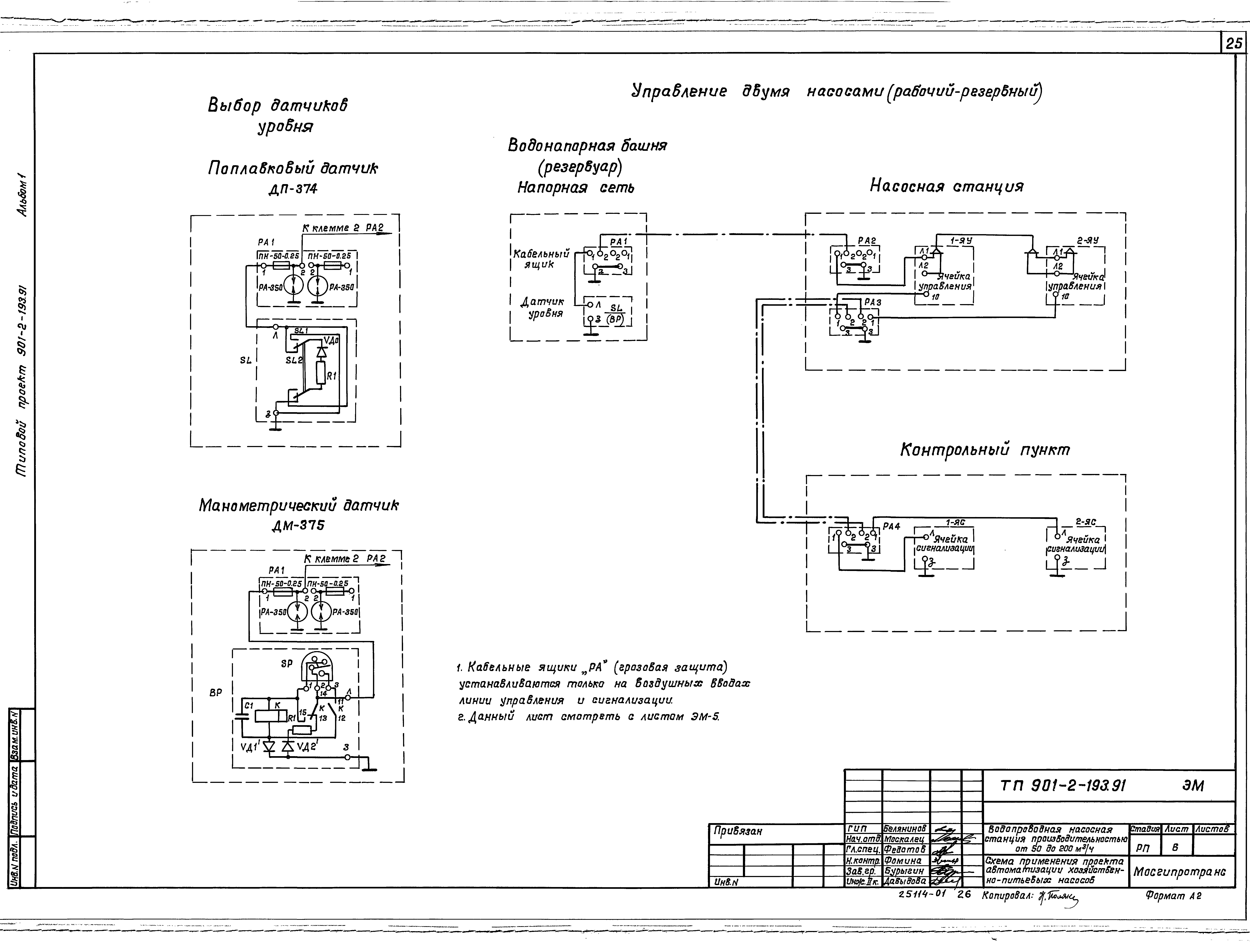
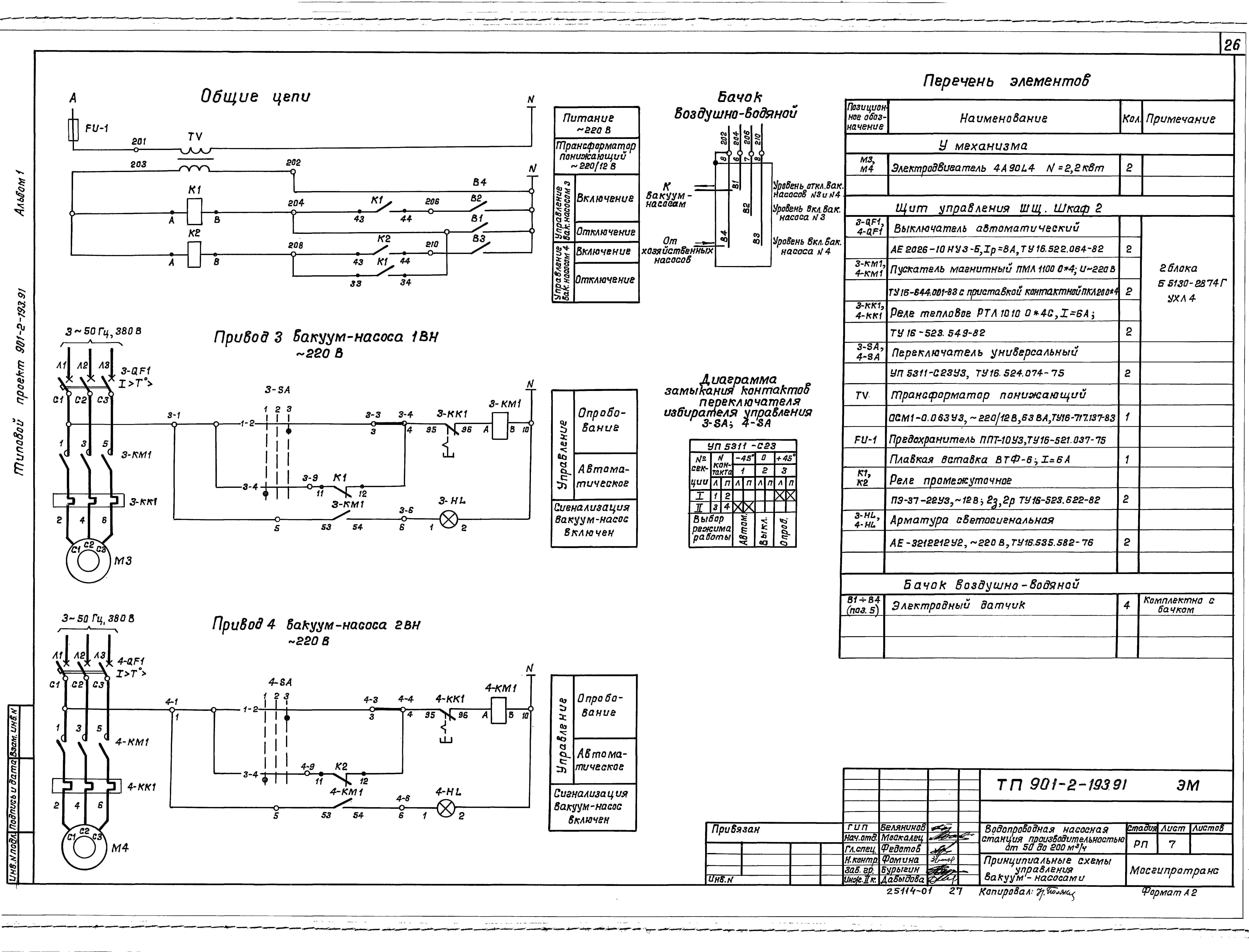
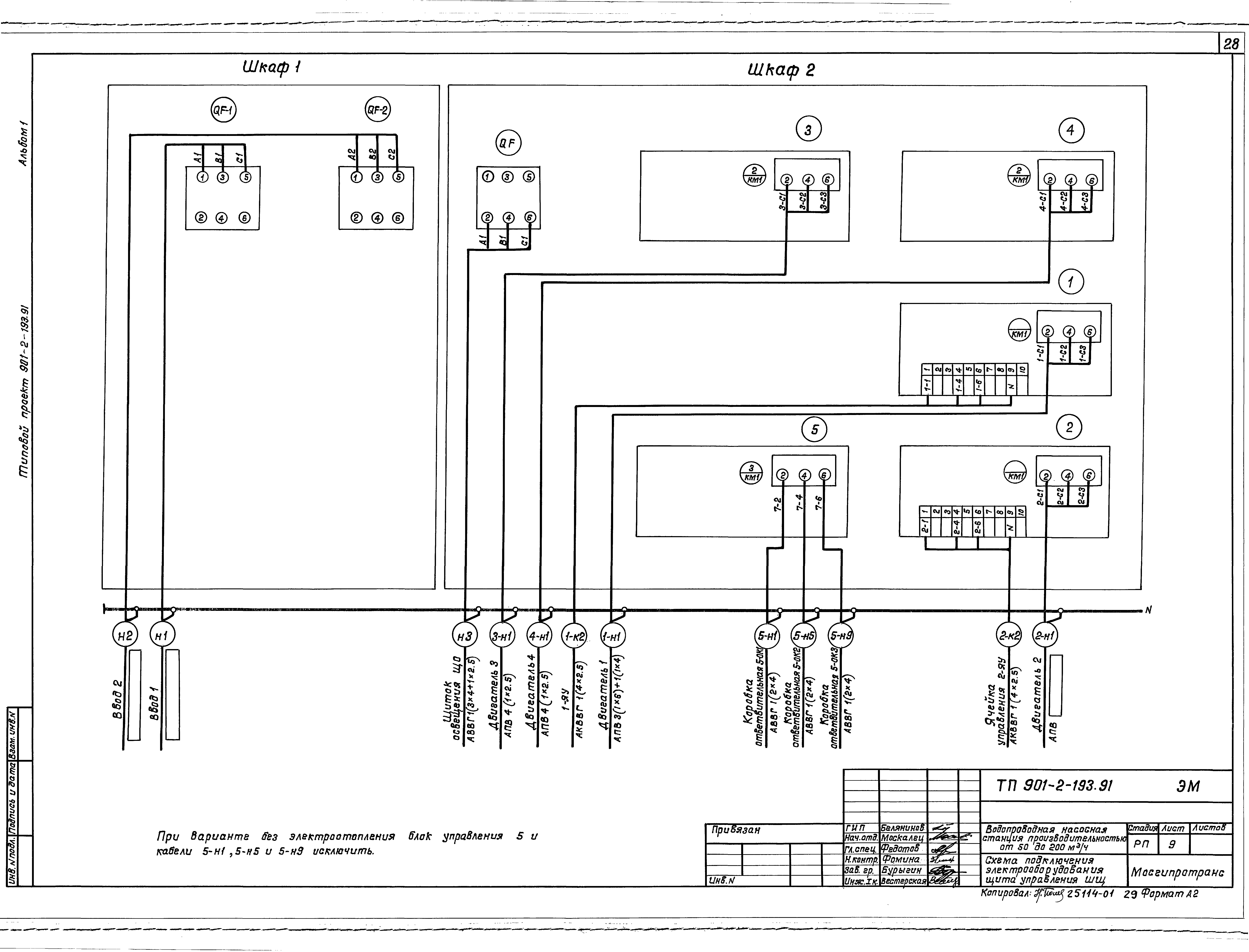
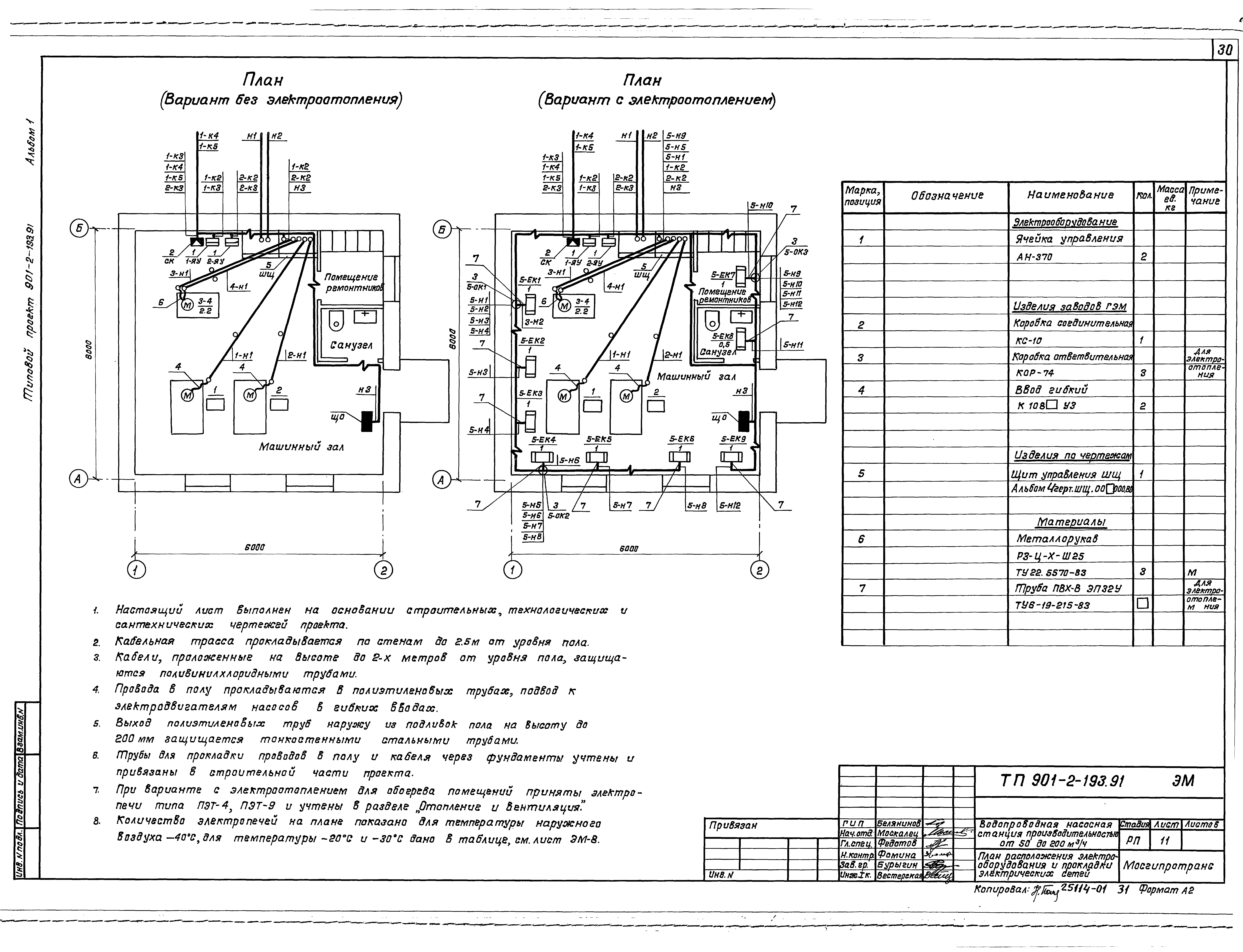
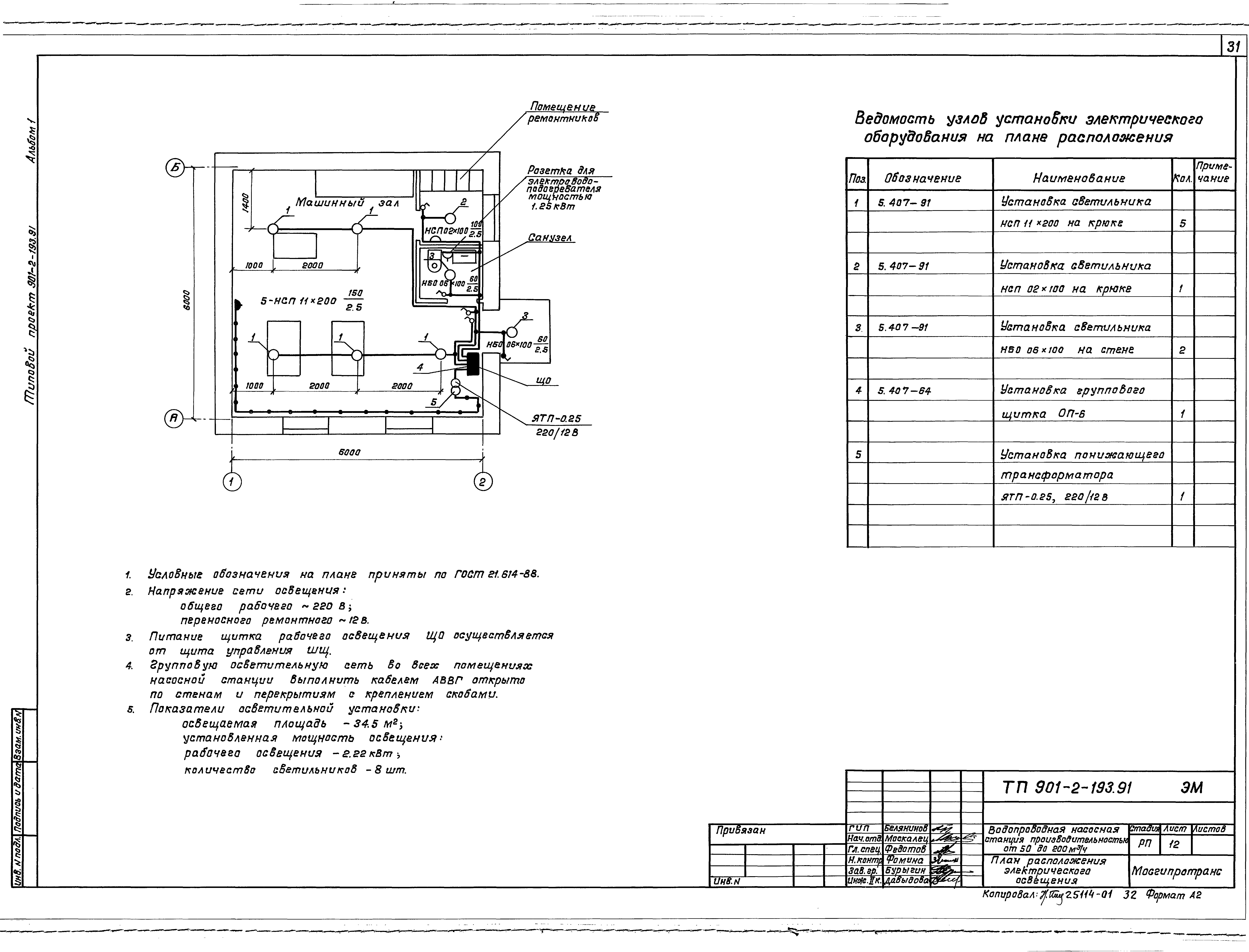
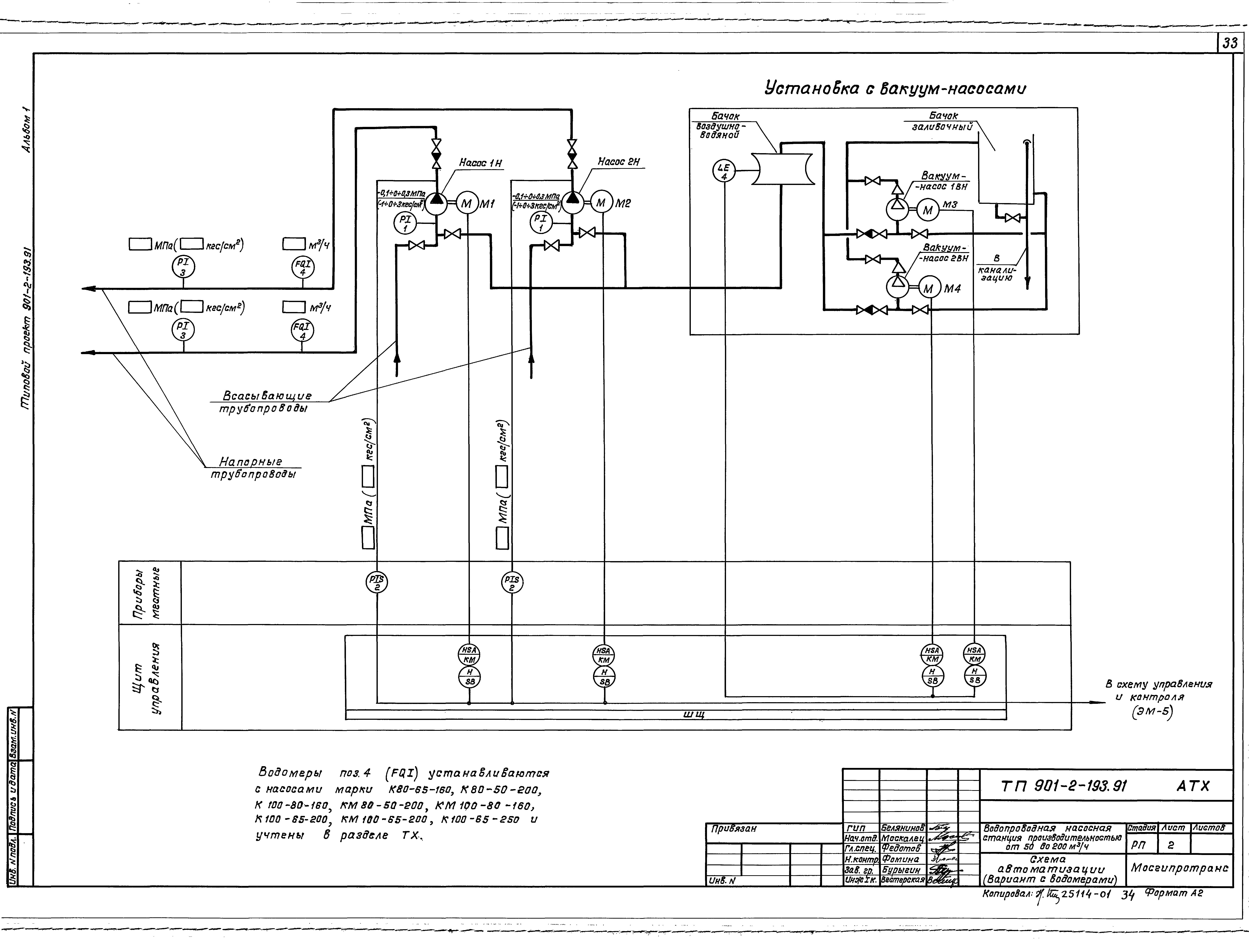
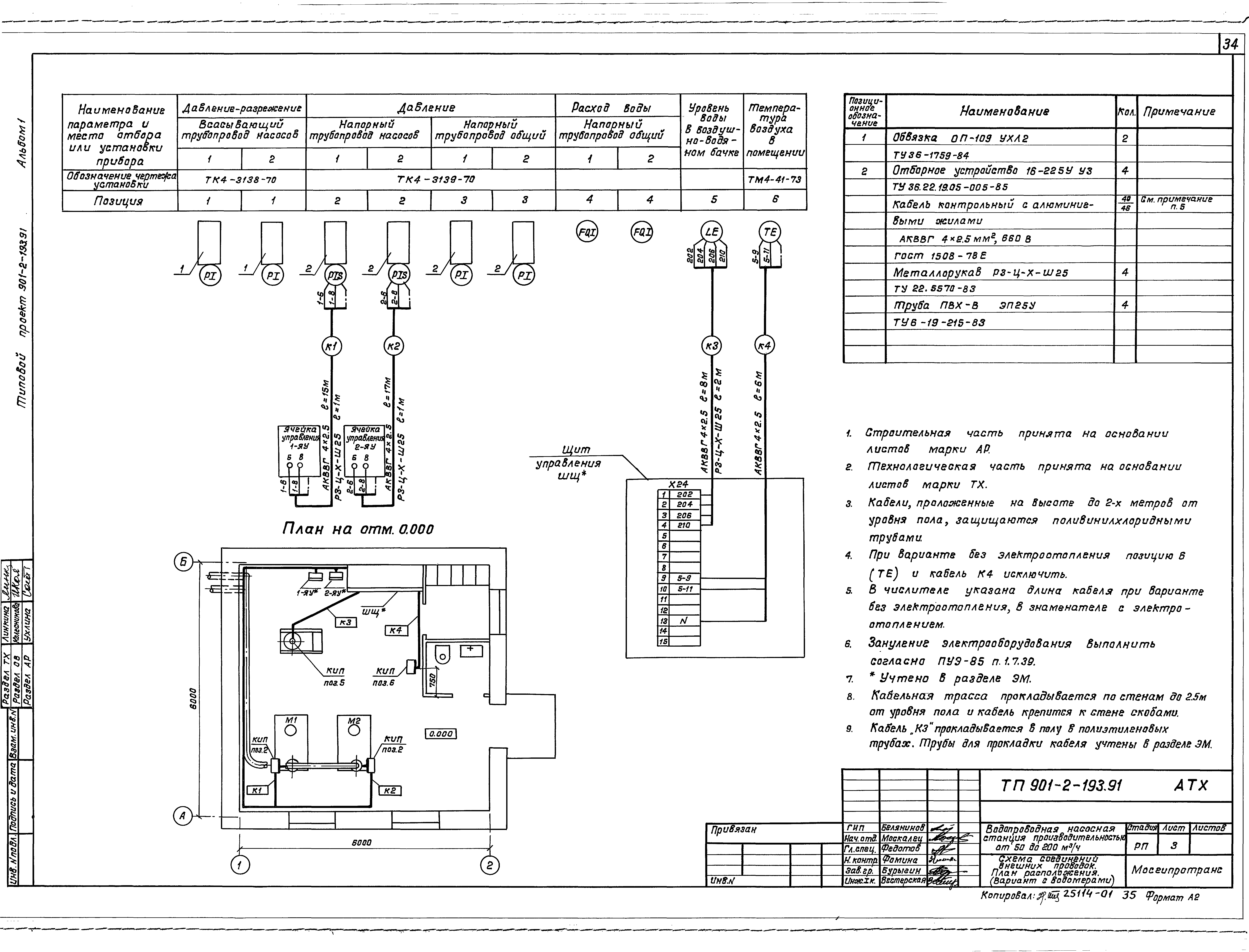
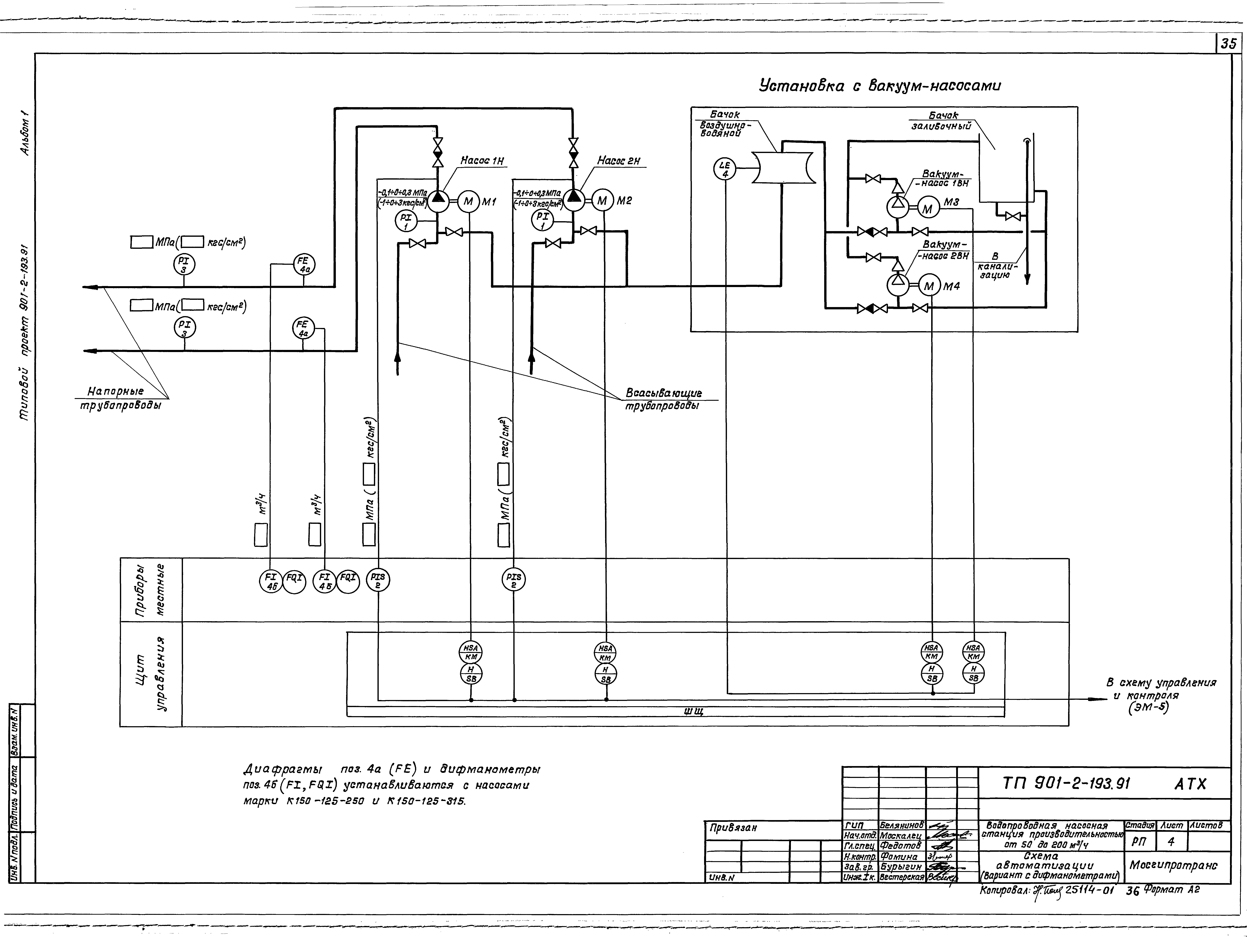
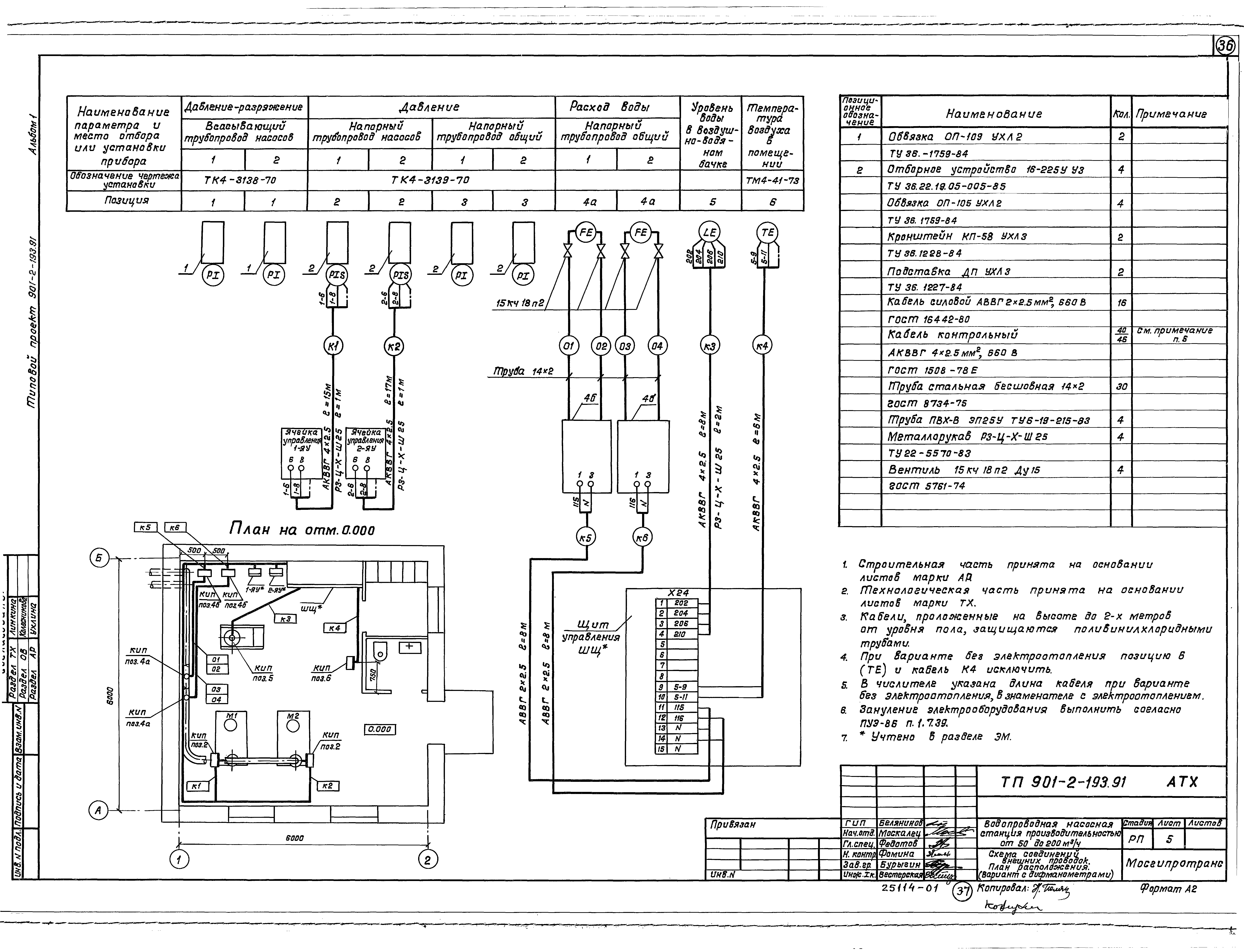
| Оглавление: | Пояснительная записка Технологические решения Общие данные Схемы установки системы ВО и установки с вакуум - насосами Спецификация Компоновочный чертеж. План. Разрезы Отопление и вентиляция Общие данные Отопление. Вентиляция. План. Схема системы отопления. Узел управления Отопление. Вентиляция. План. Разрез 1-1. Схемы систем ВЕ1, ВЕ2 Внутренние водопровод и канализация Общие данные. План с сетями В1, К1. Схемы систем В1, К1 Электротехническая часть Общие данные Принципиальная схема распределительной сети Принципиальная схема вводов ~380В и учета электроэнергии Принципиальная схема управления хозяйственно-питьевыми насосами Схема применения проекта автоматизации хозяйственно-питьевых насосов Принципиальные схемы управления вакуум-насосами Принципиальные схемы управления электроотоплением Схема подключения щита управления ШЩ Схемы подключения электрооборудования. Кабельный журнал План расположения электрооборудования и прокладки электрических сетей План расположения электрического освещения Автоматизации Общие данные Схема автоматизации (вариант с водомерами) Схема соединений внешних проводок. План расположения. (вариант с водомерами) Схема автоматизации (вариант с дифманометрами) Схема соединений внешних проводок. План расположения. (вариант с дифманометрами) |
| Разработан: | Мосгипротранс |
| Утверждён: | 03.07.1991 Министерство транспортного строительства СССР (USSR Ministry of Transport Construction СВ-589) |
| Заменяет собой: |




































