Скачать Типовой проект 901-2-193.91 Альбом 4. Чертежи задания заводу изготовителю на щиты управления ШЩ

Дата актуализации: 01.01.2021

Типовой проект 901-2-193.91

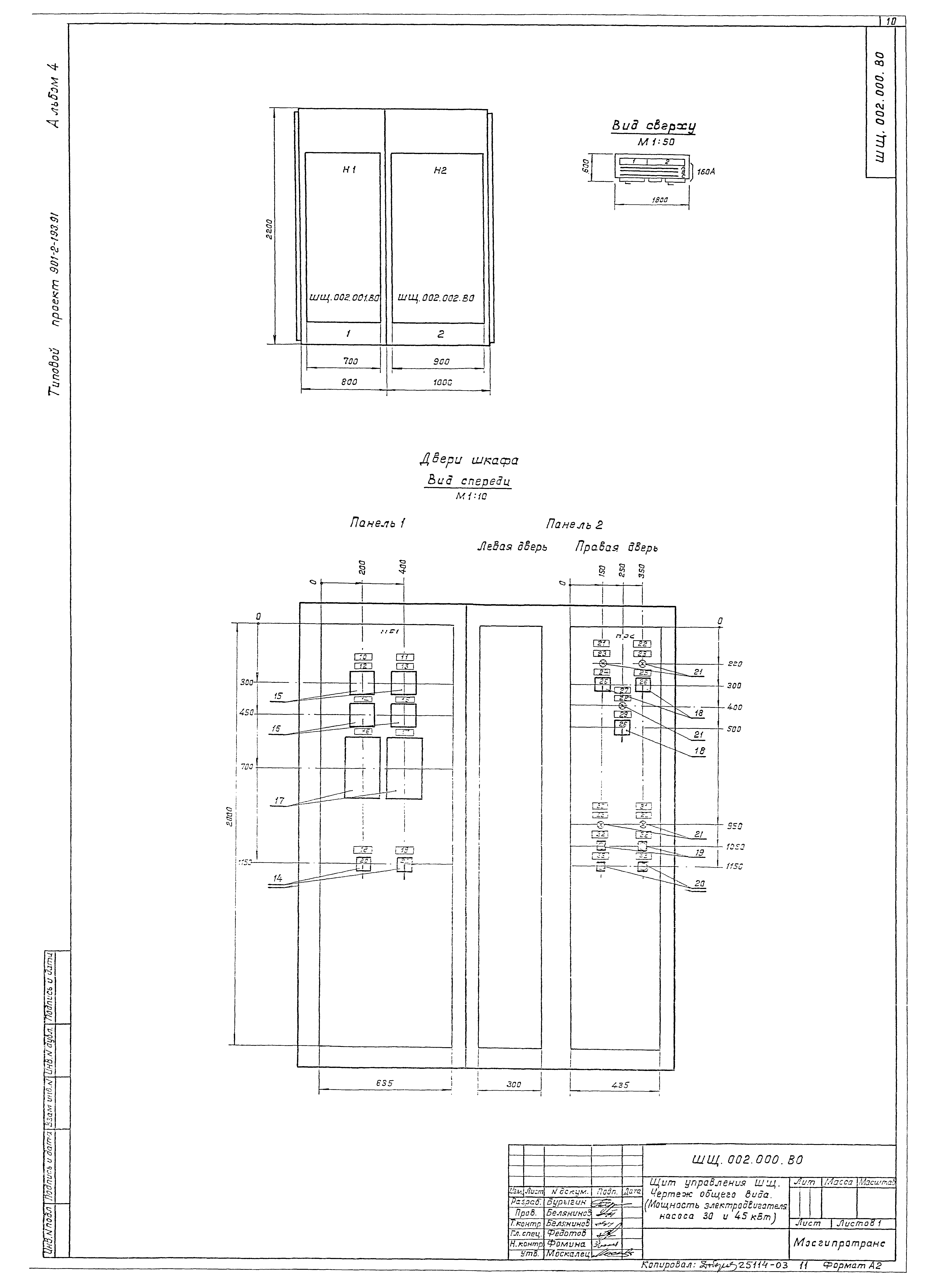
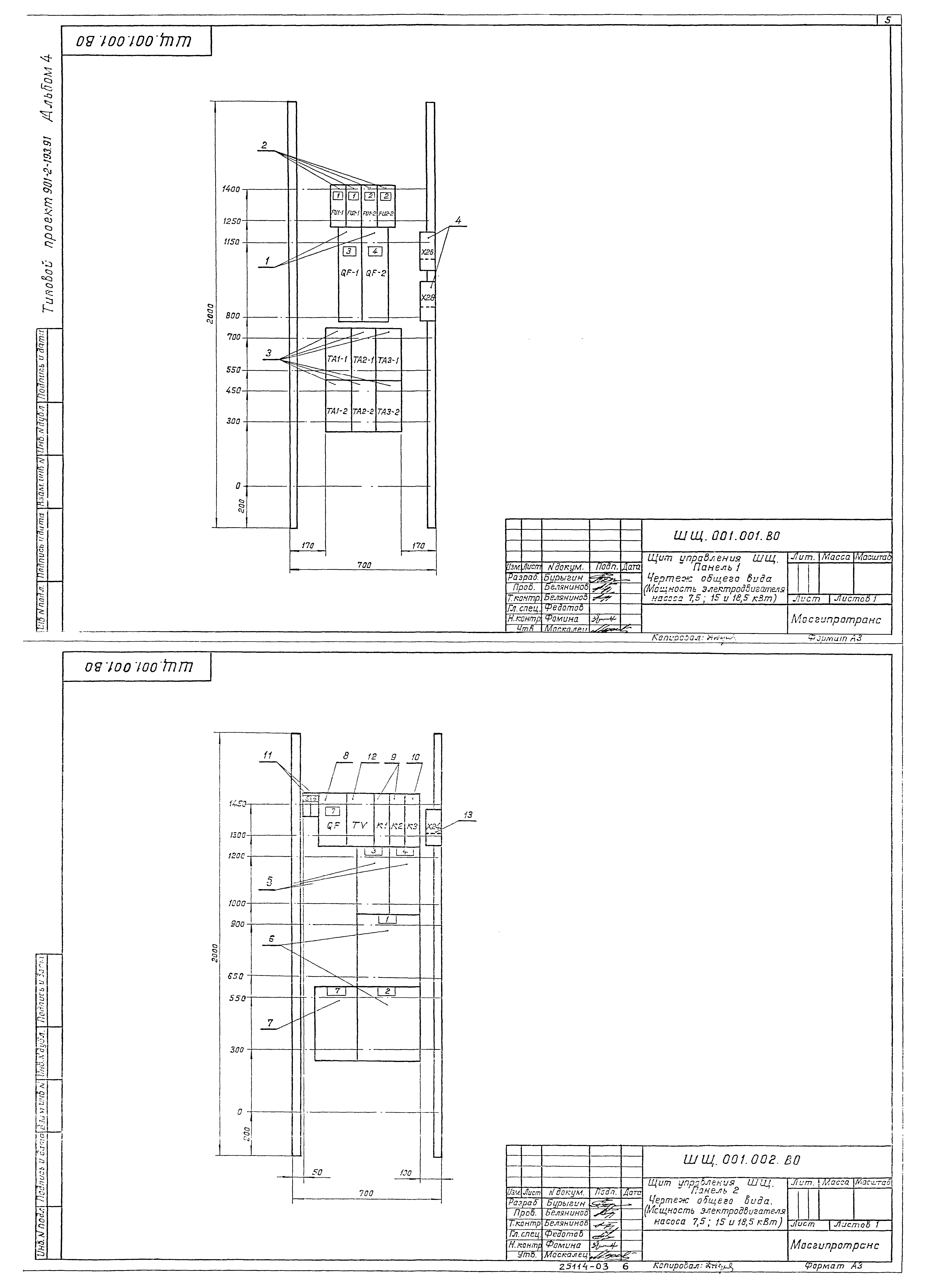
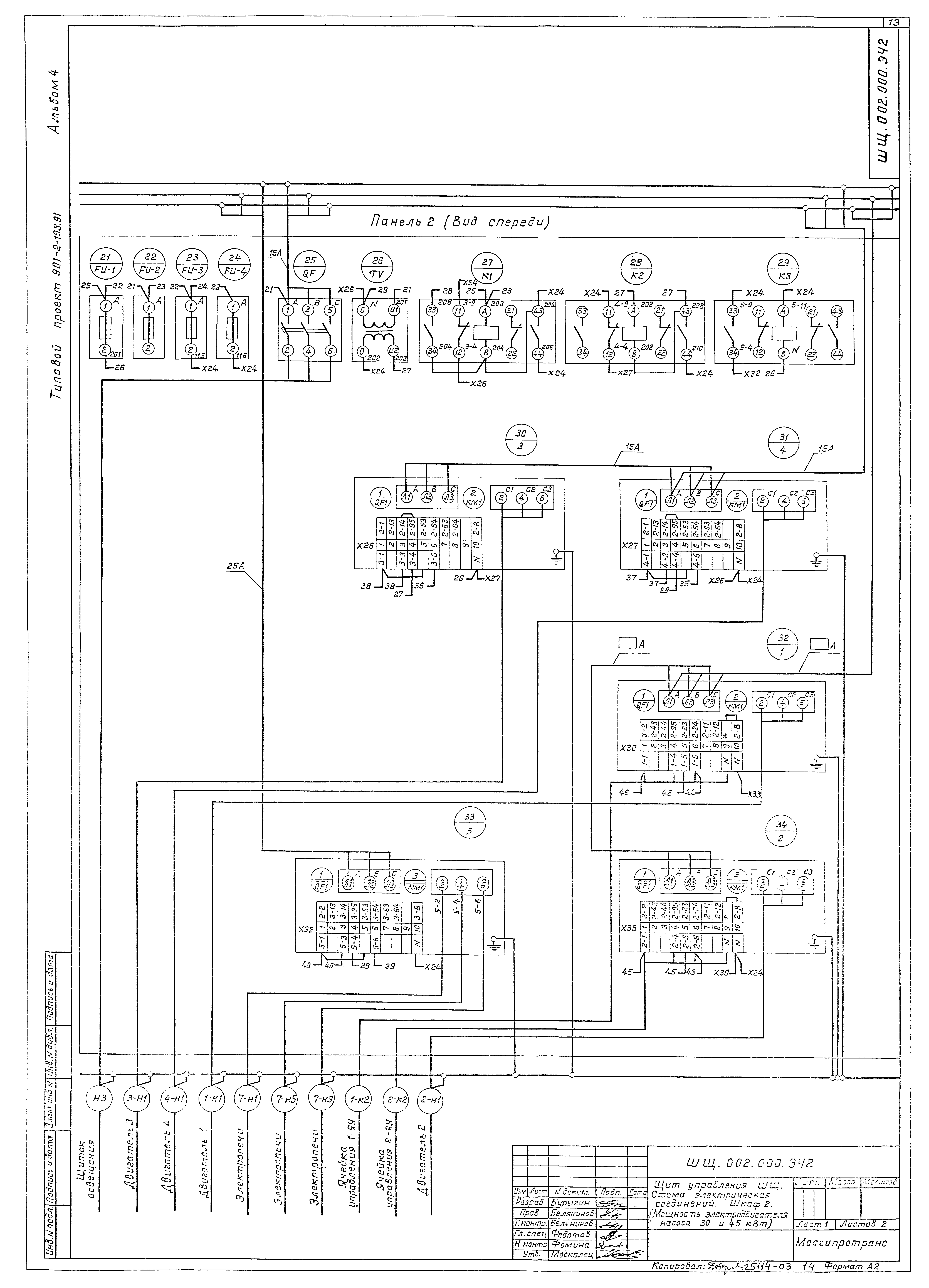
Альбом 4. Чертежи задания заводу изготовителю на щиты управления ШЩ

Обозначение: Типовой проект 901-2-193.91
Обозначение англ: 901-2-193.91
Статус:не определен законодательством
Название рус.:Альбом 4. Чертежи задания заводу изготовителю на щиты управления ШЩ
Дата добавления в базу:01.09.2013
Дата актуализации:01.01.2021
Дата введения:03.07.1991
Дата окончания срока действия:30.06.2003
Разработан: Проектно-изыскательский институт Мосгипротранс
Утверждён:03.07.1991 Министерство транспортного строительства СССР (USSR Ministry of Transport Construction СВ-589)
Издан: ГП ЦПП (1995 г. )
Заменяет собой:
Типовой проект 901-2-193.91Типовой проект 901-2-193.91Типовой проект 901-2-193.91Типовой проект 901-2-193.91Типовой проект 901-2-193.91Типовой проект 901-2-193.91Типовой проект 901-2-193.91Типовой проект 901-2-193.91Типовой проект 901-2-193.91Типовой проект 901-2-193.91Типовой проект 901-2-193.91Типовой проект 901-2-193.91Типовой проект 901-2-193.91Типовой проект 901-2-193.91Типовой проект 901-2-193.91