Скачать Типовой проект 901-4-59.83 Альбом VI. Технологические трубопроводы и сигнализация для резервуаров емкостью 50 - 20000 куб. м (из ТП 901-4-63.83)Дата актуализации: 01.01.2021 Типовой проект 901-4-59.83
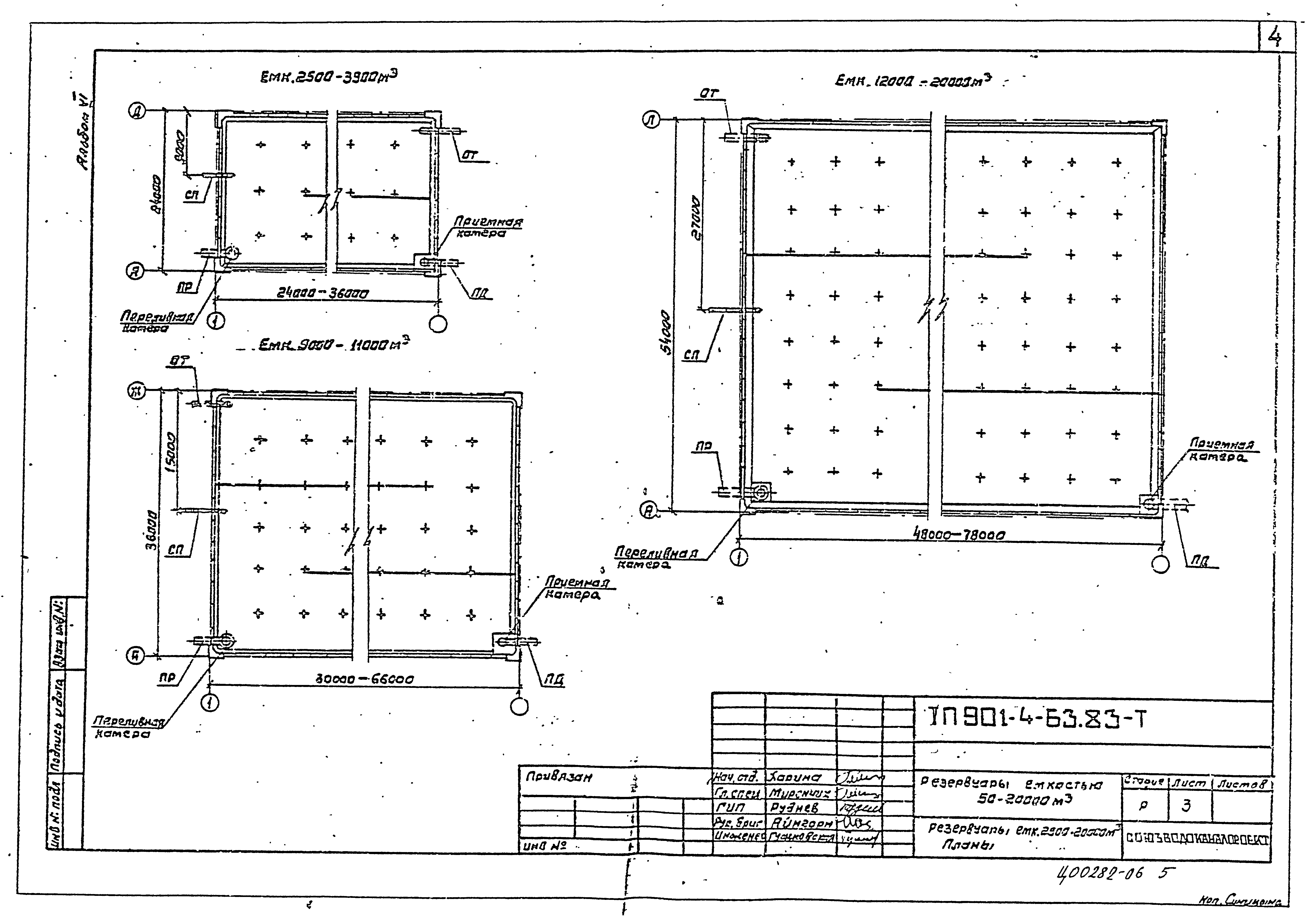
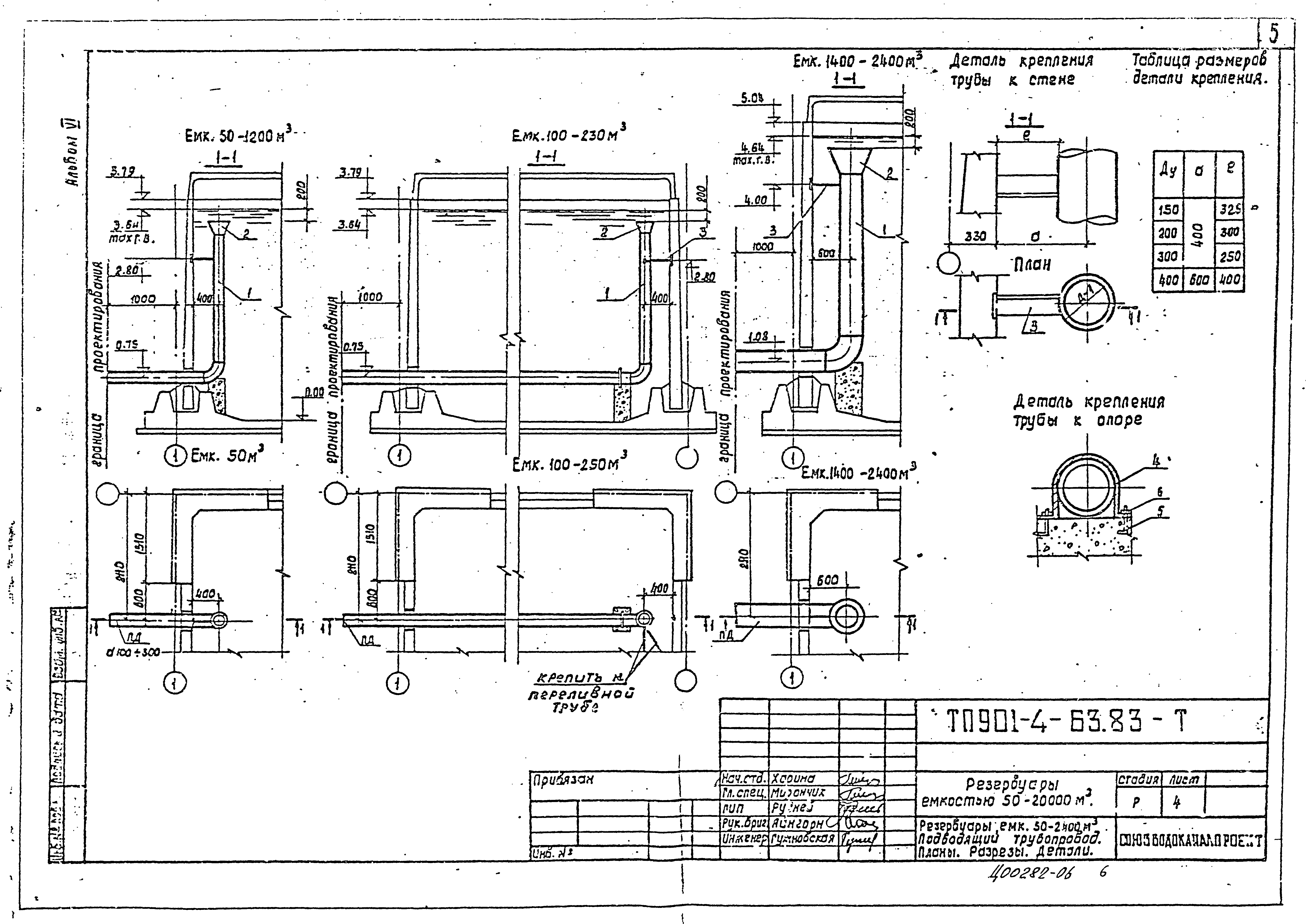
Альбом VI. Технологические трубопроводы и сигнализация для резервуаров емкостью 50 - 20000 куб. м (из ТП 901-4-63.83)| Обозначение: | Типовой проект 901-4-59.83 | | Обозначение англ: | 901-4-59.83 | | Статус: | действует | | Название рус.: | Альбом VI. Технологические трубопроводы и сигнализация для резервуаров емкостью 50 - 20000 куб. м (из ТП 901-4-63.83) | | Дата добавления в базу: | 01.09.2013 | | Дата актуализации: | 01.01.2021 | | Дата введения: | 23.06.1983 | | Разработан: | Союзводоканалпроект
| | Утверждён: | 17.11.1978 Госстрой СССР (Государственный комитет Совета Министров СССР по делам строительства) (USSR Gosstroy 2/3-409)
|
             
|