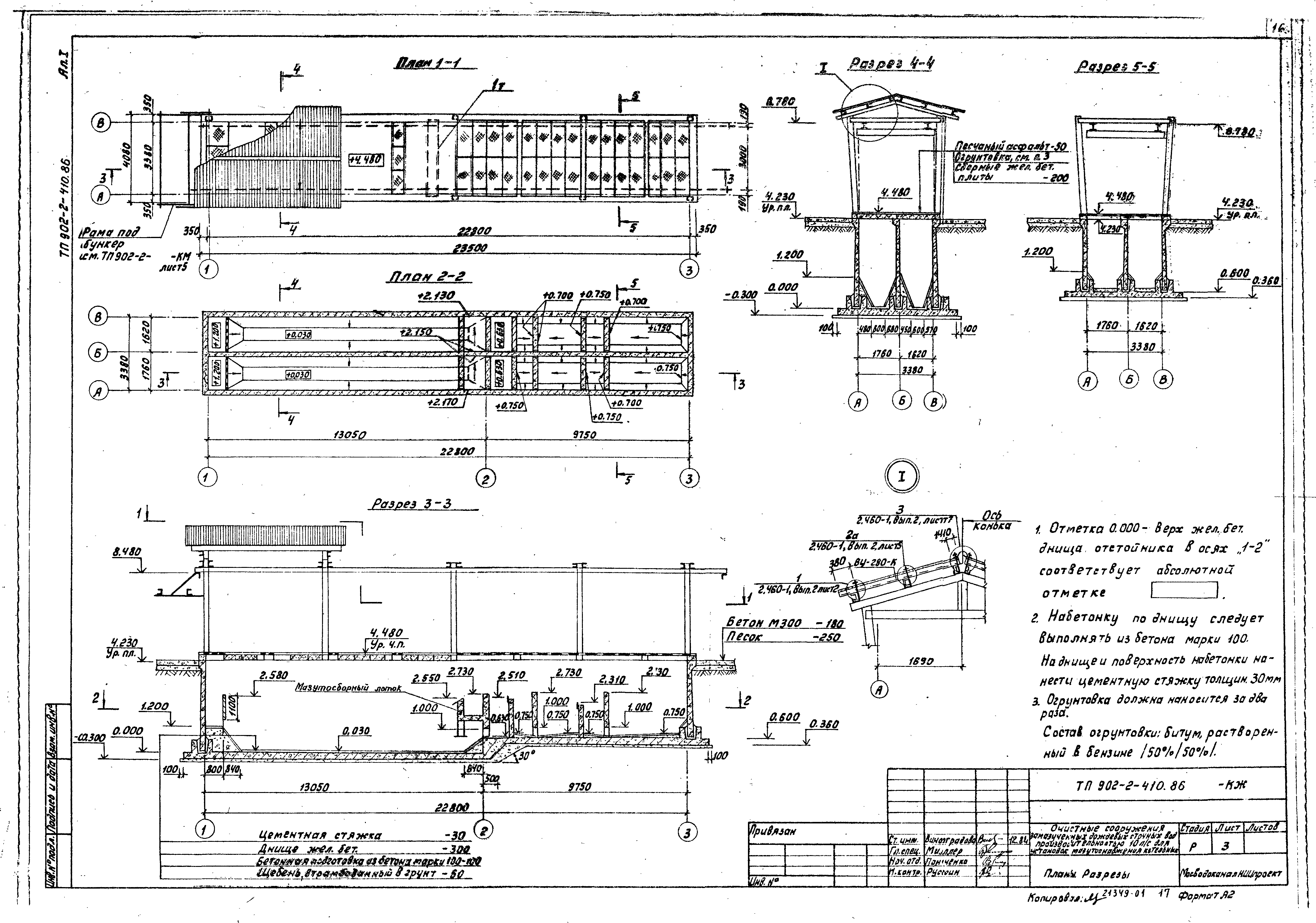
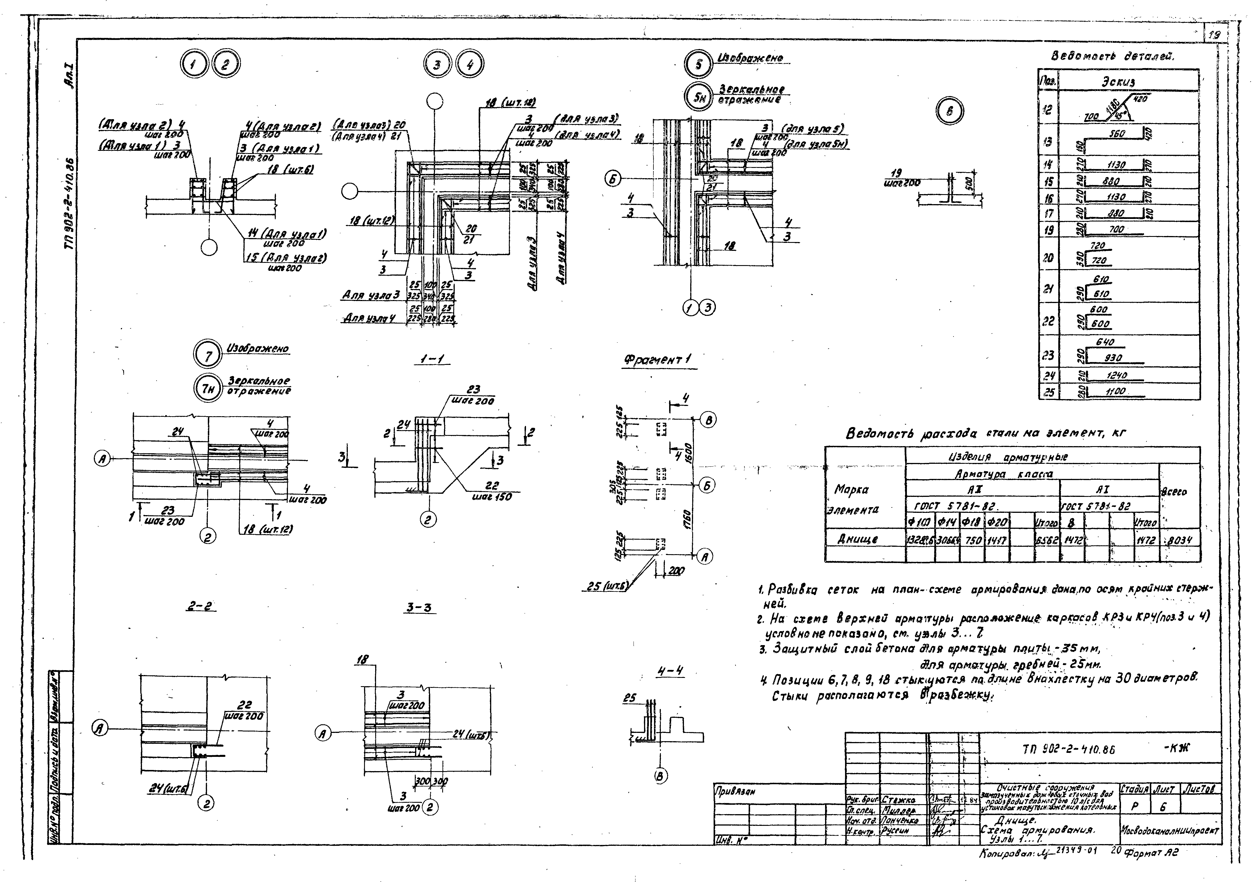
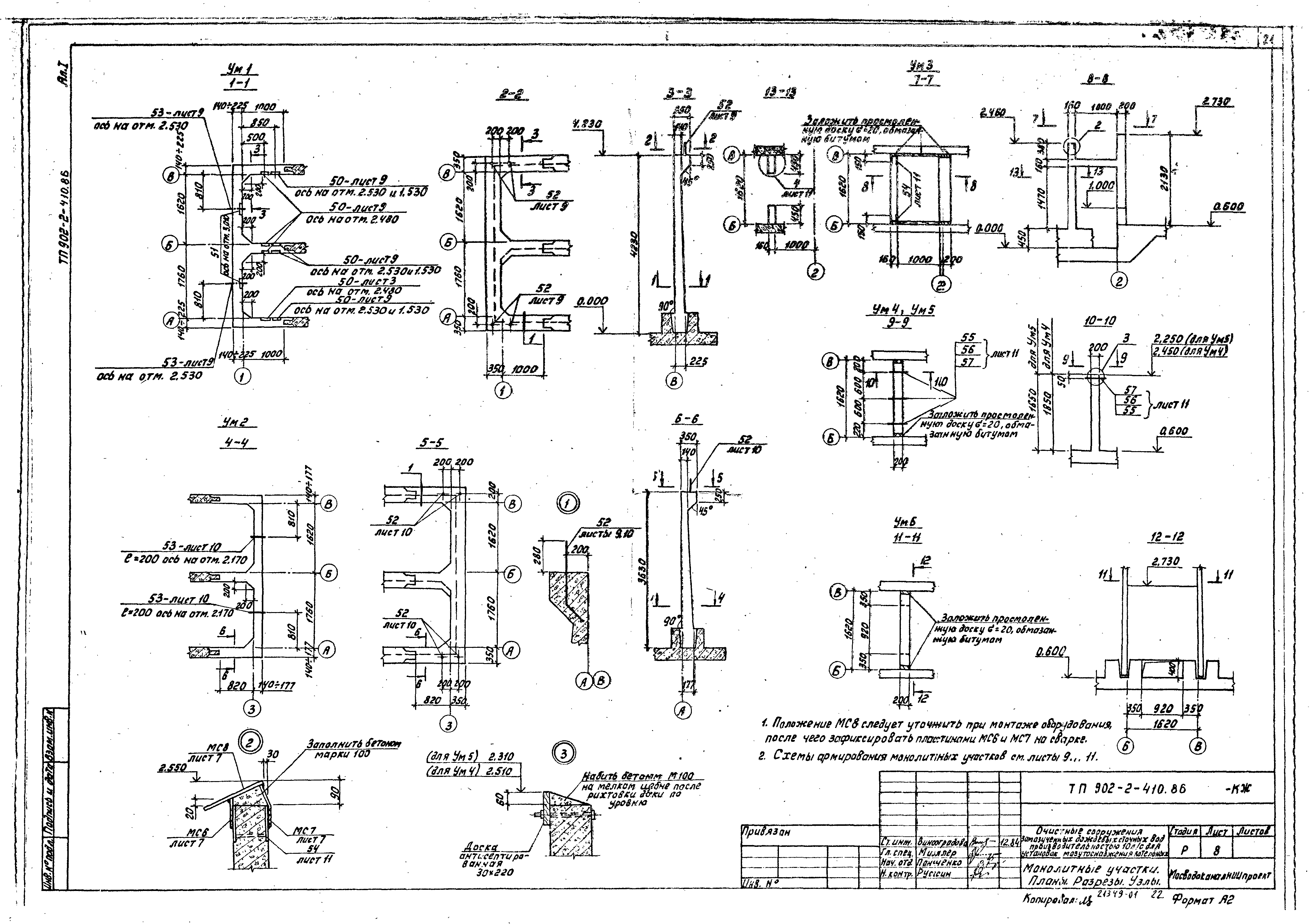
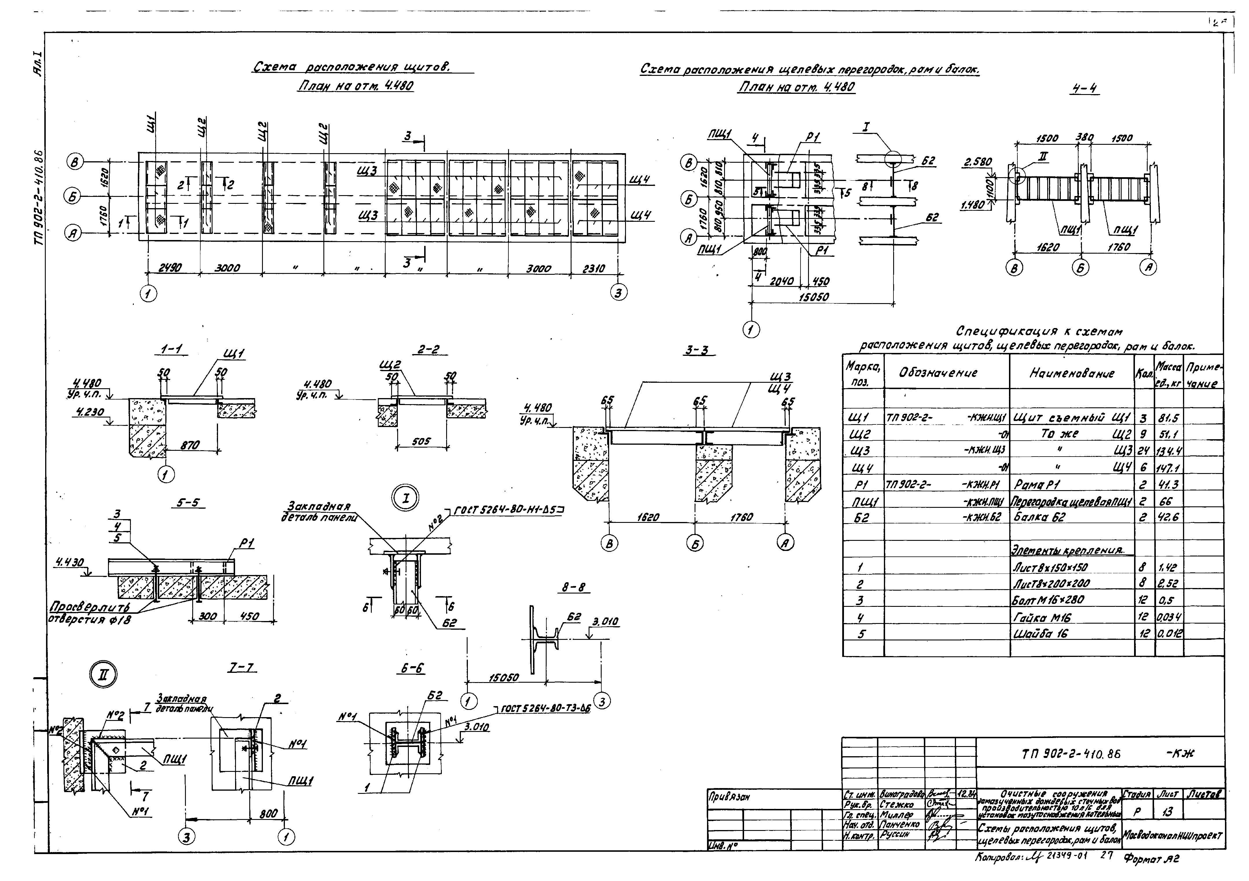
Скачать Типовой проект 902-2-410.86 Альбом I. Технологическая, строительная, теплотехническая, электротехническая части, технологический контрольДата актуализации: 01.01.2021 Типовой проект 902-2-410.86
Альбом I. Технологическая, строительная, теплотехническая, электротехническая части, технологический контроль| Обозначение: | Типовой проект 902-2-410.86 | | Обозначение англ: | 902-2-410.86 | | Статус: | не определен законодательством | | Название рус.: | Альбом I. Технологическая, строительная, теплотехническая, электротехническая части, технологический контроль | | Дата добавления в базу: | 01.09.2013 | | Дата актуализации: | 01.01.2021 | | Дата введения: | 01.08.1986 | | Дата окончания срока действия: | 30.06.2003 | | Разработан: | МосводоканалНИИпроект
| | Утверждён: | 15.01.1986 Главстройпроект Госстроя СССР (АЧ-4)
| | Издан: | ЦИТП Госстроя СССР (CITP, Gosstroy (USSR) 1989 г. )
|
                                       
|