Скачать Типовой проект 903-9-26.89 Альбом 2. Противокоррозионная защитаДата актуализации: 01.01.2021
|
| Обозначение: | Типовой проект 903-9-26.89 |
| Обозначение англ: | 903-9-26.89 |
| Статус: | не действует |
| Название рус.: | Альбом 2. Противокоррозионная защита |
| Дата добавления в базу: | 01.09.2013 |
| Дата актуализации: | 01.01.2021 |
| Дата окончания срока действия: | 01.04.2003 |
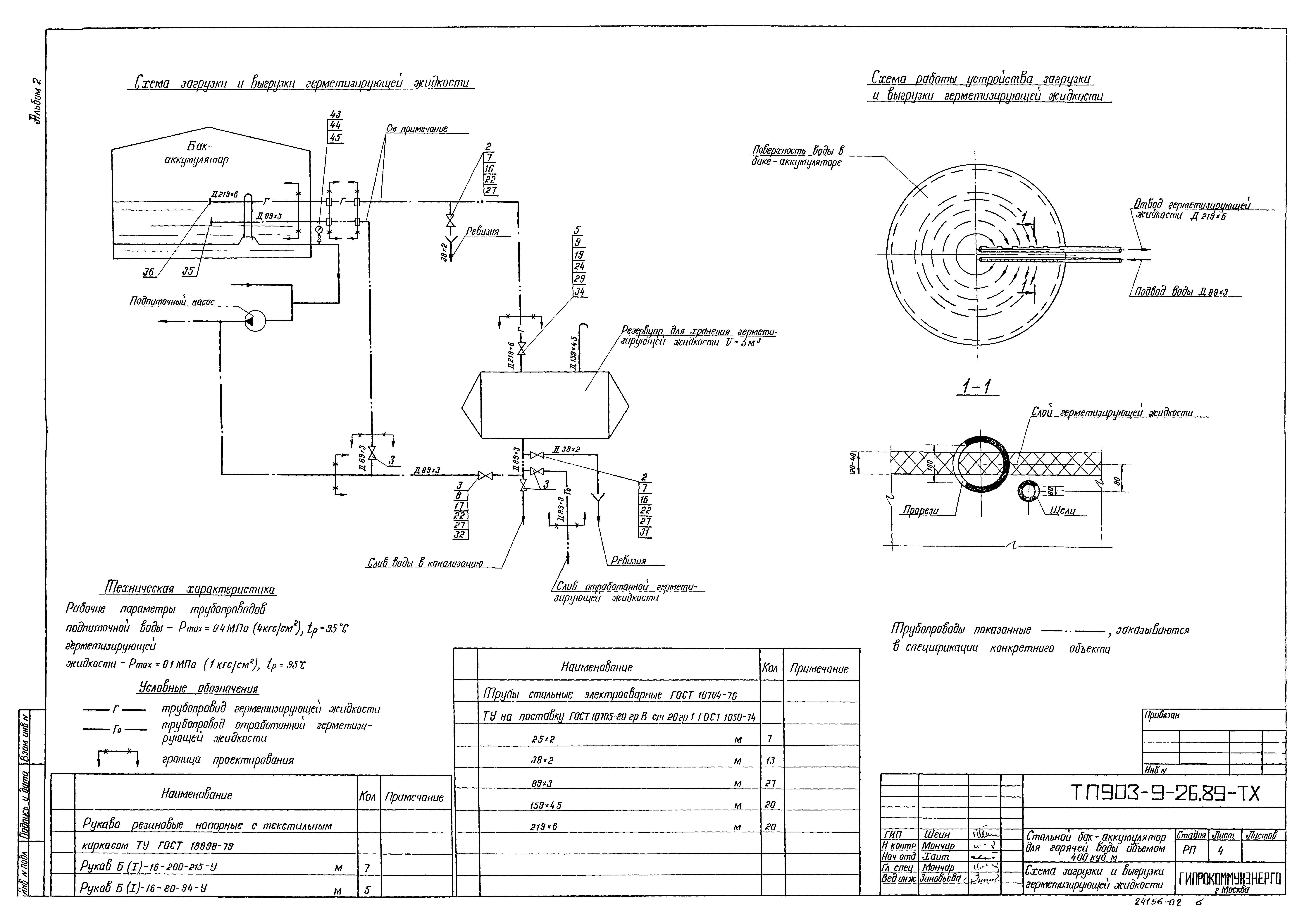
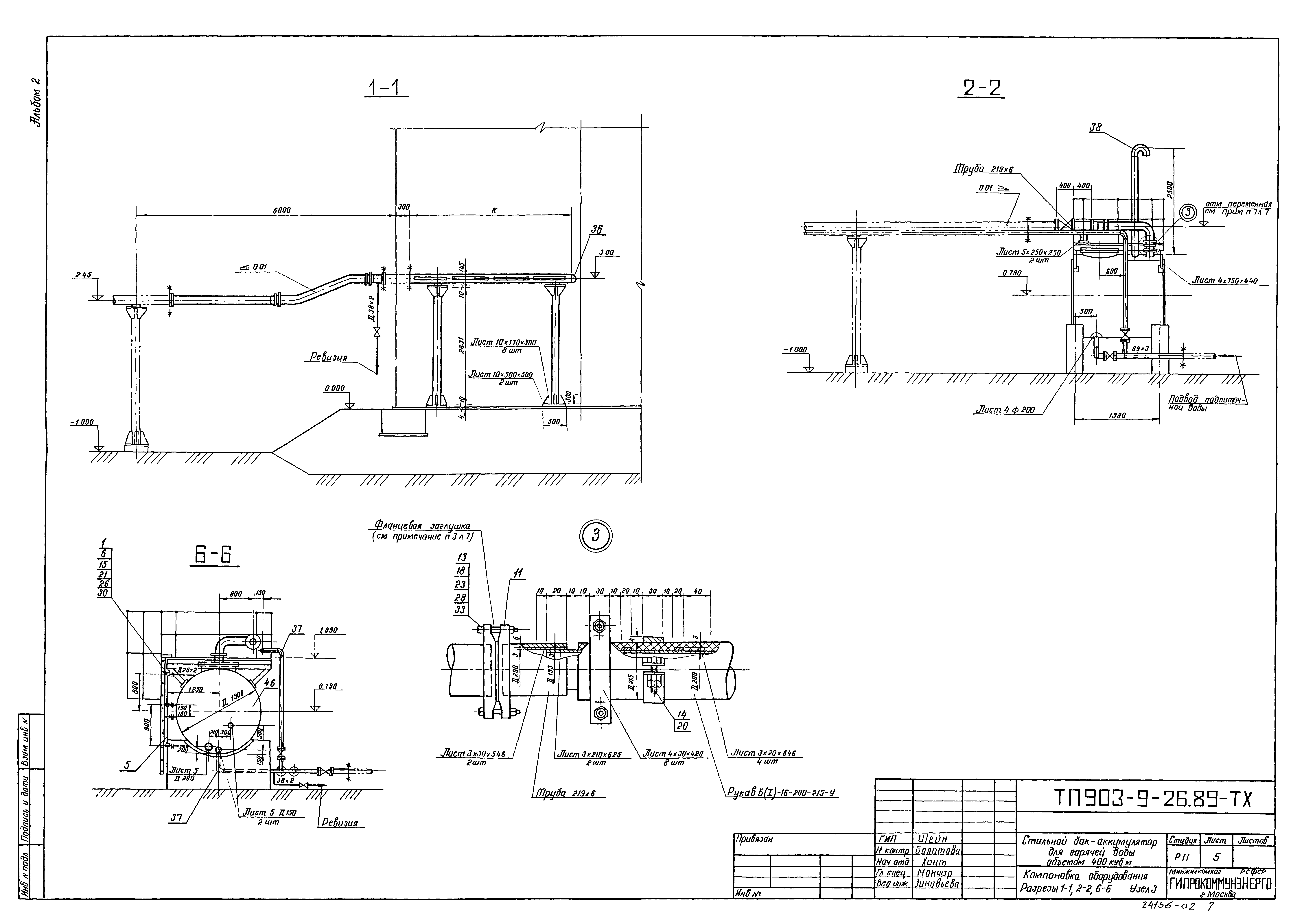
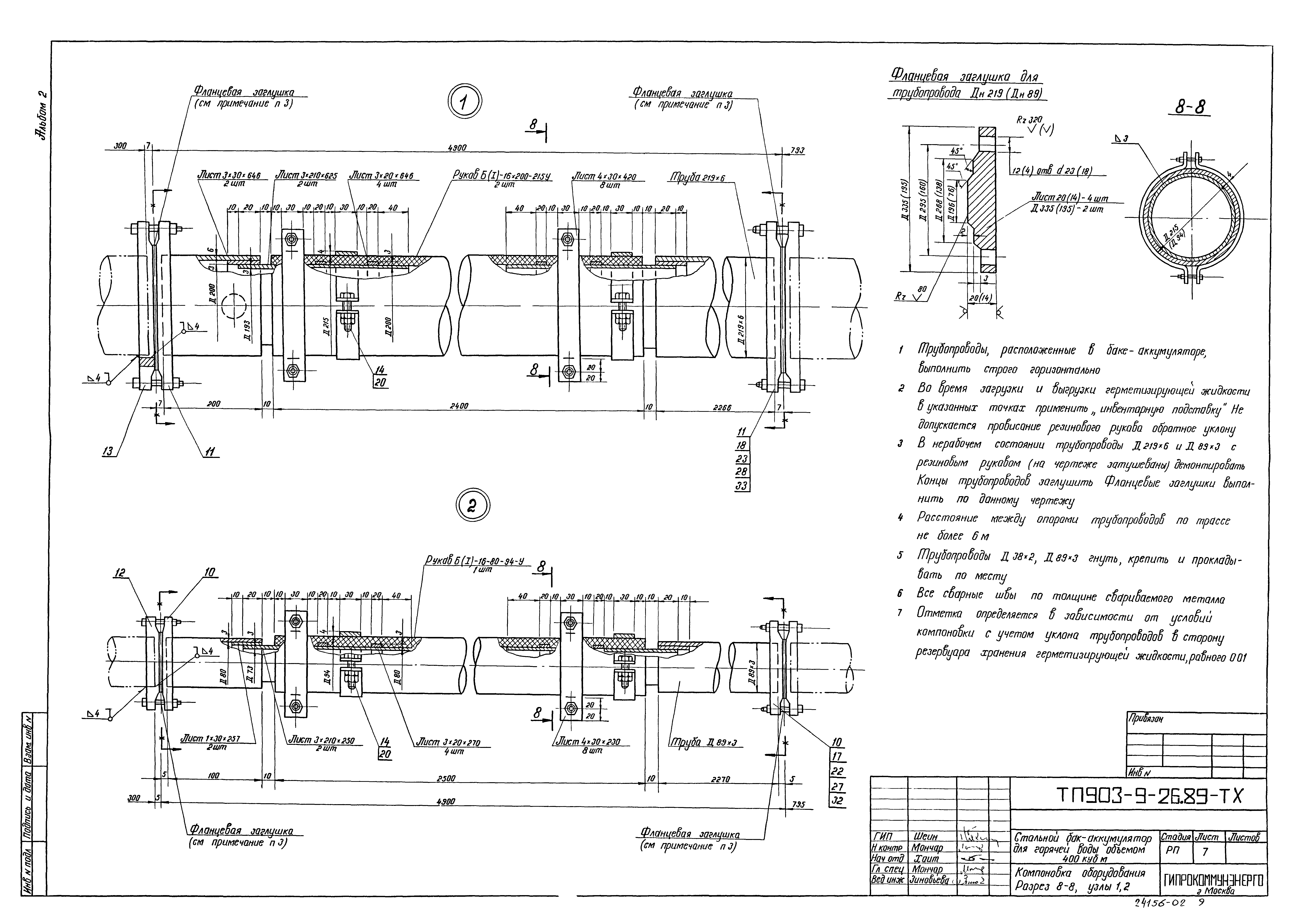
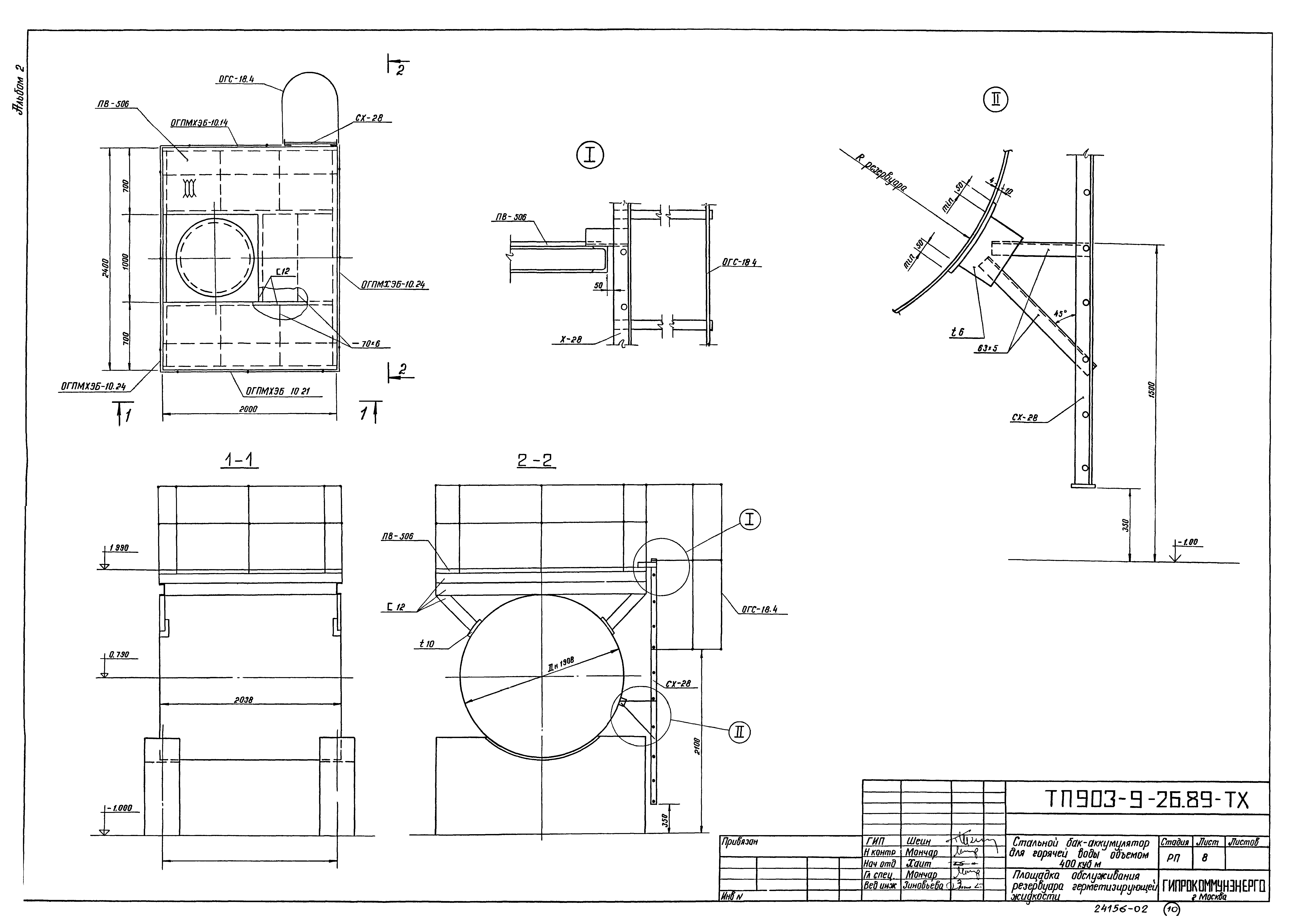
| Оглавление: | Общие данные Схема трубопроводов загрузки и выгрузки герметизирующей жидкости Компоновка оборудования. Разрезы 1-1, 2-2, 6-6. Узел 3 Компоновка оборудования. План. Разрезы 3-3, 4-4, 5-5 Компоновка оборудования. Разрез 8-8. Узлы 1, 2 Площадка обслуживания резервуара герметизирующей жидкости |
| Разработан: | Гипрокоммунэнерго |
| Утверждён: | 18.07.1988 Министерство жилищно-коммунального хозяйства РСФСР (201) |
| Издан: | ЦИТП Госстроя СССР (CITP, Gosstroy (USSR) 1990 г. ) |









