Скачать Типовой проект 903-9-26.89 Альбом 5. Тепловая изоляцияДата актуализации: 01.01.2021
|
| Обозначение: | Типовой проект 903-9-26.89 |
| Обозначение англ: | 903-9-26.89 |
| Статус: | не действует |
| Название рус.: | Альбом 5. Тепловая изоляция |
| Дата добавления в базу: | 01.09.2013 |
| Дата актуализации: | 01.01.2021 |
| Дата окончания срока действия: | 01.04.2003 |
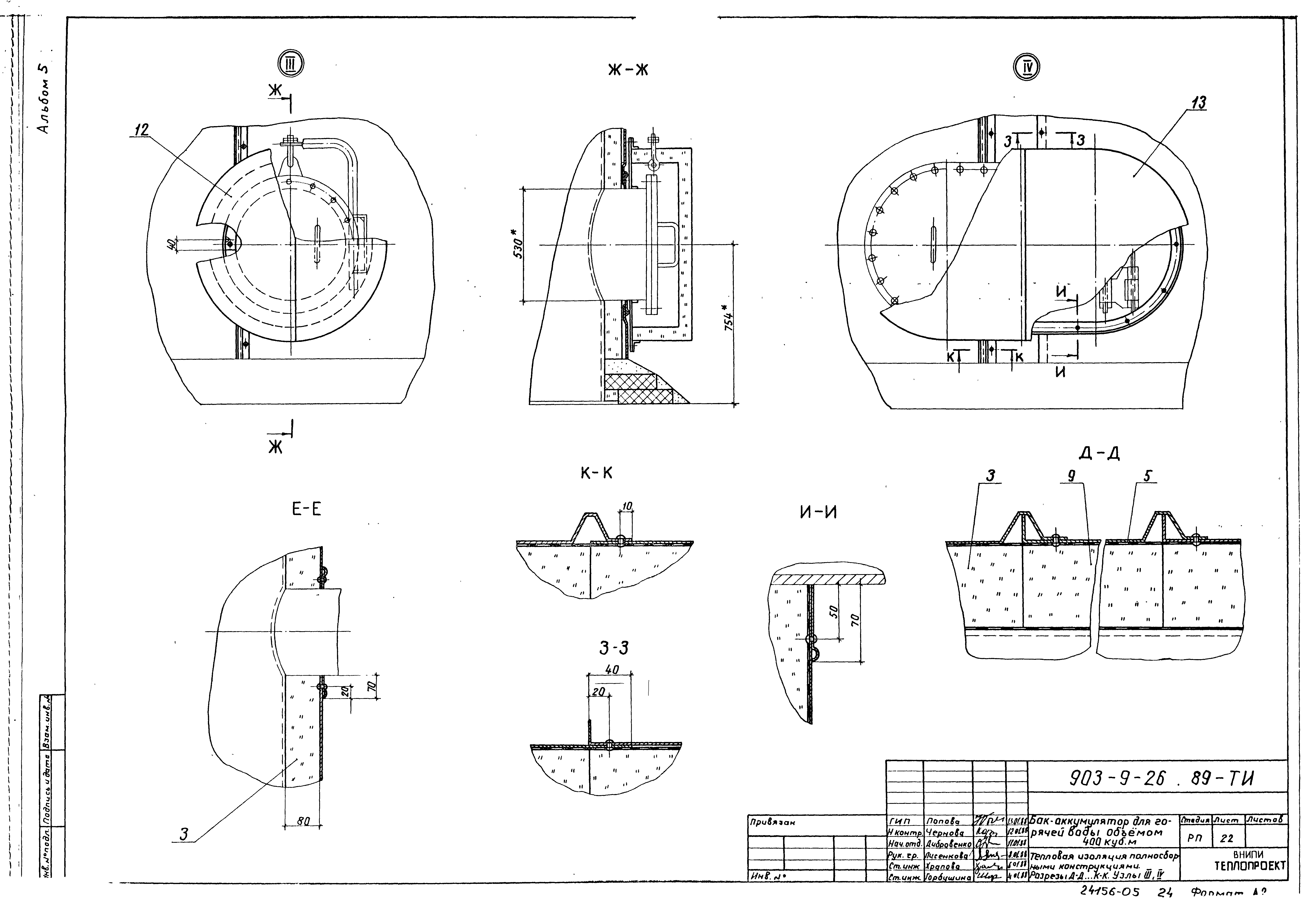
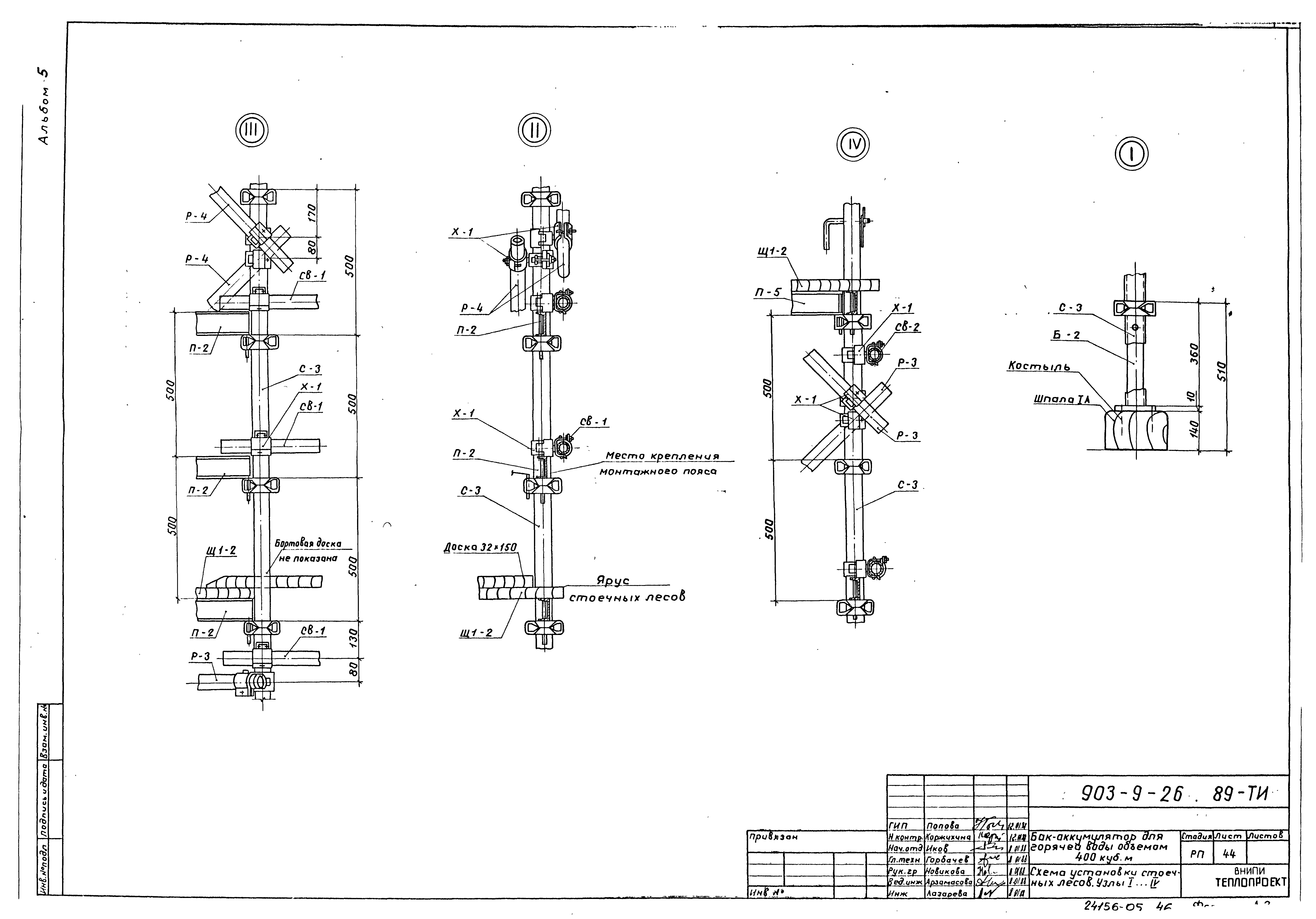
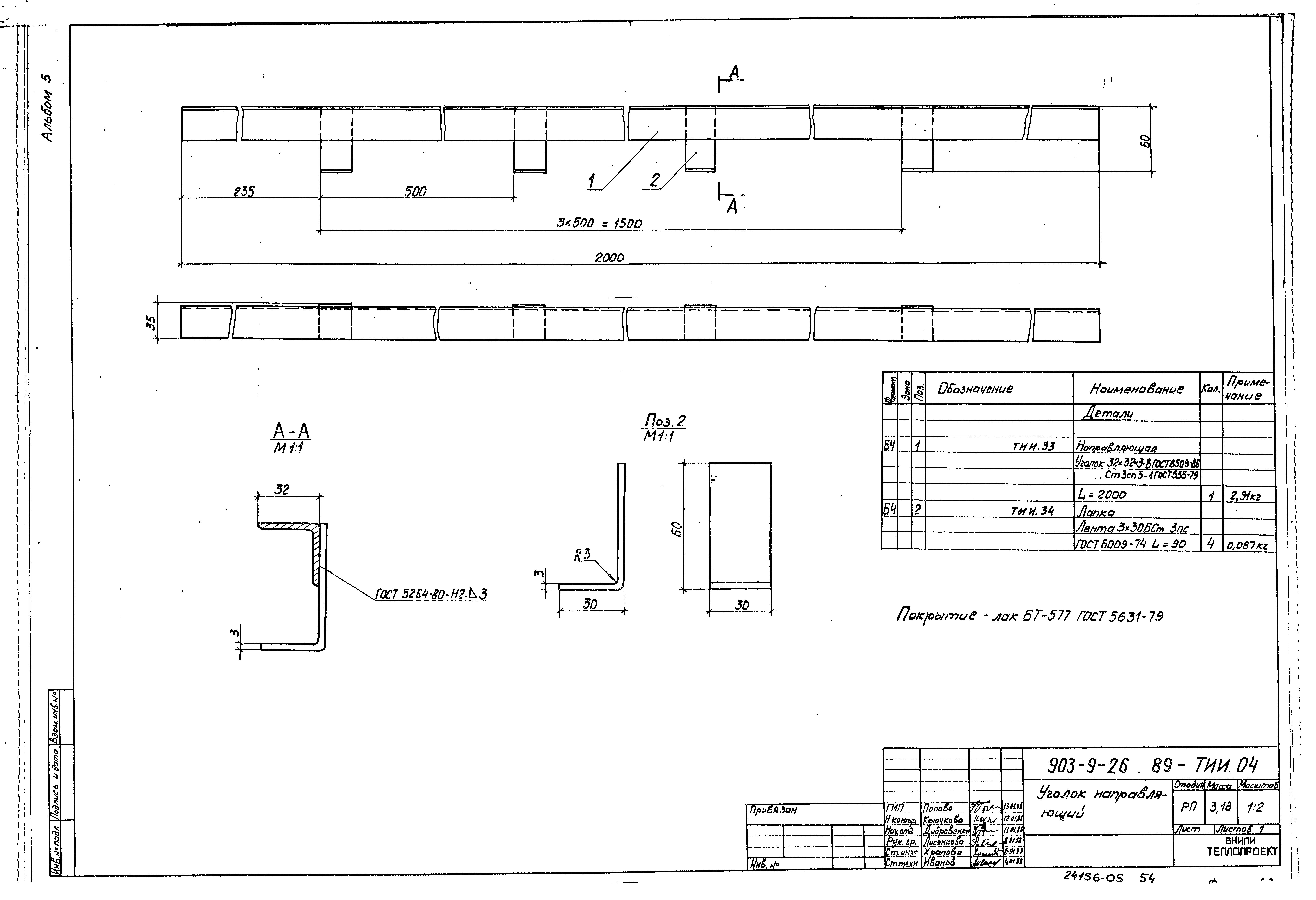
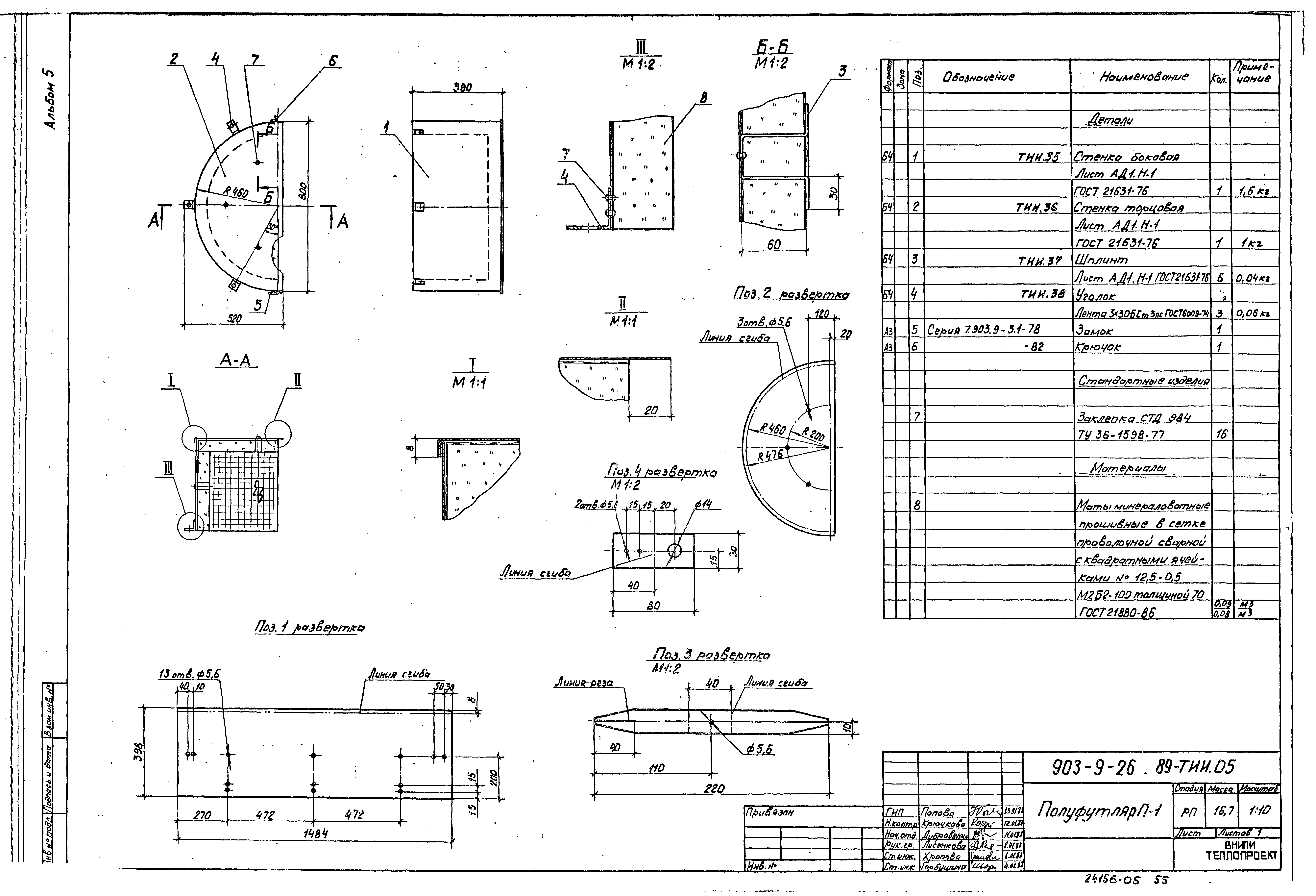
| Оглавление: | Общие данные Тепловая изоляция полносборными конструкциями. Общий вид Тепловая изоляция полносборными конструкциями. Разрезы А-А, В-В. Узлы I, II Тепловая изоляция полносборными конструкциями. Схема раскладки панелей. Разрез Г-Г Тепловая изоляция полносборными конструкциями. Разрезы Д-Д…К-К. Узлы III, IV Бандажи. Схема приварки. Виды Л-Л, М-М, П-П. Узлы V…VII Тепловая изоляция крыши. Общий вид. Разрез А-А Тепловая изоляция крыши. Разрезы Б-Б…Д-Д. Узлы I, III Тепловая изоляция крыши. Разрезы Е-Е, Ж-Ж. Узлы II, IV Детали приварные. Схема размещения на крыше Детали приварные. Разрезы 3-3…К-К. Узел V Тепловая изоляция люка-лаза Ду500 и люка-лаза овального 600 х 900. Разрез А-А, узел I Тепловая изоляция матрацами с покрытием алюминиевыми листами. Общий вид Тепловая изоляция матрацами с покрытием алюминиевыми листами. Разрезы А-А…В-В, Ж-Ж, З-З. Узлы I…III Тепловая изоляция матрацами с покрытием алюминиевыми листами. Разрезы Г-Г…Е-Е, И-И…Н-Н, П-П. Виды К-К, Л-Л, М-М Тепловая изоляция резервуара для хранения герметизирующей жидкости. Общий вид. Разрезы А-А…Ж-Ж Схема организации работ по монтажу изоляции стенки полносборными конструкциями. План. Вид А-А Схема пооперационной установки одной теплоизоляционной конструкции КТПП Схема погрузки полносборных теплоизоляционных конструкций на автомашину ЗИЛ-130 и их строповка Схема строповки Калькуляция трудовых затрат при изоляции стенки полносборными конструкциями График производства работ при изоляции стенки полносборными конструкциями Схема организации работ по монтажу изоляции стенки матрацами Схема установки стоечных лесов. План. Схемы раскладки шпал и установки башмаков, прогонов, связей и раскосов Схема установки стоечных лесов. Развертки модулей 1, 2, 3. Сечения 1-1…4-4 Схема установки стоечных лесов. Установка щитового настила. Узел крепления молниеотвода. Узел V. Сечения 5-5…8-8 Схема установки стоечных лесов. Узлы I...IV Калькуляция трудовых затрат при изоляции стенки матрацами График производства работ при изоляции стенки матрацами Схема организации работ по монтажу изоляции крыши Калькуляция трудовых затрат и график производства работ по монтажу изоляции крыши 903-9-26.89-ТИИ.01 Элемент бандажа Б-1 903-9-26.89-ТИИ.02 Элемент бандажа Б-2 903-9-26.89-ТИИ.03 Футляр 903-9-26.89-ТИИ.04 Уголок направляющий 903-9-26.89-ТИИ.05 Полуфутляр П-1 903-9-26.89-ТИИ.06 Полуфутляр П-2 903-9-26.89-ТИИ.07 Элемент стяжного бандажа Б-3 903-9-26.89-ТИИ.08 Элемент стяжного бандажа левый Б-4 903-9-26.89-ТИИ.09 Элемент стяжного бандажа правый Б-5 903-9-26.89-ТИИ.10 Матрац М-1, М-2 903-9-26.89-ТИИ.11 Решетка 903-9-26.89-ТИИ.12 Скоба 903-9-26.89-ТИИ.13 Элемент опорного кольца 903-9-26.89-ТИИ.14 Зажим 903-9-26.89-ТИИ.15 Прогон П-5 903-9-26.89-ТИИ.16 Штырь 903-9-26.89-ТИИ.17 Балка 903-9-26.89-ТИИ.18 Стяжка 903-9-26.89-ТИИ.19 Подкладка 903-9-26.89-ТИИ.20 Доска бортовая Дн-1 903-9-26.89-ТИИ.21 Поддон |
| Разработан: | ВНИПИТеплопроект Гипрокоммунэнерго |
| Утверждён: | 18.07.1988 Министерство жилищно-коммунального хозяйства РСФСР (201) |
| Издан: | ЦИТП Госстроя СССР (CITP, Gosstroy (USSR) 1990 г. ) |
































































