Скачать Типовой проект 903-9-26.89 Альбом 6. Основные положения по производству монтажных работДата актуализации: 01.01.2021
|
| Обозначение: | Типовой проект 903-9-26.89 |
| Обозначение англ: | 903-9-26.89 |
| Статус: | не действует |
| Название рус.: | Альбом 6. Основные положения по производству монтажных работ |
| Дата добавления в базу: | 01.09.2013 |
| Дата актуализации: | 01.01.2021 |
| Дата окончания срока действия: | 01.04.2003 |
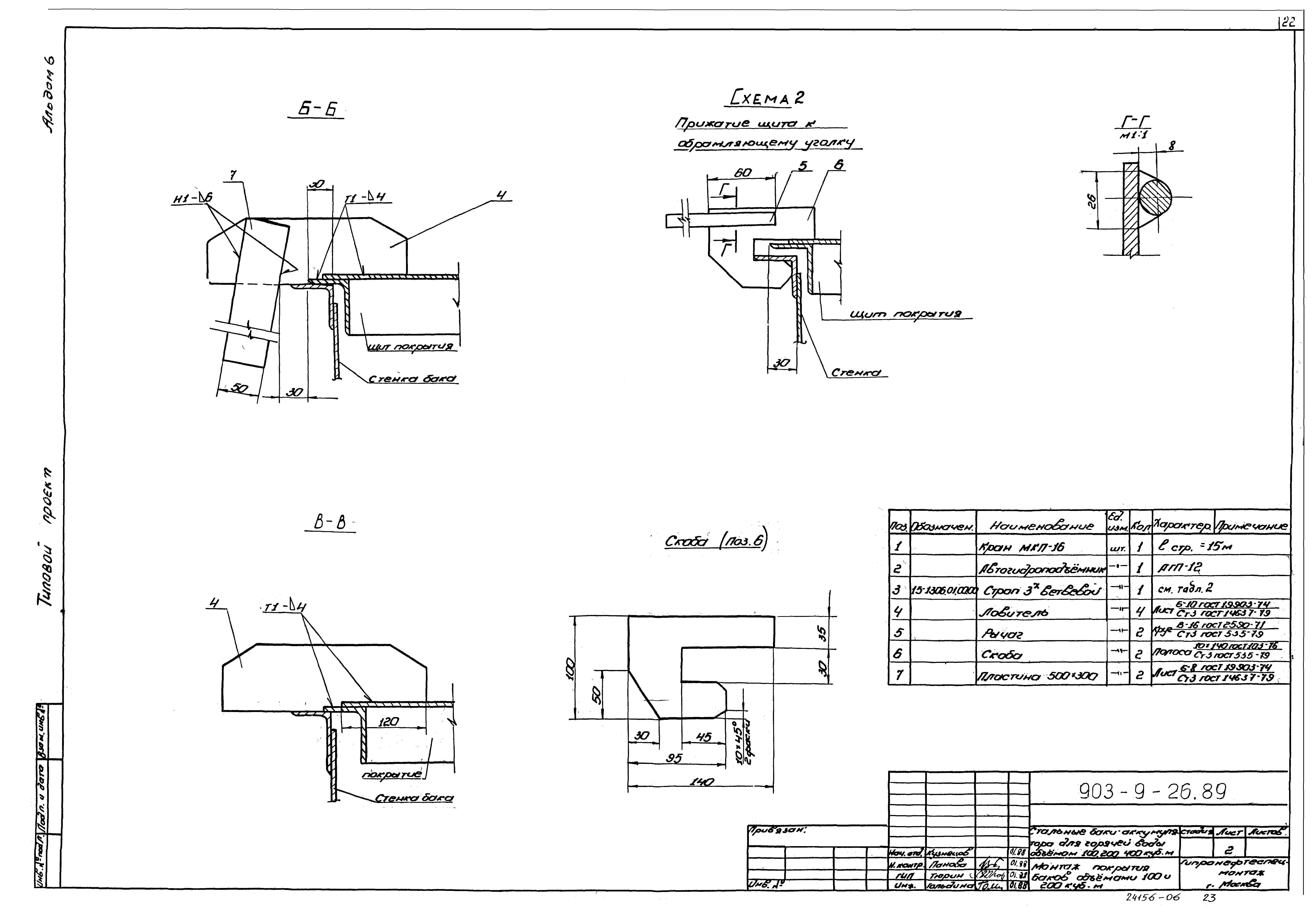
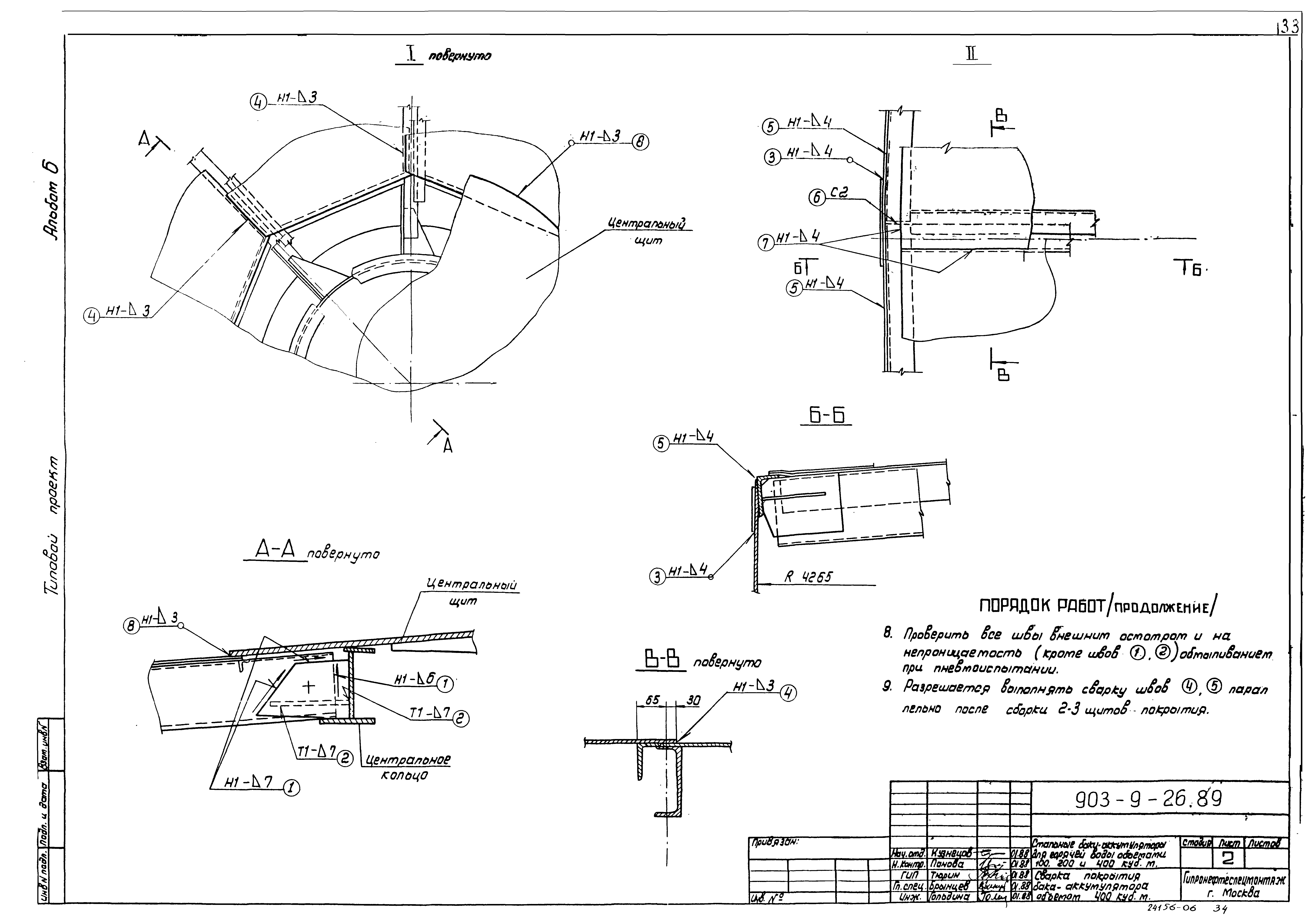
| Оглавление: | Содержание Технология монтажа Пояснительная записка Общий вид Ведомость приспособлений, механизмов и монтажной оснастки Монтаж днища баков - аккумуляторов Разметка днища Подъем рулона стенки Установка монтажной стойки бака-аккумулятора объемом 400 куб. м Развертывание полотнища стенки баков - аккумуляторов Монтаж покрытия баков - аккумуляторов объемами 100 и 200 куб м Монтаж покрытия бака - аккумулятора объемом 400 куб м Замыкание вертикального стыка стенки Демонтаж монтажной стойки бака - аккумулятора объемом 400 куб м Технология сварки Ведомость оборудования, инструментов и материалов Сварка при развертывании рулона стенки бака Сварка вертикального стыка стенки бака Сварка покрытия баков - аккумуляторов объемами 100 и 200 куб м Сварка покрытия бака - аккумулятора объемом 400 куб м Сварка технологических вводов и люков - лазов |
| Разработан: | Гипрокоммунэнерго Гипронефтеспецмонтаж Минмонтажспецстроя СССР (Giproneftespetsmontazh, Minmontazhspetsstroy (USSR) ) |
| Утверждён: | 18.07.1988 Министерство жилищно-коммунального хозяйства РСФСР (201) |
| Издан: | ЦИТП Госстроя СССР (CITP, Gosstroy (USSR) 1990 г. ) |



































