Скачать Типовой проект 902-3-7 Альбом 2. Аэрируемые биопруды производительностью 100, 200 куб. м/сутки при БПК полн. - 400 мг/лДата актуализации: 01.01.2021
|
| Обозначение: | Типовой проект 902-3-7 |
| Обозначение англ: | 902-3-7 |
| Статус: | не определен законодательством |
| Название рус.: | Альбом 2. Аэрируемые биопруды производительностью 100, 200 куб. м/сутки при БПК полн. - 400 мг/л |
| Дата добавления в базу: | 01.09.2013 |
| Дата актуализации: | 01.01.2021 |
| Дата введения: | 01.01.1981 |
| Дата окончания срока действия: | 30.06.2003 |
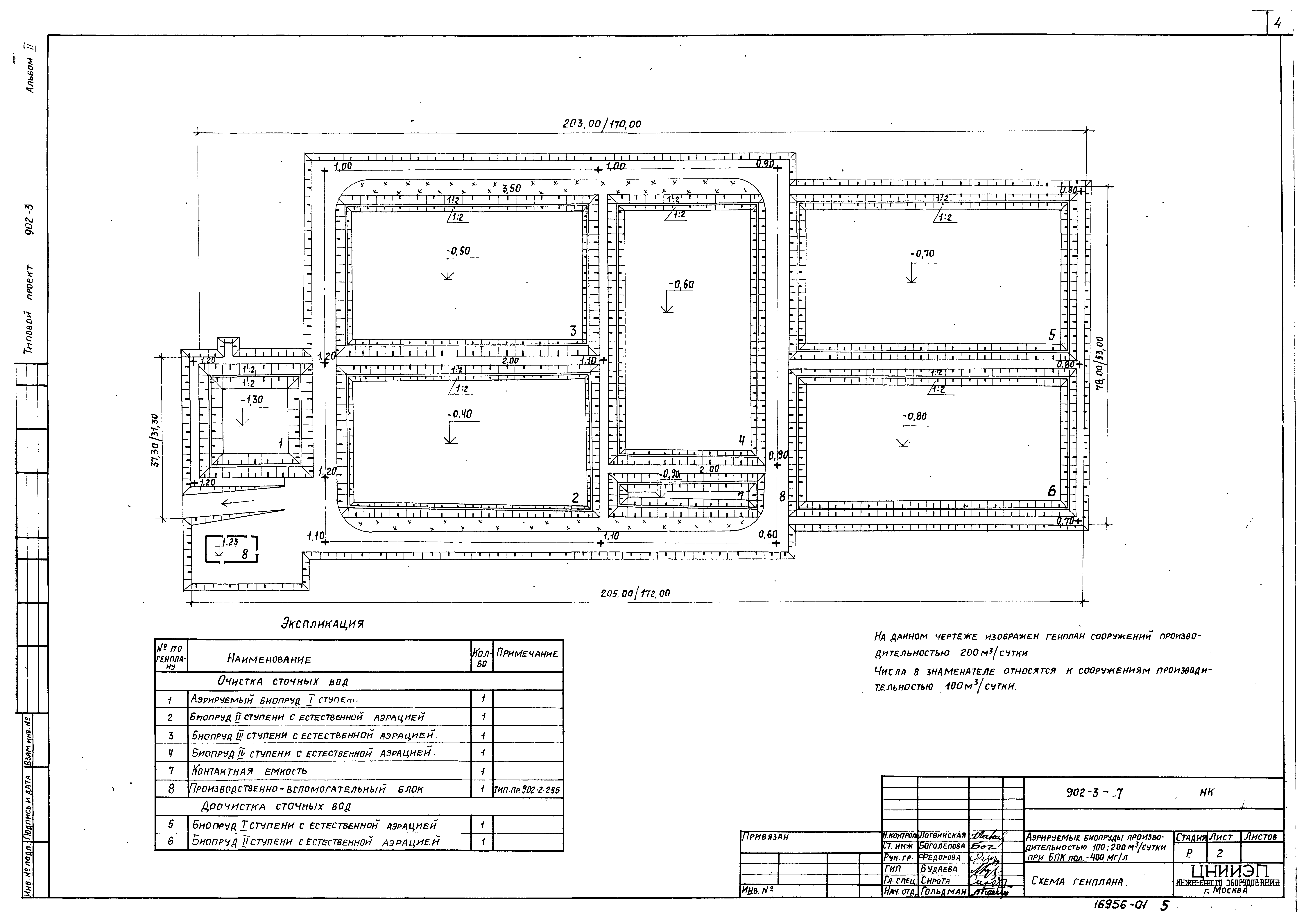
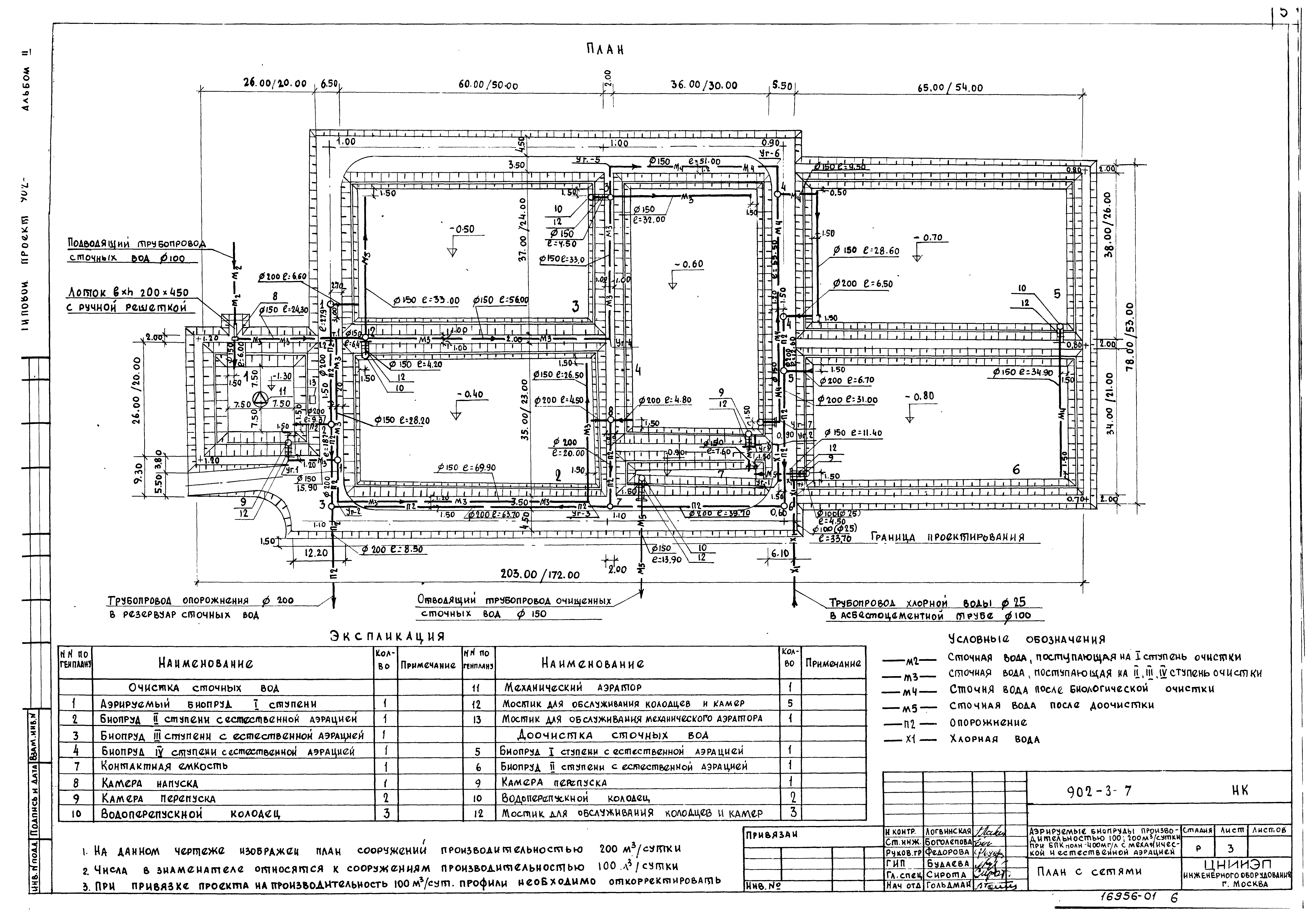
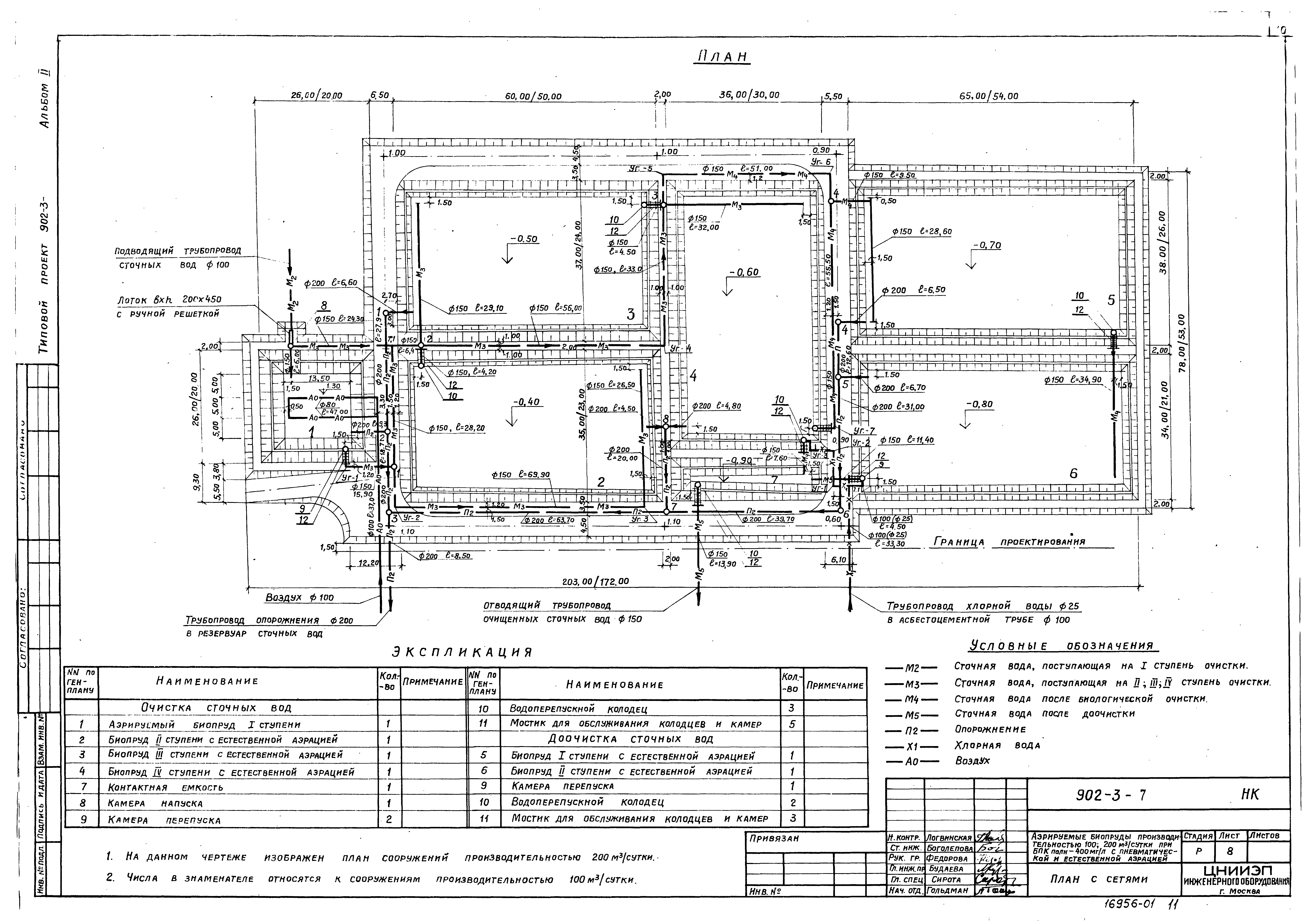
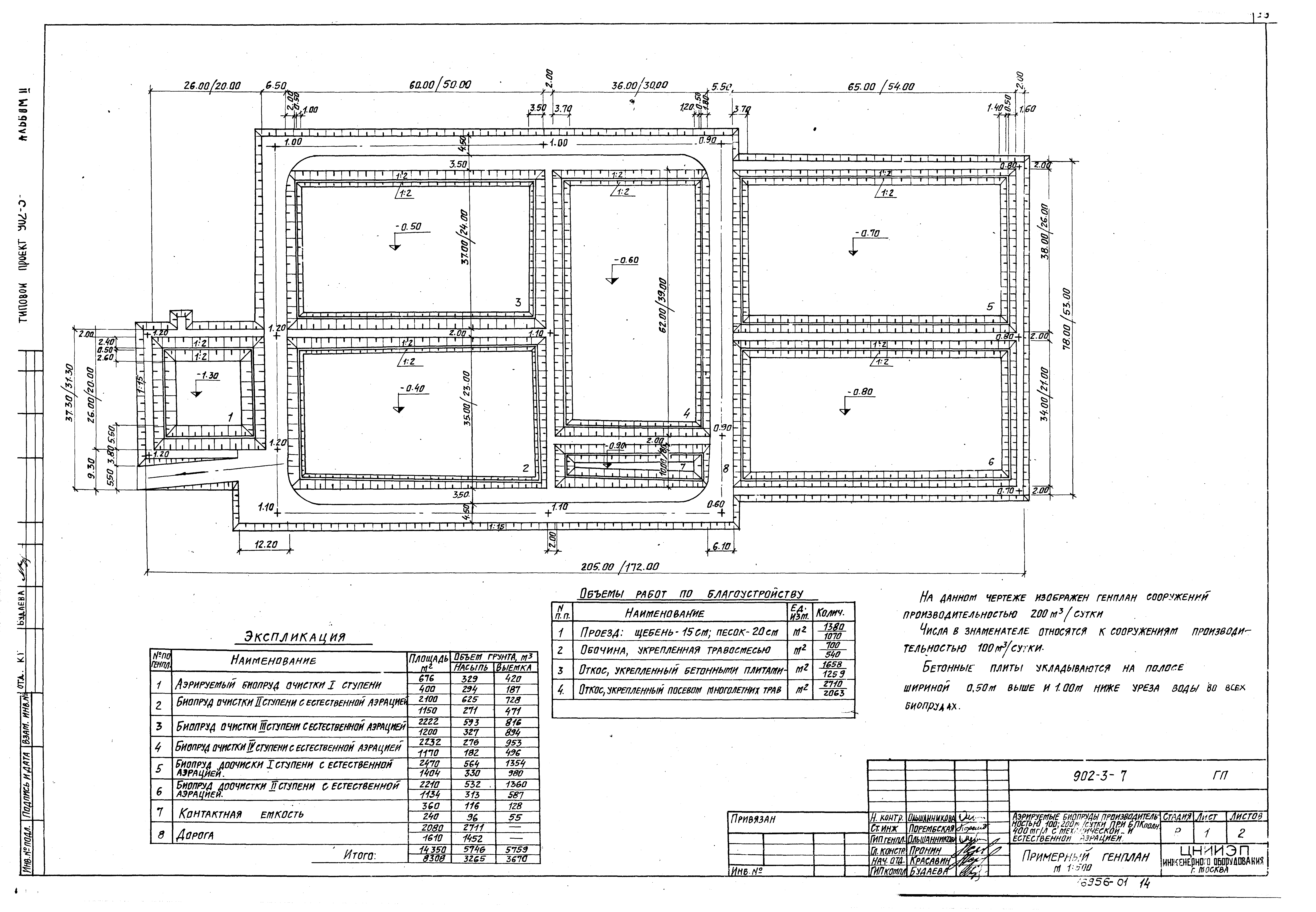
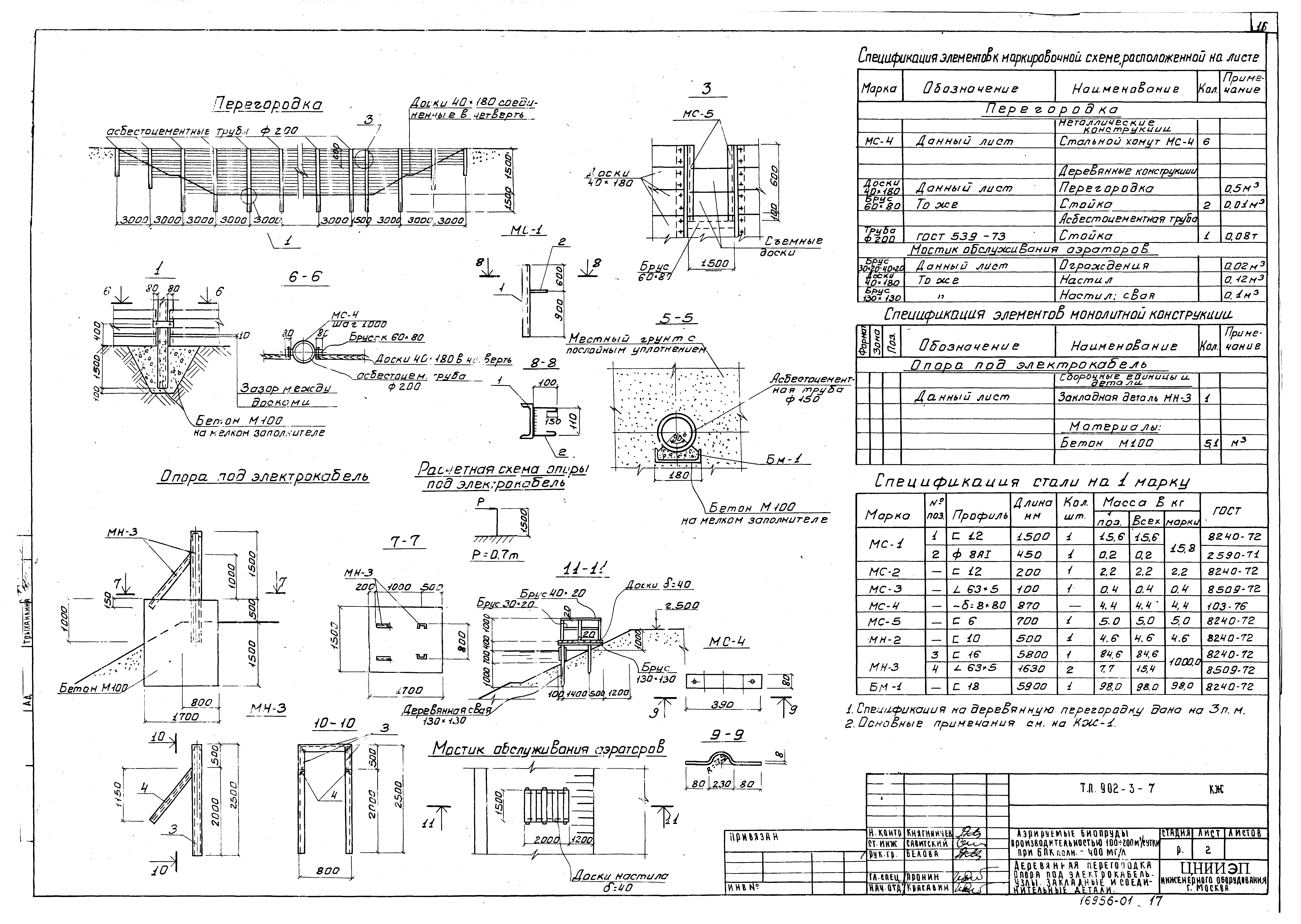
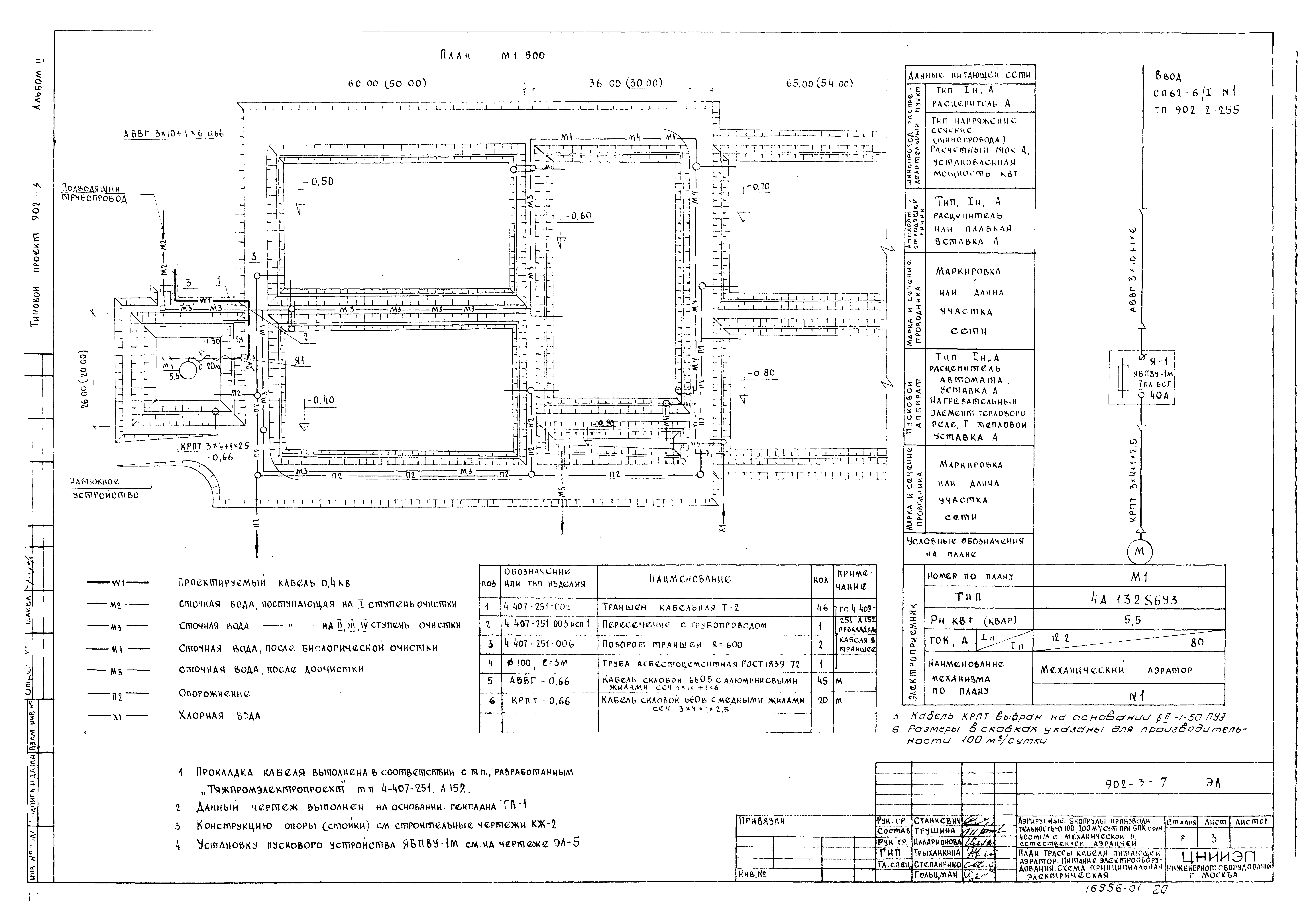
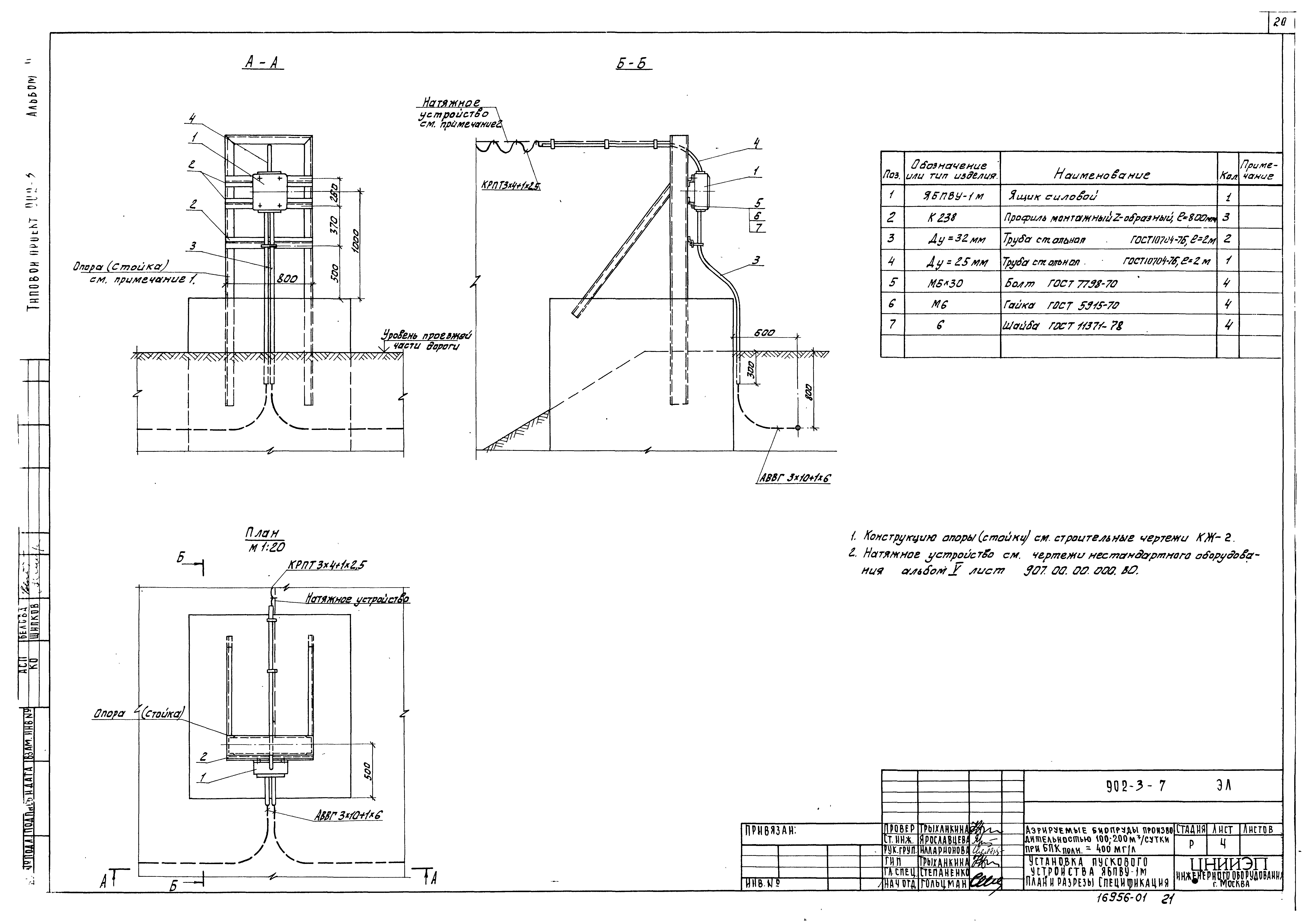
| Оглавление: | Содержание альбома Технологическая часть Механическая и естественная аэрация Общие данные Схема генплана План с сетями Схема движения воды. Деталировка колодцев Профили - М3, М4- . Спецификация Профили -П2, Х1 - Таблица колодцев Пневматическая и естественная аэрация План с сетями Схема движения воды Профиль - АО -. Спецификация. Схема воздуховода Архитектурно-строительная часть Примерный генплан Раскладка плит. Разрез 1-1, 2-2, 3-3 Конструкции железобетонные Водоперепускной колодец и переход к нему. Камера напуска и лоток Деревянная перегородка. Опора под электрокабель. Узлы. Закладные и соединительные детали Электротехническая часть Общие данные План трассы кабелей, питающих аэратор. Питание электрооборудования. Схема принципиальная электрическая Установка пускового устройства ЯБП ВУ-1м. План, разрезы. Спецификация Наружное освещение. План |
| Разработан: | ЦНИИЭП инженерного оборудования |
| Утверждён: | 11.03.1980 Госгражданстрой (Gosgrazhdanstroy 75) |






















