Скачать Типовой проект 902-9-11 Альбом II. Технологическая, санитарно-техническая, архитектурно-строительная частиДата актуализации: 01.01.2021
|
| Обозначение: | Типовой проект 902-9-11 |
| Обозначение англ: | 902-9-11 |
| Статус: | не определен законодательством |
| Название рус.: | Альбом II. Технологическая, санитарно-техническая, архитектурно-строительная части |
| Дата добавления в базу: | 01.09.2013 |
| Дата актуализации: | 01.01.2021 |
| Дата введения: | 08.07.1981 |
| Дата окончания срока действия: | 30.06.2003 |
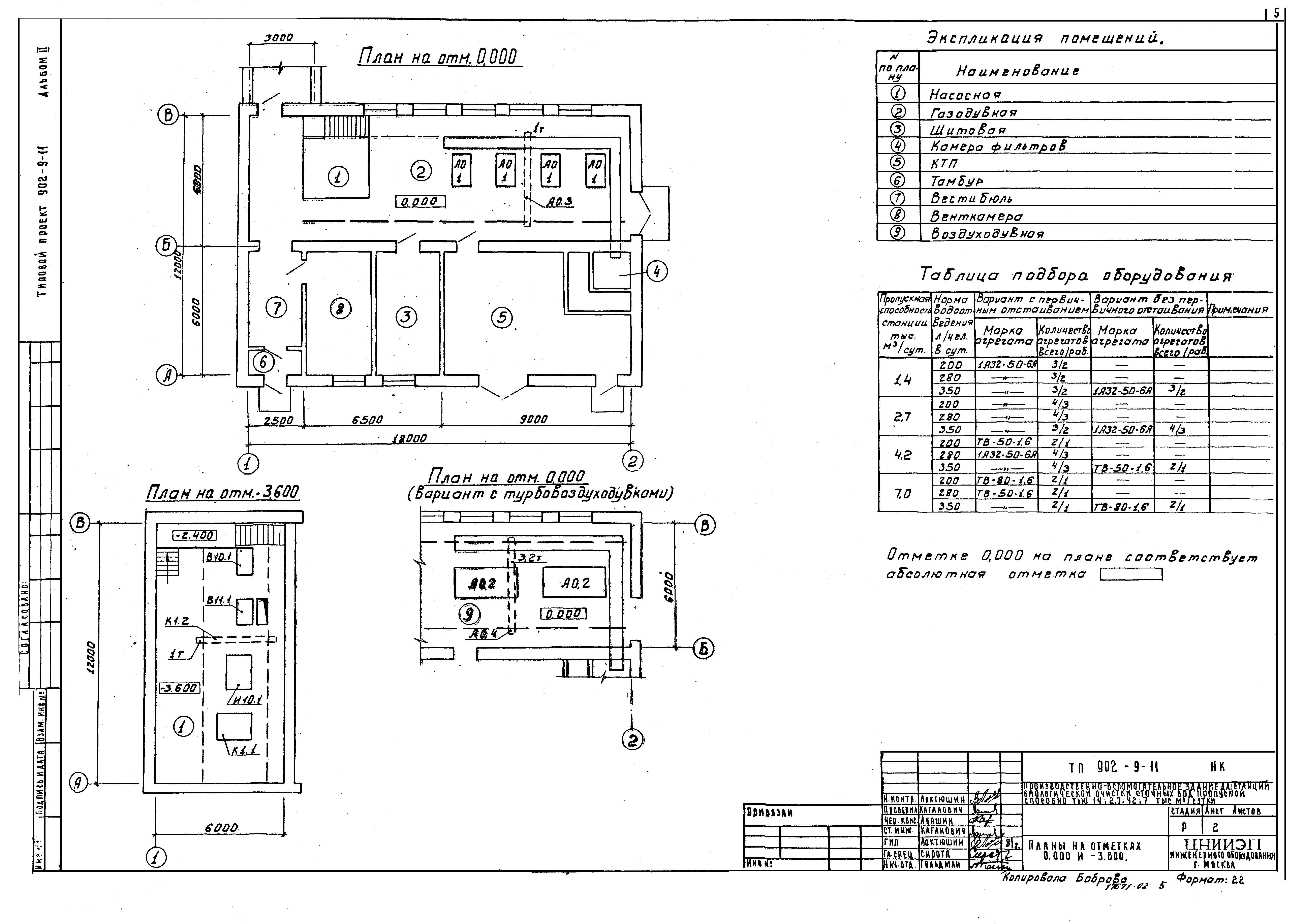
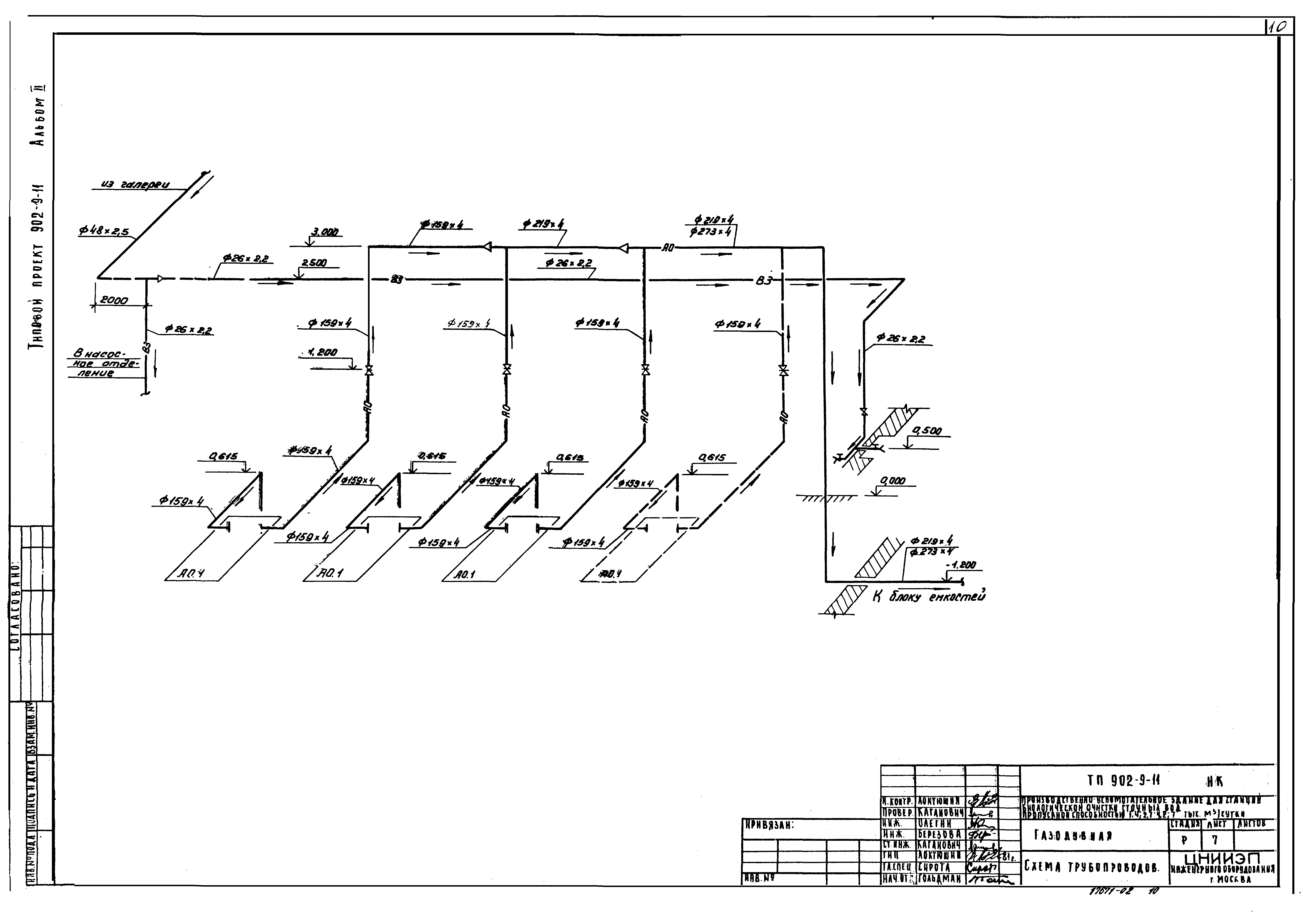
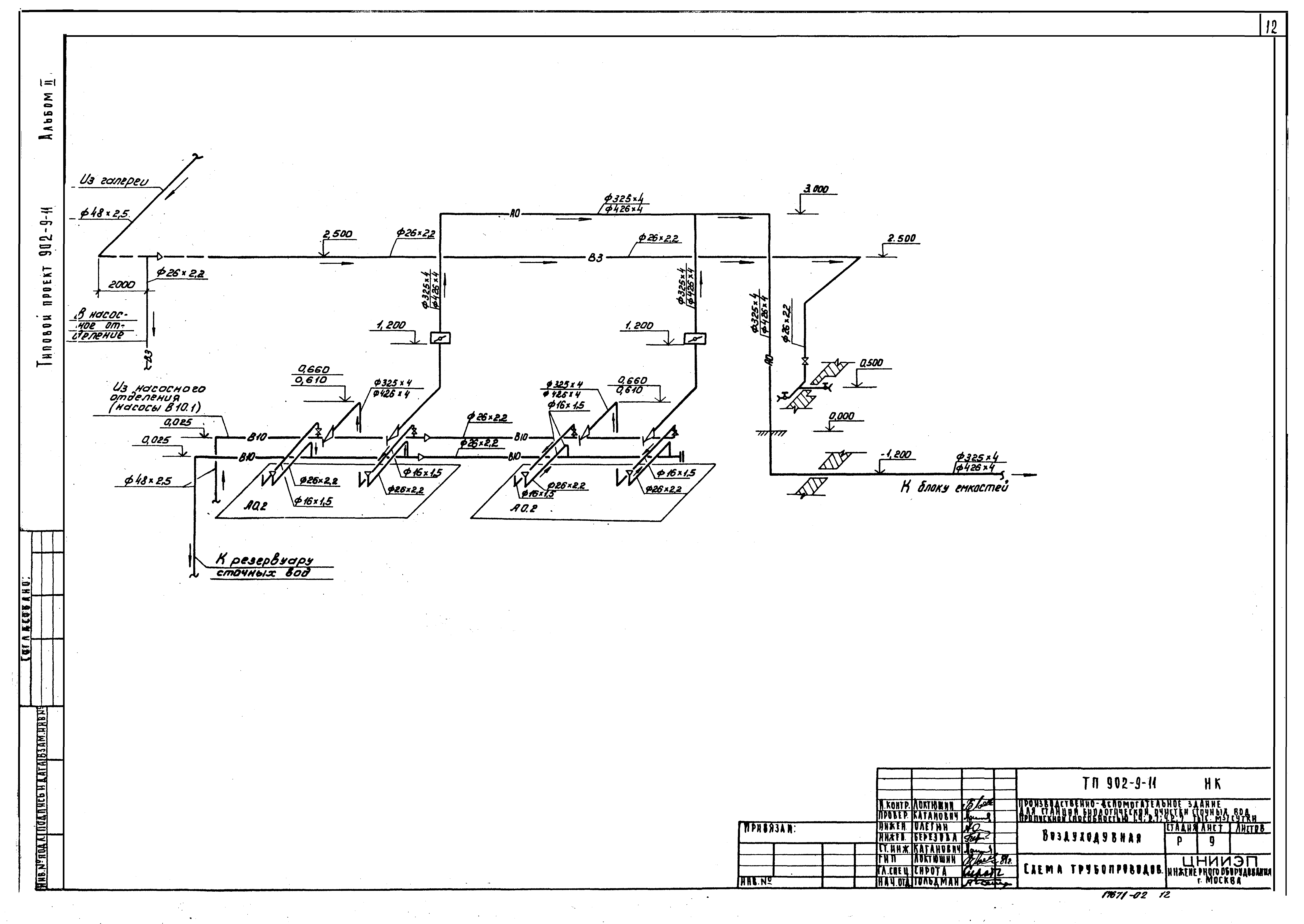
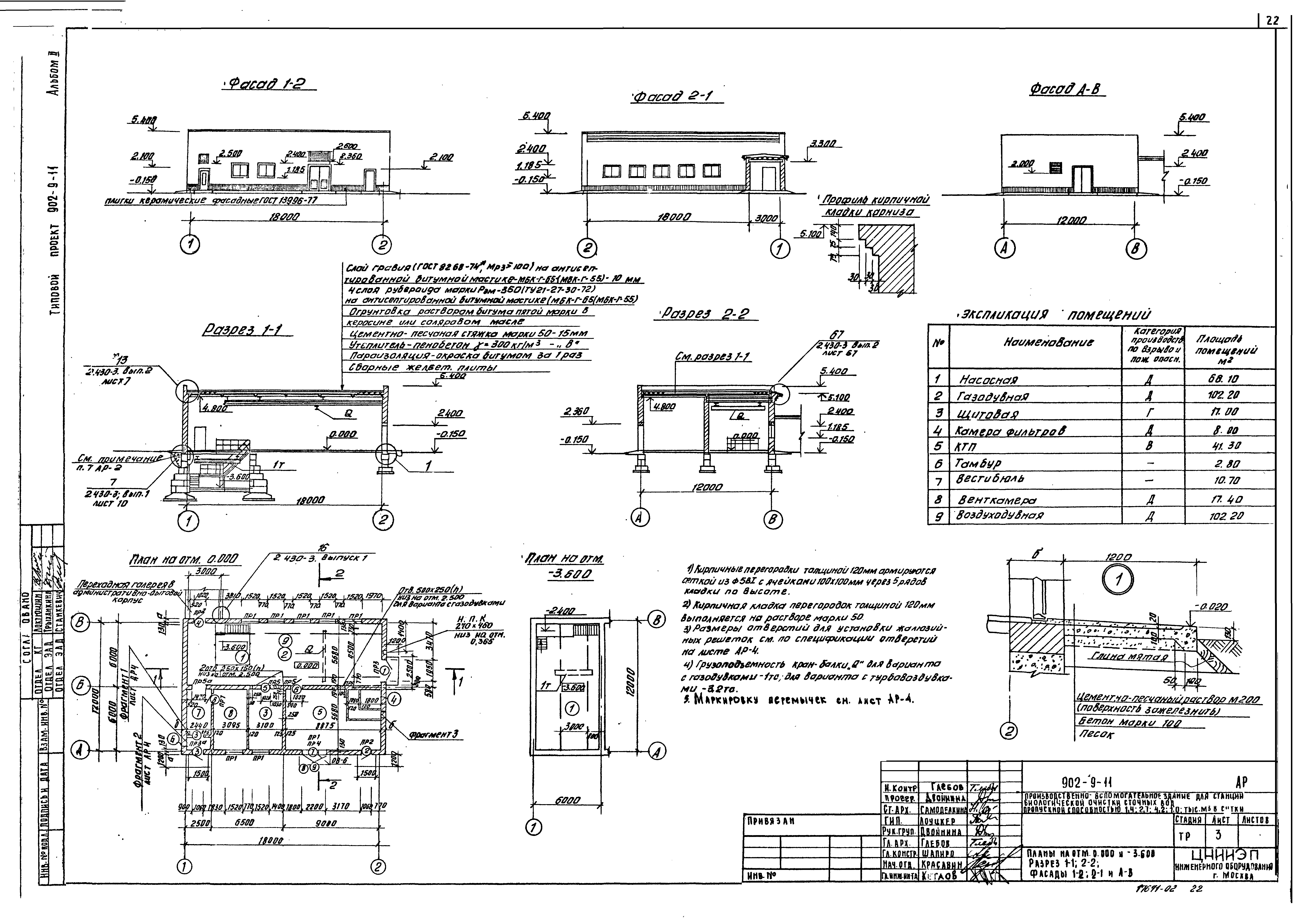
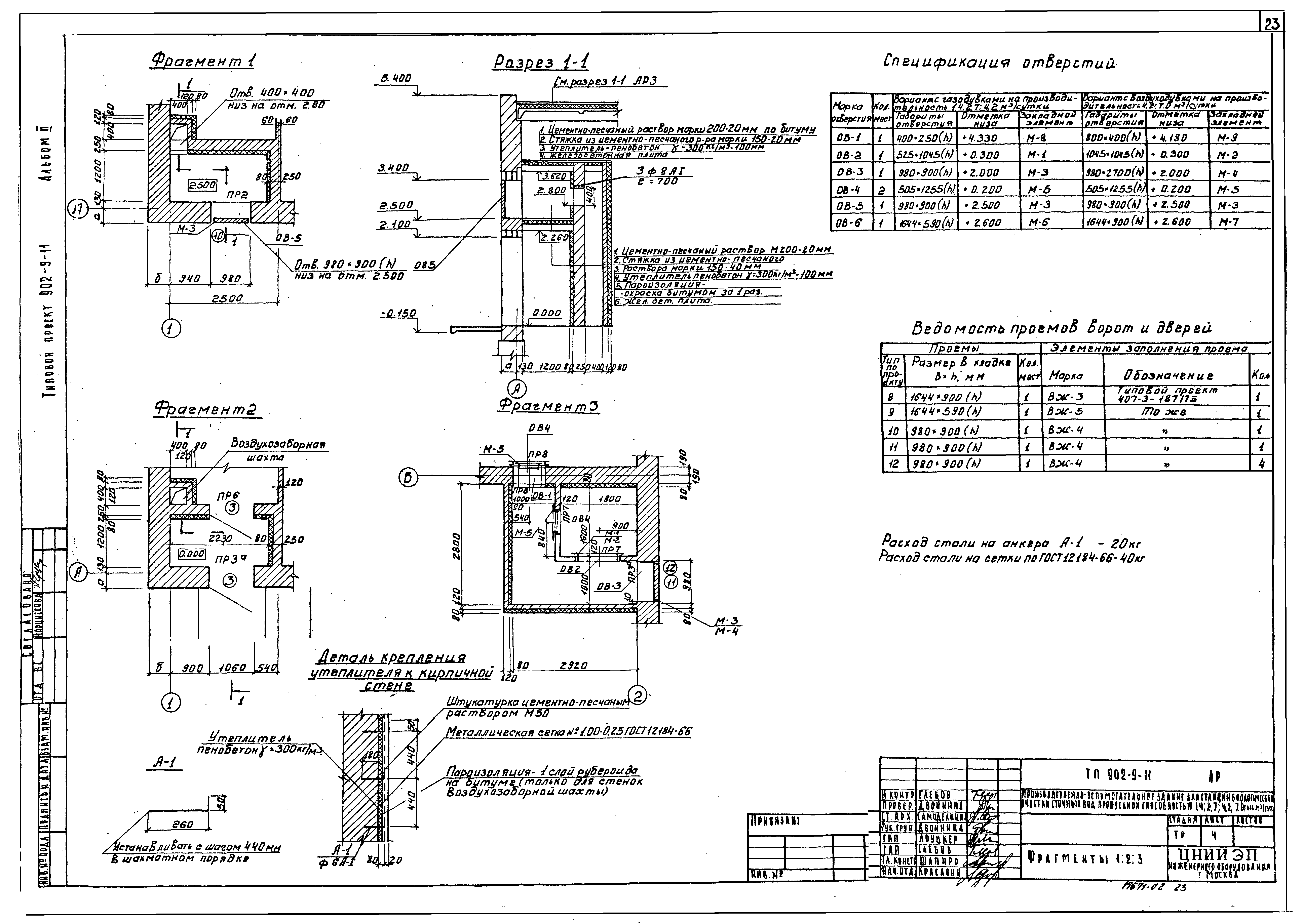
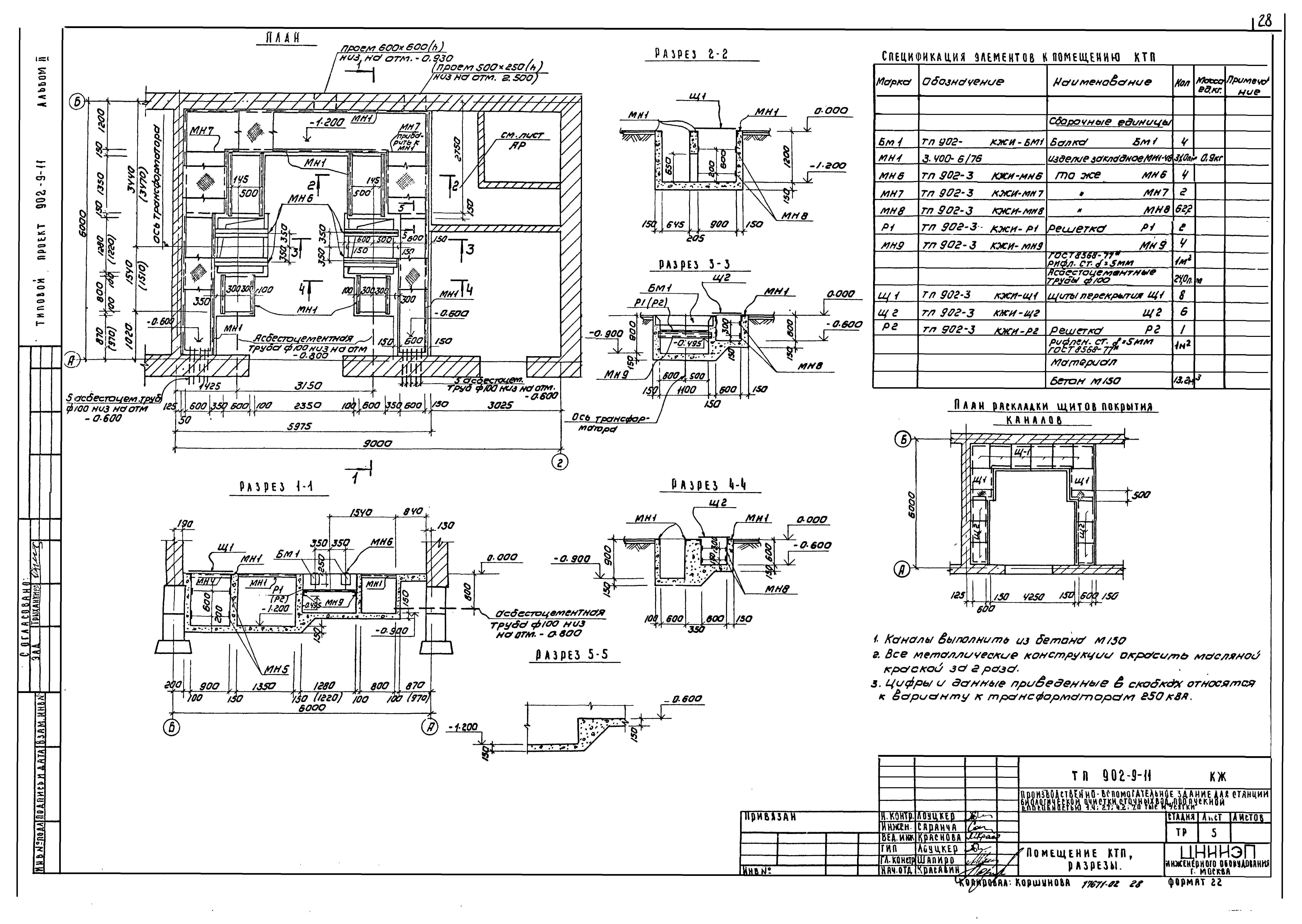
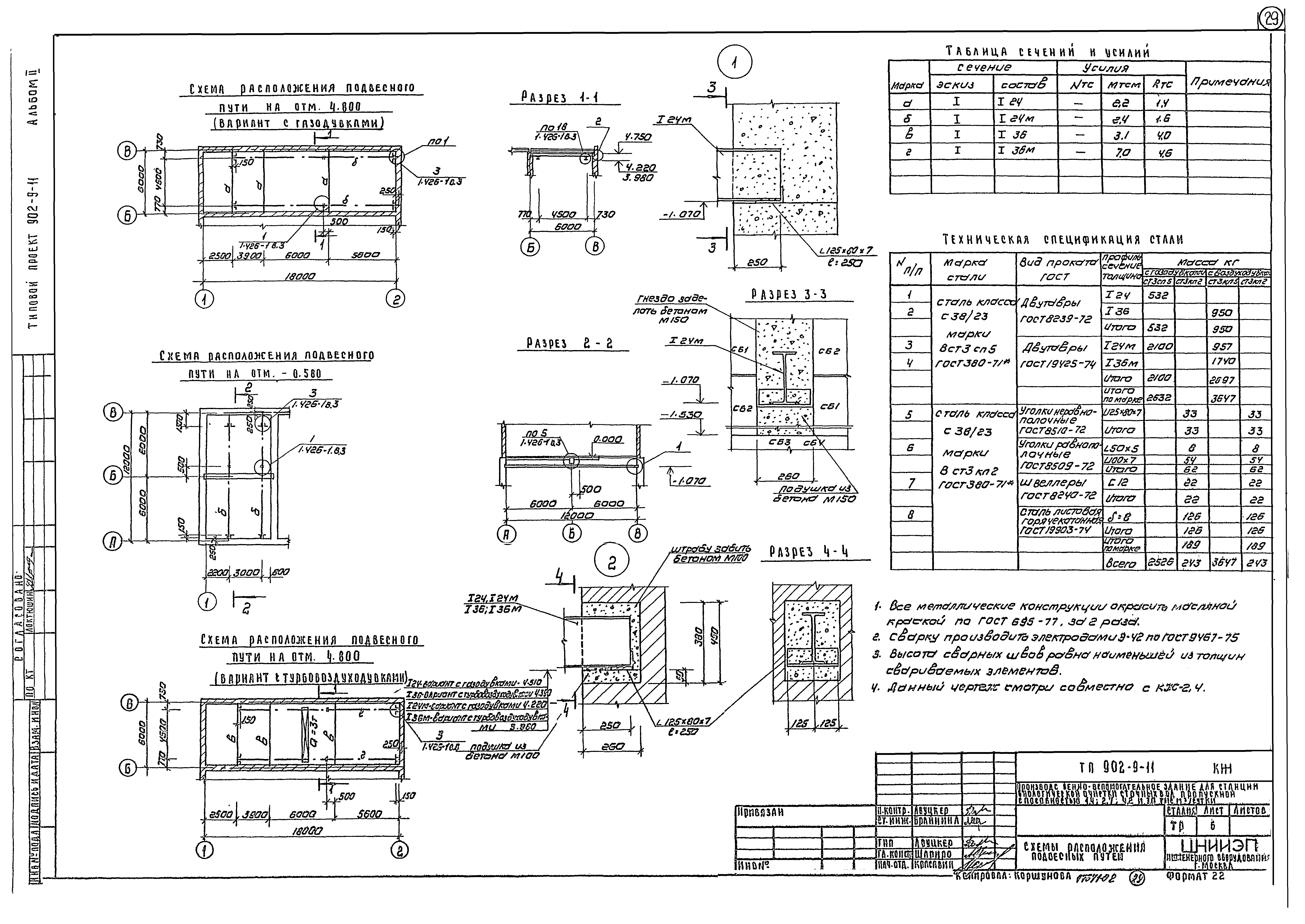
| Оглавление: | Содержание альбома Технологическая часть Общие данные Планы на отметках 0.000 и - 3.600 Насосное отделение. План на отм. - 3.600 Насосное отделение. Разрезы Насосное отделение. Схема трубопроводов Газодувная. План на отм. 0.000. Разрезы Газодувная. Схема трубопроводов Воздуходувная. План на отм. 0.000. Разрезы Воздуходувная. Схема трубопроводов Спецификация Отопление и вентиляция Общие данные План на отметках 0.000 и - 3.600. Схема отопления. Схема системы вентиляции В1 Вытяжная венткамера, камера фильтров на отм. 0.000. Планы. Разрезы 1-1, 2-2 Спецификация Архитектурные решения Общие данные Планы на отм. 0.000 и - 3.600. Разрезы 1-1, 2-2. Фасады 1-2, 2-1 и А-В Фрагменты 1, 2, 3 Конструкции железобетонные Общие данные Схема расположения фундаментов. Разрезы 1-1…10-10 Схема расположения подпольных каналов и фундаментов под оборудование Схема расположения плит покрытий и перекрытий Помещение КТП, разрезы Схемы расположения подвесных путей |
| Разработан: | ЦНИИЭП |
| Утверждён: | 20.02.1981 Госгражданстрой (Gosgrazhdanstroy 59) |
| Заменяет собой: |





























