Скачать Типовые проектные решения 903-1-0230.86 Альбом 3. МеталлоконструкцииДата актуализации: 01.01.2021
|
| Обозначение: | Типовые проектные решения 903-1-0230.86 |
| Обозначение англ: | 903-1-0230.86 |
| Статус: | справочные материалы, мп, тпр |
| Название рус.: | Альбом 3. Металлоконструкции |
| Дата добавления в базу: | 01.09.2013 |
| Дата актуализации: | 01.01.2021 |
| Дата введения: | 01.03.1987 |
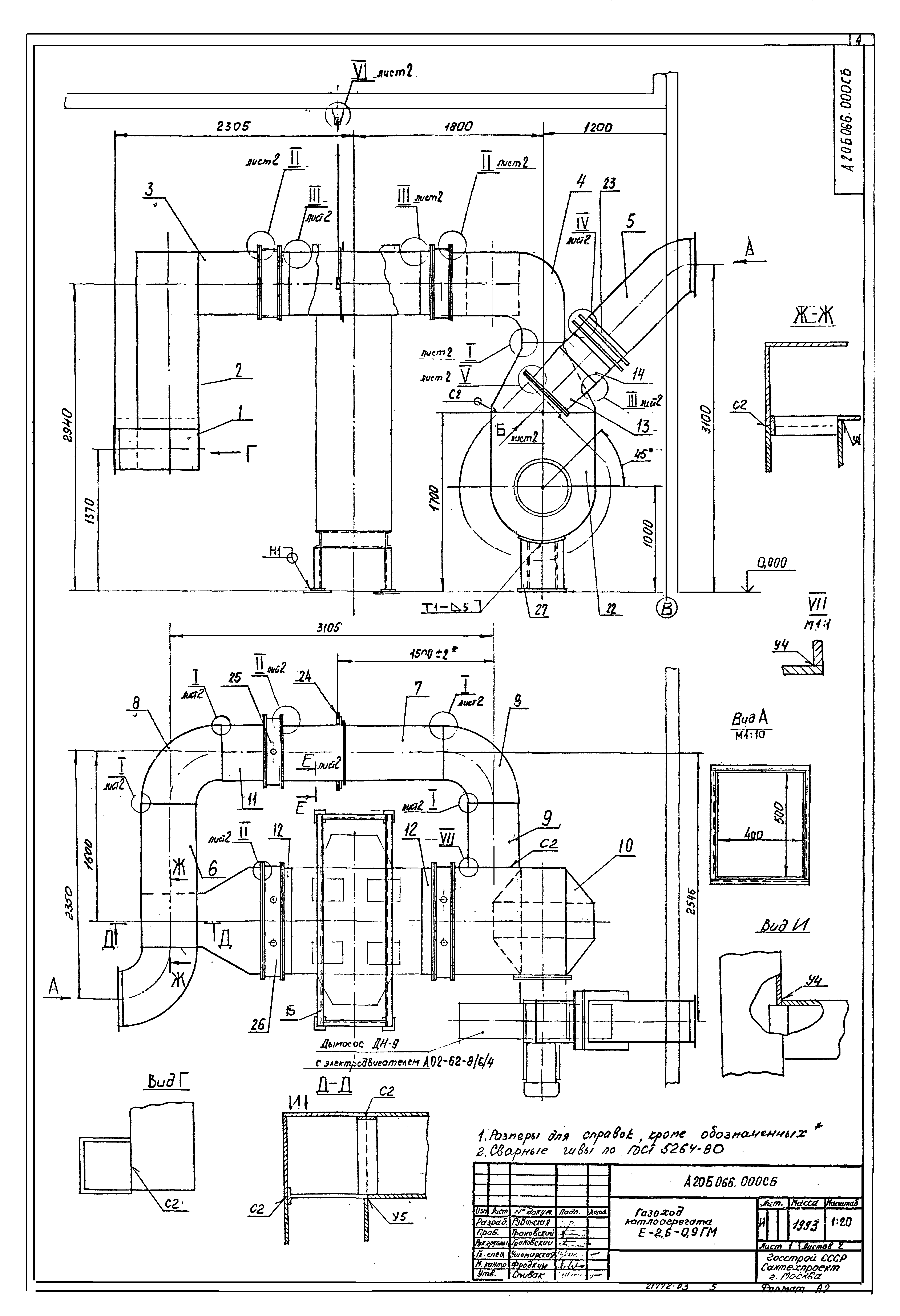
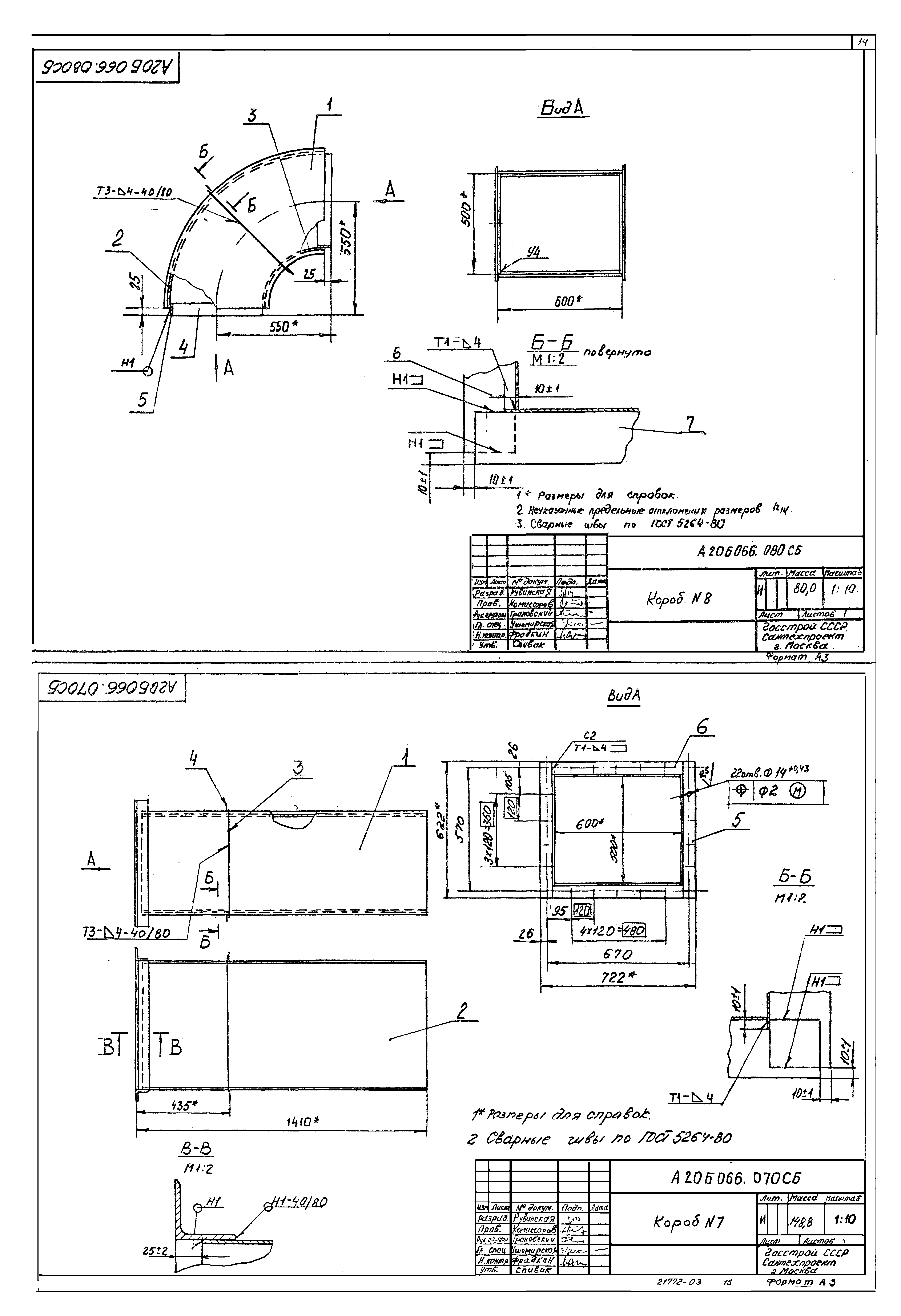
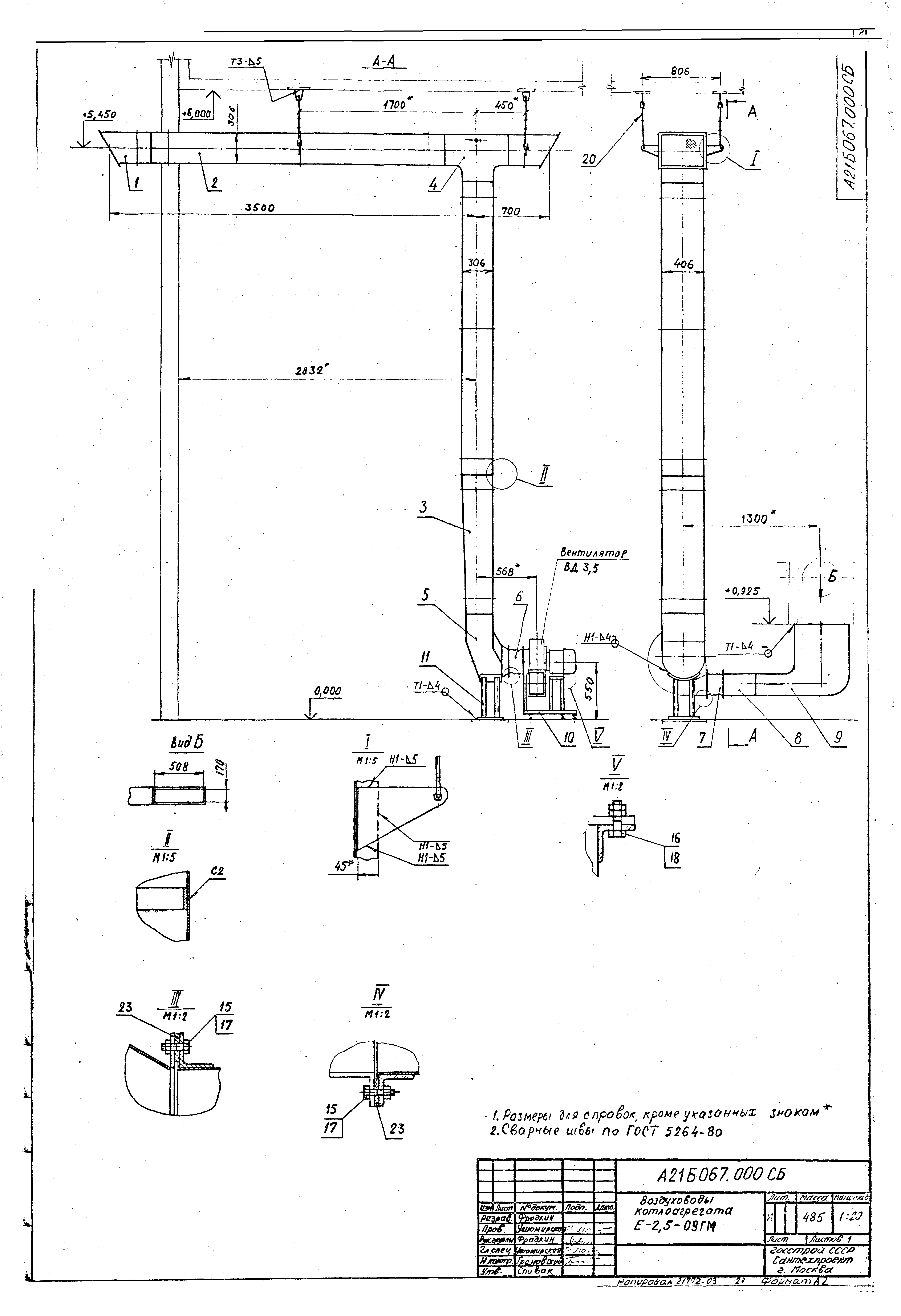
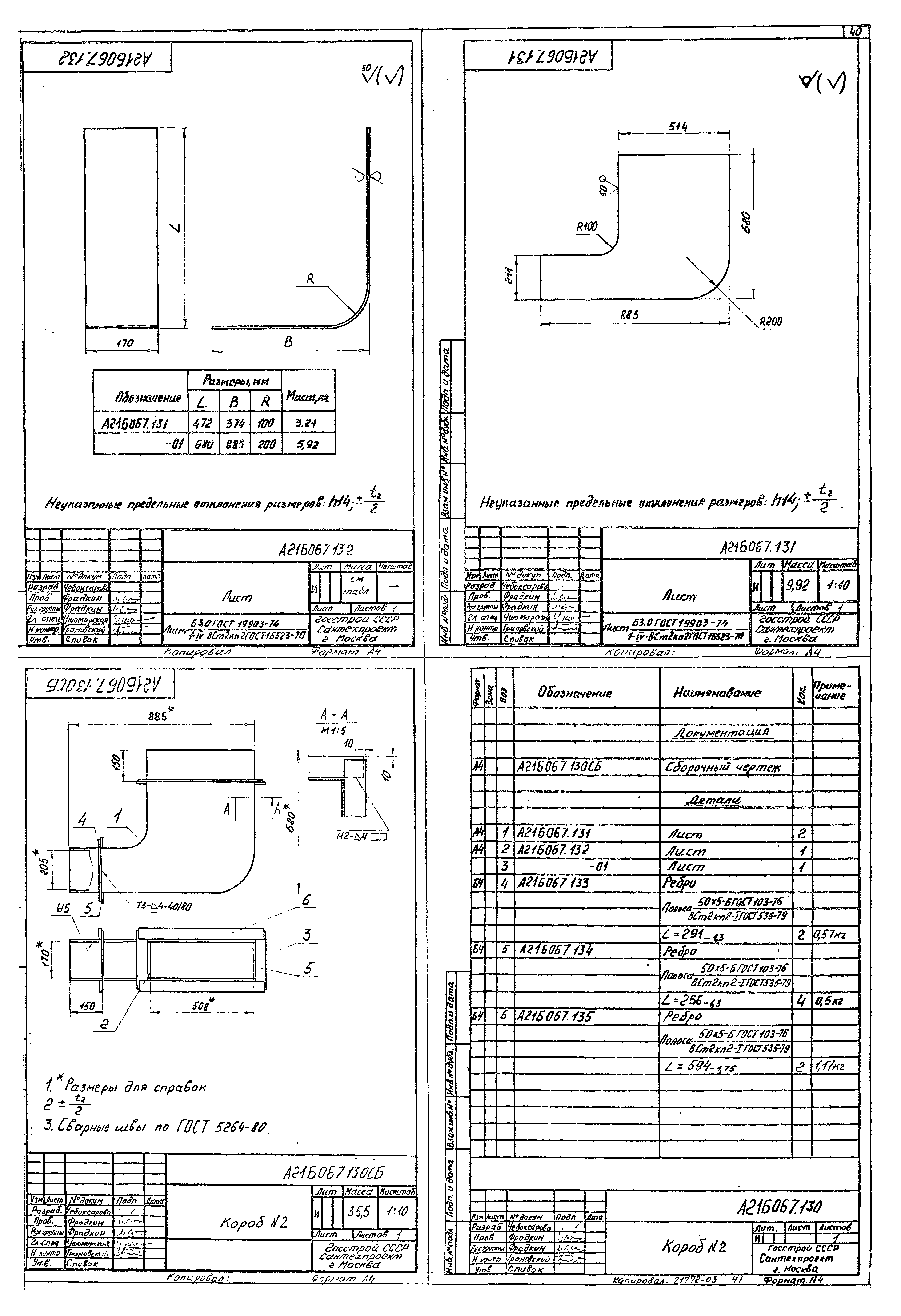
| Оглавление: | Содержание А20Б066.000 Газоход котлоагрегата Е-2,5-0,9ГМ А20Б066.000 СБ Газоход котлоагрегата Е-2,5-0,9ГМ А20Б066.010 СБ Короб №1 А20Б066.010 Короб №1 А20Б066.020 Короб №2 А20Б066.060 СБ Короб №6 А20Б066.020 СБ Короб №2 А20Б066.030 СБ Короб №3 А20Б066.011 Стенка А20Б066.012 Лист А20Б066.013 Лист А20Б066.021 Стенка А20Б066.030 Короб №3 А20Б066.040 Короб №4 А20Б066.050 Короб №5 А20Б066.060 Короб №6 А20Б066.040 СБ Короб №4 А20Б066.041 Стенка А20Б066.042 Стенка А20Б066.043 Стенка А20Б066.049 Стенка А20Б066.050 СБ Короб №5 А20Б066.130 СБ Короб №13 А20Б066.070 Короб №7 А20Б066.080 Короб №8 А20Б066.110 Короб №11 А20Б066.120 Короб №12 А20Б066.070 СБ Короб №7 А20Б066.080 СБ Короб №8 А20Б066.001 Лист А20Б066.071 Стенка А20Б066.083 Стенка А20Б066.121 Стенка А20Б066.081 Стенка А20Б066.082 Стенка А20Б066.131 Стенка А20Б066.132 Стенка А20Б066.090 Короб №9 А20Б066.100 Короб №10 А20Б066.140 Короб №14 А20Б066.141 Стенка А20Б066.002 Заглушка А20Б066.110 СБ Короб №11 А20Б066.111 Стенка А20Б066.120 СБ Короб №12 А20Б066.031 Стенка А20Б066.032 Стенка А20Б066.130 Короб №13 А20Б066.150 Рама под экономайзер А20Б066.101 Стенка А20Б066.102 Стенка А20Б066.150 СБ Рама под экономайзер А20Б066.051 Стенка А20Б066.052 Стенка А20Б066.053 Стенка А21Б067.000 Воздуховоды котлоагрегата Е-2,5-0,9ГМ А21Б067.180 Фланец А21Б067.180 СБ Фланец А21Б067.000 СБ Воздуховоды котлоагрегата Е-2,5-0,9ГМ А21Б067.010 Патрубок входной А21Б067.010 СБ Патрубок входной А21Б067.191 Боковина А21Б067.030 Короб №1 А21Б067.030 СБ Короб №1 А21Б067.040 СБ Короб переходный №1 А21Б067.041 Лист А21Б067.040 Короб переходный №1 А21Б067.050 Тройник с заслонкой А21Б067.050 СБ Тройник с заслонкой А21Б067.052 Крышка А21Б067.053 Прокладка А21Б067.054 Кольцо упорное А21Б067.055 Ось А21Б067.056 Крышка сальника А21Б067.057 Прокладка А21Б067.058 Подшипник А21Б067.060 Тройник А21Б067.060 СБ Тройник А21Б067.051 Подшипник А21Б067.061 Лист А21Б067.062 Лист А21Б067.064 Плита А21Б067.065 Шпилька А21Б067.070 Заслонка А21Б067.070 СБ Заслонка А21Б067.071 Полотно заслонки А21Б067.072 Ребро А21Б067.080 Карман всасывающий А21Б067.080 СБ Карман всасывающий А21Б067.081 Фланец А21Б067.082 Конус А21Б067.083 Боковина А21Б067.084 Стенка передняя А21Б067.085 Стенка задняя А21Б067.090 Вставка гибкая А21Б067.090 СБ Вставка гибкая А21Б067.091 Рукав А21Б067.092 Обечайка А21Б067.093 Фланец А21Б067.110 СБ Фланец А21Б067.100 Вставка гибкая А21Б067.100 СБ Вставка гибкая А21Б067.110 Фланец А21Б067.101 Обечайка А21Б067.102 Рукав А21Б067.120 Короб переходный №2 А21Б067.120 СБ Короб переходный №2 А21Б067.121 Лист А21Б067.130 Короб №2 А21Б067.130 СБ Короб №2 А21Б067.131 Лист А21Б067.132 Лист А21Б067.140 Основание виброизолирующее А21Б067.141 Уголок А21Б067.142 Уголок А21Б067.140 СБ Основание виброизолирующее А21Б067.160 Опора под карман А21Б067.160 СБ Опора под карман А21Б067.161 Дуга А21Б067.162 Уголок А21Б067.190 Короб №3 А21Б067.190 СБ Короб №3 А21Б067.086 Сектор А21Б067.200 Вал А21Б067.200 СБ Вал А21Б067.042 Лист А21Б067.043 Лист |
| Разработан: | Сантехпроект Госстроя СССР |
| Утверждён: | 08.10.1986 Госстрой СССР (Государственный комитет Совета Министров СССР по делам строительства) (USSR Gosstroy 74) |












































