Скачать Типовой проект 902-1-148.88 Альбом 2. Технология производства. Внутренний водопровод и канализация. Отопление и вентиляцияДата актуализации: 01.01.2021
|
| Обозначение: | Типовой проект 902-1-148.88 |
| Обозначение англ: | 902-1-148.88 |
| Статус: | не определен законодательством |
| Название рус.: | Альбом 2. Технология производства. Внутренний водопровод и канализация. Отопление и вентиляция |
| Дата добавления в базу: | 01.09.2013 |
| Дата актуализации: | 01.01.2021 |
| Дата введения: | 15.09.1988 |
| Дата окончания срока действия: | 30.06.2003 |
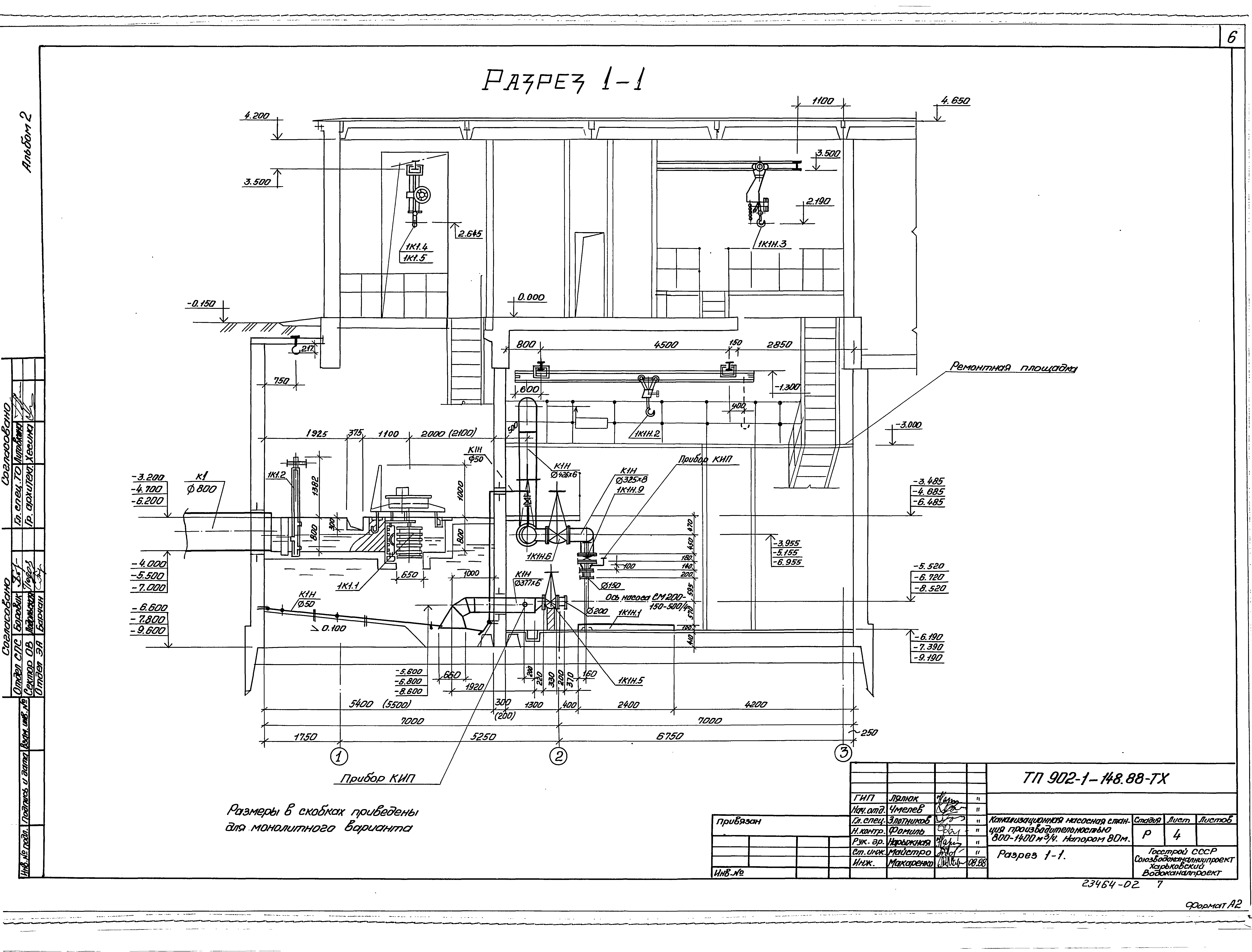
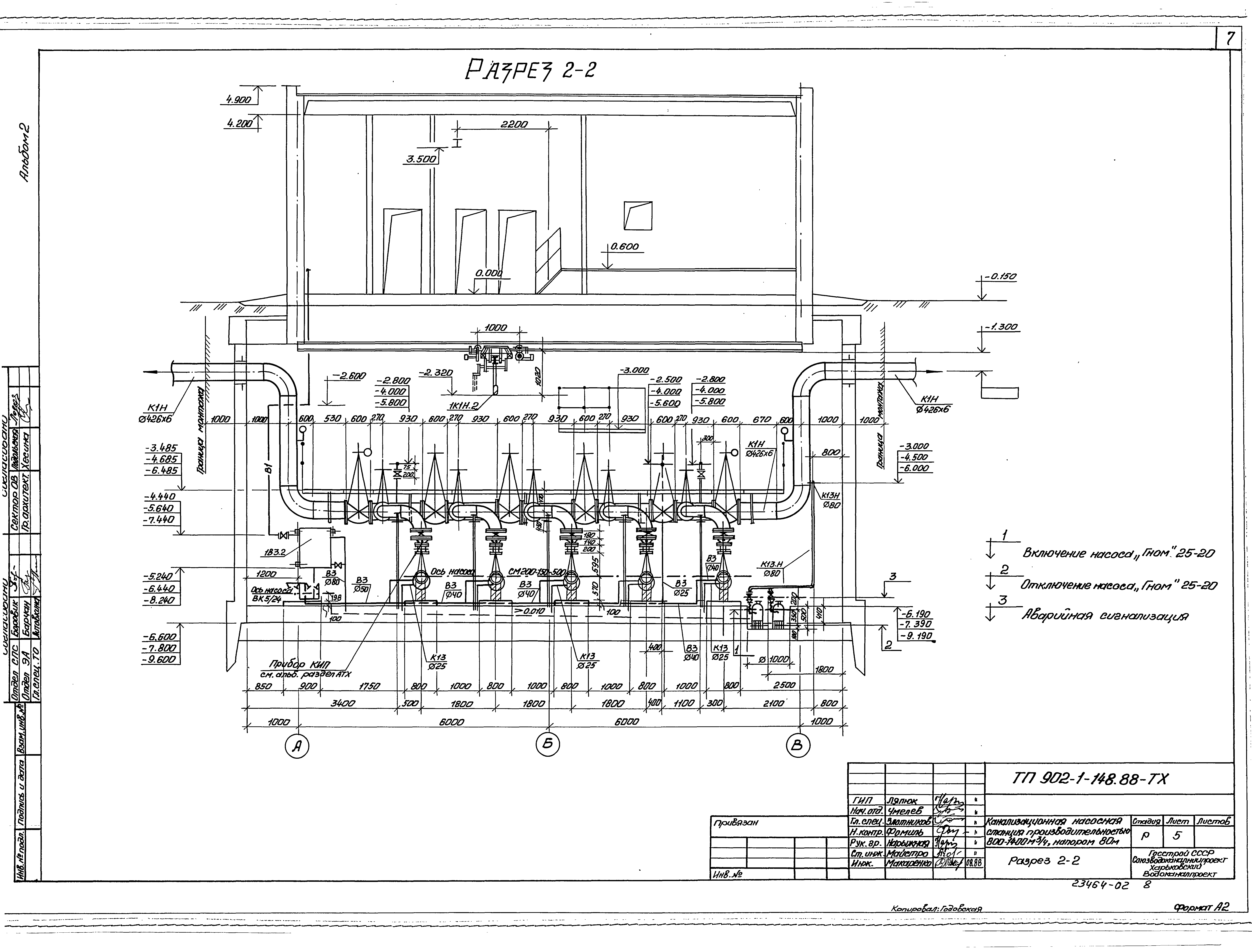
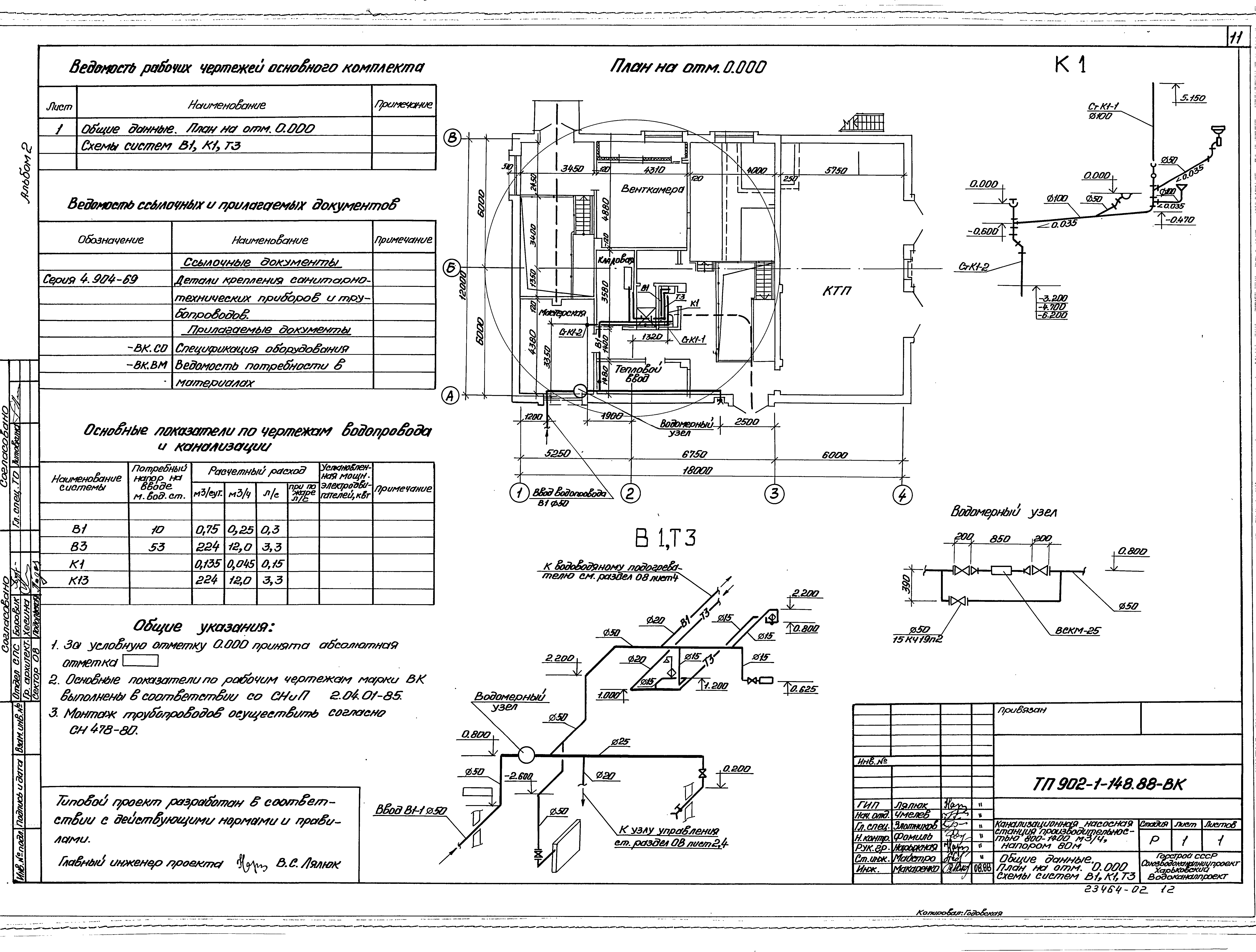
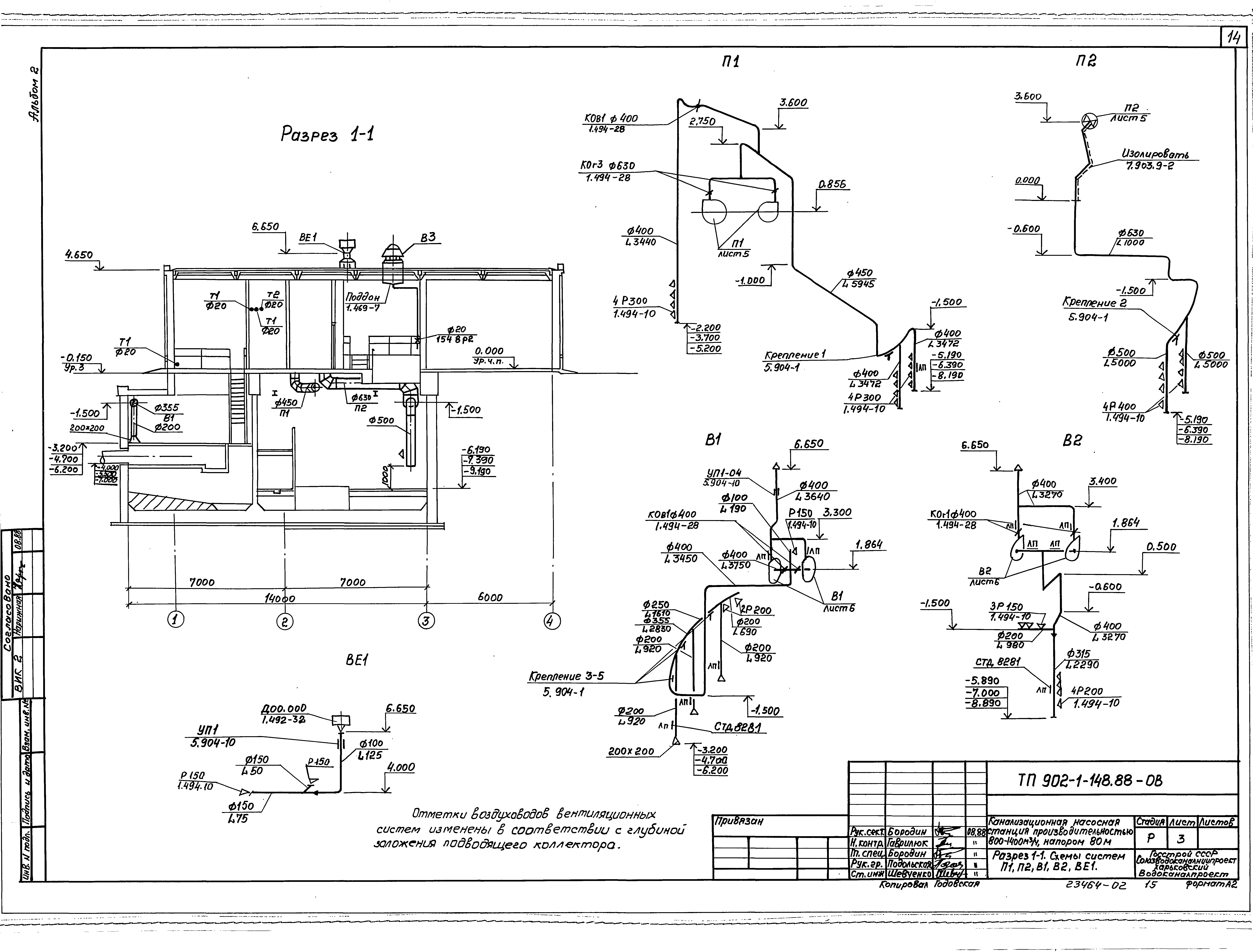
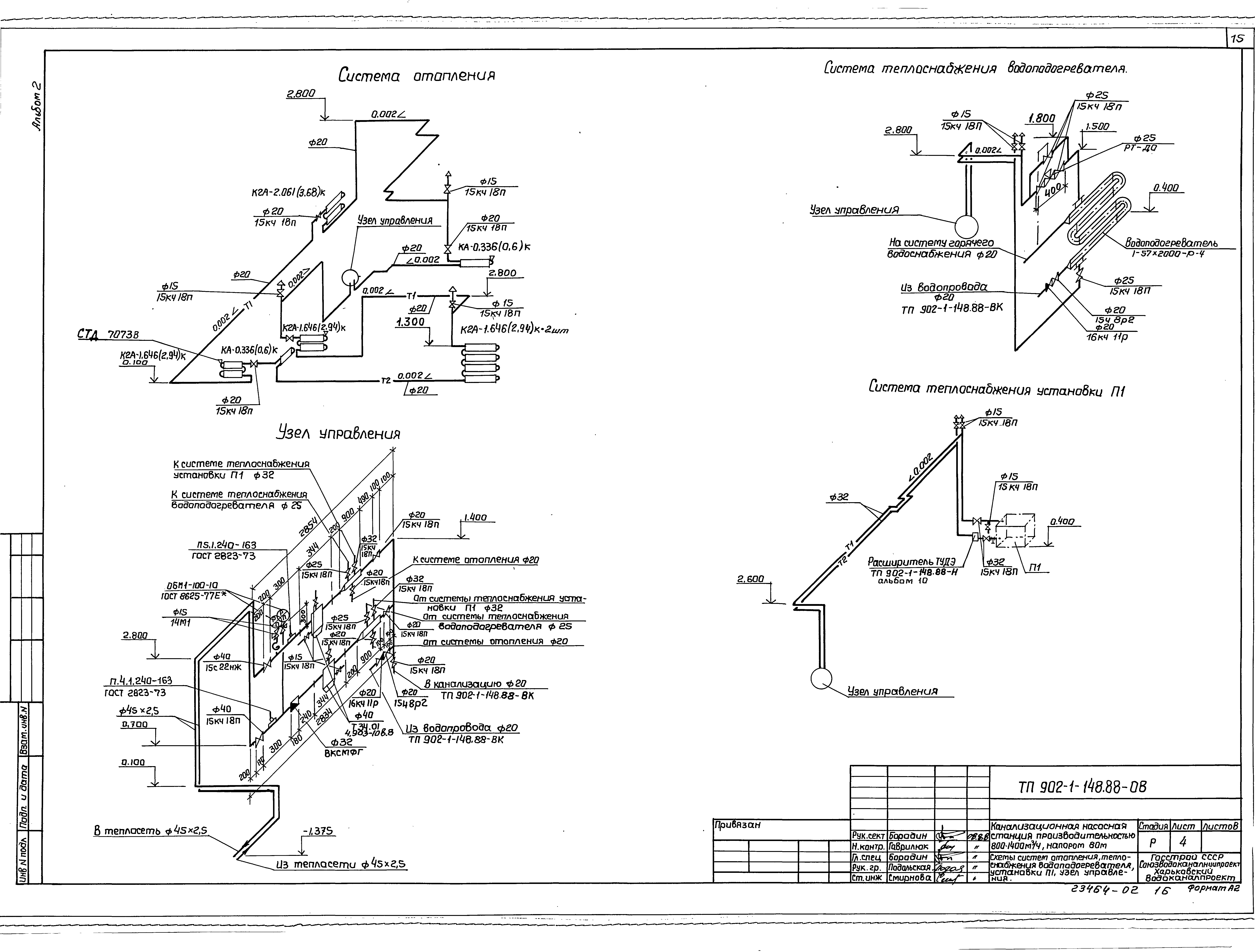
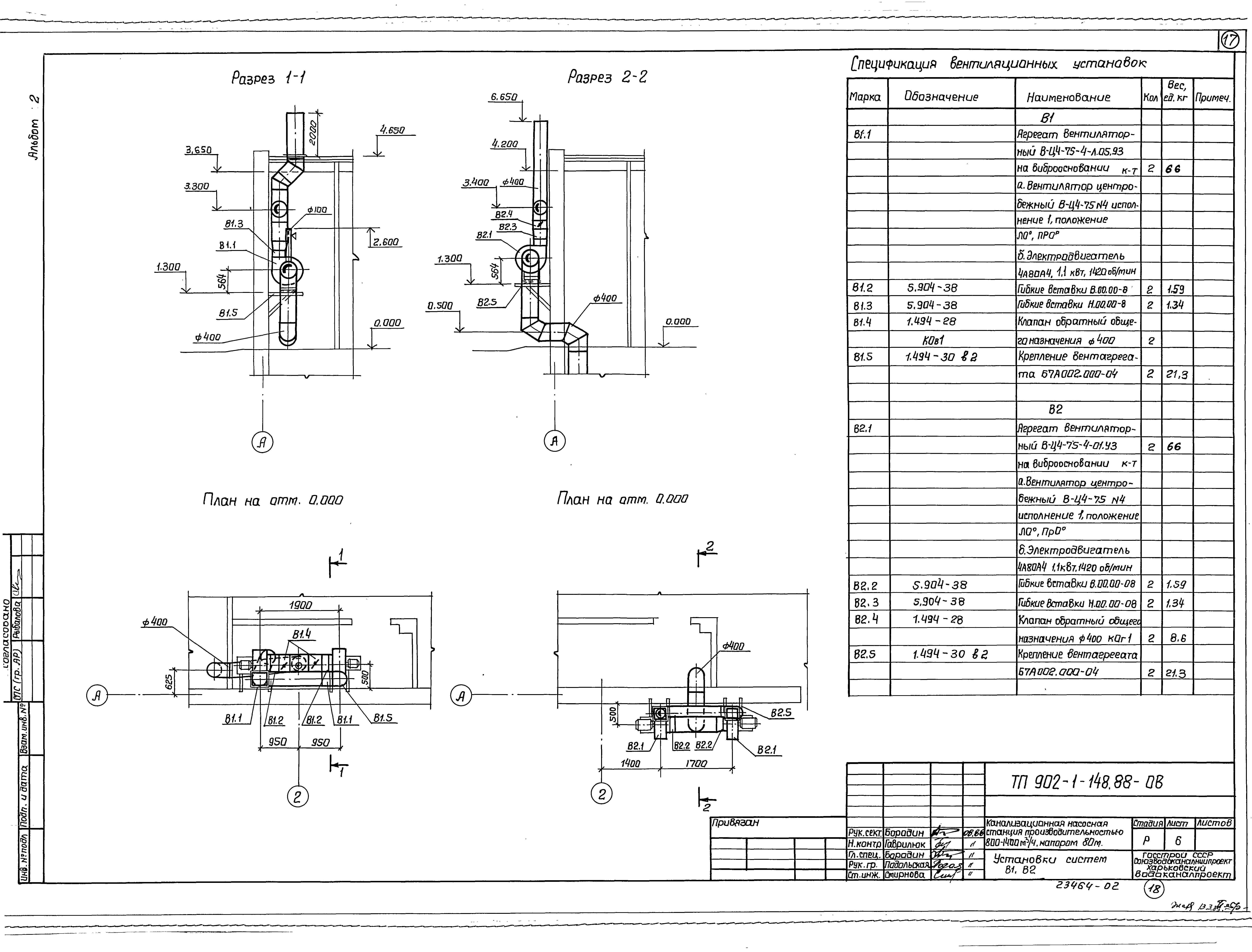
| Оглавление: | Технология производства ТХ Общие данные План подземной части Разрез 1-1 Разрез 2-2 План приемного резервуара. Разрез 3-3 Схема узла подводящего коллектора. Схема системы 1К1Н План машинного зала с системой В3. Схема систем 1В3, 1К13, 1К13Н Внутренний водопровод и канализация ВК Общие данные. План на отм. 0.000. Схемы систем В1, К1, Т3 Отопление и вентиляция ОВ Общие данные План на отм. 0.000 и подземной части Разрез 1-1. Схемы систем П1, П2, В1, В2, ВЕ1 Схемы системы отопления, теплоснабжения водоподогревателя, установки П1. Узел управления Установки систем П1, П2 Установки систем В1, В2 |
| Разработан: | Харьковский Водоканалпроект |
| Утверждён: | 08.07.1986 Госстрой СССР (Государственный комитет Совета Министров СССР по делам строительства) (USSR Gosstroy 20) |

















