Скачать Типовой проект 902-1-148.88 Альбом 6. Решение с регулируемым электроприводом. Силовое электрооборудование. Технологический контрольДата актуализации: 01.01.2021
|
| Обозначение: | Типовой проект 902-1-148.88 |
| Обозначение англ: | 902-1-148.88 |
| Статус: | не определен законодательством |
| Название рус.: | Альбом 6. Решение с регулируемым электроприводом. Силовое электрооборудование. Технологический контроль |
| Дата добавления в базу: | 01.09.2013 |
| Дата актуализации: | 01.01.2021 |
| Дата введения: | 15.09.1988 |
| Дата окончания срока действия: | 30.06.2003 |
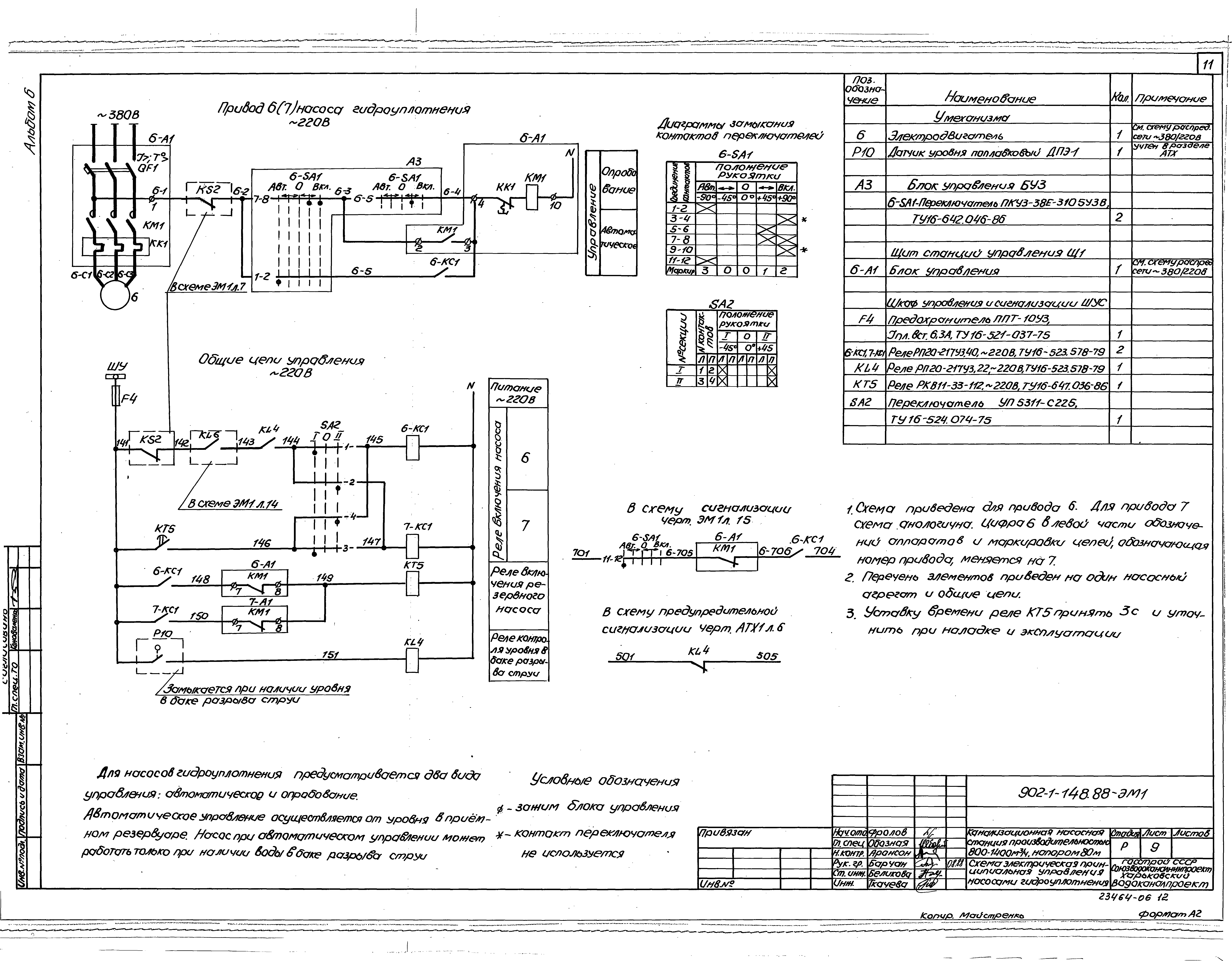
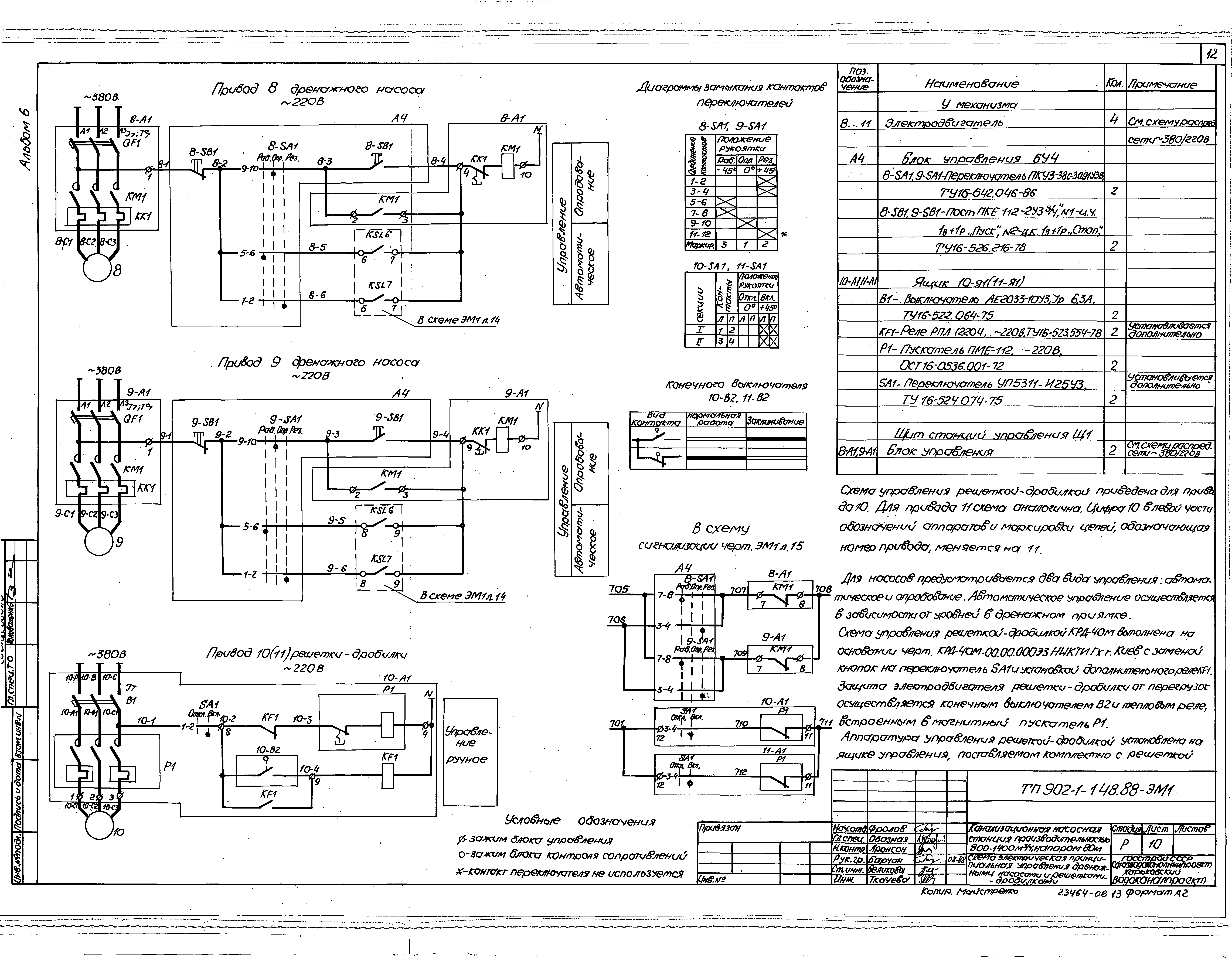
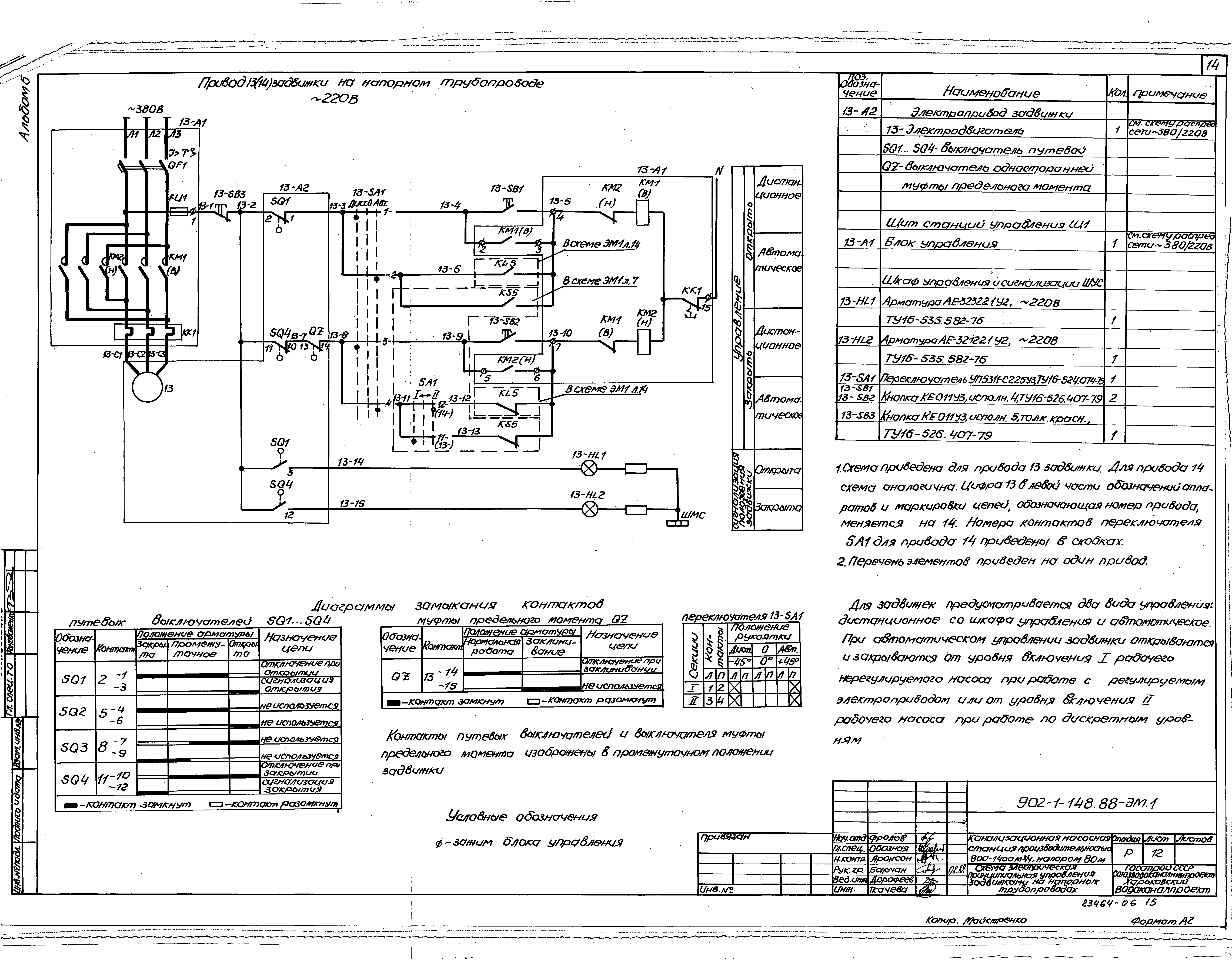
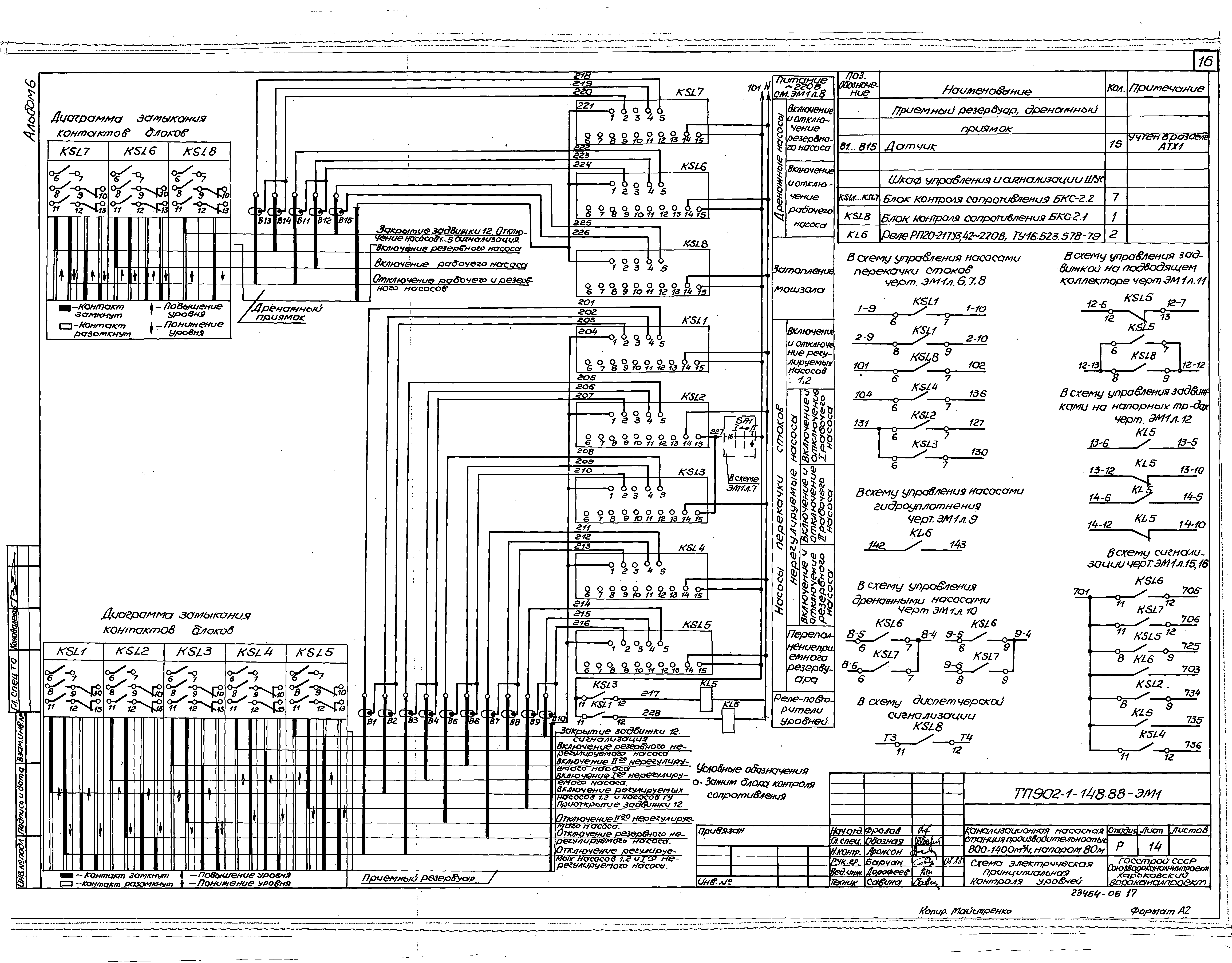
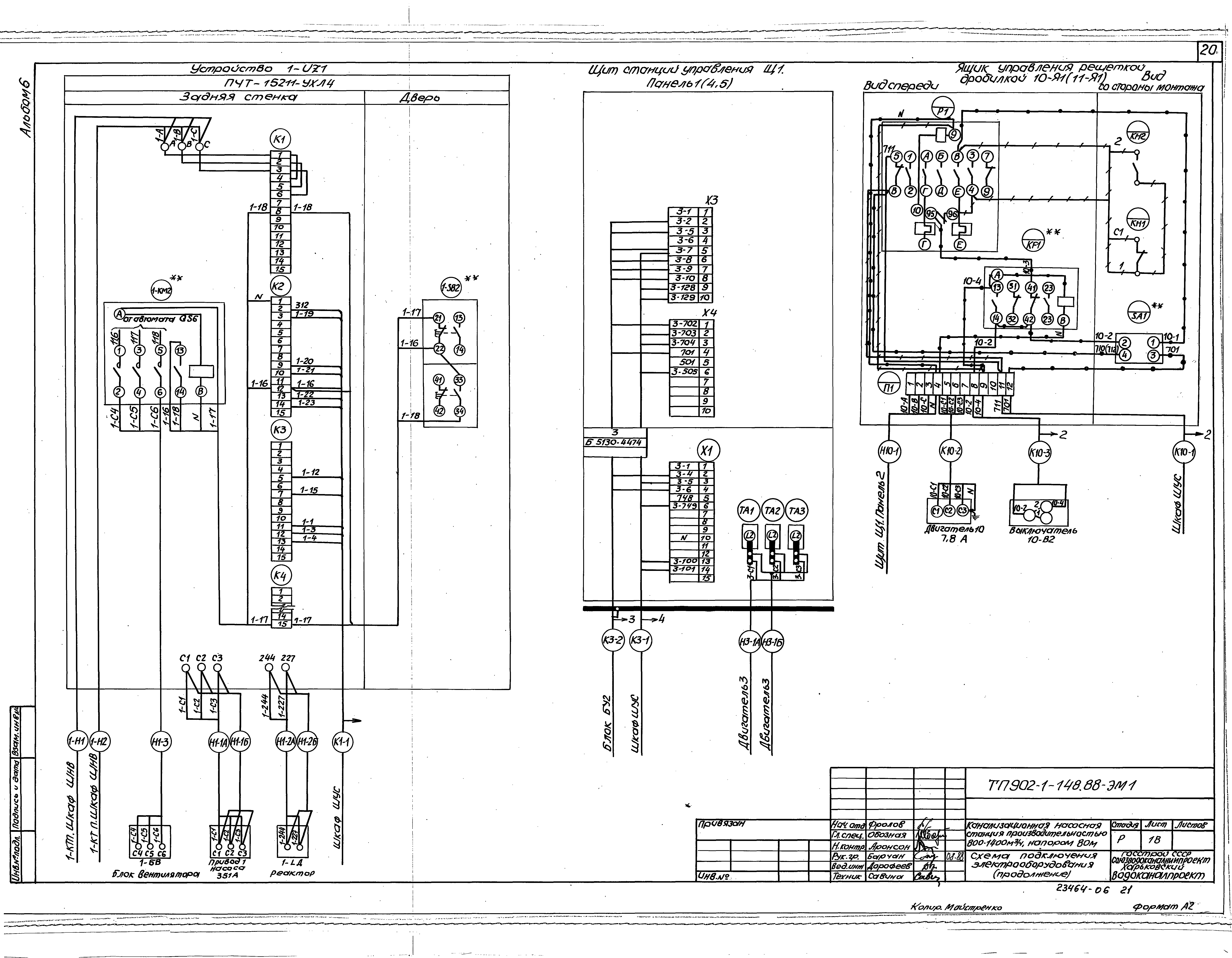
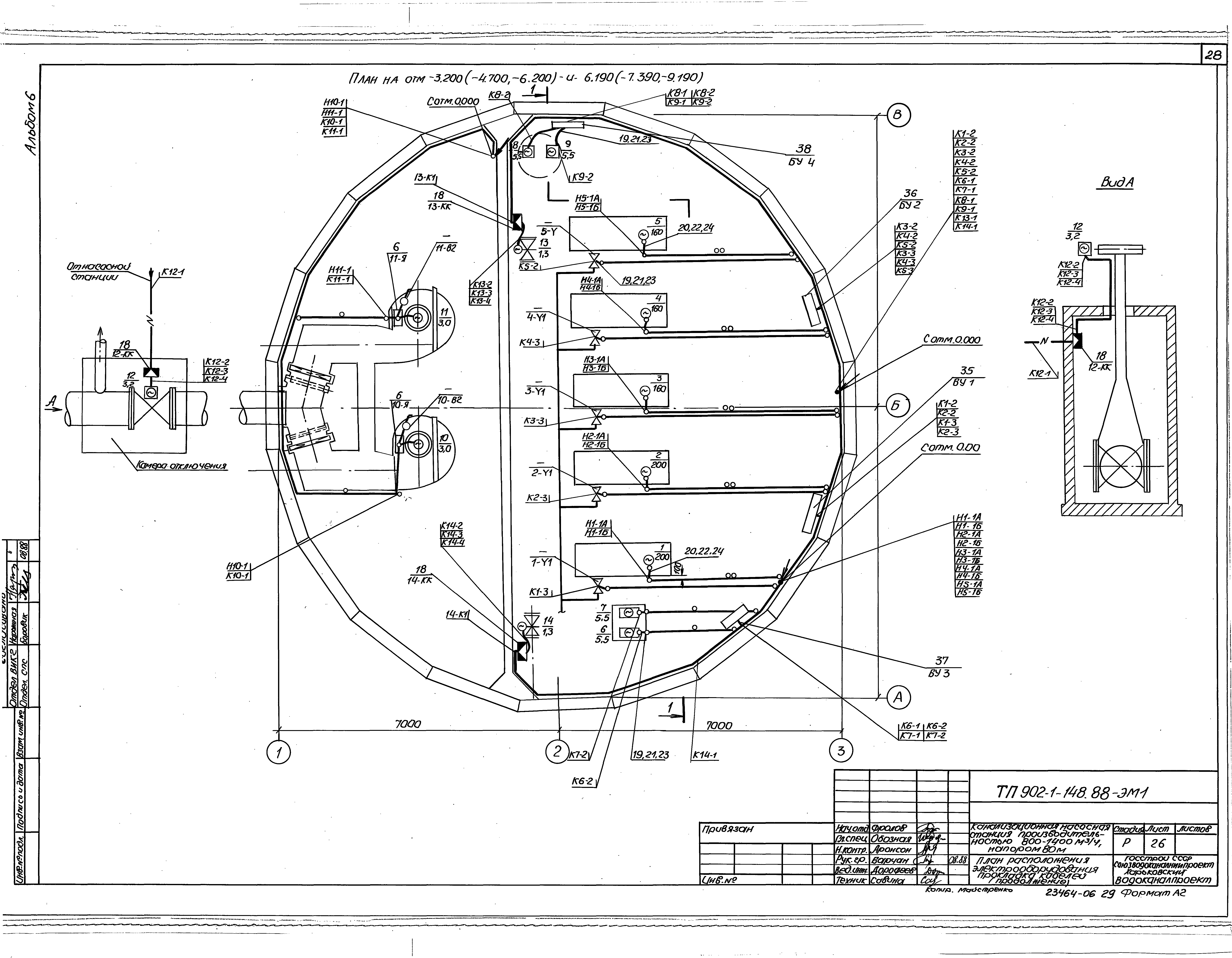
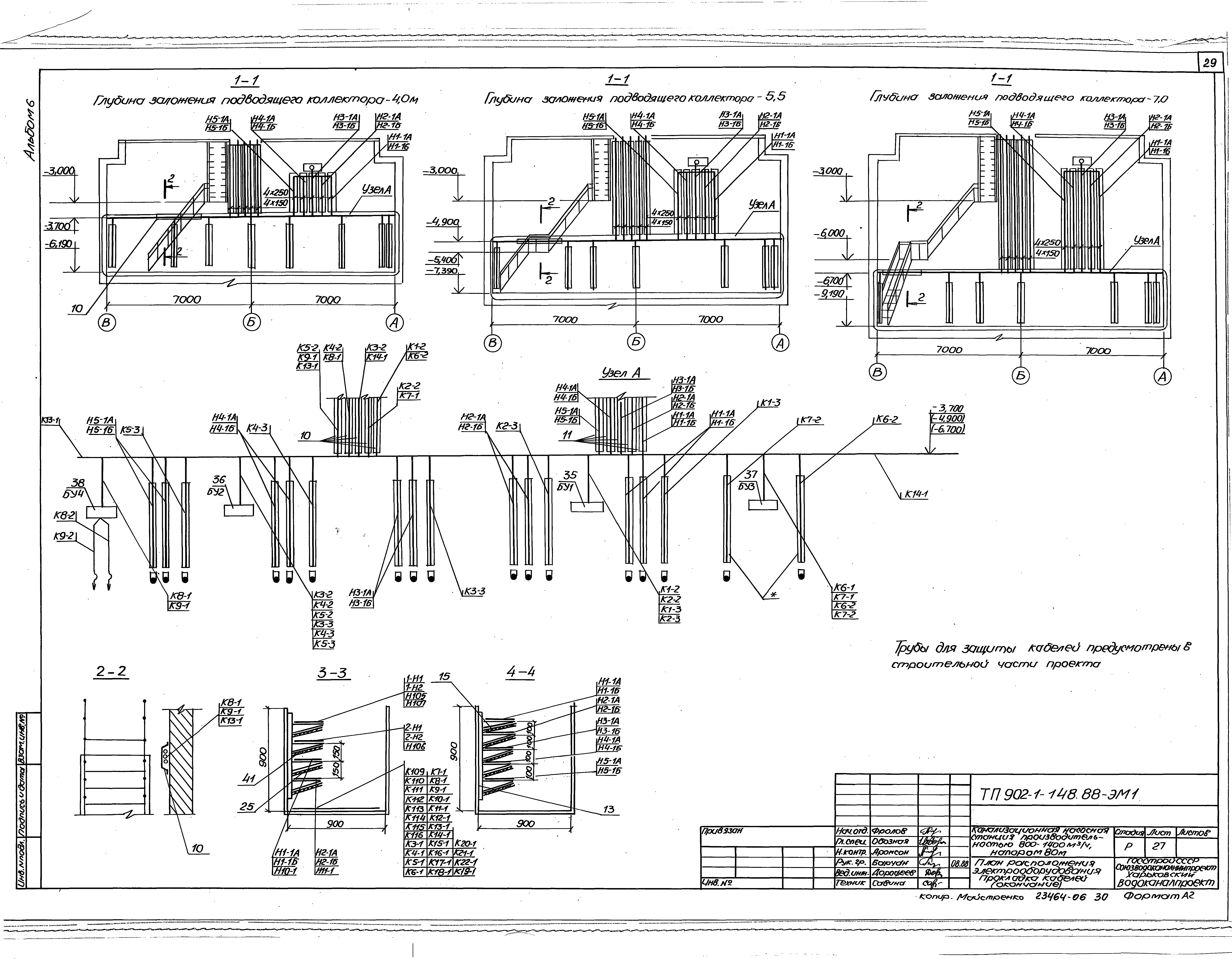
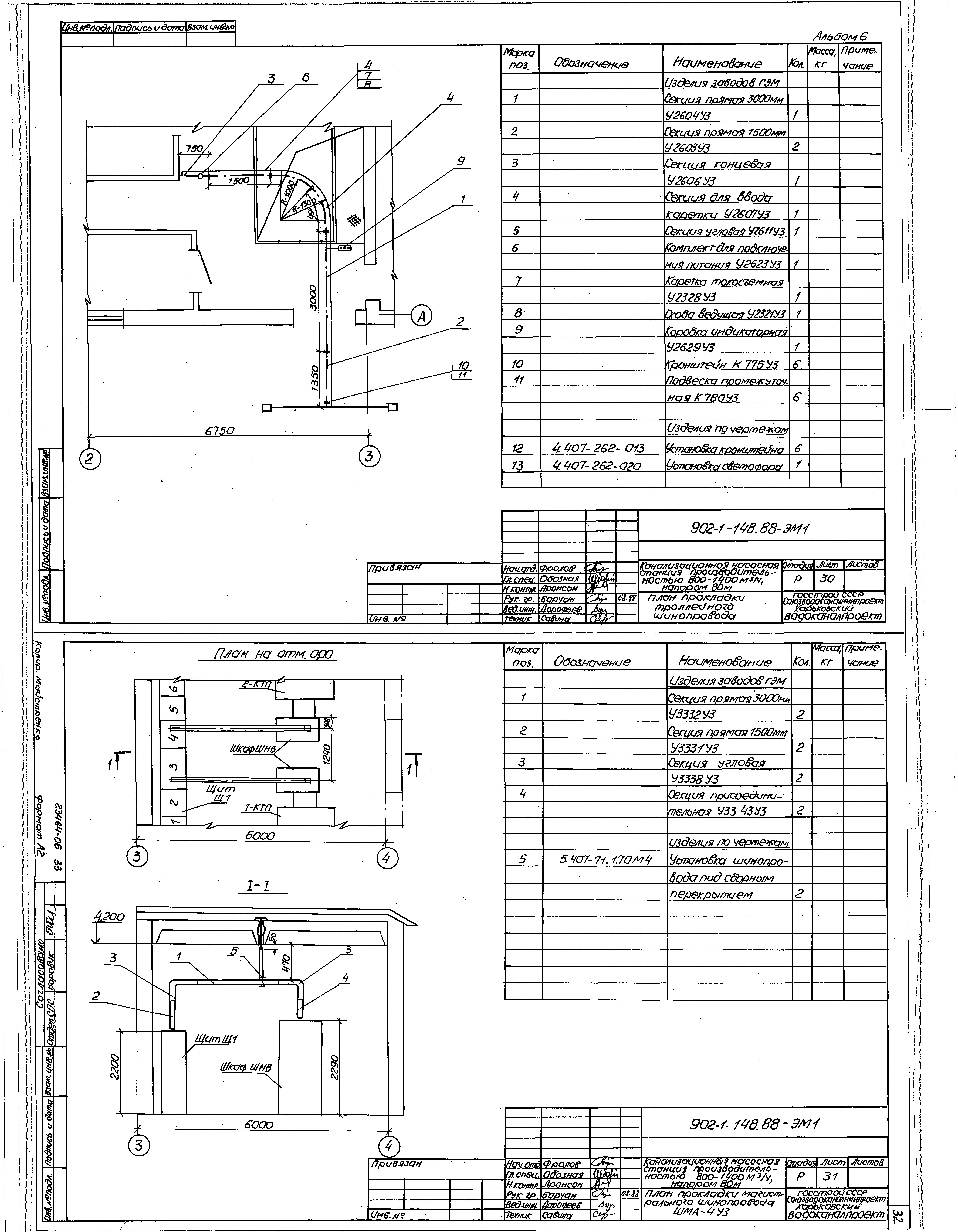
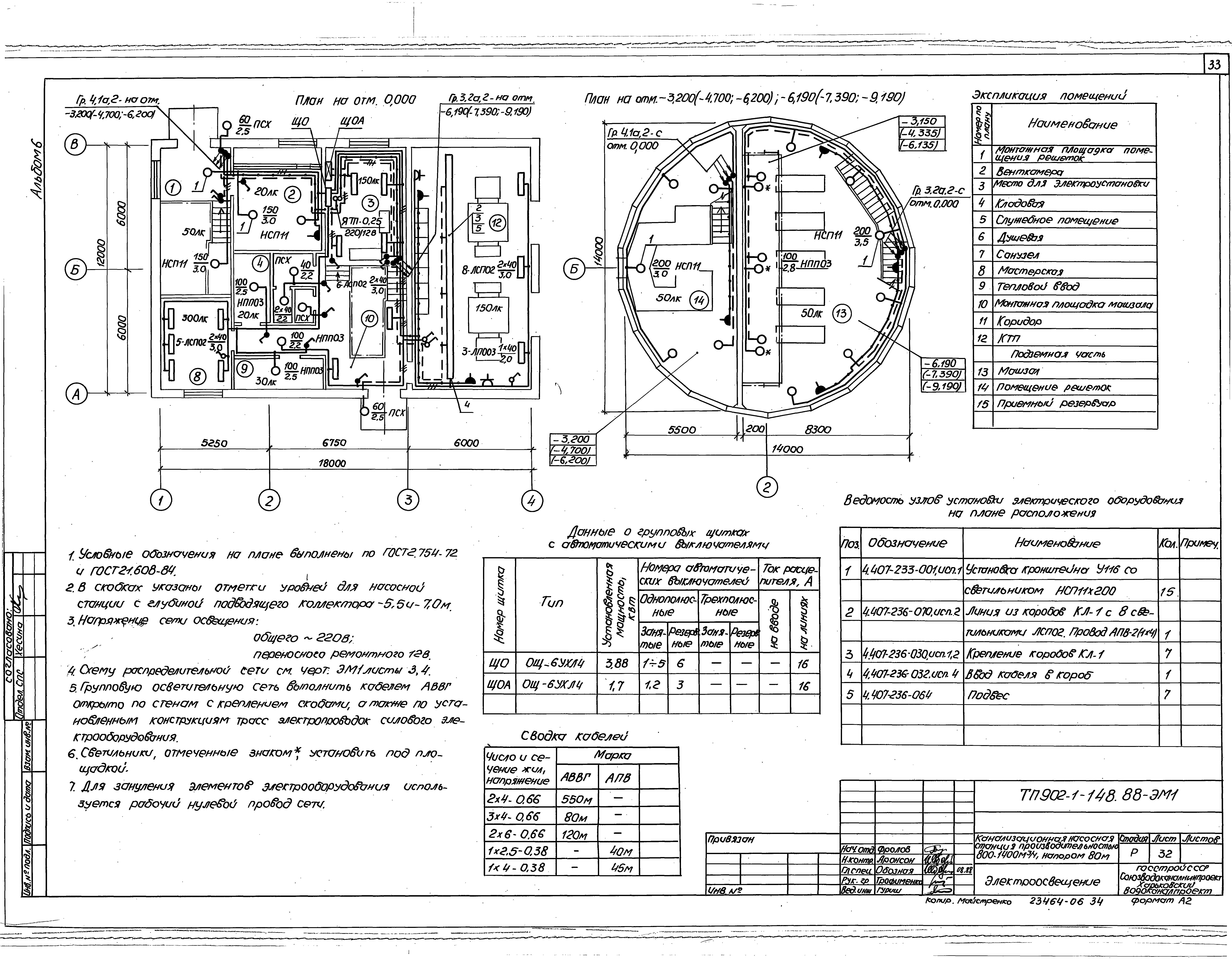
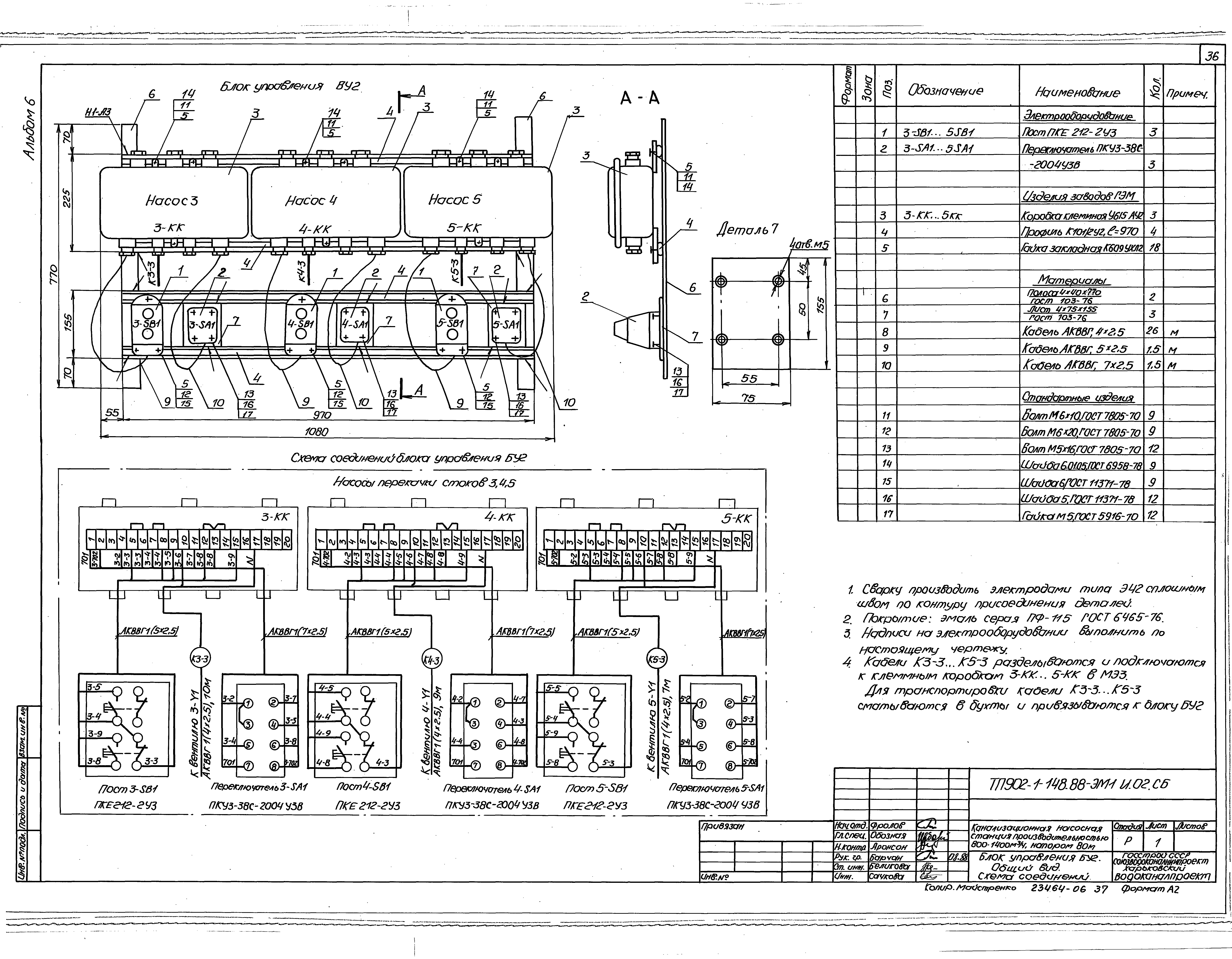
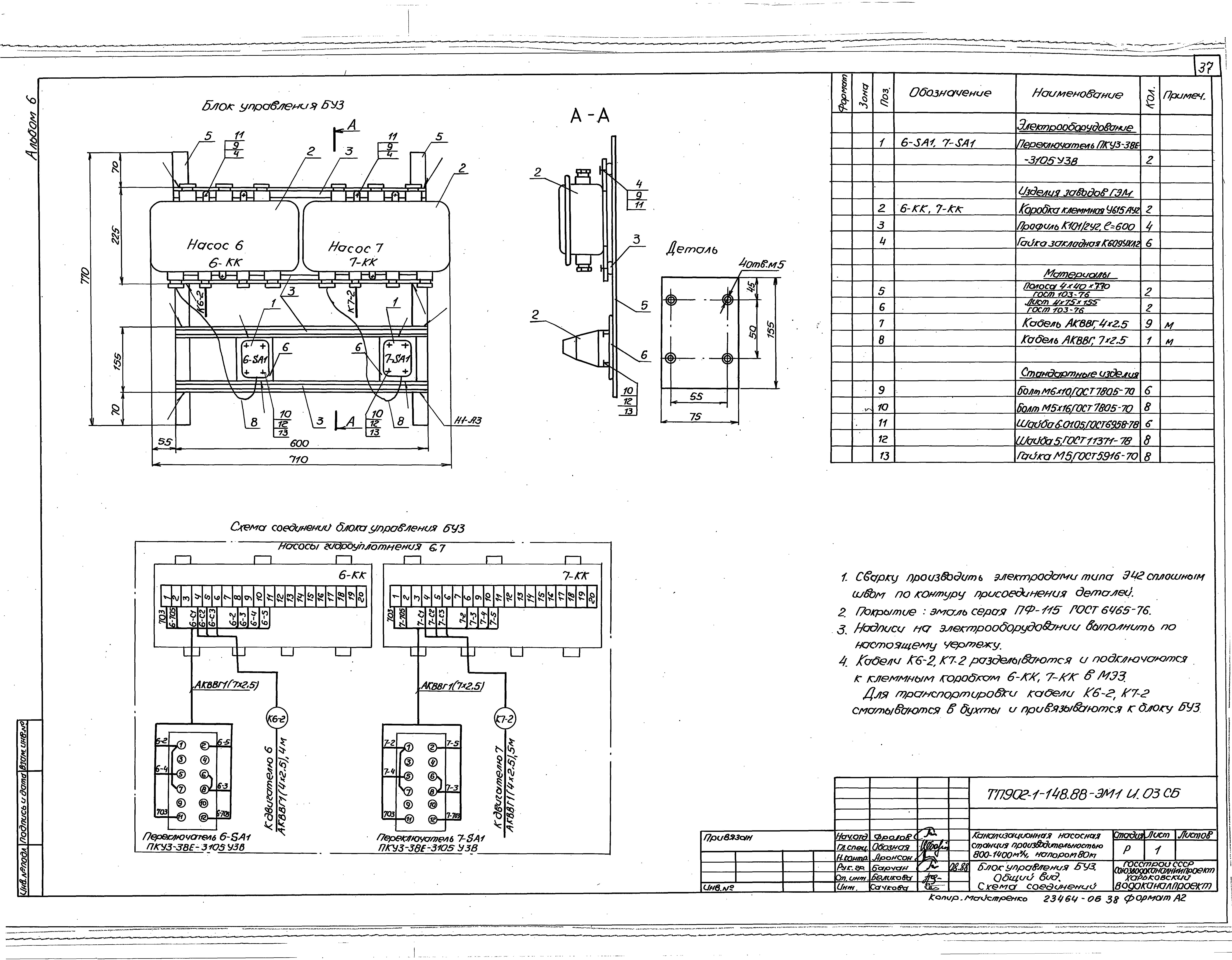
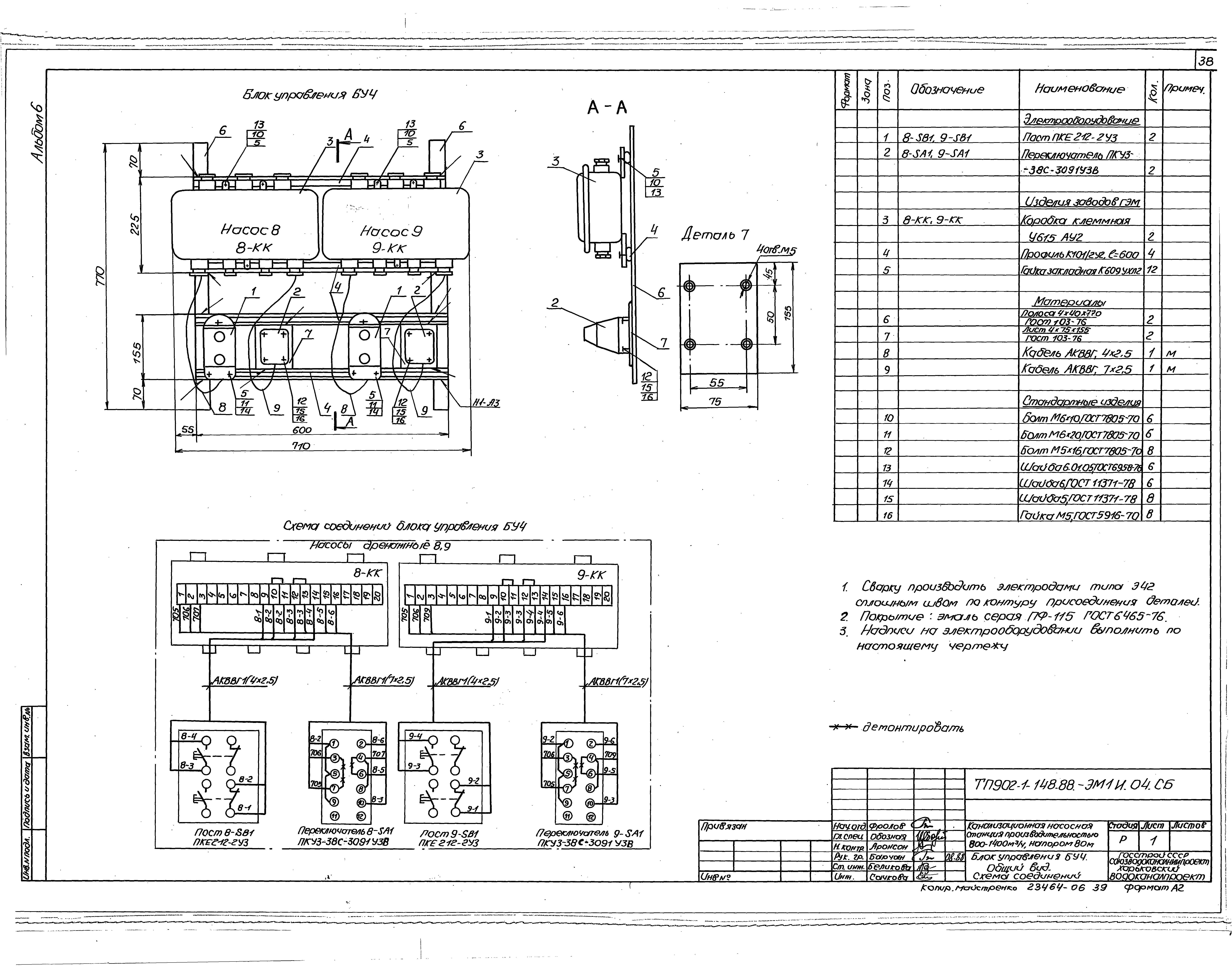
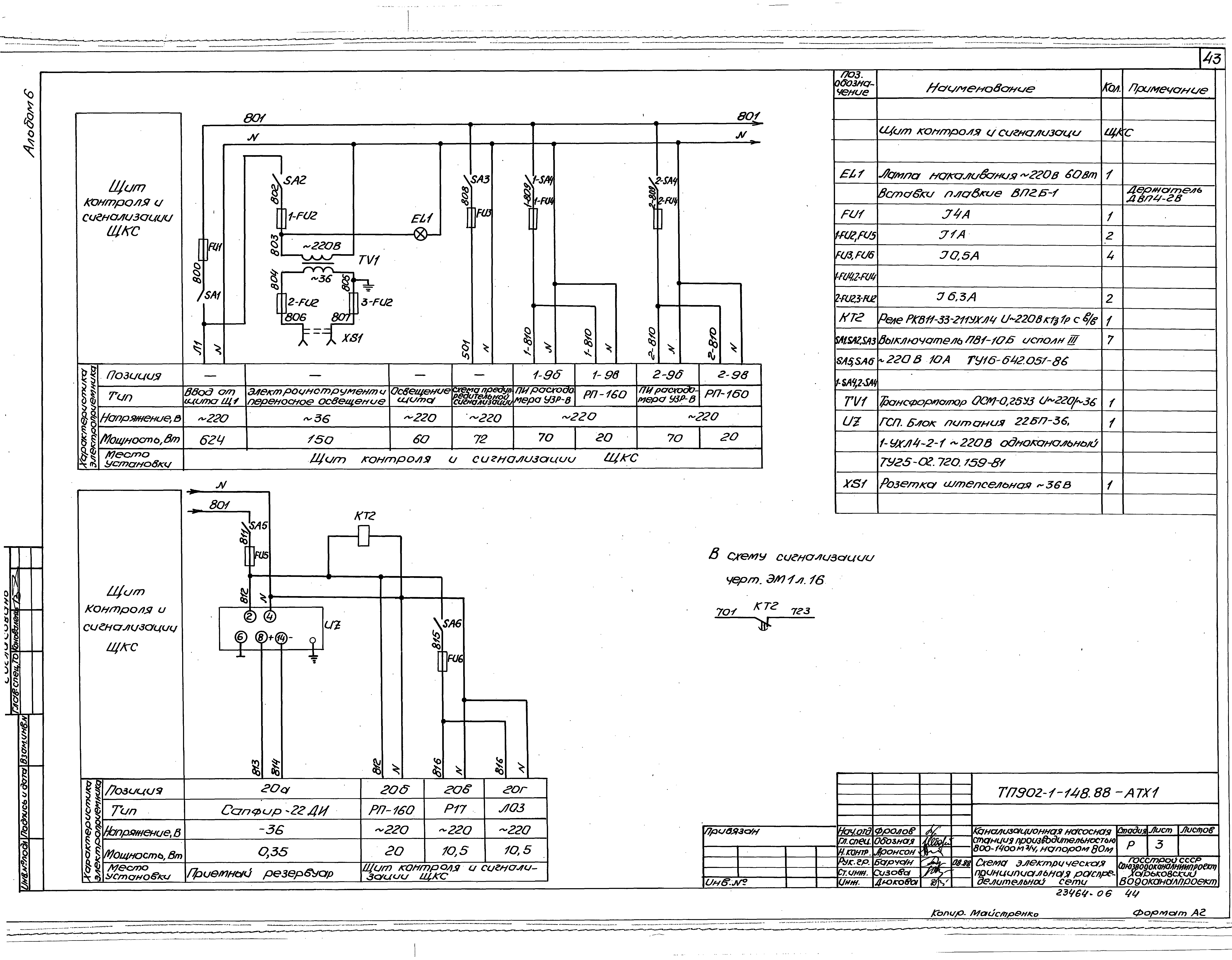
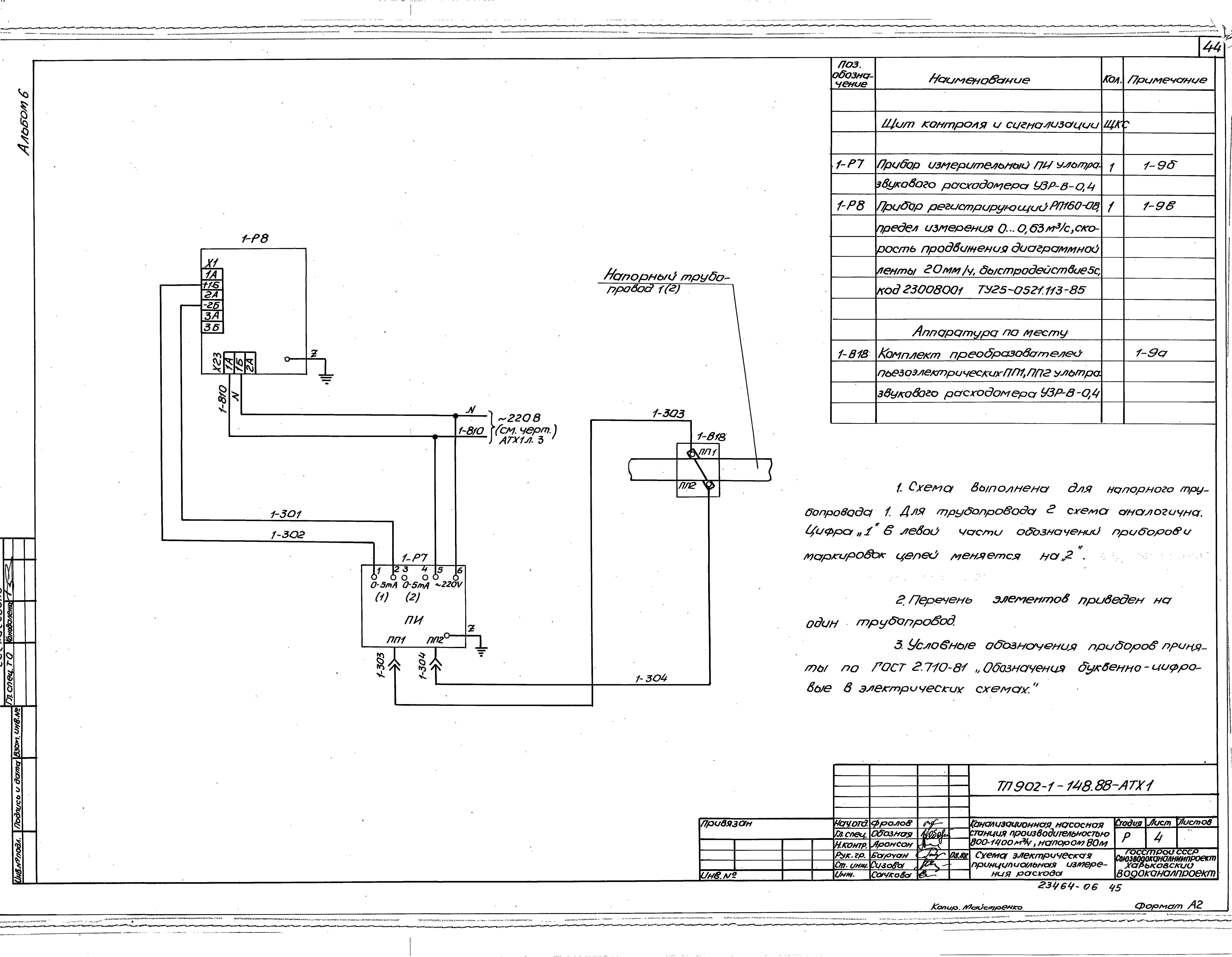
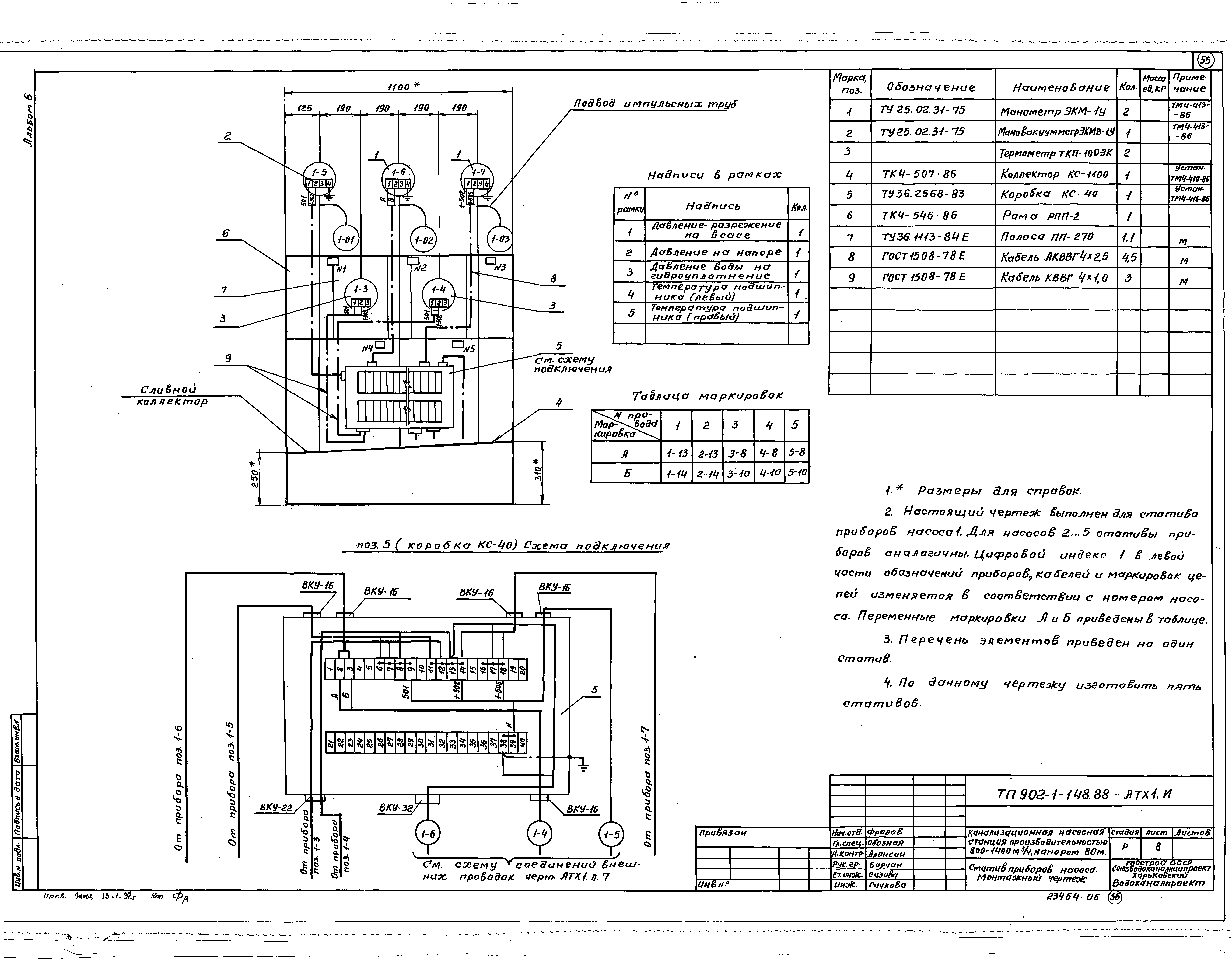
| Оглавление: | Основной комплект марки ЭМ1 Общие данные Схема электрическая принципиальная однолинейная распределительной сети ~380/220 В Схемы электрические принципиальные переключения III секции, АВР оперативного тока Схема электрическая принципиальная управления приводами 1, 2 насосов перекачки стоков Схема электрическая принципиальная управления приводами 3, 4, 5 насосов перекачки стоков Схема электрическая принципиальная управления насосами гидроуплотнения Схема электрическая принципиальная управления дренажными насосами и решетками дробилками Схема электрическая принципиальная управления задвижкой на подводящем коллекторе Схема электрическая принципиальная управления задвимжками на напорных трубопроводах Схема электрическая принципиальная управления вентиляторами Схема электрическая принципиальная контроля уровней Схема электрическая принципиальная аварийно-технологической сигнализации Схема подключения электрооборудования Схема подключения щита Щ1. Панель 2 Схема подключения шкафа ШУС Кабельный журнал План расположения электрооборудования. Прокладка кабелей План расположения электрооборудования. Прокладка кабелей. Спецификация Зазаемление и зануление. План прокладки троллейного шинопровода План прокладки магистрального шинопровода ШМА-4У3 Электроосвещение Задание МЭЗ марки ЭМ1.И Ведомость чертежей задания МЭЗ Ведомость электромонтажных конструкций, подлежащих изготовлению в МЭЗ Ведомость изделий и материалов для изготовления электромонтажных конструкций в МЭЗ Блок управления БУ1. Общий вид. Схема соединений Блок управления БУ2. Общий вид. Схема соединений Блок управления БУ3. Общий вид. Схема соединений Блок управления БУ4. Общий вид. Схема соединений Опросные листы для заказа комплектных трансформаторных подстанций Опросный лист для заказа комплектного устройства ПЧТ-1 Основной комплект марки АТХ1 Общие данные Схема автоматизации Схема электрическая принципиальная распределительной сети Схема электрическая принципиальная измерения расхода Схема электрическая принципиальная регулирования уровня в приемном резервуаре Схема электрическая принципиальная предупредительной сигнализации Схема соединений внешних проводок Схема подключения внешних проводок План расположения Задание МЗУ марки АТХ1.И Ведомость чертежей задания МЗУ Ведомость узлов и конструкций, подлнжащих изготовлению на МЗУ Ведомость оборудования и материалов для изготовления изделий МЗУ Статив датчиков для приемного резервуара. Монтажный чертеж Статив датчиков для дренажного приямка. Монтажный чертеж Стойка статива датчиков. Монтажный чертеж Кронштейн для установки устройства ТУДЭ-1. Монтажный чертеж Статив приборов насоса. Монтажный чертеж |
| Разработан: | Харьковский Водоканалпроект |
| Утверждён: | 08.07.1986 Госстрой СССР (Государственный комитет Совета Министров СССР по делам строительства) (USSR Gosstroy 20) |























































