Скачать Серия 3.407.2-181.09 Выпуск 0. Материалы для проектированияДата актуализации: 01.01.2021
|
| Обозначение: | Серия 3.407.2-181.09 |
| Обозначение англ: | Series 3.407.2-181.09 |
| Статус: | не определен законодательством |
| Название рус.: | Выпуск 0. Материалы для проектирования |
| Дата добавления в базу: | 01.09.2013 |
| Дата актуализации: | 01.01.2021 |
| Дата введения: | 30.06.2003 |
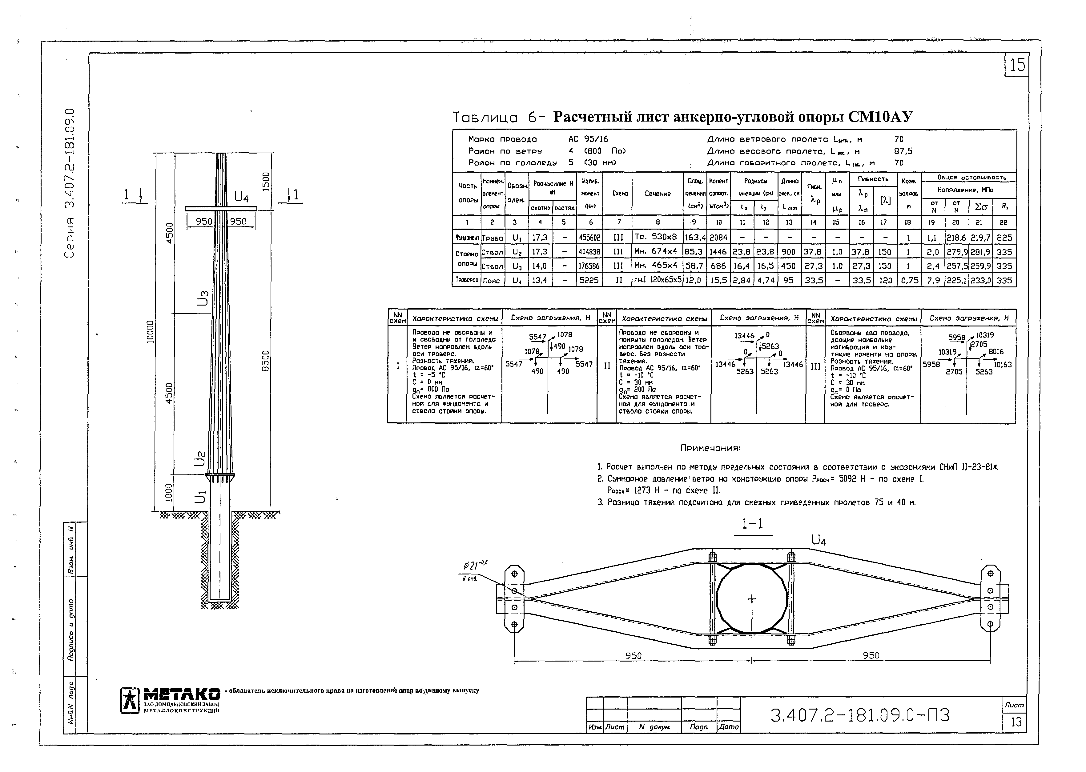
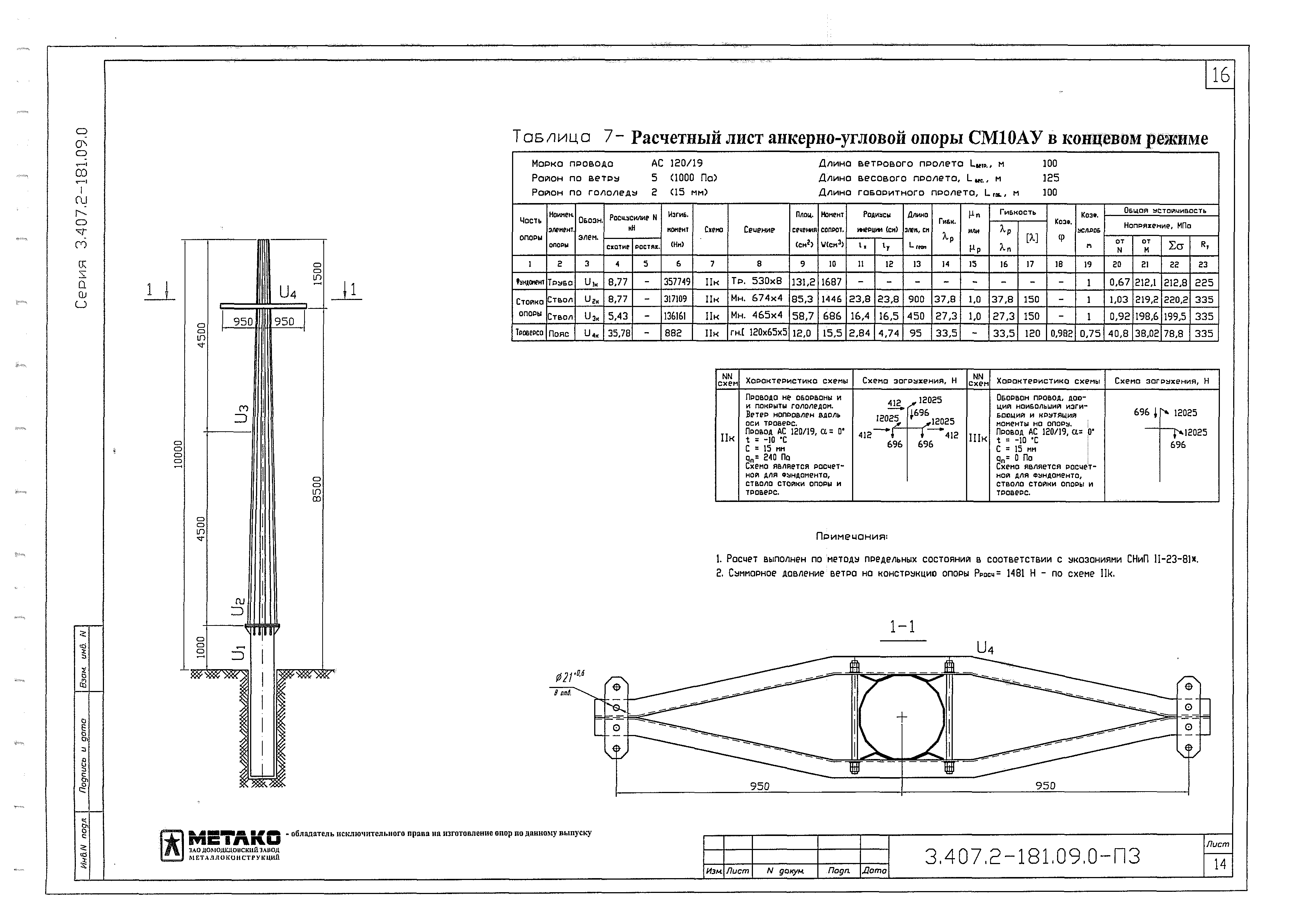
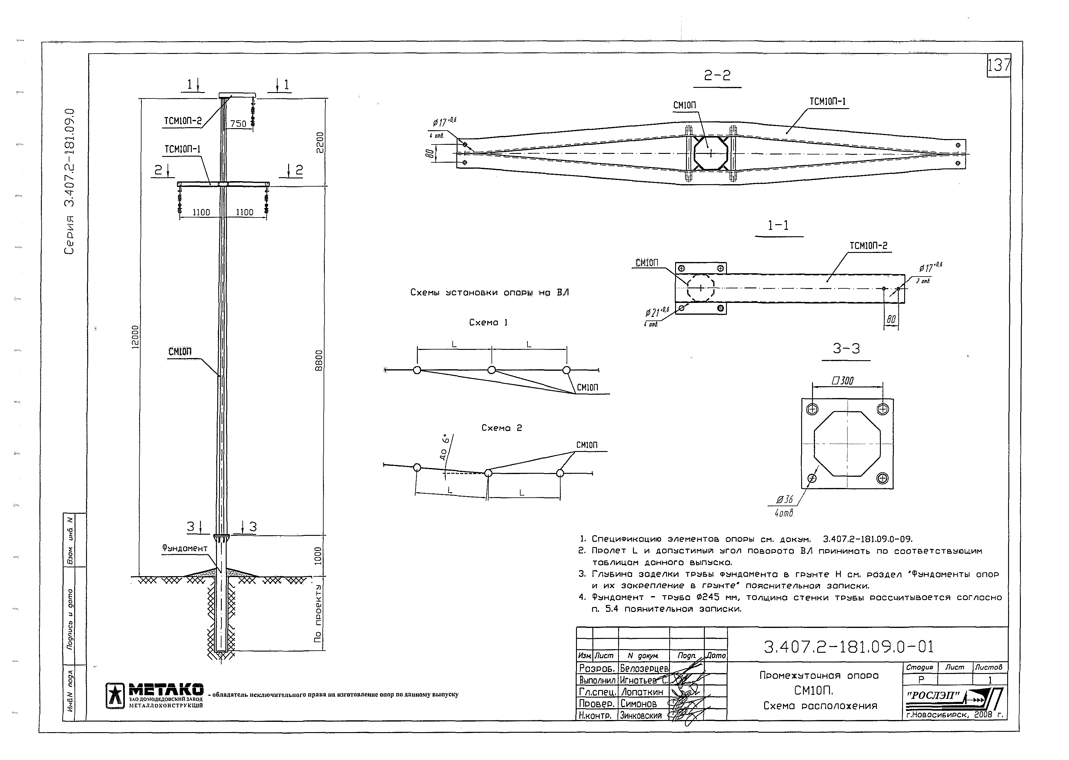
| Оглавление: | 3.407.2-181.09.0-ПЗ Пояснительная записка 3.407.2-181.09.0-01 Промежуточная опора СМ10П. Схема расположения 3.407.2-181.09.0-02 Анкерно-угловая опора СМ10АУ. Схема расположения 3.407.2-181.09.0-03 Анкерно-угловая опора СМ10АУ в концевом режиме. Схема расположения 3.407.2-181.09.0-04 Анкерная переходная опора СМ10АП. Схема расположения 3.407.2-181.09.0-05 Анкерная ответвительная опора СМ10АО. Схема расположения 3.407.2-181.09.0-06 СМ10АУ-1Р. Установка разъединителя РЛНД-10 на анкерной опоре СМ10АУ. Схема расположения 3.407.2-181.09.0-07 СМ10АУ-1Р. Установка разъединителя РЛНД-10 на анкерной опоре СМ10АУ в концевом режиме. Схема расположения 3.407.2-181.09.0-08 СМ10АУ-1М. Установка кабельной муфты и разрядника на анкерной опоре СМ10АУ в концевом режиме. Схема расположения 3.407.2-181.09.0-09 Спецификация элементов опор 3.407.2-181.09.0-10 Спецификация элементов установки электрооборудования на опорах 3.407.2-181.09.0-11 Натяжная подвеска привода АС и СИП-3(SAX) с изоляторами типа ПС70Е 3.407.2-181.09.0-12 Натяжная подвеска провода АС и СИП-3(SAX) с полимерным изолятором ЛК70/10 3.407.2-181.09.0-13 Натяжная подвеска провода АС и СИП-3(SAX) с полимерным изолятором ЛК70/10 для переходной опоры СМ10АП 3.407.2-181.09.0-14 Поддерживающая подвеска провода АС и СИП-3(SAX) с изоляторами типа ПС70Е и ЛК70/10 3.407.2-181.09.0-15 Поддерживающая подвеска провода АС и СИП-3(SAX) с изоляторами типа ЛК70/10 3.407.2-181.09.0-16 Установка разрядника РДИП-10 на поддерживающей подвеске с изоляторами типа ПС70Е. Привод СИП-3(SAX) 3.407.2-181.09.0-17 Установка разрядника РДИП-10 на поддерживающей подвеске с изоляторами типа ЛК70/10. Привод СИП-3(SAX) |
| Разработан: | ЗАО ДЗМК МЕТАКО ЗАО ВНПО РОСЛЭП |
| Утверждён: | 20.03.2009 ЗАО ДЗМК МЕТАКО (20) |
| Издан: | Информационный бюллетень о нормативной, методической и типовой проектной документации ФГУП ЦПП (2009 г. (8)) |


























































































































































