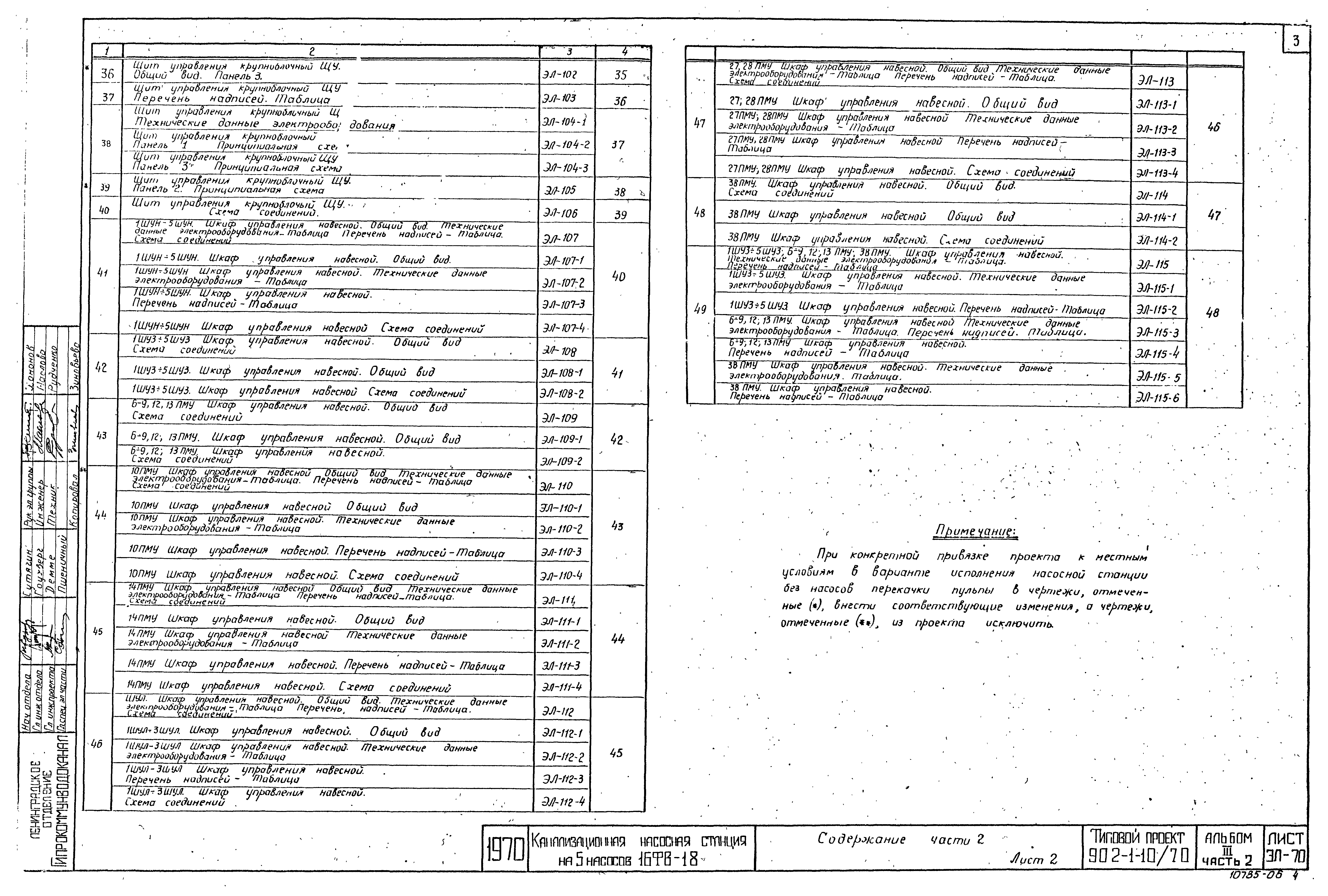
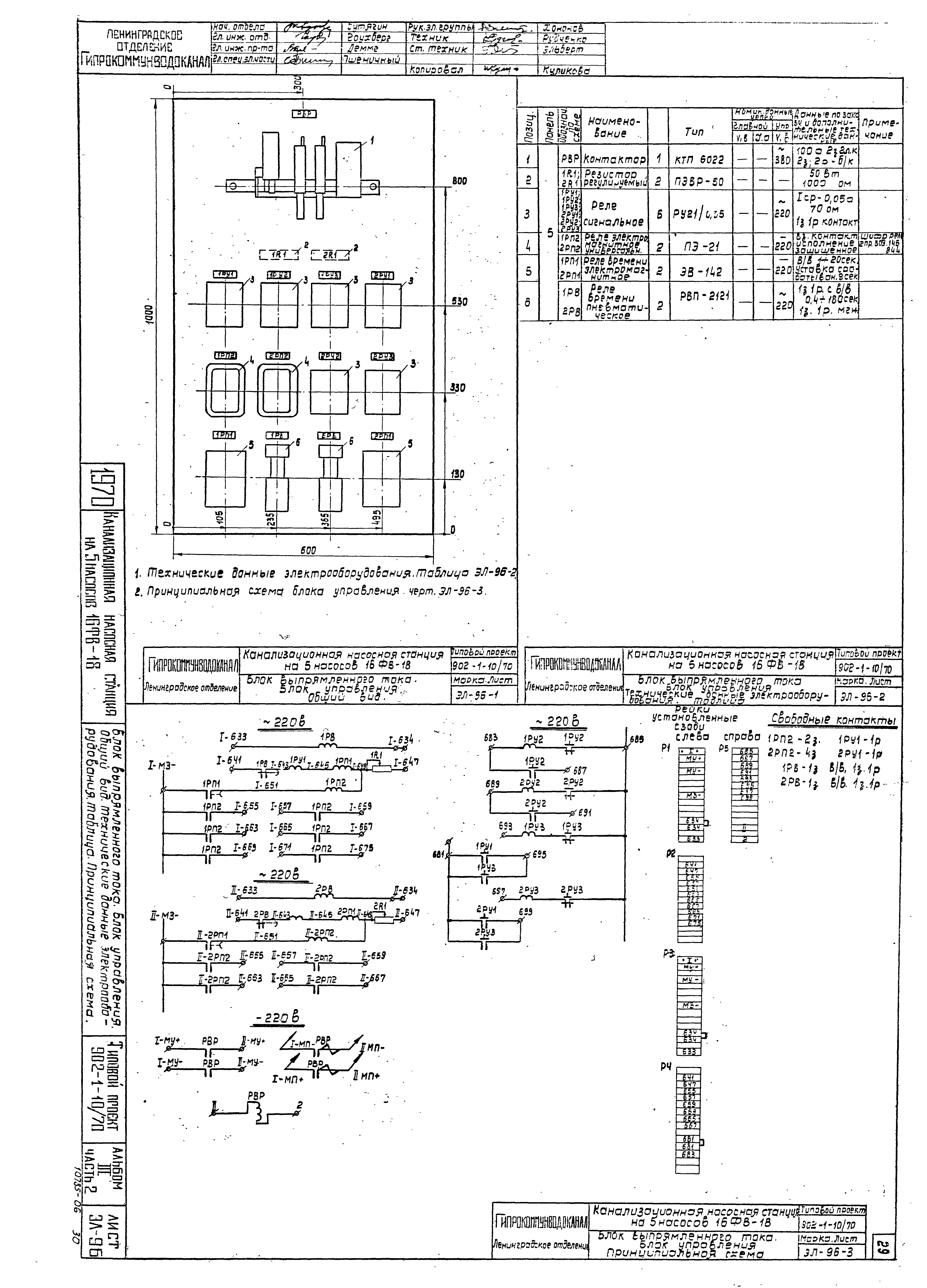
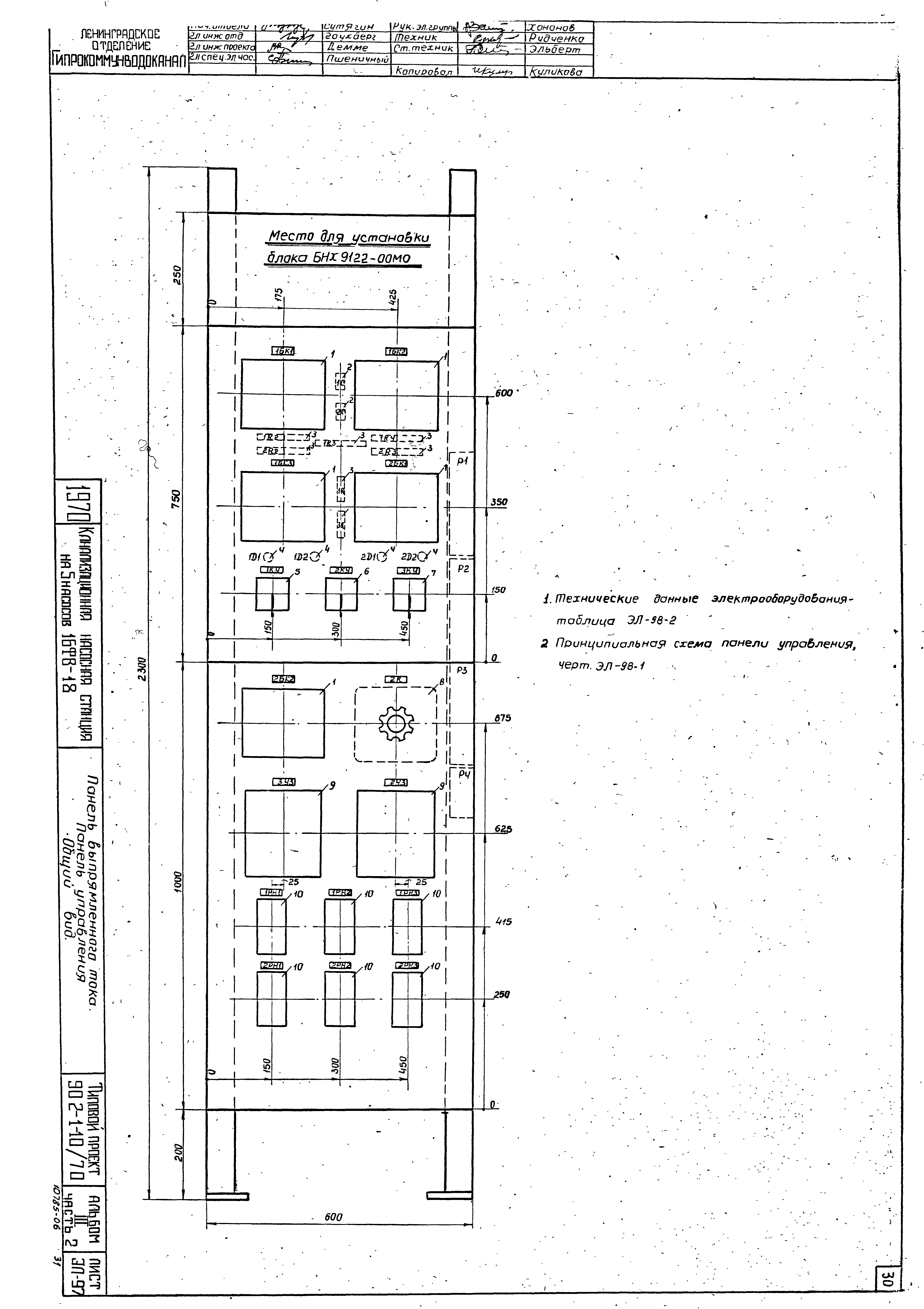
Скачать Типовой проект 902-1-10/70 Альбом III. Часть 2. Электротехническое оборудование, автоматика и КИП. Чертежи для завода-изготовителяДата актуализации: 01.01.2021 Типовой проект 902-1-10/70
Альбом III. Часть 2. Электротехническое оборудование, автоматика и КИП. Чертежи для завода-изготовителя| Обозначение: | Типовой проект 902-1-10/70 | | Обозначение англ: | 902-1-10/70 | | Статус: | не действует | | Название рус.: | Альбом III. Часть 2. Электротехническое оборудование, автоматика и КИП. Чертежи для завода-изготовителя | | Дата добавления в базу: | 01.09.2013 | | Дата актуализации: | 01.01.2021 | | Дата окончания срока действия: | 01.01.1986 | | Разработан: | Ленинградское отделение института Гипрокоммунводоканал
| | Утверждён: | 21.05.1971 Министерство коммунального хозяйства РСФСР (4тд)
| | Чем заменён: | |
                                               
|