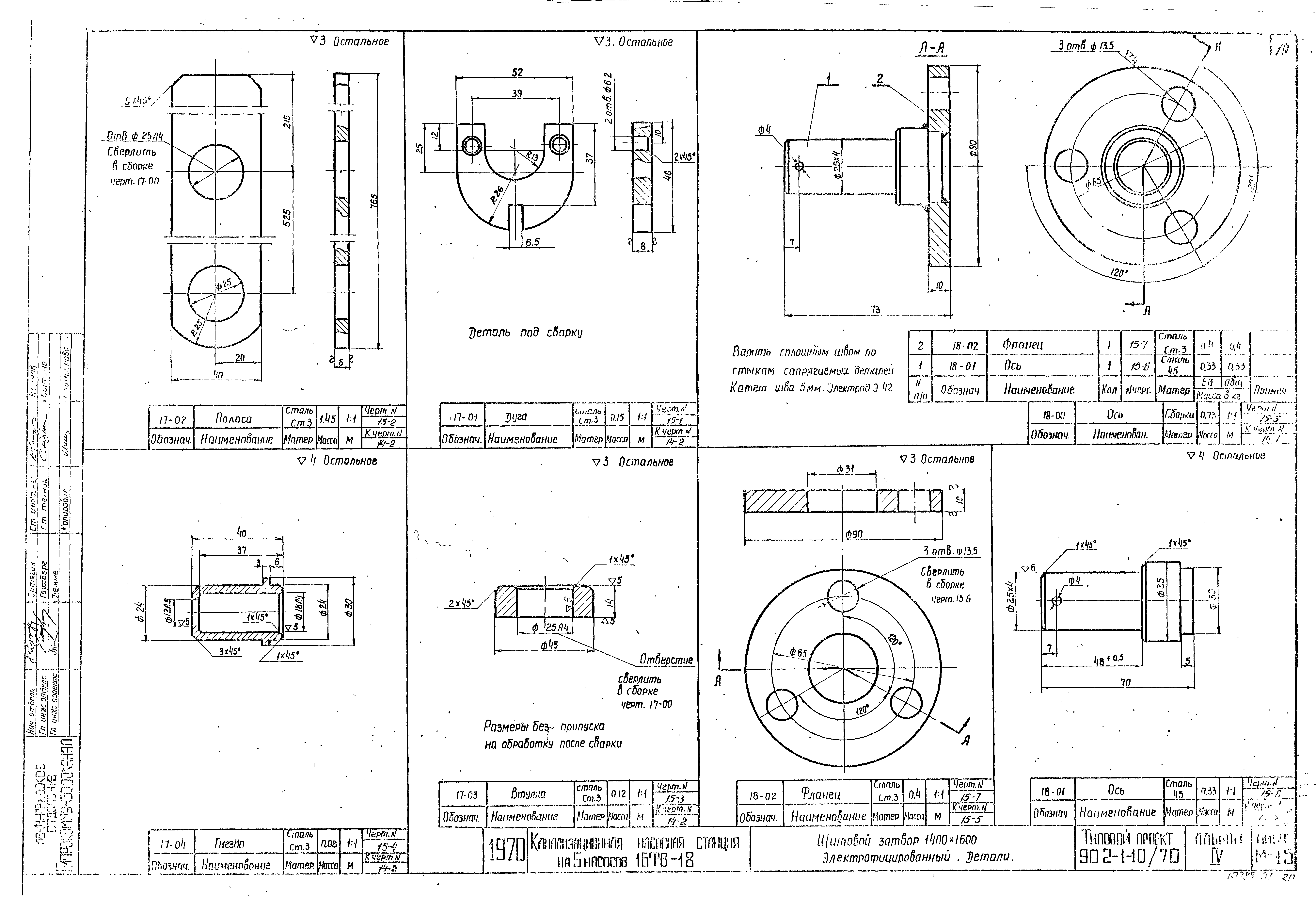
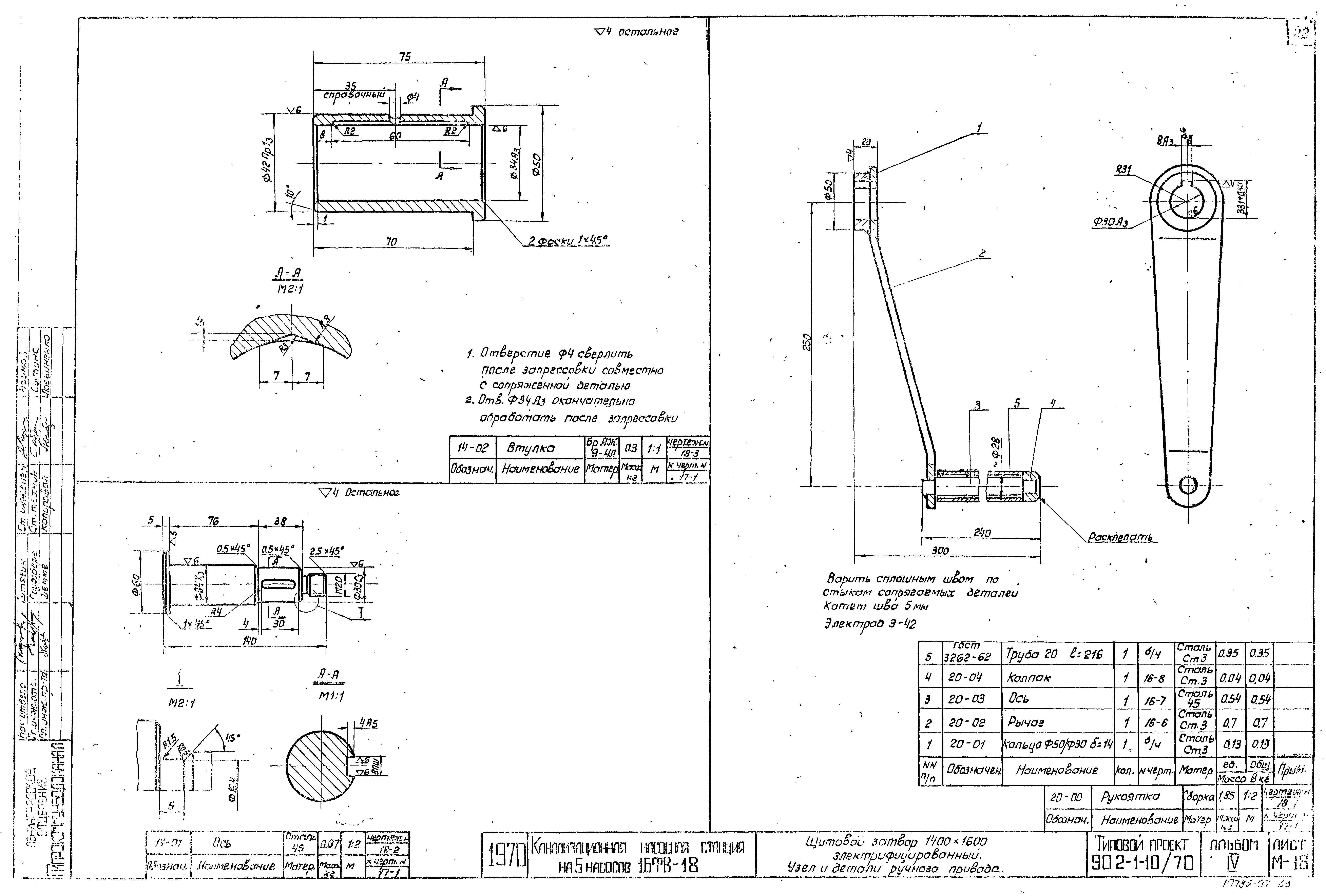
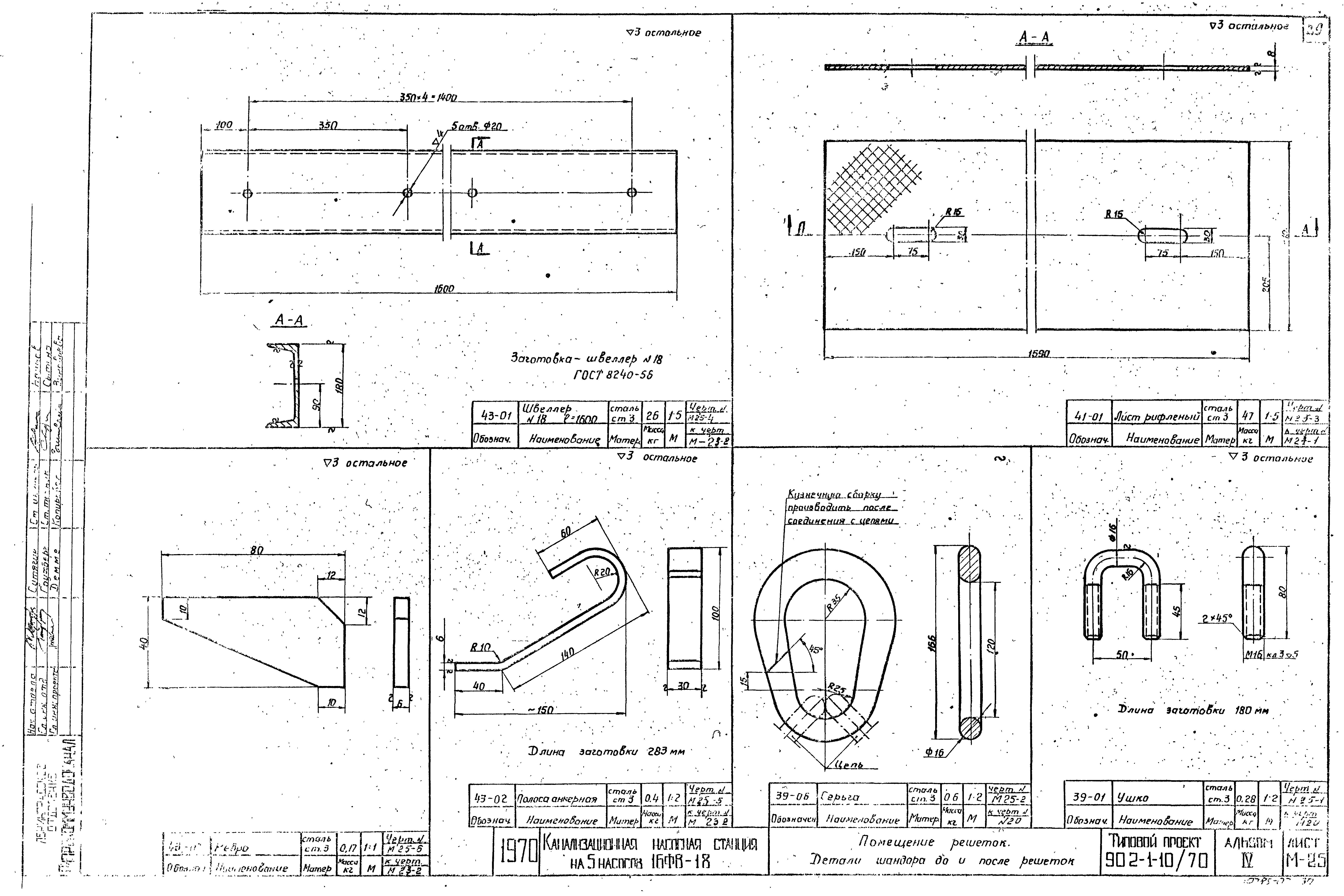
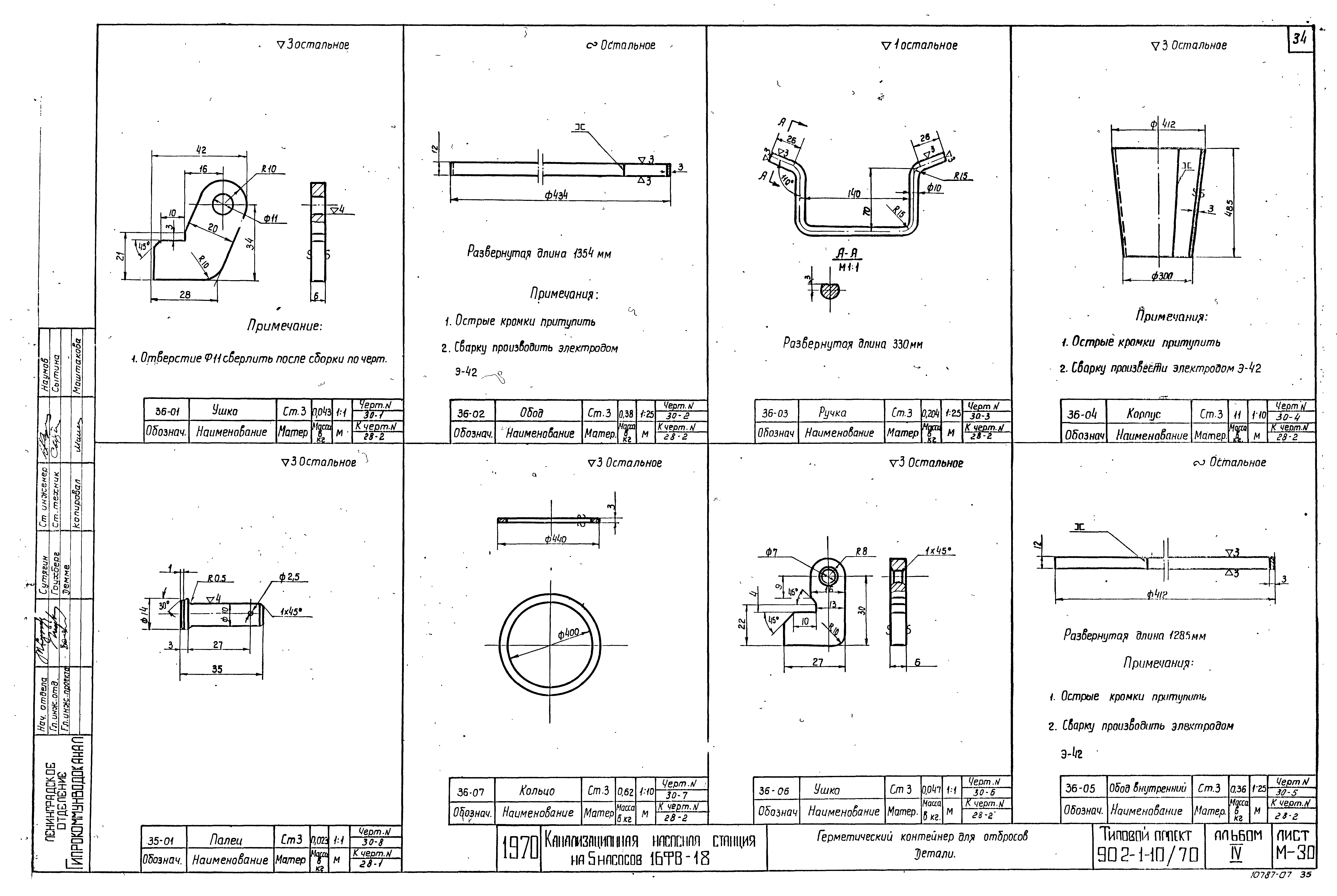
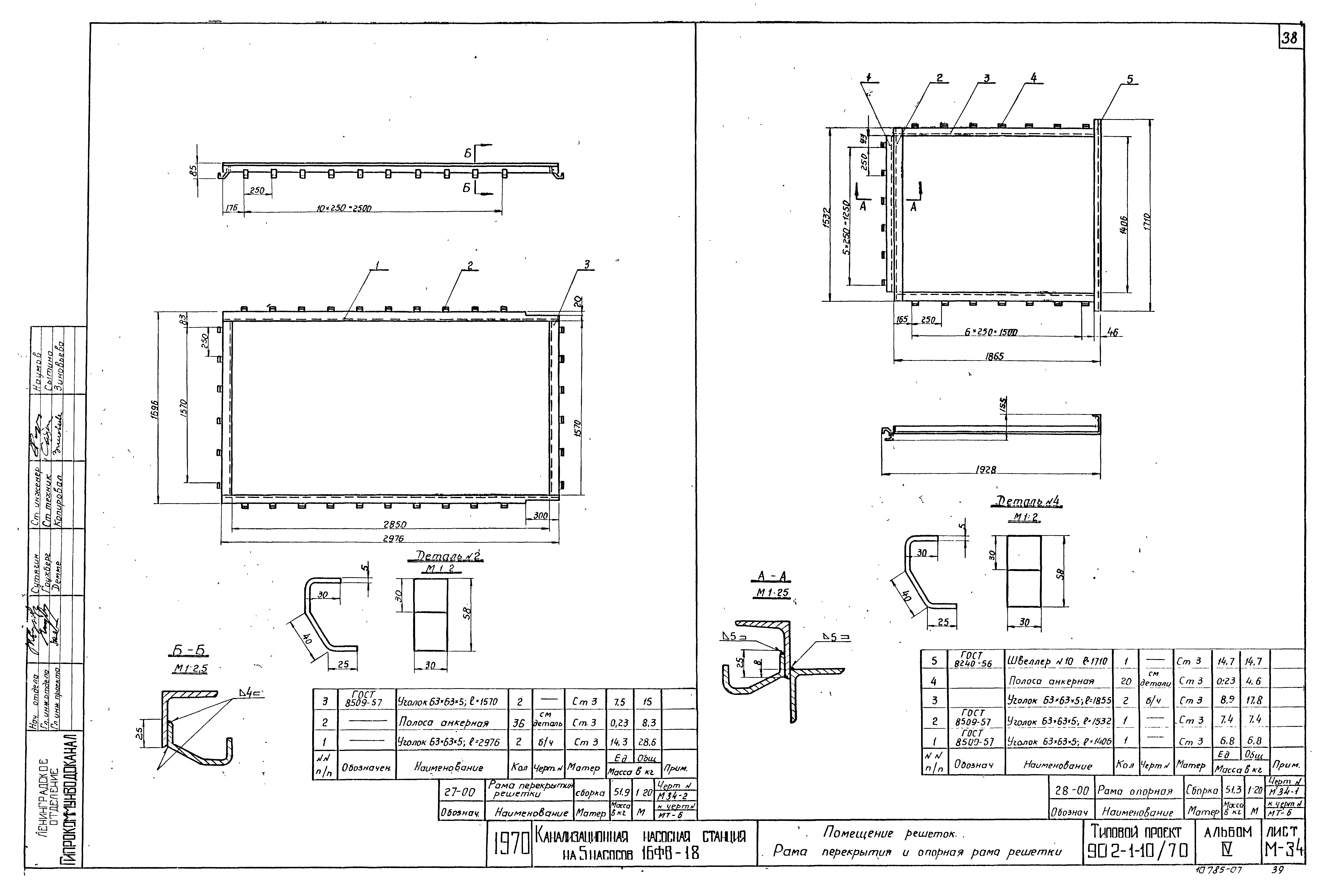
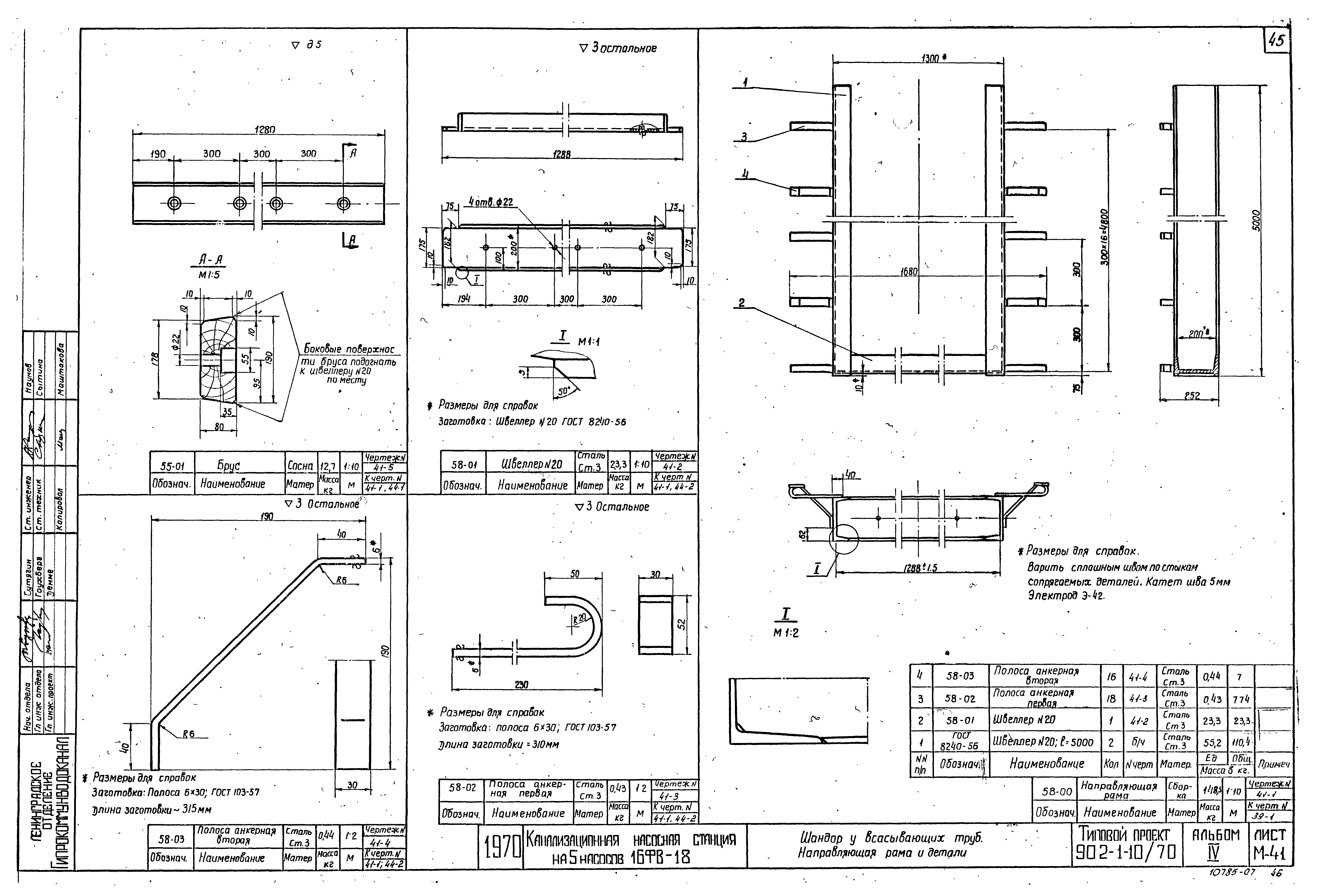
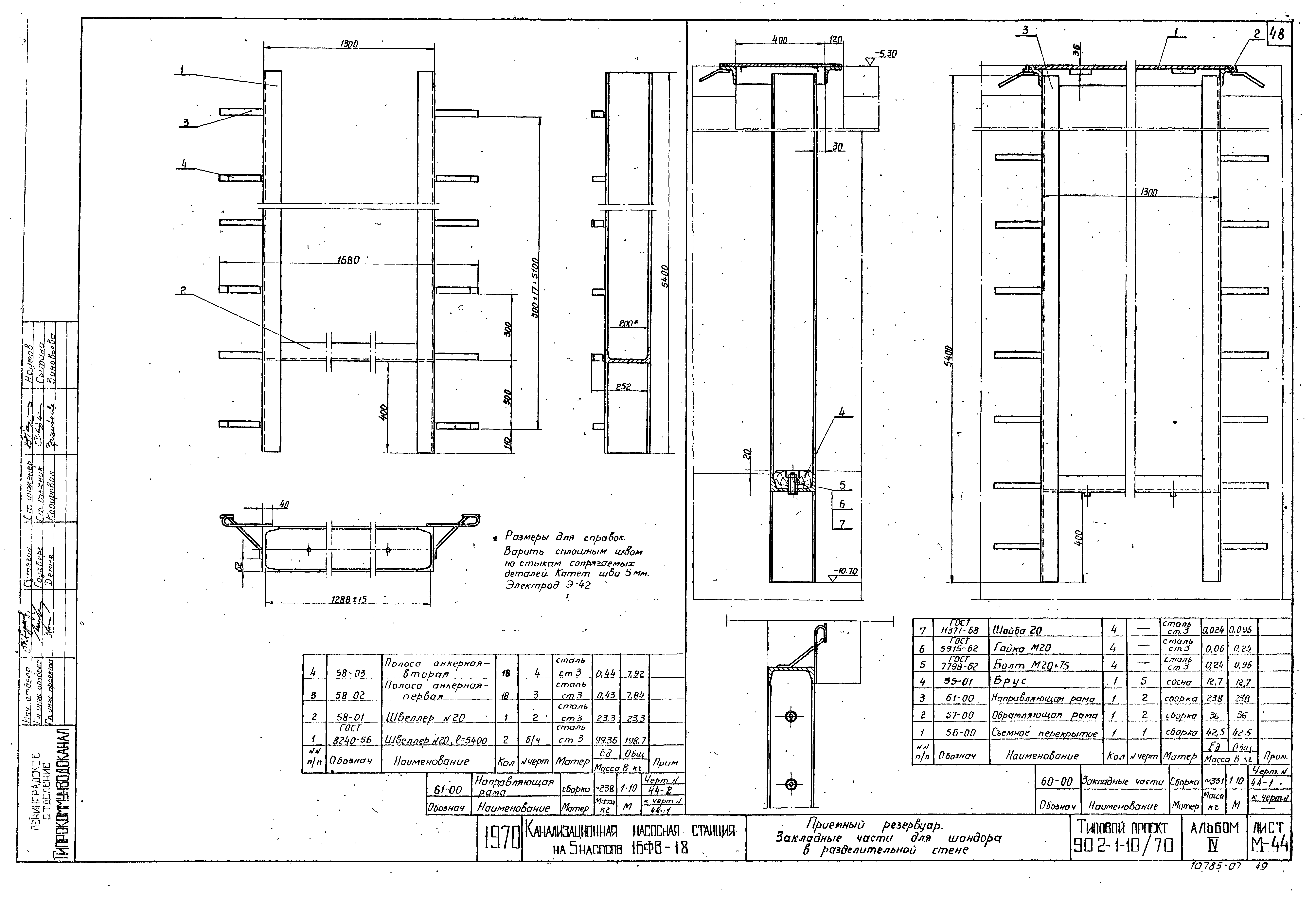
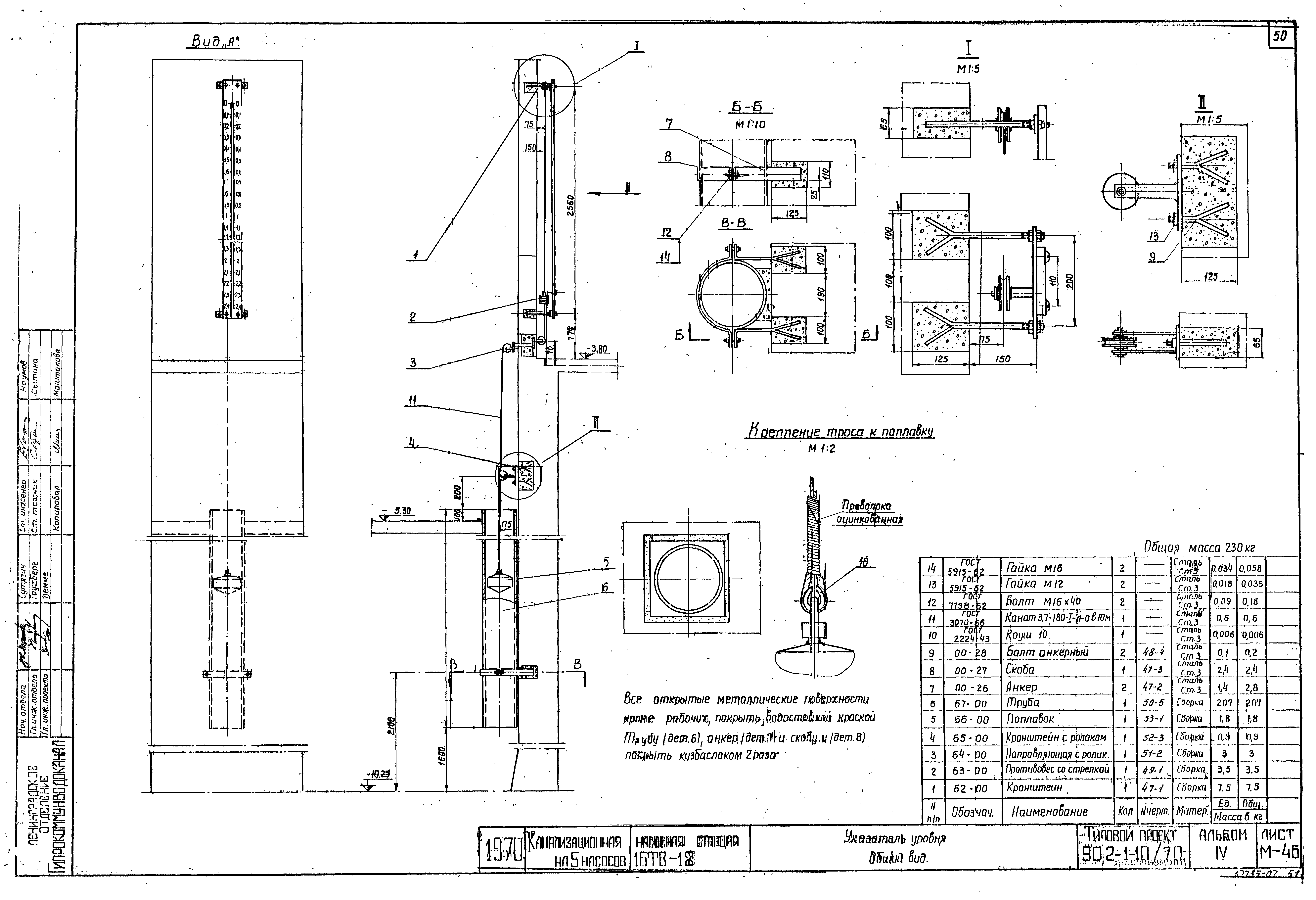
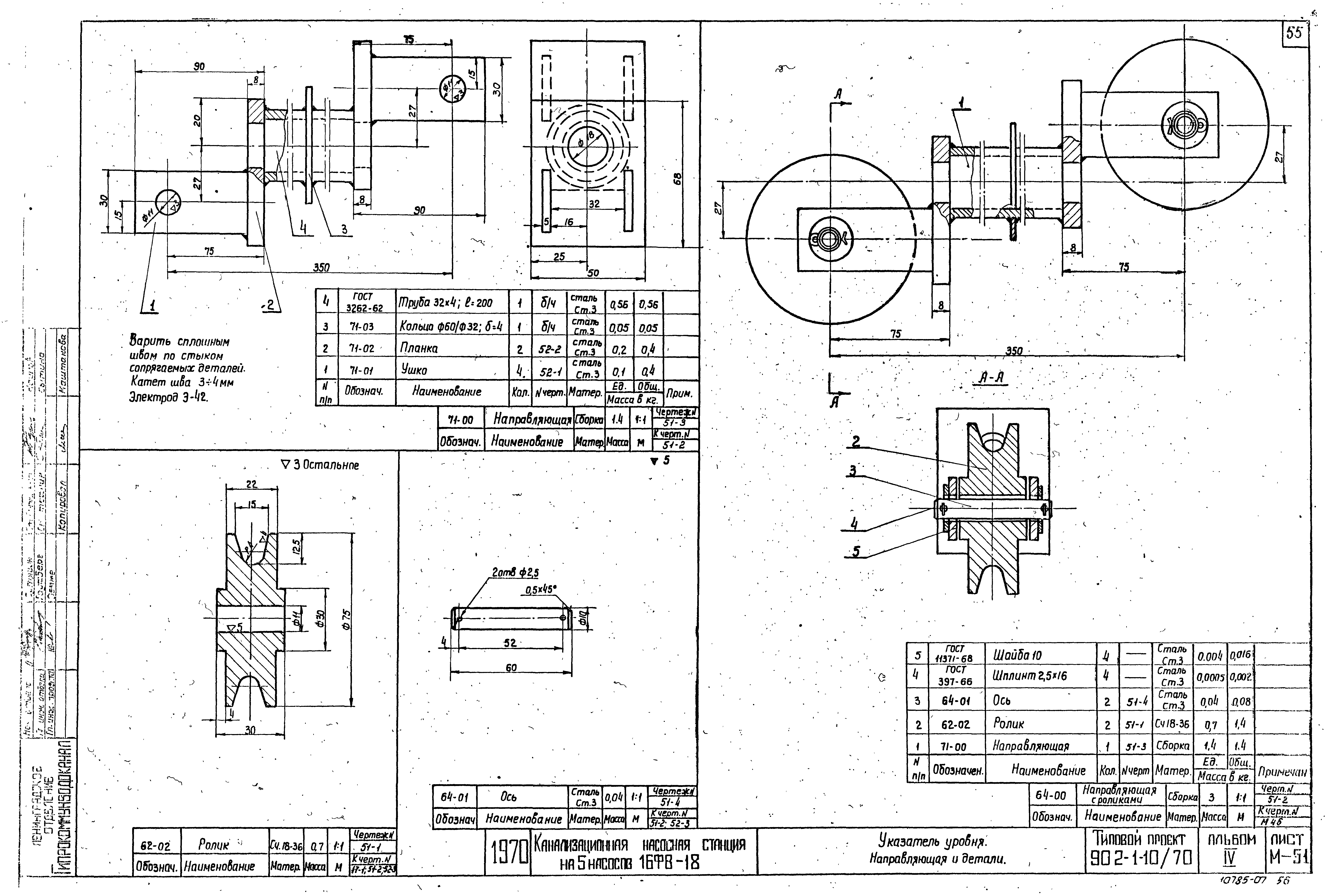
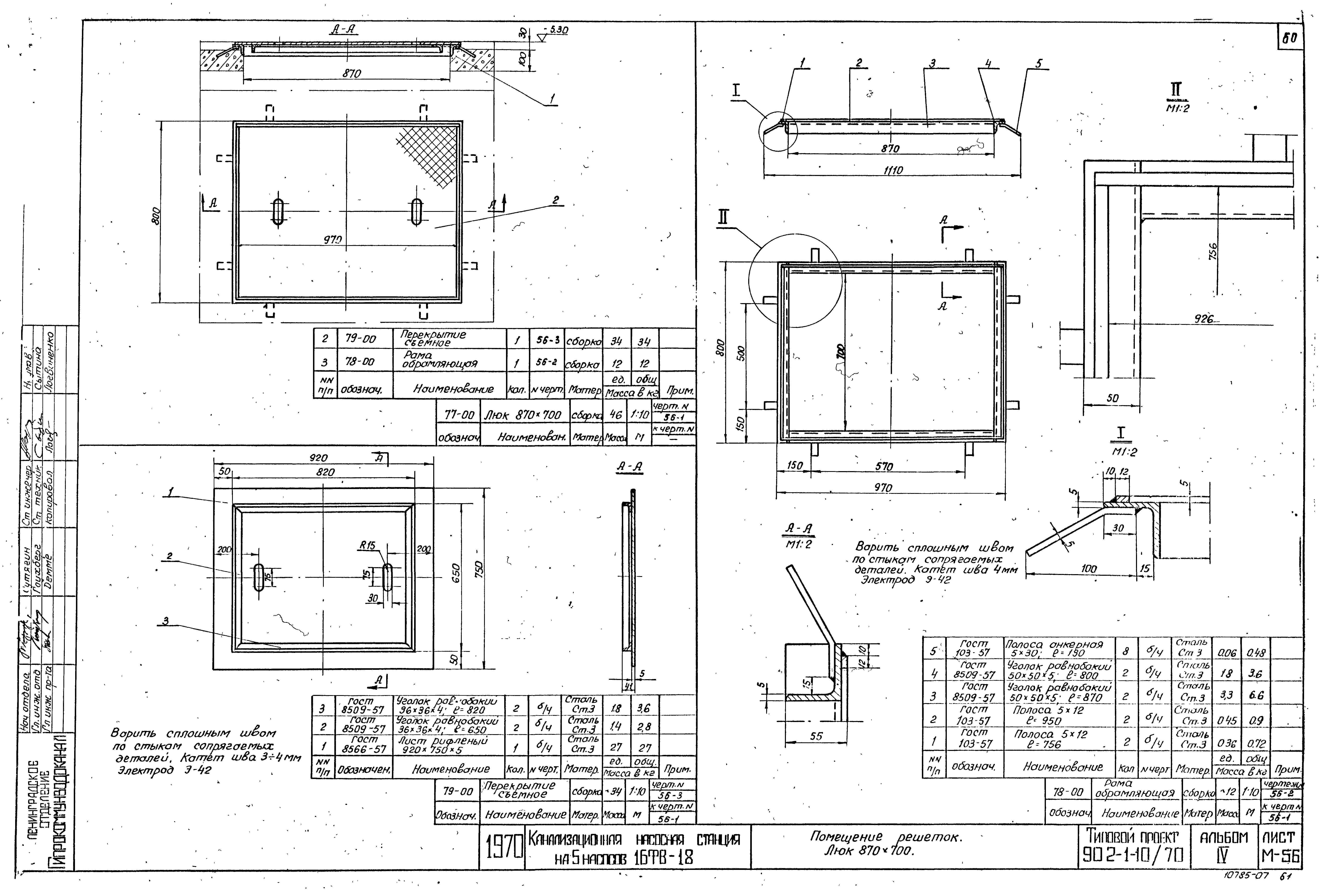
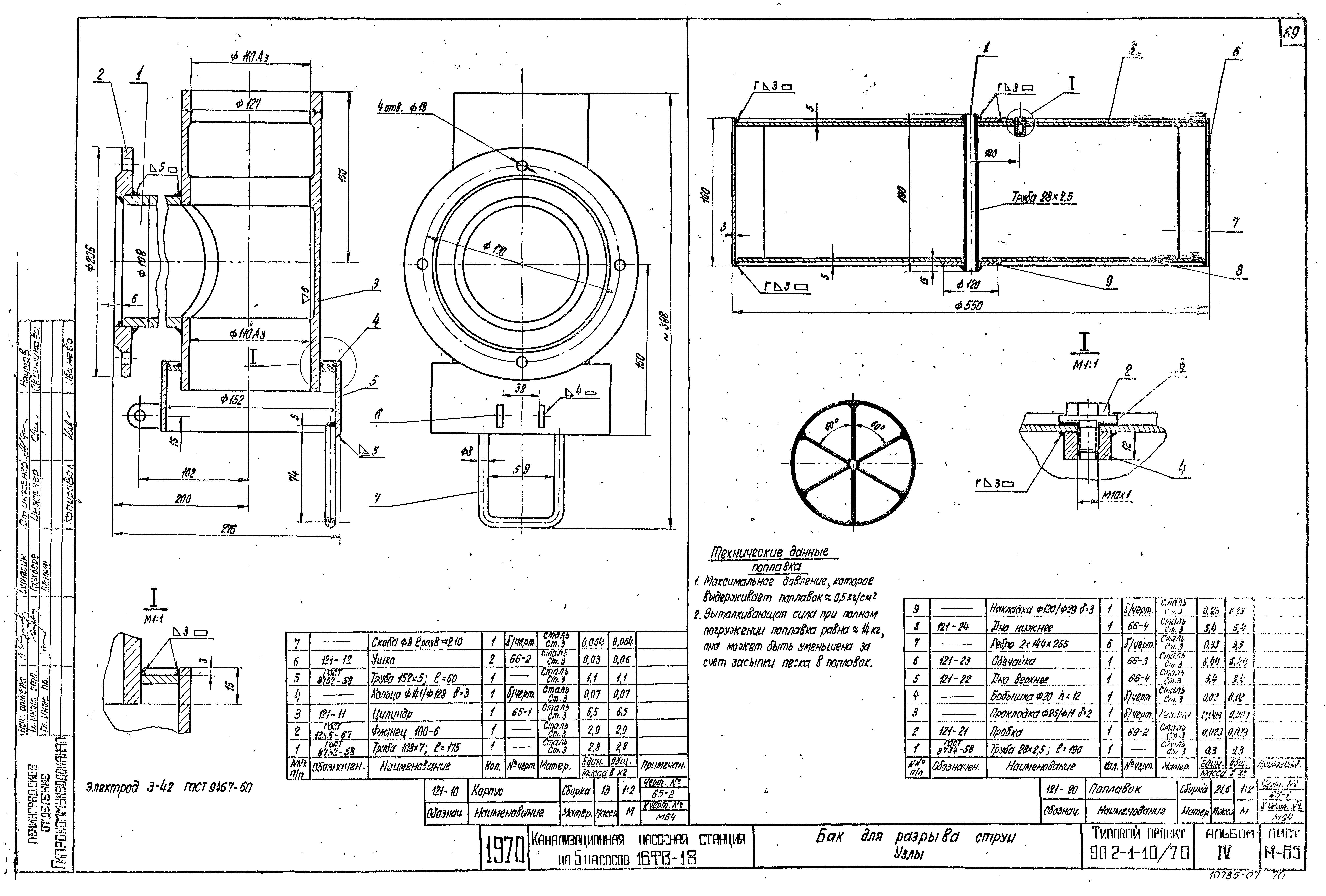
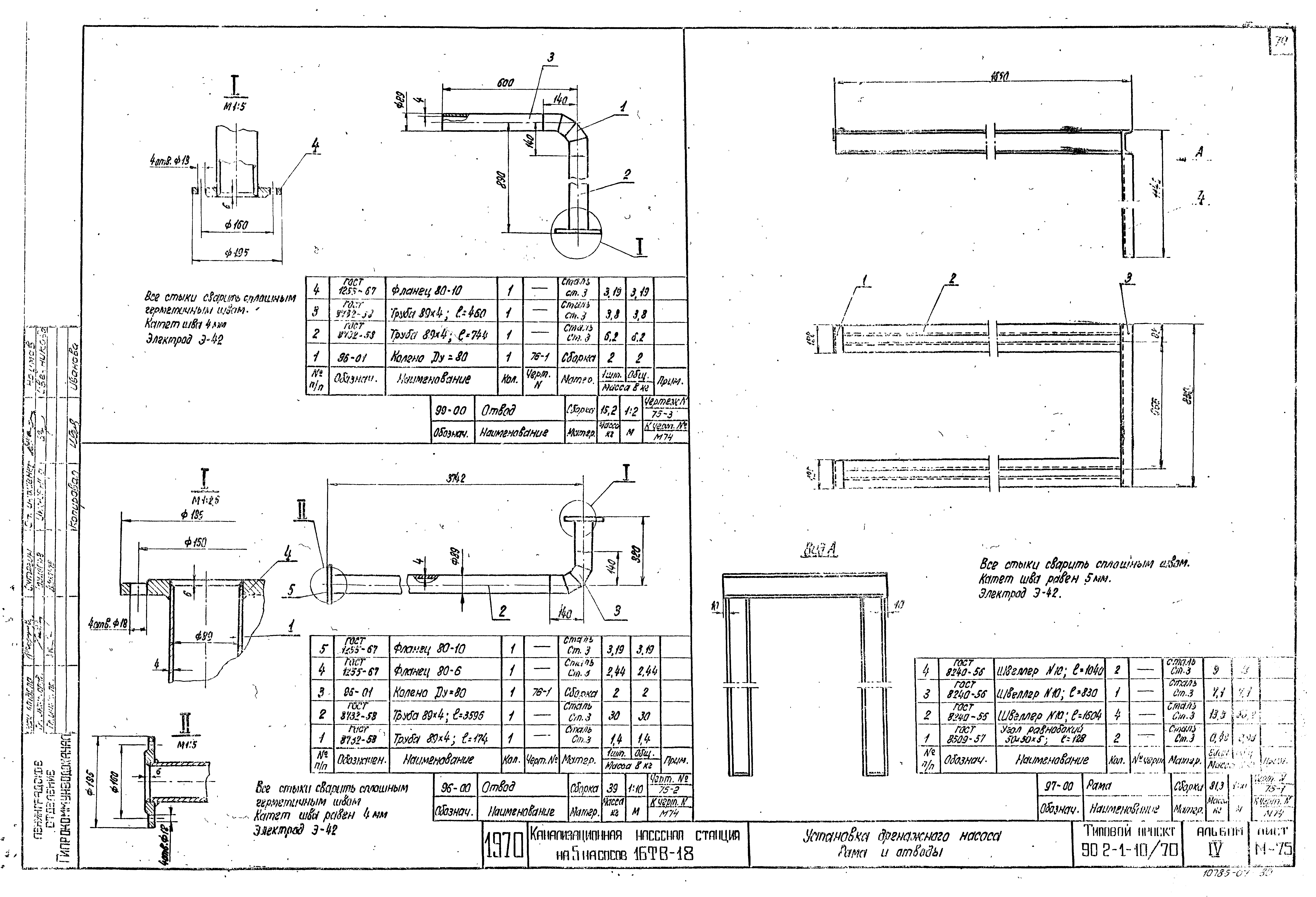
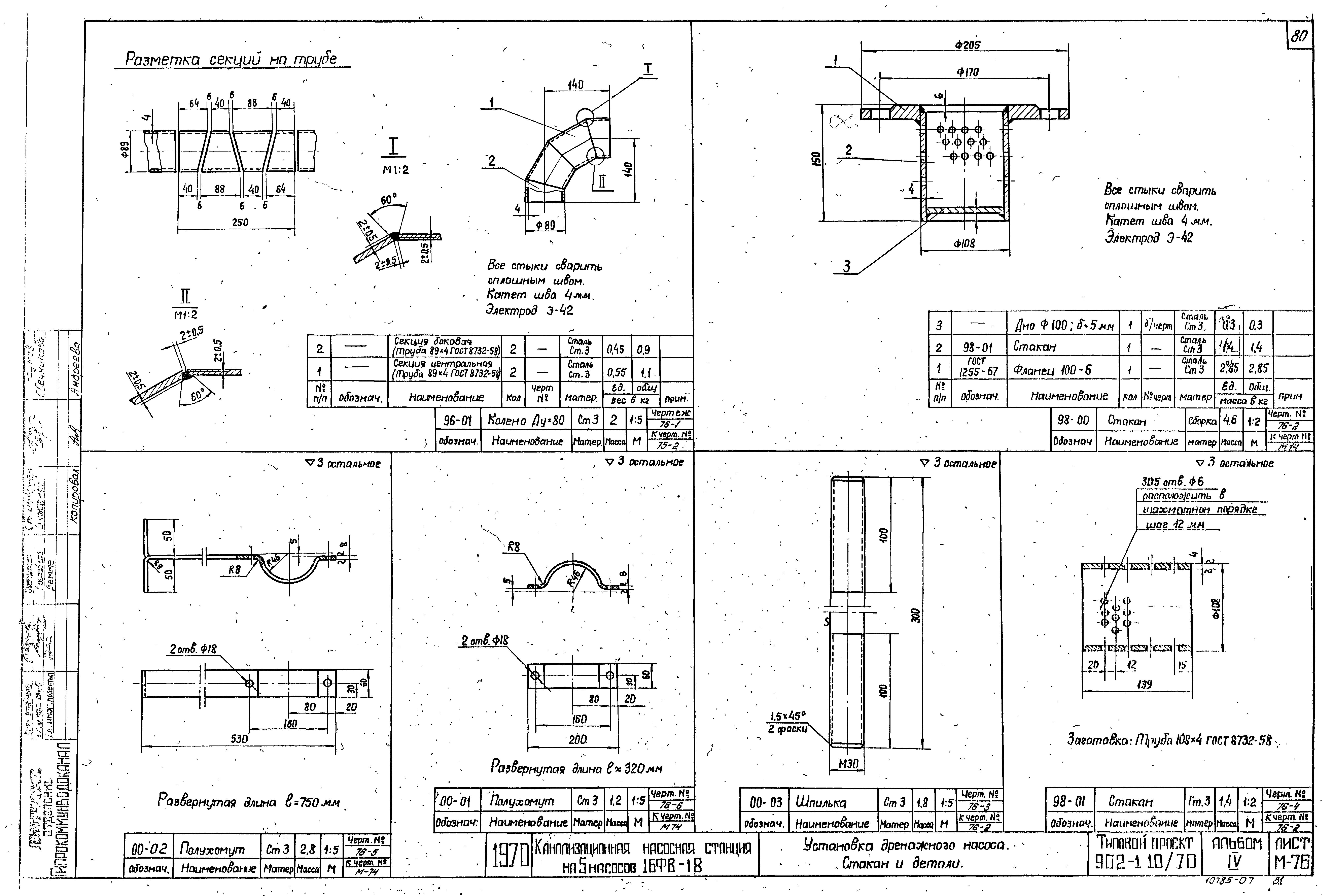
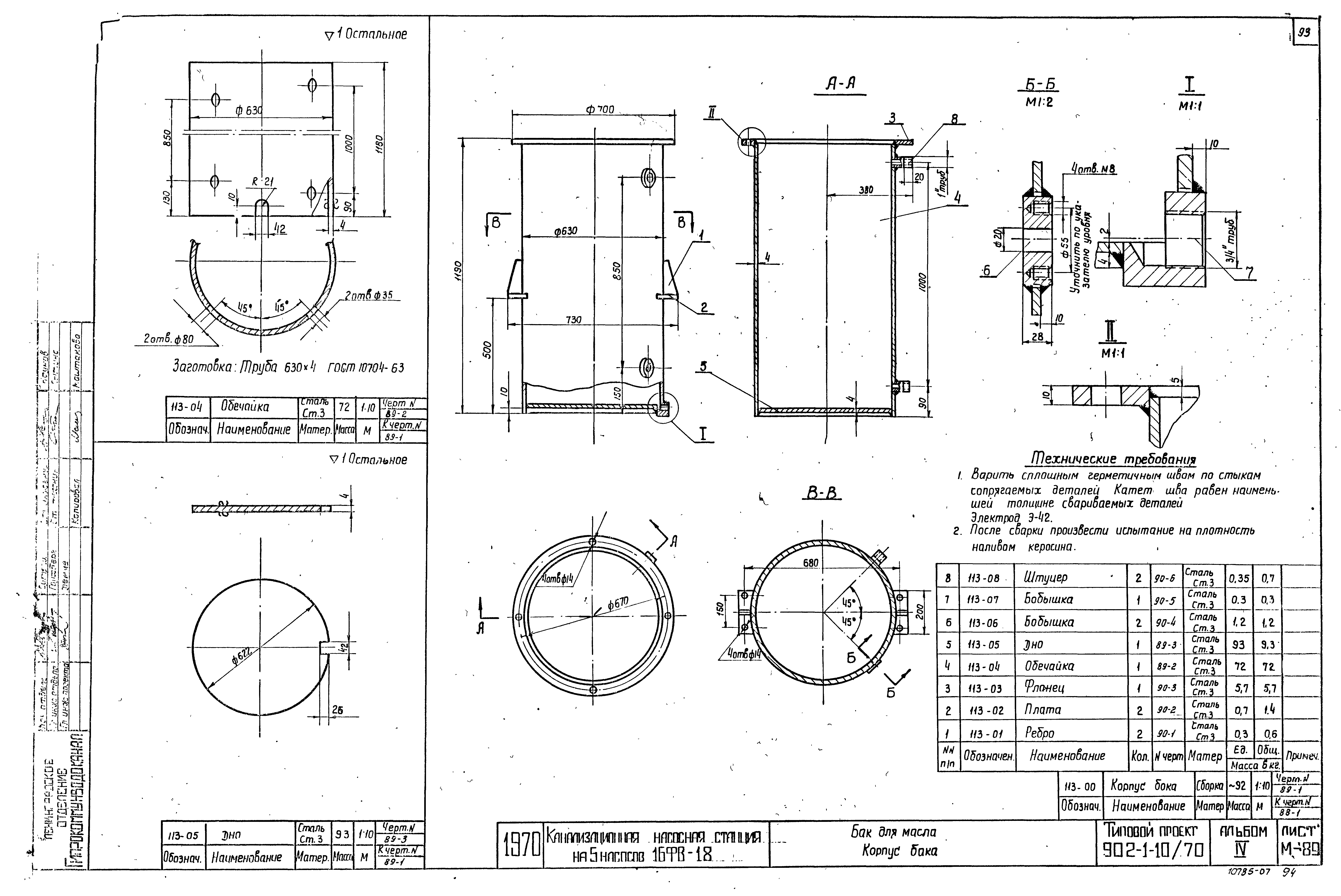
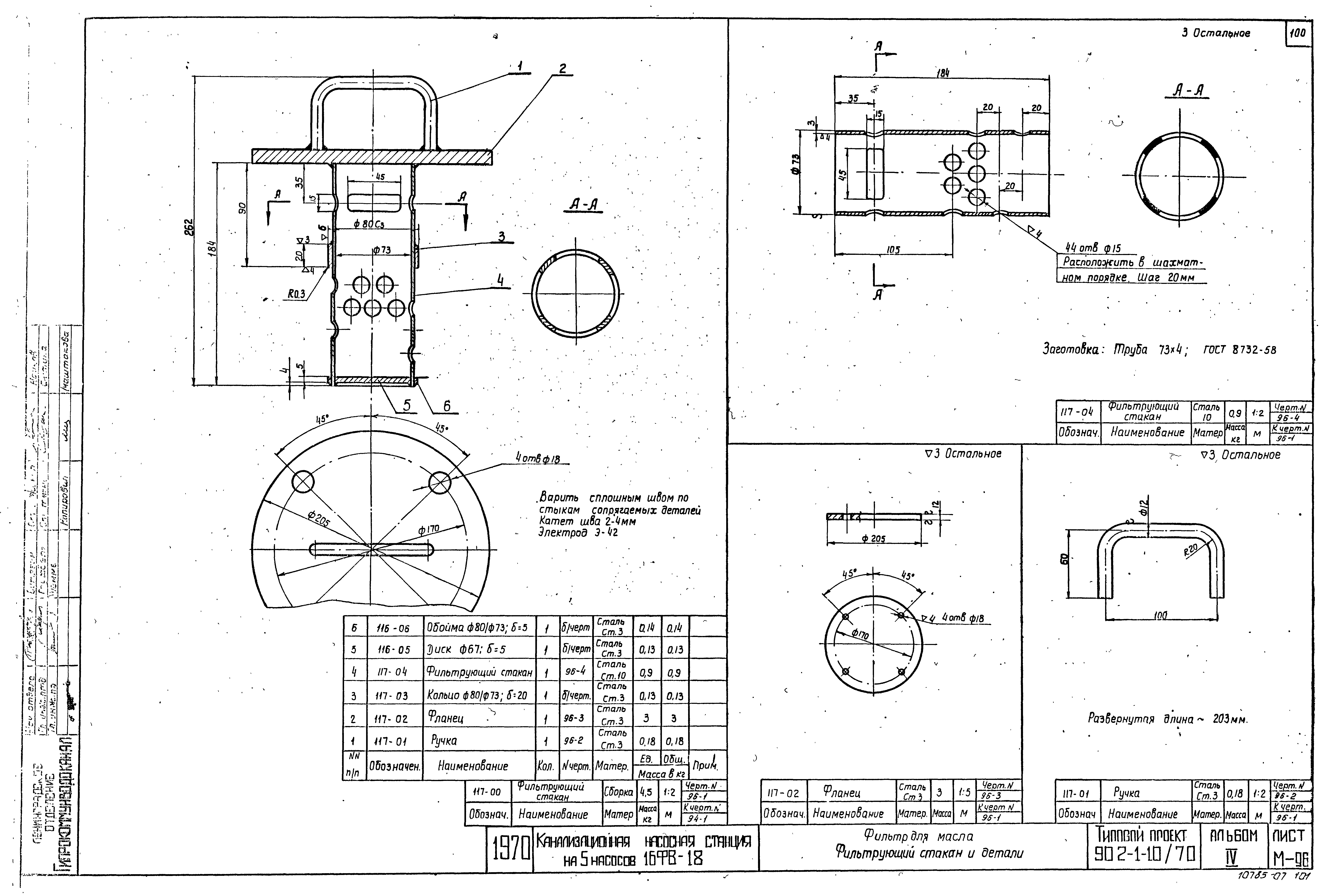
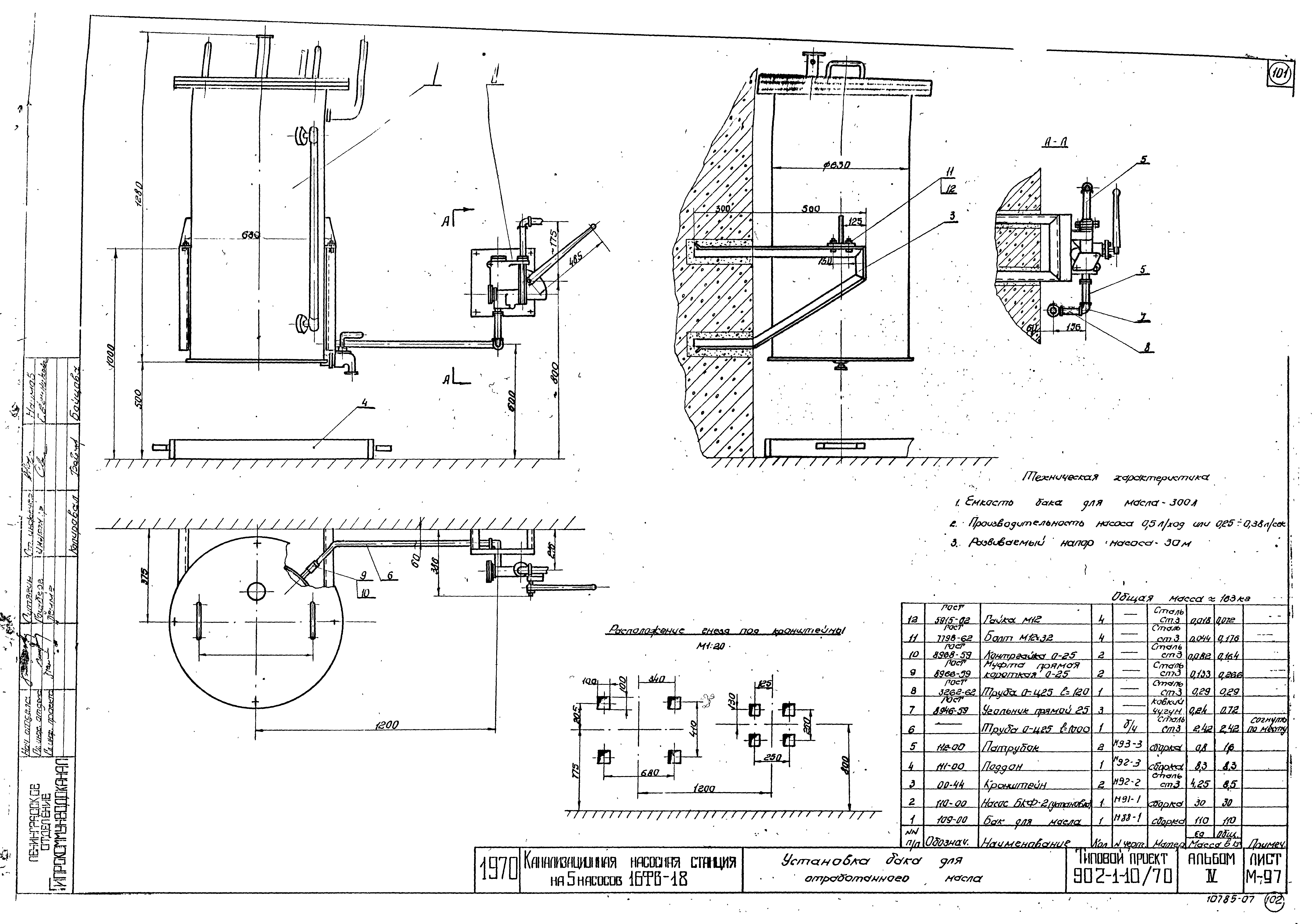
Скачать Типовой проект 902-1-10/70 Альбом IV. Нестандартизированное оборудованиеДата актуализации: 01.01.2021
|
| Обозначение: | Типовой проект 902-1-10/70 |
| Обозначение англ: | 902-1-10/70 |
| Статус: | не действует |
| Название рус.: | Альбом IV. Нестандартизированное оборудование |
| Дата добавления в базу: | 01.09.2013 |
| Дата актуализации: | 01.01.2021 |
| Дата окончания срока действия: | 01.01.1986 |
| Разработан: | Ленинградское отделение института Гипрокоммунводоканал |
| Утверждён: | 21.05.1971 Министерство коммунального хозяйства РСФСР (4тд) |
| Чем заменён: |





































































































