Скачать Типовой проект 407-3-633.92 Альбом 1. Пояснительная записка. Электротехническая часть. Конструкции строительныеДата актуализации: 01.01.2021
|
| Обозначение: | Типовой проект 407-3-633.92 |
| Обозначение англ: | 407-3-633.92 |
| Статус: | не определен законодательством |
| Название рус.: | Альбом 1. Пояснительная записка. Электротехническая часть. Конструкции строительные |
| Дата добавления в базу: | 01.09.2013 |
| Дата актуализации: | 01.01.2021 |
| Дата введения: | 03.07.1992 |
| Дата окончания срока действия: | 30.06.2003 |
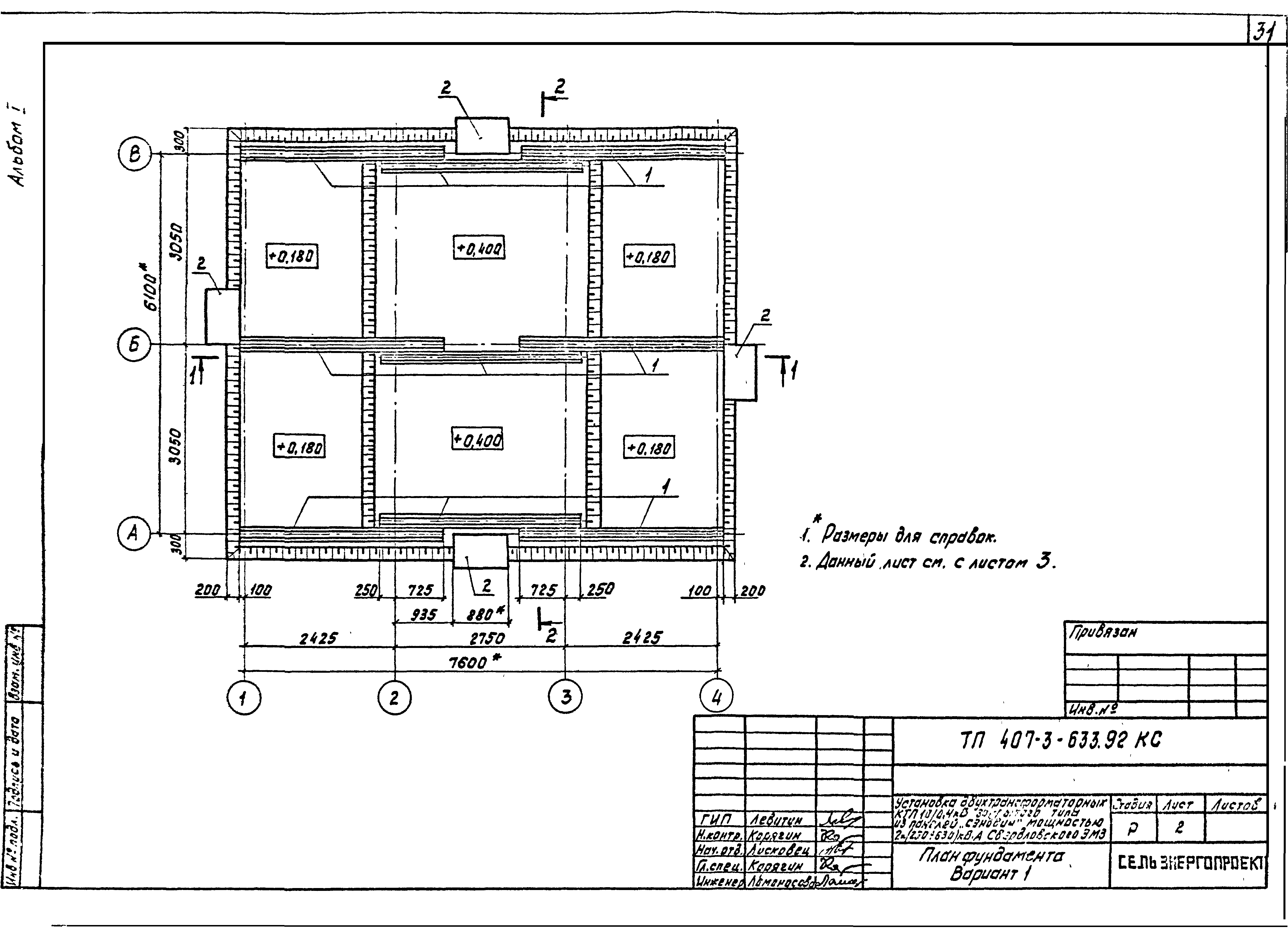
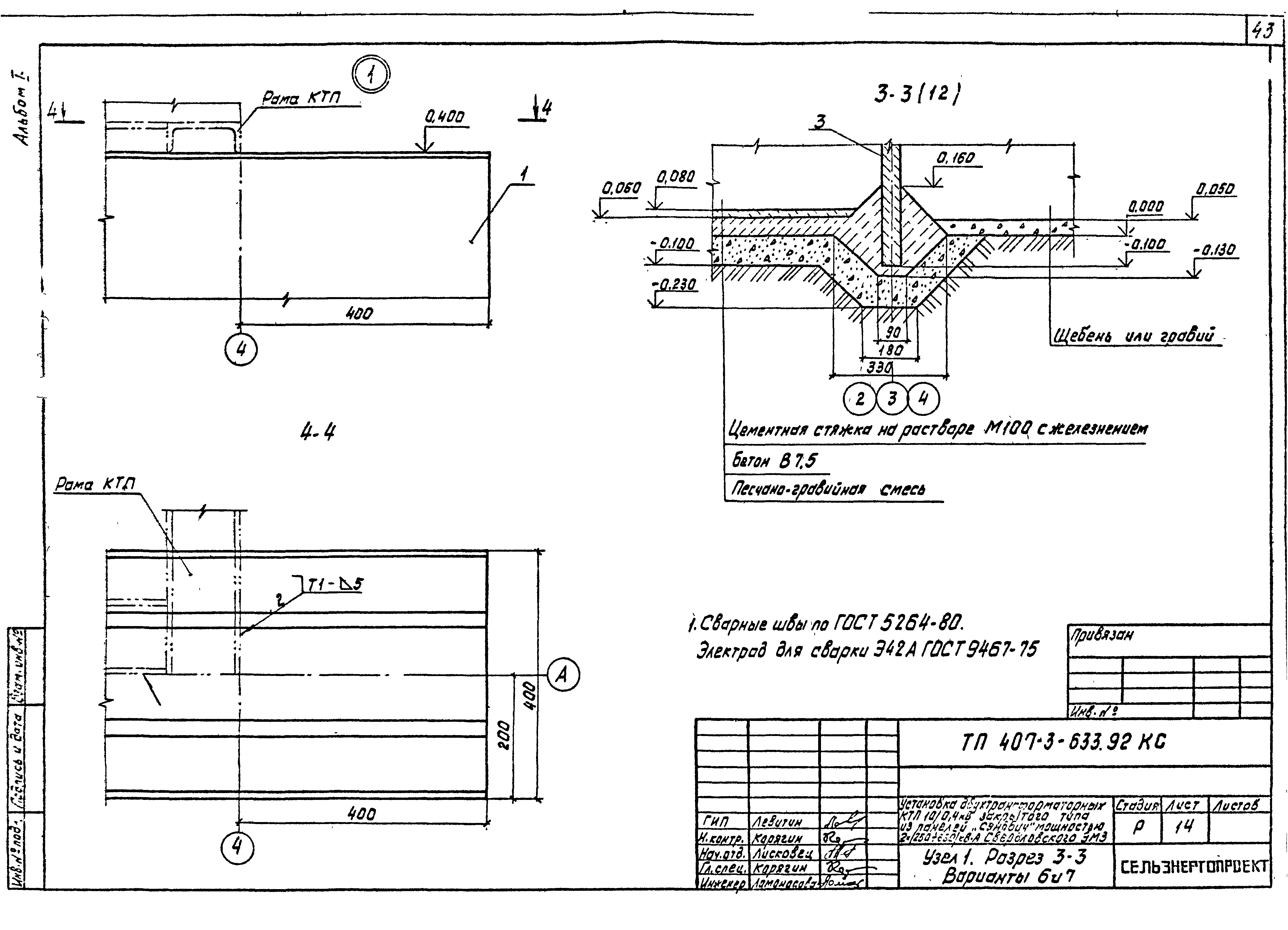
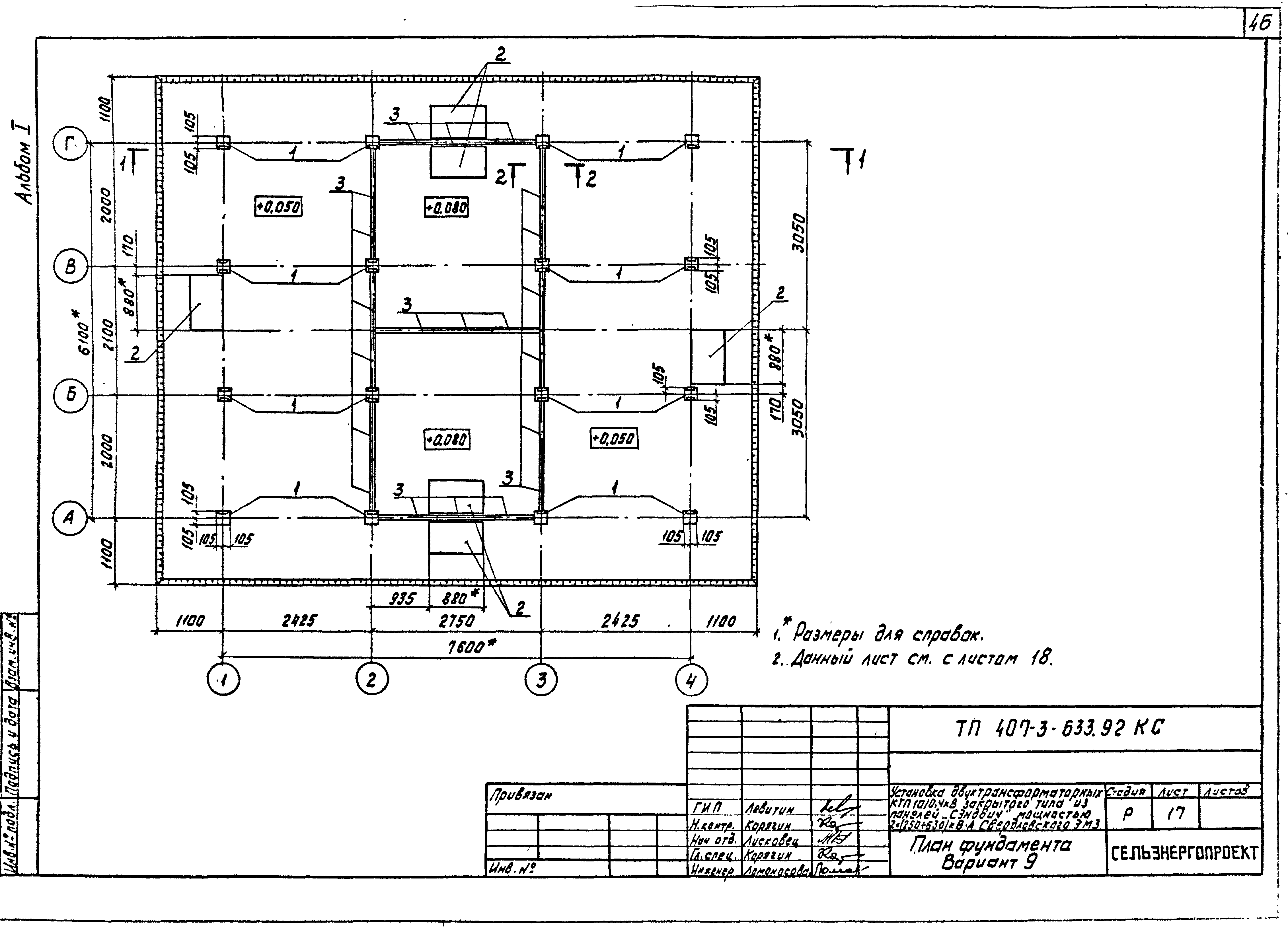
| Оглавление: | Содержание альбома Пояснительная записка Электротехническая часть Общие данные РУ 10 кВ. Схема главных цепей Щит 0,4 кВ. Схема главных цепей (вариант без АВР) Щит 0,4 кВ. Схема главных цепей (вариант с АВР) План ПС Разрез 1-1 ПС Разрез 2-2 ПС Разрез 3-3 ПС Спецификация. Вид А Внутренний контур заземления ПС Наружный контур заземления ПС Присоединение ВЛ 10 и 0,4 кВ к подстанции с воздушными вводами Узел А. Уел Б Присоединение шин 10 и 0,4 кВ к выводам трансформатора Установка КТПБ на фундамент Конструкция с зеркалом Ряды зажимов панелей ЩО70 для схемы с АВР Кабельный журнал План раскладки кабелей Конструкции строительные Общие данные План фундамента. Вариант 1 Разрезы 1-1, 2-2. Спецификация. Вариант 1 План фундамента. Вариант 2 Разрезы 1-1, 2-2. Спецификация. Вариант 2 План фундамента. Вариант 3 Разрезы 1-1, 2-2. Спецификация. Вариант 3 План фундамента. Вариант 4 Разрезы 1-1, 2-2. Спецификация. Вариант 4 План фундамента. Вариант 5 Разрезы 1-1. Уел 1. Спецификация. Вариант 5 План фундамента. Вариант 6 и 7 Разрезы 1-1, 2-2. Спецификация. Вариант 6 и 7 Узел 1. Разрез 3-3. Вариант 6 и 7 План фундамента. Вариант 8 Разрез 1-1. Спецификация. Вариант 8 План фундамента. Вариант 9 Разрезы 1-1, 2-2. Вариант 9 Узел 1. Спецификация. Вариант 9 Ведомости потребности в материалах |
| Разработан: | Сельэнергопроект Минэнерго СССР |
| Утверждён: | 03.07.1992 Сельэнергопроект (21-П) |





















































