Скачать Типовой проект 904-1-74.87 Альбом 3. Силовое электрооборудование, электрическое освещение, связь и сигнализацияДата актуализации: 01.01.2021
|
| Обозначение: | Типовой проект 904-1-74.87 |
| Обозначение англ: | 904-1-74.87 |
| Статус: | не определен законодательством |
| Название рус.: | Альбом 3. Силовое электрооборудование, электрическое освещение, связь и сигнализация |
| Дата добавления в базу: | 01.09.2013 |
| Дата актуализации: | 01.01.2021 |
| Дата введения: | 01.10.1987 |
| Дата окончания срока действия: | 30.06.2003 |
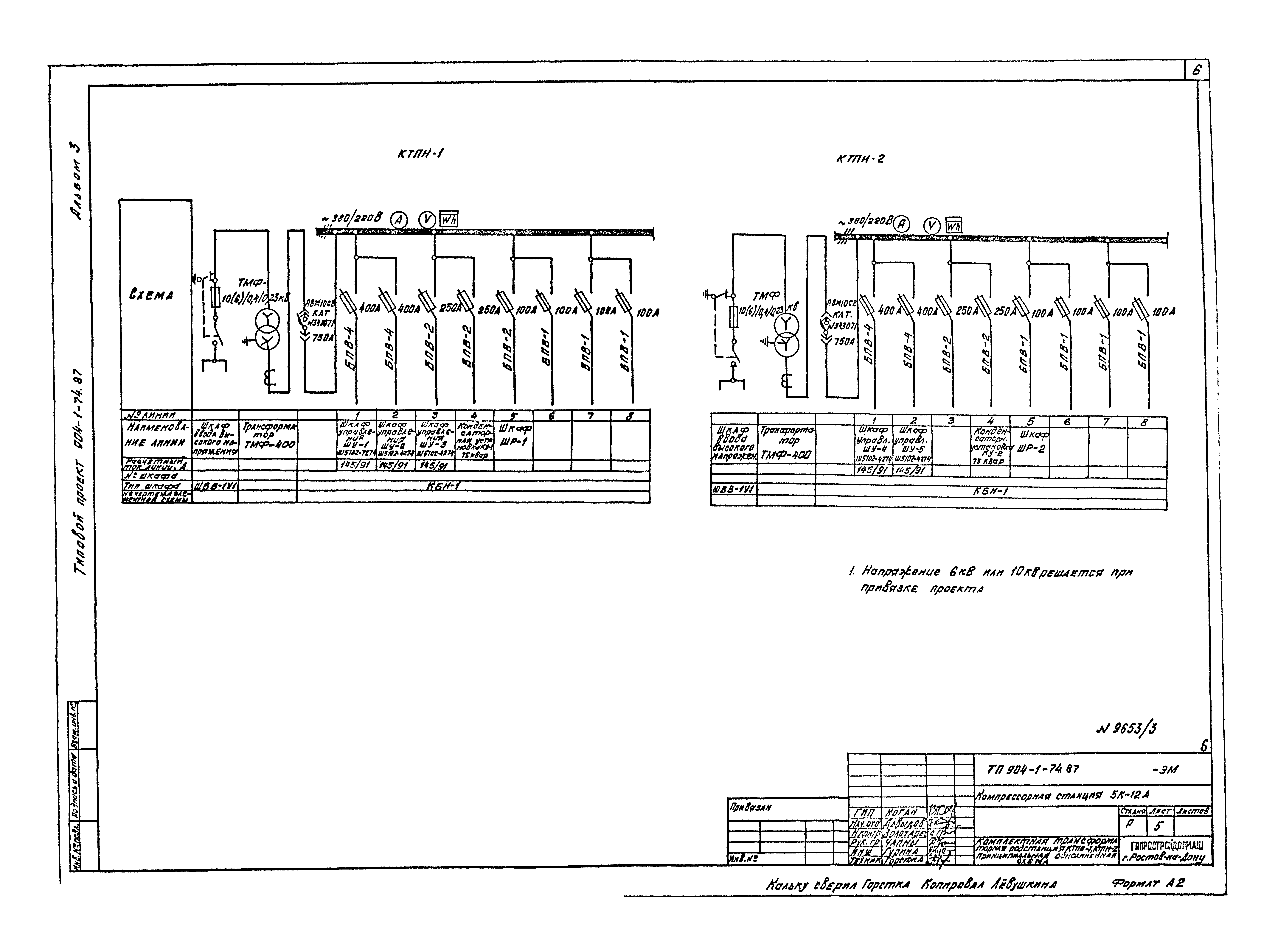
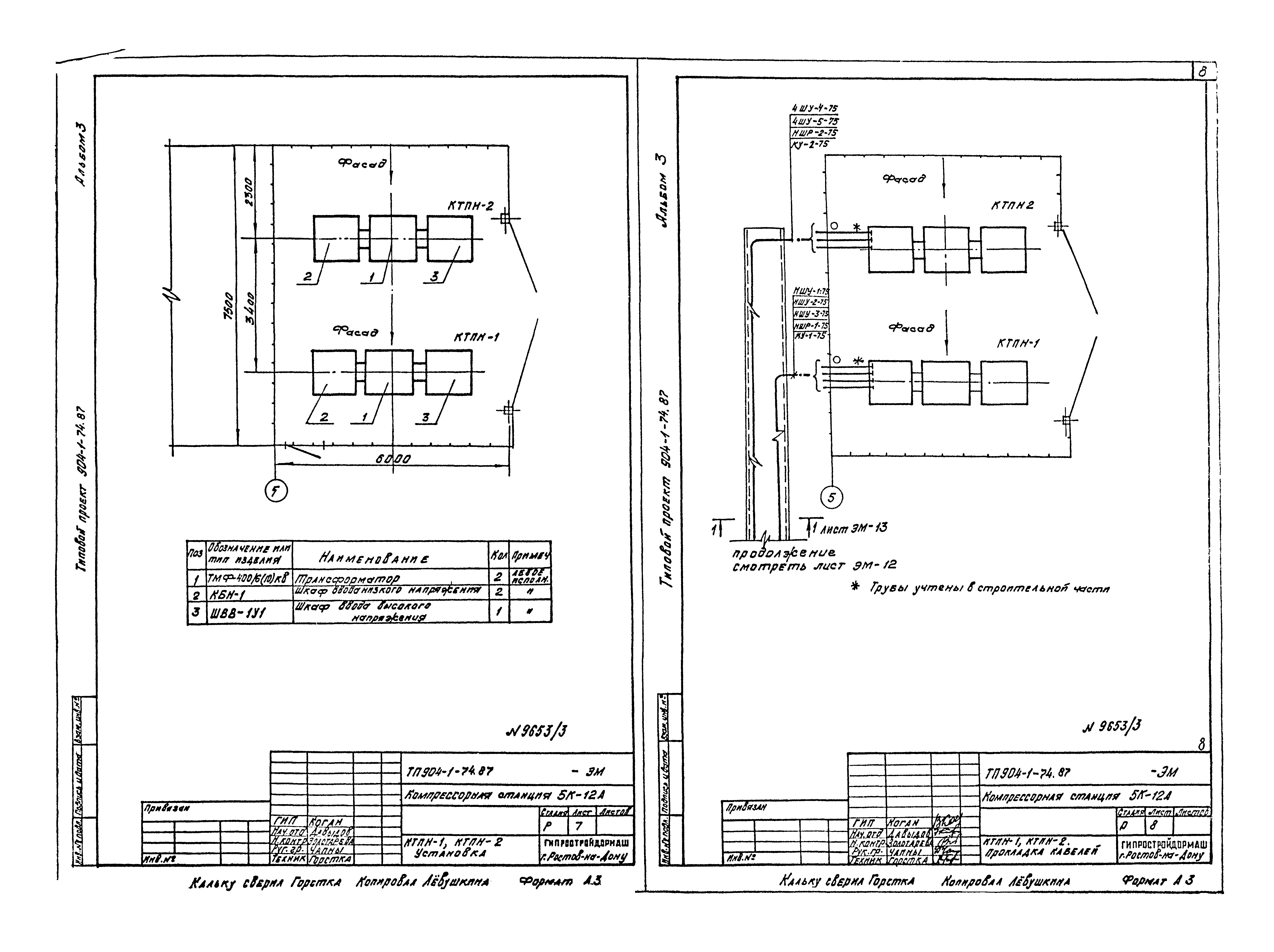
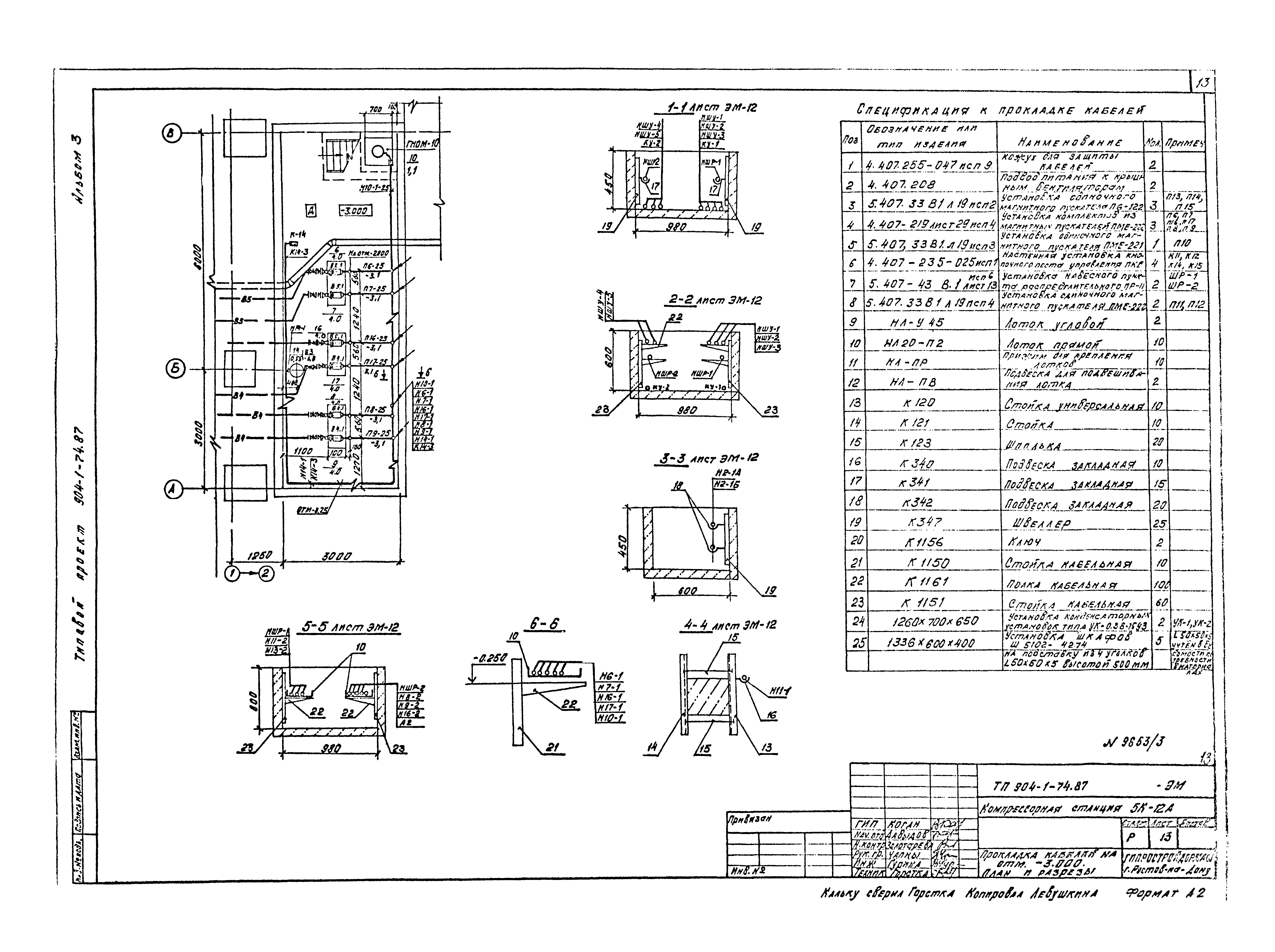
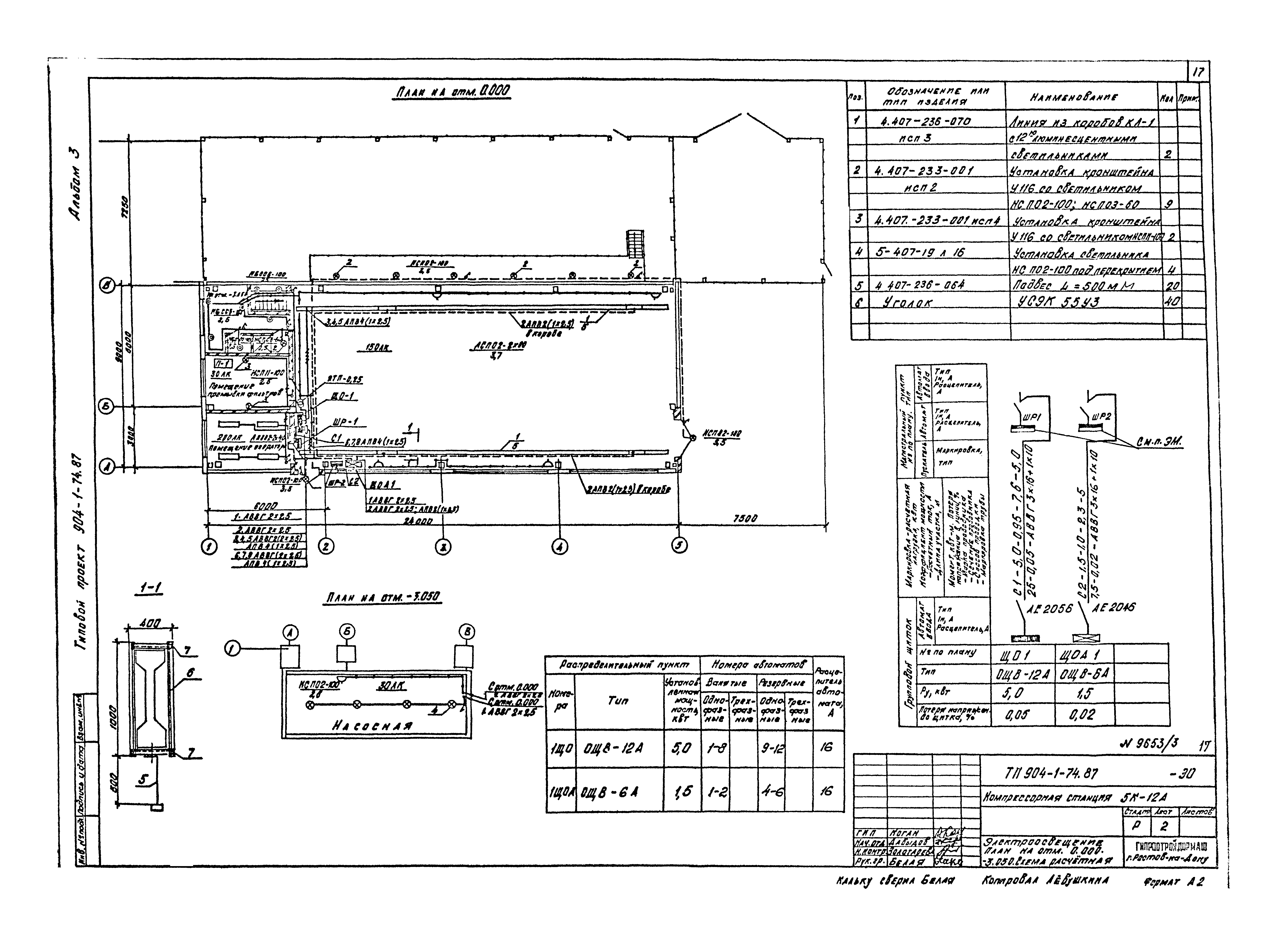
| Оглавление: | Содержание альбома Силовое электрооборудование Общие данные Таблица технических данных электроприемников Схема электрическая подключения компрессорного агрегата Комплектная трансформаторная подстанция КТПН-1, 2. Принципиальная однолинейная схема Шкафы распределительные ШР-1, ШР-2. Расчетная схема КТПН-1, 2. Установка КТПН-1, 2. Прокладка кабелей Кабельный журнал Прокладка кабелей на отм. 0,000. План Прокладка кабелей на отм. -3,000. План и разрезы Заземление Схема электрическая принципиальная привода компрессорного агрегата Электроосвещение Общие данные План на отм. 0,000; -3,050. Схема расчетная принципиальная Связь и сигнализация Общие данные План расположения сети Схемы расположения сети Схемы расположения сети пожарной сигнализации |
| Разработан: | Гипростройдормаш |
| Утверждён: | 20.05.1987 Минстройдормаш (Minstroydormash 307) |





















