Скачать Типовой проект 904-1-74.87 Альбом 4. Автоматизация и КИПДата актуализации: 01.01.2021
|
| Обозначение: | Типовой проект 904-1-74.87 |
| Обозначение англ: | 904-1-74.87 |
| Статус: | не определен законодательством |
| Название рус.: | Альбом 4. Автоматизация и КИП |
| Дата добавления в базу: | 01.10.2014 |
| Дата актуализации: | 01.01.2021 |
| Дата введения: | 20.05.1987 |
| Дата окончания срока действия: | 30.06.2003 |
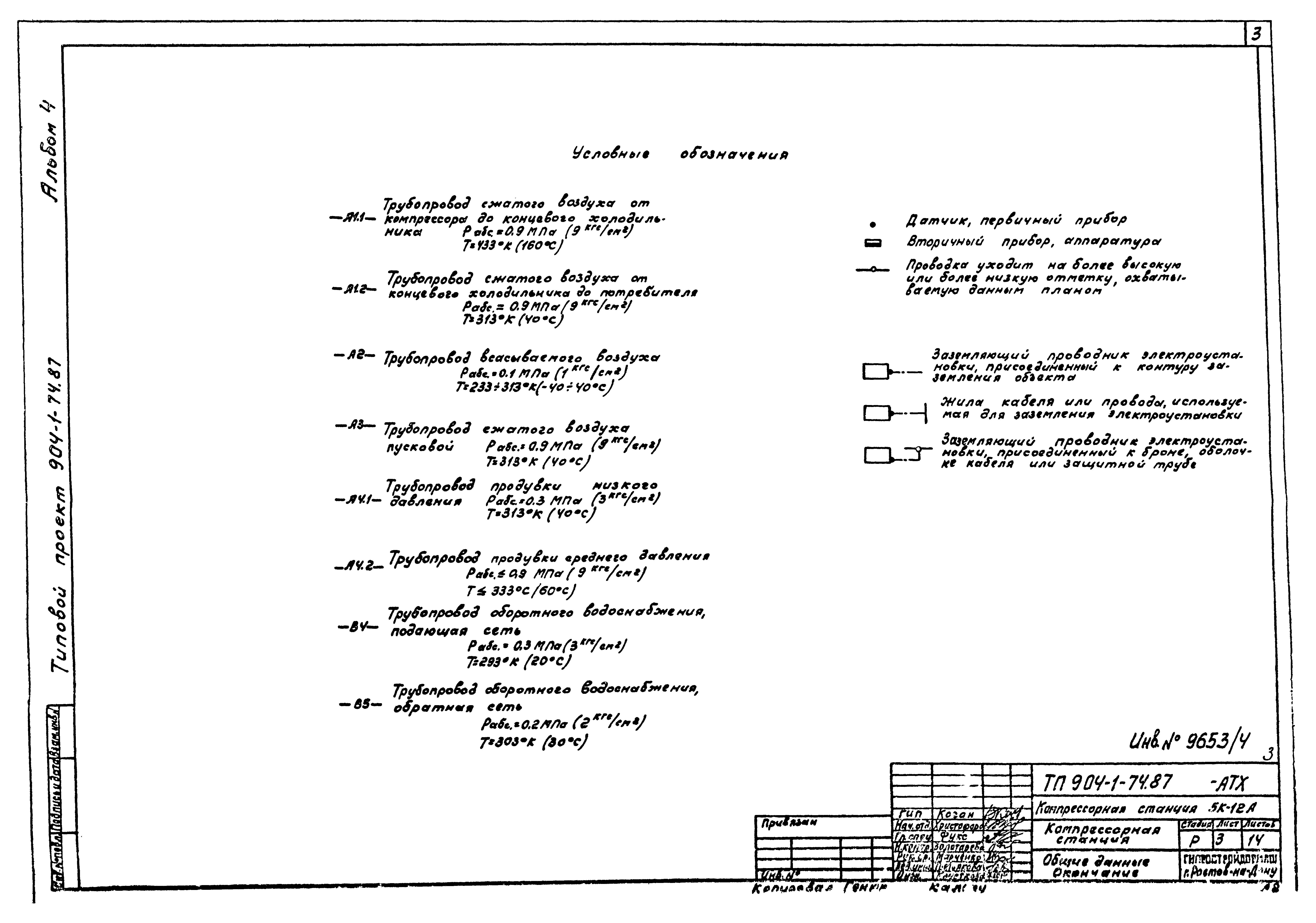
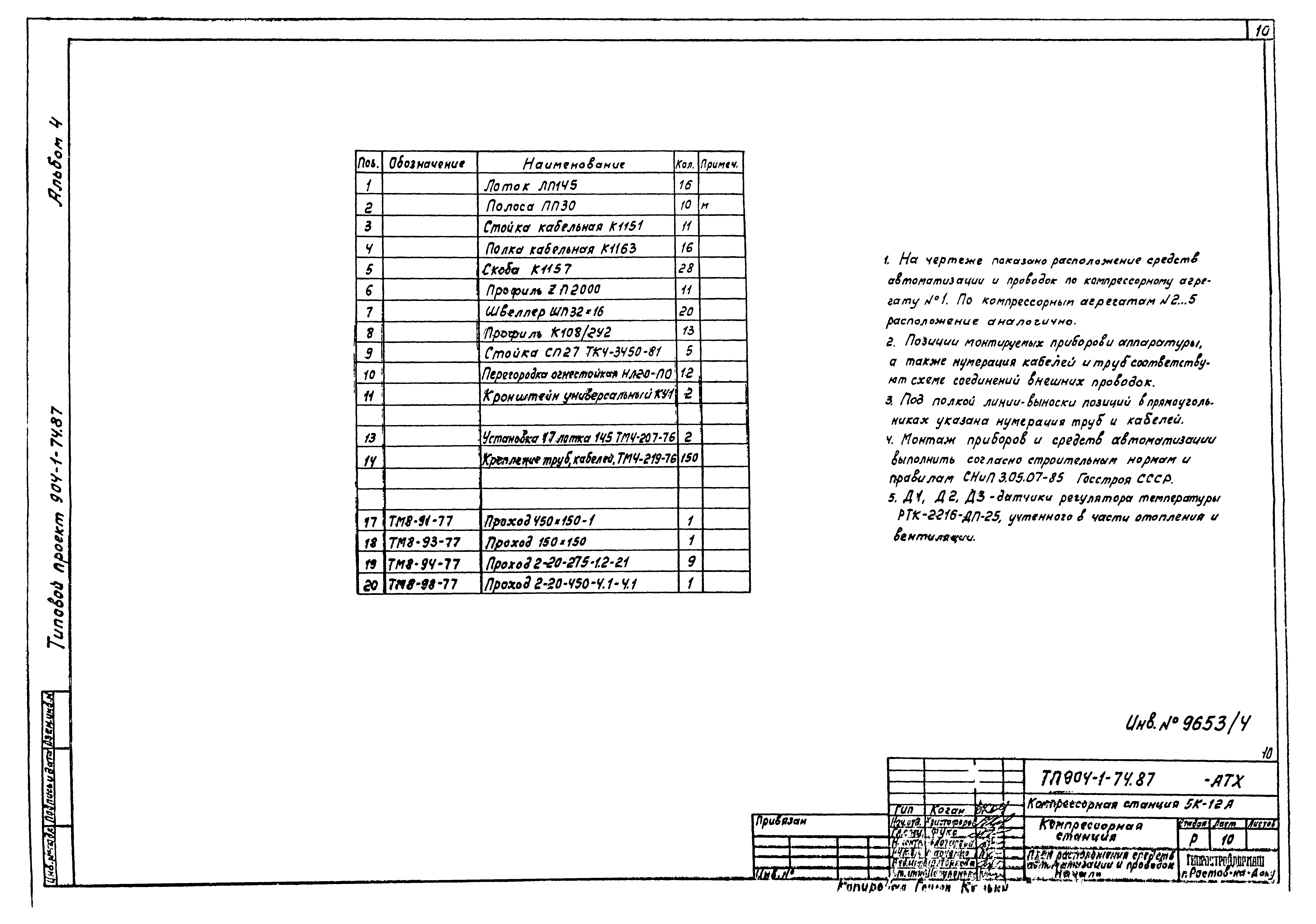
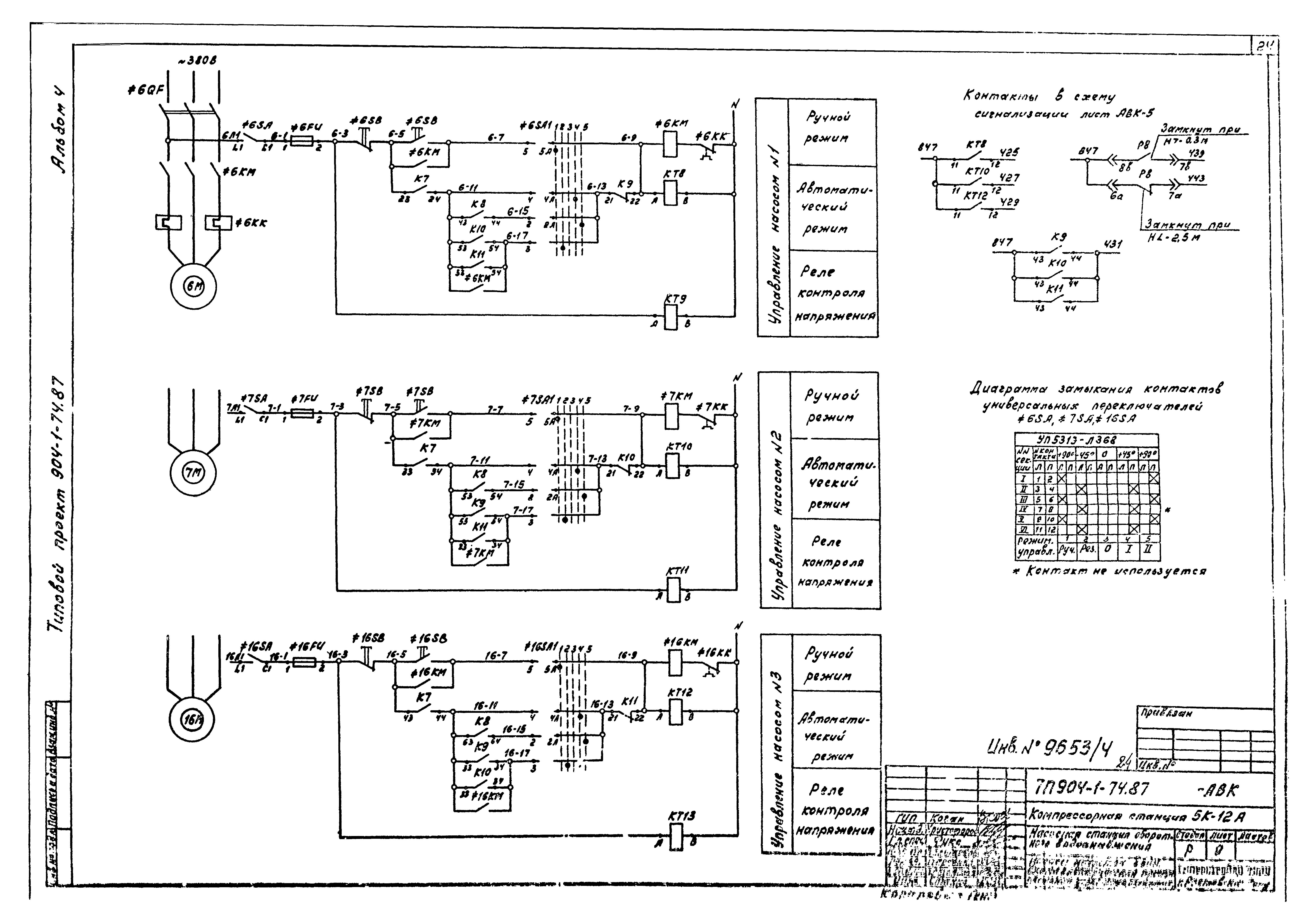
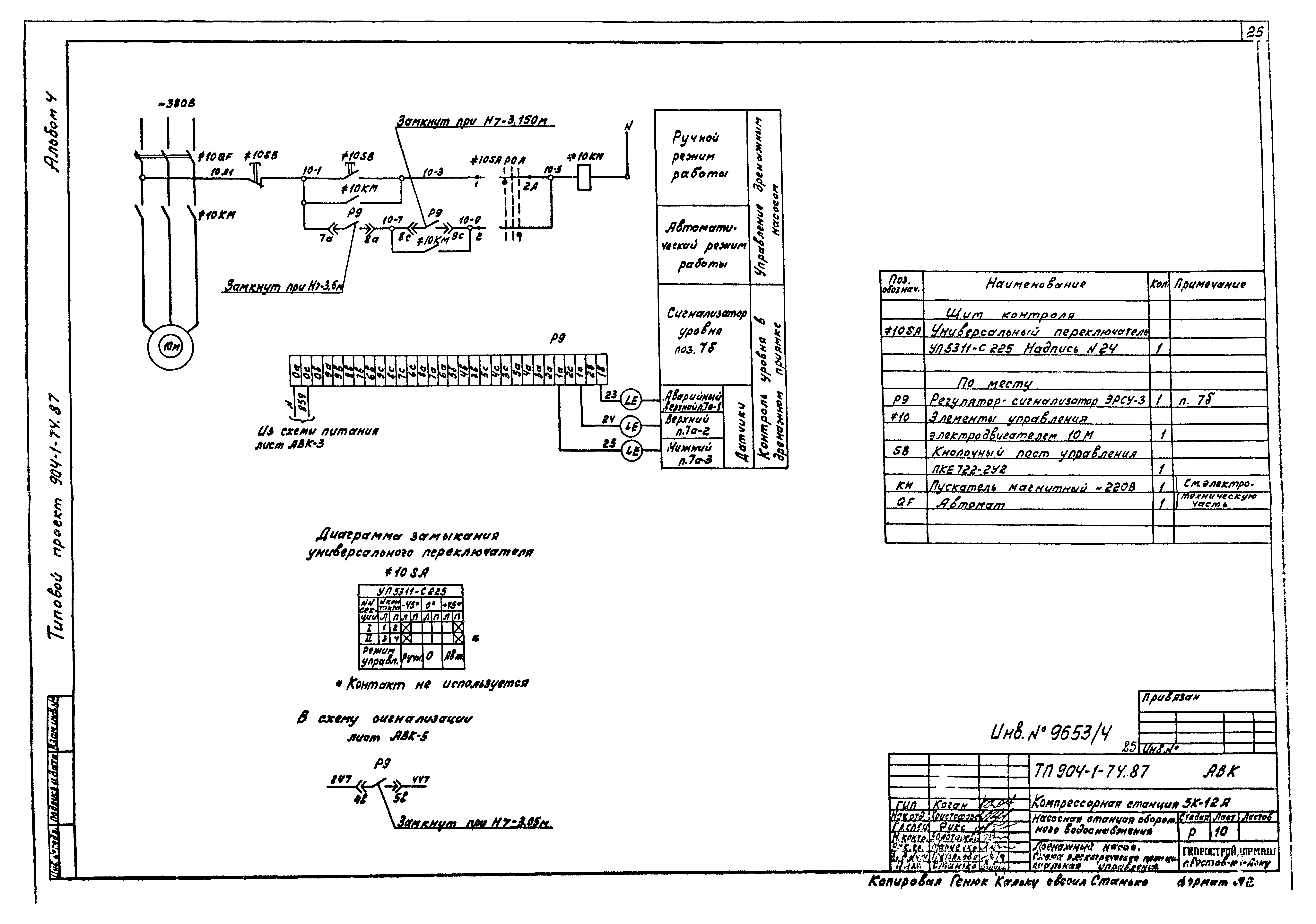
| Оглавление: | Чертежи основного комплекта марки АТХ Общие данные Схема автоматизации Схема электрическая принципиальная питания, измерения Схема соединений внешних проводок по компрессорному агрегату Схема соединений внешних проводок по компрессорной станции План расположения средств автоматизации и проводок Журнал кабельных проводок Установка щитов в помещении оператора Чертежи основного комплекта марки АВК Общие данные Схема автоматизации Схема электрическая принципиальная питания Схема электрическая принципиальная измерения температуры Схема электрическая принципиальная сигнализации Насосы охлажденной воды. Схема электрическая принципиальная сигнализации Насосы нагретой воды. Схема электрическая принципиальная управления Дренажный насос. Схема электрическая принципиальная управления Дренажный насос. Схема соединений внешних проводок Дренажный насос. Схема подключения Дренажный насос. План расположения средств автоматизации и проводок Дренажный насос. Журнал кабельных проводок Установка датчиков ЭРСУ-3 в камерах нагретой и охлажденной воды Установка датчиков ЭРСУ-3 в камерах нагретой и охлажденной воды. Сборочный чертеж Насосная станция оборотного водоснабжения. Стенд №1 Насосная станция оборотного водоснабжения. Стенд №2 Насосная станция оборотного водоснабжения. Стенд №3 Чертежи основного комплекта марки АОВ Вентсистема В2. Схемы электрические Задание заводу-изготовителю щитов Перечень технической документации Шкаф оператора. Общий вид Шкаф оператора. Таблица соединений Шкаф оператора. Таблица подключения Щит контроля. Общий вид Щит контроля. Таблица соединений Щит контроля. Таблица подключения Компрессорная станция. Схема электрическая принципиальная питания, измерения температуры Насосная станция оборотного водоснабжения. Схема электрическая принципиальная питания Насосная станция оборотного водоснабжения. Схема электрическая принципиальная измерения температуры Насосная станция оборотного водоснабжения. Схема электрическая принципиальная сигнализации Насосная станция оборотного водоснабжения. Насосы охлажденной воды. Схема электрическая принципиальная управления Насосная станция оборотного водоснабжения. Насосы нагретой воды. Схема электрическая принципиальная управления Насосная станция оборотного водоснабжения. Дренажный насос. Схема электрическая принципиальная управления Спецификация щитов |
| Разработан: | Гипростройдормаш |
| Утверждён: | 20.05.1987 Минстройдормаш (Minstroydormash 307) |































































