Скачать Типовой проект 902-3-8 Альбом 2. Аэрируемые биопруды производительностью 400, 700 куб. м/сутки при БПК полн. - 400 мг/лДата актуализации: 01.01.2021
|
| Обозначение: | Типовой проект 902-3-8 |
| Обозначение англ: | 902-3-8 |
| Статус: | не определен законодательством |
| Название рус.: | Альбом 2. Аэрируемые биопруды производительностью 400, 700 куб. м/сутки при БПК полн. - 400 мг/л |
| Дата добавления в базу: | 01.09.2013 |
| Дата актуализации: | 01.01.2021 |
| Дата введения: | 01.01.1981 |
| Дата окончания срока действия: | 30.06.2003 |
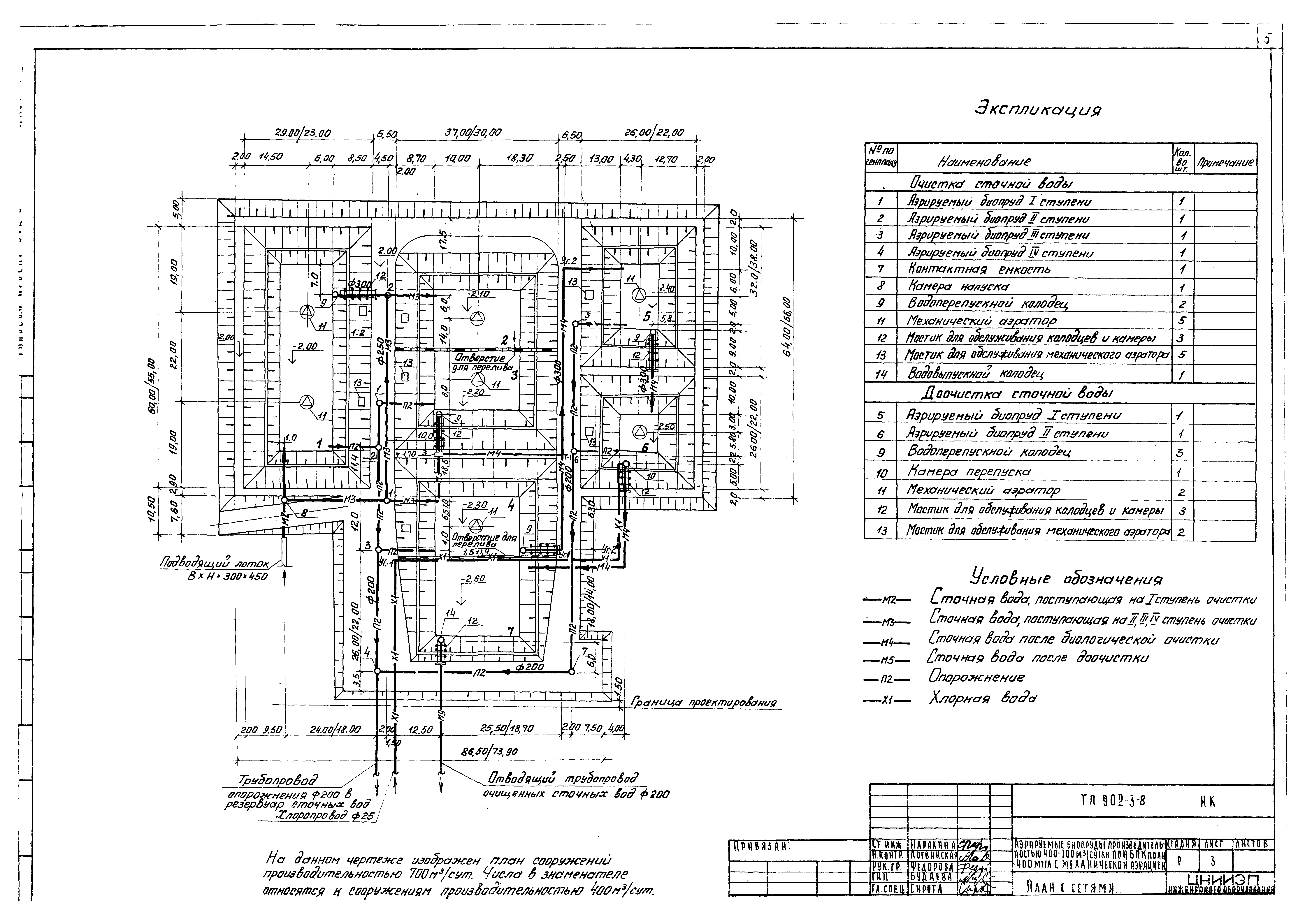
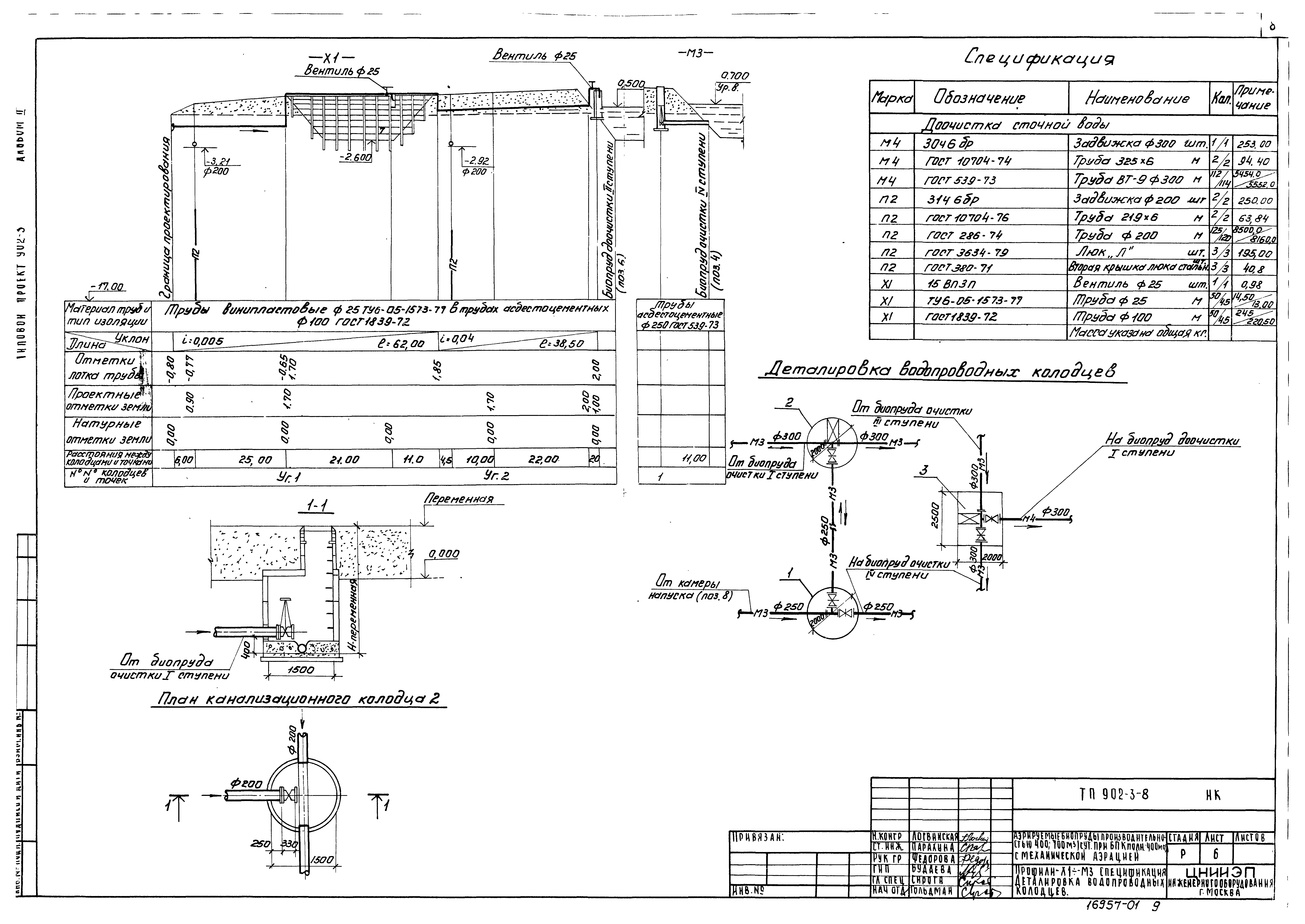
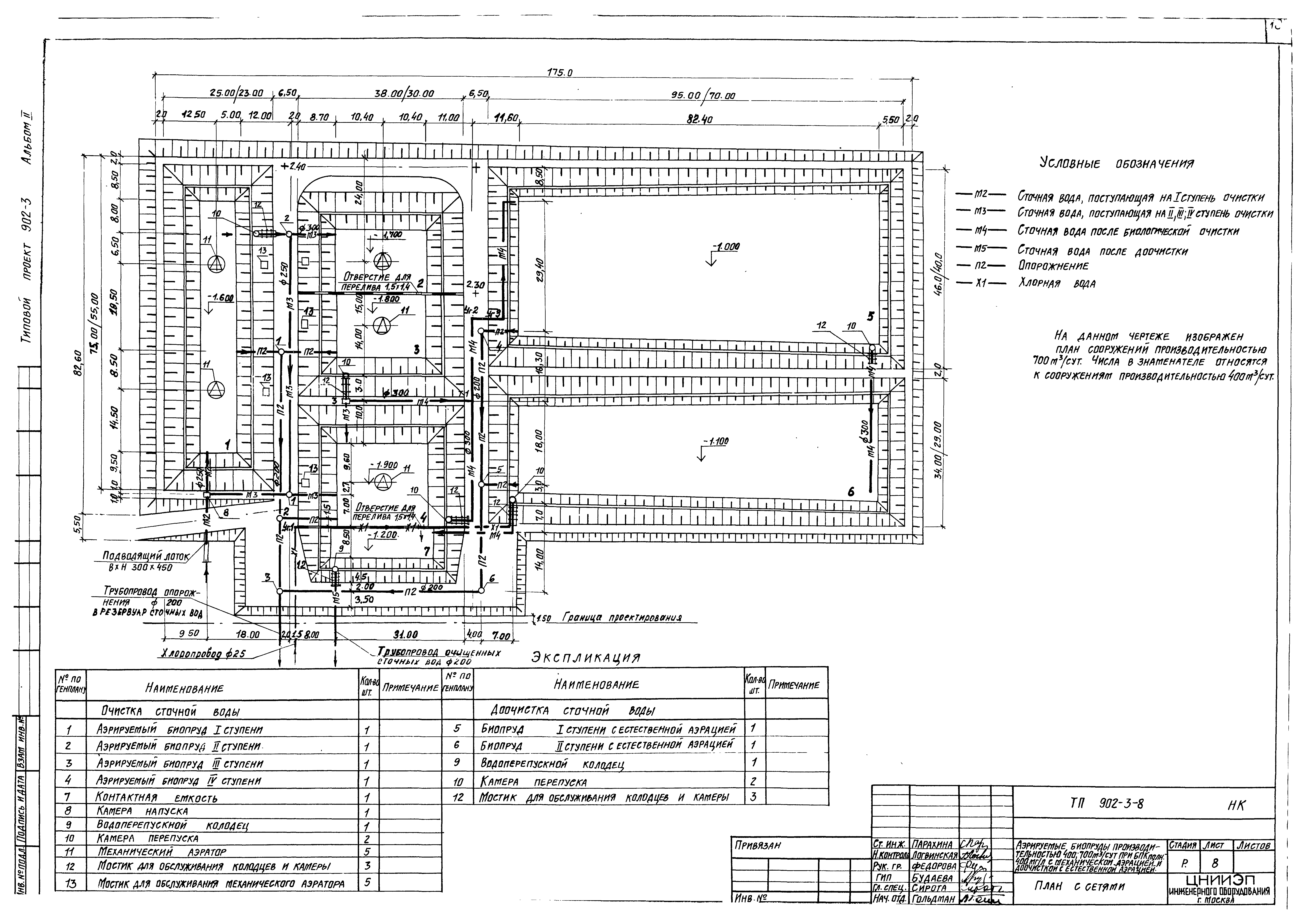
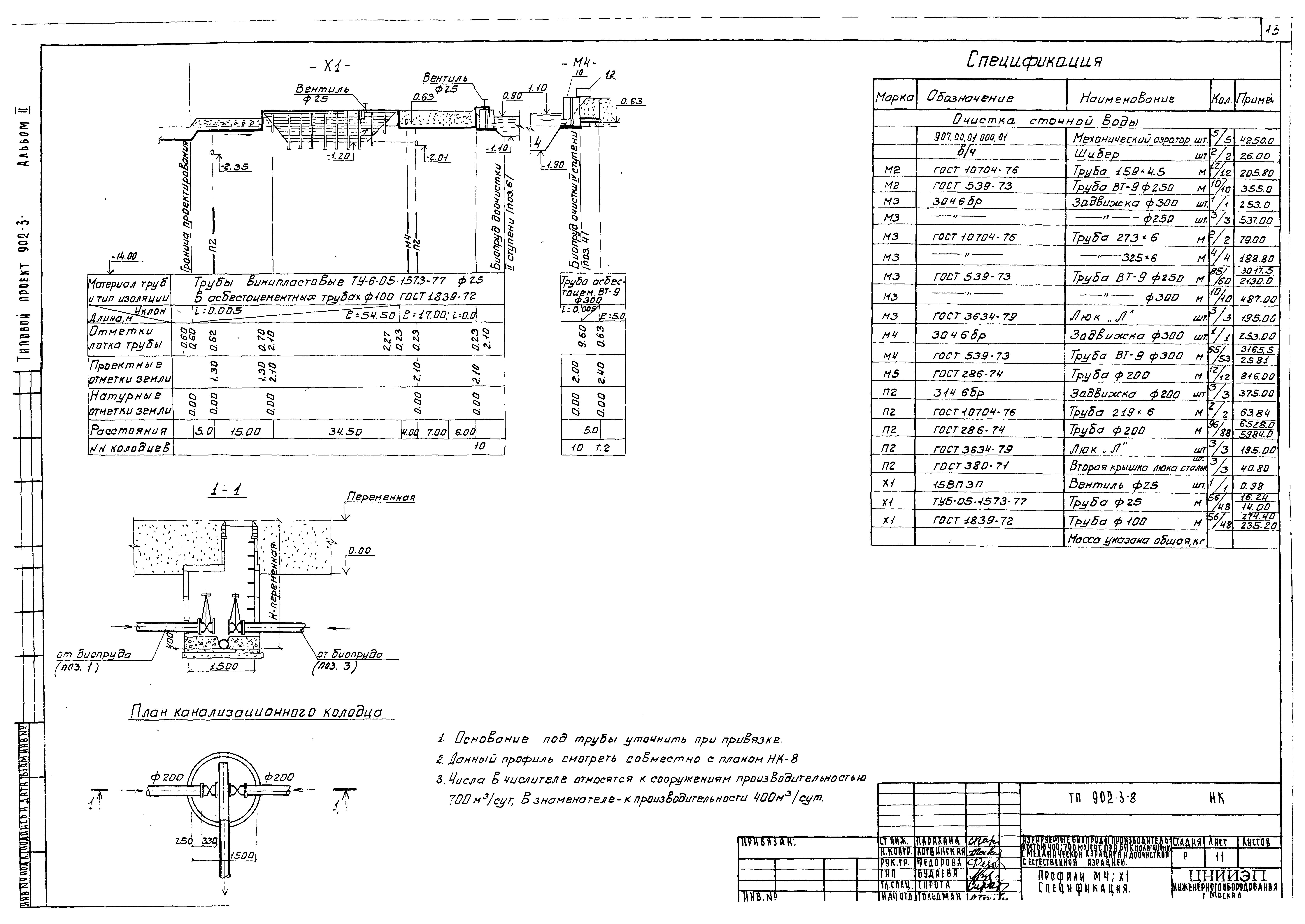
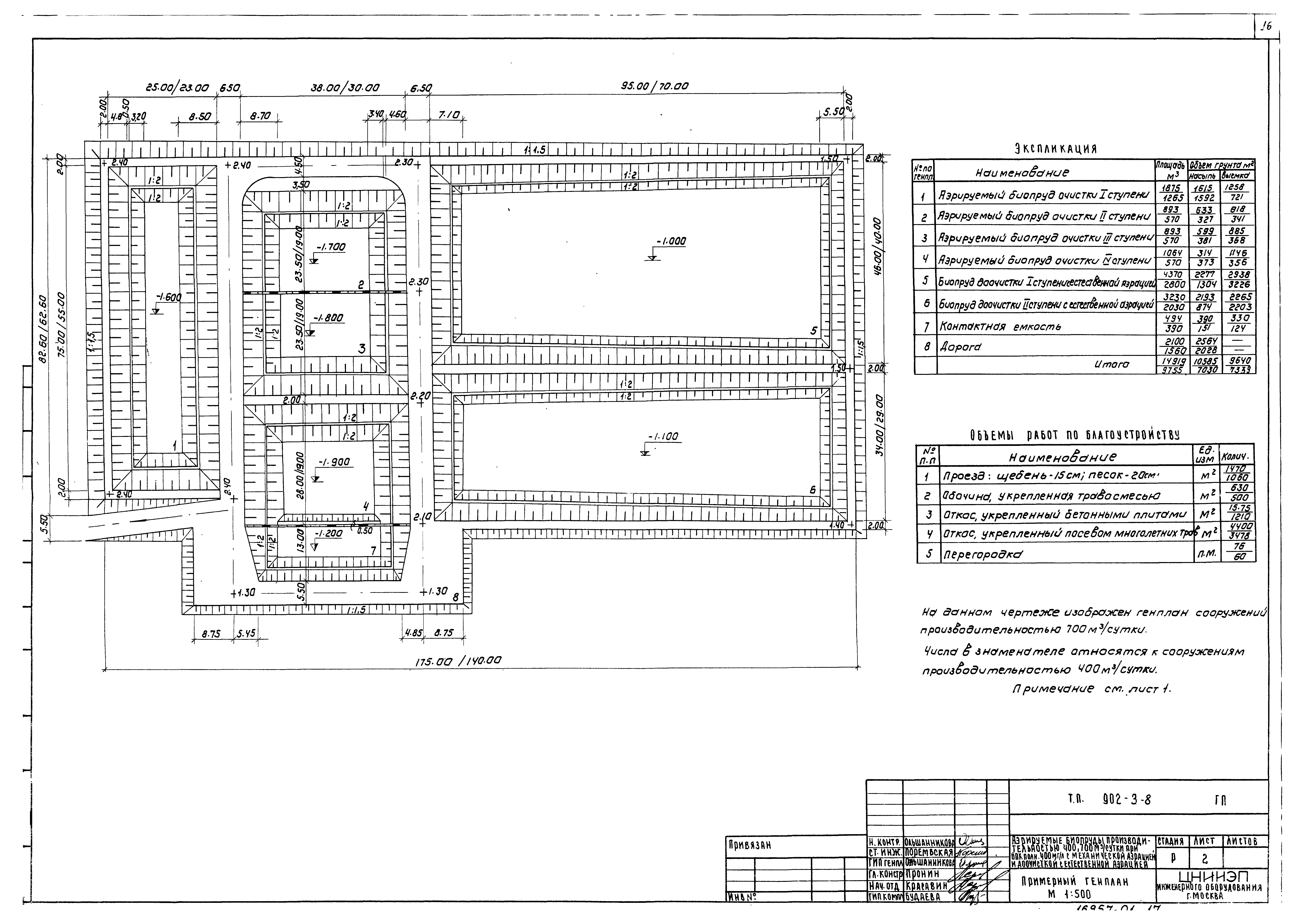
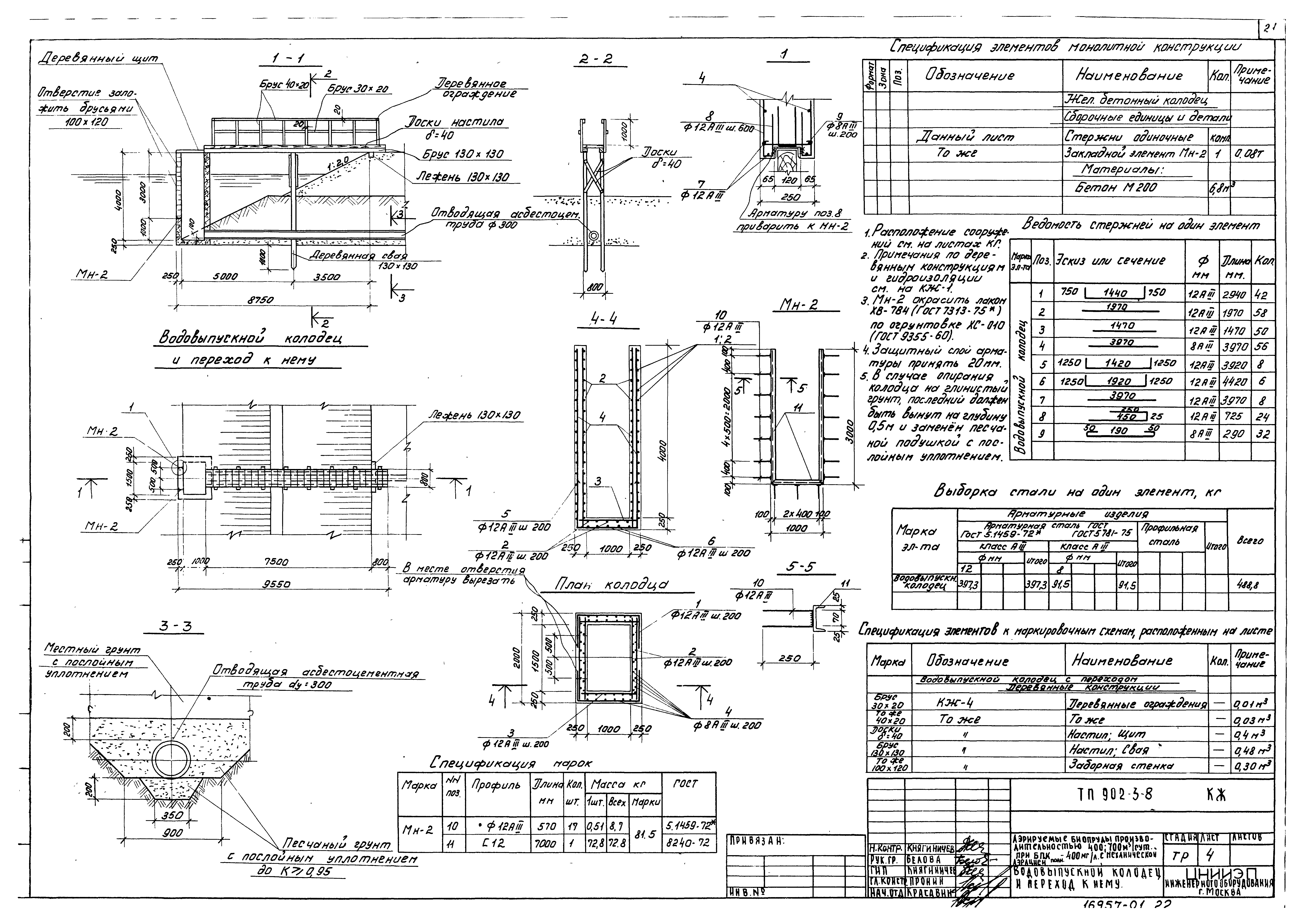
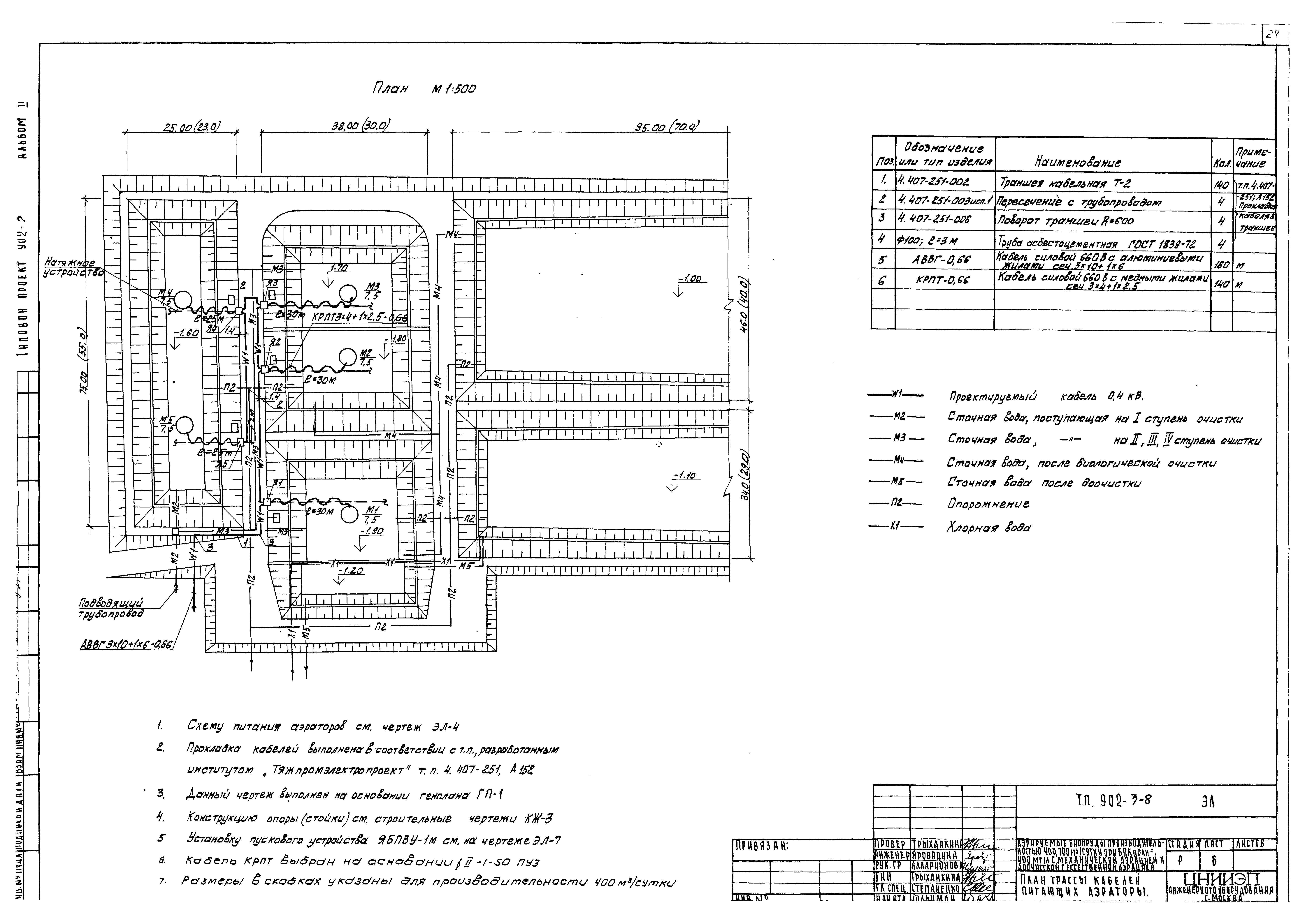
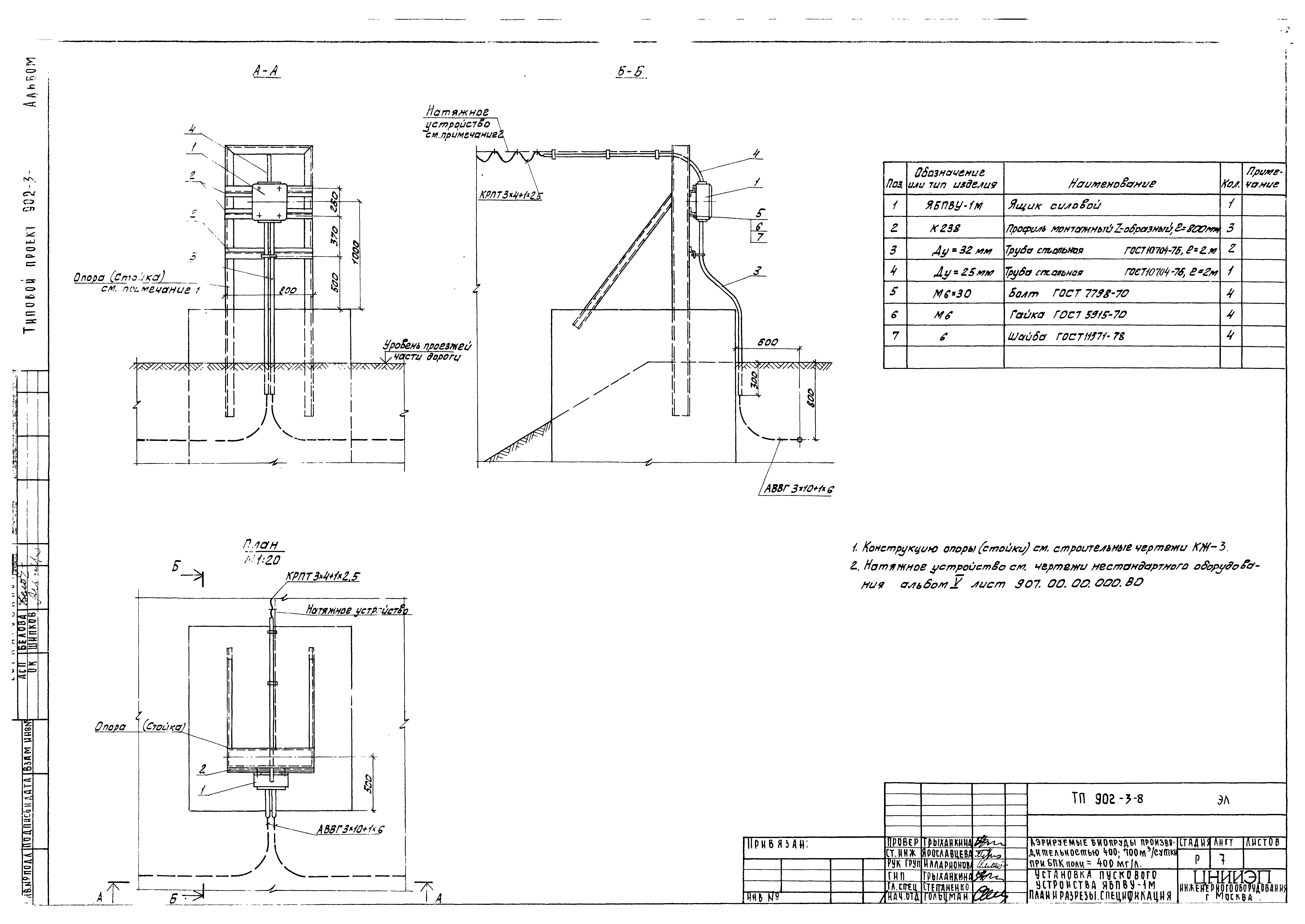
| Оглавление: | Содержание альбома Технологическая часть 1. Механическая аэрация НК-1 Общие данные НК-2 Схема генплана НК-3 План с сетями НК-4 Схема движения воды очистки сточных вод. Профили М4, П2 НК-5 Схема движения воды доочистки сточных вод. Профиль П2. Спецификация НК-6 Профили М3, Х1. Спецификация. Деталировка водопроводных колодцев НК-7 Профили М3, М4. Таблица колодцев 2. Механическая аэрация и доочистка с естественной аэрацией НК-8 План с сетями НК-9 Схема движения воды очистки сточных вод. Профили П2 НК-10 Схема движения воды доочистки сточных вод. Профили М3, М4 НК-11 Профили М4, Х1. Спецификация НК-12 Таблица колодцев. Спецификация Архитектурно-строительная часть 1. Механическая аэрация ГП-1 Примерный генплан 2. Механическая аэрация и доочитска с естесственной аэрацией ГП-2 Примерный генплан ГП-3 Раскладка плит. Разрезы 1-1, 2-2, 3-3 Конструкции железобетонные КЖ-1 Водоперепускной колодец и камера перепуска с переходом КЖ-2 Камера напуска, перегородка. Разрезы 1-1…5-5 КЖ-3 Опора под электрокабель. Закладные детали МН-1, МС-1…МС-6, БМ-1 КЖ-4 Водовыпускной колодец и переход к нему Электротехническая часть ЭЛ-1 Общие данные (начало) ЭЛ-2 Общие данные (продолжение) ЭЛ-3 Общие данные (окончание) ЭЛ-4 Питание электрооборудования. Схема принципиальная электрическая ЭЛ-5 План трассы кабелей, питающих аэраторы ЭЛ-6 План трассы кабелей, питающих аэраторы ЭЛ-7 Установка пускового устройства ЯБПВУ1м. План и разрезы. Спецификация ЭЛ-8 Наружное освещение. План ЭЛ-9 Наружное освещение. План |
| Разработан: | ЦНИИЭП |
| Утверждён: | 11.03.1980 Госгражданстрой (Gosgrazhdanstroy 75) |






























