Скачать Типовой проект 902-2-424.86 Альбом 2. Технологическая часть. Конструкции железобетонные и металлические. Электрооборудование и автоматика. Спецификации оборудования.Дата актуализации: 01.01.2021
|
| Обозначение: | Типовой проект 902-2-424.86 |
| Обозначение англ: | 902-2-424.86 |
| Статус: | не определен законодательством |
| Название рус.: | Альбом 2. Технологическая часть. Конструкции железобетонные и металлические. Электрооборудование и автоматика. Спецификации оборудования. |
| Дата добавления в базу: | 01.09.2013 |
| Дата актуализации: | 01.01.2021 |
| Дата введения: | 18.07.1986 |
| Дата окончания срока действия: | 30.06.2003 |
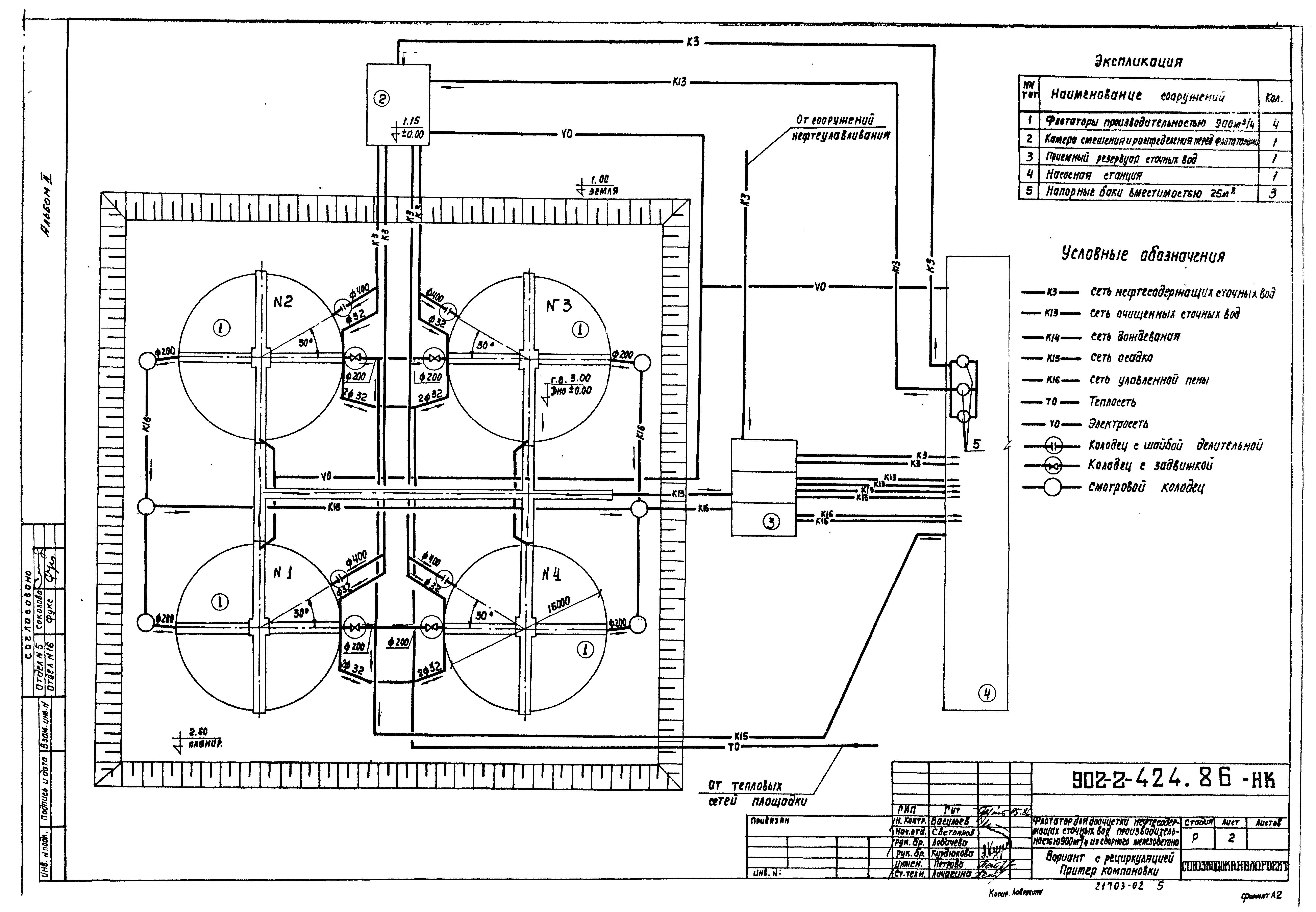
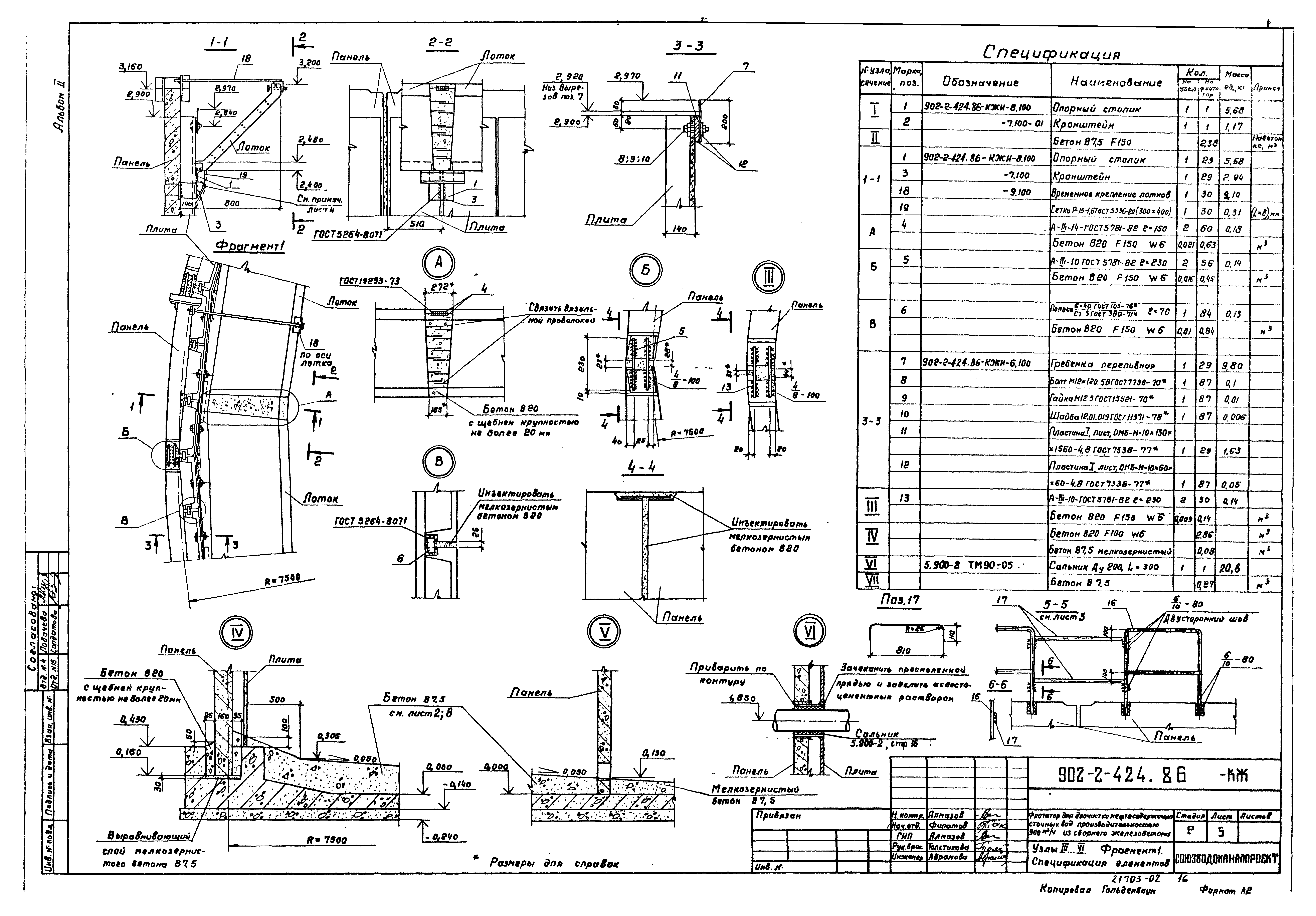
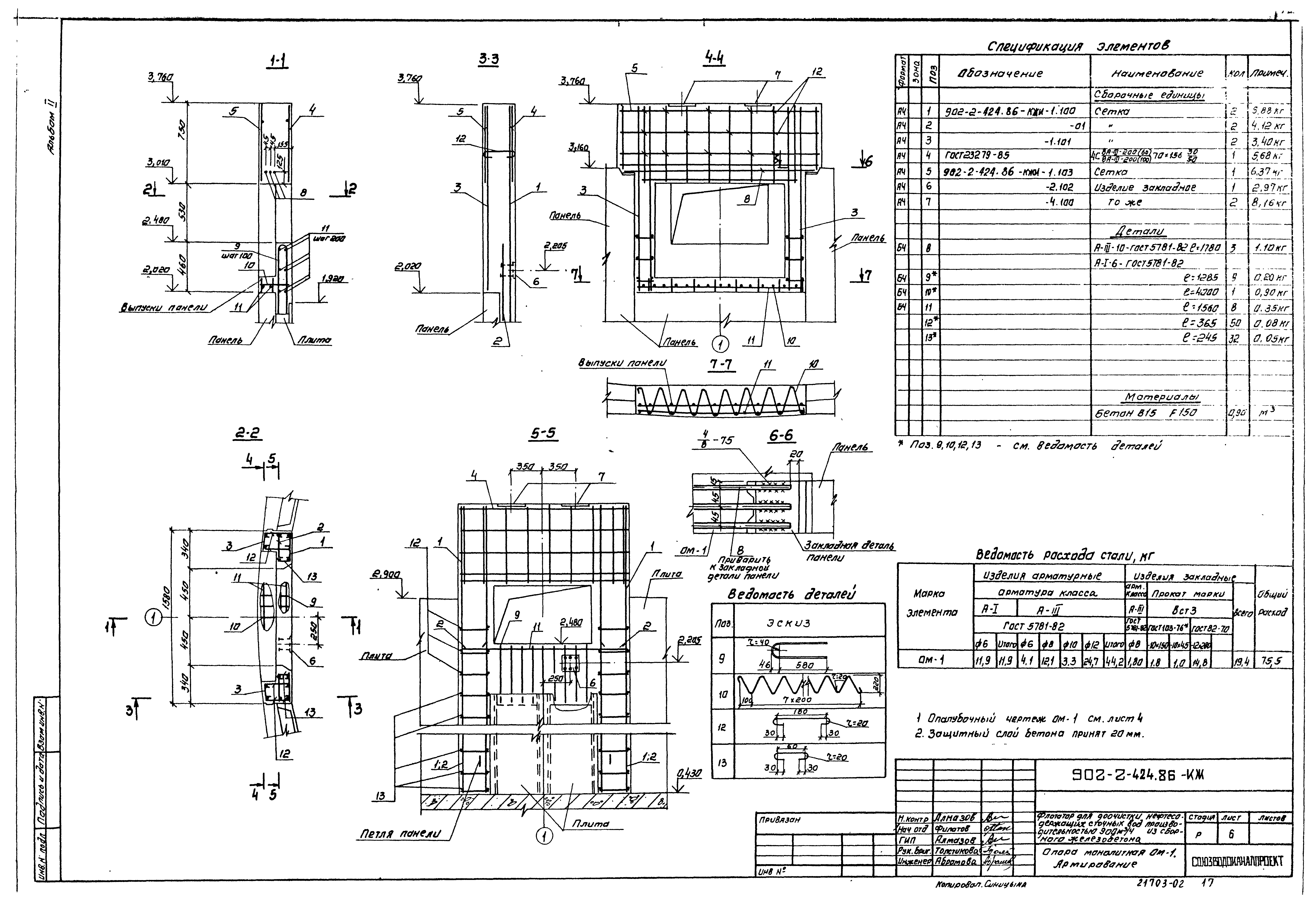
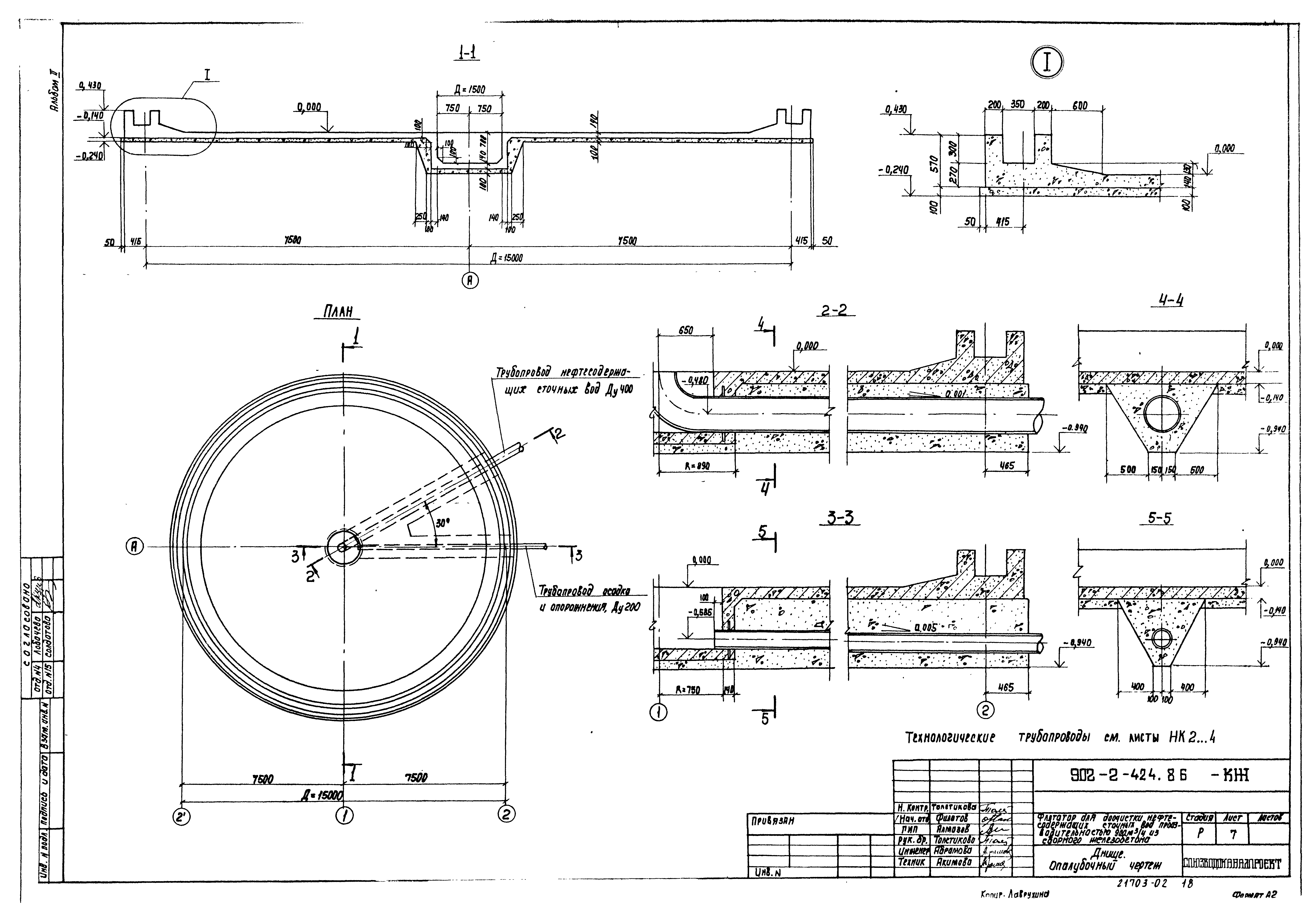
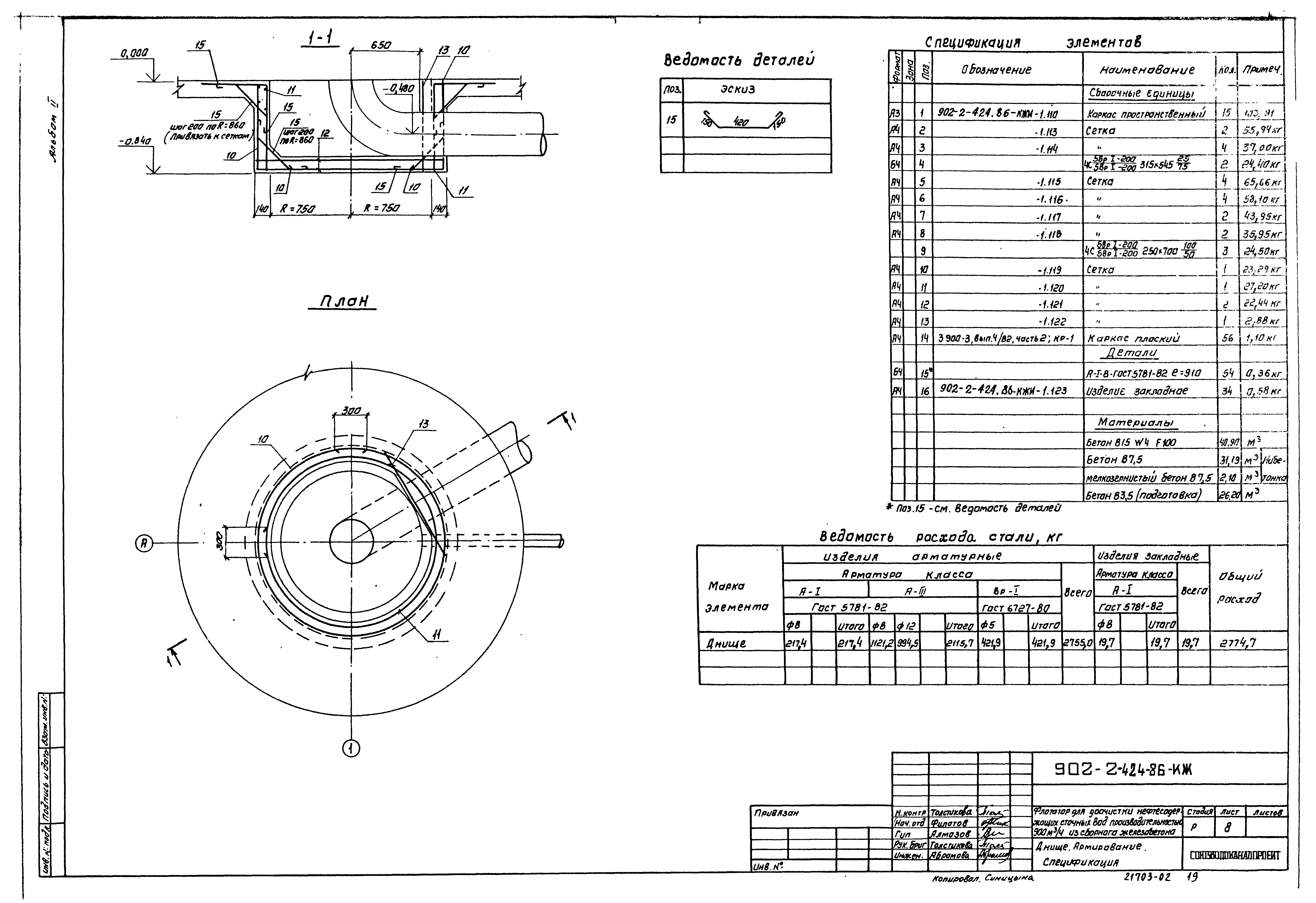
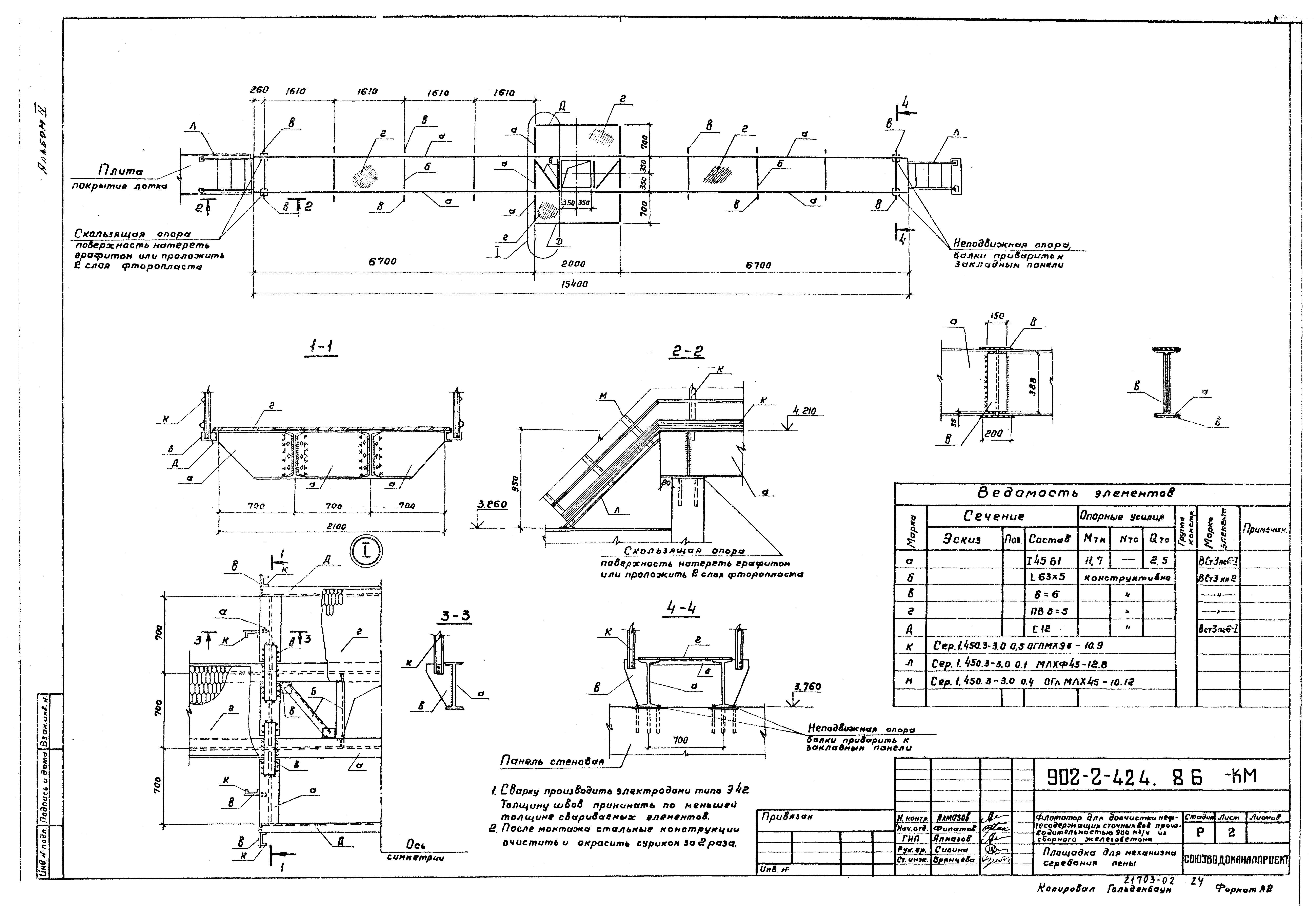
| Оглавление: | Содержание альбома Технологическая часть НК-1 Общие данные НК-2 Вариант с рециркуляцией. Пример компоновки НК-3 Вариант без рециркуляции. Пример компоновки НК-4 Флотатор. Монтажный чертеж. План НК-5 Флотатор. Монтажный чертеж. Разрезы НК-СО Флотатор. Спецификация оборудования НК-6 Колодцы с задвижкой и шайбой делительной. Монтажный чертеж. Колодцы. Спецификация оборудования Строительная часть КЖ-1 Общие данные КЖ-2 План. Разрезы КЖ-3 Схема расположения элементов сборных конструкций КЖ-4 Узлы I и II. Опора монолитная ОМ-1 КЖ-5 Узлы III…VI. Фрагмент 1. Спецификация элементов КЖ-6 Опора монолитная ОМ-1. Армирование КЖ-7 Днище. Опалубочный чертеж КЖ-8 Днище. Армирование. Спецификации КЖ-9 Днище. Армирование КЖ-10 Напрягаемая кольцевая арматура КЖ-11 Колодцы с шайбой делительной и задвижкой КМ-1 Общие данные КМ-2 Площадка для механизма сгребания пены ОС-1 Общие данные. Схема строительного генерального плана ОС-2 График производства работ Электрооборудование и автоматика АЭМ-1 Общие данные. Схема принципиальная управления механизмом сгребания пены АЭМ-2 Вариант без рециркуляции. Схема принципиальная управления задвижкой на подающем трубопроводе АЭМ-3 Схема подключения электрооборудования АЭМ-4 Кабельный журнал АЭМ-5 Расположения электрооборудования и прокладка труб АЭМ-СО Спецификация оборудования |
| Разработан: | Союзводоканалпроект |
| Утверждён: | 18.07.1986 Госстрой СССР (Государственный комитет Совета Министров СССР по делам строительства) (USSR Gosstroy А4-43) |
| Заменяет собой: |
|
































