Скачать Типовой проект 902-2-424.86 Альбом 4. Нестандартизированное оборудование флотатораДата актуализации: 01.01.2021
|
| Обозначение: | Типовой проект 902-2-424.86 |
| Обозначение англ: | 902-2-424.86 |
| Статус: | не определен законодательством |
| Название рус.: | Альбом 4. Нестандартизированное оборудование флотатора |
| Дата добавления в базу: | 01.09.2013 |
| Дата актуализации: | 01.01.2021 |
| Дата введения: | 18.07.1986 |
| Дата окончания срока действия: | 30.06.2003 |
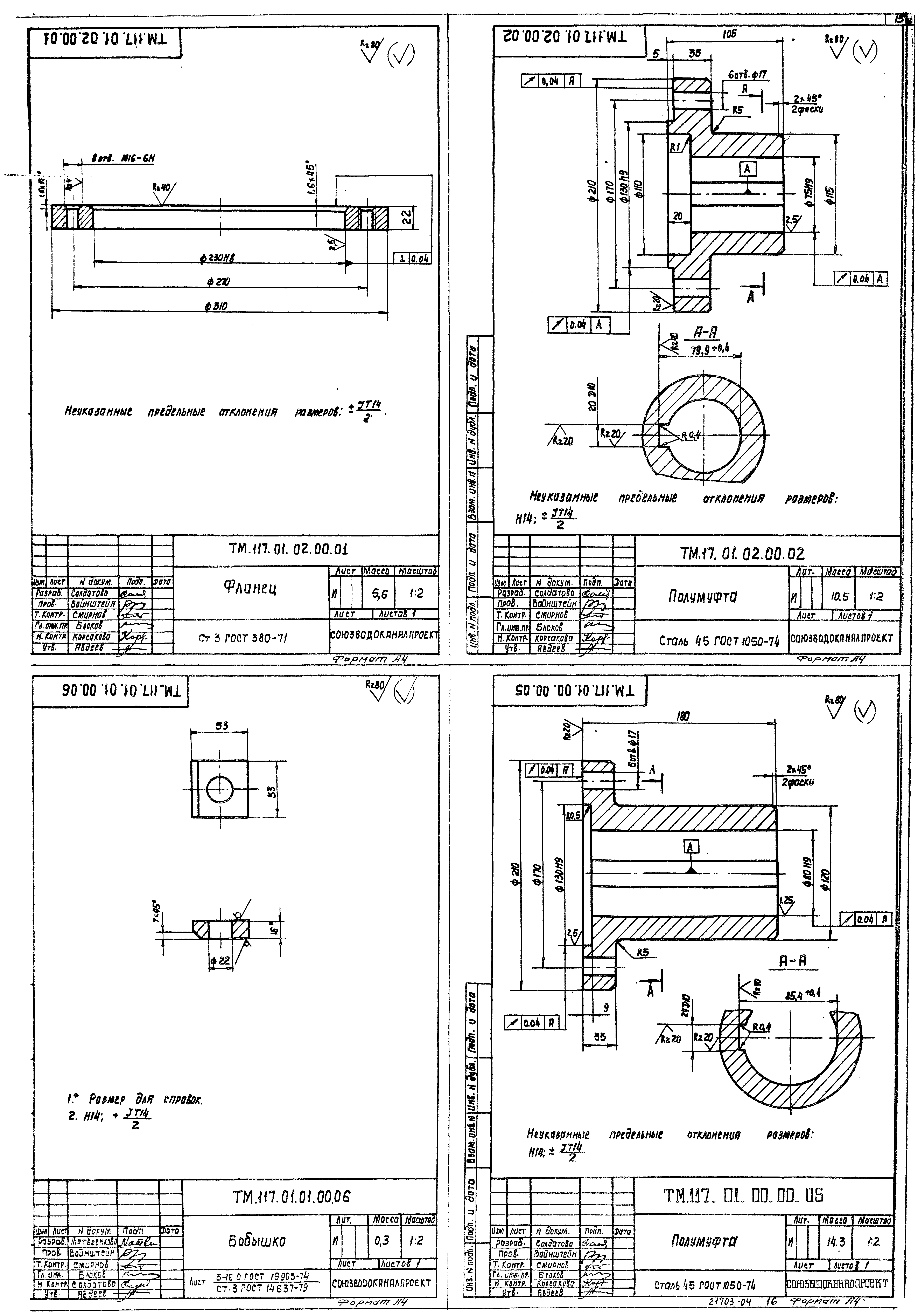
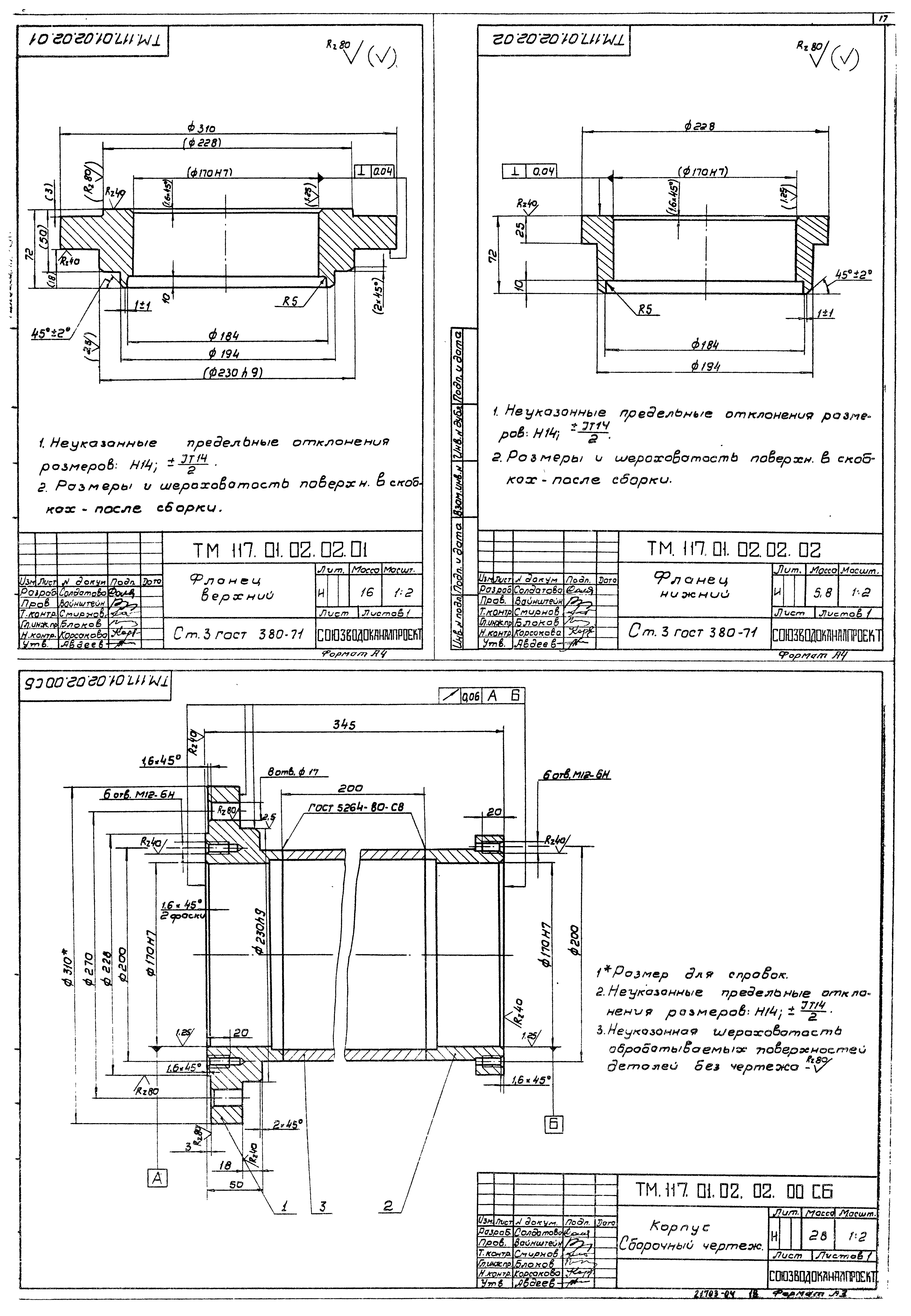
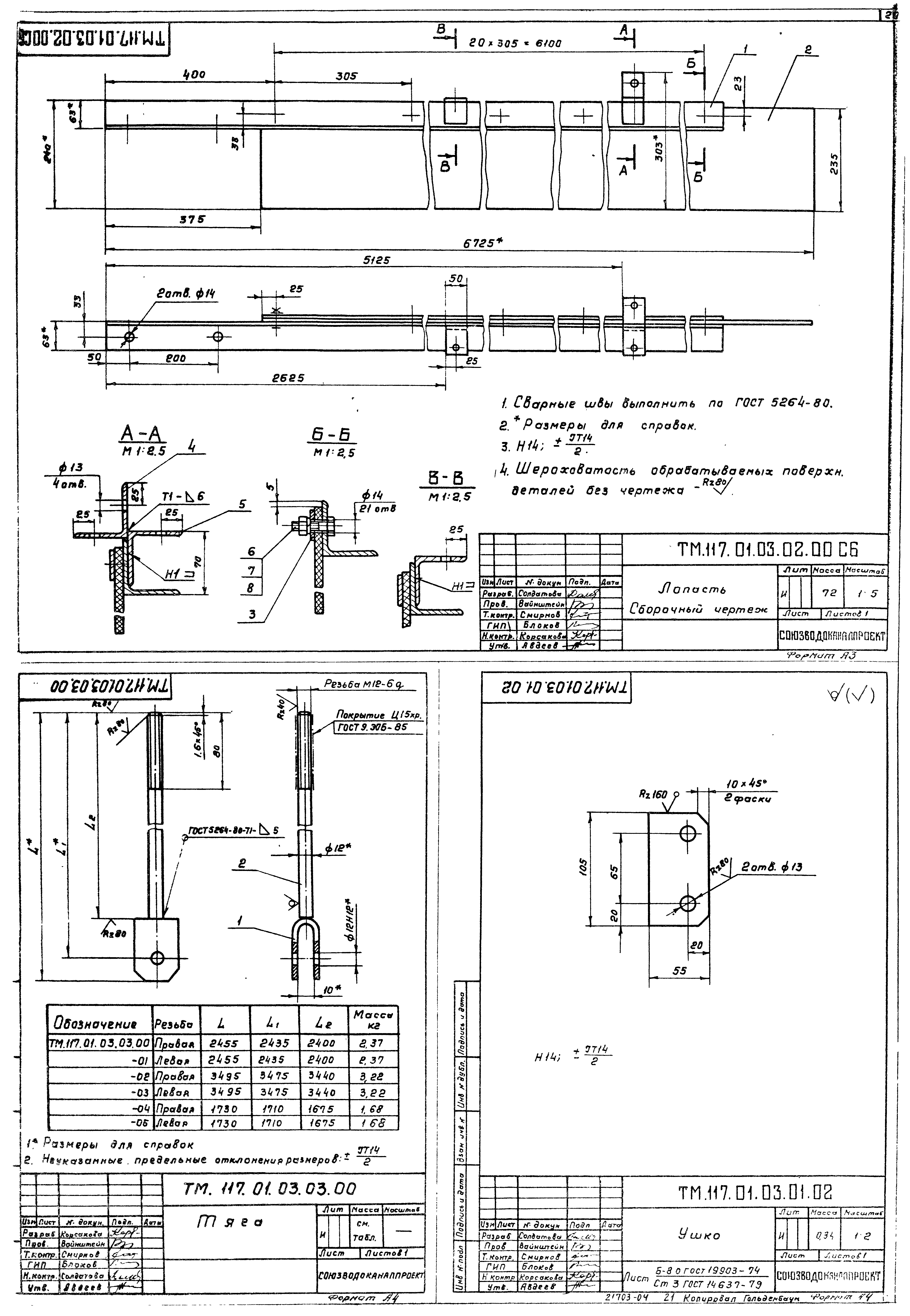
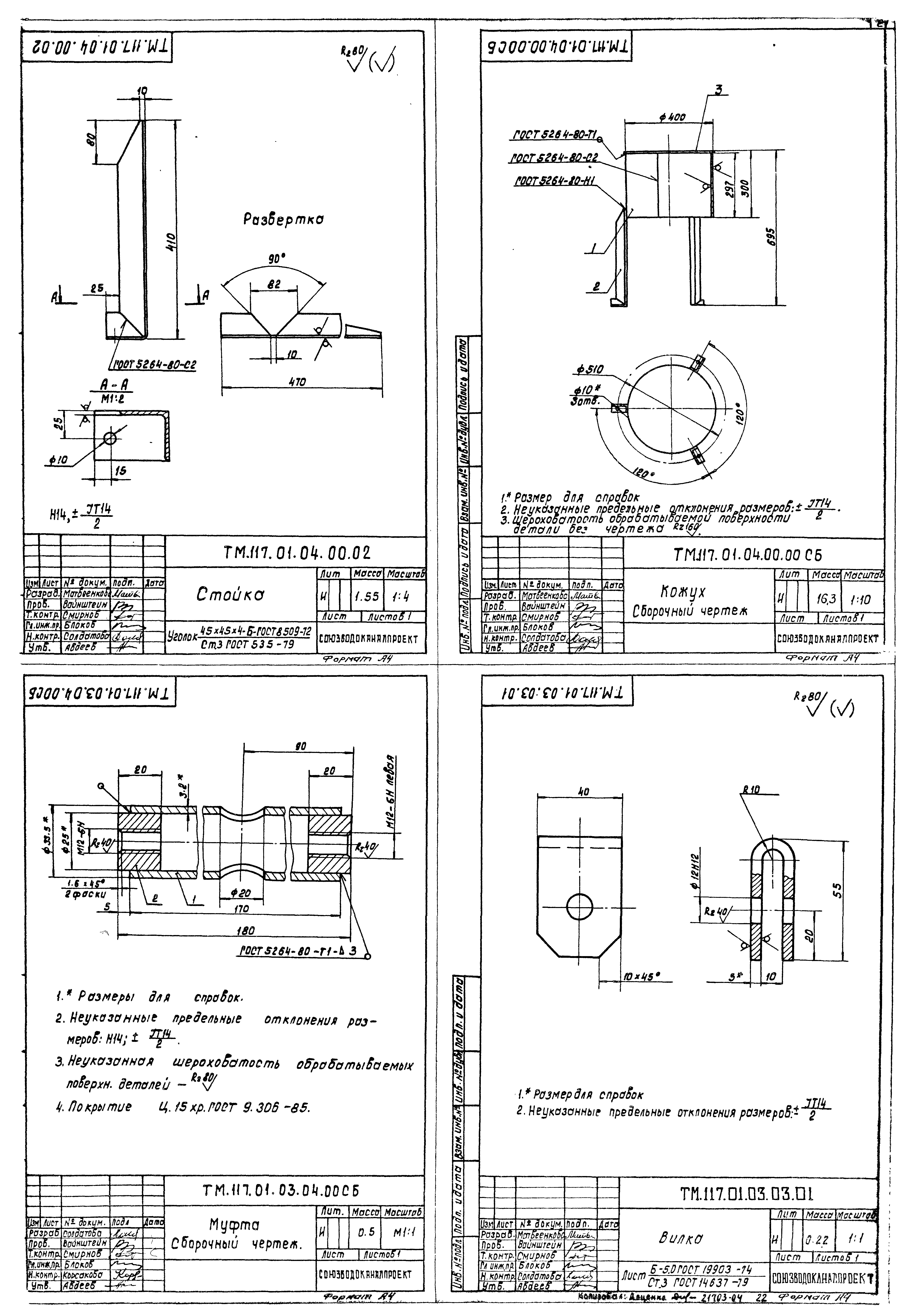
| Оглавление: | Содержание альбома ТМ.117.01 04Д Технические указания ТМ.117.01.00.00.00 Механизм сгребания пены ТМ.117.01.01.00.00 Каркас ТМ.117.01.02.00.00 Опора ТМ.117.01.02.01.00 Вал с фланцем ТМ.117.01.02.02.00 Корпус ТМ.117.01.03.00.00 Скребок ТМ.117.01.03.01.00 Вал ТМ.117.01.03.02.00 Лопасть ТМ.117.01.03.03.00 Тяга ТМ.117.01.00.00.00 СБ Механизм сгребания пены. Сборочный чертеж ТМ.117.01.03.04.00 Муфта ТМ.117.01.04.00.00 Кожух ТМ.117.01.00.00.01 Полумуфта ТМ.117.01.00.00.02 Полумуфта ТМ.117.01.00.00.03 Перекладина ТМ.117.01.00.00.04 Планка ТМ.117.01.01.00.00 СБ Каркас. Сборочный чертеж ТМ.117.01.01.00.01 Плита ТМ.117.01.01.00.02 Стойка ТМ.117.01.01.00.03 Перекладина ТМ.117.01.01.00.04 Плита ТМ.117.01.02.00.00 СБ Опора. Сборочный чертеж ТМ.117.01.00.00.05 Полумуфта ТМ.117.01.00.00.06 Бобышка ТМ.117.01.02.00.01 Фланец ТМ.117.01.02.00.02 Полумуфта ТМ.117.01.02.00.03 Крышка ТМ.117.01.02.01.00 СБ Вал с фланцем. Сборочный чертеж ТМ.117.01.02.02.00 СБ Корпус. Сборочный чертеж ТМ.117.01.02.02.01Фланец верхний ТМ.117.01.02.02.02 Фланец нижний ТМ.117.01.03.00.00 СБ Скребок. Сборочный чертеж ТМ.117.01.03.00.01 Растяжка ТМ.117.01.03.01.01 Фланец ТМ.117.01.03.01.00 СБ Вал. Сборочный чертеж ТМ.117.01.03.01.02 Ушко ТМ.117.01.03.03.00 Тяга ТМ.117.01.03.02.00 СБ Лопасть. Сборочный чертеж ТМ.117.01.03.03.01 Вилка ТМ.117.01.03.04.00 СБ Муфта. Сборочный чертеж ТМ.117.01.04.00.02 Стойка ТМ.117.01.04.00.00 СБ Кожух. Сборочный чертеж ТМ.117.02.00.00 Водораспределитель вращающийся ТМ.117.02.01.00 Корпус ТМ.117.02.02.00 Фланец опорный ТМ.117.02.03.00 Опора ТМ.117.02.04.00 Труба со штуцерами ТМ.117.02.05.00 Крышка ТМ.117.02.00.05 Втулка ТМ.117.02.00.00 СБ Водораспределитель вращающийся. Сборочный чертеж ТМ.117.02.00.01 Втулка ТМ.117.02.00.02 Втулка с буртиком ТМ.117.02.01.03 Труба ТМ.117.02.00.03 Шайба ТМ.117.02.00.04 Ось ТМ.117.02.00.06 Втулка ТМ.117.02.01.00 СБ Корпус. Сборочный чертеж ТМ.117.02.01.01 Кольцо ТМ.117.02.01.02 Стакан ТМ.117.02.02.00 СБ Фланец опорный. Сборочный чертеж ТМ.117.02.02.01 Фланец ТМ.117.02.02.03 Втулка ТМ.117.02.03.00 СБ Опора. Сборочный чертеж ТМ.117.02.03.01 Фланец ТМ.117.02.04.00 СБ Труба со штуцерами. Сборочный чертеж ТМ.117.02.05.00 СБ Крышка. Сборочный чертеж ТМ.117.02.05.01 Корпус ТМ.117.02.05.02 Фланец ТМ.117.02.04.02 Штуцер ТМ.117.03.00.00 Лоток пеносборный ТМ.117.03.01.00 Лоток ТМ.117.03.02.00 Труба пеногашения ТМ.117.03.00.00 СБ Лоток пеносборный. Сборочный чертеж ТМ.117.03.03.00 Опора ТМ.117.03.04.00 Основание ТМ.117.03.01.00 СБ Лоток. Сборочный чертеж ТМ.117.03.00.01 Хомут ТМ.117.03.01.01 Направляющая ТМ.117.03.01.02 Ребро ТМ.117.03.03.01 Хомут ТМ.117.03.02.00 СБ Труба пеногашения. Сборочный чертеж ТМ.117.03.03.00 СБ Опора. Сборочный чертеж ТМ.117.04.00 Указатель вращения водораспределителя ТМ.117.04.01 Стрелка ТМ.117.04.02 Опора ТМ.117.04.00 СБ Указатель вращения водораспределителя. Сборочный чертеж |
| Разработан: | Союзводоканалпроект |
| Утверждён: | 18.07.1986 Госстрой СССР (Государственный комитет Совета Министров СССР по делам строительства) (USSR Gosstroy А4-43) |
| Заменяет собой: |
|






































